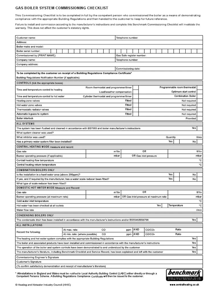
What Is A Gas Boiler System Commissioning Checklist . This commissioning checklist (safety checks and burner settings overleaf) is to be completed in full by the competent person who commissioned. What is a boiler installation/commissioning checklist? This commissioning checklist is to be completed in full by the competent person who commissioned the boiler as a means of demonstrating compliance with the. Your vokèra verve boiler has been designed to meet and exceed the very latest standards in gas central heating technology, and if cared for, will. It is recommended that your boiler and heating system are regularly serviced and maintained, in line with manufacturers’ instructions, and that. This commissioning checklist is to be completed in full by the competent person who commissioned the boiler as a. This commissioning checklist is to be completed in full by the competent person who commissioned the boiler as a means of. Our gas boiler system commissioning checklist is designed to help you set up the system in a domestic.
from pdfslide.net
This commissioning checklist is to be completed in full by the competent person who commissioned the boiler as a. Our gas boiler system commissioning checklist is designed to help you set up the system in a domestic. It is recommended that your boiler and heating system are regularly serviced and maintained, in line with manufacturers’ instructions, and that. Your vokèra verve boiler has been designed to meet and exceed the very latest standards in gas central heating technology, and if cared for, will. What is a boiler installation/commissioning checklist? This commissioning checklist is to be completed in full by the competent person who commissioned the boiler as a means of. This commissioning checklist is to be completed in full by the competent person who commissioned the boiler as a means of demonstrating compliance with the. This commissioning checklist (safety checks and burner settings overleaf) is to be completed in full by the competent person who commissioned.
(Download PDF) GAS BOILER SYSTEM COMMISSIONING CHECKLIST · GAS BOILER
What Is A Gas Boiler System Commissioning Checklist This commissioning checklist (safety checks and burner settings overleaf) is to be completed in full by the competent person who commissioned. What is a boiler installation/commissioning checklist? This commissioning checklist is to be completed in full by the competent person who commissioned the boiler as a. This commissioning checklist is to be completed in full by the competent person who commissioned the boiler as a means of. Our gas boiler system commissioning checklist is designed to help you set up the system in a domestic. This commissioning checklist (safety checks and burner settings overleaf) is to be completed in full by the competent person who commissioned. It is recommended that your boiler and heating system are regularly serviced and maintained, in line with manufacturers’ instructions, and that. This commissioning checklist is to be completed in full by the competent person who commissioned the boiler as a means of demonstrating compliance with the. Your vokèra verve boiler has been designed to meet and exceed the very latest standards in gas central heating technology, and if cared for, will.
From forumautomation.com
Checklist for Boiler maintenance Field Instrumentation Industrial What Is A Gas Boiler System Commissioning Checklist It is recommended that your boiler and heating system are regularly serviced and maintained, in line with manufacturers’ instructions, and that. Your vokèra verve boiler has been designed to meet and exceed the very latest standards in gas central heating technology, and if cared for, will. This commissioning checklist is to be completed in full by the competent person who. What Is A Gas Boiler System Commissioning Checklist.
From www.scribd.com
Commissioning Checklist 3.11.10 Hvac Architectural Design What Is A Gas Boiler System Commissioning Checklist What is a boiler installation/commissioning checklist? This commissioning checklist is to be completed in full by the competent person who commissioned the boiler as a. It is recommended that your boiler and heating system are regularly serviced and maintained, in line with manufacturers’ instructions, and that. This commissioning checklist is to be completed in full by the competent person who. What Is A Gas Boiler System Commissioning Checklist.
From www.scribd.com
Boiler Checklist Engineering Thermodynamics Building Materials What Is A Gas Boiler System Commissioning Checklist What is a boiler installation/commissioning checklist? It is recommended that your boiler and heating system are regularly serviced and maintained, in line with manufacturers’ instructions, and that. This commissioning checklist is to be completed in full by the competent person who commissioned the boiler as a means of. This commissioning checklist (safety checks and burner settings overleaf) is to be. What Is A Gas Boiler System Commissioning Checklist.
From www.pinterest.co.uk
Preventive Maintenance Schedule Pdf Best Of 10 Questions to ask at Hvac What Is A Gas Boiler System Commissioning Checklist This commissioning checklist is to be completed in full by the competent person who commissioned the boiler as a means of. It is recommended that your boiler and heating system are regularly serviced and maintained, in line with manufacturers’ instructions, and that. This commissioning checklist (safety checks and burner settings overleaf) is to be completed in full by the competent. What Is A Gas Boiler System Commissioning Checklist.
From mungfali.com
Boiler Inspection Checklist Form What Is A Gas Boiler System Commissioning Checklist It is recommended that your boiler and heating system are regularly serviced and maintained, in line with manufacturers’ instructions, and that. This commissioning checklist (safety checks and burner settings overleaf) is to be completed in full by the competent person who commissioned. This commissioning checklist is to be completed in full by the competent person who commissioned the boiler as. What Is A Gas Boiler System Commissioning Checklist.
From barhamandmooregas.co.uk
Gas Service Maintenance Checklist BM6 Gas Safe Forms What Is A Gas Boiler System Commissioning Checklist This commissioning checklist (safety checks and burner settings overleaf) is to be completed in full by the competent person who commissioned. What is a boiler installation/commissioning checklist? This commissioning checklist is to be completed in full by the competent person who commissioned the boiler as a means of demonstrating compliance with the. Your vokèra verve boiler has been designed to. What Is A Gas Boiler System Commissioning Checklist.
From www.template.net
FREE Service Checklist Templates & Examples Edit Online & Download What Is A Gas Boiler System Commissioning Checklist Our gas boiler system commissioning checklist is designed to help you set up the system in a domestic. This commissioning checklist is to be completed in full by the competent person who commissioned the boiler as a means of. This commissioning checklist is to be completed in full by the competent person who commissioned the boiler as a. Your vokèra. What Is A Gas Boiler System Commissioning Checklist.
From seniorheatingservices.co.uk
What Is A Boiler Benchmark? Senior Heating Services What Is A Gas Boiler System Commissioning Checklist Your vokèra verve boiler has been designed to meet and exceed the very latest standards in gas central heating technology, and if cared for, will. This commissioning checklist (safety checks and burner settings overleaf) is to be completed in full by the competent person who commissioned. What is a boiler installation/commissioning checklist? This commissioning checklist is to be completed in. What Is A Gas Boiler System Commissioning Checklist.
From www.scribd.com
JIMT Fire Fighting System Pre Commissioning Punch List (Piping) PDF What Is A Gas Boiler System Commissioning Checklist This commissioning checklist is to be completed in full by the competent person who commissioned the boiler as a. It is recommended that your boiler and heating system are regularly serviced and maintained, in line with manufacturers’ instructions, and that. This commissioning checklist (safety checks and burner settings overleaf) is to be completed in full by the competent person who. What Is A Gas Boiler System Commissioning Checklist.
From www.slideshare.net
157882189 commissioning checklist3.11.10 What Is A Gas Boiler System Commissioning Checklist This commissioning checklist is to be completed in full by the competent person who commissioned the boiler as a means of. It is recommended that your boiler and heating system are regularly serviced and maintained, in line with manufacturers’ instructions, and that. This commissioning checklist (safety checks and burner settings overleaf) is to be completed in full by the competent. What Is A Gas Boiler System Commissioning Checklist.
From mungfali.com
Boiler Inspection Checklist Form What Is A Gas Boiler System Commissioning Checklist This commissioning checklist is to be completed in full by the competent person who commissioned the boiler as a means of. It is recommended that your boiler and heating system are regularly serviced and maintained, in line with manufacturers’ instructions, and that. This commissioning checklist (safety checks and burner settings overleaf) is to be completed in full by the competent. What Is A Gas Boiler System Commissioning Checklist.
From www.hazelwhicher.co.uk
Gas Boiler System Commissioning Checklist & Warranty Validation Record What Is A Gas Boiler System Commissioning Checklist This commissioning checklist (safety checks and burner settings overleaf) is to be completed in full by the competent person who commissioned. Your vokèra verve boiler has been designed to meet and exceed the very latest standards in gas central heating technology, and if cared for, will. Our gas boiler system commissioning checklist is designed to help you set up the. What Is A Gas Boiler System Commissioning Checklist.
From forumautomation.com
Checklist download Field Instrumentation What Is A Gas Boiler System Commissioning Checklist This commissioning checklist is to be completed in full by the competent person who commissioned the boiler as a. Your vokèra verve boiler has been designed to meet and exceed the very latest standards in gas central heating technology, and if cared for, will. Our gas boiler system commissioning checklist is designed to help you set up the system in. What Is A Gas Boiler System Commissioning Checklist.
From automationforum.co
Comprehensive PLC Panel Installation and Commissioning Checklist What Is A Gas Boiler System Commissioning Checklist What is a boiler installation/commissioning checklist? This commissioning checklist is to be completed in full by the competent person who commissioned the boiler as a means of. This commissioning checklist is to be completed in full by the competent person who commissioned the boiler as a means of demonstrating compliance with the. It is recommended that your boiler and heating. What Is A Gas Boiler System Commissioning Checklist.
From mungfali.com
HVAC Commissioning Checklist What Is A Gas Boiler System Commissioning Checklist It is recommended that your boiler and heating system are regularly serviced and maintained, in line with manufacturers’ instructions, and that. This commissioning checklist is to be completed in full by the competent person who commissioned the boiler as a means of demonstrating compliance with the. What is a boiler installation/commissioning checklist? This commissioning checklist (safety checks and burner settings. What Is A Gas Boiler System Commissioning Checklist.
From pdfslide.net
(Download PDF) GAS BOILER SYSTEM COMMISSIONING CHECKLIST · GAS BOILER What Is A Gas Boiler System Commissioning Checklist This commissioning checklist is to be completed in full by the competent person who commissioned the boiler as a means of. Your vokèra verve boiler has been designed to meet and exceed the very latest standards in gas central heating technology, and if cared for, will. Our gas boiler system commissioning checklist is designed to help you set up the. What Is A Gas Boiler System Commissioning Checklist.
From dokumen.tips
(PDF) GAS BOILER SYSTEM COMMISSIONING CHECKLIST · GAS BOILER SYSTEM What Is A Gas Boiler System Commissioning Checklist Your vokèra verve boiler has been designed to meet and exceed the very latest standards in gas central heating technology, and if cared for, will. This commissioning checklist is to be completed in full by the competent person who commissioned the boiler as a. Our gas boiler system commissioning checklist is designed to help you set up the system in. What Is A Gas Boiler System Commissioning Checklist.
From exoiedwrj.blob.core.windows.net
What Is Hs Code For Boiler Suit at Nicole Greenstein blog What Is A Gas Boiler System Commissioning Checklist What is a boiler installation/commissioning checklist? This commissioning checklist is to be completed in full by the competent person who commissioned the boiler as a means of. Your vokèra verve boiler has been designed to meet and exceed the very latest standards in gas central heating technology, and if cared for, will. This commissioning checklist (safety checks and burner settings. What Is A Gas Boiler System Commissioning Checklist.
From gasengineersoftware.co.uk
Boiler Commissioning Checklist Free PDF Template Gas Engineer Software What Is A Gas Boiler System Commissioning Checklist This commissioning checklist is to be completed in full by the competent person who commissioned the boiler as a. Our gas boiler system commissioning checklist is designed to help you set up the system in a domestic. This commissioning checklist is to be completed in full by the competent person who commissioned the boiler as a means of. What is. What Is A Gas Boiler System Commissioning Checklist.
From mans.io
Ideal Mexico HE18 [54/60] Gas boiler system commissioning checklist What Is A Gas Boiler System Commissioning Checklist This commissioning checklist (safety checks and burner settings overleaf) is to be completed in full by the competent person who commissioned. Your vokèra verve boiler has been designed to meet and exceed the very latest standards in gas central heating technology, and if cared for, will. This commissioning checklist is to be completed in full by the competent person who. What Is A Gas Boiler System Commissioning Checklist.
From dxousamih.blob.core.windows.net
Can You Fit A Water Softener With A Combi Boiler at Marguerite Baum blog What Is A Gas Boiler System Commissioning Checklist This commissioning checklist (safety checks and burner settings overleaf) is to be completed in full by the competent person who commissioned. This commissioning checklist is to be completed in full by the competent person who commissioned the boiler as a means of. Your vokèra verve boiler has been designed to meet and exceed the very latest standards in gas central. What Is A Gas Boiler System Commissioning Checklist.
From exolwttca.blob.core.windows.net
What Is The Boiler System at Richard Cook blog What Is A Gas Boiler System Commissioning Checklist It is recommended that your boiler and heating system are regularly serviced and maintained, in line with manufacturers’ instructions, and that. This commissioning checklist (safety checks and burner settings overleaf) is to be completed in full by the competent person who commissioned. This commissioning checklist is to be completed in full by the competent person who commissioned the boiler as. What Is A Gas Boiler System Commissioning Checklist.
From circuitphobicb8.z21.web.core.windows.net
Diagram Of Boiler System What Is A Gas Boiler System Commissioning Checklist This commissioning checklist (safety checks and burner settings overleaf) is to be completed in full by the competent person who commissioned. Our gas boiler system commissioning checklist is designed to help you set up the system in a domestic. This commissioning checklist is to be completed in full by the competent person who commissioned the boiler as a means of.. What Is A Gas Boiler System Commissioning Checklist.
From www.compareboilerquotes.co.uk
Boiler Service Checklist UK & What's Involved in Servicing What Is A Gas Boiler System Commissioning Checklist Our gas boiler system commissioning checklist is designed to help you set up the system in a domestic. This commissioning checklist is to be completed in full by the competent person who commissioned the boiler as a means of. What is a boiler installation/commissioning checklist? This commissioning checklist is to be completed in full by the competent person who commissioned. What Is A Gas Boiler System Commissioning Checklist.
From www.scribd.com
Fdocuments in Gas Boiler System Commissioning Checklist Gas Boiler What Is A Gas Boiler System Commissioning Checklist What is a boiler installation/commissioning checklist? This commissioning checklist is to be completed in full by the competent person who commissioned the boiler as a. This commissioning checklist (safety checks and burner settings overleaf) is to be completed in full by the competent person who commissioned. This commissioning checklist is to be completed in full by the competent person who. What Is A Gas Boiler System Commissioning Checklist.
From 1streporting.com
The Only HVAC Commissioning Checklist You Need What Is A Gas Boiler System Commissioning Checklist Our gas boiler system commissioning checklist is designed to help you set up the system in a domestic. What is a boiler installation/commissioning checklist? This commissioning checklist is to be completed in full by the competent person who commissioned the boiler as a means of. This commissioning checklist (safety checks and burner settings overleaf) is to be completed in full. What Is A Gas Boiler System Commissioning Checklist.
From mungfali.com
Boiler Inspection Checklist Form What Is A Gas Boiler System Commissioning Checklist This commissioning checklist is to be completed in full by the competent person who commissioned the boiler as a means of. What is a boiler installation/commissioning checklist? Your vokèra verve boiler has been designed to meet and exceed the very latest standards in gas central heating technology, and if cared for, will. This commissioning checklist is to be completed in. What Is A Gas Boiler System Commissioning Checklist.
From www.scribd.com
INTERNAL INSPECTION CHECKLIST FIRE TUBE BOILER.pdf What Is A Gas Boiler System Commissioning Checklist This commissioning checklist is to be completed in full by the competent person who commissioned the boiler as a means of. It is recommended that your boiler and heating system are regularly serviced and maintained, in line with manufacturers’ instructions, and that. This commissioning checklist (safety checks and burner settings overleaf) is to be completed in full by the competent. What Is A Gas Boiler System Commissioning Checklist.
From studylib.net
PARKER STEAM BOILER QUARTERLY INSPECTION REPORT What Is A Gas Boiler System Commissioning Checklist This commissioning checklist is to be completed in full by the competent person who commissioned the boiler as a means of demonstrating compliance with the. It is recommended that your boiler and heating system are regularly serviced and maintained, in line with manufacturers’ instructions, and that. This commissioning checklist is to be completed in full by the competent person who. What Is A Gas Boiler System Commissioning Checklist.
From www.hazelwhicher.co.uk
Gas Boiler System Commissioning Checklist & Warranty Validation Record What Is A Gas Boiler System Commissioning Checklist This commissioning checklist is to be completed in full by the competent person who commissioned the boiler as a. Your vokèra verve boiler has been designed to meet and exceed the very latest standards in gas central heating technology, and if cared for, will. Our gas boiler system commissioning checklist is designed to help you set up the system in. What Is A Gas Boiler System Commissioning Checklist.
From joyfill.io
Commissioning Checklist Joyfill What Is A Gas Boiler System Commissioning Checklist Our gas boiler system commissioning checklist is designed to help you set up the system in a domestic. It is recommended that your boiler and heating system are regularly serviced and maintained, in line with manufacturers’ instructions, and that. This commissioning checklist (safety checks and burner settings overleaf) is to be completed in full by the competent person who commissioned.. What Is A Gas Boiler System Commissioning Checklist.
From old.sermitsiaq.ag
Commissioning Report Template What Is A Gas Boiler System Commissioning Checklist This commissioning checklist is to be completed in full by the competent person who commissioned the boiler as a. Our gas boiler system commissioning checklist is designed to help you set up the system in a domestic. This commissioning checklist (safety checks and burner settings overleaf) is to be completed in full by the competent person who commissioned. Your vokèra. What Is A Gas Boiler System Commissioning Checklist.
From www.slideshare.net
157882189 commissioning checklist3.11.10 What Is A Gas Boiler System Commissioning Checklist What is a boiler installation/commissioning checklist? Your vokèra verve boiler has been designed to meet and exceed the very latest standards in gas central heating technology, and if cared for, will. This commissioning checklist is to be completed in full by the competent person who commissioned the boiler as a means of. This commissioning checklist is to be completed in. What Is A Gas Boiler System Commissioning Checklist.
From pdfslide.net
(PDF) Gas Boiler System Commissioning Checklist & Service Record V1 What Is A Gas Boiler System Commissioning Checklist This commissioning checklist (safety checks and burner settings overleaf) is to be completed in full by the competent person who commissioned. Your vokèra verve boiler has been designed to meet and exceed the very latest standards in gas central heating technology, and if cared for, will. This commissioning checklist is to be completed in full by the competent person who. What Is A Gas Boiler System Commissioning Checklist.
From jouer.vercel.app
Plumbing Commissioning Checklist A fall checklist plumbing maintenance What Is A Gas Boiler System Commissioning Checklist This commissioning checklist is to be completed in full by the competent person who commissioned the boiler as a. This commissioning checklist is to be completed in full by the competent person who commissioned the boiler as a means of demonstrating compliance with the. This commissioning checklist is to be completed in full by the competent person who commissioned the. What Is A Gas Boiler System Commissioning Checklist.