What Is An Exempt Well In Arizona . An exempt well typically is used for domestic purposes. It is equipped to pump 35 gallons per minute or less. Most water wells in arizona are “exempt”, meaning they are exempt from regulation and permitting requirements required. There are two types of production wells: What defines a shared well? Most shared wells are simply “exempt” wells (arizona’s. Official classification of domestic water wells) as. What is an exempt well in arizona? On or after january 1, 2006, an exempt well otherwise allowed by this section may not be drilled on land if any part of the land is within. Exempt wells are regulated in arizona based on (1) when they were drilled, (2) where they are located, and (3) the water’s use.
from in2wells.com
Most water wells in arizona are “exempt”, meaning they are exempt from regulation and permitting requirements required. An exempt well typically is used for domestic purposes. On or after january 1, 2006, an exempt well otherwise allowed by this section may not be drilled on land if any part of the land is within. What defines a shared well? Exempt wells are regulated in arizona based on (1) when they were drilled, (2) where they are located, and (3) the water’s use. Most shared wells are simply “exempt” wells (arizona’s. It is equipped to pump 35 gallons per minute or less. Official classification of domestic water wells) as. There are two types of production wells: What is an exempt well in arizona?
Home • In2Wells
What Is An Exempt Well In Arizona It is equipped to pump 35 gallons per minute or less. Most water wells in arizona are “exempt”, meaning they are exempt from regulation and permitting requirements required. What defines a shared well? On or after january 1, 2006, an exempt well otherwise allowed by this section may not be drilled on land if any part of the land is within. What is an exempt well in arizona? It is equipped to pump 35 gallons per minute or less. There are two types of production wells: Official classification of domestic water wells) as. Exempt wells are regulated in arizona based on (1) when they were drilled, (2) where they are located, and (3) the water’s use. An exempt well typically is used for domestic purposes. Most shared wells are simply “exempt” wells (arizona’s.
From in2wells.com
Home • In2Wells What Is An Exempt Well In Arizona What defines a shared well? There are two types of production wells: Exempt wells are regulated in arizona based on (1) when they were drilled, (2) where they are located, and (3) the water’s use. An exempt well typically is used for domestic purposes. What is an exempt well in arizona? It is equipped to pump 35 gallons per minute. What Is An Exempt Well In Arizona.
From www.signnow.com
Shared Well Agreement Arizona Complete with ease airSlate SignNow What Is An Exempt Well In Arizona Exempt wells are regulated in arizona based on (1) when they were drilled, (2) where they are located, and (3) the water’s use. Most shared wells are simply “exempt” wells (arizona’s. On or after january 1, 2006, an exempt well otherwise allowed by this section may not be drilled on land if any part of the land is within. What. What Is An Exempt Well In Arizona.
From www.templateroller.com
Form DWR5540A Download Printable PDF or Fill Online Exempt Well What Is An Exempt Well In Arizona It is equipped to pump 35 gallons per minute or less. Exempt wells are regulated in arizona based on (1) when they were drilled, (2) where they are located, and (3) the water’s use. Most water wells in arizona are “exempt”, meaning they are exempt from regulation and permitting requirements required. Official classification of domestic water wells) as. What defines. What Is An Exempt Well In Arizona.
From www.exemptform.com
Arizona Property Tax Exemption Form What Is An Exempt Well In Arizona On or after january 1, 2006, an exempt well otherwise allowed by this section may not be drilled on land if any part of the land is within. An exempt well typically is used for domestic purposes. Exempt wells are regulated in arizona based on (1) when they were drilled, (2) where they are located, and (3) the water’s use.. What Is An Exempt Well In Arizona.
From gaverb.com
Well Drilling in Arizona Arizona Department of Water Resources (2023) What Is An Exempt Well In Arizona Most shared wells are simply “exempt” wells (arizona’s. Official classification of domestic water wells) as. Most water wells in arizona are “exempt”, meaning they are exempt from regulation and permitting requirements required. What defines a shared well? An exempt well typically is used for domestic purposes. There are two types of production wells: On or after january 1, 2006, an. What Is An Exempt Well In Arizona.
From www.templateroller.com
DWR Form 5540C Fill Out, Sign Online and Download Fillable PDF What Is An Exempt Well In Arizona What defines a shared well? Exempt wells are regulated in arizona based on (1) when they were drilled, (2) where they are located, and (3) the water’s use. It is equipped to pump 35 gallons per minute or less. Most water wells in arizona are “exempt”, meaning they are exempt from regulation and permitting requirements required. An exempt well typically. What Is An Exempt Well In Arizona.
From www.slideserve.com
PPT Groundwater Management In Arizona PowerPoint Presentation, free What Is An Exempt Well In Arizona It is equipped to pump 35 gallons per minute or less. Most water wells in arizona are “exempt”, meaning they are exempt from regulation and permitting requirements required. Exempt wells are regulated in arizona based on (1) when they were drilled, (2) where they are located, and (3) the water’s use. Official classification of domestic water wells) as. There are. What Is An Exempt Well In Arizona.
From gaverb.com
Well Drilling in Arizona Arizona Department of Water Resources (2023) What Is An Exempt Well In Arizona There are two types of production wells: Official classification of domestic water wells) as. Most water wells in arizona are “exempt”, meaning they are exempt from regulation and permitting requirements required. Most shared wells are simply “exempt” wells (arizona’s. What is an exempt well in arizona? An exempt well typically is used for domestic purposes. It is equipped to pump. What Is An Exempt Well In Arizona.
From www.hirequotient.com
What is an Exempt Employee in Arizona? HireQuotient What Is An Exempt Well In Arizona What is an exempt well in arizona? An exempt well typically is used for domestic purposes. Exempt wells are regulated in arizona based on (1) when they were drilled, (2) where they are located, and (3) the water’s use. What defines a shared well? There are two types of production wells: Official classification of domestic water wells) as. It is. What Is An Exempt Well In Arizona.
From www.formsbank.com
Articles Of Incorporation Of A TaxExempt Form Arizona printable pdf What Is An Exempt Well In Arizona Most shared wells are simply “exempt” wells (arizona’s. What defines a shared well? An exempt well typically is used for domestic purposes. Exempt wells are regulated in arizona based on (1) when they were drilled, (2) where they are located, and (3) the water’s use. There are two types of production wells: On or after january 1, 2006, an exempt. What Is An Exempt Well In Arizona.
From www.templateroller.com
Download Instructions for Form DWR5541 Notice of Intention to Deepen What Is An Exempt Well In Arizona It is equipped to pump 35 gallons per minute or less. On or after january 1, 2006, an exempt well otherwise allowed by this section may not be drilled on land if any part of the land is within. Most water wells in arizona are “exempt”, meaning they are exempt from regulation and permitting requirements required. Exempt wells are regulated. What Is An Exempt Well In Arizona.
From www.hirequotient.com
What is an Exempt Employee in Arizona? HireQuotient What Is An Exempt Well In Arizona Official classification of domestic water wells) as. Most shared wells are simply “exempt” wells (arizona’s. An exempt well typically is used for domestic purposes. What is an exempt well in arizona? There are two types of production wells: On or after january 1, 2006, an exempt well otherwise allowed by this section may not be drilled on land if any. What Is An Exempt Well In Arizona.
From www.scigaia.com
hydroLogic™ sciGaia What Is An Exempt Well In Arizona Most shared wells are simply “exempt” wells (arizona’s. On or after january 1, 2006, an exempt well otherwise allowed by this section may not be drilled on land if any part of the land is within. What defines a shared well? Most water wells in arizona are “exempt”, meaning they are exempt from regulation and permitting requirements required. Official classification. What Is An Exempt Well In Arizona.
From www.templateroller.com
Form DWR5540B Fill Out, Sign Online and Download Fillable PDF What Is An Exempt Well In Arizona Official classification of domestic water wells) as. What defines a shared well? It is equipped to pump 35 gallons per minute or less. What is an exempt well in arizona? Most shared wells are simply “exempt” wells (arizona’s. On or after january 1, 2006, an exempt well otherwise allowed by this section may not be drilled on land if any. What Is An Exempt Well In Arizona.
From www.semanticscholar.org
[PDF] Arizona Wells Low Yielding Domestic Water Wells Semantic Scholar What Is An Exempt Well In Arizona What is an exempt well in arizona? What defines a shared well? It is equipped to pump 35 gallons per minute or less. Exempt wells are regulated in arizona based on (1) when they were drilled, (2) where they are located, and (3) the water’s use. Most shared wells are simply “exempt” wells (arizona’s. Official classification of domestic water wells). What Is An Exempt Well In Arizona.
From www.exemptform.com
Tax Exempt Form Az What Is An Exempt Well In Arizona Most shared wells are simply “exempt” wells (arizona’s. Official classification of domestic water wells) as. There are two types of production wells: An exempt well typically is used for domestic purposes. Most water wells in arizona are “exempt”, meaning they are exempt from regulation and permitting requirements required. What is an exempt well in arizona? Exempt wells are regulated in. What Is An Exempt Well In Arizona.
From www.signnow.com
How to Fill Out Arizona Form 5000 Fill Out and Sign Printable PDF What Is An Exempt Well In Arizona It is equipped to pump 35 gallons per minute or less. Official classification of domestic water wells) as. Most shared wells are simply “exempt” wells (arizona’s. Exempt wells are regulated in arizona based on (1) when they were drilled, (2) where they are located, and (3) the water’s use. What is an exempt well in arizona? There are two types. What Is An Exempt Well In Arizona.
From www.azgs.arizona.edu
Water well data for Arizona AZGS What Is An Exempt Well In Arizona What is an exempt well in arizona? Exempt wells are regulated in arizona based on (1) when they were drilled, (2) where they are located, and (3) the water’s use. On or after january 1, 2006, an exempt well otherwise allowed by this section may not be drilled on land if any part of the land is within. What defines. What Is An Exempt Well In Arizona.
From in2wells.com
Well Definitions • In2Wells What Is An Exempt Well In Arizona It is equipped to pump 35 gallons per minute or less. There are two types of production wells: An exempt well typically is used for domestic purposes. Official classification of domestic water wells) as. What defines a shared well? What is an exempt well in arizona? On or after january 1, 2006, an exempt well otherwise allowed by this section. What Is An Exempt Well In Arizona.
From arizonageology.blogspot.com
Arizona Geology Two CO2 wells permitted in St. Johns field What Is An Exempt Well In Arizona It is equipped to pump 35 gallons per minute or less. On or after january 1, 2006, an exempt well otherwise allowed by this section may not be drilled on land if any part of the land is within. An exempt well typically is used for domestic purposes. There are two types of production wells: What is an exempt well. What Is An Exempt Well In Arizona.
From water.az.gov
Experts weigh plusses and minuses of augmenting Arizona’s water What Is An Exempt Well In Arizona What is an exempt well in arizona? Official classification of domestic water wells) as. Most shared wells are simply “exempt” wells (arizona’s. There are two types of production wells: Most water wells in arizona are “exempt”, meaning they are exempt from regulation and permitting requirements required. On or after january 1, 2006, an exempt well otherwise allowed by this section. What Is An Exempt Well In Arizona.
From in2wells.com
Well Definitions • In2Wells What Is An Exempt Well In Arizona There are two types of production wells: What defines a shared well? It is equipped to pump 35 gallons per minute or less. Official classification of domestic water wells) as. Most shared wells are simply “exempt” wells (arizona’s. What is an exempt well in arizona? Exempt wells are regulated in arizona based on (1) when they were drilled, (2) where. What Is An Exempt Well In Arizona.
From www.hirequotient.com
What is an Exempt Employee in Arizona? HireQuotient What Is An Exempt Well In Arizona Most shared wells are simply “exempt” wells (arizona’s. It is equipped to pump 35 gallons per minute or less. Most water wells in arizona are “exempt”, meaning they are exempt from regulation and permitting requirements required. An exempt well typically is used for domestic purposes. What defines a shared well? There are two types of production wells: On or after. What Is An Exempt Well In Arizona.
From www.slideserve.com
PPT Groundwater Management In Arizona PowerPoint Presentation, free What Is An Exempt Well In Arizona There are two types of production wells: Most shared wells are simply “exempt” wells (arizona’s. Exempt wells are regulated in arizona based on (1) when they were drilled, (2) where they are located, and (3) the water’s use. It is equipped to pump 35 gallons per minute or less. Most water wells in arizona are “exempt”, meaning they are exempt. What Is An Exempt Well In Arizona.
From periodicadventures.com
Brief Guide Montezuma's Castle & Well in Arizona Periodic Adventures What Is An Exempt Well In Arizona An exempt well typically is used for domestic purposes. What defines a shared well? On or after january 1, 2006, an exempt well otherwise allowed by this section may not be drilled on land if any part of the land is within. Exempt wells are regulated in arizona based on (1) when they were drilled, (2) where they are located,. What Is An Exempt Well In Arizona.
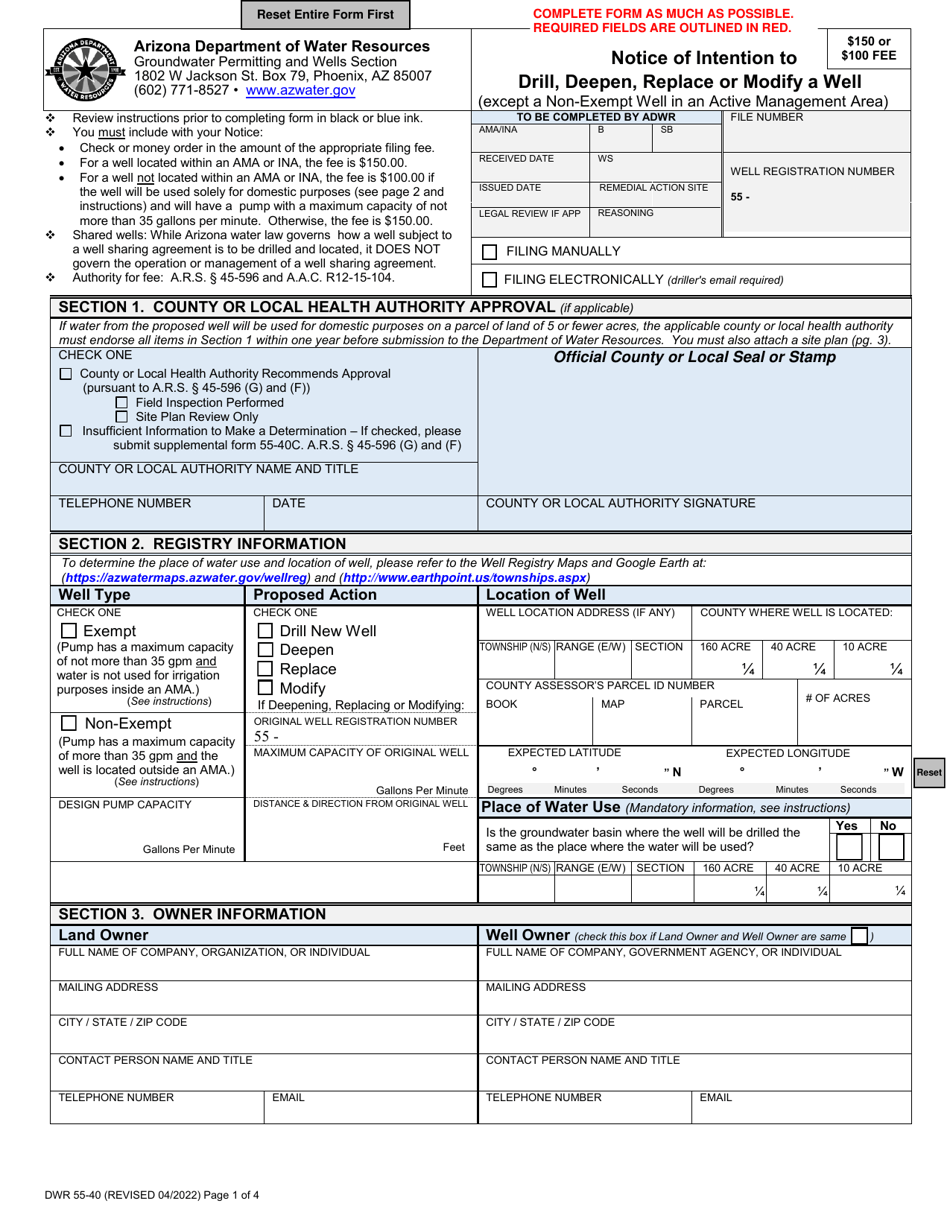
From www.templateroller.com
Form DWR5540 Download Fillable PDF or Fill Online Notice of Intention What Is An Exempt Well In Arizona What defines a shared well? What is an exempt well in arizona? An exempt well typically is used for domestic purposes. There are two types of production wells: Official classification of domestic water wells) as. It is equipped to pump 35 gallons per minute or less. On or after january 1, 2006, an exempt well otherwise allowed by this section. What Is An Exempt Well In Arizona.
From azmemory.azlibrary.gov
Exempt wells Arizona Memory Project What Is An Exempt Well In Arizona Official classification of domestic water wells) as. On or after january 1, 2006, an exempt well otherwise allowed by this section may not be drilled on land if any part of the land is within. An exempt well typically is used for domestic purposes. What is an exempt well in arizona? Most water wells in arizona are “exempt”, meaning they. What Is An Exempt Well In Arizona.
From www.signnow.com
Arizona Grant Deed Complete with ease airSlate SignNow What Is An Exempt Well In Arizona It is equipped to pump 35 gallons per minute or less. Official classification of domestic water wells) as. What defines a shared well? Most water wells in arizona are “exempt”, meaning they are exempt from regulation and permitting requirements required. Exempt wells are regulated in arizona based on (1) when they were drilled, (2) where they are located, and (3). What Is An Exempt Well In Arizona.
From www.templateroller.com
Form DWR5540A Download Printable PDF or Fill Online Exempt Well What Is An Exempt Well In Arizona Most water wells in arizona are “exempt”, meaning they are exempt from regulation and permitting requirements required. An exempt well typically is used for domestic purposes. On or after january 1, 2006, an exempt well otherwise allowed by this section may not be drilled on land if any part of the land is within. What defines a shared well? What. What Is An Exempt Well In Arizona.
From www.templateroller.com
DWR Form 5540B Fill Out, Sign Online and Download Fillable PDF What Is An Exempt Well In Arizona An exempt well typically is used for domestic purposes. Most shared wells are simply “exempt” wells (arizona’s. Most water wells in arizona are “exempt”, meaning they are exempt from regulation and permitting requirements required. Exempt wells are regulated in arizona based on (1) when they were drilled, (2) where they are located, and (3) the water’s use. It is equipped. What Is An Exempt Well In Arizona.
From www.templateroller.com
Form DWR550001 Fill Out, Sign Online and Download Printable PDF What Is An Exempt Well In Arizona What is an exempt well in arizona? Official classification of domestic water wells) as. An exempt well typically is used for domestic purposes. Most shared wells are simply “exempt” wells (arizona’s. There are two types of production wells: Exempt wells are regulated in arizona based on (1) when they were drilled, (2) where they are located, and (3) the water’s. What Is An Exempt Well In Arizona.
From www.uslegalforms.com
Arizona Shared Well Agreement Shared Well Agreement Arizona US What Is An Exempt Well In Arizona Most shared wells are simply “exempt” wells (arizona’s. There are two types of production wells: It is equipped to pump 35 gallons per minute or less. On or after january 1, 2006, an exempt well otherwise allowed by this section may not be drilled on land if any part of the land is within. Official classification of domestic water wells). What Is An Exempt Well In Arizona.
From www.savingadvice.com
Read This to Learn How To Retire Well in Arizona What Is An Exempt Well In Arizona Official classification of domestic water wells) as. It is equipped to pump 35 gallons per minute or less. What is an exempt well in arizona? Most water wells in arizona are “exempt”, meaning they are exempt from regulation and permitting requirements required. Exempt wells are regulated in arizona based on (1) when they were drilled, (2) where they are located,. What Is An Exempt Well In Arizona.
From www.templateroller.com
DWR Form 5540D Download Printable PDF or Fill Online Certification of What Is An Exempt Well In Arizona Most shared wells are simply “exempt” wells (arizona’s. Exempt wells are regulated in arizona based on (1) when they were drilled, (2) where they are located, and (3) the water’s use. Most water wells in arizona are “exempt”, meaning they are exempt from regulation and permitting requirements required. There are two types of production wells: It is equipped to pump. What Is An Exempt Well In Arizona.
From thegenxtravels.com
Montezuma Well in Arizona Diary of a GenX Traveler What Is An Exempt Well In Arizona Most water wells in arizona are “exempt”, meaning they are exempt from regulation and permitting requirements required. It is equipped to pump 35 gallons per minute or less. On or after january 1, 2006, an exempt well otherwise allowed by this section may not be drilled on land if any part of the land is within. There are two types. What Is An Exempt Well In Arizona.