Arizona Property Valuation . Property in arizona is classified and valued in each county by the county assessor, with the exception of. For questions regarding property that is valued by the arizona department of revenue (department), contact the centrally valued property unit at. Arizona’s dual valuation tax system with a single taxable limited property value (lpv). Throughout the year, the county assessor mails a notice of valuation to each owner of record of personal property. What is the full cash value (fcv)? If you are an arizona property owner, then you are probably familiar with your property valuation. The notice of valuation includes the property's full cash value. The assessor annually notices and administers over 1.8 million real and personal property parcels and accounts with a full cash value of more than $1 trillion. What is the limited property value and how is it. What is the zillow home. While most characteristics of the property tax system were. These assessments come to an owner by u.s. The average arizona home value is $430,658, up 1.7% over the past year and goes to pending in around 29 days.
from cromptonpartners.com
These assessments come to an owner by u.s. Property in arizona is classified and valued in each county by the county assessor, with the exception of. What is the limited property value and how is it. The assessor annually notices and administers over 1.8 million real and personal property parcels and accounts with a full cash value of more than $1 trillion. What is the zillow home. Arizona’s dual valuation tax system with a single taxable limited property value (lpv). What is the full cash value (fcv)? The average arizona home value is $430,658, up 1.7% over the past year and goes to pending in around 29 days. The notice of valuation includes the property's full cash value. Throughout the year, the county assessor mails a notice of valuation to each owner of record of personal property.
Importance Of Property Valuation Crompton Partners Estate Agents
Arizona Property Valuation What is the full cash value (fcv)? What is the zillow home. The average arizona home value is $430,658, up 1.7% over the past year and goes to pending in around 29 days. If you are an arizona property owner, then you are probably familiar with your property valuation. The assessor annually notices and administers over 1.8 million real and personal property parcels and accounts with a full cash value of more than $1 trillion. What is the limited property value and how is it. What is the full cash value (fcv)? While most characteristics of the property tax system were. The notice of valuation includes the property's full cash value. These assessments come to an owner by u.s. For questions regarding property that is valued by the arizona department of revenue (department), contact the centrally valued property unit at. Property in arizona is classified and valued in each county by the county assessor, with the exception of. Arizona’s dual valuation tax system with a single taxable limited property value (lpv). Throughout the year, the county assessor mails a notice of valuation to each owner of record of personal property.
From gioyepwcs.blob.core.windows.net
What Is Comparative Market Analysis For Real Estate at Theresa Louis blog Arizona Property Valuation Property in arizona is classified and valued in each county by the county assessor, with the exception of. For questions regarding property that is valued by the arizona department of revenue (department), contact the centrally valued property unit at. The assessor annually notices and administers over 1.8 million real and personal property parcels and accounts with a full cash value. Arizona Property Valuation.
From iips.com.pk
Property Valuation Survey Imarat Institute of Policy Studies IIPS Arizona Property Valuation The notice of valuation includes the property's full cash value. Arizona’s dual valuation tax system with a single taxable limited property value (lpv). While most characteristics of the property tax system were. What is the zillow home. Property in arizona is classified and valued in each county by the county assessor, with the exception of. The average arizona home value. Arizona Property Valuation.
From www.yelp.com
HOME VALUATION SERVICES OF ARIZONA Updated August 2024 Mesa Arizona Property Valuation What is the full cash value (fcv)? The notice of valuation includes the property's full cash value. Property in arizona is classified and valued in each county by the county assessor, with the exception of. While most characteristics of the property tax system were. These assessments come to an owner by u.s. The assessor annually notices and administers over 1.8. Arizona Property Valuation.
From www.watsons-property.co.uk
Valuation Vs Survey Watsons Property Arizona Property Valuation While most characteristics of the property tax system were. These assessments come to an owner by u.s. What is the limited property value and how is it. Property in arizona is classified and valued in each county by the county assessor, with the exception of. The assessor annually notices and administers over 1.8 million real and personal property parcels and. Arizona Property Valuation.
From www.oakspringsrealty.com
Property Valuation Arizona Property Valuation What is the full cash value (fcv)? If you are an arizona property owner, then you are probably familiar with your property valuation. What is the zillow home. The average arizona home value is $430,658, up 1.7% over the past year and goes to pending in around 29 days. For questions regarding property that is valued by the arizona department. Arizona Property Valuation.
From www.famlawaz.com
Property Valuation in an Arizona Divorce—Why Accurate Appraisal and Arizona Property Valuation Property in arizona is classified and valued in each county by the county assessor, with the exception of. While most characteristics of the property tax system were. What is the limited property value and how is it. What is the zillow home. The assessor annually notices and administers over 1.8 million real and personal property parcels and accounts with a. Arizona Property Valuation.
From o-yeshomeloans.co.za
Property valuation How to determine the value of your home OYES Arizona Property Valuation Property in arizona is classified and valued in each county by the county assessor, with the exception of. What is the limited property value and how is it. While most characteristics of the property tax system were. If you are an arizona property owner, then you are probably familiar with your property valuation. What is the zillow home. The assessor. Arizona Property Valuation.
From propertywheel.co.za
Knowing the difference between the property valuation types Property Arizona Property Valuation If you are an arizona property owner, then you are probably familiar with your property valuation. What is the full cash value (fcv)? These assessments come to an owner by u.s. While most characteristics of the property tax system were. The assessor annually notices and administers over 1.8 million real and personal property parcels and accounts with a full cash. Arizona Property Valuation.
From assetyogi.com
Property Valuation Methods Valuation of Property Decoded Arizona Property Valuation What is the limited property value and how is it. While most characteristics of the property tax system were. These assessments come to an owner by u.s. The assessor annually notices and administers over 1.8 million real and personal property parcels and accounts with a full cash value of more than $1 trillion. The notice of valuation includes the property's. Arizona Property Valuation.
From rakeshnarula.com
Factors to Consider While Doing Property Valuation RNC Arizona Property Valuation What is the full cash value (fcv)? Throughout the year, the county assessor mails a notice of valuation to each owner of record of personal property. Property in arizona is classified and valued in each county by the county assessor, with the exception of. What is the zillow home. The average arizona home value is $430,658, up 1.7% over the. Arizona Property Valuation.
From www.iproperty.com.au
The Importance of a Property Valuation Real Estate Arizona Property Valuation What is the limited property value and how is it. These assessments come to an owner by u.s. What is the zillow home. While most characteristics of the property tax system were. The notice of valuation includes the property's full cash value. If you are an arizona property owner, then you are probably familiar with your property valuation. For questions. Arizona Property Valuation.
From www.mashvisor.com
5 Property Valuation Methods Every Real Estate Investor Needs to Know Arizona Property Valuation These assessments come to an owner by u.s. If you are an arizona property owner, then you are probably familiar with your property valuation. What is the zillow home. Arizona’s dual valuation tax system with a single taxable limited property value (lpv). The notice of valuation includes the property's full cash value. While most characteristics of the property tax system. Arizona Property Valuation.
From www.pinterest.com
Property Valuations Goodyear, Litchfield Park, Avondale, Buckeye and Arizona Property Valuation What is the limited property value and how is it. What is the full cash value (fcv)? The notice of valuation includes the property's full cash value. These assessments come to an owner by u.s. If you are an arizona property owner, then you are probably familiar with your property valuation. Property in arizona is classified and valued in each. Arizona Property Valuation.
From www.mileszimbaluk.com
Canadians Selling Arizona Real Estate Miles Zimbaluk Arizona Property Valuation The average arizona home value is $430,658, up 1.7% over the past year and goes to pending in around 29 days. Arizona’s dual valuation tax system with a single taxable limited property value (lpv). The assessor annually notices and administers over 1.8 million real and personal property parcels and accounts with a full cash value of more than $1 trillion.. Arizona Property Valuation.
From makanwalay.com
Why is Property Valuation Important? Arizona Property Valuation The notice of valuation includes the property's full cash value. What is the full cash value (fcv)? If you are an arizona property owner, then you are probably familiar with your property valuation. What is the limited property value and how is it. What is the zillow home. While most characteristics of the property tax system were. These assessments come. Arizona Property Valuation.
From www.simonblyth.co.uk
A Simple Guide to Property Valuations Simon Blyth Estate Agents Arizona Property Valuation What is the limited property value and how is it. What is the full cash value (fcv)? Throughout the year, the county assessor mails a notice of valuation to each owner of record of personal property. The average arizona home value is $430,658, up 1.7% over the past year and goes to pending in around 29 days. What is the. Arizona Property Valuation.
From offshore-bpo.com
Best Ways To Conduct Property Valuation for Real Estate Investing Arizona Property Valuation What is the limited property value and how is it. Arizona’s dual valuation tax system with a single taxable limited property value (lpv). Property in arizona is classified and valued in each county by the county assessor, with the exception of. What is the full cash value (fcv)? If you are an arizona property owner, then you are probably familiar. Arizona Property Valuation.
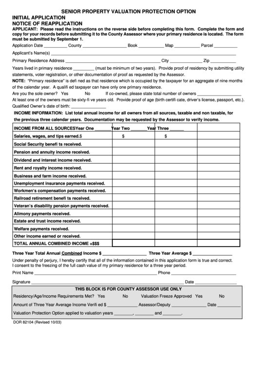
From www.formsbank.com
Fillable Form Dor 82104 Senior Property Valuation Protection Option Arizona Property Valuation The assessor annually notices and administers over 1.8 million real and personal property parcels and accounts with a full cash value of more than $1 trillion. Throughout the year, the county assessor mails a notice of valuation to each owner of record of personal property. These assessments come to an owner by u.s. What is the zillow home. The notice. Arizona Property Valuation.
From www.dreamstime.com
Arizona Real Estate Icon Shows Southwestern Property in the Usa 3d Arizona Property Valuation The assessor annually notices and administers over 1.8 million real and personal property parcels and accounts with a full cash value of more than $1 trillion. These assessments come to an owner by u.s. Property in arizona is classified and valued in each county by the county assessor, with the exception of. The average arizona home value is $430,658, up. Arizona Property Valuation.
From www.thepinnaclelist.com
Property Valuation Services Here’s What They Offer The Pinnacle List Arizona Property Valuation Property in arizona is classified and valued in each county by the county assessor, with the exception of. While most characteristics of the property tax system were. What is the limited property value and how is it. The average arizona home value is $430,658, up 1.7% over the past year and goes to pending in around 29 days. The notice. Arizona Property Valuation.
From www.cuinsight.com
Modernizing the property valuation process Part 2 CUInsight Arizona Property Valuation If you are an arizona property owner, then you are probably familiar with your property valuation. These assessments come to an owner by u.s. The assessor annually notices and administers over 1.8 million real and personal property parcels and accounts with a full cash value of more than $1 trillion. What is the limited property value and how is it.. Arizona Property Valuation.
From www.oreilly.com
Cover Property Valuation, 3rd Edition [Book] Arizona Property Valuation The average arizona home value is $430,658, up 1.7% over the past year and goes to pending in around 29 days. Arizona’s dual valuation tax system with a single taxable limited property value (lpv). If you are an arizona property owner, then you are probably familiar with your property valuation. What is the zillow home. These assessments come to an. Arizona Property Valuation.
From navimumbaihouses.com
Home Valuation & Property Valuation Services Arizona Property Valuation If you are an arizona property owner, then you are probably familiar with your property valuation. What is the zillow home. Arizona’s dual valuation tax system with a single taxable limited property value (lpv). What is the full cash value (fcv)? While most characteristics of the property tax system were. The average arizona home value is $430,658, up 1.7% over. Arizona Property Valuation.
From infotracer.com
Arizona Property Records Search Owners, Title, Tax and Deeds InfoTracer Arizona Property Valuation Arizona’s dual valuation tax system with a single taxable limited property value (lpv). Throughout the year, the county assessor mails a notice of valuation to each owner of record of personal property. The average arizona home value is $430,658, up 1.7% over the past year and goes to pending in around 29 days. What is the full cash value (fcv)?. Arizona Property Valuation.
From www.uslegalforms.com
Arizona Affidavit of Property Value Affidavit Of Property Value US Arizona Property Valuation These assessments come to an owner by u.s. Arizona’s dual valuation tax system with a single taxable limited property value (lpv). The notice of valuation includes the property's full cash value. What is the limited property value and how is it. Property in arizona is classified and valued in each county by the county assessor, with the exception of. What. Arizona Property Valuation.
From privatecapitalinvestors.com
Different Property Valuation Methods Private Capital Investors Arizona Property Valuation The average arizona home value is $430,658, up 1.7% over the past year and goes to pending in around 29 days. For questions regarding property that is valued by the arizona department of revenue (department), contact the centrally valued property unit at. What is the limited property value and how is it. What is the zillow home. These assessments come. Arizona Property Valuation.
From cromptonpartners.com
Importance Of Property Valuation Crompton Partners Estate Agents Arizona Property Valuation What is the full cash value (fcv)? What is the zillow home. Throughout the year, the county assessor mails a notice of valuation to each owner of record of personal property. What is the limited property value and how is it. The average arizona home value is $430,658, up 1.7% over the past year and goes to pending in around. Arizona Property Valuation.
From www.vecteezy.com
Property Valuation icon in vector. Illustration 27538561 Vector Art at Arizona Property Valuation These assessments come to an owner by u.s. The assessor annually notices and administers over 1.8 million real and personal property parcels and accounts with a full cash value of more than $1 trillion. If you are an arizona property owner, then you are probably familiar with your property valuation. The notice of valuation includes the property's full cash value.. Arizona Property Valuation.
From www.youtube.com
0.19 Acres in Arizona City, Arizona Property ID 8151 (RECENTLY SOLD Arizona Property Valuation What is the limited property value and how is it. The assessor annually notices and administers over 1.8 million real and personal property parcels and accounts with a full cash value of more than $1 trillion. The notice of valuation includes the property's full cash value. Property in arizona is classified and valued in each county by the county assessor,. Arizona Property Valuation.
From www.mileszimbaluk.com
Arizona Real Estate Sellers Guide For Canadians Miles Zimbaluk Arizona Property Valuation What is the full cash value (fcv)? Arizona’s dual valuation tax system with a single taxable limited property value (lpv). The assessor annually notices and administers over 1.8 million real and personal property parcels and accounts with a full cash value of more than $1 trillion. While most characteristics of the property tax system were. These assessments come to an. Arizona Property Valuation.
From www.slideshare.net
Arizona property tax overview Arizona Property Valuation Arizona’s dual valuation tax system with a single taxable limited property value (lpv). The average arizona home value is $430,658, up 1.7% over the past year and goes to pending in around 29 days. What is the zillow home. The assessor annually notices and administers over 1.8 million real and personal property parcels and accounts with a full cash value. Arizona Property Valuation.
From www.ecogujju.com
Why Should You Use Property Valuation Online? Arizona Property Valuation These assessments come to an owner by u.s. The assessor annually notices and administers over 1.8 million real and personal property parcels and accounts with a full cash value of more than $1 trillion. Property in arizona is classified and valued in each county by the county assessor, with the exception of. The average arizona home value is $430,658, up. Arizona Property Valuation.
From timesproperty.com
Why is Property Valuation Essential? TimesProperty Arizona Property Valuation The assessor annually notices and administers over 1.8 million real and personal property parcels and accounts with a full cash value of more than $1 trillion. What is the zillow home. If you are an arizona property owner, then you are probably familiar with your property valuation. These assessments come to an owner by u.s. What is the full cash. Arizona Property Valuation.
From www.goldmanruge.com
WHEN SHOULD YOU APPEAL YOUR ARIZONA PROPERTY TAXES? Arizona Property Valuation The average arizona home value is $430,658, up 1.7% over the past year and goes to pending in around 29 days. For questions regarding property that is valued by the arizona department of revenue (department), contact the centrally valued property unit at. What is the full cash value (fcv)? The assessor annually notices and administers over 1.8 million real and. Arizona Property Valuation.
From www.99.co
Property valuation — Why you should make them a priority Arizona Property Valuation The assessor annually notices and administers over 1.8 million real and personal property parcels and accounts with a full cash value of more than $1 trillion. What is the limited property value and how is it. While most characteristics of the property tax system were. Arizona’s dual valuation tax system with a single taxable limited property value (lpv). For questions. Arizona Property Valuation.