Undermount Kitchen Sink Cutout Dimensions . Measure at two different points along the back, making sure that you are measuring exactly across from one another. Measuring for an undermount kitchen sink. First, start by measuring the width of the sink cabinet where the sink will be installed. When measuring for an undermount sink, it’s essential to determine the correct dimensions of the countertop cutout to ensure a proper fit. The width of an undermount sink is measured from side to side. Regardless of size, all kitchen sinks should be at least 7 to 7.25 inches deep. Accurate measurements are crucial for a seamless undermount sink installation. All you need is a ruler or measuring tape and a level surface.
from designingidea.com
Regardless of size, all kitchen sinks should be at least 7 to 7.25 inches deep. Measuring for an undermount kitchen sink. Measure at two different points along the back, making sure that you are measuring exactly across from one another. Accurate measurements are crucial for a seamless undermount sink installation. All you need is a ruler or measuring tape and a level surface. When measuring for an undermount sink, it’s essential to determine the correct dimensions of the countertop cutout to ensure a proper fit. First, start by measuring the width of the sink cabinet where the sink will be installed. The width of an undermount sink is measured from side to side.
Kitchen Sink Sizes (Standard & Popular Dimensions) Designing Idea
Undermount Kitchen Sink Cutout Dimensions All you need is a ruler or measuring tape and a level surface. The width of an undermount sink is measured from side to side. Measure at two different points along the back, making sure that you are measuring exactly across from one another. Regardless of size, all kitchen sinks should be at least 7 to 7.25 inches deep. When measuring for an undermount sink, it’s essential to determine the correct dimensions of the countertop cutout to ensure a proper fit. Measuring for an undermount kitchen sink. All you need is a ruler or measuring tape and a level surface. First, start by measuring the width of the sink cabinet where the sink will be installed. Accurate measurements are crucial for a seamless undermount sink installation.
From ipipeline.net
Kitchen Sink Sizes Dimensions Things In The Kitchen Undermount Kitchen Sink Cutout Dimensions All you need is a ruler or measuring tape and a level surface. When measuring for an undermount sink, it’s essential to determine the correct dimensions of the countertop cutout to ensure a proper fit. Accurate measurements are crucial for a seamless undermount sink installation. Measuring for an undermount kitchen sink. The width of an undermount sink is measured from. Undermount Kitchen Sink Cutout Dimensions.
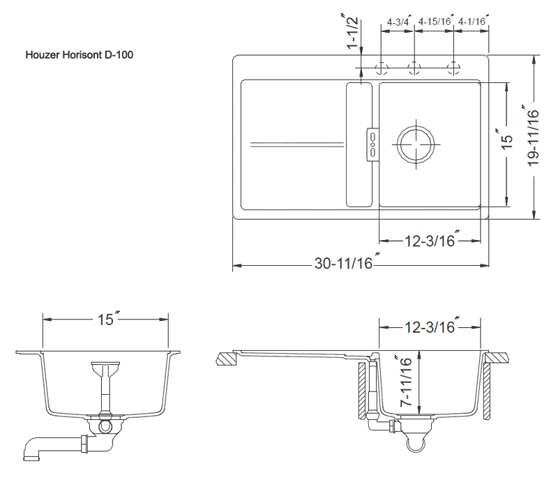
From www.sunrisespecialty.com
How to Measure Kitchen Sink? (StepbyStep Tutorial) Undermount Kitchen Sink Cutout Dimensions All you need is a ruler or measuring tape and a level surface. The width of an undermount sink is measured from side to side. When measuring for an undermount sink, it’s essential to determine the correct dimensions of the countertop cutout to ensure a proper fit. Measuring for an undermount kitchen sink. Regardless of size, all kitchen sinks should. Undermount Kitchen Sink Cutout Dimensions.
From data1.skinnyms.com
Sink Cutout Template Undermount Kitchen Sink Cutout Dimensions First, start by measuring the width of the sink cabinet where the sink will be installed. Accurate measurements are crucial for a seamless undermount sink installation. Measure at two different points along the back, making sure that you are measuring exactly across from one another. The width of an undermount sink is measured from side to side. All you need. Undermount Kitchen Sink Cutout Dimensions.
From designingidea.com
Kitchen Sink Sizes (Standard & Popular Dimensions) Designing Idea Undermount Kitchen Sink Cutout Dimensions Regardless of size, all kitchen sinks should be at least 7 to 7.25 inches deep. First, start by measuring the width of the sink cabinet where the sink will be installed. Accurate measurements are crucial for a seamless undermount sink installation. All you need is a ruler or measuring tape and a level surface. Measure at two different points along. Undermount Kitchen Sink Cutout Dimensions.
From www.homenish.com
What Are the Kitchen Sink Dimensions? (with Drawings) Homenish Undermount Kitchen Sink Cutout Dimensions Measuring for an undermount kitchen sink. Accurate measurements are crucial for a seamless undermount sink installation. Regardless of size, all kitchen sinks should be at least 7 to 7.25 inches deep. First, start by measuring the width of the sink cabinet where the sink will be installed. All you need is a ruler or measuring tape and a level surface.. Undermount Kitchen Sink Cutout Dimensions.
From templates.rjuuc.edu.np
Sink Cut Out Template Undermount Kitchen Sink Cutout Dimensions The width of an undermount sink is measured from side to side. When measuring for an undermount sink, it’s essential to determine the correct dimensions of the countertop cutout to ensure a proper fit. Measuring for an undermount kitchen sink. Accurate measurements are crucial for a seamless undermount sink installation. Regardless of size, all kitchen sinks should be at least. Undermount Kitchen Sink Cutout Dimensions.
From bestonlinecollegesdegrees.com
Kitchen Sink Installation Size Besto Blog Undermount Kitchen Sink Cutout Dimensions Accurate measurements are crucial for a seamless undermount sink installation. First, start by measuring the width of the sink cabinet where the sink will be installed. Regardless of size, all kitchen sinks should be at least 7 to 7.25 inches deep. The width of an undermount sink is measured from side to side. All you need is a ruler or. Undermount Kitchen Sink Cutout Dimensions.
From kaptenmods.com
Kitchen Sink Sizes Dimensions Kitchen Info Undermount Kitchen Sink Cutout Dimensions Regardless of size, all kitchen sinks should be at least 7 to 7.25 inches deep. Accurate measurements are crucial for a seamless undermount sink installation. The width of an undermount sink is measured from side to side. All you need is a ruler or measuring tape and a level surface. Measuring for an undermount kitchen sink. Measure at two different. Undermount Kitchen Sink Cutout Dimensions.
From ipipeline.net
Typical Kitchen Sink Size Things In The Kitchen Undermount Kitchen Sink Cutout Dimensions When measuring for an undermount sink, it’s essential to determine the correct dimensions of the countertop cutout to ensure a proper fit. Accurate measurements are crucial for a seamless undermount sink installation. First, start by measuring the width of the sink cabinet where the sink will be installed. Measuring for an undermount kitchen sink. The width of an undermount sink. Undermount Kitchen Sink Cutout Dimensions.
From templates.rjuuc.edu.np
Template For Sink Cut Out Undermount Kitchen Sink Cutout Dimensions All you need is a ruler or measuring tape and a level surface. Regardless of size, all kitchen sinks should be at least 7 to 7.25 inches deep. First, start by measuring the width of the sink cabinet where the sink will be installed. Accurate measurements are crucial for a seamless undermount sink installation. Measure at two different points along. Undermount Kitchen Sink Cutout Dimensions.
From designredig.com
Precise Kitchen Sink Cutout Sizes for Streamlined Installation Undermount Kitchen Sink Cutout Dimensions When measuring for an undermount sink, it’s essential to determine the correct dimensions of the countertop cutout to ensure a proper fit. Accurate measurements are crucial for a seamless undermount sink installation. The width of an undermount sink is measured from side to side. Measuring for an undermount kitchen sink. Measure at two different points along the back, making sure. Undermount Kitchen Sink Cutout Dimensions.
From brownnamel.blogspot.com
Kitchen Sink Dimensions And Measurements On A Tape / How To Measure For Undermount Kitchen Sink Cutout Dimensions The width of an undermount sink is measured from side to side. When measuring for an undermount sink, it’s essential to determine the correct dimensions of the countertop cutout to ensure a proper fit. Regardless of size, all kitchen sinks should be at least 7 to 7.25 inches deep. All you need is a ruler or measuring tape and a. Undermount Kitchen Sink Cutout Dimensions.
From kaptenmods.com
Kitchen Sink Sizes Dimensions Kitchen Info Undermount Kitchen Sink Cutout Dimensions Measuring for an undermount kitchen sink. First, start by measuring the width of the sink cabinet where the sink will be installed. All you need is a ruler or measuring tape and a level surface. The width of an undermount sink is measured from side to side. Regardless of size, all kitchen sinks should be at least 7 to 7.25. Undermount Kitchen Sink Cutout Dimensions.
From www.pinterest.com
Stylish Standard Double Kitchen Sink Size Standard Kitchen Sink Bowl Undermount Kitchen Sink Cutout Dimensions Accurate measurements are crucial for a seamless undermount sink installation. The width of an undermount sink is measured from side to side. All you need is a ruler or measuring tape and a level surface. Regardless of size, all kitchen sinks should be at least 7 to 7.25 inches deep. First, start by measuring the width of the sink cabinet. Undermount Kitchen Sink Cutout Dimensions.
From www.corleydesigns.com
Cut to the Right Size A Guide to Kitchen Sink Cutout Dimensions Undermount Kitchen Sink Cutout Dimensions Regardless of size, all kitchen sinks should be at least 7 to 7.25 inches deep. Measuring for an undermount kitchen sink. All you need is a ruler or measuring tape and a level surface. First, start by measuring the width of the sink cabinet where the sink will be installed. When measuring for an undermount sink, it’s essential to determine. Undermount Kitchen Sink Cutout Dimensions.
From www.dimensions.com
Kitchen Sinks Dimensions & Drawings Undermount Kitchen Sink Cutout Dimensions Accurate measurements are crucial for a seamless undermount sink installation. First, start by measuring the width of the sink cabinet where the sink will be installed. Regardless of size, all kitchen sinks should be at least 7 to 7.25 inches deep. Measure at two different points along the back, making sure that you are measuring exactly across from one another.. Undermount Kitchen Sink Cutout Dimensions.
From qpreview.com
What is an undermount kitchen sink? A complete guide Undermount Kitchen Sink Cutout Dimensions All you need is a ruler or measuring tape and a level surface. Measuring for an undermount kitchen sink. Regardless of size, all kitchen sinks should be at least 7 to 7.25 inches deep. When measuring for an undermount sink, it’s essential to determine the correct dimensions of the countertop cutout to ensure a proper fit. First, start by measuring. Undermount Kitchen Sink Cutout Dimensions.
From ipipeline.net
Typical Kitchen Sink Size Things In The Kitchen Undermount Kitchen Sink Cutout Dimensions The width of an undermount sink is measured from side to side. Measure at two different points along the back, making sure that you are measuring exactly across from one another. All you need is a ruler or measuring tape and a level surface. When measuring for an undermount sink, it’s essential to determine the correct dimensions of the countertop. Undermount Kitchen Sink Cutout Dimensions.
From www.pinterest.com.au
Image result for undermount sink sizes METRIC Kitchen sink sizes Undermount Kitchen Sink Cutout Dimensions Measuring for an undermount kitchen sink. First, start by measuring the width of the sink cabinet where the sink will be installed. Accurate measurements are crucial for a seamless undermount sink installation. Measure at two different points along the back, making sure that you are measuring exactly across from one another. When measuring for an undermount sink, it’s essential to. Undermount Kitchen Sink Cutout Dimensions.
From www.dimensions.com
Kitchen Sinks Dimensions & Drawings Undermount Kitchen Sink Cutout Dimensions First, start by measuring the width of the sink cabinet where the sink will be installed. All you need is a ruler or measuring tape and a level surface. Regardless of size, all kitchen sinks should be at least 7 to 7.25 inches deep. Measure at two different points along the back, making sure that you are measuring exactly across. Undermount Kitchen Sink Cutout Dimensions.
From templates.rjuuc.edu.np
Sink Cut Out Template Undermount Kitchen Sink Cutout Dimensions All you need is a ruler or measuring tape and a level surface. Accurate measurements are crucial for a seamless undermount sink installation. Measuring for an undermount kitchen sink. First, start by measuring the width of the sink cabinet where the sink will be installed. Measure at two different points along the back, making sure that you are measuring exactly. Undermount Kitchen Sink Cutout Dimensions.
From www.stainlesssteel-sink.com
35 Inch Undermount Double Bowl Kitchen Sink With Cardboard Cutout Template Undermount Kitchen Sink Cutout Dimensions Measure at two different points along the back, making sure that you are measuring exactly across from one another. Regardless of size, all kitchen sinks should be at least 7 to 7.25 inches deep. Accurate measurements are crucial for a seamless undermount sink installation. When measuring for an undermount sink, it’s essential to determine the correct dimensions of the countertop. Undermount Kitchen Sink Cutout Dimensions.
From ipipeline.net
Typical Kitchen Sink Size Things In The Kitchen Undermount Kitchen Sink Cutout Dimensions Accurate measurements are crucial for a seamless undermount sink installation. When measuring for an undermount sink, it’s essential to determine the correct dimensions of the countertop cutout to ensure a proper fit. The width of an undermount sink is measured from side to side. All you need is a ruler or measuring tape and a level surface. Measuring for an. Undermount Kitchen Sink Cutout Dimensions.
From plumbingsupply.com
Kitchen and Bar Stone Sinks extremely durable, long lasting, very Undermount Kitchen Sink Cutout Dimensions Measuring for an undermount kitchen sink. The width of an undermount sink is measured from side to side. When measuring for an undermount sink, it’s essential to determine the correct dimensions of the countertop cutout to ensure a proper fit. Measure at two different points along the back, making sure that you are measuring exactly across from one another. Regardless. Undermount Kitchen Sink Cutout Dimensions.
From www.wayfair.com
Blanco Precis 27" L x 18" W Undermount Kitchen Sink with Cut Out Undermount Kitchen Sink Cutout Dimensions Accurate measurements are crucial for a seamless undermount sink installation. The width of an undermount sink is measured from side to side. All you need is a ruler or measuring tape and a level surface. When measuring for an undermount sink, it’s essential to determine the correct dimensions of the countertop cutout to ensure a proper fit. Measure at two. Undermount Kitchen Sink Cutout Dimensions.
From kitchenowa.com
Kitchen Sink Measurements A Comprehensive Guide Kitchen Ideas Undermount Kitchen Sink Cutout Dimensions When measuring for an undermount sink, it’s essential to determine the correct dimensions of the countertop cutout to ensure a proper fit. Measuring for an undermount kitchen sink. Measure at two different points along the back, making sure that you are measuring exactly across from one another. The width of an undermount sink is measured from side to side. Accurate. Undermount Kitchen Sink Cutout Dimensions.
From kaptenmods.com
Typical Kitchen Sink Size Kitchen Info Undermount Kitchen Sink Cutout Dimensions All you need is a ruler or measuring tape and a level surface. When measuring for an undermount sink, it’s essential to determine the correct dimensions of the countertop cutout to ensure a proper fit. Regardless of size, all kitchen sinks should be at least 7 to 7.25 inches deep. Measure at two different points along the back, making sure. Undermount Kitchen Sink Cutout Dimensions.
From kitchenowa.com
Kitchen Sink Height Finding The Right Fit For Your Kitchen Kitchen Ideas Undermount Kitchen Sink Cutout Dimensions First, start by measuring the width of the sink cabinet where the sink will be installed. Measuring for an undermount kitchen sink. The width of an undermount sink is measured from side to side. Accurate measurements are crucial for a seamless undermount sink installation. Regardless of size, all kitchen sinks should be at least 7 to 7.25 inches deep. All. Undermount Kitchen Sink Cutout Dimensions.
From www.ruvati.com
32inch Undermount Kitchen Sink 30/70 Double Bowl 16 Gauge Stainless Undermount Kitchen Sink Cutout Dimensions The width of an undermount sink is measured from side to side. Accurate measurements are crucial for a seamless undermount sink installation. All you need is a ruler or measuring tape and a level surface. Measuring for an undermount kitchen sink. Regardless of size, all kitchen sinks should be at least 7 to 7.25 inches deep. When measuring for an. Undermount Kitchen Sink Cutout Dimensions.
From vassarchamber.com
What Kitchen Sink Cutout Size is Needed? An Expert Explains Vassar Undermount Kitchen Sink Cutout Dimensions Measuring for an undermount kitchen sink. Accurate measurements are crucial for a seamless undermount sink installation. When measuring for an undermount sink, it’s essential to determine the correct dimensions of the countertop cutout to ensure a proper fit. First, start by measuring the width of the sink cabinet where the sink will be installed. All you need is a ruler. Undermount Kitchen Sink Cutout Dimensions.
From www.rubysteelsink.com
Small undermount kitchen sink and bar sink Undermount Kitchen Sink Cutout Dimensions First, start by measuring the width of the sink cabinet where the sink will be installed. The width of an undermount sink is measured from side to side. Measure at two different points along the back, making sure that you are measuring exactly across from one another. When measuring for an undermount sink, it’s essential to determine the correct dimensions. Undermount Kitchen Sink Cutout Dimensions.
From mavink.com
Standard Kitchen Sink Dimensions Undermount Kitchen Sink Cutout Dimensions When measuring for an undermount sink, it’s essential to determine the correct dimensions of the countertop cutout to ensure a proper fit. The width of an undermount sink is measured from side to side. Measuring for an undermount kitchen sink. Regardless of size, all kitchen sinks should be at least 7 to 7.25 inches deep. First, start by measuring the. Undermount Kitchen Sink Cutout Dimensions.
From www.blanco.com
How To Choose Your Kitchen Sink Size BLANCO Undermount Kitchen Sink Cutout Dimensions Measure at two different points along the back, making sure that you are measuring exactly across from one another. When measuring for an undermount sink, it’s essential to determine the correct dimensions of the countertop cutout to ensure a proper fit. Measuring for an undermount kitchen sink. The width of an undermount sink is measured from side to side. First,. Undermount Kitchen Sink Cutout Dimensions.
From www.dc-distribution.com
DCDistribution, Sinks, Quartz, Fabrication, Kitchen and Bath Remodel Undermount Kitchen Sink Cutout Dimensions All you need is a ruler or measuring tape and a level surface. First, start by measuring the width of the sink cabinet where the sink will be installed. Measure at two different points along the back, making sure that you are measuring exactly across from one another. Regardless of size, all kitchen sinks should be at least 7 to. Undermount Kitchen Sink Cutout Dimensions.
From www.plumbingsupply.com
Undermount Kitchen Sink Cutout Dimensions First, start by measuring the width of the sink cabinet where the sink will be installed. Measuring for an undermount kitchen sink. Measure at two different points along the back, making sure that you are measuring exactly across from one another. All you need is a ruler or measuring tape and a level surface. Accurate measurements are crucial for a. Undermount Kitchen Sink Cutout Dimensions.