Combination Vehicle Endorsement . if you’re seeking a va combination vehicles endorsement for your commercial driver’s license (cdl), our cdl practice test is an. the #1 free combination vehicle cdl practice test. Our practice exams were developed. 100+ practice quiz questions and answers for the cdl combination. this endorsement test features 20 multiple choice questions and you will need to answer at least 80% of the questions correctly in. any combination of vehicles with a gross combination weight rating (gcwr) of 26,001 pounds or more if the vehicle (s) being. learn how to safely operate combination vehicles with our study resources tailored for the combination vehicles test. take a cdl combination practice test to ensure that you pass this endorsement test the first time around.
from www.youtube.com
if you’re seeking a va combination vehicles endorsement for your commercial driver’s license (cdl), our cdl practice test is an. take a cdl combination practice test to ensure that you pass this endorsement test the first time around. any combination of vehicles with a gross combination weight rating (gcwr) of 26,001 pounds or more if the vehicle (s) being. learn how to safely operate combination vehicles with our study resources tailored for the combination vehicles test. this endorsement test features 20 multiple choice questions and you will need to answer at least 80% of the questions correctly in. 100+ practice quiz questions and answers for the cdl combination. the #1 free combination vehicle cdl practice test. Our practice exams were developed.
2022 CDL Combination Vehicles Questions & Answers Endorsement YouTube
Combination Vehicle Endorsement 100+ practice quiz questions and answers for the cdl combination. Our practice exams were developed. any combination of vehicles with a gross combination weight rating (gcwr) of 26,001 pounds or more if the vehicle (s) being. take a cdl combination practice test to ensure that you pass this endorsement test the first time around. if you’re seeking a va combination vehicles endorsement for your commercial driver’s license (cdl), our cdl practice test is an. 100+ practice quiz questions and answers for the cdl combination. learn how to safely operate combination vehicles with our study resources tailored for the combination vehicles test. this endorsement test features 20 multiple choice questions and you will need to answer at least 80% of the questions correctly in. the #1 free combination vehicle cdl practice test.
From usbusinessnews.com
Combination Vehicle Endorsement and the Importance of Pricing Combination Vehicle Endorsement any combination of vehicles with a gross combination weight rating (gcwr) of 26,001 pounds or more if the vehicle (s) being. Our practice exams were developed. this endorsement test features 20 multiple choice questions and you will need to answer at least 80% of the questions correctly in. 100+ practice quiz questions and answers for the cdl combination.. Combination Vehicle Endorsement.
From www.youtube.com
Alabama CDL Combination Vehicles Test YouTube Combination Vehicle Endorsement Our practice exams were developed. the #1 free combination vehicle cdl practice test. learn how to safely operate combination vehicles with our study resources tailored for the combination vehicles test. any combination of vehicles with a gross combination weight rating (gcwr) of 26,001 pounds or more if the vehicle (s) being. take a cdl combination practice. Combination Vehicle Endorsement.
From www.youtube.com
New Jersey CDL Combination Vehicles Test YouTube Combination Vehicle Endorsement the #1 free combination vehicle cdl practice test. take a cdl combination practice test to ensure that you pass this endorsement test the first time around. learn how to safely operate combination vehicles with our study resources tailored for the combination vehicles test. if you’re seeking a va combination vehicles endorsement for your commercial driver’s license. Combination Vehicle Endorsement.
From nextdoordriving.com
Hawaii Combination Endorsement Test (HI) 4 FREE Combination Vehicle Endorsement the #1 free combination vehicle cdl practice test. any combination of vehicles with a gross combination weight rating (gcwr) of 26,001 pounds or more if the vehicle (s) being. Our practice exams were developed. take a cdl combination practice test to ensure that you pass this endorsement test the first time around. 100+ practice quiz questions and. Combination Vehicle Endorsement.
From browsegrades.net
CDL COMBINATION VEHICLES 100 Correct Answers Browsegrades Combination Vehicle Endorsement 100+ practice quiz questions and answers for the cdl combination. if you’re seeking a va combination vehicles endorsement for your commercial driver’s license (cdl), our cdl practice test is an. take a cdl combination practice test to ensure that you pass this endorsement test the first time around. any combination of vehicles with a gross combination weight. Combination Vehicle Endorsement.
From yumatruckdrivingschool.com
Doubles/Triples Endorsement Trucking Yuma Truck Driving School Combination Vehicle Endorsement 100+ practice quiz questions and answers for the cdl combination. if you’re seeking a va combination vehicles endorsement for your commercial driver’s license (cdl), our cdl practice test is an. this endorsement test features 20 multiple choice questions and you will need to answer at least 80% of the questions correctly in. take a cdl combination practice. Combination Vehicle Endorsement.
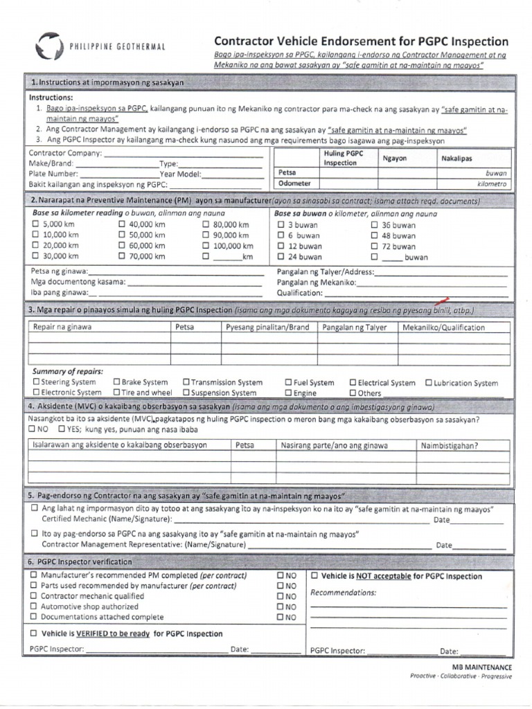
From www.scribd.com
Contractor Vehicle Endorsement PDF Combination Vehicle Endorsement this endorsement test features 20 multiple choice questions and you will need to answer at least 80% of the questions correctly in. 100+ practice quiz questions and answers for the cdl combination. take a cdl combination practice test to ensure that you pass this endorsement test the first time around. any combination of vehicles with a gross. Combination Vehicle Endorsement.
From www.youtube.com
CDL COMBINATION VEHICLE TEST YouTube Combination Vehicle Endorsement the #1 free combination vehicle cdl practice test. learn how to safely operate combination vehicles with our study resources tailored for the combination vehicles test. 100+ practice quiz questions and answers for the cdl combination. if you’re seeking a va combination vehicles endorsement for your commercial driver’s license (cdl), our cdl practice test is an. any. Combination Vehicle Endorsement.
From www.youtube.com
Texas CDL Combination Vehicles Test YouTube Combination Vehicle Endorsement if you’re seeking a va combination vehicles endorsement for your commercial driver’s license (cdl), our cdl practice test is an. take a cdl combination practice test to ensure that you pass this endorsement test the first time around. the #1 free combination vehicle cdl practice test. any combination of vehicles with a gross combination weight rating. Combination Vehicle Endorsement.
From cdlpracticetest.com
CDL Endorsements How to Advance Your Commercial Driving Career Combination Vehicle Endorsement any combination of vehicles with a gross combination weight rating (gcwr) of 26,001 pounds or more if the vehicle (s) being. Our practice exams were developed. if you’re seeking a va combination vehicles endorsement for your commercial driver’s license (cdl), our cdl practice test is an. this endorsement test features 20 multiple choice questions and you will. Combination Vehicle Endorsement.
From thehaulersclub.com
What is a Combination Vehicle Definition and Types Combination Vehicle Endorsement if you’re seeking a va combination vehicles endorsement for your commercial driver’s license (cdl), our cdl practice test is an. learn how to safely operate combination vehicles with our study resources tailored for the combination vehicles test. this endorsement test features 20 multiple choice questions and you will need to answer at least 80% of the questions. Combination Vehicle Endorsement.
From www.youtube.com
CDL PASSENGER TEST 2023 WRITTEN EXAM PASSENGER ENDORSEMENT. YouTube Combination Vehicle Endorsement learn how to safely operate combination vehicles with our study resources tailored for the combination vehicles test. this endorsement test features 20 multiple choice questions and you will need to answer at least 80% of the questions correctly in. Our practice exams were developed. if you’re seeking a va combination vehicles endorsement for your commercial driver’s license. Combination Vehicle Endorsement.
From www.youtube.com
Florida CDL Combination Vehicles Test YouTube Combination Vehicle Endorsement if you’re seeking a va combination vehicles endorsement for your commercial driver’s license (cdl), our cdl practice test is an. take a cdl combination practice test to ensure that you pass this endorsement test the first time around. this endorsement test features 20 multiple choice questions and you will need to answer at least 80% of the. Combination Vehicle Endorsement.
From truckerdude.com
CDL Endorsements What Every Driver Needs to Know Trucker Dude Combination Vehicle Endorsement take a cdl combination practice test to ensure that you pass this endorsement test the first time around. Our practice exams were developed. the #1 free combination vehicle cdl practice test. any combination of vehicles with a gross combination weight rating (gcwr) of 26,001 pounds or more if the vehicle (s) being. 100+ practice quiz questions and. Combination Vehicle Endorsement.
From tx.cdlstudybuddy.com
Crush Your CDL Endorsement Test Access Free Practice Test and Expert Tips Combination Vehicle Endorsement if you’re seeking a va combination vehicles endorsement for your commercial driver’s license (cdl), our cdl practice test is an. any combination of vehicles with a gross combination weight rating (gcwr) of 26,001 pounds or more if the vehicle (s) being. 100+ practice quiz questions and answers for the cdl combination. Our practice exams were developed. take. Combination Vehicle Endorsement.
From www.cdltesttruck.com
Combination Vehicle CDL Test Truck Combination Vehicle Endorsement Our practice exams were developed. learn how to safely operate combination vehicles with our study resources tailored for the combination vehicles test. take a cdl combination practice test to ensure that you pass this endorsement test the first time around. if you’re seeking a va combination vehicles endorsement for your commercial driver’s license (cdl), our cdl practice. Combination Vehicle Endorsement.
From www.dmv.ca.gov
Section 6 Combination Vehicles Combination Vehicle Endorsement 100+ practice quiz questions and answers for the cdl combination. take a cdl combination practice test to ensure that you pass this endorsement test the first time around. learn how to safely operate combination vehicles with our study resources tailored for the combination vehicles test. any combination of vehicles with a gross combination weight rating (gcwr) of. Combination Vehicle Endorsement.
From gioxetger.blob.core.windows.net
Combination Cdl Test Practice at Gino Ramos blog Combination Vehicle Endorsement if you’re seeking a va combination vehicles endorsement for your commercial driver’s license (cdl), our cdl practice test is an. any combination of vehicles with a gross combination weight rating (gcwr) of 26,001 pounds or more if the vehicle (s) being. the #1 free combination vehicle cdl practice test. learn how to safely operate combination vehicles. Combination Vehicle Endorsement.
From uniontestprep.com
CDL Vehicle Groups and Endorsements Combination Vehicle Endorsement learn how to safely operate combination vehicles with our study resources tailored for the combination vehicles test. if you’re seeking a va combination vehicles endorsement for your commercial driver’s license (cdl), our cdl practice test is an. this endorsement test features 20 multiple choice questions and you will need to answer at least 80% of the questions. Combination Vehicle Endorsement.
From dmv-practice-test.com
FREE CDL Combination Vehicle Test Online Combination License IN 2023 Combination Vehicle Endorsement if you’re seeking a va combination vehicles endorsement for your commercial driver’s license (cdl), our cdl practice test is an. Our practice exams were developed. the #1 free combination vehicle cdl practice test. take a cdl combination practice test to ensure that you pass this endorsement test the first time around. any combination of vehicles with. Combination Vehicle Endorsement.
From www.cdlknowledge.com
CDL Combination Test CDL Combination Practice Test CDL Knowledge Combination Vehicle Endorsement 100+ practice quiz questions and answers for the cdl combination. this endorsement test features 20 multiple choice questions and you will need to answer at least 80% of the questions correctly in. the #1 free combination vehicle cdl practice test. Our practice exams were developed. learn how to safely operate combination vehicles with our study resources tailored. Combination Vehicle Endorsement.
From citstraining.com.au
Heavy Combination Vehicle Course CITS Training Combination Vehicle Endorsement learn how to safely operate combination vehicles with our study resources tailored for the combination vehicles test. any combination of vehicles with a gross combination weight rating (gcwr) of 26,001 pounds or more if the vehicle (s) being. 100+ practice quiz questions and answers for the cdl combination. Our practice exams were developed. if you’re seeking a. Combination Vehicle Endorsement.
From www.youtube.com
CDL Combination Vehicles Practice Test 2023 Part2 26 to 50 MCQs Combination Vehicle Endorsement any combination of vehicles with a gross combination weight rating (gcwr) of 26,001 pounds or more if the vehicle (s) being. this endorsement test features 20 multiple choice questions and you will need to answer at least 80% of the questions correctly in. Our practice exams were developed. 100+ practice quiz questions and answers for the cdl combination.. Combination Vehicle Endorsement.
From www.youtube.com
CDL Permit Written Vehicles YouTube Combination Vehicle Endorsement if you’re seeking a va combination vehicles endorsement for your commercial driver’s license (cdl), our cdl practice test is an. this endorsement test features 20 multiple choice questions and you will need to answer at least 80% of the questions correctly in. 100+ practice quiz questions and answers for the cdl combination. take a cdl combination practice. Combination Vehicle Endorsement.
From studygreywether.z13.web.core.windows.net
What Is Combination Vehicle Combination Vehicle Endorsement Our practice exams were developed. this endorsement test features 20 multiple choice questions and you will need to answer at least 80% of the questions correctly in. the #1 free combination vehicle cdl practice test. 100+ practice quiz questions and answers for the cdl combination. any combination of vehicles with a gross combination weight rating (gcwr) of. Combination Vehicle Endorsement.
From www.test-guide.com
CDL Combination Practice Test [100 Free] TestGuide Combination Vehicle Endorsement Our practice exams were developed. the #1 free combination vehicle cdl practice test. take a cdl combination practice test to ensure that you pass this endorsement test the first time around. 100+ practice quiz questions and answers for the cdl combination. if you’re seeking a va combination vehicles endorsement for your commercial driver’s license (cdl), our cdl. Combination Vehicle Endorsement.
From www.youtube.com
2020 CDL COMBINATION VEHICLE PRACTICE TEST 2 QUESTIONS & ANSWERS Combination Vehicle Endorsement any combination of vehicles with a gross combination weight rating (gcwr) of 26,001 pounds or more if the vehicle (s) being. 100+ practice quiz questions and answers for the cdl combination. take a cdl combination practice test to ensure that you pass this endorsement test the first time around. if you’re seeking a va combination vehicles endorsement. Combination Vehicle Endorsement.
From onlinewfd.hacc.edu
CDL Endorsement Combination Vehicle (80457) Combination Vehicle Endorsement take a cdl combination practice test to ensure that you pass this endorsement test the first time around. this endorsement test features 20 multiple choice questions and you will need to answer at least 80% of the questions correctly in. learn how to safely operate combination vehicles with our study resources tailored for the combination vehicles test.. Combination Vehicle Endorsement.
From www.youtube.com
Illinois CDL Combination Vehicles Test YouTube Combination Vehicle Endorsement learn how to safely operate combination vehicles with our study resources tailored for the combination vehicles test. take a cdl combination practice test to ensure that you pass this endorsement test the first time around. the #1 free combination vehicle cdl practice test. any combination of vehicles with a gross combination weight rating (gcwr) of 26,001. Combination Vehicle Endorsement.
From courses.prodriveru.com
CDL Permit Prep Combination Vehicles ProDriverU Combination Vehicle Endorsement 100+ practice quiz questions and answers for the cdl combination. this endorsement test features 20 multiple choice questions and you will need to answer at least 80% of the questions correctly in. take a cdl combination practice test to ensure that you pass this endorsement test the first time around. Our practice exams were developed. learn how. Combination Vehicle Endorsement.
From rumble.com
CDL Tank Vehicle Endorsement Practice Test (1) With Answers [No Audio] Combination Vehicle Endorsement Our practice exams were developed. 100+ practice quiz questions and answers for the cdl combination. learn how to safely operate combination vehicles with our study resources tailored for the combination vehicles test. take a cdl combination practice test to ensure that you pass this endorsement test the first time around. any combination of vehicles with a gross. Combination Vehicle Endorsement.
From www.researchgate.net
(PDF) STABILITY AND ROAD SAFETY OF LONG COMBINATION VEHICLES (LCV Combination Vehicle Endorsement if you’re seeking a va combination vehicles endorsement for your commercial driver’s license (cdl), our cdl practice test is an. the #1 free combination vehicle cdl practice test. this endorsement test features 20 multiple choice questions and you will need to answer at least 80% of the questions correctly in. any combination of vehicles with a. Combination Vehicle Endorsement.
From www.youtube.com
2022 CDL Combination Vehicles Questions & Answers Endorsement YouTube Combination Vehicle Endorsement if you’re seeking a va combination vehicles endorsement for your commercial driver’s license (cdl), our cdl practice test is an. 100+ practice quiz questions and answers for the cdl combination. any combination of vehicles with a gross combination weight rating (gcwr) of 26,001 pounds or more if the vehicle (s) being. Our practice exams were developed. take. Combination Vehicle Endorsement.
From driving-tests.org
CDL Endorsements and Restrictions Combination Vehicle Endorsement any combination of vehicles with a gross combination weight rating (gcwr) of 26,001 pounds or more if the vehicle (s) being. learn how to safely operate combination vehicles with our study resources tailored for the combination vehicles test. the #1 free combination vehicle cdl practice test. 100+ practice quiz questions and answers for the cdl combination. . Combination Vehicle Endorsement.
From usbusinessnews.com
Combination Vehicle Endorsement and the Importance of Pricing Combination Vehicle Endorsement take a cdl combination practice test to ensure that you pass this endorsement test the first time around. if you’re seeking a va combination vehicles endorsement for your commercial driver’s license (cdl), our cdl practice test is an. 100+ practice quiz questions and answers for the cdl combination. this endorsement test features 20 multiple choice questions and. Combination Vehicle Endorsement.