Village Hall Legal Requirements . Who can use a village hall? Read our guidance about changing governing documents to understand the legal requirements and how to apply for our authority. Why is a village hall charitable? The victorian village commission consists of seven (7) mayoral appointees who serve without compensation. It is the duty of the commission. Annexation is a legal process by which some property located in an unincorporated area of a township may become part of a. Of course, a manual of this nature is not to be confused with legal advice. How often can the hall be used by any one. Who runs the village hall? Should you have concerns or questions of a legal nature, please. This fundamental legislation requires that village hall committees, as the managers of premises, ensure the health and safety of employees and. This information sheet explains how the key statutory requirements of health and safety legislation afect village halls.
from www.uslegalforms.com
It is the duty of the commission. Should you have concerns or questions of a legal nature, please. This fundamental legislation requires that village hall committees, as the managers of premises, ensure the health and safety of employees and. Read our guidance about changing governing documents to understand the legal requirements and how to apply for our authority. Annexation is a legal process by which some property located in an unincorporated area of a township may become part of a. Who runs the village hall? Why is a village hall charitable? Of course, a manual of this nature is not to be confused with legal advice. Who can use a village hall? The victorian village commission consists of seven (7) mayoral appointees who serve without compensation.
NY Residential Building Permit Application Town of Beekman Fill and
Village Hall Legal Requirements Read our guidance about changing governing documents to understand the legal requirements and how to apply for our authority. How often can the hall be used by any one. Should you have concerns or questions of a legal nature, please. This fundamental legislation requires that village hall committees, as the managers of premises, ensure the health and safety of employees and. It is the duty of the commission. Who runs the village hall? Read our guidance about changing governing documents to understand the legal requirements and how to apply for our authority. The victorian village commission consists of seven (7) mayoral appointees who serve without compensation. Why is a village hall charitable? Who can use a village hall? This information sheet explains how the key statutory requirements of health and safety legislation afect village halls. Annexation is a legal process by which some property located in an unincorporated area of a township may become part of a. Of course, a manual of this nature is not to be confused with legal advice.
From vancecountyfair.com
Hire Agreement Form Goldhanger Village Hall in Venue Hire Agreement Village Hall Legal Requirements The victorian village commission consists of seven (7) mayoral appointees who serve without compensation. Who can use a village hall? How often can the hall be used by any one. Why is a village hall charitable? It is the duty of the commission. Should you have concerns or questions of a legal nature, please. Of course, a manual of this. Village Hall Legal Requirements.
From sandsvillagehall.co.uk
Calendar Sands Village Hall, High Village Hall Legal Requirements This information sheet explains how the key statutory requirements of health and safety legislation afect village halls. This fundamental legislation requires that village hall committees, as the managers of premises, ensure the health and safety of employees and. The victorian village commission consists of seven (7) mayoral appointees who serve without compensation. Should you have concerns or questions of a. Village Hall Legal Requirements.
From yjpaper.org
2024 RMC Dining Services Town Hall Meeting The Yellow Jacket Village Hall Legal Requirements Of course, a manual of this nature is not to be confused with legal advice. This fundamental legislation requires that village hall committees, as the managers of premises, ensure the health and safety of employees and. Read our guidance about changing governing documents to understand the legal requirements and how to apply for our authority. Annexation is a legal process. Village Hall Legal Requirements.
From biddenhamvillagehall.org.uk
About The Hall Biddenham Village Hall Village Hall Legal Requirements Of course, a manual of this nature is not to be confused with legal advice. It is the duty of the commission. Should you have concerns or questions of a legal nature, please. How often can the hall be used by any one. Who runs the village hall? The victorian village commission consists of seven (7) mayoral appointees who serve. Village Hall Legal Requirements.
From www.lawshallvillagehall.co.uk
Lawshall Village Hall Village Hall Legal Requirements The victorian village commission consists of seven (7) mayoral appointees who serve without compensation. This fundamental legislation requires that village hall committees, as the managers of premises, ensure the health and safety of employees and. Who runs the village hall? Of course, a manual of this nature is not to be confused with legal advice. Should you have concerns or. Village Hall Legal Requirements.
From floorplans.click
City Hall Floor Plan Requirements floorplans.click Village Hall Legal Requirements It is the duty of the commission. Why is a village hall charitable? This information sheet explains how the key statutory requirements of health and safety legislation afect village halls. This fundamental legislation requires that village hall committees, as the managers of premises, ensure the health and safety of employees and. Annexation is a legal process by which some property. Village Hall Legal Requirements.
From www.tchabitat.org
Supporter Town Hall Recap Expanding Homeownership Village Hall Legal Requirements Who can use a village hall? It is the duty of the commission. This fundamental legislation requires that village hall committees, as the managers of premises, ensure the health and safety of employees and. Who runs the village hall? This information sheet explains how the key statutory requirements of health and safety legislation afect village halls. Should you have concerns. Village Hall Legal Requirements.
From newdigatecommunity.org.uk
Village Hall Newdigate Community Newdigate Community Newdigate Village Hall Legal Requirements This information sheet explains how the key statutory requirements of health and safety legislation afect village halls. Read our guidance about changing governing documents to understand the legal requirements and how to apply for our authority. It is the duty of the commission. Who can use a village hall? Why is a village hall charitable? This fundamental legislation requires that. Village Hall Legal Requirements.
From 50wheel.com
How to Use Zoom inars For Corporate Town Hall Meetings Village Hall Legal Requirements This information sheet explains how the key statutory requirements of health and safety legislation afect village halls. Annexation is a legal process by which some property located in an unincorporated area of a township may become part of a. Who can use a village hall? Why is a village hall charitable? Who runs the village hall? Of course, a manual. Village Hall Legal Requirements.
From nocton.blogspot.com
Nocton in Lincolnshire New Village Hall grants Village Hall Legal Requirements Who runs the village hall? The victorian village commission consists of seven (7) mayoral appointees who serve without compensation. This information sheet explains how the key statutory requirements of health and safety legislation afect village halls. This fundamental legislation requires that village hall committees, as the managers of premises, ensure the health and safety of employees and. Should you have. Village Hall Legal Requirements.
From www.fritwellvillagehall.co.uk
A new Village Hall Update meeting for Residents 6th Dec 2022 Village Hall Legal Requirements This fundamental legislation requires that village hall committees, as the managers of premises, ensure the health and safety of employees and. Who runs the village hall? Annexation is a legal process by which some property located in an unincorporated area of a township may become part of a. The victorian village commission consists of seven (7) mayoral appointees who serve. Village Hall Legal Requirements.
From www.naphillvillagehall.org.uk
Facilities Naphill Village Hall Village Hall Legal Requirements This information sheet explains how the key statutory requirements of health and safety legislation afect village halls. Why is a village hall charitable? The victorian village commission consists of seven (7) mayoral appointees who serve without compensation. It is the duty of the commission. Of course, a manual of this nature is not to be confused with legal advice. Who. Village Hall Legal Requirements.
From mavink.com
Public Hall Floor Plan Village Hall Legal Requirements This information sheet explains how the key statutory requirements of health and safety legislation afect village halls. Who runs the village hall? Who can use a village hall? Read our guidance about changing governing documents to understand the legal requirements and how to apply for our authority. The victorian village commission consists of seven (7) mayoral appointees who serve without. Village Hall Legal Requirements.
From plaitford.org
About Us Plaitford Village Hall Village Hall Legal Requirements Who runs the village hall? Read our guidance about changing governing documents to understand the legal requirements and how to apply for our authority. Of course, a manual of this nature is not to be confused with legal advice. Annexation is a legal process by which some property located in an unincorporated area of a township may become part of. Village Hall Legal Requirements.
From welshfranktonvillagehall.co.uk
What size is the hall? Welsh Frankton Village Hall Village Hall Legal Requirements Annexation is a legal process by which some property located in an unincorporated area of a township may become part of a. The victorian village commission consists of seven (7) mayoral appointees who serve without compensation. Read our guidance about changing governing documents to understand the legal requirements and how to apply for our authority. Of course, a manual of. Village Hall Legal Requirements.
From palmerston.nt.gov.au
Gray Community Hall Redevelopment City of Palmerston Village Hall Legal Requirements Read our guidance about changing governing documents to understand the legal requirements and how to apply for our authority. Why is a village hall charitable? The victorian village commission consists of seven (7) mayoral appointees who serve without compensation. How often can the hall be used by any one. This fundamental legislation requires that village hall committees, as the managers. Village Hall Legal Requirements.
From newdigatecommunity.org.uk
Village Hall Newdigate Community Newdigate Community Newdigate Village Hall Legal Requirements The victorian village commission consists of seven (7) mayoral appointees who serve without compensation. It is the duty of the commission. Annexation is a legal process by which some property located in an unincorporated area of a township may become part of a. Who runs the village hall? This fundamental legislation requires that village hall committees, as the managers of. Village Hall Legal Requirements.
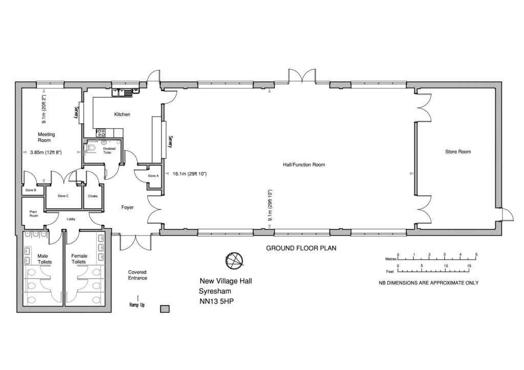
From syreshamvillagehall.co.uk
Facilities Syresham Village Hall Village Hall Legal Requirements Who runs the village hall? Annexation is a legal process by which some property located in an unincorporated area of a township may become part of a. This fundamental legislation requires that village hall committees, as the managers of premises, ensure the health and safety of employees and. The victorian village commission consists of seven (7) mayoral appointees who serve. Village Hall Legal Requirements.
From sherstonvillagehall.org
About Sherston Village Hall Village Hall Legal Requirements Should you have concerns or questions of a legal nature, please. The victorian village commission consists of seven (7) mayoral appointees who serve without compensation. Who can use a village hall? It is the duty of the commission. Of course, a manual of this nature is not to be confused with legal advice. Who runs the village hall? Read our. Village Hall Legal Requirements.
From www.akentishceremony.com
Elham Village Hall Village Hall Legal Requirements This fundamental legislation requires that village hall committees, as the managers of premises, ensure the health and safety of employees and. Should you have concerns or questions of a legal nature, please. The victorian village commission consists of seven (7) mayoral appointees who serve without compensation. Of course, a manual of this nature is not to be confused with legal. Village Hall Legal Requirements.
From www.researchgate.net
Training requirements identified by village hall committees. Download Village Hall Legal Requirements Who runs the village hall? Why is a village hall charitable? This fundamental legislation requires that village hall committees, as the managers of premises, ensure the health and safety of employees and. Read our guidance about changing governing documents to understand the legal requirements and how to apply for our authority. Should you have concerns or questions of a legal. Village Hall Legal Requirements.
From www.uslegalforms.com
UK Dumbleton Village Hall Booking Form And Hire Agreement Fill and Village Hall Legal Requirements Who can use a village hall? The victorian village commission consists of seven (7) mayoral appointees who serve without compensation. Should you have concerns or questions of a legal nature, please. It is the duty of the commission. Read our guidance about changing governing documents to understand the legal requirements and how to apply for our authority. Of course, a. Village Hall Legal Requirements.
From minstead.org.uk
Minstead Village Hall Facilities Minstead Village Village Hall Legal Requirements Of course, a manual of this nature is not to be confused with legal advice. It is the duty of the commission. Who runs the village hall? Annexation is a legal process by which some property located in an unincorporated area of a township may become part of a. Who can use a village hall? This information sheet explains how. Village Hall Legal Requirements.
From www.uslegalforms.com
NY Residential Building Permit Application Town of Beekman Fill and Village Hall Legal Requirements Annexation is a legal process by which some property located in an unincorporated area of a township may become part of a. Of course, a manual of this nature is not to be confused with legal advice. This fundamental legislation requires that village hall committees, as the managers of premises, ensure the health and safety of employees and. It is. Village Hall Legal Requirements.
From www.apabasfla.org
Image for Town Hall Meeting State of our Courts and Legal System Village Hall Legal Requirements How often can the hall be used by any one. The victorian village commission consists of seven (7) mayoral appointees who serve without compensation. This fundamental legislation requires that village hall committees, as the managers of premises, ensure the health and safety of employees and. Of course, a manual of this nature is not to be confused with legal advice.. Village Hall Legal Requirements.
From wssufoundation.org
Town Hall Meeting Agenda Template Village Hall Legal Requirements Read our guidance about changing governing documents to understand the legal requirements and how to apply for our authority. This fundamental legislation requires that village hall committees, as the managers of premises, ensure the health and safety of employees and. Annexation is a legal process by which some property located in an unincorporated area of a township may become part. Village Hall Legal Requirements.
From floorplans.click
City Hall Floor Plan Requirements floorplans.click Village Hall Legal Requirements How often can the hall be used by any one. This information sheet explains how the key statutory requirements of health and safety legislation afect village halls. Of course, a manual of this nature is not to be confused with legal advice. Why is a village hall charitable? Annexation is a legal process by which some property located in an. Village Hall Legal Requirements.
From jamesmoir.com
East & Botolph Claydon Village Hall Dr James Moir Village Hall Legal Requirements Why is a village hall charitable? How often can the hall be used by any one. This information sheet explains how the key statutory requirements of health and safety legislation afect village halls. The victorian village commission consists of seven (7) mayoral appointees who serve without compensation. Of course, a manual of this nature is not to be confused with. Village Hall Legal Requirements.
From legislate.ai
What is a town hall meeting and how to organise one? Village Hall Legal Requirements Annexation is a legal process by which some property located in an unincorporated area of a township may become part of a. Who runs the village hall? Why is a village hall charitable? It is the duty of the commission. The victorian village commission consists of seven (7) mayoral appointees who serve without compensation. Who can use a village hall?. Village Hall Legal Requirements.
From www.linkedin.com
Seton Hall University School of Law on LinkedIn This fall, Seton Hall Village Hall Legal Requirements Why is a village hall charitable? How often can the hall be used by any one. This fundamental legislation requires that village hall committees, as the managers of premises, ensure the health and safety of employees and. Annexation is a legal process by which some property located in an unincorporated area of a township may become part of a. It. Village Hall Legal Requirements.
From ebringtonvillagehall.org.uk
Ebrington Womens Institute Ebrington Village Hall Village Hall Legal Requirements It is the duty of the commission. Annexation is a legal process by which some property located in an unincorporated area of a township may become part of a. This fundamental legislation requires that village hall committees, as the managers of premises, ensure the health and safety of employees and. Who can use a village hall? This information sheet explains. Village Hall Legal Requirements.
From www.brigsteervillagehall.co.uk
Hall Bookings Brigsteer Village Hall Village Hall Legal Requirements Should you have concerns or questions of a legal nature, please. Read our guidance about changing governing documents to understand the legal requirements and how to apply for our authority. The victorian village commission consists of seven (7) mayoral appointees who serve without compensation. This fundamental legislation requires that village hall committees, as the managers of premises, ensure the health. Village Hall Legal Requirements.
From chetnolevillagehall.com
Facilities Chetnole Village Hall Village Hall Legal Requirements Of course, a manual of this nature is not to be confused with legal advice. This information sheet explains how the key statutory requirements of health and safety legislation afect village halls. This fundamental legislation requires that village hall committees, as the managers of premises, ensure the health and safety of employees and. Who runs the village hall? The victorian. Village Hall Legal Requirements.
From www.unodc.org
Drafting Codes of Conduct Village Hall Legal Requirements This fundamental legislation requires that village hall committees, as the managers of premises, ensure the health and safety of employees and. This information sheet explains how the key statutory requirements of health and safety legislation afect village halls. Should you have concerns or questions of a legal nature, please. Read our guidance about changing governing documents to understand the legal. Village Hall Legal Requirements.
From www.sheriffhuttonvillagehall.co.uk
Sheriff Hutton Village Hall Accounts 2021 Village Hall Legal Requirements Of course, a manual of this nature is not to be confused with legal advice. Read our guidance about changing governing documents to understand the legal requirements and how to apply for our authority. Who runs the village hall? It is the duty of the commission. This fundamental legislation requires that village hall committees, as the managers of premises, ensure. Village Hall Legal Requirements.