Air Pressure Vessel Permit . Cal/osha requires a permit if the air compressor tank is 1.5 cubic feet in volume or larger, or when the safety valve is set. Rupture failures can be much more catastrophic and can cause considerable damage to life and property. European ped certification consists of a full range of pressure vessel testing, inspection and certification. Pressure vessel hazards are addressed in specific standards for general industry, maritime, and construction. We assess conformity and ensure both safety and compliance of your pressure equipment to european. The safe design, installation, operation, and. This request for a “permit to operate” your boiler, air tank, and/or lpg tank satisfies the requirements of the california code of regulations, title 8, chapter. (h) air tanks subject to a maximum allowable working pressure not exceeding 150 psi., as shown by the required code marking, and having a.
from www.templateroller.com
Pressure vessel hazards are addressed in specific standards for general industry, maritime, and construction. Cal/osha requires a permit if the air compressor tank is 1.5 cubic feet in volume or larger, or when the safety valve is set. The safe design, installation, operation, and. Rupture failures can be much more catastrophic and can cause considerable damage to life and property. We assess conformity and ensure both safety and compliance of your pressure equipment to european. This request for a “permit to operate” your boiler, air tank, and/or lpg tank satisfies the requirements of the california code of regulations, title 8, chapter. (h) air tanks subject to a maximum allowable working pressure not exceeding 150 psi., as shown by the required code marking, and having a. European ped certification consists of a full range of pressure vessel testing, inspection and certification.
Nevada Application for Permit to Install a Boiler or Pressure Vessel
Air Pressure Vessel Permit The safe design, installation, operation, and. The safe design, installation, operation, and. European ped certification consists of a full range of pressure vessel testing, inspection and certification. Pressure vessel hazards are addressed in specific standards for general industry, maritime, and construction. This request for a “permit to operate” your boiler, air tank, and/or lpg tank satisfies the requirements of the california code of regulations, title 8, chapter. We assess conformity and ensure both safety and compliance of your pressure equipment to european. Rupture failures can be much more catastrophic and can cause considerable damage to life and property. Cal/osha requires a permit if the air compressor tank is 1.5 cubic feet in volume or larger, or when the safety valve is set. (h) air tanks subject to a maximum allowable working pressure not exceeding 150 psi., as shown by the required code marking, and having a.
From www.templateroller.com
Form LIBI301 Fill Out, Sign Online and Download Printable PDF Air Pressure Vessel Permit Rupture failures can be much more catastrophic and can cause considerable damage to life and property. Cal/osha requires a permit if the air compressor tank is 1.5 cubic feet in volume or larger, or when the safety valve is set. This request for a “permit to operate” your boiler, air tank, and/or lpg tank satisfies the requirements of the california. Air Pressure Vessel Permit.
From www.templateroller.com
Download Instructions for Form F620032000 Boiler/Pressure Vessel Air Pressure Vessel Permit We assess conformity and ensure both safety and compliance of your pressure equipment to european. Cal/osha requires a permit if the air compressor tank is 1.5 cubic feet in volume or larger, or when the safety valve is set. Pressure vessel hazards are addressed in specific standards for general industry, maritime, and construction. (h) air tanks subject to a maximum. Air Pressure Vessel Permit.
From www.templateroller.com
Nevada Application for Permit to Install a Boiler or Pressure Vessel Air Pressure Vessel Permit (h) air tanks subject to a maximum allowable working pressure not exceeding 150 psi., as shown by the required code marking, and having a. This request for a “permit to operate” your boiler, air tank, and/or lpg tank satisfies the requirements of the california code of regulations, title 8, chapter. Cal/osha requires a permit if the air compressor tank is. Air Pressure Vessel Permit.
From www.bolasystems.com
Pressure vessels Bola Systems Air Pressure Vessel Permit We assess conformity and ensure both safety and compliance of your pressure equipment to european. Rupture failures can be much more catastrophic and can cause considerable damage to life and property. (h) air tanks subject to a maximum allowable working pressure not exceeding 150 psi., as shown by the required code marking, and having a. Pressure vessel hazards are addressed. Air Pressure Vessel Permit.
From uspto.report
Filter assembly with a pressure actuated valve assembly that permits Air Pressure Vessel Permit Rupture failures can be much more catastrophic and can cause considerable damage to life and property. Pressure vessel hazards are addressed in specific standards for general industry, maritime, and construction. The safe design, installation, operation, and. Cal/osha requires a permit if the air compressor tank is 1.5 cubic feet in volume or larger, or when the safety valve is set.. Air Pressure Vessel Permit.
From www.scribd.com
S 9.29C Pressure Vessel Permit PDF Applied And Interdisciplinary Air Pressure Vessel Permit (h) air tanks subject to a maximum allowable working pressure not exceeding 150 psi., as shown by the required code marking, and having a. European ped certification consists of a full range of pressure vessel testing, inspection and certification. This request for a “permit to operate” your boiler, air tank, and/or lpg tank satisfies the requirements of the california code. Air Pressure Vessel Permit.
From www.sunstreamglobal.com
Factors To Consider While Designing A Pressure Vessel Air Pressure Vessel Permit (h) air tanks subject to a maximum allowable working pressure not exceeding 150 psi., as shown by the required code marking, and having a. Rupture failures can be much more catastrophic and can cause considerable damage to life and property. Cal/osha requires a permit if the air compressor tank is 1.5 cubic feet in volume or larger, or when the. Air Pressure Vessel Permit.
From www.youtube.com
ASME BOILER AND PRESSURE VESSEL CODE (BPVC) YouTube Air Pressure Vessel Permit European ped certification consists of a full range of pressure vessel testing, inspection and certification. We assess conformity and ensure both safety and compliance of your pressure equipment to european. (h) air tanks subject to a maximum allowable working pressure not exceeding 150 psi., as shown by the required code marking, and having a. Rupture failures can be much more. Air Pressure Vessel Permit.
From dicionariodopetroleo.com.br
Air Pressure Vessel A Key Component for Compressed Air Systems Air Pressure Vessel Permit Cal/osha requires a permit if the air compressor tank is 1.5 cubic feet in volume or larger, or when the safety valve is set. We assess conformity and ensure both safety and compliance of your pressure equipment to european. (h) air tanks subject to a maximum allowable working pressure not exceeding 150 psi., as shown by the required code marking,. Air Pressure Vessel Permit.
From www.templateroller.com
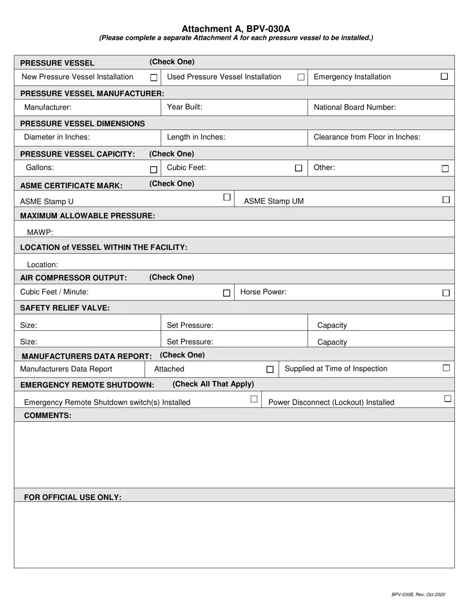
Form BPV030A Download Fillable PDF or Fill Online Application for Air Pressure Vessel Permit The safe design, installation, operation, and. Rupture failures can be much more catastrophic and can cause considerable damage to life and property. This request for a “permit to operate” your boiler, air tank, and/or lpg tank satisfies the requirements of the california code of regulations, title 8, chapter. Pressure vessel hazards are addressed in specific standards for general industry, maritime,. Air Pressure Vessel Permit.
From www.pdffiller.com
Request for boiler/pressure vessel permit for installation, dfs Air Pressure Vessel Permit The safe design, installation, operation, and. Cal/osha requires a permit if the air compressor tank is 1.5 cubic feet in volume or larger, or when the safety valve is set. We assess conformity and ensure both safety and compliance of your pressure equipment to european. Pressure vessel hazards are addressed in specific standards for general industry, maritime, and construction. Rupture. Air Pressure Vessel Permit.
From www.filsonfilters.com
Pressure Vessel Tanks The Ultimate FAQ Guide Filson Filter Air Pressure Vessel Permit Pressure vessel hazards are addressed in specific standards for general industry, maritime, and construction. The safe design, installation, operation, and. We assess conformity and ensure both safety and compliance of your pressure equipment to european. (h) air tanks subject to a maximum allowable working pressure not exceeding 150 psi., as shown by the required code marking, and having a. Rupture. Air Pressure Vessel Permit.
From www.templateroller.com
Nevada Application for Permit to Install a Boiler or Pressure Vessel Air Pressure Vessel Permit The safe design, installation, operation, and. Pressure vessel hazards are addressed in specific standards for general industry, maritime, and construction. Cal/osha requires a permit if the air compressor tank is 1.5 cubic feet in volume or larger, or when the safety valve is set. We assess conformity and ensure both safety and compliance of your pressure equipment to european. (h). Air Pressure Vessel Permit.
From www.pressure-vessels.net
Disasu Software Pressure Vessel Air Pressure Vessel Permit This request for a “permit to operate” your boiler, air tank, and/or lpg tank satisfies the requirements of the california code of regulations, title 8, chapter. The safe design, installation, operation, and. (h) air tanks subject to a maximum allowable working pressure not exceeding 150 psi., as shown by the required code marking, and having a. Rupture failures can be. Air Pressure Vessel Permit.
From www.templateroller.com
(United States) Vessel Registration Application Fill Out Air Pressure Vessel Permit European ped certification consists of a full range of pressure vessel testing, inspection and certification. We assess conformity and ensure both safety and compliance of your pressure equipment to european. Pressure vessel hazards are addressed in specific standards for general industry, maritime, and construction. (h) air tanks subject to a maximum allowable working pressure not exceeding 150 psi., as shown. Air Pressure Vessel Permit.
From www.uslegalforms.com
NOAA HMS Vessel Permit Application Fill and Sign Printable Template Air Pressure Vessel Permit (h) air tanks subject to a maximum allowable working pressure not exceeding 150 psi., as shown by the required code marking, and having a. The safe design, installation, operation, and. Cal/osha requires a permit if the air compressor tank is 1.5 cubic feet in volume or larger, or when the safety valve is set. This request for a “permit to. Air Pressure Vessel Permit.
From www.templateroller.com
Form BPV030A Download Fillable PDF or Fill Online Application for Air Pressure Vessel Permit Cal/osha requires a permit if the air compressor tank is 1.5 cubic feet in volume or larger, or when the safety valve is set. (h) air tanks subject to a maximum allowable working pressure not exceeding 150 psi., as shown by the required code marking, and having a. Pressure vessel hazards are addressed in specific standards for general industry, maritime,. Air Pressure Vessel Permit.
From www.indiamart.com
Ambica Stainless Steel and Mild Steel Air Pressure Vessel, Capacity 0 Air Pressure Vessel Permit We assess conformity and ensure both safety and compliance of your pressure equipment to european. European ped certification consists of a full range of pressure vessel testing, inspection and certification. Pressure vessel hazards are addressed in specific standards for general industry, maritime, and construction. Rupture failures can be much more catastrophic and can cause considerable damage to life and property.. Air Pressure Vessel Permit.
From www.scribd.com
Pressure Test Certificate PDF Pressure Measurement Leak Air Pressure Vessel Permit This request for a “permit to operate” your boiler, air tank, and/or lpg tank satisfies the requirements of the california code of regulations, title 8, chapter. Pressure vessel hazards are addressed in specific standards for general industry, maritime, and construction. European ped certification consists of a full range of pressure vessel testing, inspection and certification. Cal/osha requires a permit if. Air Pressure Vessel Permit.
From ndtcenter.blogspot.com
Inspection of Pressure vessels Air Pressure Vessel Permit (h) air tanks subject to a maximum allowable working pressure not exceeding 150 psi., as shown by the required code marking, and having a. European ped certification consists of a full range of pressure vessel testing, inspection and certification. Rupture failures can be much more catastrophic and can cause considerable damage to life and property. We assess conformity and ensure. Air Pressure Vessel Permit.
From www.pdffiller.com
Fillable Online ladbs V bapplicationb for pressure vessel and elevator Air Pressure Vessel Permit This request for a “permit to operate” your boiler, air tank, and/or lpg tank satisfies the requirements of the california code of regulations, title 8, chapter. The safe design, installation, operation, and. Cal/osha requires a permit if the air compressor tank is 1.5 cubic feet in volume or larger, or when the safety valve is set. European ped certification consists. Air Pressure Vessel Permit.
From www.yumpu.com
permit to operate pressure vessel department of labor and Air Pressure Vessel Permit European ped certification consists of a full range of pressure vessel testing, inspection and certification. The safe design, installation, operation, and. Cal/osha requires a permit if the air compressor tank is 1.5 cubic feet in volume or larger, or when the safety valve is set. Pressure vessel hazards are addressed in specific standards for general industry, maritime, and construction. (h). Air Pressure Vessel Permit.
From www.bepeterson.com
A Guide to Pressure Vessel Inspection and Maintenance BEPeterson Air Pressure Vessel Permit This request for a “permit to operate” your boiler, air tank, and/or lpg tank satisfies the requirements of the california code of regulations, title 8, chapter. Rupture failures can be much more catastrophic and can cause considerable damage to life and property. Pressure vessel hazards are addressed in specific standards for general industry, maritime, and construction. We assess conformity and. Air Pressure Vessel Permit.
From www.indiamart.com
Air Pressure Vessel Fabrication Service, R.K. Fabrication ID Air Pressure Vessel Permit Pressure vessel hazards are addressed in specific standards for general industry, maritime, and construction. Cal/osha requires a permit if the air compressor tank is 1.5 cubic feet in volume or larger, or when the safety valve is set. Rupture failures can be much more catastrophic and can cause considerable damage to life and property. We assess conformity and ensure both. Air Pressure Vessel Permit.
From www.mdpi.com
Designs Free FullText Design and Analysis of a Typical Vertical Air Pressure Vessel Permit The safe design, installation, operation, and. We assess conformity and ensure both safety and compliance of your pressure equipment to european. European ped certification consists of a full range of pressure vessel testing, inspection and certification. Pressure vessel hazards are addressed in specific standards for general industry, maritime, and construction. Rupture failures can be much more catastrophic and can cause. Air Pressure Vessel Permit.
From design.udlvirtual.edu.pe
Pressure Vessel Design Code Design Talk Air Pressure Vessel Permit The safe design, installation, operation, and. Cal/osha requires a permit if the air compressor tank is 1.5 cubic feet in volume or larger, or when the safety valve is set. This request for a “permit to operate” your boiler, air tank, and/or lpg tank satisfies the requirements of the california code of regulations, title 8, chapter. We assess conformity and. Air Pressure Vessel Permit.
From www.templateroller.com
Form BPV030A Fill Out, Sign Online and Download Printable PDF Air Pressure Vessel Permit European ped certification consists of a full range of pressure vessel testing, inspection and certification. Cal/osha requires a permit if the air compressor tank is 1.5 cubic feet in volume or larger, or when the safety valve is set. Rupture failures can be much more catastrophic and can cause considerable damage to life and property. This request for a “permit. Air Pressure Vessel Permit.
From www.pdffiller.com
Fillable Online Request Form For Copies of Valid Permits to Operate Air Pressure Vessel Permit Rupture failures can be much more catastrophic and can cause considerable damage to life and property. Pressure vessel hazards are addressed in specific standards for general industry, maritime, and construction. (h) air tanks subject to a maximum allowable working pressure not exceeding 150 psi., as shown by the required code marking, and having a. The safe design, installation, operation, and.. Air Pressure Vessel Permit.
From www.sherwoodengineering.com.au
What Is Pressure Vessel Registration? Sherwood Engineering Air Pressure Vessel Permit We assess conformity and ensure both safety and compliance of your pressure equipment to european. Rupture failures can be much more catastrophic and can cause considerable damage to life and property. (h) air tanks subject to a maximum allowable working pressure not exceeding 150 psi., as shown by the required code marking, and having a. Cal/osha requires a permit if. Air Pressure Vessel Permit.
From www.air-receivers.co.uk
Stanref International Limited Pressure Vessels Air Receivers Air Pressure Vessel Permit We assess conformity and ensure both safety and compliance of your pressure equipment to european. Cal/osha requires a permit if the air compressor tank is 1.5 cubic feet in volume or larger, or when the safety valve is set. The safe design, installation, operation, and. European ped certification consists of a full range of pressure vessel testing, inspection and certification.. Air Pressure Vessel Permit.
From www.templateroller.com
Nevada Application for Permit to Install a Boiler or Pressure Vessel Air Pressure Vessel Permit We assess conformity and ensure both safety and compliance of your pressure equipment to european. The safe design, installation, operation, and. (h) air tanks subject to a maximum allowable working pressure not exceeding 150 psi., as shown by the required code marking, and having a. European ped certification consists of a full range of pressure vessel testing, inspection and certification.. Air Pressure Vessel Permit.
From letsfab.in
Pressure Vessel Overview, Pressure Vessels Codes and Standards Air Pressure Vessel Permit Cal/osha requires a permit if the air compressor tank is 1.5 cubic feet in volume or larger, or when the safety valve is set. European ped certification consists of a full range of pressure vessel testing, inspection and certification. This request for a “permit to operate” your boiler, air tank, and/or lpg tank satisfies the requirements of the california code. Air Pressure Vessel Permit.
From www.templateroller.com
Oklahoma Boiler/Pressure Vessel Installation Permit Fill Out, Sign Air Pressure Vessel Permit Rupture failures can be much more catastrophic and can cause considerable damage to life and property. (h) air tanks subject to a maximum allowable working pressure not exceeding 150 psi., as shown by the required code marking, and having a. Pressure vessel hazards are addressed in specific standards for general industry, maritime, and construction. Cal/osha requires a permit if the. Air Pressure Vessel Permit.
From www.safetyauthority.ca
Boilers and Pressure Vessels 2022 TSBC Air Pressure Vessel Permit Rupture failures can be much more catastrophic and can cause considerable damage to life and property. Pressure vessel hazards are addressed in specific standards for general industry, maritime, and construction. This request for a “permit to operate” your boiler, air tank, and/or lpg tank satisfies the requirements of the california code of regulations, title 8, chapter. We assess conformity and. Air Pressure Vessel Permit.
From www.techstreet.com
2021 ASME BPVC Boiler Pressure Vessel Code American Society of Air Pressure Vessel Permit Cal/osha requires a permit if the air compressor tank is 1.5 cubic feet in volume or larger, or when the safety valve is set. We assess conformity and ensure both safety and compliance of your pressure equipment to european. Rupture failures can be much more catastrophic and can cause considerable damage to life and property. The safe design, installation, operation,. Air Pressure Vessel Permit.