Flag Pole Hinged Base Plate . Cleat, halyard & white onion shaped finial). We ship to the u.k mainland, isle of wight and some off shore islands. White powder coated 10 metre fibreglass flagpole with hinged base plate (includes: We have listed our most popular sized hinged base plate flagpoles. Why not have a look at our flagpole spare parts and. 6 metres in height and comes with a hinged base plate for easy maintenance. External halyard system with galvanised base plate, four galvanised foundation bolts, external halyard rope, cleat and white finial. Flagpoles can have either an internal or external halyard. 4 m and 5 m flag poles are 100 mm in. White powder coated fibreglass flagpole (includes: This is so you can easily clean and maintain your pole yourself and to bring. Relevant studding is supplied to suit the flagpole height. Hinged base plates are constructed from steel and measure 180mm wide x 180mm with a 10mm depth and four 20mm fixing screw holes. White powder coated fibreglass flagpole (includes: Our heavy duty conically shaped fibreglass flagpoles are all windspeed test and manufactured with larger diameter bases and tops for added strength.
from www.flagdesk.com
Why not have a look at our flagpole spare parts and. External halyard system with galvanised base plate, four galvanised foundation bolts, external halyard rope, cleat and white finial. Our heavy duty conically shaped fibreglass flagpoles are all windspeed test and manufactured with larger diameter bases and tops for added strength. Cleat, halyard & white onion shaped finial). Our hinged tilt plates are used with our grp flagpoles and allows you to lower your flagpole due to the hinged plate. White powder coated fibreglass flagpole (includes: Relevant studding is supplied to suit the flagpole height. This is so you can easily clean and maintain your pole yourself and to bring. Hinged base plates are constructed from steel and measure 180mm wide x 180mm with a 10mm depth and four 20mm fixing screw holes. We have listed our most popular sized hinged base plate flagpoles.
Flagpole Foundation Dimensions
Flag Pole Hinged Base Plate Relevant studding is supplied to suit the flagpole height. Our heavy duty conically shaped fibreglass flagpoles are all windspeed test and manufactured with larger diameter bases and tops for added strength. 6 metres in height and comes with a hinged base plate for easy maintenance. This is so you can easily clean and maintain your pole yourself and to bring. Why not have a look at our flagpole spare parts and. 4 m and 5 m flag poles are 100 mm in. White powder coated 10 metre fibreglass flagpole with hinged base plate (includes: Cleat, halyard & white onion shaped finial). White powder coated fibreglass flagpole (includes: Flagpoles can have either an internal or external halyard. Hinged base plates are constructed from steel and measure 180mm wide x 180mm with a 10mm depth and four 20mm fixing screw holes. External halyard system with galvanised base plate, four galvanised foundation bolts, external halyard rope, cleat and white finial. Our hinged tilt plates are used with our grp flagpoles and allows you to lower your flagpole due to the hinged plate. Relevant studding is supplied to suit the flagpole height. White powder coated fibreglass flagpole (includes: We ship to the u.k mainland, isle of wight and some off shore islands.
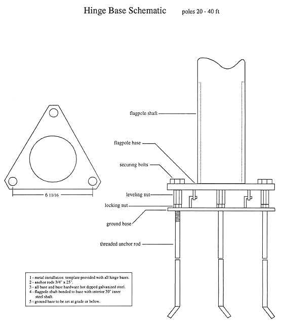
From www.saratogaflag.com
.TILTING FLAGPOLE 5 inch butt diameter Aluminum Pole Hinged Base Flag Pole Hinged Base Plate White powder coated fibreglass flagpole (includes: White powder coated 10 metre fibreglass flagpole with hinged base plate (includes: We ship to the u.k mainland, isle of wight and some off shore islands. Cleat, halyard & white onion shaped finial). Our heavy duty conically shaped fibreglass flagpoles are all windspeed test and manufactured with larger diameter bases and tops for added. Flag Pole Hinged Base Plate.
From greenfrogsystems.com
GFS Base Hinge Pole Green Frog Systems Flag Pole Hinged Base Plate This is so you can easily clean and maintain your pole yourself and to bring. White powder coated 10 metre fibreglass flagpole with hinged base plate (includes: Our heavy duty conically shaped fibreglass flagpoles are all windspeed test and manufactured with larger diameter bases and tops for added strength. Our hinged tilt plates are used with our grp flagpoles and. Flag Pole Hinged Base Plate.
From www.cestriansigns.co.uk
Base plate for sign pole Cestrian Signs Flag Pole Hinged Base Plate Hinged base plates are constructed from steel and measure 180mm wide x 180mm with a 10mm depth and four 20mm fixing screw holes. 4 m and 5 m flag poles are 100 mm in. 6 metres in height and comes with a hinged base plate for easy maintenance. Our hinged tilt plates are used with our grp flagpoles and allows. Flag Pole Hinged Base Plate.
From www.tuffflags.com
25' Hurricane Commercial HingedBase Flagpole HingedBase Tilting Flag Pole Hinged Base Plate Relevant studding is supplied to suit the flagpole height. White powder coated fibreglass flagpole (includes: We ship to the u.k mainland, isle of wight and some off shore islands. Cleat, halyard & white onion shaped finial). 4 m and 5 m flag poles are 100 mm in. Our hinged tilt plates are used with our grp flagpoles and allows you. Flag Pole Hinged Base Plate.
From www.udimagen.org
Flagpole Base Designs About Flag Collections Flag Pole Hinged Base Plate 4 m and 5 m flag poles are 100 mm in. Cleat, halyard & white onion shaped finial). White powder coated fibreglass flagpole (includes: We ship to the u.k mainland, isle of wight and some off shore islands. Our heavy duty conically shaped fibreglass flagpoles are all windspeed test and manufactured with larger diameter bases and tops for added strength.. Flag Pole Hinged Base Plate.
From www.bobsflags.com
Internal Halyard Flagpoles, Fiberglass Flagpoles, Hinged Base Flag Pole Hinged Base Plate Our heavy duty conically shaped fibreglass flagpoles are all windspeed test and manufactured with larger diameter bases and tops for added strength. White powder coated 10 metre fibreglass flagpole with hinged base plate (includes: Our hinged tilt plates are used with our grp flagpoles and allows you to lower your flagpole due to the hinged plate. Cleat, halyard & white. Flag Pole Hinged Base Plate.
From www.tuffflags.com
30' Standard Commercial HingedBase Flagpole HingedBase Tilting Flag Pole Hinged Base Plate Cleat, halyard & white onion shaped finial). We have listed our most popular sized hinged base plate flagpoles. White powder coated fibreglass flagpole (includes: Why not have a look at our flagpole spare parts and. White powder coated fibreglass flagpole (includes: Our heavy duty conically shaped fibreglass flagpoles are all windspeed test and manufactured with larger diameter bases and tops. Flag Pole Hinged Base Plate.
From flags2u.ie
Internal Halyard Fibreglass Flagpole With Anti Vandal System Flags2u Flag Pole Hinged Base Plate Our hinged tilt plates are used with our grp flagpoles and allows you to lower your flagpole due to the hinged plate. This is so you can easily clean and maintain your pole yourself and to bring. Cleat, halyard & white onion shaped finial). We have listed our most popular sized hinged base plate flagpoles. White powder coated fibreglass flagpole. Flag Pole Hinged Base Plate.
From www.flagpoleexpress.co.uk
Fibreglass flagpoles with hinged base Flagpole Express Flag Pole Hinged Base Plate External halyard system with galvanised base plate, four galvanised foundation bolts, external halyard rope, cleat and white finial. This is so you can easily clean and maintain your pole yourself and to bring. White powder coated fibreglass flagpole (includes: We ship to the u.k mainland, isle of wight and some off shore islands. Hinged base plates are constructed from steel. Flag Pole Hinged Base Plate.
From www.premierstoneproducts.com
Flag Poles Flag Pole Hinged Base Plate Our heavy duty conically shaped fibreglass flagpoles are all windspeed test and manufactured with larger diameter bases and tops for added strength. White powder coated fibreglass flagpole (includes: This is so you can easily clean and maintain your pole yourself and to bring. We have listed our most popular sized hinged base plate flagpoles. We ship to the u.k mainland,. Flag Pole Hinged Base Plate.
From www.carrot-top.com
20' American Made Hinge Base Fiberglass Flagpole Flag Pole Hinged Base Plate White powder coated 10 metre fibreglass flagpole with hinged base plate (includes: 4 m and 5 m flag poles are 100 mm in. External halyard system with galvanised base plate, four galvanised foundation bolts, external halyard rope, cleat and white finial. Our heavy duty conically shaped fibreglass flagpoles are all windspeed test and manufactured with larger diameter bases and tops. Flag Pole Hinged Base Plate.
From www.flagdesk.com
Flagpole Foundation Dimensions Flag Pole Hinged Base Plate This is so you can easily clean and maintain your pole yourself and to bring. We have listed our most popular sized hinged base plate flagpoles. Hinged base plates are constructed from steel and measure 180mm wide x 180mm with a 10mm depth and four 20mm fixing screw holes. 6 metres in height and comes with a hinged base plate. Flag Pole Hinged Base Plate.
From www.signplus.co.uk
Flags, Flag Poles, Custom Flags Sign Plus, Fife Flag Pole Hinged Base Plate Our heavy duty conically shaped fibreglass flagpoles are all windspeed test and manufactured with larger diameter bases and tops for added strength. 4 m and 5 m flag poles are 100 mm in. Flagpoles can have either an internal or external halyard. We ship to the u.k mainland, isle of wight and some off shore islands. Relevant studding is supplied. Flag Pole Hinged Base Plate.
From www.vistaprint.ie
Flag Pole Bases, Custom Flag Bases Vistaprint IE Flag Pole Hinged Base Plate Relevant studding is supplied to suit the flagpole height. White powder coated fibreglass flagpole (includes: Cleat, halyard & white onion shaped finial). Flagpoles can have either an internal or external halyard. White powder coated fibreglass flagpole (includes: Our hinged tilt plates are used with our grp flagpoles and allows you to lower your flagpole due to the hinged plate. External. Flag Pole Hinged Base Plate.
From addaflagpoles.silvadigital.com.au
Galvanised heavy duty hinge plate Adda Flag Poles Flag Pole Hinged Base Plate White powder coated 10 metre fibreglass flagpole with hinged base plate (includes: Relevant studding is supplied to suit the flagpole height. White powder coated fibreglass flagpole (includes: Cleat, halyard & white onion shaped finial). This is so you can easily clean and maintain your pole yourself and to bring. Flagpoles can have either an internal or external halyard. White powder. Flag Pole Hinged Base Plate.
From www.tuffflags.com
30' Standard Commercial HingedBase Flagpole HingedBase Tilting Flag Pole Hinged Base Plate We ship to the u.k mainland, isle of wight and some off shore islands. White powder coated 10 metre fibreglass flagpole with hinged base plate (includes: Flagpoles can have either an internal or external halyard. Hinged base plates are constructed from steel and measure 180mm wide x 180mm with a 10mm depth and four 20mm fixing screw holes. Our hinged. Flag Pole Hinged Base Plate.
From flagsexpress.com
Hinge Base Flagpole Fiberglass American Flags Express Flag Pole Hinged Base Plate White powder coated fibreglass flagpole (includes: Relevant studding is supplied to suit the flagpole height. 6 metres in height and comes with a hinged base plate for easy maintenance. 4 m and 5 m flag poles are 100 mm in. We ship to the u.k mainland, isle of wight and some off shore islands. External halyard system with galvanised base. Flag Pole Hinged Base Plate.
From www.youtube.com
Flagpole Hinge Base Up close Before Install YouTube Flag Pole Hinged Base Plate External halyard system with galvanised base plate, four galvanised foundation bolts, external halyard rope, cleat and white finial. 4 m and 5 m flag poles are 100 mm in. We ship to the u.k mainland, isle of wight and some off shore islands. Relevant studding is supplied to suit the flagpole height. Our heavy duty conically shaped fibreglass flagpoles are. Flag Pole Hinged Base Plate.
From www.youtube.com
Building a Hinged Flag Pole Mount YouTube Flag Pole Hinged Base Plate Our heavy duty conically shaped fibreglass flagpoles are all windspeed test and manufactured with larger diameter bases and tops for added strength. External halyard system with galvanised base plate, four galvanised foundation bolts, external halyard rope, cleat and white finial. Why not have a look at our flagpole spare parts and. White powder coated fibreglass flagpole (includes: We have listed. Flag Pole Hinged Base Plate.
From www.southcoastflagpoles.co.uk
Gallery South Coast Flagpoles Flag Pole Hinged Base Plate We ship to the u.k mainland, isle of wight and some off shore islands. White powder coated fibreglass flagpole (includes: Our heavy duty conically shaped fibreglass flagpoles are all windspeed test and manufactured with larger diameter bases and tops for added strength. Hinged base plates are constructed from steel and measure 180mm wide x 180mm with a 10mm depth and. Flag Pole Hinged Base Plate.
From www.bobsflags.com
Internal Halyard Flagpoles, Fiberglass Flagpoles, Hinged Base Flag Pole Hinged Base Plate Our heavy duty conically shaped fibreglass flagpoles are all windspeed test and manufactured with larger diameter bases and tops for added strength. This is so you can easily clean and maintain your pole yourself and to bring. Hinged base plates are constructed from steel and measure 180mm wide x 180mm with a 10mm depth and four 20mm fixing screw holes.. Flag Pole Hinged Base Plate.
From www.quinnflags.com
50' White Fiberglass Flagpole Internal Halyard Hinged Base Flag Pole Hinged Base Plate We have listed our most popular sized hinged base plate flagpoles. 6 metres in height and comes with a hinged base plate for easy maintenance. Flagpoles can have either an internal or external halyard. Relevant studding is supplied to suit the flagpole height. White powder coated fibreglass flagpole (includes: Why not have a look at our flagpole spare parts and.. Flag Pole Hinged Base Plate.
From flagpolefarm.com
Easy Install What Makes Our Flagpole Kits The Best for Homeowners Flag Pole Hinged Base Plate White powder coated fibreglass flagpole (includes: We have listed our most popular sized hinged base plate flagpoles. Cleat, halyard & white onion shaped finial). 4 m and 5 m flag poles are 100 mm in. White powder coated fibreglass flagpole (includes: External halyard system with galvanised base plate, four galvanised foundation bolts, external halyard rope, cleat and white finial. Our. Flag Pole Hinged Base Plate.
From www.tuffflags.com
25' Standard Commercial HingedBase Flagpole HingedBase Tilting Flag Pole Hinged Base Plate Hinged base plates are constructed from steel and measure 180mm wide x 180mm with a 10mm depth and four 20mm fixing screw holes. This is so you can easily clean and maintain your pole yourself and to bring. White powder coated fibreglass flagpole (includes: 4 m and 5 m flag poles are 100 mm in. External halyard system with galvanised. Flag Pole Hinged Base Plate.
From www.spirafix.com
Spirafix Ground Anchor uses Flag Pole Hinged Base Plate We have listed our most popular sized hinged base plate flagpoles. 6 metres in height and comes with a hinged base plate for easy maintenance. Cleat, halyard & white onion shaped finial). Relevant studding is supplied to suit the flagpole height. External halyard system with galvanised base plate, four galvanised foundation bolts, external halyard rope, cleat and white finial. White. Flag Pole Hinged Base Plate.
From www.tuffflags.com
25' Hurricane Commercial HingedBase Flagpole HingedBase Tilting Flag Pole Hinged Base Plate White powder coated fibreglass flagpole (includes: External halyard system with galvanised base plate, four galvanised foundation bolts, external halyard rope, cleat and white finial. 6 metres in height and comes with a hinged base plate for easy maintenance. Our hinged tilt plates are used with our grp flagpoles and allows you to lower your flagpole due to the hinged plate.. Flag Pole Hinged Base Plate.
From greenfrogsystems.com
Hinged Base Plate Pole Adapter Green Frog Systems Flag Pole Hinged Base Plate Relevant studding is supplied to suit the flagpole height. Flagpoles can have either an internal or external halyard. External halyard system with galvanised base plate, four galvanised foundation bolts, external halyard rope, cleat and white finial. Cleat, halyard & white onion shaped finial). 4 m and 5 m flag poles are 100 mm in. 6 metres in height and comes. Flag Pole Hinged Base Plate.
From zflagstore.com
One Piece External Hinge Base Z Flag Store Flag Pole Hinged Base Plate 6 metres in height and comes with a hinged base plate for easy maintenance. Our hinged tilt plates are used with our grp flagpoles and allows you to lower your flagpole due to the hinged plate. Hinged base plates are constructed from steel and measure 180mm wide x 180mm with a 10mm depth and four 20mm fixing screw holes. White. Flag Pole Hinged Base Plate.
From shakespeareexpress.com
Our Top 14 Best Flag Pole Hinged Base Plate For 2022 You Don’t Wanna Flag Pole Hinged Base Plate White powder coated 10 metre fibreglass flagpole with hinged base plate (includes: White powder coated fibreglass flagpole (includes: This is so you can easily clean and maintain your pole yourself and to bring. Flagpoles can have either an internal or external halyard. 4 m and 5 m flag poles are 100 mm in. Our hinged tilt plates are used with. Flag Pole Hinged Base Plate.
From www.3starinc.com
ROHN 45G Tower Hinged Base Plate BPH45G 3 Star Incorporated Flag Pole Hinged Base Plate 6 metres in height and comes with a hinged base plate for easy maintenance. We have listed our most popular sized hinged base plate flagpoles. External halyard system with galvanised base plate, four galvanised foundation bolts, external halyard rope, cleat and white finial. White powder coated fibreglass flagpole (includes: Cleat, halyard & white onion shaped finial). This is so you. Flag Pole Hinged Base Plate.
From impactcanopy.com
Flag Base Plate for Impact Canopy Pacific Flag Poles Impact Canopies USA Flag Pole Hinged Base Plate We have listed our most popular sized hinged base plate flagpoles. White powder coated 10 metre fibreglass flagpole with hinged base plate (includes: 4 m and 5 m flag poles are 100 mm in. Relevant studding is supplied to suit the flagpole height. We ship to the u.k mainland, isle of wight and some off shore islands. Hinged base plates. Flag Pole Hinged Base Plate.
From greenfrogsystems.com
Hinged Base Plate Pole Adapter Green Frog Systems Flag Pole Hinged Base Plate Relevant studding is supplied to suit the flagpole height. Why not have a look at our flagpole spare parts and. This is so you can easily clean and maintain your pole yourself and to bring. White powder coated fibreglass flagpole (includes: We ship to the u.k mainland, isle of wight and some off shore islands. White powder coated 10 metre. Flag Pole Hinged Base Plate.
From www.flagspolesbanners.com
Large Fiberglass Flag Pole Designs in Motion Flag Pole Hinged Base Plate Why not have a look at our flagpole spare parts and. White powder coated fibreglass flagpole (includes: Flagpoles can have either an internal or external halyard. Cleat, halyard & white onion shaped finial). Relevant studding is supplied to suit the flagpole height. Our hinged tilt plates are used with our grp flagpoles and allows you to lower your flagpole due. Flag Pole Hinged Base Plate.
From haitong-group.en.made-in-china.com
Solar Lighting Circular Hinged Base Plate Flange Tilting Poles China Flag Pole Hinged Base Plate White powder coated 10 metre fibreglass flagpole with hinged base plate (includes: White powder coated fibreglass flagpole (includes: We ship to the u.k mainland, isle of wight and some off shore islands. Flagpoles can have either an internal or external halyard. 4 m and 5 m flag poles are 100 mm in. White powder coated fibreglass flagpole (includes: Cleat, halyard. Flag Pole Hinged Base Plate.