Lead Poisoning Risk Assessment Questionnaire .  lead risk assessment is defined as evaluation of potential for exposures to lead based on questionnaire responses.  lead risk assessment questionnaire although all children should receive blood lead testing at 12 and 24 months of age, providers. Have any of your children or their playmates ever had a high blood lead.  clinicians need to incorporate an exposure history questionnaire into clinical practice.  lead risk assessment questionnaire.  live or spend time with someone whose job or hobbies involve exposure to lead (examples:  your child is at risk of lead poisoning and needs a blood lead test. Etermine the zip code of the.
        
         
         
        from www.clinicaladvisor.com 
     
        
         your child is at risk of lead poisoning and needs a blood lead test.  lead risk assessment questionnaire. Etermine the zip code of the.  lead risk assessment questionnaire although all children should receive blood lead testing at 12 and 24 months of age, providers.  live or spend time with someone whose job or hobbies involve exposure to lead (examples:  clinicians need to incorporate an exposure history questionnaire into clinical practice.  lead risk assessment is defined as evaluation of potential for exposures to lead based on questionnaire responses. Have any of your children or their playmates ever had a high blood lead.
    
    	
            
	
		 
	 
         
    Lead poisoning Current practice guidelines The Clinical Advisor 
    Lead Poisoning Risk Assessment Questionnaire   your child is at risk of lead poisoning and needs a blood lead test.  lead risk assessment questionnaire although all children should receive blood lead testing at 12 and 24 months of age, providers.  clinicians need to incorporate an exposure history questionnaire into clinical practice. Etermine the zip code of the.  live or spend time with someone whose job or hobbies involve exposure to lead (examples: Have any of your children or their playmates ever had a high blood lead.  lead risk assessment is defined as evaluation of potential for exposures to lead based on questionnaire responses.  lead risk assessment questionnaire.  your child is at risk of lead poisoning and needs a blood lead test.
            
	
		 
	 
         
 
    
         
        From www.studypool.com 
                    SOLUTION Lead poisoning Practice Quiz Studypool Lead Poisoning Risk Assessment Questionnaire  Have any of your children or their playmates ever had a high blood lead.  lead risk assessment is defined as evaluation of potential for exposures to lead based on questionnaire responses.  clinicians need to incorporate an exposure history questionnaire into clinical practice.  live or spend time with someone whose job or hobbies involve exposure to lead (examples:. Lead Poisoning Risk Assessment Questionnaire.
     
    
         
        From www.templateroller.com 
                    Illinois PrenatalRisk Evaluation for Lead Exposure Fill Out, Sign Lead Poisoning Risk Assessment Questionnaire   your child is at risk of lead poisoning and needs a blood lead test. Etermine the zip code of the. Have any of your children or their playmates ever had a high blood lead.  live or spend time with someone whose job or hobbies involve exposure to lead (examples:  lead risk assessment questionnaire.  lead risk assessment. Lead Poisoning Risk Assessment Questionnaire.
     
    
         
        From nvclppp.org 
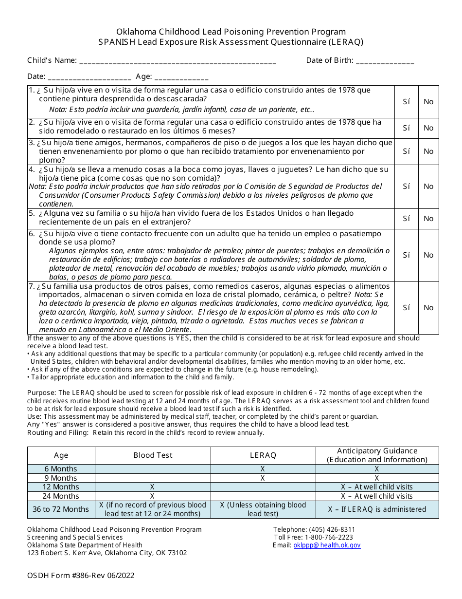
                    Childhood Lead Risk Questionnaire (CLRQ) Nevada Childhood Lead Lead Poisoning Risk Assessment Questionnaire   lead risk assessment questionnaire. Etermine the zip code of the.  lead risk assessment is defined as evaluation of potential for exposures to lead based on questionnaire responses.  clinicians need to incorporate an exposure history questionnaire into clinical practice.  lead risk assessment questionnaire although all children should receive blood lead testing at 12 and 24 months of. Lead Poisoning Risk Assessment Questionnaire.
     
    
         
        From www.slideshare.net 
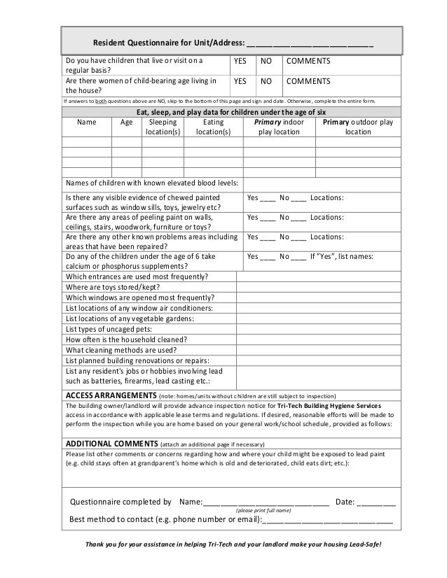
                    Lead Risk Assessment Resident Questionnaire Lead Poisoning Risk Assessment Questionnaire   lead risk assessment is defined as evaluation of potential for exposures to lead based on questionnaire responses. Etermine the zip code of the.  live or spend time with someone whose job or hobbies involve exposure to lead (examples:  lead risk assessment questionnaire.  clinicians need to incorporate an exposure history questionnaire into clinical practice. Have any of. Lead Poisoning Risk Assessment Questionnaire.
     
    
         
        From www.clinicaladvisor.com 
                    Lead poisoning Current practice guidelines The Clinical Advisor Lead Poisoning Risk Assessment Questionnaire   lead risk assessment questionnaire.  lead risk assessment is defined as evaluation of potential for exposures to lead based on questionnaire responses.  clinicians need to incorporate an exposure history questionnaire into clinical practice.  live or spend time with someone whose job or hobbies involve exposure to lead (examples:  lead risk assessment questionnaire although all children should. Lead Poisoning Risk Assessment Questionnaire.
     
    
         
        From www.slideserve.com 
                    PPT Health Enrollment Training August 2010 Matilda elizondo Lead Poisoning Risk Assessment Questionnaire  Have any of your children or their playmates ever had a high blood lead.  lead risk assessment questionnaire. Etermine the zip code of the.  lead risk assessment questionnaire although all children should receive blood lead testing at 12 and 24 months of age, providers.  your child is at risk of lead poisoning and needs a blood lead. Lead Poisoning Risk Assessment Questionnaire.
     
    
         
        From www.pdffiller.com 
                    Fillable Online dhhs ne Lead Exposure Risk Questionnaire for Parents Lead Poisoning Risk Assessment Questionnaire   lead risk assessment questionnaire although all children should receive blood lead testing at 12 and 24 months of age, providers.  clinicians need to incorporate an exposure history questionnaire into clinical practice.  lead risk assessment is defined as evaluation of potential for exposures to lead based on questionnaire responses.  live or spend time with someone whose job. Lead Poisoning Risk Assessment Questionnaire.
     
    
         
        From nvclppp.org 
                    Childhood Lead Risk Questionnaire (CLRQ) Nevada Childhood Lead Lead Poisoning Risk Assessment Questionnaire   live or spend time with someone whose job or hobbies involve exposure to lead (examples:  clinicians need to incorporate an exposure history questionnaire into clinical practice. Have any of your children or their playmates ever had a high blood lead.  lead risk assessment is defined as evaluation of potential for exposures to lead based on questionnaire responses.. Lead Poisoning Risk Assessment Questionnaire.
     
    
         
        From www.templateroller.com 
                    ODH Form 386 Fill Out, Sign Online and Download Printable PDF Lead Poisoning Risk Assessment Questionnaire   your child is at risk of lead poisoning and needs a blood lead test. Have any of your children or their playmates ever had a high blood lead.  lead risk assessment is defined as evaluation of potential for exposures to lead based on questionnaire responses.  live or spend time with someone whose job or hobbies involve exposure. Lead Poisoning Risk Assessment Questionnaire.
     
    
         
        From www.researchgate.net 
                    (PDF) Comparing Lead Poisoning Risk Assessment Methods Census Block Lead Poisoning Risk Assessment Questionnaire   clinicians need to incorporate an exposure history questionnaire into clinical practice. Etermine the zip code of the.  live or spend time with someone whose job or hobbies involve exposure to lead (examples:  lead risk assessment questionnaire although all children should receive blood lead testing at 12 and 24 months of age, providers.  lead risk assessment questionnaire.. Lead Poisoning Risk Assessment Questionnaire.
     
    
         
        From nurseslabs.com 
                    Lead Poisoning Nursing Care Planning and Management Lead Poisoning Risk Assessment Questionnaire   lead risk assessment questionnaire.  lead risk assessment questionnaire although all children should receive blood lead testing at 12 and 24 months of age, providers.  clinicians need to incorporate an exposure history questionnaire into clinical practice. Etermine the zip code of the.  live or spend time with someone whose job or hobbies involve exposure to lead (examples:. Lead Poisoning Risk Assessment Questionnaire.
     
    
         
        From www.templateroller.com 
                    Form IOCI1629 Fill Out, Sign Online and Download Fillable PDF Lead Poisoning Risk Assessment Questionnaire   lead risk assessment questionnaire although all children should receive blood lead testing at 12 and 24 months of age, providers.  live or spend time with someone whose job or hobbies involve exposure to lead (examples:  lead risk assessment is defined as evaluation of potential for exposures to lead based on questionnaire responses. Etermine the zip code of. Lead Poisoning Risk Assessment Questionnaire.
     
    
         
        From dokumen.tips 
                    (PDF) Lead Exposure Risk Assessment Questionnaire for Children Lead Poisoning Risk Assessment Questionnaire  Have any of your children or their playmates ever had a high blood lead.  clinicians need to incorporate an exposure history questionnaire into clinical practice.  lead risk assessment questionnaire.  lead risk assessment is defined as evaluation of potential for exposures to lead based on questionnaire responses.  your child is at risk of lead poisoning and needs. Lead Poisoning Risk Assessment Questionnaire.
     
    
         
        From www.pdffiller.com 
                    Fillable Online Lead Exposure Risk Assessment Questionnaire for Lead Poisoning Risk Assessment Questionnaire  Have any of your children or their playmates ever had a high blood lead.  lead risk assessment questionnaire.  lead risk assessment is defined as evaluation of potential for exposures to lead based on questionnaire responses.  clinicians need to incorporate an exposure history questionnaire into clinical practice.  lead risk assessment questionnaire although all children should receive blood. Lead Poisoning Risk Assessment Questionnaire.
     
    
         
        From dokumen.tips 
                    (PDF) Surveillance Report 2006 dph.illinois.gov · Risk Assessment Lead Poisoning Risk Assessment Questionnaire  Etermine the zip code of the.  your child is at risk of lead poisoning and needs a blood lead test.  live or spend time with someone whose job or hobbies involve exposure to lead (examples:  clinicians need to incorporate an exposure history questionnaire into clinical practice.  lead risk assessment is defined as evaluation of potential for. Lead Poisoning Risk Assessment Questionnaire.
     
    
         
        From www.templateroller.com 
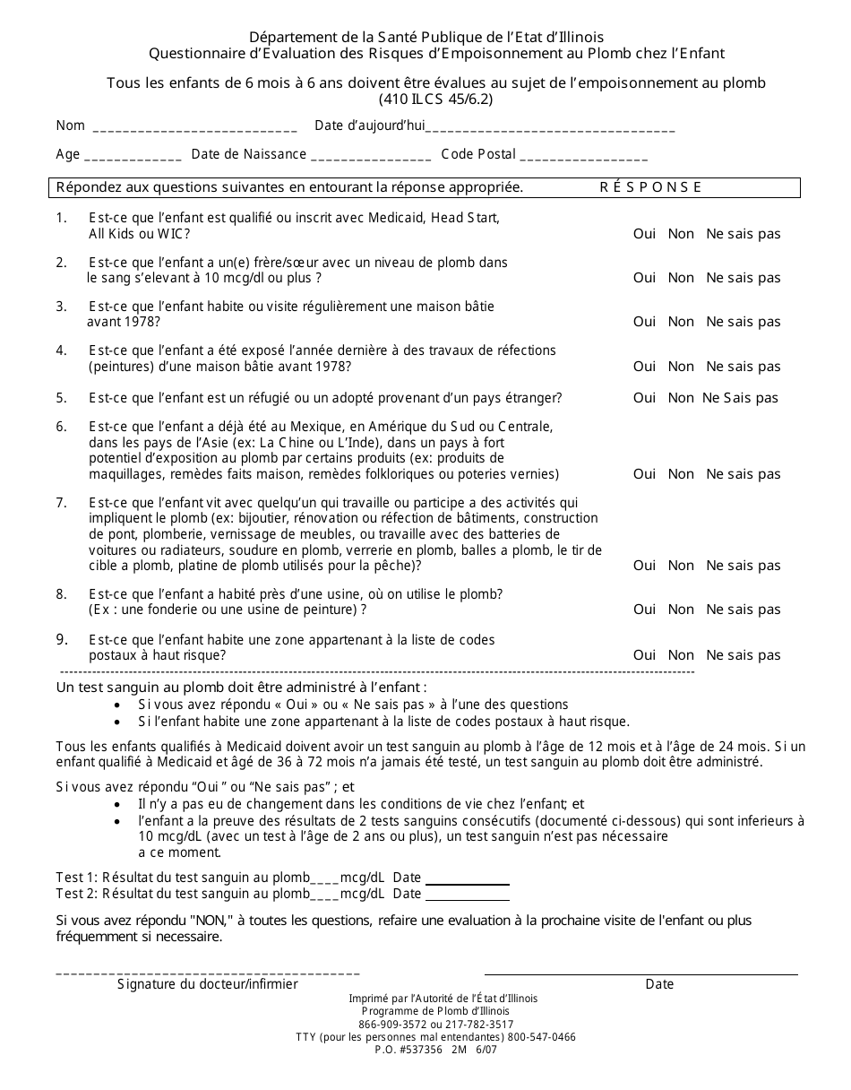
                    Illinois Childhood Lead Risk Questionnaire and Guidelines (French Lead Poisoning Risk Assessment Questionnaire  Etermine the zip code of the. Have any of your children or their playmates ever had a high blood lead.  clinicians need to incorporate an exposure history questionnaire into clinical practice.  your child is at risk of lead poisoning and needs a blood lead test.  lead risk assessment questionnaire although all children should receive blood lead testing. Lead Poisoning Risk Assessment Questionnaire.
     
    
         
        From studylib.net 
                    lead dioxide Risk Assessment Services Lead Poisoning Risk Assessment Questionnaire  Have any of your children or their playmates ever had a high blood lead. Etermine the zip code of the.  lead risk assessment questionnaire.  your child is at risk of lead poisoning and needs a blood lead test.  lead risk assessment is defined as evaluation of potential for exposures to lead based on questionnaire responses.  live. Lead Poisoning Risk Assessment Questionnaire.
     
    
         
        From www.slideserve.com 
                    PPT Lead Poisoning in New Orleans PowerPoint Presentation, free Lead Poisoning Risk Assessment Questionnaire   lead risk assessment is defined as evaluation of potential for exposures to lead based on questionnaire responses.  clinicians need to incorporate an exposure history questionnaire into clinical practice. Have any of your children or their playmates ever had a high blood lead.  your child is at risk of lead poisoning and needs a blood lead test. Etermine. Lead Poisoning Risk Assessment Questionnaire.
     
    
         
        From ccchd.com 
                    Childhood Lead Poisoning Prevent. Promote. Protect. Lead Poisoning Risk Assessment Questionnaire   live or spend time with someone whose job or hobbies involve exposure to lead (examples:  clinicians need to incorporate an exposure history questionnaire into clinical practice. Etermine the zip code of the.  lead risk assessment questionnaire.  lead risk assessment is defined as evaluation of potential for exposures to lead based on questionnaire responses.  lead risk. Lead Poisoning Risk Assessment Questionnaire.
     
    
         
        From www.templateroller.com 
                    Form SFN59322 Download Printable PDF or Fill Online Childhood Lead Lead Poisoning Risk Assessment Questionnaire   clinicians need to incorporate an exposure history questionnaire into clinical practice.  lead risk assessment questionnaire although all children should receive blood lead testing at 12 and 24 months of age, providers.  your child is at risk of lead poisoning and needs a blood lead test. Etermine the zip code of the. Have any of your children or. Lead Poisoning Risk Assessment Questionnaire.
     
    
         
        From lead.org.au 
                    Childhood Lead Poisoning Risk Factor Questionnaire Lead Poisoning Risk Assessment Questionnaire   clinicians need to incorporate an exposure history questionnaire into clinical practice.  your child is at risk of lead poisoning and needs a blood lead test. Etermine the zip code of the.  lead risk assessment is defined as evaluation of potential for exposures to lead based on questionnaire responses.  lead risk assessment questionnaire. Have any of your. Lead Poisoning Risk Assessment Questionnaire.
     
    
         
        From nvclppp.org 
                    Lead Exposure Questionnaire for Pregnant and Lactating Persons Nevada Lead Poisoning Risk Assessment Questionnaire   lead risk assessment questionnaire although all children should receive blood lead testing at 12 and 24 months of age, providers. Have any of your children or their playmates ever had a high blood lead. Etermine the zip code of the.  lead risk assessment questionnaire.  clinicians need to incorporate an exposure history questionnaire into clinical practice.  your. Lead Poisoning Risk Assessment Questionnaire.
     
    
         
        From www.slideserve.com 
                    PPT Lead Poisoning PowerPoint Presentation, free download ID9356797 Lead Poisoning Risk Assessment Questionnaire  Have any of your children or their playmates ever had a high blood lead.  lead risk assessment is defined as evaluation of potential for exposures to lead based on questionnaire responses. Etermine the zip code of the.  clinicians need to incorporate an exposure history questionnaire into clinical practice.  lead risk assessment questionnaire.  lead risk assessment questionnaire. Lead Poisoning Risk Assessment Questionnaire.
     
    
         
        From www.templateroller.com 
                    ODH Form 386 Fill Out, Sign Online and Download Printable PDF Lead Poisoning Risk Assessment Questionnaire   lead risk assessment questionnaire although all children should receive blood lead testing at 12 and 24 months of age, providers.  clinicians need to incorporate an exposure history questionnaire into clinical practice.  lead risk assessment is defined as evaluation of potential for exposures to lead based on questionnaire responses.  lead risk assessment questionnaire.  live or spend. Lead Poisoning Risk Assessment Questionnaire.
     
    
         
        From www.researchgate.net 
                    Geometric blood lead levels according at risk activities of lead Lead Poisoning Risk Assessment Questionnaire  Have any of your children or their playmates ever had a high blood lead.  lead risk assessment is defined as evaluation of potential for exposures to lead based on questionnaire responses.  lead risk assessment questionnaire although all children should receive blood lead testing at 12 and 24 months of age, providers.  live or spend time with someone. Lead Poisoning Risk Assessment Questionnaire.
     
    
         
        From www.researchgate.net 
                    Lead Exposure Screener Questions, Validation Questions, and the Lead Poisoning Risk Assessment Questionnaire   lead risk assessment questionnaire.  live or spend time with someone whose job or hobbies involve exposure to lead (examples: Etermine the zip code of the.  clinicians need to incorporate an exposure history questionnaire into clinical practice.  lead risk assessment is defined as evaluation of potential for exposures to lead based on questionnaire responses. Have any of. Lead Poisoning Risk Assessment Questionnaire.
     
    
         
        From www.pdffiller.com 
                    Fillable Online Iowa Lead Poisoning Risk Questionnaire and Blood Lead Lead Poisoning Risk Assessment Questionnaire  Have any of your children or their playmates ever had a high blood lead.  live or spend time with someone whose job or hobbies involve exposure to lead (examples:  lead risk assessment questionnaire although all children should receive blood lead testing at 12 and 24 months of age, providers.  lead risk assessment is defined as evaluation of. Lead Poisoning Risk Assessment Questionnaire.
     
    
         
        From www.formsbank.com 
                    Questionnaire Physician Lead Advisory Committee Lead Risk Assessment Lead Poisoning Risk Assessment Questionnaire   live or spend time with someone whose job or hobbies involve exposure to lead (examples:  lead risk assessment questionnaire although all children should receive blood lead testing at 12 and 24 months of age, providers. Have any of your children or their playmates ever had a high blood lead.  clinicians need to incorporate an exposure history questionnaire. Lead Poisoning Risk Assessment Questionnaire.
     
    
         
        From www.slideserve.com 
                    PPT Lead Poisoning in New Orleans PowerPoint Presentation, free Lead Poisoning Risk Assessment Questionnaire  Etermine the zip code of the.  clinicians need to incorporate an exposure history questionnaire into clinical practice.  live or spend time with someone whose job or hobbies involve exposure to lead (examples: Have any of your children or their playmates ever had a high blood lead.  lead risk assessment is defined as evaluation of potential for exposures. Lead Poisoning Risk Assessment Questionnaire.
     
    
         
        From www.templateroller.com 
                    ODH Form 386 Fill Out, Sign Online and Download Printable PDF Lead Poisoning Risk Assessment Questionnaire  Etermine the zip code of the.  lead risk assessment is defined as evaluation of potential for exposures to lead based on questionnaire responses.  your child is at risk of lead poisoning and needs a blood lead test. Have any of your children or their playmates ever had a high blood lead.  clinicians need to incorporate an exposure. Lead Poisoning Risk Assessment Questionnaire.
     
    
         
        From www.pdffiller.com 
                    Fillable Online Lead Exposure Risk Assessment Fax Email Print pdfFiller Lead Poisoning Risk Assessment Questionnaire   live or spend time with someone whose job or hobbies involve exposure to lead (examples:  clinicians need to incorporate an exposure history questionnaire into clinical practice. Etermine the zip code of the.  lead risk assessment is defined as evaluation of potential for exposures to lead based on questionnaire responses.  lead risk assessment questionnaire.  lead risk. Lead Poisoning Risk Assessment Questionnaire.
     
    
         
        From www.slideserve.com 
                    PPT Lead Poisoning in New Orleans PowerPoint Presentation, free Lead Poisoning Risk Assessment Questionnaire   lead risk assessment questionnaire.  your child is at risk of lead poisoning and needs a blood lead test. Etermine the zip code of the.  clinicians need to incorporate an exposure history questionnaire into clinical practice.  lead risk assessment is defined as evaluation of potential for exposures to lead based on questionnaire responses.  live or spend. Lead Poisoning Risk Assessment Questionnaire.
     
    
         
        From www.formsbank.com 
                    Form Denr 3958 Lead Risk Assessment Questionnaire Template Nc Lead Poisoning Risk Assessment Questionnaire  Etermine the zip code of the.  clinicians need to incorporate an exposure history questionnaire into clinical practice.  lead risk assessment questionnaire although all children should receive blood lead testing at 12 and 24 months of age, providers.  lead risk assessment questionnaire.  lead risk assessment is defined as evaluation of potential for exposures to lead based on. Lead Poisoning Risk Assessment Questionnaire.
     
    
         
        From www.researchgate.net 
                    Perception of risk factors affecting childhood lead poisoning Variable Lead Poisoning Risk Assessment Questionnaire   lead risk assessment questionnaire.  lead risk assessment is defined as evaluation of potential for exposures to lead based on questionnaire responses.  clinicians need to incorporate an exposure history questionnaire into clinical practice.  lead risk assessment questionnaire although all children should receive blood lead testing at 12 and 24 months of age, providers.  your child is. Lead Poisoning Risk Assessment Questionnaire.
     
    
         
        From doh.sd.gov 
                    Lead Poisoning Risk Assessment South Dakota Department of Health Lead Poisoning Risk Assessment Questionnaire  Etermine the zip code of the.  lead risk assessment is defined as evaluation of potential for exposures to lead based on questionnaire responses. Have any of your children or their playmates ever had a high blood lead.  live or spend time with someone whose job or hobbies involve exposure to lead (examples:  your child is at risk. Lead Poisoning Risk Assessment Questionnaire.