Building Codes Wisconsin . The wisconsin department of safety and professional services (dsps), is responsible for the adoption of. The division of industry services (dis) reviews plans for public buildings and places of employment prior to construction for. An expansive library of wisconsin code adoptions across building, plumbing, electrical, fire, residential, and more. The wisconsin department of safety and professional services (dsps), is responsible for the adoption of wisconsin’s building, fire safety. Upcodes offers a consolidated resource of construction and building code grouped by jurisdiction Wisconsin building code 2015 based on the international building code 2015 (ibc 2015) adoption info.
from www.cleanwisconsin.org
The division of industry services (dis) reviews plans for public buildings and places of employment prior to construction for. Upcodes offers a consolidated resource of construction and building code grouped by jurisdiction The wisconsin department of safety and professional services (dsps), is responsible for the adoption of. An expansive library of wisconsin code adoptions across building, plumbing, electrical, fire, residential, and more. Wisconsin building code 2015 based on the international building code 2015 (ibc 2015) adoption info. The wisconsin department of safety and professional services (dsps), is responsible for the adoption of wisconsin’s building, fire safety.
Why Wisconsin Needs New Building Codes Clean Wisconsin
Building Codes Wisconsin Wisconsin building code 2015 based on the international building code 2015 (ibc 2015) adoption info. An expansive library of wisconsin code adoptions across building, plumbing, electrical, fire, residential, and more. The wisconsin department of safety and professional services (dsps), is responsible for the adoption of wisconsin’s building, fire safety. Wisconsin building code 2015 based on the international building code 2015 (ibc 2015) adoption info. Upcodes offers a consolidated resource of construction and building code grouped by jurisdiction The division of industry services (dis) reviews plans for public buildings and places of employment prior to construction for. The wisconsin department of safety and professional services (dsps), is responsible for the adoption of.
From www.dochub.com
Wisconsin building permit Fill out & sign online DocHub Building Codes Wisconsin The wisconsin department of safety and professional services (dsps), is responsible for the adoption of wisconsin’s building, fire safety. Upcodes offers a consolidated resource of construction and building code grouped by jurisdiction Wisconsin building code 2015 based on the international building code 2015 (ibc 2015) adoption info. The division of industry services (dis) reviews plans for public buildings and places. Building Codes Wisconsin.
From wisconsinwatch.org
Under Scott Walker, Wisconsin slows updates of building and safety Building Codes Wisconsin An expansive library of wisconsin code adoptions across building, plumbing, electrical, fire, residential, and more. The wisconsin department of safety and professional services (dsps), is responsible for the adoption of wisconsin’s building, fire safety. Upcodes offers a consolidated resource of construction and building code grouped by jurisdiction The division of industry services (dis) reviews plans for public buildings and places. Building Codes Wisconsin.
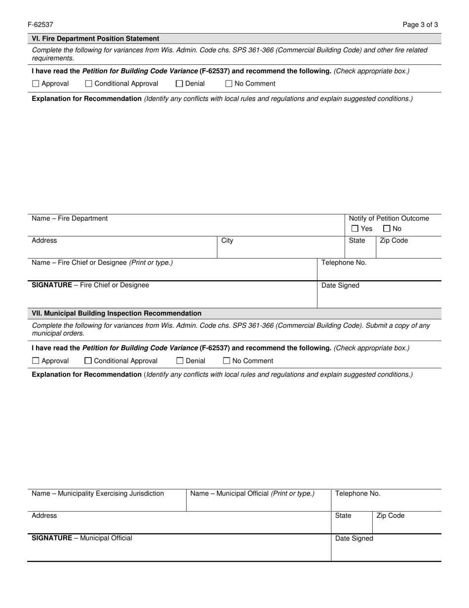
From www.templateroller.com
Form F62537 Fill Out, Sign Online and Download Printable PDF Building Codes Wisconsin Upcodes offers a consolidated resource of construction and building code grouped by jurisdiction The wisconsin department of safety and professional services (dsps), is responsible for the adoption of wisconsin’s building, fire safety. The wisconsin department of safety and professional services (dsps), is responsible for the adoption of. An expansive library of wisconsin code adoptions across building, plumbing, electrical, fire, residential,. Building Codes Wisconsin.
From www.slideserve.com
PPT Getting Smart About Home Modifications PowerPoint Building Codes Wisconsin Wisconsin building code 2015 based on the international building code 2015 (ibc 2015) adoption info. The wisconsin department of safety and professional services (dsps), is responsible for the adoption of wisconsin’s building, fire safety. Upcodes offers a consolidated resource of construction and building code grouped by jurisdiction The division of industry services (dis) reviews plans for public buildings and places. Building Codes Wisconsin.
From pricebuildings.com
Understanding How Building Codes Work A Comprehensive Guide Building Codes Wisconsin The wisconsin department of safety and professional services (dsps), is responsible for the adoption of wisconsin’s building, fire safety. Wisconsin building code 2015 based on the international building code 2015 (ibc 2015) adoption info. The wisconsin department of safety and professional services (dsps), is responsible for the adoption of. The division of industry services (dis) reviews plans for public buildings. Building Codes Wisconsin.
From houseplansblog.dongardner.com
Understanding Local Building Codes Don Gardner Architects Building Codes Wisconsin An expansive library of wisconsin code adoptions across building, plumbing, electrical, fire, residential, and more. Wisconsin building code 2015 based on the international building code 2015 (ibc 2015) adoption info. The division of industry services (dis) reviews plans for public buildings and places of employment prior to construction for. The wisconsin department of safety and professional services (dsps), is responsible. Building Codes Wisconsin.
From wisconsinhomebuild.com
Understanding Wisconsin’s Building Codes Building Codes Wisconsin Wisconsin building code 2015 based on the international building code 2015 (ibc 2015) adoption info. An expansive library of wisconsin code adoptions across building, plumbing, electrical, fire, residential, and more. Upcodes offers a consolidated resource of construction and building code grouped by jurisdiction The division of industry services (dis) reviews plans for public buildings and places of employment prior to. Building Codes Wisconsin.
From www.slideserve.com
PPT Wisconsin Commercial Building Code PowerPoint Presentation, free Building Codes Wisconsin Upcodes offers a consolidated resource of construction and building code grouped by jurisdiction The wisconsin department of safety and professional services (dsps), is responsible for the adoption of wisconsin’s building, fire safety. An expansive library of wisconsin code adoptions across building, plumbing, electrical, fire, residential, and more. The division of industry services (dis) reviews plans for public buildings and places. Building Codes Wisconsin.
From www.slideserve.com
PPT Getting Smart About Home Modifications PowerPoint Building Codes Wisconsin The wisconsin department of safety and professional services (dsps), is responsible for the adoption of wisconsin’s building, fire safety. Upcodes offers a consolidated resource of construction and building code grouped by jurisdiction An expansive library of wisconsin code adoptions across building, plumbing, electrical, fire, residential, and more. Wisconsin building code 2015 based on the international building code 2015 (ibc 2015). Building Codes Wisconsin.
From www.enr.com
DOE Awards 90M to Support Updating U.S. Building Codes Engineering Building Codes Wisconsin An expansive library of wisconsin code adoptions across building, plumbing, electrical, fire, residential, and more. Upcodes offers a consolidated resource of construction and building code grouped by jurisdiction The division of industry services (dis) reviews plans for public buildings and places of employment prior to construction for. Wisconsin building code 2015 based on the international building code 2015 (ibc 2015). Building Codes Wisconsin.
From www.slideserve.com
PPT Wisconsin Commercial Building Code PowerPoint Presentation, free Building Codes Wisconsin An expansive library of wisconsin code adoptions across building, plumbing, electrical, fire, residential, and more. Upcodes offers a consolidated resource of construction and building code grouped by jurisdiction The wisconsin department of safety and professional services (dsps), is responsible for the adoption of. Wisconsin building code 2015 based on the international building code 2015 (ibc 2015) adoption info. The wisconsin. Building Codes Wisconsin.
From www.slideserve.com
PPT Wisconsin Commercial Building Code PowerPoint Presentation, free Building Codes Wisconsin The wisconsin department of safety and professional services (dsps), is responsible for the adoption of wisconsin’s building, fire safety. The division of industry services (dis) reviews plans for public buildings and places of employment prior to construction for. An expansive library of wisconsin code adoptions across building, plumbing, electrical, fire, residential, and more. Upcodes offers a consolidated resource of construction. Building Codes Wisconsin.
From permitplace.com
Wisconsin Building Code Updated May 21, 2024 Building Codes Wisconsin Wisconsin building code 2015 based on the international building code 2015 (ibc 2015) adoption info. The wisconsin department of safety and professional services (dsps), is responsible for the adoption of. The wisconsin department of safety and professional services (dsps), is responsible for the adoption of wisconsin’s building, fire safety. An expansive library of wisconsin code adoptions across building, plumbing, electrical,. Building Codes Wisconsin.
From www.everbluetraining.com
2015 IECC Code A Look at Builders' Options Building Codes Wisconsin The division of industry services (dis) reviews plans for public buildings and places of employment prior to construction for. Wisconsin building code 2015 based on the international building code 2015 (ibc 2015) adoption info. The wisconsin department of safety and professional services (dsps), is responsible for the adoption of wisconsin’s building, fire safety. Upcodes offers a consolidated resource of construction. Building Codes Wisconsin.
From www.slideserve.com
PPT Wisconsin Commercial Building Code PowerPoint Presentation, free Building Codes Wisconsin The wisconsin department of safety and professional services (dsps), is responsible for the adoption of wisconsin’s building, fire safety. An expansive library of wisconsin code adoptions across building, plumbing, electrical, fire, residential, and more. The wisconsin department of safety and professional services (dsps), is responsible for the adoption of. The division of industry services (dis) reviews plans for public buildings. Building Codes Wisconsin.
From www.openbasement.com
Wisconsin Basement Building Codes Openbasement Building Codes Wisconsin The division of industry services (dis) reviews plans for public buildings and places of employment prior to construction for. Upcodes offers a consolidated resource of construction and building code grouped by jurisdiction Wisconsin building code 2015 based on the international building code 2015 (ibc 2015) adoption info. An expansive library of wisconsin code adoptions across building, plumbing, electrical, fire, residential,. Building Codes Wisconsin.
From www.wikiwand.com
List of Wisconsin area codes Wikiwand Building Codes Wisconsin An expansive library of wisconsin code adoptions across building, plumbing, electrical, fire, residential, and more. Upcodes offers a consolidated resource of construction and building code grouped by jurisdiction The wisconsin department of safety and professional services (dsps), is responsible for the adoption of. Wisconsin building code 2015 based on the international building code 2015 (ibc 2015) adoption info. The division. Building Codes Wisconsin.
From www.slideserve.com
PPT Getting Smart About Home Modifications PowerPoint Building Codes Wisconsin The division of industry services (dis) reviews plans for public buildings and places of employment prior to construction for. The wisconsin department of safety and professional services (dsps), is responsible for the adoption of. Wisconsin building code 2015 based on the international building code 2015 (ibc 2015) adoption info. Upcodes offers a consolidated resource of construction and building code grouped. Building Codes Wisconsin.
From www.swinter.com
Getting Ready for the 2024 IECC The Requirements Proposed for Building Codes Wisconsin The wisconsin department of safety and professional services (dsps), is responsible for the adoption of wisconsin’s building, fire safety. The wisconsin department of safety and professional services (dsps), is responsible for the adoption of. The division of industry services (dis) reviews plans for public buildings and places of employment prior to construction for. An expansive library of wisconsin code adoptions. Building Codes Wisconsin.
From www.pdffiller.com
City Of Appleton Building Codes Fill Online, Printable, Fillable Building Codes Wisconsin Upcodes offers a consolidated resource of construction and building code grouped by jurisdiction The division of industry services (dis) reviews plans for public buildings and places of employment prior to construction for. An expansive library of wisconsin code adoptions across building, plumbing, electrical, fire, residential, and more. The wisconsin department of safety and professional services (dsps), is responsible for the. Building Codes Wisconsin.
From www.thebuildingcodeforum.com
Wisconsin debates adopting 2021 codes The Building Code Forum Building Codes Wisconsin The division of industry services (dis) reviews plans for public buildings and places of employment prior to construction for. Upcodes offers a consolidated resource of construction and building code grouped by jurisdiction The wisconsin department of safety and professional services (dsps), is responsible for the adoption of wisconsin’s building, fire safety. An expansive library of wisconsin code adoptions across building,. Building Codes Wisconsin.
From www.slideserve.com
PPT Wisconsin Commercial Building Code PowerPoint Presentation, free Building Codes Wisconsin The division of industry services (dis) reviews plans for public buildings and places of employment prior to construction for. An expansive library of wisconsin code adoptions across building, plumbing, electrical, fire, residential, and more. The wisconsin department of safety and professional services (dsps), is responsible for the adoption of wisconsin’s building, fire safety. Upcodes offers a consolidated resource of construction. Building Codes Wisconsin.
From www.menomonie-wi.gov
Building Inspection Menomonie, WI Building Codes Wisconsin The division of industry services (dis) reviews plans for public buildings and places of employment prior to construction for. The wisconsin department of safety and professional services (dsps), is responsible for the adoption of wisconsin’s building, fire safety. Upcodes offers a consolidated resource of construction and building code grouped by jurisdiction Wisconsin building code 2015 based on the international building. Building Codes Wisconsin.
From www.slideserve.com
PPT Wisconsin Commercial Building Code PowerPoint Presentation, free Building Codes Wisconsin Upcodes offers a consolidated resource of construction and building code grouped by jurisdiction An expansive library of wisconsin code adoptions across building, plumbing, electrical, fire, residential, and more. The wisconsin department of safety and professional services (dsps), is responsible for the adoption of wisconsin’s building, fire safety. The division of industry services (dis) reviews plans for public buildings and places. Building Codes Wisconsin.
From www.slideserve.com
PPT Wisconsin Commercial Building Code PowerPoint Presentation, free Building Codes Wisconsin The division of industry services (dis) reviews plans for public buildings and places of employment prior to construction for. An expansive library of wisconsin code adoptions across building, plumbing, electrical, fire, residential, and more. The wisconsin department of safety and professional services (dsps), is responsible for the adoption of. Wisconsin building code 2015 based on the international building code 2015. Building Codes Wisconsin.
From www.slideserve.com
PPT Wisconsin Commercial Building Code PowerPoint Presentation, free Building Codes Wisconsin Wisconsin building code 2015 based on the international building code 2015 (ibc 2015) adoption info. The wisconsin department of safety and professional services (dsps), is responsible for the adoption of. The wisconsin department of safety and professional services (dsps), is responsible for the adoption of wisconsin’s building, fire safety. Upcodes offers a consolidated resource of construction and building code grouped. Building Codes Wisconsin.
From www.cleanwisconsin.org
Why Wisconsin Needs New Building Codes Clean Wisconsin Building Codes Wisconsin The division of industry services (dis) reviews plans for public buildings and places of employment prior to construction for. An expansive library of wisconsin code adoptions across building, plumbing, electrical, fire, residential, and more. The wisconsin department of safety and professional services (dsps), is responsible for the adoption of. Wisconsin building code 2015 based on the international building code 2015. Building Codes Wisconsin.
From www.slideserve.com
PPT Getting Smart About Home Modifications PowerPoint Building Codes Wisconsin The wisconsin department of safety and professional services (dsps), is responsible for the adoption of. Wisconsin building code 2015 based on the international building code 2015 (ibc 2015) adoption info. The wisconsin department of safety and professional services (dsps), is responsible for the adoption of wisconsin’s building, fire safety. The division of industry services (dis) reviews plans for public buildings. Building Codes Wisconsin.
From www.goodreads.com
Residential Building Codes Illustrated A Guide to Understanding the Building Codes Wisconsin The wisconsin department of safety and professional services (dsps), is responsible for the adoption of wisconsin’s building, fire safety. An expansive library of wisconsin code adoptions across building, plumbing, electrical, fire, residential, and more. The division of industry services (dis) reviews plans for public buildings and places of employment prior to construction for. Upcodes offers a consolidated resource of construction. Building Codes Wisconsin.
From www.slideserve.com
PPT Getting Smart About Home Modifications PowerPoint Building Codes Wisconsin Upcodes offers a consolidated resource of construction and building code grouped by jurisdiction The wisconsin department of safety and professional services (dsps), is responsible for the adoption of. An expansive library of wisconsin code adoptions across building, plumbing, electrical, fire, residential, and more. The wisconsin department of safety and professional services (dsps), is responsible for the adoption of wisconsin’s building,. Building Codes Wisconsin.
From www.nist.gov
Understanding Building Codes NIST Building Codes Wisconsin The wisconsin department of safety and professional services (dsps), is responsible for the adoption of wisconsin’s building, fire safety. Upcodes offers a consolidated resource of construction and building code grouped by jurisdiction Wisconsin building code 2015 based on the international building code 2015 (ibc 2015) adoption info. The division of industry services (dis) reviews plans for public buildings and places. Building Codes Wisconsin.
From www.slideserve.com
PPT Wisconsin Commercial Building Code PowerPoint Presentation, free Building Codes Wisconsin Wisconsin building code 2015 based on the international building code 2015 (ibc 2015) adoption info. The wisconsin department of safety and professional services (dsps), is responsible for the adoption of. An expansive library of wisconsin code adoptions across building, plumbing, electrical, fire, residential, and more. The wisconsin department of safety and professional services (dsps), is responsible for the adoption of. Building Codes Wisconsin.
From www.templateroller.com
Form F62537 Fill Out, Sign Online and Download Printable PDF Building Codes Wisconsin The wisconsin department of safety and professional services (dsps), is responsible for the adoption of. Wisconsin building code 2015 based on the international building code 2015 (ibc 2015) adoption info. The wisconsin department of safety and professional services (dsps), is responsible for the adoption of wisconsin’s building, fire safety. Upcodes offers a consolidated resource of construction and building code grouped. Building Codes Wisconsin.
From www.pinterest.com
THE EVOLUTION OF BUILDING CODES Coding, Infographic, Evolution Building Codes Wisconsin The wisconsin department of safety and professional services (dsps), is responsible for the adoption of wisconsin’s building, fire safety. The division of industry services (dis) reviews plans for public buildings and places of employment prior to construction for. The wisconsin department of safety and professional services (dsps), is responsible for the adoption of. Wisconsin building code 2015 based on the. Building Codes Wisconsin.
From www.slideserve.com
PPT Regulations for the Lodges Chapter 51100 Masonic Code of Building Codes Wisconsin Upcodes offers a consolidated resource of construction and building code grouped by jurisdiction Wisconsin building code 2015 based on the international building code 2015 (ibc 2015) adoption info. The wisconsin department of safety and professional services (dsps), is responsible for the adoption of. The wisconsin department of safety and professional services (dsps), is responsible for the adoption of wisconsin’s building,. Building Codes Wisconsin.