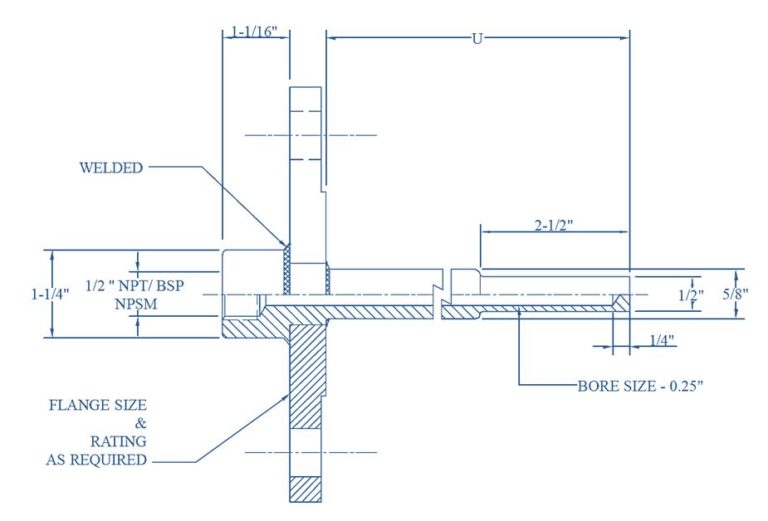
Thermowell Flange Dimensions . Standard flange sizes are 1 ̋, 11⁄2 ̋ and 2 ̋ with. Protection tubes are constructed from a tube, that is closed at the tip by a welded solid tip. Ashcroft ® flanged thermowell isolates and protects a temperature instrument’s sensing element from pressurized, high velocity and corrosive media. 1 ̋, 11⁄2 ̋, 2 ̋. Our thermowells are used in demanding conditions of intense. 1⁄2 npsm, 1⁄2 npt female. Flange size, flange rating and flange face type are mandatory for proper design and installation. Thermowells are manufactured from bar stock. Dimensions in accordance with shell drawing s38.113 and s38.114 (all revisions) design in accordance with shell mesc (materials and. Please see our product part breakdowns online at americanthermowell.com featuring a complete list of available part options specifi c to each type. Our flanged thermowells are designed and manufactured 100% in house. One piece bar stock construction stamped with mill traceable.
from thermonicindia.com
Ashcroft ® flanged thermowell isolates and protects a temperature instrument’s sensing element from pressurized, high velocity and corrosive media. Thermowells are manufactured from bar stock. 1 ̋, 11⁄2 ̋, 2 ̋. Protection tubes are constructed from a tube, that is closed at the tip by a welded solid tip. Flange size, flange rating and flange face type are mandatory for proper design and installation. One piece bar stock construction stamped with mill traceable. Please see our product part breakdowns online at americanthermowell.com featuring a complete list of available part options specifi c to each type. Standard flange sizes are 1 ̋, 11⁄2 ̋ and 2 ̋ with. Our thermowells are used in demanding conditions of intense. Dimensions in accordance with shell drawing s38.113 and s38.114 (all revisions) design in accordance with shell mesc (materials and.
Flanged thermowell thermonicindia
Thermowell Flange Dimensions 1⁄2 npsm, 1⁄2 npt female. Ashcroft ® flanged thermowell isolates and protects a temperature instrument’s sensing element from pressurized, high velocity and corrosive media. 1⁄2 npsm, 1⁄2 npt female. One piece bar stock construction stamped with mill traceable. Thermowells are manufactured from bar stock. Our thermowells are used in demanding conditions of intense. Please see our product part breakdowns online at americanthermowell.com featuring a complete list of available part options specifi c to each type. Standard flange sizes are 1 ̋, 11⁄2 ̋ and 2 ̋ with. Flange size, flange rating and flange face type are mandatory for proper design and installation. Dimensions in accordance with shell drawing s38.113 and s38.114 (all revisions) design in accordance with shell mesc (materials and. Our flanged thermowells are designed and manufactured 100% in house. 1 ̋, 11⁄2 ̋, 2 ̋. Protection tubes are constructed from a tube, that is closed at the tip by a welded solid tip.
From www.thermo-electric.com
Thermowells Thermo Electric Company, Inc. Thermowell Flange Dimensions Thermowells are manufactured from bar stock. Protection tubes are constructed from a tube, that is closed at the tip by a welded solid tip. Standard flange sizes are 1 ̋, 11⁄2 ̋ and 2 ̋ with. Our thermowells are used in demanding conditions of intense. 1 ̋, 11⁄2 ̋, 2 ̋. Please see our product part breakdowns online at americanthermowell.com. Thermowell Flange Dimensions.
From www.mac-weld.com
Flanged Thermowells MacWeld Machining Ltd Thermowell Flange Dimensions Flange size, flange rating and flange face type are mandatory for proper design and installation. Ashcroft ® flanged thermowell isolates and protects a temperature instrument’s sensing element from pressurized, high velocity and corrosive media. Standard flange sizes are 1 ̋, 11⁄2 ̋ and 2 ̋ with. 1⁄2 npsm, 1⁄2 npt female. Protection tubes are constructed from a tube, that is. Thermowell Flange Dimensions.
From www.servotech.co.nz
T21D Flanged Thermowell Servotech Temperature Management by Design Thermowell Flange Dimensions Thermowells are manufactured from bar stock. Our thermowells are used in demanding conditions of intense. Standard flange sizes are 1 ̋, 11⁄2 ̋ and 2 ̋ with. 1⁄2 npsm, 1⁄2 npt female. Please see our product part breakdowns online at americanthermowell.com featuring a complete list of available part options specifi c to each type. One piece bar stock construction stamped. Thermowell Flange Dimensions.
From www.tc.co.uk
Flanged Thermowells TC Ltd. Thermowell Flange Dimensions Please see our product part breakdowns online at americanthermowell.com featuring a complete list of available part options specifi c to each type. Our flanged thermowells are designed and manufactured 100% in house. Standard flange sizes are 1 ̋, 11⁄2 ̋ and 2 ̋ with. Ashcroft ® flanged thermowell isolates and protects a temperature instrument’s sensing element from pressurized, high velocity. Thermowell Flange Dimensions.
From www.directindustry.com
Flange thermowell H&b Sensors stainless steel Thermowell Flange Dimensions 1 ̋, 11⁄2 ̋, 2 ̋. Thermowells are manufactured from bar stock. Standard flange sizes are 1 ̋, 11⁄2 ̋ and 2 ̋ with. 1⁄2 npsm, 1⁄2 npt female. Dimensions in accordance with shell drawing s38.113 and s38.114 (all revisions) design in accordance with shell mesc (materials and. Flange size, flange rating and flange face type are mandatory for proper. Thermowell Flange Dimensions.
From www.noshok.com
50/75/100 Series Thermowells Dimensions Thermowell Flange Dimensions 1 ̋, 11⁄2 ̋, 2 ̋. 1⁄2 npsm, 1⁄2 npt female. Flange size, flange rating and flange face type are mandatory for proper design and installation. Ashcroft ® flanged thermowell isolates and protects a temperature instrument’s sensing element from pressurized, high velocity and corrosive media. Please see our product part breakdowns online at americanthermowell.com featuring a complete list of available. Thermowell Flange Dimensions.
From www.alphacontrols.com
Flanged ThermowellAlpha Controls & Instrumentation Inc. Thermowell Flange Dimensions Our flanged thermowells are designed and manufactured 100% in house. 1 ̋, 11⁄2 ̋, 2 ̋. Please see our product part breakdowns online at americanthermowell.com featuring a complete list of available part options specifi c to each type. Protection tubes are constructed from a tube, that is closed at the tip by a welded solid tip. Dimensions in accordance with. Thermowell Flange Dimensions.
From www.wika.com.eg
Thermowell with flange TW10 WIKA Near East Thermowell Flange Dimensions One piece bar stock construction stamped with mill traceable. Our flanged thermowells are designed and manufactured 100% in house. Standard flange sizes are 1 ̋, 11⁄2 ̋ and 2 ̋ with. 1⁄2 npsm, 1⁄2 npt female. Please see our product part breakdowns online at americanthermowell.com featuring a complete list of available part options specifi c to each type. Flange size,. Thermowell Flange Dimensions.
From www.jms-se.com
Flanged Thermowells JMS Southeast, Inc. Thermowell Flange Dimensions Please see our product part breakdowns online at americanthermowell.com featuring a complete list of available part options specifi c to each type. Ashcroft ® flanged thermowell isolates and protects a temperature instrument’s sensing element from pressurized, high velocity and corrosive media. Flange size, flange rating and flange face type are mandatory for proper design and installation. Dimensions in accordance with. Thermowell Flange Dimensions.
From www.fav.net.in
Thermowell for Sensor Protection, bar stock thermowell Thermowell Flange Dimensions Flange size, flange rating and flange face type are mandatory for proper design and installation. One piece bar stock construction stamped with mill traceable. Thermowells are manufactured from bar stock. Protection tubes are constructed from a tube, that is closed at the tip by a welded solid tip. 1⁄2 npsm, 1⁄2 npt female. Ashcroft ® flanged thermowell isolates and protects. Thermowell Flange Dimensions.
From www.noshok.com
50/75/100 Series Thermowells Dimensions Thermowell Flange Dimensions Flange size, flange rating and flange face type are mandatory for proper design and installation. Our thermowells are used in demanding conditions of intense. Dimensions in accordance with shell drawing s38.113 and s38.114 (all revisions) design in accordance with shell mesc (materials and. One piece bar stock construction stamped with mill traceable. Standard flange sizes are 1 ̋, 11⁄2 ̋. Thermowell Flange Dimensions.
From www.temtronics.com
flangedthermowell Thermowell Flange Dimensions Our flanged thermowells are designed and manufactured 100% in house. Dimensions in accordance with shell drawing s38.113 and s38.114 (all revisions) design in accordance with shell mesc (materials and. 1⁄2 npsm, 1⁄2 npt female. Please see our product part breakdowns online at americanthermowell.com featuring a complete list of available part options specifi c to each type. Standard flange sizes are. Thermowell Flange Dimensions.
From www.tili.eu.org
Thermowell Insertion and Immersion Length Thermowell Flange Dimensions Flange size, flange rating and flange face type are mandatory for proper design and installation. Ashcroft ® flanged thermowell isolates and protects a temperature instrument’s sensing element from pressurized, high velocity and corrosive media. Please see our product part breakdowns online at americanthermowell.com featuring a complete list of available part options specifi c to each type. One piece bar stock. Thermowell Flange Dimensions.
From hbsensors.com
Solid Drilled Stepped Flanged Thermowell H&B Sensors Thermowell Flange Dimensions Please see our product part breakdowns online at americanthermowell.com featuring a complete list of available part options specifi c to each type. Standard flange sizes are 1 ̋, 11⁄2 ̋ and 2 ̋ with. Our thermowells are used in demanding conditions of intense. Ashcroft ® flanged thermowell isolates and protects a temperature instrument’s sensing element from pressurized, high velocity and. Thermowell Flange Dimensions.
From www.status.co.uk
fabricated flanged thermowell for light to medium process conditions Thermowell Flange Dimensions Protection tubes are constructed from a tube, that is closed at the tip by a welded solid tip. Ashcroft ® flanged thermowell isolates and protects a temperature instrument’s sensing element from pressurized, high velocity and corrosive media. 1⁄2 npsm, 1⁄2 npt female. Our flanged thermowells are designed and manufactured 100% in house. One piece bar stock construction stamped with mill. Thermowell Flange Dimensions.
From www.jyinstruments.com
Flanged Thermowell Thermowell Flange Dimensions Our flanged thermowells are designed and manufactured 100% in house. 1 ̋, 11⁄2 ̋, 2 ̋. Thermowells are manufactured from bar stock. Please see our product part breakdowns online at americanthermowell.com featuring a complete list of available part options specifi c to each type. One piece bar stock construction stamped with mill traceable. Ashcroft ® flanged thermowell isolates and protects. Thermowell Flange Dimensions.
From kodiakcontrols.com
Mastering Thermowell Dimensions A Comprehensive Guide to Accurate Temperature Measurement Thermowell Flange Dimensions Please see our product part breakdowns online at americanthermowell.com featuring a complete list of available part options specifi c to each type. Flange size, flange rating and flange face type are mandatory for proper design and installation. Our flanged thermowells are designed and manufactured 100% in house. One piece bar stock construction stamped with mill traceable. Standard flange sizes are. Thermowell Flange Dimensions.
From instrumentationtools.com
What is Thermowell and Howto choose Thermowell Probe Length Thermowell Flange Dimensions Thermowells are manufactured from bar stock. One piece bar stock construction stamped with mill traceable. 1 ̋, 11⁄2 ̋, 2 ̋. Our thermowells are used in demanding conditions of intense. Protection tubes are constructed from a tube, that is closed at the tip by a welded solid tip. Dimensions in accordance with shell drawing s38.113 and s38.114 (all revisions) design. Thermowell Flange Dimensions.
From www.iqsdirectory.com
Thermowells Types, Applications, and Purchasing Considerations Thermowell Flange Dimensions Thermowells are manufactured from bar stock. Flange size, flange rating and flange face type are mandatory for proper design and installation. Our flanged thermowells are designed and manufactured 100% in house. 1⁄2 npsm, 1⁄2 npt female. One piece bar stock construction stamped with mill traceable. Standard flange sizes are 1 ̋, 11⁄2 ̋ and 2 ̋ with. Ashcroft ® flanged. Thermowell Flange Dimensions.
From www.thermo-electra.com
FT 3060 Flanged thermowell tapered Thermo Electra Thermowell Flange Dimensions Protection tubes are constructed from a tube, that is closed at the tip by a welded solid tip. Our flanged thermowells are designed and manufactured 100% in house. 1⁄2 npsm, 1⁄2 npt female. Our thermowells are used in demanding conditions of intense. One piece bar stock construction stamped with mill traceable. Ashcroft ® flanged thermowell isolates and protects a temperature. Thermowell Flange Dimensions.
From www.instpedia.com
Temperature Thermowell Flange Dimensions Ashcroft ® flanged thermowell isolates and protects a temperature instrument’s sensing element from pressurized, high velocity and corrosive media. Flange size, flange rating and flange face type are mandatory for proper design and installation. Our thermowells are used in demanding conditions of intense. Standard flange sizes are 1 ̋, 11⁄2 ̋ and 2 ̋ with. 1 ̋, 11⁄2 ̋, 2. Thermowell Flange Dimensions.
From www.ashcroft.com
Temperature Thermowells Flanged Thermowell Ashcroft Thermowell Flange Dimensions Dimensions in accordance with shell drawing s38.113 and s38.114 (all revisions) design in accordance with shell mesc (materials and. Protection tubes are constructed from a tube, that is closed at the tip by a welded solid tip. One piece bar stock construction stamped with mill traceable. Please see our product part breakdowns online at americanthermowell.com featuring a complete list of. Thermowell Flange Dimensions.
From www.thermocoupleheater.com
Stainless Steel Thermocouple Protection Tube Thermowell With DN25 Flange Thermowell Flange Dimensions One piece bar stock construction stamped with mill traceable. 1 ̋, 11⁄2 ̋, 2 ̋. Ashcroft ® flanged thermowell isolates and protects a temperature instrument’s sensing element from pressurized, high velocity and corrosive media. Standard flange sizes are 1 ̋, 11⁄2 ̋ and 2 ̋ with. 1⁄2 npsm, 1⁄2 npt female. Please see our product part breakdowns online at americanthermowell.com. Thermowell Flange Dimensions.
From www.instpedia.com
Temperature Thermowell Flange Dimensions Protection tubes are constructed from a tube, that is closed at the tip by a welded solid tip. Standard flange sizes are 1 ̋, 11⁄2 ̋ and 2 ̋ with. Thermowells are manufactured from bar stock. Dimensions in accordance with shell drawing s38.113 and s38.114 (all revisions) design in accordance with shell mesc (materials and. Flange size, flange rating and. Thermowell Flange Dimensions.
From instrumentationtools.com
What is Thermowell and Howto choose Thermowell Probe Length Thermowell Flange Dimensions Our flanged thermowells are designed and manufactured 100% in house. Standard flange sizes are 1 ̋, 11⁄2 ̋ and 2 ̋ with. 1⁄2 npsm, 1⁄2 npt female. Flange size, flange rating and flange face type are mandatory for proper design and installation. Please see our product part breakdowns online at americanthermowell.com featuring a complete list of available part options specifi. Thermowell Flange Dimensions.
From thermonicindia.com
Flanged thermowell thermonicindia Thermowell Flange Dimensions Our thermowells are used in demanding conditions of intense. Flange size, flange rating and flange face type are mandatory for proper design and installation. 1 ̋, 11⁄2 ̋, 2 ̋. Our flanged thermowells are designed and manufactured 100% in house. Please see our product part breakdowns online at americanthermowell.com featuring a complete list of available part options specifi c to. Thermowell Flange Dimensions.
From www.iqsdirectory.com
Thermowells Types, Applications, and Purchasing Considerations Thermowell Flange Dimensions Standard flange sizes are 1 ̋, 11⁄2 ̋ and 2 ̋ with. One piece bar stock construction stamped with mill traceable. Flange size, flange rating and flange face type are mandatory for proper design and installation. 1⁄2 npsm, 1⁄2 npt female. Ashcroft ® flanged thermowell isolates and protects a temperature instrument’s sensing element from pressurized, high velocity and corrosive media.. Thermowell Flange Dimensions.
From chat.us3c.com.tw
Printable Flange Size Chart Thermowell Flange Dimensions Thermowells are manufactured from bar stock. Flange size, flange rating and flange face type are mandatory for proper design and installation. 1⁄2 npsm, 1⁄2 npt female. Our flanged thermowells are designed and manufactured 100% in house. Our thermowells are used in demanding conditions of intense. Ashcroft ® flanged thermowell isolates and protects a temperature instrument’s sensing element from pressurized, high. Thermowell Flange Dimensions.
From www.iqsdirectory.com
Thermowells Types, Applications, and Purchasing Considerations Thermowell Flange Dimensions Ashcroft ® flanged thermowell isolates and protects a temperature instrument’s sensing element from pressurized, high velocity and corrosive media. Standard flange sizes are 1 ̋, 11⁄2 ̋ and 2 ̋ with. 1 ̋, 11⁄2 ̋, 2 ̋. Please see our product part breakdowns online at americanthermowell.com featuring a complete list of available part options specifi c to each type. Our. Thermowell Flange Dimensions.
From marlinmfg.com
Socket Weld, Flanged Thermowells Marlin Manufacturing Thermowell Flange Dimensions One piece bar stock construction stamped with mill traceable. Our flanged thermowells are designed and manufactured 100% in house. Standard flange sizes are 1 ̋, 11⁄2 ̋ and 2 ̋ with. Ashcroft ® flanged thermowell isolates and protects a temperature instrument’s sensing element from pressurized, high velocity and corrosive media. Protection tubes are constructed from a tube, that is closed. Thermowell Flange Dimensions.
From www.jms-se.com
Flanged Thermowells JMS Southeast, Inc. Thermowell Flange Dimensions Dimensions in accordance with shell drawing s38.113 and s38.114 (all revisions) design in accordance with shell mesc (materials and. Thermowells are manufactured from bar stock. Please see our product part breakdowns online at americanthermowell.com featuring a complete list of available part options specifi c to each type. 1⁄2 npsm, 1⁄2 npt female. Our flanged thermowells are designed and manufactured 100%. Thermowell Flange Dimensions.
From hbsensors.com
Solid Drilled Flanged Thermowell H&B Sensors Thermowell Flange Dimensions 1⁄2 npsm, 1⁄2 npt female. Standard flange sizes are 1 ̋, 11⁄2 ̋ and 2 ̋ with. Dimensions in accordance with shell drawing s38.113 and s38.114 (all revisions) design in accordance with shell mesc (materials and. Our thermowells are used in demanding conditions of intense. Thermowells are manufactured from bar stock. Please see our product part breakdowns online at americanthermowell.com. Thermowell Flange Dimensions.
From www.pyrosales.com.au
What is a Thermowell and their purpose? Pyrosales Explains Thermowell Flange Dimensions Thermowells are manufactured from bar stock. Please see our product part breakdowns online at americanthermowell.com featuring a complete list of available part options specifi c to each type. Our thermowells are used in demanding conditions of intense. Standard flange sizes are 1 ̋, 11⁄2 ̋ and 2 ̋ with. Dimensions in accordance with shell drawing s38.113 and s38.114 (all revisions). Thermowell Flange Dimensions.
From www.linquip.com
4 Types of Thermowell Comprehensive Overview Linquip Thermowell Flange Dimensions Our thermowells are used in demanding conditions of intense. Protection tubes are constructed from a tube, that is closed at the tip by a welded solid tip. Dimensions in accordance with shell drawing s38.113 and s38.114 (all revisions) design in accordance with shell mesc (materials and. Thermowells are manufactured from bar stock. 1 ̋, 11⁄2 ̋, 2 ̋. Please see. Thermowell Flange Dimensions.
From www.tu-lok.com
Thermowell and SS Flanged Rosemount 114c/ Ashcroft Thermowell Probe Thermowell Flange Dimensions 1 ̋, 11⁄2 ̋, 2 ̋. One piece bar stock construction stamped with mill traceable. Dimensions in accordance with shell drawing s38.113 and s38.114 (all revisions) design in accordance with shell mesc (materials and. Thermowells are manufactured from bar stock. Our thermowells are used in demanding conditions of intense. Flange size, flange rating and flange face type are mandatory for. Thermowell Flange Dimensions.