Unique Land Parcel Identification Number Is Allocated For . Unique land parcel identification number (ulpin) is a unique alphanumeric code assigned to each individual land parcel to provide a standardized. Unique land parcel identification number (ulpin) is part of the digital india land records modernization programme (dilrmp). It is a unique identifier. It would uniquely identify every surveyed parcel.
from crackittoday.com
It is a unique identifier. It would uniquely identify every surveyed parcel. Unique land parcel identification number (ulpin) is a unique alphanumeric code assigned to each individual land parcel to provide a standardized. Unique land parcel identification number (ulpin) is part of the digital india land records modernization programme (dilrmp).
Unique Land Parcel Identification Number (ULPIN) Scheme UPSC Notes
Unique Land Parcel Identification Number Is Allocated For It would uniquely identify every surveyed parcel. Unique land parcel identification number (ulpin) is part of the digital india land records modernization programme (dilrmp). It is a unique identifier. Unique land parcel identification number (ulpin) is a unique alphanumeric code assigned to each individual land parcel to provide a standardized. It would uniquely identify every surveyed parcel.
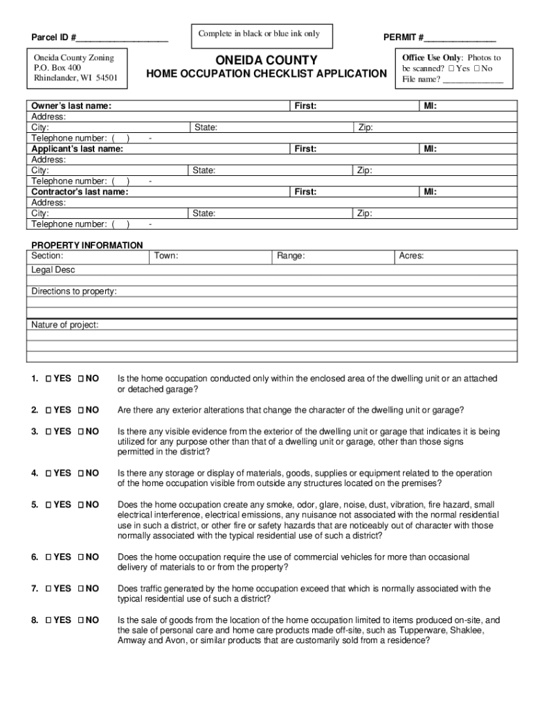
From www.pdffiller.com
Fillable Online Unique Land Parcel Identification Number Fax Email Unique Land Parcel Identification Number Is Allocated For Unique land parcel identification number (ulpin) is part of the digital india land records modernization programme (dilrmp). It would uniquely identify every surveyed parcel. It is a unique identifier. Unique land parcel identification number (ulpin) is a unique alphanumeric code assigned to each individual land parcel to provide a standardized. Unique Land Parcel Identification Number Is Allocated For.
From www.slideserve.com
PPT Unique land parcel identification number ULPIN Scheme PowerPoint Unique Land Parcel Identification Number Is Allocated For It is a unique identifier. It would uniquely identify every surveyed parcel. Unique land parcel identification number (ulpin) is part of the digital india land records modernization programme (dilrmp). Unique land parcel identification number (ulpin) is a unique alphanumeric code assigned to each individual land parcel to provide a standardized. Unique Land Parcel Identification Number Is Allocated For.
From www.uniquenewsonline.com
Unique Land Parcel Identification Number (ULPIN) Scheme It's Status In Unique Land Parcel Identification Number Is Allocated For Unique land parcel identification number (ulpin) is a unique alphanumeric code assigned to each individual land parcel to provide a standardized. It is a unique identifier. It would uniquely identify every surveyed parcel. Unique land parcel identification number (ulpin) is part of the digital india land records modernization programme (dilrmp). Unique Land Parcel Identification Number Is Allocated For.
From economictimes.indiatimes.com
Government to start issuing 14digit unique land parcel identification Unique Land Parcel Identification Number Is Allocated For It is a unique identifier. Unique land parcel identification number (ulpin) is part of the digital india land records modernization programme (dilrmp). Unique land parcel identification number (ulpin) is a unique alphanumeric code assigned to each individual land parcel to provide a standardized. It would uniquely identify every surveyed parcel. Unique Land Parcel Identification Number Is Allocated For.
From www.magicbricks.com
Government to start issuing 14digit unique land parcel identification Unique Land Parcel Identification Number Is Allocated For Unique land parcel identification number (ulpin) is part of the digital india land records modernization programme (dilrmp). It is a unique identifier. It would uniquely identify every surveyed parcel. Unique land parcel identification number (ulpin) is a unique alphanumeric code assigned to each individual land parcel to provide a standardized. Unique Land Parcel Identification Number Is Allocated For.
From www.nic.in
NIC developed Unique Land Parcel Identification Nimber (ULPIN) launched Unique Land Parcel Identification Number Is Allocated For Unique land parcel identification number (ulpin) is a unique alphanumeric code assigned to each individual land parcel to provide a standardized. It is a unique identifier. It would uniquely identify every surveyed parcel. Unique land parcel identification number (ulpin) is part of the digital india land records modernization programme (dilrmp). Unique Land Parcel Identification Number Is Allocated For.
From crackittoday.com
Unique Land Parcel Identification Number (ULPIN) Scheme UPSC Notes Unique Land Parcel Identification Number Is Allocated For It is a unique identifier. It would uniquely identify every surveyed parcel. Unique land parcel identification number (ulpin) is a unique alphanumeric code assigned to each individual land parcel to provide a standardized. Unique land parcel identification number (ulpin) is part of the digital india land records modernization programme (dilrmp). Unique Land Parcel Identification Number Is Allocated For.
From www.pm-yojana.in
Unique Land Parcel Identification Number (ULPIN) Scheme PM Yojana Unique Land Parcel Identification Number Is Allocated For Unique land parcel identification number (ulpin) is a unique alphanumeric code assigned to each individual land parcel to provide a standardized. It would uniquely identify every surveyed parcel. It is a unique identifier. Unique land parcel identification number (ulpin) is part of the digital india land records modernization programme (dilrmp). Unique Land Parcel Identification Number Is Allocated For.
From dokumen.tips
(PDF) The Land Parcel Identification System a useful tool toLand Unique Land Parcel Identification Number Is Allocated For Unique land parcel identification number (ulpin) is a unique alphanumeric code assigned to each individual land parcel to provide a standardized. Unique land parcel identification number (ulpin) is part of the digital india land records modernization programme (dilrmp). It is a unique identifier. It would uniquely identify every surveyed parcel. Unique Land Parcel Identification Number Is Allocated For.
From www.youtube.com
‘The Unique Land Parcel Identification Number (ULPIN)’ To The Point Unique Land Parcel Identification Number Is Allocated For It would uniquely identify every surveyed parcel. Unique land parcel identification number (ulpin) is a unique alphanumeric code assigned to each individual land parcel to provide a standardized. It is a unique identifier. Unique land parcel identification number (ulpin) is part of the digital india land records modernization programme (dilrmp). Unique Land Parcel Identification Number Is Allocated For.
From testbook.com
What is ULPIN Scheme Know Its Objectives, Benefits & Issues Unique Land Parcel Identification Number Is Allocated For Unique land parcel identification number (ulpin) is a unique alphanumeric code assigned to each individual land parcel to provide a standardized. It would uniquely identify every surveyed parcel. It is a unique identifier. Unique land parcel identification number (ulpin) is part of the digital india land records modernization programme (dilrmp). Unique Land Parcel Identification Number Is Allocated For.
From agiindia.com
Unique Land Parcel Identification Number (ULPIN) or BhuAadhar Unique Land Parcel Identification Number Is Allocated For Unique land parcel identification number (ulpin) is a unique alphanumeric code assigned to each individual land parcel to provide a standardized. It is a unique identifier. Unique land parcel identification number (ulpin) is part of the digital india land records modernization programme (dilrmp). It would uniquely identify every surveyed parcel. Unique Land Parcel Identification Number Is Allocated For.
From www.constructionworld.in
Pune to pilot unique land parcel identification number project Unique Land Parcel Identification Number Is Allocated For Unique land parcel identification number (ulpin) is a unique alphanumeric code assigned to each individual land parcel to provide a standardized. It would uniquely identify every surveyed parcel. It is a unique identifier. Unique land parcel identification number (ulpin) is part of the digital india land records modernization programme (dilrmp). Unique Land Parcel Identification Number Is Allocated For.
From www.youtube.com
What is Unique Land Parcel Identification Number? Unique Land Parcel Identification Number Is Allocated For It would uniquely identify every surveyed parcel. It is a unique identifier. Unique land parcel identification number (ulpin) is a unique alphanumeric code assigned to each individual land parcel to provide a standardized. Unique land parcel identification number (ulpin) is part of the digital india land records modernization programme (dilrmp). Unique Land Parcel Identification Number Is Allocated For.
From www.youtube.com
The Unique Land Parcel Identification Number (ULPIN) ULPIN योजना Unique Land Parcel Identification Number Is Allocated For Unique land parcel identification number (ulpin) is a unique alphanumeric code assigned to each individual land parcel to provide a standardized. It is a unique identifier. It would uniquely identify every surveyed parcel. Unique land parcel identification number (ulpin) is part of the digital india land records modernization programme (dilrmp). Unique Land Parcel Identification Number Is Allocated For.
From www.reachladakh.com
Unique Land Parcel Identification Number launched in Ladakh Unique Land Parcel Identification Number Is Allocated For It is a unique identifier. It would uniquely identify every surveyed parcel. Unique land parcel identification number (ulpin) is part of the digital india land records modernization programme (dilrmp). Unique land parcel identification number (ulpin) is a unique alphanumeric code assigned to each individual land parcel to provide a standardized. Unique Land Parcel Identification Number Is Allocated For.
From www.gkseries.com
Unique Land Parcel Identification Number Unique Land Parcel Identification Number Is Allocated For Unique land parcel identification number (ulpin) is a unique alphanumeric code assigned to each individual land parcel to provide a standardized. Unique land parcel identification number (ulpin) is part of the digital india land records modernization programme (dilrmp). It would uniquely identify every surveyed parcel. It is a unique identifier. Unique Land Parcel Identification Number Is Allocated For.
From www.latestgkgs.com
Unique Land Parcel Indentification Number What is ULPIN And its Benefits Unique Land Parcel Identification Number Is Allocated For It is a unique identifier. Unique land parcel identification number (ulpin) is a unique alphanumeric code assigned to each individual land parcel to provide a standardized. It would uniquely identify every surveyed parcel. Unique land parcel identification number (ulpin) is part of the digital india land records modernization programme (dilrmp). Unique Land Parcel Identification Number Is Allocated For.
From drnic.nic.in
NIC developed ‘Unique Land Parcel Identification Number (ULPIN Unique Land Parcel Identification Number Is Allocated For It is a unique identifier. Unique land parcel identification number (ulpin) is a unique alphanumeric code assigned to each individual land parcel to provide a standardized. Unique land parcel identification number (ulpin) is part of the digital india land records modernization programme (dilrmp). It would uniquely identify every surveyed parcel. Unique Land Parcel Identification Number Is Allocated For.
From www.youtube.com
Unique Land Parcel Identification Number (ULPIN) Scheme Government Unique Land Parcel Identification Number Is Allocated For Unique land parcel identification number (ulpin) is a unique alphanumeric code assigned to each individual land parcel to provide a standardized. It would uniquely identify every surveyed parcel. Unique land parcel identification number (ulpin) is part of the digital india land records modernization programme (dilrmp). It is a unique identifier. Unique Land Parcel Identification Number Is Allocated For.
From upsccolorfullnotes.com
What is Unique Land Parcel Identification Number system ULPIN UPSC Unique Land Parcel Identification Number Is Allocated For It would uniquely identify every surveyed parcel. Unique land parcel identification number (ulpin) is part of the digital india land records modernization programme (dilrmp). It is a unique identifier. Unique land parcel identification number (ulpin) is a unique alphanumeric code assigned to each individual land parcel to provide a standardized. Unique Land Parcel Identification Number Is Allocated For.
From www.youtube.com
Unique Land Parcel Identification Number । ULPIN । हिंदी मे ।UPSC Unique Land Parcel Identification Number Is Allocated For It is a unique identifier. Unique land parcel identification number (ulpin) is part of the digital india land records modernization programme (dilrmp). Unique land parcel identification number (ulpin) is a unique alphanumeric code assigned to each individual land parcel to provide a standardized. It would uniquely identify every surveyed parcel. Unique Land Parcel Identification Number Is Allocated For.
From www.gkseries.com
Unique Land Parcel Identification Number Scheme Unique Land Parcel Identification Number Is Allocated For Unique land parcel identification number (ulpin) is a unique alphanumeric code assigned to each individual land parcel to provide a standardized. It is a unique identifier. Unique land parcel identification number (ulpin) is part of the digital india land records modernization programme (dilrmp). It would uniquely identify every surveyed parcel. Unique Land Parcel Identification Number Is Allocated For.
From www.youtube.com
How to determine the parcel number, land lot and section. YouTube Unique Land Parcel Identification Number Is Allocated For It is a unique identifier. Unique land parcel identification number (ulpin) is a unique alphanumeric code assigned to each individual land parcel to provide a standardized. It would uniquely identify every surveyed parcel. Unique land parcel identification number (ulpin) is part of the digital india land records modernization programme (dilrmp). Unique Land Parcel Identification Number Is Allocated For.
From www.nic.in
Unique Land Parcel Identification Number National Informatics Centre Unique Land Parcel Identification Number Is Allocated For Unique land parcel identification number (ulpin) is a unique alphanumeric code assigned to each individual land parcel to provide a standardized. It is a unique identifier. It would uniquely identify every surveyed parcel. Unique land parcel identification number (ulpin) is part of the digital india land records modernization programme (dilrmp). Unique Land Parcel Identification Number Is Allocated For.
From sarkarineethi.com
How to Find a Unique Land Parcel Identification Number in India Unique Land Parcel Identification Number Is Allocated For It would uniquely identify every surveyed parcel. It is a unique identifier. Unique land parcel identification number (ulpin) is a unique alphanumeric code assigned to each individual land parcel to provide a standardized. Unique land parcel identification number (ulpin) is part of the digital india land records modernization programme (dilrmp). Unique Land Parcel Identification Number Is Allocated For.
From www.pratinidhimanthan.com
Unique Land Parcel Identification Number (ULPIN) Scheme Unique Land Parcel Identification Number Is Allocated For It is a unique identifier. Unique land parcel identification number (ulpin) is a unique alphanumeric code assigned to each individual land parcel to provide a standardized. Unique land parcel identification number (ulpin) is part of the digital india land records modernization programme (dilrmp). It would uniquely identify every surveyed parcel. Unique Land Parcel Identification Number Is Allocated For.
From orissadiary.com
Launching of Unique Land Parcel Identification Number (ULPIN) in Odisha Unique Land Parcel Identification Number Is Allocated For Unique land parcel identification number (ulpin) is part of the digital india land records modernization programme (dilrmp). It is a unique identifier. It would uniquely identify every surveyed parcel. Unique land parcel identification number (ulpin) is a unique alphanumeric code assigned to each individual land parcel to provide a standardized. Unique Land Parcel Identification Number Is Allocated For.
From www.youtube.com
Unique Land Parcel Identification Number स्कीम की पूरी जानकारी The Unique Land Parcel Identification Number Is Allocated For It is a unique identifier. Unique land parcel identification number (ulpin) is part of the digital india land records modernization programme (dilrmp). Unique land parcel identification number (ulpin) is a unique alphanumeric code assigned to each individual land parcel to provide a standardized. It would uniquely identify every surveyed parcel. Unique Land Parcel Identification Number Is Allocated For.
From dolr.gov.in
BhuAadhar Unique Land Parcel Identification Number (ULPIN Unique Land Parcel Identification Number Is Allocated For It would uniquely identify every surveyed parcel. It is a unique identifier. Unique land parcel identification number (ulpin) is a unique alphanumeric code assigned to each individual land parcel to provide a standardized. Unique land parcel identification number (ulpin) is part of the digital india land records modernization programme (dilrmp). Unique Land Parcel Identification Number Is Allocated For.
From timesofindia.indiatimes.com
Unique Land Parcel Identification Number Maharashtra Govt departments Unique Land Parcel Identification Number Is Allocated For Unique land parcel identification number (ulpin) is a unique alphanumeric code assigned to each individual land parcel to provide a standardized. It would uniquely identify every surveyed parcel. It is a unique identifier. Unique land parcel identification number (ulpin) is part of the digital india land records modernization programme (dilrmp). Unique Land Parcel Identification Number Is Allocated For.
From zeenews.india.com
Land purchase Unique Land Parcel Identification Number project Unique Land Parcel Identification Number Is Allocated For Unique land parcel identification number (ulpin) is a unique alphanumeric code assigned to each individual land parcel to provide a standardized. It would uniquely identify every surveyed parcel. It is a unique identifier. Unique land parcel identification number (ulpin) is part of the digital india land records modernization programme (dilrmp). Unique Land Parcel Identification Number Is Allocated For.
From www.youtube.com
Unique Land Parcel Identification Number Simplified YouTube Unique Land Parcel Identification Number Is Allocated For It would uniquely identify every surveyed parcel. Unique land parcel identification number (ulpin) is a unique alphanumeric code assigned to each individual land parcel to provide a standardized. It is a unique identifier. Unique land parcel identification number (ulpin) is part of the digital india land records modernization programme (dilrmp). Unique Land Parcel Identification Number Is Allocated For.
From www.nic.in
Hon’ble Lieutenant Governor, Ladakh, launched Unique Land Parcel Unique Land Parcel Identification Number Is Allocated For Unique land parcel identification number (ulpin) is a unique alphanumeric code assigned to each individual land parcel to provide a standardized. It would uniquely identify every surveyed parcel. It is a unique identifier. Unique land parcel identification number (ulpin) is part of the digital india land records modernization programme (dilrmp). Unique Land Parcel Identification Number Is Allocated For.
From upsccolorfullnotes.com
India's 14Digit Unique Land Parcel Identification Number for Land Unique Land Parcel Identification Number Is Allocated For Unique land parcel identification number (ulpin) is part of the digital india land records modernization programme (dilrmp). It is a unique identifier. Unique land parcel identification number (ulpin) is a unique alphanumeric code assigned to each individual land parcel to provide a standardized. It would uniquely identify every surveyed parcel. Unique Land Parcel Identification Number Is Allocated For.