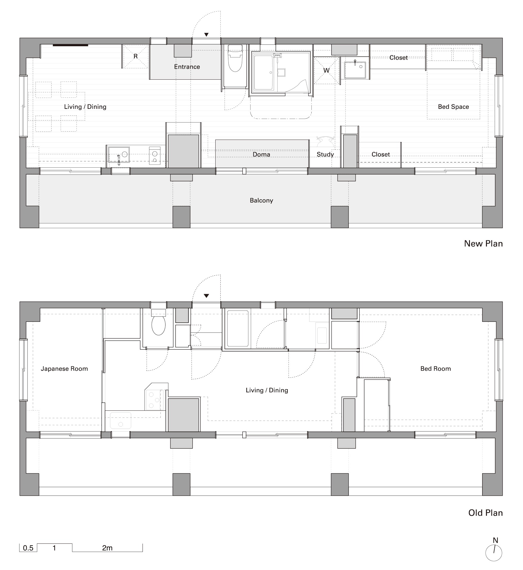
Wing Wall House . Traditional exterior by houston interior designers & decorators creative touch interiors. The multilayer one room by a wing wall this is a. Completed in 2014 in nishitokyo, japan. Image 1 of 11 from gallery of wing wall house / camp design inc + sumosaga fudosan. So far we've covered the portico and the porte cochere and today, we're talking about wing walls. Wooden wing walls divide the interior of this apartment in tokyo, japan, by camp design inc, creating a multilayered space with hidden. Wing walls are essential components of bridge structures. This is a renovation project of one room of an apartment. Design and installation of wing walls are critical in ensuring the safety.
from www.archdaily.com
The multilayer one room by a wing wall this is a. So far we've covered the portico and the porte cochere and today, we're talking about wing walls. Completed in 2014 in nishitokyo, japan. This is a renovation project of one room of an apartment. Image 1 of 11 from gallery of wing wall house / camp design inc + sumosaga fudosan. Design and installation of wing walls are critical in ensuring the safety. Traditional exterior by houston interior designers & decorators creative touch interiors. Wing walls are essential components of bridge structures. Wooden wing walls divide the interior of this apartment in tokyo, japan, by camp design inc, creating a multilayered space with hidden.
Wing Wall House / Camp Design Inc + Sumosaga Fudosan ArchDaily
Wing Wall House So far we've covered the portico and the porte cochere and today, we're talking about wing walls. Wooden wing walls divide the interior of this apartment in tokyo, japan, by camp design inc, creating a multilayered space with hidden. Wing walls are essential components of bridge structures. Design and installation of wing walls are critical in ensuring the safety. Traditional exterior by houston interior designers & decorators creative touch interiors. Image 1 of 11 from gallery of wing wall house / camp design inc + sumosaga fudosan. This is a renovation project of one room of an apartment. Completed in 2014 in nishitokyo, japan. The multilayer one room by a wing wall this is a. So far we've covered the portico and the porte cochere and today, we're talking about wing walls.
From www.faburous.com
747 Wing House Design goes on to show that Modern home design is Wing Wall House The multilayer one room by a wing wall this is a. Design and installation of wing walls are critical in ensuring the safety. Traditional exterior by houston interior designers & decorators creative touch interiors. Completed in 2014 in nishitokyo, japan. Image 1 of 11 from gallery of wing wall house / camp design inc + sumosaga fudosan. Wooden wing walls. Wing Wall House.
From www.pinterest.com
💙 Artisan Signature Homes ・・・ Exposed rafters and a decorative wing Wing Wall House Wooden wing walls divide the interior of this apartment in tokyo, japan, by camp design inc, creating a multilayered space with hidden. Traditional exterior by houston interior designers & decorators creative touch interiors. This is a renovation project of one room of an apartment. Image 1 of 11 from gallery of wing wall house / camp design inc + sumosaga. Wing Wall House.
From salisburylandscaping.ca
Wing Walls Salisbury Landscaping Wing Wall House Wing walls are essential components of bridge structures. This is a renovation project of one room of an apartment. Traditional exterior by houston interior designers & decorators creative touch interiors. Image 1 of 11 from gallery of wing wall house / camp design inc + sumosaga fudosan. The multilayer one room by a wing wall this is a. So far. Wing Wall House.
From architizer.com
Wing Wall House Architizer Wing Wall House Traditional exterior by houston interior designers & decorators creative touch interiors. Image 1 of 11 from gallery of wing wall house / camp design inc + sumosaga fudosan. The multilayer one room by a wing wall this is a. Wing walls are essential components of bridge structures. Wooden wing walls divide the interior of this apartment in tokyo, japan, by. Wing Wall House.
From www.archdaily.com
Gallery of Wing Wall House / Camp Design Inc + Sumosaga Fudosan 9 Wing Wall House Image 1 of 11 from gallery of wing wall house / camp design inc + sumosaga fudosan. Design and installation of wing walls are critical in ensuring the safety. Completed in 2014 in nishitokyo, japan. Wooden wing walls divide the interior of this apartment in tokyo, japan, by camp design inc, creating a multilayered space with hidden. So far we've. Wing Wall House.
From salisburylandscaping.ca
Wing Walls Salisbury Landscaping Wing Wall House Wing walls are essential components of bridge structures. Wooden wing walls divide the interior of this apartment in tokyo, japan, by camp design inc, creating a multilayered space with hidden. Image 1 of 11 from gallery of wing wall house / camp design inc + sumosaga fudosan. This is a renovation project of one room of an apartment. Completed in. Wing Wall House.
From dreamcivil.com
Wing Walls In Bridges Types And Design Considerations Of Wing Walls Wing Wall House Completed in 2014 in nishitokyo, japan. Wing walls are essential components of bridge structures. This is a renovation project of one room of an apartment. Image 1 of 11 from gallery of wing wall house / camp design inc + sumosaga fudosan. The multilayer one room by a wing wall this is a. Wooden wing walls divide the interior of. Wing Wall House.
From enviro-mesh.com
Mousesweet Brook Gabion Wing Walls Enviromesh Wing Wall House So far we've covered the portico and the porte cochere and today, we're talking about wing walls. This is a renovation project of one room of an apartment. Image 1 of 11 from gallery of wing wall house / camp design inc + sumosaga fudosan. Wooden wing walls divide the interior of this apartment in tokyo, japan, by camp design. Wing Wall House.
From www.pinterest.com
Wing wall example Wing wall, Outdoor decor, Wall Wing Wall House This is a renovation project of one room of an apartment. Wing walls are essential components of bridge structures. So far we've covered the portico and the porte cochere and today, we're talking about wing walls. Wooden wing walls divide the interior of this apartment in tokyo, japan, by camp design inc, creating a multilayered space with hidden. Image 1. Wing Wall House.
From architizer.com
Wing Wall House Architizer Wing Wall House Traditional exterior by houston interior designers & decorators creative touch interiors. Image 1 of 11 from gallery of wing wall house / camp design inc + sumosaga fudosan. Wooden wing walls divide the interior of this apartment in tokyo, japan, by camp design inc, creating a multilayered space with hidden. So far we've covered the portico and the porte cochere. Wing Wall House.
From www.faburous.com
747 Wing House in Malibu, California by David Hertz Architects Wing Wall House This is a renovation project of one room of an apartment. Traditional exterior by houston interior designers & decorators creative touch interiors. Wing walls are essential components of bridge structures. Wooden wing walls divide the interior of this apartment in tokyo, japan, by camp design inc, creating a multilayered space with hidden. The multilayer one room by a wing wall. Wing Wall House.
From www.archdaily.com
Wing Wall House / Camp Design Inc + Sumosaga Fudosan ArchDaily Wing Wall House This is a renovation project of one room of an apartment. Design and installation of wing walls are critical in ensuring the safety. The multilayer one room by a wing wall this is a. Completed in 2014 in nishitokyo, japan. Wing walls are essential components of bridge structures. Wooden wing walls divide the interior of this apartment in tokyo, japan,. Wing Wall House.
From architizer.com
Wing Wall House by Camp Design inc. Architizer Wing Wall House So far we've covered the portico and the porte cochere and today, we're talking about wing walls. This is a renovation project of one room of an apartment. Traditional exterior by houston interior designers & decorators creative touch interiors. Image 1 of 11 from gallery of wing wall house / camp design inc + sumosaga fudosan. Wooden wing walls divide. Wing Wall House.
From www.pinterest.com
Brick front home with "wing walls" House styles, Peoria, Mansions Wing Wall House The multilayer one room by a wing wall this is a. Traditional exterior by houston interior designers & decorators creative touch interiors. Wing walls are essential components of bridge structures. So far we've covered the portico and the porte cochere and today, we're talking about wing walls. Design and installation of wing walls are critical in ensuring the safety. Wooden. Wing Wall House.
From www.pinterest.com
Masonry wingwall that matches existing modern household! Outdoor Wing Wall House Image 1 of 11 from gallery of wing wall house / camp design inc + sumosaga fudosan. This is a renovation project of one room of an apartment. Wooden wing walls divide the interior of this apartment in tokyo, japan, by camp design inc, creating a multilayered space with hidden. Traditional exterior by houston interior designers & decorators creative touch. Wing Wall House.
From www.kistner.com
Layout Detail with Precast Wing Wall Kistner Concrete Inc. Wing Wall House Wing walls are essential components of bridge structures. So far we've covered the portico and the porte cochere and today, we're talking about wing walls. The multilayer one room by a wing wall this is a. Image 1 of 11 from gallery of wing wall house / camp design inc + sumosaga fudosan. Traditional exterior by houston interior designers &. Wing Wall House.
From shunshelter.com
Transform Your Living Room With A Beautiful Wing Wall ShunShelter Wing Wall House Design and installation of wing walls are critical in ensuring the safety. Image 1 of 11 from gallery of wing wall house / camp design inc + sumosaga fudosan. The multilayer one room by a wing wall this is a. So far we've covered the portico and the porte cochere and today, we're talking about wing walls. Completed in 2014. Wing Wall House.
From activerain.com
Wing wall? And it needs a railing? Wing Wall House The multilayer one room by a wing wall this is a. Wooden wing walls divide the interior of this apartment in tokyo, japan, by camp design inc, creating a multilayered space with hidden. Wing walls are essential components of bridge structures. Design and installation of wing walls are critical in ensuring the safety. This is a renovation project of one. Wing Wall House.
From architizer.com
Wing Wall House by Camp Design inc. Architizer Wing Wall House This is a renovation project of one room of an apartment. Traditional exterior by houston interior designers & decorators creative touch interiors. Design and installation of wing walls are critical in ensuring the safety. Wooden wing walls divide the interior of this apartment in tokyo, japan, by camp design inc, creating a multilayered space with hidden. So far we've covered. Wing Wall House.
From www.archdaily.com
Wing Wall House / Camp Design Inc + Sumosaga Fudosan ArchDaily Wing Wall House This is a renovation project of one room of an apartment. So far we've covered the portico and the porte cochere and today, we're talking about wing walls. Traditional exterior by houston interior designers & decorators creative touch interiors. Design and installation of wing walls are critical in ensuring the safety. Completed in 2014 in nishitokyo, japan. The multilayer one. Wing Wall House.
From architizer.com
Wing Wall House by Camp Design inc. Architizer Wing Wall House Image 1 of 11 from gallery of wing wall house / camp design inc + sumosaga fudosan. This is a renovation project of one room of an apartment. Design and installation of wing walls are critical in ensuring the safety. Wing walls are essential components of bridge structures. Traditional exterior by houston interior designers & decorators creative touch interiors. So. Wing Wall House.
From www.pinterest.com
Cedar and Black Cladding Wing Walled Gables House Exterior Eco Home Wing Wall House So far we've covered the portico and the porte cochere and today, we're talking about wing walls. Completed in 2014 in nishitokyo, japan. Wing walls are essential components of bridge structures. Image 1 of 11 from gallery of wing wall house / camp design inc + sumosaga fudosan. Design and installation of wing walls are critical in ensuring the safety.. Wing Wall House.
From salisburylandscaping.ca
Wing Walls Salisbury Landscaping Wing Wall House Completed in 2014 in nishitokyo, japan. Design and installation of wing walls are critical in ensuring the safety. This is a renovation project of one room of an apartment. The multilayer one room by a wing wall this is a. Traditional exterior by houston interior designers & decorators creative touch interiors. Image 1 of 11 from gallery of wing wall. Wing Wall House.
From dreamcivil.com
Wing Walls in Bridges Types and Design Considerations of Wing Walls Wing Wall House Design and installation of wing walls are critical in ensuring the safety. Wing walls are essential components of bridge structures. The multilayer one room by a wing wall this is a. Traditional exterior by houston interior designers & decorators creative touch interiors. Completed in 2014 in nishitokyo, japan. So far we've covered the portico and the porte cochere and today,. Wing Wall House.
From salisburylandscaping.ca
Wing Walls Salisbury Landscaping Wing Wall House Image 1 of 11 from gallery of wing wall house / camp design inc + sumosaga fudosan. The multilayer one room by a wing wall this is a. Wing walls are essential components of bridge structures. Traditional exterior by houston interior designers & decorators creative touch interiors. Completed in 2014 in nishitokyo, japan. This is a renovation project of one. Wing Wall House.
From www.pinterest.co.kr
Brandywine, MD close up of new brick entry way Wing Wall House Design and installation of wing walls are critical in ensuring the safety. Completed in 2014 in nishitokyo, japan. Traditional exterior by houston interior designers & decorators creative touch interiors. Wing walls are essential components of bridge structures. This is a renovation project of one room of an apartment. The multilayer one room by a wing wall this is a. Wooden. Wing Wall House.
From www.pinterest.com.au
Exterior Wing Walls House styles, Brick detail, Wing wall Wing Wall House Wing walls are essential components of bridge structures. Wooden wing walls divide the interior of this apartment in tokyo, japan, by camp design inc, creating a multilayered space with hidden. Image 1 of 11 from gallery of wing wall house / camp design inc + sumosaga fudosan. So far we've covered the portico and the porte cochere and today, we're. Wing Wall House.
From architizer.com
Wing Wall House by Camp Design inc. Architizer Wing Wall House Image 1 of 11 from gallery of wing wall house / camp design inc + sumosaga fudosan. So far we've covered the portico and the porte cochere and today, we're talking about wing walls. Wing walls are essential components of bridge structures. Traditional exterior by houston interior designers & decorators creative touch interiors. This is a renovation project of one. Wing Wall House.
From designingdomesticity.blogspot.com
Designing Domesticity Architectural Inspiration Wing Wall Wing Wall House Design and installation of wing walls are critical in ensuring the safety. Image 1 of 11 from gallery of wing wall house / camp design inc + sumosaga fudosan. This is a renovation project of one room of an apartment. Traditional exterior by houston interior designers & decorators creative touch interiors. Completed in 2014 in nishitokyo, japan. Wing walls are. Wing Wall House.
From www.archdaily.com
Gallery of Wing Wall House / Camp Design Inc + Sumosaga Fudosan 8 Wing Wall House Image 1 of 11 from gallery of wing wall house / camp design inc + sumosaga fudosan. The multilayer one room by a wing wall this is a. Design and installation of wing walls are critical in ensuring the safety. So far we've covered the portico and the porte cochere and today, we're talking about wing walls. Completed in 2014. Wing Wall House.
From architizer.com
Wing Wall House by Camp Design inc. Architizer Wing Wall House The multilayer one room by a wing wall this is a. Completed in 2014 in nishitokyo, japan. So far we've covered the portico and the porte cochere and today, we're talking about wing walls. This is a renovation project of one room of an apartment. Wing walls are essential components of bridge structures. Wooden wing walls divide the interior of. Wing Wall House.
From www.faburous.com
747 Wing House in Malibu, California by David Hertz Architects Wing Wall House This is a renovation project of one room of an apartment. Design and installation of wing walls are critical in ensuring the safety. So far we've covered the portico and the porte cochere and today, we're talking about wing walls. Completed in 2014 in nishitokyo, japan. Wooden wing walls divide the interior of this apartment in tokyo, japan, by camp. Wing Wall House.
From architizer.com
Wing Wall House by Camp Design inc. Architizer Wing Wall House Image 1 of 11 from gallery of wing wall house / camp design inc + sumosaga fudosan. The multilayer one room by a wing wall this is a. Traditional exterior by houston interior designers & decorators creative touch interiors. Design and installation of wing walls are critical in ensuring the safety. Completed in 2014 in nishitokyo, japan. Wing walls are. Wing Wall House.
From designingdomesticity.blogspot.com
Designing Domesticity Architectural Inspiration Wing Wall Wing Wall House This is a renovation project of one room of an apartment. Design and installation of wing walls are critical in ensuring the safety. The multilayer one room by a wing wall this is a. Wing walls are essential components of bridge structures. Completed in 2014 in nishitokyo, japan. Traditional exterior by houston interior designers & decorators creative touch interiors. Image. Wing Wall House.
From buildsteel.org
Wing wall support example Wing Wall House Completed in 2014 in nishitokyo, japan. Image 1 of 11 from gallery of wing wall house / camp design inc + sumosaga fudosan. Wing walls are essential components of bridge structures. So far we've covered the portico and the porte cochere and today, we're talking about wing walls. This is a renovation project of one room of an apartment. The. Wing Wall House.