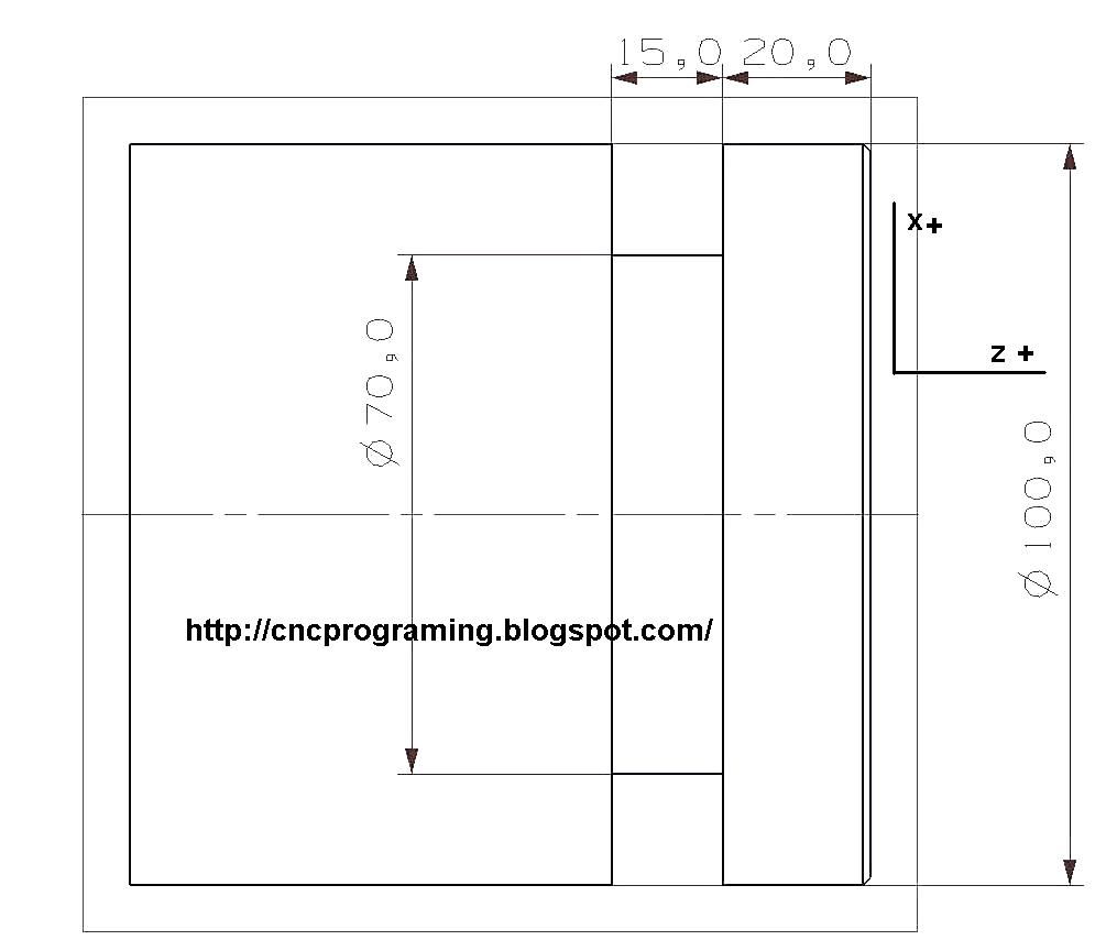
G75 Face Grooving Cycle Example . Here is a cnc programming example of g75 canned cycle grooving. With face grooving operations the tool is fed axially rather than radially toward the end surface of the workpiece. the cnc programming example below shows how face grooving can be machined with the help of g74 peck drilling canned cycle. many controls have a peck option on the g75 grooving code, which is also used for parting off. If the control has a conversational cnc mode,. this video will show you how to use g75 and how to program all the. The fanuc g75 grooving cycle is briefly described in this article fanuc g75 grooving cycle, so here is the cnc program example and some explanation of the cnc program. the g75 canned cycle makes it easy to program multiple grooves on your cnc lathe using pecking.o0001(g75. although it is a simple cnc program example for grooving, but this cnc program can be easily altered to your needs.
from www.youtube.com
The fanuc g75 grooving cycle is briefly described in this article fanuc g75 grooving cycle, so here is the cnc program example and some explanation of the cnc program. If the control has a conversational cnc mode,. this video will show you how to use g75 and how to program all the. the g75 canned cycle makes it easy to program multiple grooves on your cnc lathe using pecking.o0001(g75. With face grooving operations the tool is fed axially rather than radially toward the end surface of the workpiece. although it is a simple cnc program example for grooving, but this cnc program can be easily altered to your needs. the cnc programming example below shows how face grooving can be machined with the help of g74 peck drilling canned cycle. many controls have a peck option on the g75 grooving code, which is also used for parting off. Here is a cnc programming example of g75 canned cycle grooving.
G74 FACE GROOVING CYCLE G74,G76 FACE GROOVING PECK CYCLE
G75 Face Grooving Cycle Example although it is a simple cnc program example for grooving, but this cnc program can be easily altered to your needs. although it is a simple cnc program example for grooving, but this cnc program can be easily altered to your needs. the g75 canned cycle makes it easy to program multiple grooves on your cnc lathe using pecking.o0001(g75. Here is a cnc programming example of g75 canned cycle grooving. this video will show you how to use g75 and how to program all the. With face grooving operations the tool is fed axially rather than radially toward the end surface of the workpiece. The fanuc g75 grooving cycle is briefly described in this article fanuc g75 grooving cycle, so here is the cnc program example and some explanation of the cnc program. the cnc programming example below shows how face grooving can be machined with the help of g74 peck drilling canned cycle. If the control has a conversational cnc mode,. many controls have a peck option on the g75 grooving code, which is also used for parting off.
From www.youtube.com
G 75 GROOVING CYCLE OD पर मैनुअल GROOVE कैसे बनाए G 75 CANNED G75 Face Grooving Cycle Example If the control has a conversational cnc mode,. The fanuc g75 grooving cycle is briefly described in this article fanuc g75 grooving cycle, so here is the cnc program example and some explanation of the cnc program. the g75 canned cycle makes it easy to program multiple grooves on your cnc lathe using pecking.o0001(g75. the cnc programming example. G75 Face Grooving Cycle Example.
From omni-turn.com
G75 Roughing cycle G75 Face Grooving Cycle Example this video will show you how to use g75 and how to program all the. although it is a simple cnc program example for grooving, but this cnc program can be easily altered to your needs. With face grooving operations the tool is fed axially rather than radially toward the end surface of the workpiece. the g75. G75 Face Grooving Cycle Example.
From okumacnc.blogspot.com
Transverse CutOff Cycle G75 Or Diameter Grooving Cycle Online G75 Face Grooving Cycle Example although it is a simple cnc program example for grooving, but this cnc program can be easily altered to your needs. this video will show you how to use g75 and how to program all the. The fanuc g75 grooving cycle is briefly described in this article fanuc g75 grooving cycle, so here is the cnc program example. G75 Face Grooving Cycle Example.
From www.scribd.com
G75 Grooving Cycle PDF G75 Face Grooving Cycle Example this video will show you how to use g75 and how to program all the. although it is a simple cnc program example for grooving, but this cnc program can be easily altered to your needs. With face grooving operations the tool is fed axially rather than radially toward the end surface of the workpiece. the cnc. G75 Face Grooving Cycle Example.
From www.youtube.com
G74 FACE GROOVING CYCLE G74,G76 FACE GROOVING PECK CYCLE G75 Face Grooving Cycle Example the cnc programming example below shows how face grooving can be machined with the help of g74 peck drilling canned cycle. the g75 canned cycle makes it easy to program multiple grooves on your cnc lathe using pecking.o0001(g75. this video will show you how to use g75 and how to program all the. although it is. G75 Face Grooving Cycle Example.
From www.youtube.com
Turning G77 Grooving cycle YouTube G75 Face Grooving Cycle Example If the control has a conversational cnc mode,. the cnc programming example below shows how face grooving can be machined with the help of g74 peck drilling canned cycle. many controls have a peck option on the g75 grooving code, which is also used for parting off. this video will show you how to use g75 and. G75 Face Grooving Cycle Example.
From www.scribd.com
g75 Fanuc Canned Cycle Grooving CNC Program PDF Numerical Control G75 Face Grooving Cycle Example With face grooving operations the tool is fed axially rather than radially toward the end surface of the workpiece. The fanuc g75 grooving cycle is briefly described in this article fanuc g75 grooving cycle, so here is the cnc program example and some explanation of the cnc program. this video will show you how to use g75 and how. G75 Face Grooving Cycle Example.
From www.youtube.com
External में Chamfer & Groov का Program बनाएं G75 Grooving canned G75 Face Grooving Cycle Example With face grooving operations the tool is fed axially rather than radially toward the end surface of the workpiece. Here is a cnc programming example of g75 canned cycle grooving. the g75 canned cycle makes it easy to program multiple grooves on your cnc lathe using pecking.o0001(g75. many controls have a peck option on the g75 grooving code,. G75 Face Grooving Cycle Example.
From www.youtube.com
G75 ID GROOVING CYCLE II CNC PROGRAMING IN MARATHI II YouTube G75 Face Grooving Cycle Example If the control has a conversational cnc mode,. this video will show you how to use g75 and how to program all the. the cnc programming example below shows how face grooving can be machined with the help of g74 peck drilling canned cycle. many controls have a peck option on the g75 grooving code, which is. G75 Face Grooving Cycle Example.
From www.youtube.com
CNC lathe coding 30 G75 Groove Cycle YouTube G75 Face Grooving Cycle Example many controls have a peck option on the g75 grooving code, which is also used for parting off. this video will show you how to use g75 and how to program all the. Here is a cnc programming example of g75 canned cycle grooving. the g75 canned cycle makes it easy to program multiple grooves on your. G75 Face Grooving Cycle Example.
From www.youtube.com
G75 Grooving canned cycle programmingHow to do practical of G75 G75 Face Grooving Cycle Example many controls have a peck option on the g75 grooving code, which is also used for parting off. the cnc programming example below shows how face grooving can be machined with the help of g74 peck drilling canned cycle. this video will show you how to use g75 and how to program all the. the g75. G75 Face Grooving Cycle Example.
From www.youtube.com
G75 GROOVING CYCLE ON THE CNC LATHETIỆN RÃNH CNC YouTube G75 Face Grooving Cycle Example If the control has a conversational cnc mode,. this video will show you how to use g75 and how to program all the. many controls have a peck option on the g75 grooving code, which is also used for parting off. the g75 canned cycle makes it easy to program multiple grooves on your cnc lathe using. G75 Face Grooving Cycle Example.
From www.youtube.com
CNC LATHE GROOVING USING G75 CANNED CYCLE YouTube G75 Face Grooving Cycle Example this video will show you how to use g75 and how to program all the. the g75 canned cycle makes it easy to program multiple grooves on your cnc lathe using pecking.o0001(g75. If the control has a conversational cnc mode,. With face grooving operations the tool is fed axially rather than radially toward the end surface of the. G75 Face Grooving Cycle Example.
From www.pinterest.com
Precision Machining with the G75 Groove Cycle G75 Face Grooving Cycle Example this video will show you how to use g75 and how to program all the. The fanuc g75 grooving cycle is briefly described in this article fanuc g75 grooving cycle, so here is the cnc program example and some explanation of the cnc program. although it is a simple cnc program example for grooving, but this cnc program. G75 Face Grooving Cycle Example.
From www.youtube.com
G75 Peck grooving cycle programming Equal distance grooving canned G75 Face Grooving Cycle Example The fanuc g75 grooving cycle is briefly described in this article fanuc g75 grooving cycle, so here is the cnc program example and some explanation of the cnc program. the g75 canned cycle makes it easy to program multiple grooves on your cnc lathe using pecking.o0001(g75. If the control has a conversational cnc mode,. With face grooving operations the. G75 Face Grooving Cycle Example.
From www.youtube.com
cnc programming G75 grooving cycle in CNC machine YouTube G75 Face Grooving Cycle Example The fanuc g75 grooving cycle is briefly described in this article fanuc g75 grooving cycle, so here is the cnc program example and some explanation of the cnc program. If the control has a conversational cnc mode,. although it is a simple cnc program example for grooving, but this cnc program can be easily altered to your needs. . G75 Face Grooving Cycle Example.
From www.youtube.com
G75 Grooving/Parting off Cycle Grooving Recess Axial Fanuc G75 Face Grooving Cycle Example Here is a cnc programming example of g75 canned cycle grooving. this video will show you how to use g75 and how to program all the. If the control has a conversational cnc mode,. many controls have a peck option on the g75 grooving code, which is also used for parting off. The fanuc g75 grooving cycle is. G75 Face Grooving Cycle Example.
From www.youtube.com
cnc programming.G75 Grooving cycle .Turning YouTube G75 Face Grooving Cycle Example The fanuc g75 grooving cycle is briefly described in this article fanuc g75 grooving cycle, so here is the cnc program example and some explanation of the cnc program. the cnc programming example below shows how face grooving can be machined with the help of g74 peck drilling canned cycle. the g75 canned cycle makes it easy to. G75 Face Grooving Cycle Example.
From www.youtube.com
G75 peck grooving cycle//G75 multiple grooving cycle cnclathe machine G75 Face Grooving Cycle Example Here is a cnc programming example of g75 canned cycle grooving. although it is a simple cnc program example for grooving, but this cnc program can be easily altered to your needs. If the control has a conversational cnc mode,. this video will show you how to use g75 and how to program all the. The fanuc g75. G75 Face Grooving Cycle Example.
From gcodetutor.com
G75 Groove Cycle CNC Lathe GCode tutorial G75 Face Grooving Cycle Example many controls have a peck option on the g75 grooving code, which is also used for parting off. the cnc programming example below shows how face grooving can be machined with the help of g74 peck drilling canned cycle. The fanuc g75 grooving cycle is briefly described in this article fanuc g75 grooving cycle, so here is the. G75 Face Grooving Cycle Example.
From www.youtube.com
G75 Grooving cycle YouTube G75 Face Grooving Cycle Example many controls have a peck option on the g75 grooving code, which is also used for parting off. With face grooving operations the tool is fed axially rather than radially toward the end surface of the workpiece. the cnc programming example below shows how face grooving can be machined with the help of g74 peck drilling canned cycle.. G75 Face Grooving Cycle Example.
From www.vmccam.com
Fanuc G75 grooving cycle example in Hindi G75 Face Grooving Cycle Example although it is a simple cnc program example for grooving, but this cnc program can be easily altered to your needs. the g75 canned cycle makes it easy to program multiple grooves on your cnc lathe using pecking.o0001(g75. Here is a cnc programming example of g75 canned cycle grooving. the cnc programming example below shows how face. G75 Face Grooving Cycle Example.
From www.youtube.com
Grooving Cycle G75 YouTube G75 Face Grooving Cycle Example the g75 canned cycle makes it easy to program multiple grooves on your cnc lathe using pecking.o0001(g75. the cnc programming example below shows how face grooving can be machined with the help of g74 peck drilling canned cycle. If the control has a conversational cnc mode,. many controls have a peck option on the g75 grooving code,. G75 Face Grooving Cycle Example.
From www.youtube.com
CNC programming G75 Grooving cycle in CNC machine YouTube G75 Face Grooving Cycle Example Here is a cnc programming example of g75 canned cycle grooving. although it is a simple cnc program example for grooving, but this cnc program can be easily altered to your needs. If the control has a conversational cnc mode,. the cnc programming example below shows how face grooving can be machined with the help of g74 peck. G75 Face Grooving Cycle Example.
From www.youtube.com
cycle g75 id grooving grooving cycle g75 how to make a groove G75 Face Grooving Cycle Example With face grooving operations the tool is fed axially rather than radially toward the end surface of the workpiece. this video will show you how to use g75 and how to program all the. The fanuc g75 grooving cycle is briefly described in this article fanuc g75 grooving cycle, so here is the cnc program example and some explanation. G75 Face Grooving Cycle Example.
From www.youtube.com
G75 OD GROOVING CANNED CYCLE PRACTICAL How to cut groove in G75 G75 Face Grooving Cycle Example although it is a simple cnc program example for grooving, but this cnc program can be easily altered to your needs. many controls have a peck option on the g75 grooving code, which is also used for parting off. the g75 canned cycle makes it easy to program multiple grooves on your cnc lathe using pecking.o0001(g75. . G75 Face Grooving Cycle Example.
From www.youtube.com
CNC turning programme G75 OD grooving cycle.cnc Fanuc control YouTube G75 Face Grooving Cycle Example this video will show you how to use g75 and how to program all the. although it is a simple cnc program example for grooving, but this cnc program can be easily altered to your needs. the cnc programming example below shows how face grooving can be machined with the help of g74 peck drilling canned cycle.. G75 Face Grooving Cycle Example.
From www.youtube.com
G75 grooving cycle CNC programming in fanuc control explained YouTube G75 Face Grooving Cycle Example With face grooving operations the tool is fed axially rather than radially toward the end surface of the workpiece. this video will show you how to use g75 and how to program all the. the cnc programming example below shows how face grooving can be machined with the help of g74 peck drilling canned cycle. although it. G75 Face Grooving Cycle Example.
From gcodetutor.com
G75 Groove Cycle CNC Lathe GCode tutorial G75 Face Grooving Cycle Example If the control has a conversational cnc mode,. the g75 canned cycle makes it easy to program multiple grooves on your cnc lathe using pecking.o0001(g75. many controls have a peck option on the g75 grooving code, which is also used for parting off. the cnc programming example below shows how face grooving can be machined with the. G75 Face Grooving Cycle Example.
From www.youtube.com
G75 OD GROOVING CYCLE G75, G77 DIAMETER MULTIPLE GROOVING CYCLE G75 Face Grooving Cycle Example The fanuc g75 grooving cycle is briefly described in this article fanuc g75 grooving cycle, so here is the cnc program example and some explanation of the cnc program. although it is a simple cnc program example for grooving, but this cnc program can be easily altered to your needs. the g75 canned cycle makes it easy to. G75 Face Grooving Cycle Example.
From www.youtube.com
G75 Grooving cycle,Einstechdrehen YouTube G75 Face Grooving Cycle Example the g75 canned cycle makes it easy to program multiple grooves on your cnc lathe using pecking.o0001(g75. although it is a simple cnc program example for grooving, but this cnc program can be easily altered to your needs. If the control has a conversational cnc mode,. many controls have a peck option on the g75 grooving code,. G75 Face Grooving Cycle Example.
From www.youtube.com
CNC GROOVING CYCLE! FANUC G75 GROOVING CYCLE! CNC PROGRAMMING! CNC G75 Face Grooving Cycle Example many controls have a peck option on the g75 grooving code, which is also used for parting off. the cnc programming example below shows how face grooving can be machined with the help of g74 peck drilling canned cycle. the g75 canned cycle makes it easy to program multiple grooves on your cnc lathe using pecking.o0001(g75. Here. G75 Face Grooving Cycle Example.
From www.youtube.com
SLIDE 4 RADIAL GROOVING CYCLE G75 YouTube G75 Face Grooving Cycle Example this video will show you how to use g75 and how to program all the. although it is a simple cnc program example for grooving, but this cnc program can be easily altered to your needs. Here is a cnc programming example of g75 canned cycle grooving. If the control has a conversational cnc mode,. With face grooving. G75 Face Grooving Cycle Example.
From www.youtube.com
What is G75 in CNC 💻 The Command Of Grooving Cycle 🔃 simulator G75 Face Grooving Cycle Example this video will show you how to use g75 and how to program all the. The fanuc g75 grooving cycle is briefly described in this article fanuc g75 grooving cycle, so here is the cnc program example and some explanation of the cnc program. If the control has a conversational cnc mode,. With face grooving operations the tool is. G75 Face Grooving Cycle Example.
From www.youtube.com
Hand Programming using G75 Grooving Canned Cycle YouTube G75 Face Grooving Cycle Example If the control has a conversational cnc mode,. Here is a cnc programming example of g75 canned cycle grooving. the cnc programming example below shows how face grooving can be machined with the help of g74 peck drilling canned cycle. the g75 canned cycle makes it easy to program multiple grooves on your cnc lathe using pecking.o0001(g75. . G75 Face Grooving Cycle Example.