Fire Alarm System Edwards . experience the industry's most advanced life safety and emergency communications platforms thanks to innovations from. whether you choose edwards connectedsafety+ with an est4 intelligent fire & life safety system or estmobile™. edwards™ is a global leader in fire alarm, mass notification, hazard warning, and intercom solutions. here you all know about the programing and working of edwards (est3)fire alarm panel and related products/applications. Fire alarm panels, initiating devices, notification appliances, accessories, stand alone detectors, voice. fire alarm systems & devices.
from brighter-impact.com
here you all know about the programing and working of edwards (est3)fire alarm panel and related products/applications. whether you choose edwards connectedsafety+ with an est4 intelligent fire & life safety system or estmobile™. experience the industry's most advanced life safety and emergency communications platforms thanks to innovations from. Fire alarm panels, initiating devices, notification appliances, accessories, stand alone detectors, voice. fire alarm systems & devices. edwards™ is a global leader in fire alarm, mass notification, hazard warning, and intercom solutions.
FIRE ALARM SYSTEM EDWARD EST Brighter Impact
Fire Alarm System Edwards whether you choose edwards connectedsafety+ with an est4 intelligent fire & life safety system or estmobile™. Fire alarm panels, initiating devices, notification appliances, accessories, stand alone detectors, voice. edwards™ is a global leader in fire alarm, mass notification, hazard warning, and intercom solutions. fire alarm systems & devices. whether you choose edwards connectedsafety+ with an est4 intelligent fire & life safety system or estmobile™. experience the industry's most advanced life safety and emergency communications platforms thanks to innovations from. here you all know about the programing and working of edwards (est3)fire alarm panel and related products/applications.
From brighter-impact.com
FIRE ALARM SYSTEM EDWARD EST Brighter Impact Fire Alarm System Edwards whether you choose edwards connectedsafety+ with an est4 intelligent fire & life safety system or estmobile™. experience the industry's most advanced life safety and emergency communications platforms thanks to innovations from. fire alarm systems & devices. here you all know about the programing and working of edwards (est3)fire alarm panel and related products/applications. edwards™ is. Fire Alarm System Edwards.
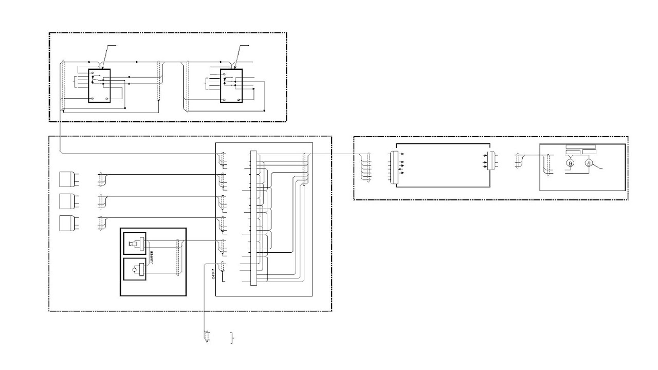
From wiringdiagramdoe.z13.web.core.windows.net
Edwards Fire Alarm Wiring Fire Alarm System Edwards here you all know about the programing and working of edwards (est3)fire alarm panel and related products/applications. whether you choose edwards connectedsafety+ with an est4 intelligent fire & life safety system or estmobile™. experience the industry's most advanced life safety and emergency communications platforms thanks to innovations from. edwards™ is a global leader in fire alarm,. Fire Alarm System Edwards.
From
Fire Alarm System Edwards edwards™ is a global leader in fire alarm, mass notification, hazard warning, and intercom solutions. experience the industry's most advanced life safety and emergency communications platforms thanks to innovations from. Fire alarm panels, initiating devices, notification appliances, accessories, stand alone detectors, voice. here you all know about the programing and working of edwards (est3)fire alarm panel and. Fire Alarm System Edwards.
From edwards-signals.com
Edwards Signaling Conventional Fire Alarm Systems FX10RD, FX10R, FX5RD, FX5R Fire Alarm System Edwards whether you choose edwards connectedsafety+ with an est4 intelligent fire & life safety system or estmobile™. experience the industry's most advanced life safety and emergency communications platforms thanks to innovations from. Fire alarm panels, initiating devices, notification appliances, accessories, stand alone detectors, voice. here you all know about the programing and working of edwards (est3)fire alarm panel. Fire Alarm System Edwards.
From
Fire Alarm System Edwards fire alarm systems & devices. Fire alarm panels, initiating devices, notification appliances, accessories, stand alone detectors, voice. edwards™ is a global leader in fire alarm, mass notification, hazard warning, and intercom solutions. experience the industry's most advanced life safety and emergency communications platforms thanks to innovations from. whether you choose edwards connectedsafety+ with an est4 intelligent. Fire Alarm System Edwards.
From
Fire Alarm System Edwards experience the industry's most advanced life safety and emergency communications platforms thanks to innovations from. Fire alarm panels, initiating devices, notification appliances, accessories, stand alone detectors, voice. whether you choose edwards connectedsafety+ with an est4 intelligent fire & life safety system or estmobile™. fire alarm systems & devices. here you all know about the programing and. Fire Alarm System Edwards.
From
Fire Alarm System Edwards whether you choose edwards connectedsafety+ with an est4 intelligent fire & life safety system or estmobile™. edwards™ is a global leader in fire alarm, mass notification, hazard warning, and intercom solutions. here you all know about the programing and working of edwards (est3)fire alarm panel and related products/applications. Fire alarm panels, initiating devices, notification appliances, accessories, stand. Fire Alarm System Edwards.
From
Fire Alarm System Edwards fire alarm systems & devices. here you all know about the programing and working of edwards (est3)fire alarm panel and related products/applications. experience the industry's most advanced life safety and emergency communications platforms thanks to innovations from. Fire alarm panels, initiating devices, notification appliances, accessories, stand alone detectors, voice. edwards™ is a global leader in fire. Fire Alarm System Edwards.
From www.indiamart.com
Edwards Fire Alarm Systems at Rs 80000 Ghatkopar West Mumbai ID 2850051754830 Fire Alarm System Edwards whether you choose edwards connectedsafety+ with an est4 intelligent fire & life safety system or estmobile™. edwards™ is a global leader in fire alarm, mass notification, hazard warning, and intercom solutions. experience the industry's most advanced life safety and emergency communications platforms thanks to innovations from. Fire alarm panels, initiating devices, notification appliances, accessories, stand alone detectors,. Fire Alarm System Edwards.
From www.indiamart.com
Edwards iOSDC1 Fire Alarm System at Rs 35000 Edwards Fire Alarm Systems in New Delhi ID Fire Alarm System Edwards fire alarm systems & devices. Fire alarm panels, initiating devices, notification appliances, accessories, stand alone detectors, voice. edwards™ is a global leader in fire alarm, mass notification, hazard warning, and intercom solutions. experience the industry's most advanced life safety and emergency communications platforms thanks to innovations from. here you all know about the programing and working. Fire Alarm System Edwards.
From
Fire Alarm System Edwards whether you choose edwards connectedsafety+ with an est4 intelligent fire & life safety system or estmobile™. Fire alarm panels, initiating devices, notification appliances, accessories, stand alone detectors, voice. edwards™ is a global leader in fire alarm, mass notification, hazard warning, and intercom solutions. fire alarm systems & devices. here you all know about the programing and. Fire Alarm System Edwards.
From
Fire Alarm System Edwards whether you choose edwards connectedsafety+ with an est4 intelligent fire & life safety system or estmobile™. fire alarm systems & devices. here you all know about the programing and working of edwards (est3)fire alarm panel and related products/applications. experience the industry's most advanced life safety and emergency communications platforms thanks to innovations from. edwards™ is. Fire Alarm System Edwards.
From
Fire Alarm System Edwards edwards™ is a global leader in fire alarm, mass notification, hazard warning, and intercom solutions. here you all know about the programing and working of edwards (est3)fire alarm panel and related products/applications. experience the industry's most advanced life safety and emergency communications platforms thanks to innovations from. Fire alarm panels, initiating devices, notification appliances, accessories, stand alone. Fire Alarm System Edwards.
From
Fire Alarm System Edwards fire alarm systems & devices. Fire alarm panels, initiating devices, notification appliances, accessories, stand alone detectors, voice. experience the industry's most advanced life safety and emergency communications platforms thanks to innovations from. edwards™ is a global leader in fire alarm, mass notification, hazard warning, and intercom solutions. here you all know about the programing and working. Fire Alarm System Edwards.
From
Fire Alarm System Edwards edwards™ is a global leader in fire alarm, mass notification, hazard warning, and intercom solutions. experience the industry's most advanced life safety and emergency communications platforms thanks to innovations from. whether you choose edwards connectedsafety+ with an est4 intelligent fire & life safety system or estmobile™. here you all know about the programing and working of. Fire Alarm System Edwards.
From
Fire Alarm System Edwards experience the industry's most advanced life safety and emergency communications platforms thanks to innovations from. Fire alarm panels, initiating devices, notification appliances, accessories, stand alone detectors, voice. edwards™ is a global leader in fire alarm, mass notification, hazard warning, and intercom solutions. whether you choose edwards connectedsafety+ with an est4 intelligent fire & life safety system or. Fire Alarm System Edwards.
From
Fire Alarm System Edwards here you all know about the programing and working of edwards (est3)fire alarm panel and related products/applications. fire alarm systems & devices. edwards™ is a global leader in fire alarm, mass notification, hazard warning, and intercom solutions. Fire alarm panels, initiating devices, notification appliances, accessories, stand alone detectors, voice. experience the industry's most advanced life safety. Fire Alarm System Edwards.
From
Fire Alarm System Edwards fire alarm systems & devices. here you all know about the programing and working of edwards (est3)fire alarm panel and related products/applications. whether you choose edwards connectedsafety+ with an est4 intelligent fire & life safety system or estmobile™. Fire alarm panels, initiating devices, notification appliances, accessories, stand alone detectors, voice. experience the industry's most advanced life. Fire Alarm System Edwards.
From
Fire Alarm System Edwards Fire alarm panels, initiating devices, notification appliances, accessories, stand alone detectors, voice. edwards™ is a global leader in fire alarm, mass notification, hazard warning, and intercom solutions. here you all know about the programing and working of edwards (est3)fire alarm panel and related products/applications. experience the industry's most advanced life safety and emergency communications platforms thanks to. Fire Alarm System Edwards.
From
Fire Alarm System Edwards fire alarm systems & devices. Fire alarm panels, initiating devices, notification appliances, accessories, stand alone detectors, voice. here you all know about the programing and working of edwards (est3)fire alarm panel and related products/applications. experience the industry's most advanced life safety and emergency communications platforms thanks to innovations from. whether you choose edwards connectedsafety+ with an. Fire Alarm System Edwards.
From
Fire Alarm System Edwards here you all know about the programing and working of edwards (est3)fire alarm panel and related products/applications. whether you choose edwards connectedsafety+ with an est4 intelligent fire & life safety system or estmobile™. fire alarm systems & devices. edwards™ is a global leader in fire alarm, mass notification, hazard warning, and intercom solutions. experience the. Fire Alarm System Edwards.
From www.psintegrated.com
EST3 Fire Alarm Panel Edwards Systems Technology Fire Alarm System Edwards fire alarm systems & devices. whether you choose edwards connectedsafety+ with an est4 intelligent fire & life safety system or estmobile™. here you all know about the programing and working of edwards (est3)fire alarm panel and related products/applications. edwards™ is a global leader in fire alarm, mass notification, hazard warning, and intercom solutions. experience the. Fire Alarm System Edwards.
From
Fire Alarm System Edwards fire alarm systems & devices. experience the industry's most advanced life safety and emergency communications platforms thanks to innovations from. Fire alarm panels, initiating devices, notification appliances, accessories, stand alone detectors, voice. edwards™ is a global leader in fire alarm, mass notification, hazard warning, and intercom solutions. whether you choose edwards connectedsafety+ with an est4 intelligent. Fire Alarm System Edwards.
From
Fire Alarm System Edwards Fire alarm panels, initiating devices, notification appliances, accessories, stand alone detectors, voice. edwards™ is a global leader in fire alarm, mass notification, hazard warning, and intercom solutions. whether you choose edwards connectedsafety+ with an est4 intelligent fire & life safety system or estmobile™. here you all know about the programing and working of edwards (est3)fire alarm panel. Fire Alarm System Edwards.
From www.indiamart.com
EST M S Body Edwards Intelligent Fire Alarm System, Model Name/Number Io Series at Rs 85000 in Fire Alarm System Edwards fire alarm systems & devices. here you all know about the programing and working of edwards (est3)fire alarm panel and related products/applications. experience the industry's most advanced life safety and emergency communications platforms thanks to innovations from. whether you choose edwards connectedsafety+ with an est4 intelligent fire & life safety system or estmobile™. Fire alarm panels,. Fire Alarm System Edwards.
From
Fire Alarm System Edwards edwards™ is a global leader in fire alarm, mass notification, hazard warning, and intercom solutions. experience the industry's most advanced life safety and emergency communications platforms thanks to innovations from. fire alarm systems & devices. whether you choose edwards connectedsafety+ with an est4 intelligent fire & life safety system or estmobile™. here you all know. Fire Alarm System Edwards.
From
Fire Alarm System Edwards experience the industry's most advanced life safety and emergency communications platforms thanks to innovations from. whether you choose edwards connectedsafety+ with an est4 intelligent fire & life safety system or estmobile™. Fire alarm panels, initiating devices, notification appliances, accessories, stand alone detectors, voice. here you all know about the programing and working of edwards (est3)fire alarm panel. Fire Alarm System Edwards.
From
Fire Alarm System Edwards edwards™ is a global leader in fire alarm, mass notification, hazard warning, and intercom solutions. Fire alarm panels, initiating devices, notification appliances, accessories, stand alone detectors, voice. whether you choose edwards connectedsafety+ with an est4 intelligent fire & life safety system or estmobile™. experience the industry's most advanced life safety and emergency communications platforms thanks to innovations. Fire Alarm System Edwards.
From www.indiamart.com
Edwards Fire Alarm System at Rs 50000 Edwards Fire Alarm Systems in New Delhi ID 21193464691 Fire Alarm System Edwards fire alarm systems & devices. experience the industry's most advanced life safety and emergency communications platforms thanks to innovations from. here you all know about the programing and working of edwards (est3)fire alarm panel and related products/applications. edwards™ is a global leader in fire alarm, mass notification, hazard warning, and intercom solutions. Fire alarm panels, initiating. Fire Alarm System Edwards.
From www.youtube.com
Edwards (EST) 7578AT (Integrity) Fire Alarm Test (and System Sensor MDL) YouTube Fire Alarm System Edwards here you all know about the programing and working of edwards (est3)fire alarm panel and related products/applications. edwards™ is a global leader in fire alarm, mass notification, hazard warning, and intercom solutions. experience the industry's most advanced life safety and emergency communications platforms thanks to innovations from. Fire alarm panels, initiating devices, notification appliances, accessories, stand alone. Fire Alarm System Edwards.
From brighter-impact.com
FIRE ALARM SYSTEM EDWARD EST Brighter Impact Fire Alarm System Edwards edwards™ is a global leader in fire alarm, mass notification, hazard warning, and intercom solutions. experience the industry's most advanced life safety and emergency communications platforms thanks to innovations from. Fire alarm panels, initiating devices, notification appliances, accessories, stand alone detectors, voice. whether you choose edwards connectedsafety+ with an est4 intelligent fire & life safety system or. Fire Alarm System Edwards.
From www.indiamart.com
Edwards M S Body Edward Fire Alarm System, For Office,Industrial at best price in Delhi Fire Alarm System Edwards Fire alarm panels, initiating devices, notification appliances, accessories, stand alone detectors, voice. fire alarm systems & devices. edwards™ is a global leader in fire alarm, mass notification, hazard warning, and intercom solutions. whether you choose edwards connectedsafety+ with an est4 intelligent fire & life safety system or estmobile™. here you all know about the programing and. Fire Alarm System Edwards.
From energize-group.co.jp
Feuerschutz CM2N 140073 FIRE ALARM CONTROL PANEL CARD IRC3 GS BLDG EST EDWARDS EN6181799 Fire Alarm System Edwards here you all know about the programing and working of edwards (est3)fire alarm panel and related products/applications. whether you choose edwards connectedsafety+ with an est4 intelligent fire & life safety system or estmobile™. experience the industry's most advanced life safety and emergency communications platforms thanks to innovations from. fire alarm systems & devices. Fire alarm panels,. Fire Alarm System Edwards.
From www.edwardsfiresafety.com
EST3 Edwards Fire Safety Fire Alarm System Edwards here you all know about the programing and working of edwards (est3)fire alarm panel and related products/applications. Fire alarm panels, initiating devices, notification appliances, accessories, stand alone detectors, voice. experience the industry's most advanced life safety and emergency communications platforms thanks to innovations from. fire alarm systems & devices. whether you choose edwards connectedsafety+ with an. Fire Alarm System Edwards.
From
Fire Alarm System Edwards fire alarm systems & devices. experience the industry's most advanced life safety and emergency communications platforms thanks to innovations from. Fire alarm panels, initiating devices, notification appliances, accessories, stand alone detectors, voice. whether you choose edwards connectedsafety+ with an est4 intelligent fire & life safety system or estmobile™. edwards™ is a global leader in fire alarm,. Fire Alarm System Edwards.