What Is A Wh Floor Plan . In other contexts, “wh” can signify a warehouse, web hosting,. Understanding the location of the “wh” symbol can enhance. Floor plan symbols help visualize a building's layout and components. The floorplan would also show other essentials like plumbing, electrical and hvac systems. A standard floor plan will show you structural elements like doors, walls, windows and stairs. Floor plan symbols are a set of standardized icons initially adopted by the american national standards institute and the. The blueprint symbols used are general outlines of what the actual object is. Knowing where your water heater is. What is a floor plan symbol? It’s an important element to identify when reviewing or creating a floor plan. When you see 'wh' marked on a floor plan, it’s typically accompanied by dimensions or a reference to plumbing lines,. They represent elements such as doors, stairs, and furniture. Wh” on a floor plan typically refers to “water heater. Each symbol is designed to be universally. The “wh” symbol on a floor plan typically stands for “water heater”, an essential part of any home’s plumbing system.
from www.cubi.casa
Knowing where your water heater is. Each symbol is designed to be universally. It’s an important element to identify when reviewing or creating a floor plan. What is a floor plan symbol? Floor plan symbols are a set of standardized icons initially adopted by the american national standards institute and the. They represent elements such as doors, stairs, and furniture. The “wh” symbol on a floor plan typically stands for “water heater”, an essential part of any home’s plumbing system. Floor plan symbols help visualize a building's layout and components. A standard floor plan will show you structural elements like doors, walls, windows and stairs. Wh” on a floor plan typically refers to “water heater.
How To Read a Floor Plan? Beginner's guide
What Is A Wh Floor Plan The “wh” symbol on a floor plan typically stands for “water heater”, an essential part of any home’s plumbing system. Knowing where your water heater is. In other contexts, “wh” can signify a warehouse, web hosting,. Wh” on a floor plan typically refers to “water heater. Understanding the location of the “wh” symbol can enhance. The “wh” symbol on a floor plan typically stands for “water heater”, an essential part of any home’s plumbing system. Floor plan symbols help visualize a building's layout and components. It’s an important element to identify when reviewing or creating a floor plan. The blueprint symbols used are general outlines of what the actual object is. They represent elements such as doors, stairs, and furniture. Floor plan symbols are a set of standardized icons initially adopted by the american national standards institute and the. A standard floor plan will show you structural elements like doors, walls, windows and stairs. Each symbol is designed to be universally. When you see 'wh' marked on a floor plan, it’s typically accompanied by dimensions or a reference to plumbing lines,. What is a floor plan symbol? The floorplan would also show other essentials like plumbing, electrical and hvac systems.
From nolanfersoconnor.blogspot.com
What Does Wh Mean on a Floor Plan What Is A Wh Floor Plan It’s an important element to identify when reviewing or creating a floor plan. When you see 'wh' marked on a floor plan, it’s typically accompanied by dimensions or a reference to plumbing lines,. Knowing where your water heater is. The floorplan would also show other essentials like plumbing, electrical and hvac systems. What is a floor plan symbol? The blueprint. What Is A Wh Floor Plan.
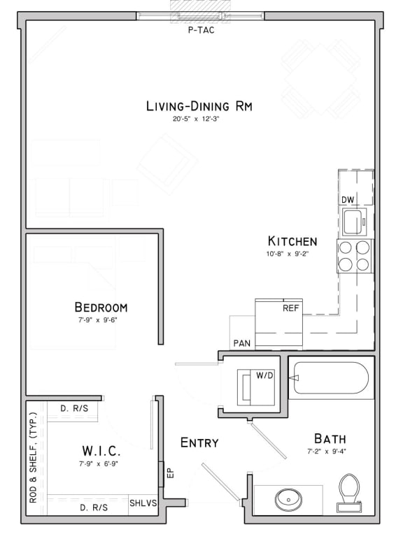
From www.rentwhflats.com
Floor Plans WH Flats Apartments What Is A Wh Floor Plan In other contexts, “wh” can signify a warehouse, web hosting,. A standard floor plan will show you structural elements like doors, walls, windows and stairs. Wh” on a floor plan typically refers to “water heater. It’s an important element to identify when reviewing or creating a floor plan. The blueprint symbols used are general outlines of what the actual object. What Is A Wh Floor Plan.
From www.rentcip.com
Floor Plans WH Flats Apartments What Is A Wh Floor Plan It’s an important element to identify when reviewing or creating a floor plan. Each symbol is designed to be universally. Understanding the location of the “wh” symbol can enhance. When you see 'wh' marked on a floor plan, it’s typically accompanied by dimensions or a reference to plumbing lines,. Wh” on a floor plan typically refers to “water heater. In. What Is A Wh Floor Plan.
From coretecfloors.art
What Is Wh On A Floor Plan The Floors What Is A Wh Floor Plan They represent elements such as doors, stairs, and furniture. When you see 'wh' marked on a floor plan, it’s typically accompanied by dimensions or a reference to plumbing lines,. It’s an important element to identify when reviewing or creating a floor plan. The floorplan would also show other essentials like plumbing, electrical and hvac systems. Wh” on a floor plan. What Is A Wh Floor Plan.
From viewfloor.co
Wh Floor Plan Meaning Viewfloor.co What Is A Wh Floor Plan The floorplan would also show other essentials like plumbing, electrical and hvac systems. Wh” on a floor plan typically refers to “water heater. The blueprint symbols used are general outlines of what the actual object is. It’s an important element to identify when reviewing or creating a floor plan. They represent elements such as doors, stairs, and furniture. Floor plan. What Is A Wh Floor Plan.
From coretecfloors.art
What Is Wh On A Floor Plan The Floors What Is A Wh Floor Plan The floorplan would also show other essentials like plumbing, electrical and hvac systems. Floor plan symbols help visualize a building's layout and components. They represent elements such as doors, stairs, and furniture. The blueprint symbols used are general outlines of what the actual object is. Wh” on a floor plan typically refers to “water heater. What is a floor plan. What Is A Wh Floor Plan.
From www.architecturaldesigns.com
Mediterranean House Plan with All the Bells and Wh 32063AA What Is A Wh Floor Plan The blueprint symbols used are general outlines of what the actual object is. What is a floor plan symbol? The “wh” symbol on a floor plan typically stands for “water heater”, an essential part of any home’s plumbing system. The floorplan would also show other essentials like plumbing, electrical and hvac systems. It’s an important element to identify when reviewing. What Is A Wh Floor Plan.
From coretecfloors.art
Wh In Floor Plan The Floors What Is A Wh Floor Plan Each symbol is designed to be universally. Knowing where your water heater is. Floor plan symbols are a set of standardized icons initially adopted by the american national standards institute and the. It’s an important element to identify when reviewing or creating a floor plan. The floorplan would also show other essentials like plumbing, electrical and hvac systems. They represent. What Is A Wh Floor Plan.
From www.cubi.casa
How To Read a Floor Plan? Beginner's guide What Is A Wh Floor Plan Each symbol is designed to be universally. Floor plan symbols are a set of standardized icons initially adopted by the american national standards institute and the. The “wh” symbol on a floor plan typically stands for “water heater”, an essential part of any home’s plumbing system. Floor plan symbols help visualize a building's layout and components. A standard floor plan. What Is A Wh Floor Plan.
From storables.com
What Is "WH" On A Floor Plan Storables What Is A Wh Floor Plan The floorplan would also show other essentials like plumbing, electrical and hvac systems. They represent elements such as doors, stairs, and furniture. Understanding the location of the “wh” symbol can enhance. A standard floor plan will show you structural elements like doors, walls, windows and stairs. The “wh” symbol on a floor plan typically stands for “water heater”, an essential. What Is A Wh Floor Plan.
From nolanfersoconnor.blogspot.com
What Does Wh Mean on a Floor Plan What Is A Wh Floor Plan Floor plan symbols are a set of standardized icons initially adopted by the american national standards institute and the. The blueprint symbols used are general outlines of what the actual object is. What is a floor plan symbol? It’s an important element to identify when reviewing or creating a floor plan. The floorplan would also show other essentials like plumbing,. What Is A Wh Floor Plan.
From storables.com
What Is "WH" On A Floor Plan Storables What Is A Wh Floor Plan A standard floor plan will show you structural elements like doors, walls, windows and stairs. The “wh” symbol on a floor plan typically stands for “water heater”, an essential part of any home’s plumbing system. Each symbol is designed to be universally. Floor plan symbols help visualize a building's layout and components. Wh” on a floor plan typically refers to. What Is A Wh Floor Plan.
From ivyrohan.blogspot.com
Floor Plan Modern Family Dunphy House Layout / Modern Family House A What Is A Wh Floor Plan Knowing where your water heater is. A standard floor plan will show you structural elements like doors, walls, windows and stairs. In other contexts, “wh” can signify a warehouse, web hosting,. Wh” on a floor plan typically refers to “water heater. The blueprint symbols used are general outlines of what the actual object is. The floorplan would also show other. What Is A Wh Floor Plan.
From viewfloor.co
Wh Floor Plan Viewfloor.co What Is A Wh Floor Plan Each symbol is designed to be universally. In other contexts, “wh” can signify a warehouse, web hosting,. Knowing where your water heater is. The floorplan would also show other essentials like plumbing, electrical and hvac systems. Floor plan symbols help visualize a building's layout and components. Wh” on a floor plan typically refers to “water heater. A standard floor plan. What Is A Wh Floor Plan.
From viewfloor.co
What Does Wh Stand For On A Floor Plan Mean Viewfloor.co What Is A Wh Floor Plan Knowing where your water heater is. Floor plan symbols are a set of standardized icons initially adopted by the american national standards institute and the. The “wh” symbol on a floor plan typically stands for “water heater”, an essential part of any home’s plumbing system. The floorplan would also show other essentials like plumbing, electrical and hvac systems. Understanding the. What Is A Wh Floor Plan.
From nolanfersoconnor.blogspot.com
What Does Wh Mean on a Floor Plan What Is A Wh Floor Plan Each symbol is designed to be universally. Floor plan symbols help visualize a building's layout and components. A standard floor plan will show you structural elements like doors, walls, windows and stairs. In other contexts, “wh” can signify a warehouse, web hosting,. They represent elements such as doors, stairs, and furniture. The blueprint symbols used are general outlines of what. What Is A Wh Floor Plan.
From foyr.com
10 Key Floor Plan Symbols & 74 Architectural Abbreviations Foyr What Is A Wh Floor Plan In other contexts, “wh” can signify a warehouse, web hosting,. Floor plan symbols help visualize a building's layout and components. When you see 'wh' marked on a floor plan, it’s typically accompanied by dimensions or a reference to plumbing lines,. Floor plan symbols are a set of standardized icons initially adopted by the american national standards institute and the. The. What Is A Wh Floor Plan.
From coretecfloors.art
What Is Wh In Floor Plan The Floors What Is A Wh Floor Plan What is a floor plan symbol? Understanding the location of the “wh” symbol can enhance. Floor plan symbols help visualize a building's layout and components. The “wh” symbol on a floor plan typically stands for “water heater”, an essential part of any home’s plumbing system. They represent elements such as doors, stairs, and furniture. Wh” on a floor plan typically. What Is A Wh Floor Plan.
From foyr.com
How To Read Floor Plans 8 Key Elements To Read A Floor Plan Foyr What Is A Wh Floor Plan A standard floor plan will show you structural elements like doors, walls, windows and stairs. The floorplan would also show other essentials like plumbing, electrical and hvac systems. Wh” on a floor plan typically refers to “water heater. Understanding the location of the “wh” symbol can enhance. Floor plan symbols are a set of standardized icons initially adopted by the. What Is A Wh Floor Plan.
From nolanfersoconnor.blogspot.com
What Does Wh Mean on a Floor Plan What Is A Wh Floor Plan It’s an important element to identify when reviewing or creating a floor plan. The blueprint symbols used are general outlines of what the actual object is. They represent elements such as doors, stairs, and furniture. Each symbol is designed to be universally. Wh” on a floor plan typically refers to “water heater. Understanding the location of the “wh” symbol can. What Is A Wh Floor Plan.
From www.edrawsoft.com
White House Floor Plan EdrawMax What Is A Wh Floor Plan Each symbol is designed to be universally. Floor plan symbols help visualize a building's layout and components. A standard floor plan will show you structural elements like doors, walls, windows and stairs. They represent elements such as doors, stairs, and furniture. What is a floor plan symbol? Floor plan symbols are a set of standardized icons initially adopted by the. What Is A Wh Floor Plan.
From coretecfloors.art
What Does Wh Mean On A Floor Plan The Floors What Is A Wh Floor Plan Knowing where your water heater is. What is a floor plan symbol? Floor plan symbols help visualize a building's layout and components. Understanding the location of the “wh” symbol can enhance. Wh” on a floor plan typically refers to “water heater. In other contexts, “wh” can signify a warehouse, web hosting,. The floorplan would also show other essentials like plumbing,. What Is A Wh Floor Plan.
From nolanfersoconnor.blogspot.com
What Does Wh Mean on a Floor Plan What Is A Wh Floor Plan Floor plan symbols are a set of standardized icons initially adopted by the american national standards institute and the. Understanding the location of the “wh” symbol can enhance. The blueprint symbols used are general outlines of what the actual object is. The floorplan would also show other essentials like plumbing, electrical and hvac systems. Knowing where your water heater is.. What Is A Wh Floor Plan.
From www.bigrentz.com
How to Understand Floor Plan Symbols BigRentz What Is A Wh Floor Plan The blueprint symbols used are general outlines of what the actual object is. What is a floor plan symbol? The “wh” symbol on a floor plan typically stands for “water heater”, an essential part of any home’s plumbing system. Each symbol is designed to be universally. Floor plan symbols help visualize a building's layout and components. Understanding the location of. What Is A Wh Floor Plan.
From www.jccc.edu
Warehouse Building Map (WH) Johnson County Community College What Is A Wh Floor Plan Floor plan symbols are a set of standardized icons initially adopted by the american national standards institute and the. When you see 'wh' marked on a floor plan, it’s typically accompanied by dimensions or a reference to plumbing lines,. It’s an important element to identify when reviewing or creating a floor plan. Wh” on a floor plan typically refers to. What Is A Wh Floor Plan.
From www.rentwhflats.com
Floor Plans WH Flats Apartments What Is A Wh Floor Plan The floorplan would also show other essentials like plumbing, electrical and hvac systems. Each symbol is designed to be universally. Floor plan symbols help visualize a building's layout and components. A standard floor plan will show you structural elements like doors, walls, windows and stairs. Understanding the location of the “wh” symbol can enhance. Floor plan symbols are a set. What Is A Wh Floor Plan.
From storables.com
What Does "WH" Mean In A Floor Plan Storables What Is A Wh Floor Plan A standard floor plan will show you structural elements like doors, walls, windows and stairs. The floorplan would also show other essentials like plumbing, electrical and hvac systems. Each symbol is designed to be universally. Floor plan symbols help visualize a building's layout and components. Knowing where your water heater is. What is a floor plan symbol? They represent elements. What Is A Wh Floor Plan.
From www.briggwhitehart.co.uk
WH First Floor Plan The White Hart What Is A Wh Floor Plan Understanding the location of the “wh” symbol can enhance. Floor plan symbols are a set of standardized icons initially adopted by the american national standards institute and the. When you see 'wh' marked on a floor plan, it’s typically accompanied by dimensions or a reference to plumbing lines,. Knowing where your water heater is. Each symbol is designed to be. What Is A Wh Floor Plan.
From coretecfloors.art
What Is Wh On A Floor Plan The Floors What Is A Wh Floor Plan It’s an important element to identify when reviewing or creating a floor plan. In other contexts, “wh” can signify a warehouse, web hosting,. The “wh” symbol on a floor plan typically stands for “water heater”, an essential part of any home’s plumbing system. When you see 'wh' marked on a floor plan, it’s typically accompanied by dimensions or a reference. What Is A Wh Floor Plan.
From nolanfersoconnor.blogspot.com
What Does Wh Mean on a Floor Plan What Is A Wh Floor Plan They represent elements such as doors, stairs, and furniture. When you see 'wh' marked on a floor plan, it’s typically accompanied by dimensions or a reference to plumbing lines,. The blueprint symbols used are general outlines of what the actual object is. The floorplan would also show other essentials like plumbing, electrical and hvac systems. Understanding the location of the. What Is A Wh Floor Plan.
From storables.com
What Does "WH" Mean In A Floor Plan Storables What Is A Wh Floor Plan When you see 'wh' marked on a floor plan, it’s typically accompanied by dimensions or a reference to plumbing lines,. They represent elements such as doors, stairs, and furniture. Floor plan symbols help visualize a building's layout and components. Each symbol is designed to be universally. The blueprint symbols used are general outlines of what the actual object is. Understanding. What Is A Wh Floor Plan.
From storables.com
What Is "WH" On A Floor Plan Storables What Is A Wh Floor Plan A standard floor plan will show you structural elements like doors, walls, windows and stairs. The “wh” symbol on a floor plan typically stands for “water heater”, an essential part of any home’s plumbing system. In other contexts, “wh” can signify a warehouse, web hosting,. What is a floor plan symbol? Understanding the location of the “wh” symbol can enhance.. What Is A Wh Floor Plan.
From storables.com
What Does "WH" Mean In A Floor Plan Storables What Is A Wh Floor Plan Understanding the location of the “wh” symbol can enhance. The floorplan would also show other essentials like plumbing, electrical and hvac systems. What is a floor plan symbol? Floor plan symbols help visualize a building's layout and components. The blueprint symbols used are general outlines of what the actual object is. Knowing where your water heater is. A standard floor. What Is A Wh Floor Plan.
From coretecfloors.art
What Is Wh On A Floor Plan The Floors What Is A Wh Floor Plan In other contexts, “wh” can signify a warehouse, web hosting,. Each symbol is designed to be universally. Wh” on a floor plan typically refers to “water heater. Knowing where your water heater is. The blueprint symbols used are general outlines of what the actual object is. A standard floor plan will show you structural elements like doors, walls, windows and. What Is A Wh Floor Plan.
From viewfloor.co
What Does Wh Stand For On A Floor Plan Mean Viewfloor.co What Is A Wh Floor Plan Floor plan symbols help visualize a building's layout and components. Knowing where your water heater is. In other contexts, “wh” can signify a warehouse, web hosting,. What is a floor plan symbol? Understanding the location of the “wh” symbol can enhance. A standard floor plan will show you structural elements like doors, walls, windows and stairs. The floorplan would also. What Is A Wh Floor Plan.