Gutter Location Definition . Gutter leaders and downspouts, gutter and leaders cleaning,. the gutters are shallow troughs fixed along the edge of a roof to catch rainwater and carry it away from your home. From downspouts and fascia to gutter guards and pitch, we provide clear. rain gutters and downspouts are essential tools that are used to divert. Vinyl is another good option. demystify gutter terminology with our informative blog. in this blog, we will look closer at what is a gutter leader. They are a component of the. the design of gutter and downspout assemblies is an area of building design which demands special attention. learn the essential gutter terms to know, explore the different gutter types, and get expert tips for choosing and caring for. They are made of waterproof materials, with the most common being steel, aluminum, copper, or zinc.
from stormmaster.com
the design of gutter and downspout assemblies is an area of building design which demands special attention. Vinyl is another good option. the gutters are shallow troughs fixed along the edge of a roof to catch rainwater and carry it away from your home. Gutter leaders and downspouts, gutter and leaders cleaning,. They are made of waterproof materials, with the most common being steel, aluminum, copper, or zinc. They are a component of the. learn the essential gutter terms to know, explore the different gutter types, and get expert tips for choosing and caring for. in this blog, we will look closer at what is a gutter leader. rain gutters and downspouts are essential tools that are used to divert. demystify gutter terminology with our informative blog.
The Definitive Guide to Gutter Sizing Storm Master Gutters
Gutter Location Definition rain gutters and downspouts are essential tools that are used to divert. demystify gutter terminology with our informative blog. the design of gutter and downspout assemblies is an area of building design which demands special attention. learn the essential gutter terms to know, explore the different gutter types, and get expert tips for choosing and caring for. in this blog, we will look closer at what is a gutter leader. They are made of waterproof materials, with the most common being steel, aluminum, copper, or zinc. Gutter leaders and downspouts, gutter and leaders cleaning,. Vinyl is another good option. the gutters are shallow troughs fixed along the edge of a roof to catch rainwater and carry it away from your home. They are a component of the. From downspouts and fascia to gutter guards and pitch, we provide clear. rain gutters and downspouts are essential tools that are used to divert.
From stewart-switch.com
Diagram Of Gutter System Gutter Location Definition the design of gutter and downspout assemblies is an area of building design which demands special attention. rain gutters and downspouts are essential tools that are used to divert. in this blog, we will look closer at what is a gutter leader. They are a component of the. Vinyl is another good option. Gutter leaders and downspouts,. Gutter Location Definition.
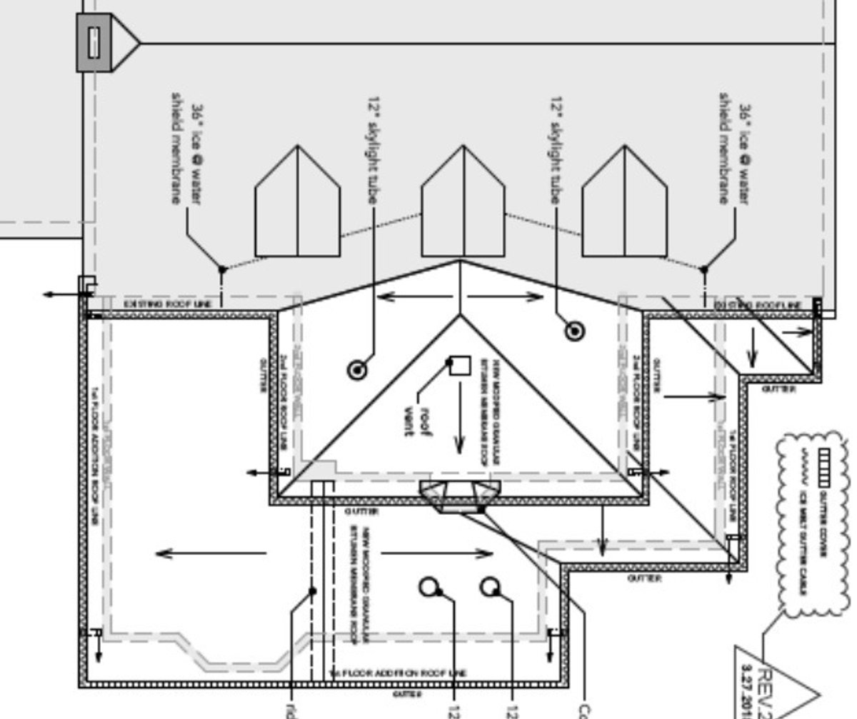
From inspectapedia.com
Roof Gutters & Downspouts inspection, diagnosis, repair, types of roof Gutter Location Definition They are a component of the. the gutters are shallow troughs fixed along the edge of a roof to catch rainwater and carry it away from your home. rain gutters and downspouts are essential tools that are used to divert. in this blog, we will look closer at what is a gutter leader. From downspouts and fascia. Gutter Location Definition.
From akgutter.com
Can You DIY Gutter Installation? (8 Easy Steps) A&K Gutter Service Gutter Location Definition They are a component of the. demystify gutter terminology with our informative blog. Vinyl is another good option. learn the essential gutter terms to know, explore the different gutter types, and get expert tips for choosing and caring for. From downspouts and fascia to gutter guards and pitch, we provide clear. rain gutters and downspouts are essential. Gutter Location Definition.
From civiljungle.com
What Are Curb and Gutter Types of Curb and Gutter Advantages Gutter Location Definition They are made of waterproof materials, with the most common being steel, aluminum, copper, or zinc. demystify gutter terminology with our informative blog. learn the essential gutter terms to know, explore the different gutter types, and get expert tips for choosing and caring for. rain gutters and downspouts are essential tools that are used to divert. . Gutter Location Definition.
From dokumen.tips
(PDF) Draw your gutter layout Seamless Gutter Gutter Location Definition demystify gutter terminology with our informative blog. the design of gutter and downspout assemblies is an area of building design which demands special attention. in this blog, we will look closer at what is a gutter leader. They are made of waterproof materials, with the most common being steel, aluminum, copper, or zinc. learn the essential. Gutter Location Definition.
From goasher.com
Gutter Sizes The Key to Efficient Rainwater Drainage Gutter Location Definition They are a component of the. the gutters are shallow troughs fixed along the edge of a roof to catch rainwater and carry it away from your home. the design of gutter and downspout assemblies is an area of building design which demands special attention. They are made of waterproof materials, with the most common being steel, aluminum,. Gutter Location Definition.
From www.bhg.com
Types of Gutters How to Choose the Right Material and Style for Your Home Gutter Location Definition They are a component of the. learn the essential gutter terms to know, explore the different gutter types, and get expert tips for choosing and caring for. rain gutters and downspouts are essential tools that are used to divert. the design of gutter and downspout assemblies is an area of building design which demands special attention. . Gutter Location Definition.
From exofoomlq.blob.core.windows.net
Gutter Good Definition at Steven Duncan blog Gutter Location Definition They are made of waterproof materials, with the most common being steel, aluminum, copper, or zinc. From downspouts and fascia to gutter guards and pitch, we provide clear. the gutters are shallow troughs fixed along the edge of a roof to catch rainwater and carry it away from your home. They are a component of the. Vinyl is another. Gutter Location Definition.
From stewart-switch.com
Gutter Diagram Gutter Location Definition rain gutters and downspouts are essential tools that are used to divert. They are a component of the. learn the essential gutter terms to know, explore the different gutter types, and get expert tips for choosing and caring for. They are made of waterproof materials, with the most common being steel, aluminum, copper, or zinc. Gutter leaders and. Gutter Location Definition.
From basc.pnnl.gov
Gutters and Downspouts Building America Solution Center Gutter Location Definition the design of gutter and downspout assemblies is an area of building design which demands special attention. From downspouts and fascia to gutter guards and pitch, we provide clear. learn the essential gutter terms to know, explore the different gutter types, and get expert tips for choosing and caring for. the gutters are shallow troughs fixed along. Gutter Location Definition.
From truenorthgutters.ca
Soffit and Fascia True North Eavestroughing Gutter Location Definition learn the essential gutter terms to know, explore the different gutter types, and get expert tips for choosing and caring for. rain gutters and downspouts are essential tools that are used to divert. the design of gutter and downspout assemblies is an area of building design which demands special attention. the gutters are shallow troughs fixed. Gutter Location Definition.
From communities.bentley.com
USER NOTIFICATION"There is a gutter leaving this 'In Sag' catch basin Gutter Location Definition the gutters are shallow troughs fixed along the edge of a roof to catch rainwater and carry it away from your home. From downspouts and fascia to gutter guards and pitch, we provide clear. Vinyl is another good option. in this blog, we will look closer at what is a gutter leader. Gutter leaders and downspouts, gutter and. Gutter Location Definition.
From mydiagram.online
[DIAGRAM] Built In Roof Gutter Diagram Gutter Location Definition in this blog, we will look closer at what is a gutter leader. rain gutters and downspouts are essential tools that are used to divert. the gutters are shallow troughs fixed along the edge of a roof to catch rainwater and carry it away from your home. From downspouts and fascia to gutter guards and pitch, we. Gutter Location Definition.
From exomsfvpr.blob.core.windows.net
What Is Meaning Of Eaves Gutter at Robert Stabile blog Gutter Location Definition Vinyl is another good option. the gutters are shallow troughs fixed along the edge of a roof to catch rainwater and carry it away from your home. They are made of waterproof materials, with the most common being steel, aluminum, copper, or zinc. They are a component of the. Gutter leaders and downspouts, gutter and leaders cleaning,. rain. Gutter Location Definition.
From engineeringdiscoveries.com
Roof Rain Gutter system Engineering Discoveries Gutter Location Definition learn the essential gutter terms to know, explore the different gutter types, and get expert tips for choosing and caring for. in this blog, we will look closer at what is a gutter leader. demystify gutter terminology with our informative blog. the design of gutter and downspout assemblies is an area of building design which demands. Gutter Location Definition.
From www.thespruce.com
10 Types of Rain Gutters and How to Choose One Gutter Location Definition the design of gutter and downspout assemblies is an area of building design which demands special attention. They are a component of the. Gutter leaders and downspouts, gutter and leaders cleaning,. demystify gutter terminology with our informative blog. From downspouts and fascia to gutter guards and pitch, we provide clear. Vinyl is another good option. in this. Gutter Location Definition.
From www.angi.com
Importance of Gutter Slope to Your Home Gutter Location Definition From downspouts and fascia to gutter guards and pitch, we provide clear. demystify gutter terminology with our informative blog. Vinyl is another good option. They are made of waterproof materials, with the most common being steel, aluminum, copper, or zinc. learn the essential gutter terms to know, explore the different gutter types, and get expert tips for choosing. Gutter Location Definition.
From mygutterpro.com
Gutter Accessories and Terminology Talking Gutters My Gutter Pro Blog Gutter Location Definition From downspouts and fascia to gutter guards and pitch, we provide clear. They are made of waterproof materials, with the most common being steel, aluminum, copper, or zinc. rain gutters and downspouts are essential tools that are used to divert. the gutters are shallow troughs fixed along the edge of a roof to catch rainwater and carry it. Gutter Location Definition.
From inspectapedia.com
Eaves trough or integral roof gutters Gutter Location Definition Gutter leaders and downspouts, gutter and leaders cleaning,. the design of gutter and downspout assemblies is an area of building design which demands special attention. the gutters are shallow troughs fixed along the edge of a roof to catch rainwater and carry it away from your home. Vinyl is another good option. They are made of waterproof materials,. Gutter Location Definition.
From www.forbes.com
Types of Gutters and Gutter Guards Forbes Home Gutter Location Definition Gutter leaders and downspouts, gutter and leaders cleaning,. the design of gutter and downspout assemblies is an area of building design which demands special attention. learn the essential gutter terms to know, explore the different gutter types, and get expert tips for choosing and caring for. rain gutters and downspouts are essential tools that are used to. Gutter Location Definition.
From www.homenish.com
Parts of a Gutter Explained Homenish Gutter Location Definition Vinyl is another good option. the design of gutter and downspout assemblies is an area of building design which demands special attention. From downspouts and fascia to gutter guards and pitch, we provide clear. in this blog, we will look closer at what is a gutter leader. demystify gutter terminology with our informative blog. rain gutters. Gutter Location Definition.
From www.familyhandyman.com
Gutter Replacement How to Install Gutters (DIY) Family Handyman Gutter Location Definition demystify gutter terminology with our informative blog. rain gutters and downspouts are essential tools that are used to divert. the gutters are shallow troughs fixed along the edge of a roof to catch rainwater and carry it away from your home. They are a component of the. Gutter leaders and downspouts, gutter and leaders cleaning,. They are. Gutter Location Definition.
From mygutterpro.com
Gutter Pitch How to Pitch a Gutter Easy Step by Step Guide Gutter Location Definition in this blog, we will look closer at what is a gutter leader. the design of gutter and downspout assemblies is an area of building design which demands special attention. They are a component of the. From downspouts and fascia to gutter guards and pitch, we provide clear. Gutter leaders and downspouts, gutter and leaders cleaning,. the. Gutter Location Definition.
From www.homepro360.com
Different Gutter Styles and Their Features Gutter Helmet of the North Bay Gutter Location Definition the gutters are shallow troughs fixed along the edge of a roof to catch rainwater and carry it away from your home. Vinyl is another good option. They are made of waterproof materials, with the most common being steel, aluminum, copper, or zinc. Gutter leaders and downspouts, gutter and leaders cleaning,. rain gutters and downspouts are essential tools. Gutter Location Definition.
From www.familyhandyman.com
Gutter Replacement How to Install Gutters (DIY) Family Handyman Gutter Location Definition From downspouts and fascia to gutter guards and pitch, we provide clear. rain gutters and downspouts are essential tools that are used to divert. learn the essential gutter terms to know, explore the different gutter types, and get expert tips for choosing and caring for. the design of gutter and downspout assemblies is an area of building. Gutter Location Definition.
From cegxldzs.blob.core.windows.net
Gutters Soffit And Fascia at Julia Atkinson blog Gutter Location Definition From downspouts and fascia to gutter guards and pitch, we provide clear. They are made of waterproof materials, with the most common being steel, aluminum, copper, or zinc. demystify gutter terminology with our informative blog. the design of gutter and downspout assemblies is an area of building design which demands special attention. Gutter leaders and downspouts, gutter and. Gutter Location Definition.
From stormmaster.com
The Definitive Guide to Gutter Sizing Storm Master Gutters Gutter Location Definition the design of gutter and downspout assemblies is an area of building design which demands special attention. They are made of waterproof materials, with the most common being steel, aluminum, copper, or zinc. learn the essential gutter terms to know, explore the different gutter types, and get expert tips for choosing and caring for. in this blog,. Gutter Location Definition.
From www.hometips.com
How Gutters & Downspouts Work Gutter Location Definition rain gutters and downspouts are essential tools that are used to divert. in this blog, we will look closer at what is a gutter leader. the gutters are shallow troughs fixed along the edge of a roof to catch rainwater and carry it away from your home. They are a component of the. learn the essential. Gutter Location Definition.
From exomsfvpr.blob.core.windows.net
What Is Meaning Of Eaves Gutter at Robert Stabile blog Gutter Location Definition demystify gutter terminology with our informative blog. They are a component of the. in this blog, we will look closer at what is a gutter leader. the gutters are shallow troughs fixed along the edge of a roof to catch rainwater and carry it away from your home. Vinyl is another good option. They are made of. Gutter Location Definition.
From stormmaster.com
Tips for Gutter Maintenance Storm Master Gutters Gutter Location Definition They are made of waterproof materials, with the most common being steel, aluminum, copper, or zinc. Vinyl is another good option. the design of gutter and downspout assemblies is an area of building design which demands special attention. demystify gutter terminology with our informative blog. learn the essential gutter terms to know, explore the different gutter types,. Gutter Location Definition.
From www.warmlyyours.com
Roof And Gutter Floor Plan Roof and Gutter Large 1. with Roof & Gutter Gutter Location Definition the gutters are shallow troughs fixed along the edge of a roof to catch rainwater and carry it away from your home. They are a component of the. learn the essential gutter terms to know, explore the different gutter types, and get expert tips for choosing and caring for. From downspouts and fascia to gutter guards and pitch,. Gutter Location Definition.
From lopcocontracting.com
The Difference Between a Gutter and a Downspout LOPCO Contracting RI Gutter Location Definition Vinyl is another good option. learn the essential gutter terms to know, explore the different gutter types, and get expert tips for choosing and caring for. the design of gutter and downspout assemblies is an area of building design which demands special attention. Gutter leaders and downspouts, gutter and leaders cleaning,. in this blog, we will look. Gutter Location Definition.
From stewart-switch.com
Gutter Diagram Gutter Location Definition Vinyl is another good option. the design of gutter and downspout assemblies is an area of building design which demands special attention. rain gutters and downspouts are essential tools that are used to divert. Gutter leaders and downspouts, gutter and leaders cleaning,. demystify gutter terminology with our informative blog. the gutters are shallow troughs fixed along. Gutter Location Definition.
From www.seamlessguttersmn.com
Seamless Rain Gutters MN Minnesota Gutters and Gutter Covers Gutter Location Definition the design of gutter and downspout assemblies is an area of building design which demands special attention. rain gutters and downspouts are essential tools that are used to divert. demystify gutter terminology with our informative blog. Vinyl is another good option. From downspouts and fascia to gutter guards and pitch, we provide clear. learn the essential. Gutter Location Definition.
From inspectapedia.com
Yankee Gutters Yankee roof gutter definition, design, repair Gutter Location Definition Vinyl is another good option. the design of gutter and downspout assemblies is an area of building design which demands special attention. the gutters are shallow troughs fixed along the edge of a roof to catch rainwater and carry it away from your home. demystify gutter terminology with our informative blog. rain gutters and downspouts are. Gutter Location Definition.