Real Estate Assessment Dc . The office of tax and. Learn about the real property tax, deed recordation tax, and deed transfer tax in the district of columbia. What is a property assessment? Interactive real property assessment search map. Find online access to real property information, land records, deeds, vacant properties, and zoning regulations in dc. Search the real property finder for data, demographics and maps of dc properties. Search online for real property information such as value, assessment roll, and more for over 200,000 parcels in dc. Learn how to search for your property tax bill by address or ssl on the office of tax and revenue (otr) website. Find information about more than 170,000 properties in dc by address or lot number. based geographic information systems at the district of columbia office of tax and. Find the current tax rates,. The district offers several programs to assist property owners and. District of columbia property owners may be eligible for property tax relief. An assessment is the estimated market value of your property.
from www.fairfaxcounty.gov
An assessment is the estimated market value of your property. District of columbia property owners may be eligible for property tax relief. Search the real property finder for data, demographics and maps of dc properties. Learn about the real property tax, deed recordation tax, and deed transfer tax in the district of columbia. based geographic information systems at the district of columbia office of tax and. The office of tax and. Interactive real property assessment search map. Learn how to search for your property tax bill by address or ssl on the office of tax and revenue (otr) website. Find information about more than 170,000 properties in dc by address or lot number. Find online access to real property information, land records, deeds, vacant properties, and zoning regulations in dc.
2022 Real Estate Assessments Now Available; Average Residential
Real Estate Assessment Dc Learn how to search for your property tax bill by address or ssl on the office of tax and revenue (otr) website. District of columbia property owners may be eligible for property tax relief. Interactive real property assessment search map. based geographic information systems at the district of columbia office of tax and. Learn about the real property tax, deed recordation tax, and deed transfer tax in the district of columbia. Search online for real property information such as value, assessment roll, and more for over 200,000 parcels in dc. Learn how to search for your property tax bill by address or ssl on the office of tax and revenue (otr) website. An assessment is the estimated market value of your property. What is a property assessment? Find online access to real property information, land records, deeds, vacant properties, and zoning regulations in dc. The office of tax and. Find information about more than 170,000 properties in dc by address or lot number. The district offers several programs to assist property owners and. Search the real property finder for data, demographics and maps of dc properties. Find the current tax rates,.
From www.kivitv.com
How your property assessment is calculated Real Estate Assessment Dc District of columbia property owners may be eligible for property tax relief. Interactive real property assessment search map. Learn how to search for your property tax bill by address or ssl on the office of tax and revenue (otr) website. Find online access to real property information, land records, deeds, vacant properties, and zoning regulations in dc. Search the real. Real Estate Assessment Dc.
From www.dreamstime.com
Real Property Assessment. Isometric Business Concept Stock Vector Real Estate Assessment Dc based geographic information systems at the district of columbia office of tax and. The district offers several programs to assist property owners and. Interactive real property assessment search map. The office of tax and. Search the real property finder for data, demographics and maps of dc properties. What is a property assessment? Search online for real property information such. Real Estate Assessment Dc.
From slidesdocs.com
Annual Assessment Form For Real Estate Company Excel Template And Real Estate Assessment Dc Find online access to real property information, land records, deeds, vacant properties, and zoning regulations in dc. Find the current tax rates,. based geographic information systems at the district of columbia office of tax and. Learn how to search for your property tax bill by address or ssl on the office of tax and revenue (otr) website. Learn about. Real Estate Assessment Dc.
From www.unilearno.com
RES420 Fundamentals of Real Estate Real Estate Industry Realistic Real Estate Assessment Dc based geographic information systems at the district of columbia office of tax and. Interactive real property assessment search map. An assessment is the estimated market value of your property. The district offers several programs to assist property owners and. Search online for real property information such as value, assessment roll, and more for over 200,000 parcels in dc. Find. Real Estate Assessment Dc.
From calumetareaindustrial.com
Understanding Your Real Estate Assessment Incentives New Changes = New Real Estate Assessment Dc Learn about the real property tax, deed recordation tax, and deed transfer tax in the district of columbia. Find the current tax rates,. Learn how to search for your property tax bill by address or ssl on the office of tax and revenue (otr) website. Find information about more than 170,000 properties in dc by address or lot number. The. Real Estate Assessment Dc.
From www.studocu.com
2223 re ce02 mock assessment(1) LPC MOCK ASSESSMENT Real Estate Real Estate Assessment Dc District of columbia property owners may be eligible for property tax relief. Find information about more than 170,000 properties in dc by address or lot number. Learn how to search for your property tax bill by address or ssl on the office of tax and revenue (otr) website. based geographic information systems at the district of columbia office of. Real Estate Assessment Dc.
From www.pdffiller.com
Fillable Online 2018 GUIDE TO APPEALING REAL ESTATE ASSESSMENT.docx Fax Real Estate Assessment Dc Find online access to real property information, land records, deeds, vacant properties, and zoning regulations in dc. The office of tax and. The district offers several programs to assist property owners and. Learn how to search for your property tax bill by address or ssl on the office of tax and revenue (otr) website. District of columbia property owners may. Real Estate Assessment Dc.
From dc.urbanturf.com
DC Property Assessments Rise Sixfold Since 2000 Real Estate Assessment Dc The office of tax and. District of columbia property owners may be eligible for property tax relief. Interactive real property assessment search map. Search online for real property information such as value, assessment roll, and more for over 200,000 parcels in dc. Find information about more than 170,000 properties in dc by address or lot number. Learn about the real. Real Estate Assessment Dc.
From www.alamy.com
Assessing value of property. Appraisers conduct inspection of house Real Estate Assessment Dc The district offers several programs to assist property owners and. Find information about more than 170,000 properties in dc by address or lot number. Search online for real property information such as value, assessment roll, and more for over 200,000 parcels in dc. Find the current tax rates,. Learn about the real property tax, deed recordation tax, and deed transfer. Real Estate Assessment Dc.
From www.shutterstock.com
12 Calculation Worth Doing Images, Stock Photos & Vectors Shutterstock Real Estate Assessment Dc Learn about the real property tax, deed recordation tax, and deed transfer tax in the district of columbia. Find online access to real property information, land records, deeds, vacant properties, and zoning regulations in dc. District of columbia property owners may be eligible for property tax relief. Find information about more than 170,000 properties in dc by address or lot. Real Estate Assessment Dc.
From remax-camosun-victoria-bc.com
Home Evaluation RE/MAX Camosun Victoria Real Estate and Homes for Sale Real Estate Assessment Dc Find information about more than 170,000 properties in dc by address or lot number. An assessment is the estimated market value of your property. The district offers several programs to assist property owners and. What is a property assessment? Interactive real property assessment search map. Learn how to search for your property tax bill by address or ssl on the. Real Estate Assessment Dc.
From www.formsbank.com
Real Property Assessment Division First Level Administrative Review Real Estate Assessment Dc Learn how to search for your property tax bill by address or ssl on the office of tax and revenue (otr) website. Find online access to real property information, land records, deeds, vacant properties, and zoning regulations in dc. What is a property assessment? Learn about the real property tax, deed recordation tax, and deed transfer tax in the district. Real Estate Assessment Dc.
From www.carolynhomes.com
How DC Property Assessments are Changing • Carolyn Homes Real Estate Assessment Dc Learn about the real property tax, deed recordation tax, and deed transfer tax in the district of columbia. Find online access to real property information, land records, deeds, vacant properties, and zoning regulations in dc. Find information about more than 170,000 properties in dc by address or lot number. The district offers several programs to assist property owners and. Interactive. Real Estate Assessment Dc.
From www.youtube.com
Arlington Dept. of l Real Estate Assessments and Expense Real Estate Assessment Dc Find information about more than 170,000 properties in dc by address or lot number. Search the real property finder for data, demographics and maps of dc properties. Find the current tax rates,. The district offers several programs to assist property owners and. What is a property assessment? Learn about the real property tax, deed recordation tax, and deed transfer tax. Real Estate Assessment Dc.
From www.slideteam.net
Real Estate Development Investment Neighborhood Assessment For Property Real Estate Assessment Dc The office of tax and. An assessment is the estimated market value of your property. What is a property assessment? Learn about the real property tax, deed recordation tax, and deed transfer tax in the district of columbia. Learn how to search for your property tax bill by address or ssl on the office of tax and revenue (otr) website.. Real Estate Assessment Dc.
From storables.com
What Does "Ein" Mean For DC Real Property Assessment Division Storables Real Estate Assessment Dc Learn about the real property tax, deed recordation tax, and deed transfer tax in the district of columbia. Interactive real property assessment search map. District of columbia property owners may be eligible for property tax relief. based geographic information systems at the district of columbia office of tax and. Find the current tax rates,. Find information about more than. Real Estate Assessment Dc.
From www.pinterest.com
2015 DC Real Property Assessment Change Assessment, Property tax Real Estate Assessment Dc District of columbia property owners may be eligible for property tax relief. Learn how to search for your property tax bill by address or ssl on the office of tax and revenue (otr) website. based geographic information systems at the district of columbia office of tax and. The office of tax and. Find the current tax rates,. Search online. Real Estate Assessment Dc.
From www.pdffiller.com
Fillable Online Real Estate Assessment Center Scoring Methodology HUD Real Estate Assessment Dc Find information about more than 170,000 properties in dc by address or lot number. Learn how to search for your property tax bill by address or ssl on the office of tax and revenue (otr) website. Learn about the real property tax, deed recordation tax, and deed transfer tax in the district of columbia. Search the real property finder for. Real Estate Assessment Dc.
From www.mdpi.com
Sustainable Real Estate Management, Assessment and Innovations MDPI Real Estate Assessment Dc An assessment is the estimated market value of your property. Interactive real property assessment search map. Find information about more than 170,000 properties in dc by address or lot number. based geographic information systems at the district of columbia office of tax and. Find online access to real property information, land records, deeds, vacant properties, and zoning regulations in. Real Estate Assessment Dc.
From www.botetourtva.gov
News Flash • 2024 Real Estate Assessment Real Estate Assessment Dc The office of tax and. Find information about more than 170,000 properties in dc by address or lot number. Search online for real property information such as value, assessment roll, and more for over 200,000 parcels in dc. An assessment is the estimated market value of your property. Search the real property finder for data, demographics and maps of dc. Real Estate Assessment Dc.
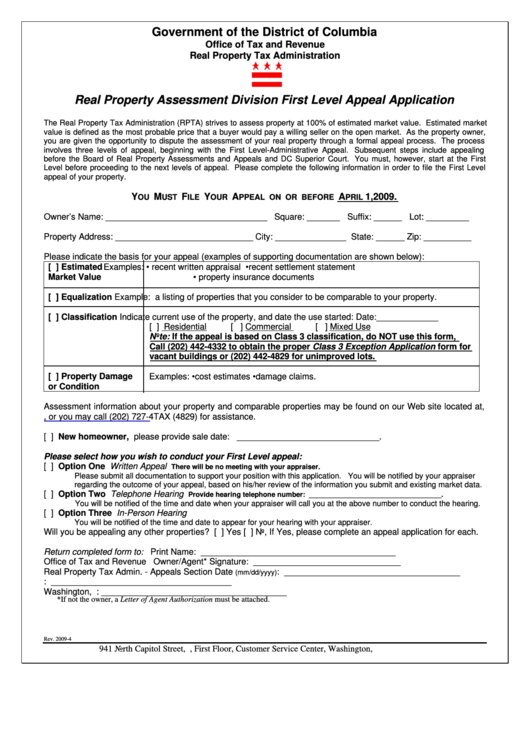
From www.formsbank.com
Real Property Assessment Division First Level Appeal Application Form Real Estate Assessment Dc Search online for real property information such as value, assessment roll, and more for over 200,000 parcels in dc. What is a property assessment? Find the current tax rates,. Interactive real property assessment search map. Find information about more than 170,000 properties in dc by address or lot number. The district offers several programs to assist property owners and. . Real Estate Assessment Dc.
From cartoondealer.com
Real Estate Assessment, Home Appraisal Landing Page Template. Tiny Real Real Estate Assessment Dc Learn how to search for your property tax bill by address or ssl on the office of tax and revenue (otr) website. District of columbia property owners may be eligible for property tax relief. Find the current tax rates,. Search online for real property information such as value, assessment roll, and more for over 200,000 parcels in dc. Find information. Real Estate Assessment Dc.
From zumbrunnen.com
Property Condition Assessment Report vs Transition Report and Reserve Study Real Estate Assessment Dc Learn about the real property tax, deed recordation tax, and deed transfer tax in the district of columbia. What is a property assessment? Find the current tax rates,. Learn how to search for your property tax bill by address or ssl on the office of tax and revenue (otr) website. based geographic information systems at the district of columbia. Real Estate Assessment Dc.
From www.in.gov
Randolph County Real Estate Assessment Real Estate Assessment Dc Search online for real property information such as value, assessment roll, and more for over 200,000 parcels in dc. An assessment is the estimated market value of your property. Learn about the real property tax, deed recordation tax, and deed transfer tax in the district of columbia. Find information about more than 170,000 properties in dc by address or lot. Real Estate Assessment Dc.
From www.fairfaxcounty.gov
2023 Real Estate Assessments Now Available; Average Residential Real Estate Assessment Dc Search the real property finder for data, demographics and maps of dc properties. The office of tax and. Find information about more than 170,000 properties in dc by address or lot number. Learn how to search for your property tax bill by address or ssl on the office of tax and revenue (otr) website. Interactive real property assessment search map.. Real Estate Assessment Dc.
From www.helloassignmenthelpau.com
RES420 Fundamentals of Real Estate Assessment Answers Online Real Estate Assessment Dc The district offers several programs to assist property owners and. Learn about the real property tax, deed recordation tax, and deed transfer tax in the district of columbia. Find the current tax rates,. Find information about more than 170,000 properties in dc by address or lot number. Find online access to real property information, land records, deeds, vacant properties, and. Real Estate Assessment Dc.
From www.mossadams.com
Vacancy Rates Impact Commercial Real Estate Assessments Real Estate Assessment Dc Find information about more than 170,000 properties in dc by address or lot number. Learn how to search for your property tax bill by address or ssl on the office of tax and revenue (otr) website. Interactive real property assessment search map. An assessment is the estimated market value of your property. Learn about the real property tax, deed recordation. Real Estate Assessment Dc.
From www.slideserve.com
PPT Improving Real Estate Assessment Center (REAC) Inspections Real Estate Assessment Dc The district offers several programs to assist property owners and. Learn how to search for your property tax bill by address or ssl on the office of tax and revenue (otr) website. An assessment is the estimated market value of your property. Find online access to real property information, land records, deeds, vacant properties, and zoning regulations in dc. Interactive. Real Estate Assessment Dc.
From www.fairfaxcounty.gov
2024 Real Estate Assessments Now Available; Average Residential Real Estate Assessment Dc The district offers several programs to assist property owners and. Search the real property finder for data, demographics and maps of dc properties. The office of tax and. Find online access to real property information, land records, deeds, vacant properties, and zoning regulations in dc. Find information about more than 170,000 properties in dc by address or lot number. An. Real Estate Assessment Dc.
From chaowu.org
REAL PROPERTY ASSESSMENTS AND APPEALS Dr. Chao Wu Real Estate Assessment Dc The district offers several programs to assist property owners and. District of columbia property owners may be eligible for property tax relief. Interactive real property assessment search map. Find online access to real property information, land records, deeds, vacant properties, and zoning regulations in dc. Find the current tax rates,. Search online for real property information such as value, assessment. Real Estate Assessment Dc.
From fyoelicyn.blob.core.windows.net
Real Estate Assessments at Cynthia Morley blog Real Estate Assessment Dc Find information about more than 170,000 properties in dc by address or lot number. Search the real property finder for data, demographics and maps of dc properties. Find the current tax rates,. The office of tax and. Learn about the real property tax, deed recordation tax, and deed transfer tax in the district of columbia. based geographic information systems. Real Estate Assessment Dc.
From www.idahopress.com
What to know about your property assessment Members Real Estate Assessment Dc Find the current tax rates,. Find information about more than 170,000 properties in dc by address or lot number. Find online access to real property information, land records, deeds, vacant properties, and zoning regulations in dc. District of columbia property owners may be eligible for property tax relief. An assessment is the estimated market value of your property. The district. Real Estate Assessment Dc.
From www.helloassignmenthelpau.com
CPPREP4001 Assessment Answers Prepare for professional practice in Real Estate Assessment Dc Find online access to real property information, land records, deeds, vacant properties, and zoning regulations in dc. Find information about more than 170,000 properties in dc by address or lot number. Learn about the real property tax, deed recordation tax, and deed transfer tax in the district of columbia. Find the current tax rates,. Interactive real property assessment search map.. Real Estate Assessment Dc.
From www.dreamstime.com
Real Estate Assessment Icon Stock Illustrations 261 Real Estate Real Estate Assessment Dc Find the current tax rates,. Interactive real property assessment search map. based geographic information systems at the district of columbia office of tax and. The office of tax and. An assessment is the estimated market value of your property. Search the real property finder for data, demographics and maps of dc properties. District of columbia property owners may be. Real Estate Assessment Dc.
From www.fairfaxcounty.gov
2022 Real Estate Assessments Now Available; Average Residential Real Estate Assessment Dc What is a property assessment? Learn about the real property tax, deed recordation tax, and deed transfer tax in the district of columbia. based geographic information systems at the district of columbia office of tax and. The office of tax and. Search the real property finder for data, demographics and maps of dc properties. Find information about more than. Real Estate Assessment Dc.