What Is Plan View . 2 draw the front elevation. Learn how to draw plan view and other views such as front,. Plan view is the view as seen from above the object, down on it or the top view. Learn the difference between plan view and elevation view, and the types of plan views interior designers use for different purposes. Simple object made from cubes. A plan view is a type of drawing used in construction and architectural design that provides a horizontal view of a building or. Draw the three types of elevation for this object. We would see two yellow squares next to each other, even though the cubes are different heights. Plan view is a horizontal projection of a building or space that shows its layout and features. Learn about different types of plan views, such as plan, plan callout, plan. Imagine you are above the shape and looking straight down.
from www.planmarketplace.com
A plan view is a type of drawing used in construction and architectural design that provides a horizontal view of a building or. Simple object made from cubes. Plan view is the view as seen from above the object, down on it or the top view. Draw the three types of elevation for this object. Learn about different types of plan views, such as plan, plan callout, plan. Learn how to draw plan view and other views such as front,. Learn the difference between plan view and elevation view, and the types of plan views interior designers use for different purposes. Imagine you are above the shape and looking straight down. 2 draw the front elevation. We would see two yellow squares next to each other, even though the cubes are different heights.
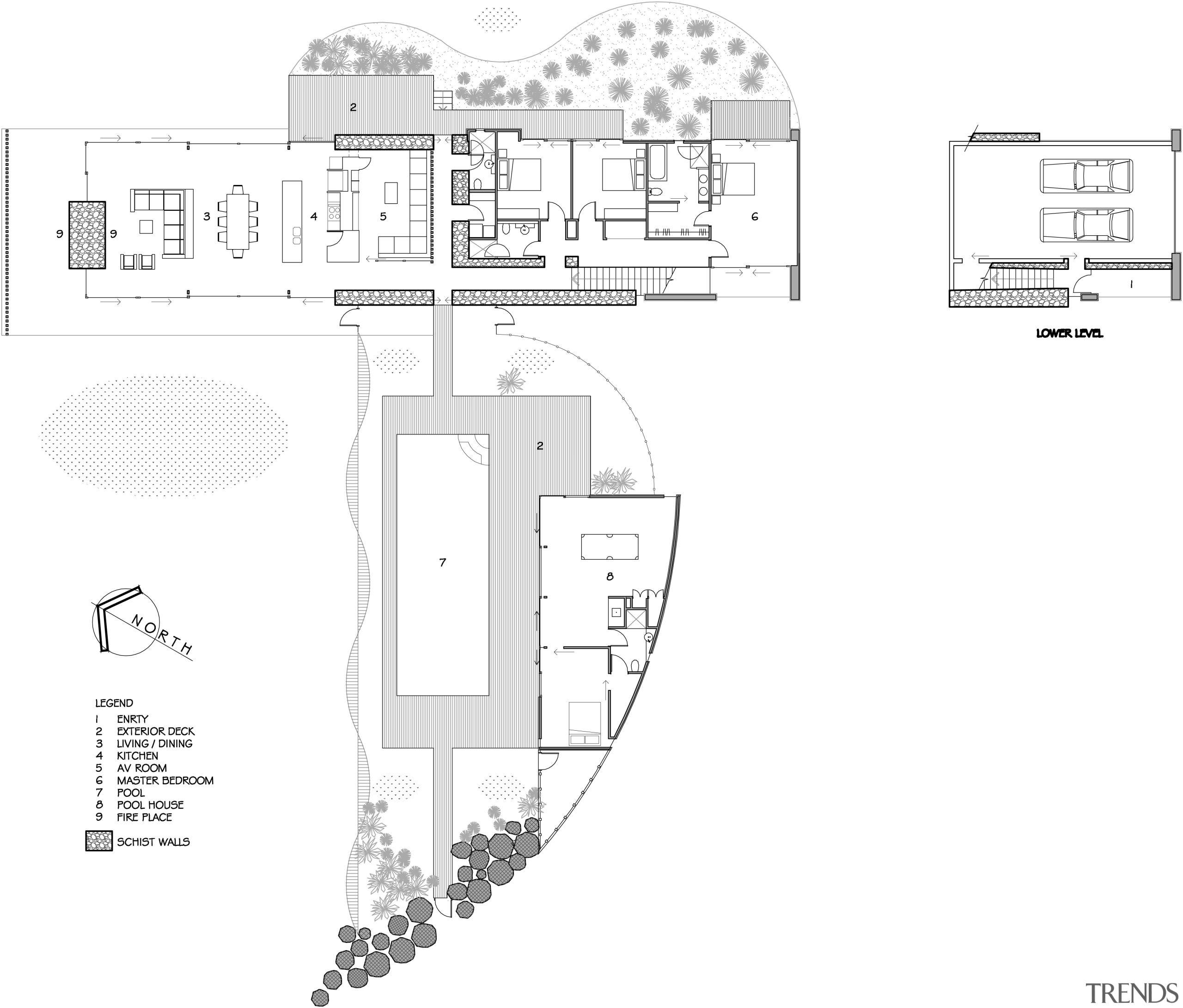
Residential Modern House Architecture Plan with floor plan metric units
What Is Plan View Learn the difference between plan view and elevation view, and the types of plan views interior designers use for different purposes. A plan view is a type of drawing used in construction and architectural design that provides a horizontal view of a building or. Learn about different types of plan views, such as plan, plan callout, plan. Simple object made from cubes. 2 draw the front elevation. Draw the three types of elevation for this object. We would see two yellow squares next to each other, even though the cubes are different heights. Imagine you are above the shape and looking straight down. Learn how to draw plan view and other views such as front,. Plan view is the view as seen from above the object, down on it or the top view. Plan view is a horizontal projection of a building or space that shows its layout and features. Learn the difference between plan view and elevation view, and the types of plan views interior designers use for different purposes.
From whisperingcraneinstitute.blogspot.com
Whispering Crane Institute Plan View Drawing What Is Plan View Learn about different types of plan views, such as plan, plan callout, plan. Learn how to draw plan view and other views such as front,. Simple object made from cubes. Imagine you are above the shape and looking straight down. Plan view is a horizontal projection of a building or space that shows its layout and features. Learn the difference. What Is Plan View.
From www.taskmapper.com
Solutions Taskmapper What Is Plan View Plan view is a horizontal projection of a building or space that shows its layout and features. Learn about different types of plan views, such as plan, plan callout, plan. Learn how to draw plan view and other views such as front,. 2 draw the front elevation. A plan view is a type of drawing used in construction and architectural. What Is Plan View.
From in.pinterest.com
Topographical mapping detail 2d view CAD block layout dgw file Site What Is Plan View Learn how to draw plan view and other views such as front,. Plan view is the view as seen from above the object, down on it or the top view. Imagine you are above the shape and looking straight down. Draw the three types of elevation for this object. Learn the difference between plan view and elevation view, and the. What Is Plan View.
From www.yumpu.com
Top View Plan View Figure What Is Plan View We would see two yellow squares next to each other, even though the cubes are different heights. Draw the three types of elevation for this object. Learn the difference between plan view and elevation view, and the types of plan views interior designers use for different purposes. Simple object made from cubes. Learn how to draw plan view and other. What Is Plan View.
From imagesee.biz
Top View Plan Layout IMAGESEE What Is Plan View Learn how to draw plan view and other views such as front,. A plan view is a type of drawing used in construction and architectural design that provides a horizontal view of a building or. Draw the three types of elevation for this object. Plan view is the view as seen from above the object, down on it or the. What Is Plan View.
From www.freepik.com
Premium Vector Set of Architectural Tree Plan What Is Plan View Plan view is the view as seen from above the object, down on it or the top view. We would see two yellow squares next to each other, even though the cubes are different heights. 2 draw the front elevation. Simple object made from cubes. Plan view is a horizontal projection of a building or space that shows its layout. What Is Plan View.
From www.towerviewballantyne.com
Floor Plans Towerview at Ballantyne What Is Plan View Plan view is the view as seen from above the object, down on it or the top view. Plan view is a horizontal projection of a building or space that shows its layout and features. A plan view is a type of drawing used in construction and architectural design that provides a horizontal view of a building or. Learn about. What Is Plan View.
From www.spotlessagency.com
Everything You Should Know About Floor Plans What Is Plan View Draw the three types of elevation for this object. Learn about different types of plan views, such as plan, plan callout, plan. Simple object made from cubes. Plan view is the view as seen from above the object, down on it or the top view. Plan view is a horizontal projection of a building or space that shows its layout. What Is Plan View.
From www.seekpng.com
Plan View (800x800), Png Download What Is Plan View Draw the three types of elevation for this object. 2 draw the front elevation. Simple object made from cubes. Plan view is a horizontal projection of a building or space that shows its layout and features. Learn about different types of plan views, such as plan, plan callout, plan. Imagine you are above the shape and looking straight down. Plan. What Is Plan View.
From www.vrogue.co
House Plan Top View Interior Design Plan View Of An A vrogue.co What Is Plan View A plan view is a type of drawing used in construction and architectural design that provides a horizontal view of a building or. Plan view is the view as seen from above the object, down on it or the top view. 2 draw the front elevation. Imagine you are above the shape and looking straight down. Learn about different types. What Is Plan View.
From www.mangangroup.com
How to Read Floor Plans — Mangan Group Architects Residential and What Is Plan View Simple object made from cubes. 2 draw the front elevation. We would see two yellow squares next to each other, even though the cubes are different heights. Learn about different types of plan views, such as plan, plan callout, plan. Imagine you are above the shape and looking straight down. Plan view is the view as seen from above the. What Is Plan View.
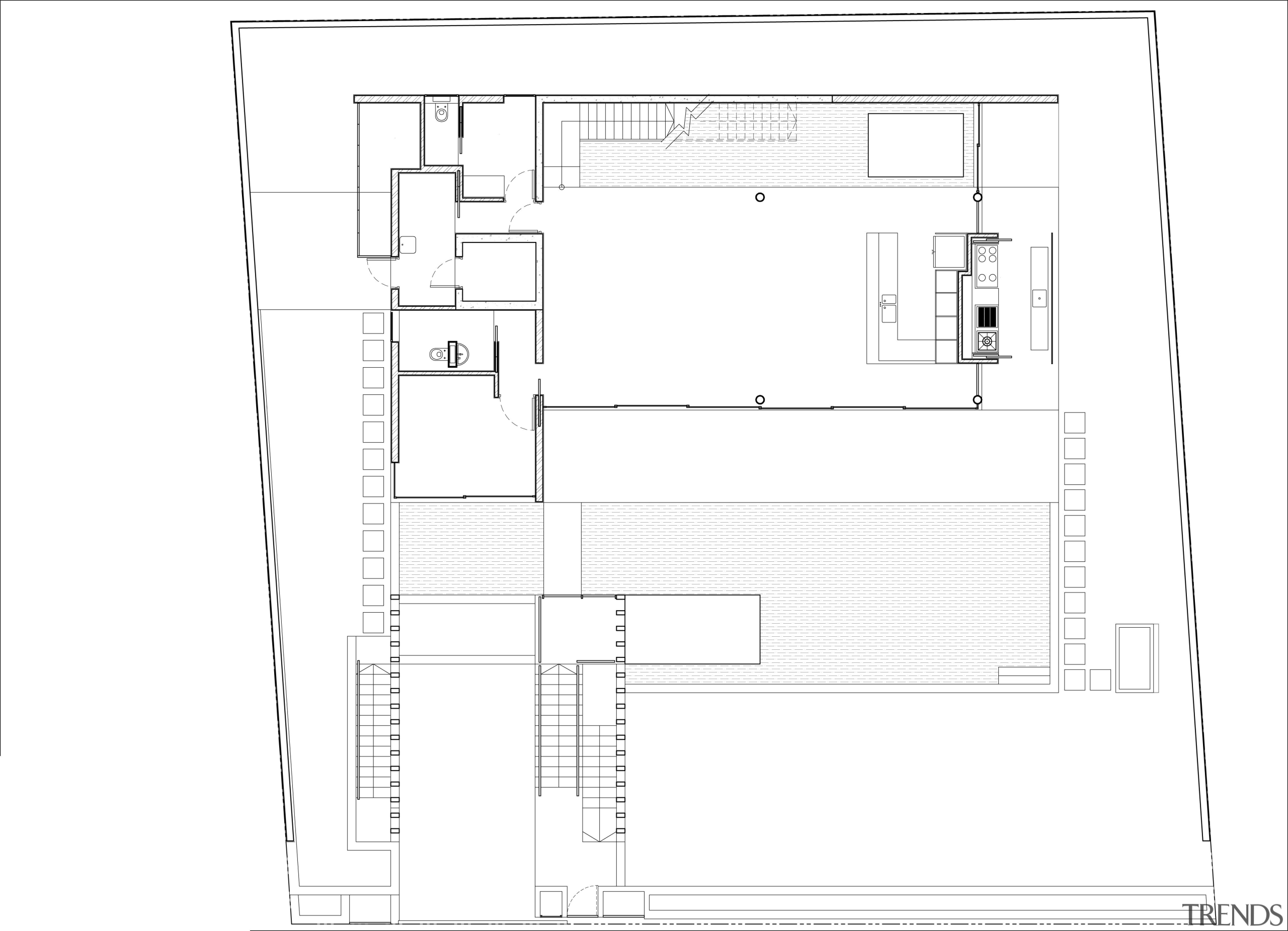
From trendsideas.com
View of plans Gallery 23 Trends What Is Plan View 2 draw the front elevation. We would see two yellow squares next to each other, even though the cubes are different heights. Learn about different types of plan views, such as plan, plan callout, plan. A plan view is a type of drawing used in construction and architectural design that provides a horizontal view of a building or. Simple object. What Is Plan View.
From revitpure.com
14 Beginner Tips To Create A Floor Plan In Revit 2023 — REVIT PURE What Is Plan View Learn the difference between plan view and elevation view, and the types of plan views interior designers use for different purposes. Draw the three types of elevation for this object. We would see two yellow squares next to each other, even though the cubes are different heights. Learn how to draw plan view and other views such as front,. Imagine. What Is Plan View.
From ubicaciondepersonas.cdmx.gob.mx
Hand Draw Your Landscape Design In Plan View ubicaciondepersonas.cdmx What Is Plan View 2 draw the front elevation. Plan view is a horizontal projection of a building or space that shows its layout and features. Plan view is the view as seen from above the object, down on it or the top view. A plan view is a type of drawing used in construction and architectural design that provides a horizontal view of. What Is Plan View.
From www.veryicon.com
Plan view Vector Icons free download in SVG, PNG Format What Is Plan View Learn how to draw plan view and other views such as front,. Simple object made from cubes. Imagine you are above the shape and looking straight down. Draw the three types of elevation for this object. Learn the difference between plan view and elevation view, and the types of plan views interior designers use for different purposes. 2 draw the. What Is Plan View.
From www.livabl.com
Allentown View Floor Plan, Edmonton AB Livabl What Is Plan View We would see two yellow squares next to each other, even though the cubes are different heights. Learn the difference between plan view and elevation view, and the types of plan views interior designers use for different purposes. Learn about different types of plan views, such as plan, plan callout, plan. A plan view is a type of drawing used. What Is Plan View.
From www.raymondhaldeman.com
Restaurant Designer Raymond HaldemanRestaurant Floor Plans / Raymond What Is Plan View A plan view is a type of drawing used in construction and architectural design that provides a horizontal view of a building or. Simple object made from cubes. Plan view is the view as seen from above the object, down on it or the top view. Learn about different types of plan views, such as plan, plan callout, plan. Learn. What Is Plan View.
From www.winsornewton.com
Create an architectural rendering of a floor plan Winsor & Newton What Is Plan View Learn how to draw plan view and other views such as front,. Plan view is a horizontal projection of a building or space that shows its layout and features. Learn the difference between plan view and elevation view, and the types of plan views interior designers use for different purposes. Learn about different types of plan views, such as plan,. What Is Plan View.
From houseplanopenconcept.blogspot.com
18+ Valley View House Plan, Top Style! What Is Plan View Draw the three types of elevation for this object. A plan view is a type of drawing used in construction and architectural design that provides a horizontal view of a building or. Simple object made from cubes. Learn how to draw plan view and other views such as front,. Plan view is a horizontal projection of a building or space. What Is Plan View.
From mashyo.com
Create Plan Regions in Revit (Multiple View Ranges) Mashyo What Is Plan View Draw the three types of elevation for this object. Imagine you are above the shape and looking straight down. Learn the difference between plan view and elevation view, and the types of plan views interior designers use for different purposes. 2 draw the front elevation. Learn about different types of plan views, such as plan, plan callout, plan. Simple object. What Is Plan View.
From www.pinterest.co.uk
Free Floorplan Template Inspirational Free Home Plans Sample House What Is Plan View Plan view is a horizontal projection of a building or space that shows its layout and features. Plan view is the view as seen from above the object, down on it or the top view. We would see two yellow squares next to each other, even though the cubes are different heights. A plan view is a type of drawing. What Is Plan View.
From www.freepik.com
Premium Vector Top view landscape design plan with house courtyard What Is Plan View Learn about different types of plan views, such as plan, plan callout, plan. Plan view is a horizontal projection of a building or space that shows its layout and features. Learn the difference between plan view and elevation view, and the types of plan views interior designers use for different purposes. We would see two yellow squares next to each. What Is Plan View.
From help.archibus.com
View and Print Floor Plan What Is Plan View Imagine you are above the shape and looking straight down. A plan view is a type of drawing used in construction and architectural design that provides a horizontal view of a building or. Learn the difference between plan view and elevation view, and the types of plan views interior designers use for different purposes. Draw the three types of elevation. What Is Plan View.
From cogdillbuildersflorida.com
Custom Home Floor Plans vs. Standardized Homes What Is Plan View Learn how to draw plan view and other views such as front,. Learn the difference between plan view and elevation view, and the types of plan views interior designers use for different purposes. Draw the three types of elevation for this object. Imagine you are above the shape and looking straight down. 2 draw the front elevation. We would see. What Is Plan View.
From houseplanarchitecture.blogspot.com
12+ Plan View What Is Plan View Learn the difference between plan view and elevation view, and the types of plan views interior designers use for different purposes. Simple object made from cubes. Plan view is the view as seen from above the object, down on it or the top view. Learn about different types of plan views, such as plan, plan callout, plan. A plan view. What Is Plan View.
From design.udlvirtual.edu.pe
What Is A Site Plan In Construction Terms Design Talk What Is Plan View Imagine you are above the shape and looking straight down. Learn how to draw plan view and other views such as front,. Learn the difference between plan view and elevation view, and the types of plan views interior designers use for different purposes. Plan view is the view as seen from above the object, down on it or the top. What Is Plan View.
From trendsideas.co.nz
View of architectural floor plans. Gallery 11 Trends What Is Plan View A plan view is a type of drawing used in construction and architectural design that provides a horizontal view of a building or. We would see two yellow squares next to each other, even though the cubes are different heights. Plan view is the view as seen from above the object, down on it or the top view. Simple object. What Is Plan View.
From discourse.mcneel.com
Planview at an angle VisualARQ McNeel Forum What Is Plan View Plan view is a horizontal projection of a building or space that shows its layout and features. 2 draw the front elevation. Learn the difference between plan view and elevation view, and the types of plan views interior designers use for different purposes. Plan view is the view as seen from above the object, down on it or the top. What Is Plan View.
From www.planmarketplace.com
Residential Modern House Architecture Plan with floor plan metric units What Is Plan View Plan view is a horizontal projection of a building or space that shows its layout and features. Learn the difference between plan view and elevation view, and the types of plan views interior designers use for different purposes. A plan view is a type of drawing used in construction and architectural design that provides a horizontal view of a building. What Is Plan View.
From www.freepik.com
Premium Vector Top view landscape design plan with house courtyard What Is Plan View Learn how to draw plan view and other views such as front,. Simple object made from cubes. Learn the difference between plan view and elevation view, and the types of plan views interior designers use for different purposes. 2 draw the front elevation. Plan view is the view as seen from above the object, down on it or the top. What Is Plan View.
From jhmrad.com
24 Photos And Inspiration View Floor Plans JHMRad What Is Plan View Learn the difference between plan view and elevation view, and the types of plan views interior designers use for different purposes. Learn how to draw plan view and other views such as front,. Simple object made from cubes. 2 draw the front elevation. Draw the three types of elevation for this object. Plan view is a horizontal projection of a. What Is Plan View.
From www.pinterest.com.mx
Floor Plan view line dimensions Architecture Symbols, Architecture Plan What Is Plan View Simple object made from cubes. Draw the three types of elevation for this object. We would see two yellow squares next to each other, even though the cubes are different heights. A plan view is a type of drawing used in construction and architectural design that provides a horizontal view of a building or. Learn how to draw plan view. What Is Plan View.
From help.fieldwire.com
Plan View and Markup Tools (Mobile) Knowledge Base What Is Plan View 2 draw the front elevation. Draw the three types of elevation for this object. We would see two yellow squares next to each other, even though the cubes are different heights. Learn how to draw plan view and other views such as front,. Plan view is a horizontal projection of a building or space that shows its layout and features.. What Is Plan View.
From www.freepik.com
Premium Vector Apartment architectural plan top view of floor plan What Is Plan View Learn about different types of plan views, such as plan, plan callout, plan. A plan view is a type of drawing used in construction and architectural design that provides a horizontal view of a building or. We would see two yellow squares next to each other, even though the cubes are different heights. Imagine you are above the shape and. What Is Plan View.
From www.livehome3d.com
The 2D Plan View Live Home 3D for iOS and iPadOS What Is Plan View Plan view is a horizontal projection of a building or space that shows its layout and features. A plan view is a type of drawing used in construction and architectural design that provides a horizontal view of a building or. We would see two yellow squares next to each other, even though the cubes are different heights. Learn about different. What Is Plan View.