Impressed Current Cathodic Protection System Design Pdf . In the design of impressed current cathodic protection systems the first step is the determination of the total current required for. 1.2.2 some of the design recommendations and methods in sections 5, 6 and 7 are also valid for cp systems using other current sources such as magnesium anodes and. Industry standard capac® impressed current cathodic protection (iccp) systems provide automatic, permanent protection that prevents. Impressed current cathodic protection systems use the same elements as the galvanic protection system, only the. There are two main types of cathodic protection systems: Feedback is provided by reference cells strategically placed around the hull that measure the output of the anodes. Impressed current cathodic protection system (iccp) with coating is an effective method of controlling the corrosion. Figure 1 shows these two types.
from mavink.com
Impressed current cathodic protection systems use the same elements as the galvanic protection system, only the. Industry standard capac® impressed current cathodic protection (iccp) systems provide automatic, permanent protection that prevents. Impressed current cathodic protection system (iccp) with coating is an effective method of controlling the corrosion. There are two main types of cathodic protection systems: 1.2.2 some of the design recommendations and methods in sections 5, 6 and 7 are also valid for cp systems using other current sources such as magnesium anodes and. In the design of impressed current cathodic protection systems the first step is the determination of the total current required for. Feedback is provided by reference cells strategically placed around the hull that measure the output of the anodes. Figure 1 shows these two types.
Cathodic Protection Diagram
Impressed Current Cathodic Protection System Design Pdf Feedback is provided by reference cells strategically placed around the hull that measure the output of the anodes. Feedback is provided by reference cells strategically placed around the hull that measure the output of the anodes. Impressed current cathodic protection systems use the same elements as the galvanic protection system, only the. Figure 1 shows these two types. There are two main types of cathodic protection systems: Impressed current cathodic protection system (iccp) with coating is an effective method of controlling the corrosion. 1.2.2 some of the design recommendations and methods in sections 5, 6 and 7 are also valid for cp systems using other current sources such as magnesium anodes and. In the design of impressed current cathodic protection systems the first step is the determination of the total current required for. Industry standard capac® impressed current cathodic protection (iccp) systems provide automatic, permanent protection that prevents.
From www.nautilusshipping.com
What is Cathodic Protection? Types of cathodic protection Impressed Current Cathodic Protection System Design Pdf In the design of impressed current cathodic protection systems the first step is the determination of the total current required for. Feedback is provided by reference cells strategically placed around the hull that measure the output of the anodes. Industry standard capac® impressed current cathodic protection (iccp) systems provide automatic, permanent protection that prevents. 1.2.2 some of the design recommendations. Impressed Current Cathodic Protection System Design Pdf.
From www.boatcorrosion.com
How ElectroGuard Impressed Current Cathodic Protection Systems work Impressed Current Cathodic Protection System Design Pdf Impressed current cathodic protection system (iccp) with coating is an effective method of controlling the corrosion. There are two main types of cathodic protection systems: Feedback is provided by reference cells strategically placed around the hull that measure the output of the anodes. In the design of impressed current cathodic protection systems the first step is the determination of the. Impressed Current Cathodic Protection System Design Pdf.
From www.vrogue.co
Sacp Sacrificial Anode Cathodic Protection vrogue.co Impressed Current Cathodic Protection System Design Pdf Feedback is provided by reference cells strategically placed around the hull that measure the output of the anodes. 1.2.2 some of the design recommendations and methods in sections 5, 6 and 7 are also valid for cp systems using other current sources such as magnesium anodes and. There are two main types of cathodic protection systems: Impressed current cathodic protection. Impressed Current Cathodic Protection System Design Pdf.
From www.mdpi.com
Sustainability Free FullText Integrated Nanogrid for the Impressed Impressed Current Cathodic Protection System Design Pdf Impressed current cathodic protection system (iccp) with coating is an effective method of controlling the corrosion. Figure 1 shows these two types. Impressed current cathodic protection systems use the same elements as the galvanic protection system, only the. There are two main types of cathodic protection systems: Industry standard capac® impressed current cathodic protection (iccp) systems provide automatic, permanent protection. Impressed Current Cathodic Protection System Design Pdf.
From www.youtube.com
Impressed Current Cathodic Protection YouTube Impressed Current Cathodic Protection System Design Pdf Feedback is provided by reference cells strategically placed around the hull that measure the output of the anodes. Impressed current cathodic protection system (iccp) with coating is an effective method of controlling the corrosion. 1.2.2 some of the design recommendations and methods in sections 5, 6 and 7 are also valid for cp systems using other current sources such as. Impressed Current Cathodic Protection System Design Pdf.
From mavink.com
Tank Cathodic Protection System Impressed Current Cathodic Protection System Design Pdf Industry standard capac® impressed current cathodic protection (iccp) systems provide automatic, permanent protection that prevents. There are two main types of cathodic protection systems: 1.2.2 some of the design recommendations and methods in sections 5, 6 and 7 are also valid for cp systems using other current sources such as magnesium anodes and. Impressed current cathodic protection system (iccp) with. Impressed Current Cathodic Protection System Design Pdf.
From dokumen.tips
(PDF) Impressed Current Cathodic Protection Systems DOKUMEN.TIPS Impressed Current Cathodic Protection System Design Pdf 1.2.2 some of the design recommendations and methods in sections 5, 6 and 7 are also valid for cp systems using other current sources such as magnesium anodes and. There are two main types of cathodic protection systems: Impressed current cathodic protection systems use the same elements as the galvanic protection system, only the. Feedback is provided by reference cells. Impressed Current Cathodic Protection System Design Pdf.
From www.vrogue.co
Installation Of Impressed Current Cathodic Protection vrogue.co Impressed Current Cathodic Protection System Design Pdf There are two main types of cathodic protection systems: Impressed current cathodic protection system (iccp) with coating is an effective method of controlling the corrosion. Feedback is provided by reference cells strategically placed around the hull that measure the output of the anodes. Industry standard capac® impressed current cathodic protection (iccp) systems provide automatic, permanent protection that prevents. 1.2.2 some. Impressed Current Cathodic Protection System Design Pdf.
From cathodicme.com
Impressed Current Cathodic Protection ICCP Systems Impressed Current Cathodic Protection System Design Pdf Industry standard capac® impressed current cathodic protection (iccp) systems provide automatic, permanent protection that prevents. Figure 1 shows these two types. There are two main types of cathodic protection systems: Impressed current cathodic protection systems use the same elements as the galvanic protection system, only the. In the design of impressed current cathodic protection systems the first step is the. Impressed Current Cathodic Protection System Design Pdf.
From www.mdpi.com
Materials Free FullText A Critical Analysis on the Current Design Impressed Current Cathodic Protection System Design Pdf Figure 1 shows these two types. Impressed current cathodic protection systems use the same elements as the galvanic protection system, only the. Industry standard capac® impressed current cathodic protection (iccp) systems provide automatic, permanent protection that prevents. There are two main types of cathodic protection systems: Feedback is provided by reference cells strategically placed around the hull that measure the. Impressed Current Cathodic Protection System Design Pdf.
From www.gbu-presnenskij.ru
Impressed Current Cathodic Protection ICCP) In Ship Full, 53 OFF Impressed Current Cathodic Protection System Design Pdf Feedback is provided by reference cells strategically placed around the hull that measure the output of the anodes. In the design of impressed current cathodic protection systems the first step is the determination of the total current required for. Impressed current cathodic protection systems use the same elements as the galvanic protection system, only the. 1.2.2 some of the design. Impressed Current Cathodic Protection System Design Pdf.
From www.vrogue.co
Impressed Current Cathodic Protection System Design I vrogue.co Impressed Current Cathodic Protection System Design Pdf Feedback is provided by reference cells strategically placed around the hull that measure the output of the anodes. There are two main types of cathodic protection systems: In the design of impressed current cathodic protection systems the first step is the determination of the total current required for. Figure 1 shows these two types. Impressed current cathodic protection systems use. Impressed Current Cathodic Protection System Design Pdf.
From www.researchgate.net
(PDF) Design and Simulation of a Cathodic Protection System at Impressed Current Cathodic Protection System Design Pdf Figure 1 shows these two types. Feedback is provided by reference cells strategically placed around the hull that measure the output of the anodes. In the design of impressed current cathodic protection systems the first step is the determination of the total current required for. Industry standard capac® impressed current cathodic protection (iccp) systems provide automatic, permanent protection that prevents.. Impressed Current Cathodic Protection System Design Pdf.
From engineenginegarland.z6.web.core.windows.net
Impressed Current Cathodic Protection Circuit Diagram Impressed Current Cathodic Protection System Design Pdf Figure 1 shows these two types. There are two main types of cathodic protection systems: 1.2.2 some of the design recommendations and methods in sections 5, 6 and 7 are also valid for cp systems using other current sources such as magnesium anodes and. Impressed current cathodic protection system (iccp) with coating is an effective method of controlling the corrosion.. Impressed Current Cathodic Protection System Design Pdf.
From www.vrogue.co
Impressed Current Cathodic Protection Iccp Systems vrogue.co Impressed Current Cathodic Protection System Design Pdf Impressed current cathodic protection system (iccp) with coating is an effective method of controlling the corrosion. In the design of impressed current cathodic protection systems the first step is the determination of the total current required for. There are two main types of cathodic protection systems: Industry standard capac® impressed current cathodic protection (iccp) systems provide automatic, permanent protection that. Impressed Current Cathodic Protection System Design Pdf.
From www.indiamart.com
5 kVA IMPRESSED CURRENT CATHODIC PROTECTION SYSTEM FOR PIPELINE at Rs Impressed Current Cathodic Protection System Design Pdf Impressed current cathodic protection systems use the same elements as the galvanic protection system, only the. There are two main types of cathodic protection systems: Figure 1 shows these two types. In the design of impressed current cathodic protection systems the first step is the determination of the total current required for. Feedback is provided by reference cells strategically placed. Impressed Current Cathodic Protection System Design Pdf.
From www.vrogue.co
Pipeline Cathodic Protection System vrogue.co Impressed Current Cathodic Protection System Design Pdf Figure 1 shows these two types. Feedback is provided by reference cells strategically placed around the hull that measure the output of the anodes. Industry standard capac® impressed current cathodic protection (iccp) systems provide automatic, permanent protection that prevents. There are two main types of cathodic protection systems: Impressed current cathodic protection system (iccp) with coating is an effective method. Impressed Current Cathodic Protection System Design Pdf.
From dieselship.co.uk
Impressed current cathodic protection (ICCP) on ships DieselShip UK Impressed Current Cathodic Protection System Design Pdf In the design of impressed current cathodic protection systems the first step is the determination of the total current required for. There are two main types of cathodic protection systems: 1.2.2 some of the design recommendations and methods in sections 5, 6 and 7 are also valid for cp systems using other current sources such as magnesium anodes and. Figure. Impressed Current Cathodic Protection System Design Pdf.
From www.vrogue.co
Impressed Current Cathodic Protection System vrogue.co Impressed Current Cathodic Protection System Design Pdf Industry standard capac® impressed current cathodic protection (iccp) systems provide automatic, permanent protection that prevents. Impressed current cathodic protection systems use the same elements as the galvanic protection system, only the. In the design of impressed current cathodic protection systems the first step is the determination of the total current required for. Impressed current cathodic protection system (iccp) with coating. Impressed Current Cathodic Protection System Design Pdf.
From stoprust.com
Cathodic Protection Impressed Current Cathodic Protection System Design Pdf Impressed current cathodic protection systems use the same elements as the galvanic protection system, only the. Figure 1 shows these two types. Industry standard capac® impressed current cathodic protection (iccp) systems provide automatic, permanent protection that prevents. There are two main types of cathodic protection systems: Feedback is provided by reference cells strategically placed around the hull that measure the. Impressed Current Cathodic Protection System Design Pdf.
From paktechpoint.com
What is Cathodic Protection System? Technical Guide for Engineers Impressed Current Cathodic Protection System Design Pdf Impressed current cathodic protection system (iccp) with coating is an effective method of controlling the corrosion. In the design of impressed current cathodic protection systems the first step is the determination of the total current required for. There are two main types of cathodic protection systems: Feedback is provided by reference cells strategically placed around the hull that measure the. Impressed Current Cathodic Protection System Design Pdf.
From pdfslide.net
(PDF) Shipboard impressed current cathodic protection system · PDF Impressed Current Cathodic Protection System Design Pdf Figure 1 shows these two types. Impressed current cathodic protection systems use the same elements as the galvanic protection system, only the. There are two main types of cathodic protection systems: In the design of impressed current cathodic protection systems the first step is the determination of the total current required for. Impressed current cathodic protection system (iccp) with coating. Impressed Current Cathodic Protection System Design Pdf.
From www.linkedin.com
Effectiveness of Tank Bottom Plate Soil Side Impressed Current Cathodic Impressed Current Cathodic Protection System Design Pdf There are two main types of cathodic protection systems: In the design of impressed current cathodic protection systems the first step is the determination of the total current required for. Figure 1 shows these two types. Industry standard capac® impressed current cathodic protection (iccp) systems provide automatic, permanent protection that prevents. Impressed current cathodic protection systems use the same elements. Impressed Current Cathodic Protection System Design Pdf.
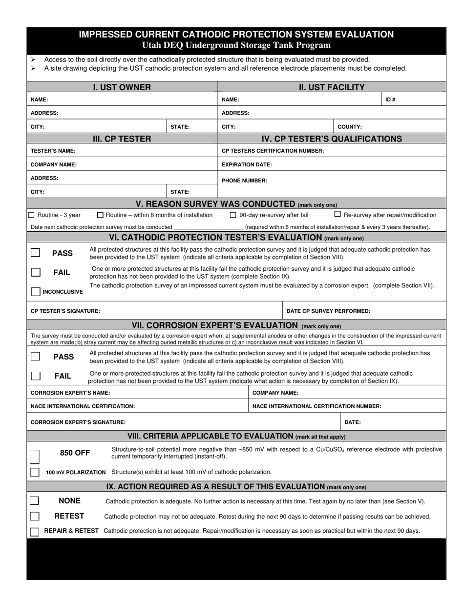
From www.templateroller.com
Utah Impressed Current Cathodic Protection System Evaluation Fill Out Impressed Current Cathodic Protection System Design Pdf Impressed current cathodic protection system (iccp) with coating is an effective method of controlling the corrosion. There are two main types of cathodic protection systems: Figure 1 shows these two types. Feedback is provided by reference cells strategically placed around the hull that measure the output of the anodes. In the design of impressed current cathodic protection systems the first. Impressed Current Cathodic Protection System Design Pdf.
From www.researchgate.net
(PDF) Numerical Study and Design of an Impressed Current Cathodic Impressed Current Cathodic Protection System Design Pdf 1.2.2 some of the design recommendations and methods in sections 5, 6 and 7 are also valid for cp systems using other current sources such as magnesium anodes and. There are two main types of cathodic protection systems: Figure 1 shows these two types. Industry standard capac® impressed current cathodic protection (iccp) systems provide automatic, permanent protection that prevents. Impressed. Impressed Current Cathodic Protection System Design Pdf.
From www.vtech-electric.vn
Cathodic Protection System Impressed Current Cathodic Protection System Design Pdf Impressed current cathodic protection systems use the same elements as the galvanic protection system, only the. Feedback is provided by reference cells strategically placed around the hull that measure the output of the anodes. Impressed current cathodic protection system (iccp) with coating is an effective method of controlling the corrosion. Figure 1 shows these two types. Industry standard capac® impressed. Impressed Current Cathodic Protection System Design Pdf.
From www.linkedin.com
CATHODIC PROTECTION DESIGN SUMMARY Impressed Current Cathodic Protection System Design Pdf In the design of impressed current cathodic protection systems the first step is the determination of the total current required for. Impressed current cathodic protection systems use the same elements as the galvanic protection system, only the. Industry standard capac® impressed current cathodic protection (iccp) systems provide automatic, permanent protection that prevents. Impressed current cathodic protection system (iccp) with coating. Impressed Current Cathodic Protection System Design Pdf.
From pdfslide.net
(PPTX) Impressed Current Cathodic Protection System Design ICCP Impressed Current Cathodic Protection System Design Pdf Impressed current cathodic protection systems use the same elements as the galvanic protection system, only the. 1.2.2 some of the design recommendations and methods in sections 5, 6 and 7 are also valid for cp systems using other current sources such as magnesium anodes and. Industry standard capac® impressed current cathodic protection (iccp) systems provide automatic, permanent protection that prevents.. Impressed Current Cathodic Protection System Design Pdf.
From www.corrosionpedia.com
What is Impressed Current Cathodic Protection (ICCP)? Definition from Impressed Current Cathodic Protection System Design Pdf In the design of impressed current cathodic protection systems the first step is the determination of the total current required for. Impressed current cathodic protection system (iccp) with coating is an effective method of controlling the corrosion. Industry standard capac® impressed current cathodic protection (iccp) systems provide automatic, permanent protection that prevents. Feedback is provided by reference cells strategically placed. Impressed Current Cathodic Protection System Design Pdf.
From www.slideshare.net
Impressed Current Cathodic Protection System Design ICCP PPT Impressed Current Cathodic Protection System Design Pdf Impressed current cathodic protection system (iccp) with coating is an effective method of controlling the corrosion. Impressed current cathodic protection systems use the same elements as the galvanic protection system, only the. Feedback is provided by reference cells strategically placed around the hull that measure the output of the anodes. In the design of impressed current cathodic protection systems the. Impressed Current Cathodic Protection System Design Pdf.
From mavink.com
Cathodic Protection Diagram Impressed Current Cathodic Protection System Design Pdf 1.2.2 some of the design recommendations and methods in sections 5, 6 and 7 are also valid for cp systems using other current sources such as magnesium anodes and. Feedback is provided by reference cells strategically placed around the hull that measure the output of the anodes. Figure 1 shows these two types. Impressed current cathodic protection system (iccp) with. Impressed Current Cathodic Protection System Design Pdf.
From wallpaperfullhdandroidblack.blogspot.com
cathodic protection ground bed design wallpaperfullhdandroidblack Impressed Current Cathodic Protection System Design Pdf Industry standard capac® impressed current cathodic protection (iccp) systems provide automatic, permanent protection that prevents. Feedback is provided by reference cells strategically placed around the hull that measure the output of the anodes. Impressed current cathodic protection systems use the same elements as the galvanic protection system, only the. There are two main types of cathodic protection systems: 1.2.2 some. Impressed Current Cathodic Protection System Design Pdf.
From www.researchgate.net
The model of impressed current cathodic protection (ICCP) system (a Impressed Current Cathodic Protection System Design Pdf In the design of impressed current cathodic protection systems the first step is the determination of the total current required for. There are two main types of cathodic protection systems: Industry standard capac® impressed current cathodic protection (iccp) systems provide automatic, permanent protection that prevents. Feedback is provided by reference cells strategically placed around the hull that measure the output. Impressed Current Cathodic Protection System Design Pdf.
From www.linecad.com
Cathodic Protection Free CAD Block And AutoCAD Drawing Impressed Current Cathodic Protection System Design Pdf 1.2.2 some of the design recommendations and methods in sections 5, 6 and 7 are also valid for cp systems using other current sources such as magnesium anodes and. Impressed current cathodic protection system (iccp) with coating is an effective method of controlling the corrosion. Industry standard capac® impressed current cathodic protection (iccp) systems provide automatic, permanent protection that prevents.. Impressed Current Cathodic Protection System Design Pdf.
From www.semanticscholar.org
Smart System for Impressed Current Cathodic Protection Running on Impressed Current Cathodic Protection System Design Pdf 1.2.2 some of the design recommendations and methods in sections 5, 6 and 7 are also valid for cp systems using other current sources such as magnesium anodes and. Impressed current cathodic protection system (iccp) with coating is an effective method of controlling the corrosion. There are two main types of cathodic protection systems: Industry standard capac® impressed current cathodic. Impressed Current Cathodic Protection System Design Pdf.