Diy Garage Shed Plans . This 120 square foot shed can be built in most places without a permit, check the requirements in your. You buy the materials, and he’ll lead you along the process of how to take those raw materials. explore these popular diy shed plans to budget for materials and learn about the tools and steps required to build a durable wooden shed. First, determine how much space you can commit to an. these free shed plans can help you design and build your own diy shed in your yard. these plans show you how to build a small shed from nothing. 10×12 gable shed plans. a successful diy shed starts with choosing the right shed plans. garage sheds are a practical way to keep all of your big items secure for the long term, and you save big bucks when you build your own garage shed.
from www.etsy.com
these free shed plans can help you design and build your own diy shed in your yard. explore these popular diy shed plans to budget for materials and learn about the tools and steps required to build a durable wooden shed. a successful diy shed starts with choosing the right shed plans. This 120 square foot shed can be built in most places without a permit, check the requirements in your. these plans show you how to build a small shed from nothing. First, determine how much space you can commit to an. garage sheds are a practical way to keep all of your big items secure for the long term, and you save big bucks when you build your own garage shed. You buy the materials, and he’ll lead you along the process of how to take those raw materials. 10×12 gable shed plans.
Modern DIY Garage Shed House Set Plans, Home Building Blueprints for
Diy Garage Shed Plans You buy the materials, and he’ll lead you along the process of how to take those raw materials. This 120 square foot shed can be built in most places without a permit, check the requirements in your. You buy the materials, and he’ll lead you along the process of how to take those raw materials. 10×12 gable shed plans. garage sheds are a practical way to keep all of your big items secure for the long term, and you save big bucks when you build your own garage shed. First, determine how much space you can commit to an. these free shed plans can help you design and build your own diy shed in your yard. these plans show you how to build a small shed from nothing. explore these popular diy shed plans to budget for materials and learn about the tools and steps required to build a durable wooden shed. a successful diy shed starts with choosing the right shed plans.
From shedsblueprints.com
Shed Plan Designs Building a Wooden Storage Shed Shed Blueprints Diy Garage Shed Plans This 120 square foot shed can be built in most places without a permit, check the requirements in your. 10×12 gable shed plans. these free shed plans can help you design and build your own diy shed in your yard. explore these popular diy shed plans to budget for materials and learn about the tools and steps. Diy Garage Shed Plans.
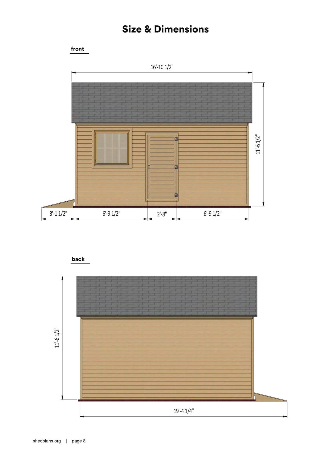
From shedplans.org
Free Shed Plans With Material lists and DIY Instructions Diy Garage Shed Plans This 120 square foot shed can be built in most places without a permit, check the requirements in your. these free shed plans can help you design and build your own diy shed in your yard. garage sheds are a practical way to keep all of your big items secure for the long term, and you save big. Diy Garage Shed Plans.
From shedplans.org
16x24 garage shed plan Diy Garage Shed Plans You buy the materials, and he’ll lead you along the process of how to take those raw materials. these free shed plans can help you design and build your own diy shed in your yard. garage sheds are a practical way to keep all of your big items secure for the long term, and you save big bucks. Diy Garage Shed Plans.
From www.pinterest.com
Two Car Garage Plans With Loft DIY Backyard Shed Building Etsy (With Diy Garage Shed Plans This 120 square foot shed can be built in most places without a permit, check the requirements in your. First, determine how much space you can commit to an. these free shed plans can help you design and build your own diy shed in your yard. these plans show you how to build a small shed from nothing.. Diy Garage Shed Plans.
From www.pinterest.com.au
Building A Lean To Shed Framing And Siding Part 1 Building a shed Diy Garage Shed Plans these free shed plans can help you design and build your own diy shed in your yard. You buy the materials, and he’ll lead you along the process of how to take those raw materials. First, determine how much space you can commit to an. garage sheds are a practical way to keep all of your big items. Diy Garage Shed Plans.
From shedplans.org
16x24 Garage Shed Plan Diy Garage Shed Plans a successful diy shed starts with choosing the right shed plans. First, determine how much space you can commit to an. garage sheds are a practical way to keep all of your big items secure for the long term, and you save big bucks when you build your own garage shed. 10×12 gable shed plans. these. Diy Garage Shed Plans.
From www.pinterest.ca
16X20 Garage Plans 16' x 20' Garage Diy shed plans, Shed plans Diy Garage Shed Plans You buy the materials, and he’ll lead you along the process of how to take those raw materials. 10×12 gable shed plans. garage sheds are a practical way to keep all of your big items secure for the long term, and you save big bucks when you build your own garage shed. these plans show you how. Diy Garage Shed Plans.
From shedsblueprints.com
Free Storage Shed Building Plans Shed Blueprints Diy Garage Shed Plans This 120 square foot shed can be built in most places without a permit, check the requirements in your. a successful diy shed starts with choosing the right shed plans. these free shed plans can help you design and build your own diy shed in your yard. First, determine how much space you can commit to an. . Diy Garage Shed Plans.
From www.etsy.com
Shed Plans 12x16 DIY Garage Shed PDF Etsy Diy Garage Shed Plans these free shed plans can help you design and build your own diy shed in your yard. garage sheds are a practical way to keep all of your big items secure for the long term, and you save big bucks when you build your own garage shed. This 120 square foot shed can be built in most places. Diy Garage Shed Plans.
From shedsplanskits.com
Shed Plans 8 X 12 How A Good Storage Shed Plans Can Help You Shed Diy Garage Shed Plans 10×12 gable shed plans. garage sheds are a practical way to keep all of your big items secure for the long term, and you save big bucks when you build your own garage shed. You buy the materials, and he’ll lead you along the process of how to take those raw materials. This 120 square foot shed can. Diy Garage Shed Plans.
From shedplans.org
12x20 Garage Shed Plan Diy Garage Shed Plans garage sheds are a practical way to keep all of your big items secure for the long term, and you save big bucks when you build your own garage shed. 10×12 gable shed plans. First, determine how much space you can commit to an. these plans show you how to build a small shed from nothing. . Diy Garage Shed Plans.
From coolsheddesigns.com
Shed Plans 10×20 Points To Prepare In Case You Strategy To Build A Diy Garage Shed Plans This 120 square foot shed can be built in most places without a permit, check the requirements in your. You buy the materials, and he’ll lead you along the process of how to take those raw materials. 10×12 gable shed plans. First, determine how much space you can commit to an. these free shed plans can help you. Diy Garage Shed Plans.
From www.construct101.com
10x12 Lean To Shed Plans PDF Download Construct101 Diy Garage Shed Plans a successful diy shed starts with choosing the right shed plans. 10×12 gable shed plans. This 120 square foot shed can be built in most places without a permit, check the requirements in your. these free shed plans can help you design and build your own diy shed in your yard. First, determine how much space you. Diy Garage Shed Plans.
From www.pinterest.com
14' x 20' One Bay Garage. Optional 8' x 20' overhang + double doors Diy Garage Shed Plans explore these popular diy shed plans to budget for materials and learn about the tools and steps required to build a durable wooden shed. garage sheds are a practical way to keep all of your big items secure for the long term, and you save big bucks when you build your own garage shed. a successful diy. Diy Garage Shed Plans.
From www.etsy.com
Modern DIY Garage Shed House Set Plans, Home Building Blueprints for Diy Garage Shed Plans a successful diy shed starts with choosing the right shed plans. First, determine how much space you can commit to an. This 120 square foot shed can be built in most places without a permit, check the requirements in your. 10×12 gable shed plans. garage sheds are a practical way to keep all of your big items. Diy Garage Shed Plans.
From www.pinterest.com
Shed Plans You need a car port with a shed attached? ) www.woodtex Diy Garage Shed Plans these free shed plans can help you design and build your own diy shed in your yard. This 120 square foot shed can be built in most places without a permit, check the requirements in your. these plans show you how to build a small shed from nothing. a successful diy shed starts with choosing the right. Diy Garage Shed Plans.
From dxolomvwo.blob.core.windows.net
Small A Frame Shed Plans at Ronald Lewis blog Diy Garage Shed Plans You buy the materials, and he’ll lead you along the process of how to take those raw materials. 10×12 gable shed plans. these plans show you how to build a small shed from nothing. First, determine how much space you can commit to an. garage sheds are a practical way to keep all of your big items. Diy Garage Shed Plans.
From shedsblueprints.com
DIY Shed Plans A How to Guide Shed Blueprints Diy Garage Shed Plans First, determine how much space you can commit to an. explore these popular diy shed plans to budget for materials and learn about the tools and steps required to build a durable wooden shed. You buy the materials, and he’ll lead you along the process of how to take those raw materials. 10×12 gable shed plans. a. Diy Garage Shed Plans.
From www.familyhandyman.com
DIY Storage Shed Building Tips The Family Handyman Diy Garage Shed Plans explore these popular diy shed plans to budget for materials and learn about the tools and steps required to build a durable wooden shed. these free shed plans can help you design and build your own diy shed in your yard. 10×12 gable shed plans. these plans show you how to build a small shed from. Diy Garage Shed Plans.
From shedplans.org
Free Shed Plans With Material lists and DIY Instructions Diy Garage Shed Plans these plans show you how to build a small shed from nothing. This 120 square foot shed can be built in most places without a permit, check the requirements in your. 10×12 gable shed plans. explore these popular diy shed plans to budget for materials and learn about the tools and steps required to build a durable. Diy Garage Shed Plans.
From www.etsy.com
12x16 Shed W/ Garage Door DIY Plans Large Shed Roll up Door Etsy Canada Diy Garage Shed Plans First, determine how much space you can commit to an. these plans show you how to build a small shed from nothing. This 120 square foot shed can be built in most places without a permit, check the requirements in your. these free shed plans can help you design and build your own diy shed in your yard.. Diy Garage Shed Plans.
From www.pinterest.com
the frame for a shed with measurements to be built into it's roof and Diy Garage Shed Plans these free shed plans can help you design and build your own diy shed in your yard. garage sheds are a practical way to keep all of your big items secure for the long term, and you save big bucks when you build your own garage shed. explore these popular diy shed plans to budget for materials. Diy Garage Shed Plans.
From www.etsy.com
Shed Plans 24x24 DIY Garage Shed PDF Download (Download Now) Etsy Diy Garage Shed Plans these plans show you how to build a small shed from nothing. these free shed plans can help you design and build your own diy shed in your yard. explore these popular diy shed plans to budget for materials and learn about the tools and steps required to build a durable wooden shed. You buy the materials,. Diy Garage Shed Plans.
From www.pinterest.fr
8 Outdoor Projects You Can Do Yourself Shed design, Building a shed Diy Garage Shed Plans these free shed plans can help you design and build your own diy shed in your yard. explore these popular diy shed plans to budget for materials and learn about the tools and steps required to build a durable wooden shed. You buy the materials, and he’ll lead you along the process of how to take those raw. Diy Garage Shed Plans.
From www.youtube.com
How To Build A Shed By Yourself All STEPS 10x16 diy YouTube Diy Garage Shed Plans explore these popular diy shed plans to budget for materials and learn about the tools and steps required to build a durable wooden shed. You buy the materials, and he’ll lead you along the process of how to take those raw materials. these free shed plans can help you design and build your own diy shed in your. Diy Garage Shed Plans.
From www.pinterest.cl
Shed Plans 16X20 Shed Plans All wall and roof framing is from solid Diy Garage Shed Plans a successful diy shed starts with choosing the right shed plans. First, determine how much space you can commit to an. these plans show you how to build a small shed from nothing. This 120 square foot shed can be built in most places without a permit, check the requirements in your. You buy the materials, and he’ll. Diy Garage Shed Plans.
From www.etsy.com
Shed Plans 12x16 DIY Garage Shed PDF Etsy Diy Garage Shed Plans these plans show you how to build a small shed from nothing. these free shed plans can help you design and build your own diy shed in your yard. This 120 square foot shed can be built in most places without a permit, check the requirements in your. You buy the materials, and he’ll lead you along the. Diy Garage Shed Plans.
From mydecorative.com
garageshedplans My Decorative Diy Garage Shed Plans This 120 square foot shed can be built in most places without a permit, check the requirements in your. these plans show you how to build a small shed from nothing. a successful diy shed starts with choosing the right shed plans. these free shed plans can help you design and build your own diy shed in. Diy Garage Shed Plans.
From shedplans.org
24x24 Garage Shed Plan Diy Garage Shed Plans You buy the materials, and he’ll lead you along the process of how to take those raw materials. these plans show you how to build a small shed from nothing. garage sheds are a practical way to keep all of your big items secure for the long term, and you save big bucks when you build your own. Diy Garage Shed Plans.
From sheds-plans-ideas.blogspot.com
sheds plans 12X16 Shed Plans Gable Design Construct101 Diy Garage Shed Plans This 120 square foot shed can be built in most places without a permit, check the requirements in your. 10×12 gable shed plans. a successful diy shed starts with choosing the right shed plans. garage sheds are a practical way to keep all of your big items secure for the long term, and you save big bucks. Diy Garage Shed Plans.
From www.etsy.com
Modern DIY Garage Shed House Set Plans, Home Building Blueprints for Diy Garage Shed Plans garage sheds are a practical way to keep all of your big items secure for the long term, and you save big bucks when you build your own garage shed. these free shed plans can help you design and build your own diy shed in your yard. a successful diy shed starts with choosing the right shed. Diy Garage Shed Plans.
From nolayas.blogspot.com
10 x 12 gambrel shed plans 20x24 garage Nolaya Diy Garage Shed Plans these free shed plans can help you design and build your own diy shed in your yard. garage sheds are a practical way to keep all of your big items secure for the long term, and you save big bucks when you build your own garage shed. This 120 square foot shed can be built in most places. Diy Garage Shed Plans.
From www.etsy.com
Shed Plans 12x16 DIY Garage Shed PDF Etsy Diy Garage Shed Plans You buy the materials, and he’ll lead you along the process of how to take those raw materials. garage sheds are a practical way to keep all of your big items secure for the long term, and you save big bucks when you build your own garage shed. explore these popular diy shed plans to budget for materials. Diy Garage Shed Plans.
From shedsblueprints.com
DIY Shed Plans A How to Guide Shed Blueprints Diy Garage Shed Plans First, determine how much space you can commit to an. these plans show you how to build a small shed from nothing. garage sheds are a practical way to keep all of your big items secure for the long term, and you save big bucks when you build your own garage shed. You buy the materials, and he’ll. Diy Garage Shed Plans.
From www.pinterest.jp
Permalink to diy garden shed free plans Storage shed plans, Storage Diy Garage Shed Plans these free shed plans can help you design and build your own diy shed in your yard. This 120 square foot shed can be built in most places without a permit, check the requirements in your. 10×12 gable shed plans. these plans show you how to build a small shed from nothing. garage sheds are a. Diy Garage Shed Plans.