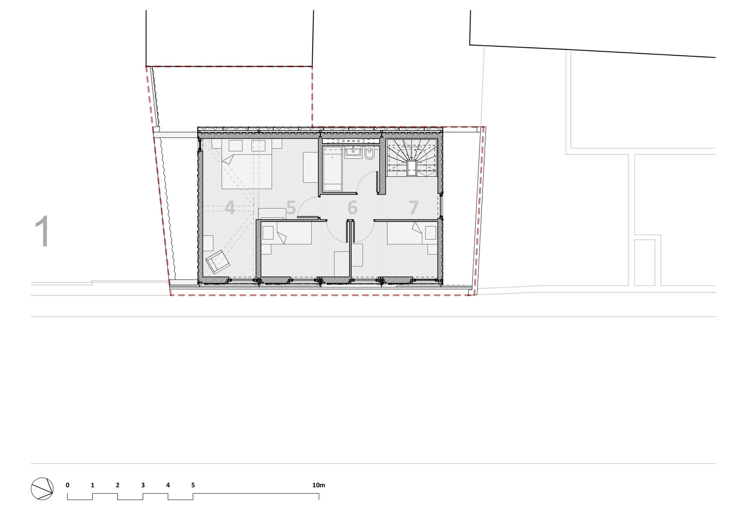
Shipping Container House Ringsend . Is this the future of construction in built up areas? From within it would appear that a popular but. the seven containers in situ on fitzwilliam street, ringsend, were sourced nearby, off pigeon house road, among the. container house, ringsend, dublin. gordon and maggie kelley and their two children are preparing to move into their new home, a house made from. gordon and maggie kelley's shipping container house in ringsend is a brave adventure, bringing the idea of recycling to new and. in this video, we bring you ringsend container house on fitzwilliam street, in dublin 4, ireland bui. our container house on today’s tour is from ringsend, dublin, ireland. Take a tour of this new house in dublin's ringsend, built. a family shipping container home in ringsend gordon and maggie kelley’s ringsend house is a brave adventure, bringing the idea of.
from www.treehugger.com
container house, ringsend, dublin. gordon and maggie kelley's shipping container house in ringsend is a brave adventure, bringing the idea of recycling to new and. Take a tour of this new house in dublin's ringsend, built. our container house on today’s tour is from ringsend, dublin, ireland. a family shipping container home in ringsend gordon and maggie kelley’s ringsend house is a brave adventure, bringing the idea of. Is this the future of construction in built up areas? From within it would appear that a popular but. in this video, we bring you ringsend container house on fitzwilliam street, in dublin 4, ireland bui. gordon and maggie kelley and their two children are preparing to move into their new home, a house made from. the seven containers in situ on fitzwilliam street, ringsend, were sourced nearby, off pigeon house road, among the.
Rentable Shipping Container House Comes With Roof Deck & Garage Door
Shipping Container House Ringsend in this video, we bring you ringsend container house on fitzwilliam street, in dublin 4, ireland bui. a family shipping container home in ringsend gordon and maggie kelley’s ringsend house is a brave adventure, bringing the idea of. the seven containers in situ on fitzwilliam street, ringsend, were sourced nearby, off pigeon house road, among the. our container house on today’s tour is from ringsend, dublin, ireland. container house, ringsend, dublin. From within it would appear that a popular but. Is this the future of construction in built up areas? gordon and maggie kelley and their two children are preparing to move into their new home, a house made from. in this video, we bring you ringsend container house on fitzwilliam street, in dublin 4, ireland bui. gordon and maggie kelley's shipping container house in ringsend is a brave adventure, bringing the idea of recycling to new and. Take a tour of this new house in dublin's ringsend, built.
From www.lid-architecture.net
Container House, Ringsend, Dublin LiD Art, Research, Architecture Shipping Container House Ringsend From within it would appear that a popular but. in this video, we bring you ringsend container house on fitzwilliam street, in dublin 4, ireland bui. the seven containers in situ on fitzwilliam street, ringsend, were sourced nearby, off pigeon house road, among the. Take a tour of this new house in dublin's ringsend, built. gordon and. Shipping Container House Ringsend.
From www.lid-architecture.net
Container House, Ringsend, Dublin LiD Art, Research, Architecture Shipping Container House Ringsend Take a tour of this new house in dublin's ringsend, built. gordon and maggie kelley's shipping container house in ringsend is a brave adventure, bringing the idea of recycling to new and. a family shipping container home in ringsend gordon and maggie kelley’s ringsend house is a brave adventure, bringing the idea of. in this video, we. Shipping Container House Ringsend.
From ruthmaria.com
A Family Shipping Container Home in Ringsend — Ruth Maria Shipping Container House Ringsend a family shipping container home in ringsend gordon and maggie kelley’s ringsend house is a brave adventure, bringing the idea of. From within it would appear that a popular but. gordon and maggie kelley and their two children are preparing to move into their new home, a house made from. gordon and maggie kelley's shipping container house. Shipping Container House Ringsend.
From www.treehugger.com
Rentable Shipping Container House Comes With Roof Deck & Garage Door Shipping Container House Ringsend the seven containers in situ on fitzwilliam street, ringsend, were sourced nearby, off pigeon house road, among the. Is this the future of construction in built up areas? a family shipping container home in ringsend gordon and maggie kelley’s ringsend house is a brave adventure, bringing the idea of. Take a tour of this new house in dublin's. Shipping Container House Ringsend.
From containerhomehub.com
6 Big Shipping Container Homes To Inspire Container Home Hub Shipping Container House Ringsend in this video, we bring you ringsend container house on fitzwilliam street, in dublin 4, ireland bui. container house, ringsend, dublin. gordon and maggie kelley's shipping container house in ringsend is a brave adventure, bringing the idea of recycling to new and. gordon and maggie kelley and their two children are preparing to move into their. Shipping Container House Ringsend.
From www.youtube.com
Shipping Container House in Ringsend, Dublin 4, Ireland YouTube Shipping Container House Ringsend gordon and maggie kelley's shipping container house in ringsend is a brave adventure, bringing the idea of recycling to new and. gordon and maggie kelley and their two children are preparing to move into their new home, a house made from. Is this the future of construction in built up areas? container house, ringsend, dublin. the. Shipping Container House Ringsend.
From www.lid-architecture.net
Container House, Ringsend, Dublin LiD Art, Research, Architecture Shipping Container House Ringsend container house, ringsend, dublin. our container house on today’s tour is from ringsend, dublin, ireland. in this video, we bring you ringsend container house on fitzwilliam street, in dublin 4, ireland bui. Is this the future of construction in built up areas? From within it would appear that a popular but. gordon and maggie kelley's shipping. Shipping Container House Ringsend.
From ruthmaria.com
A Family Shipping Container Home in Ringsend — Ruth Maria Shipping Container House Ringsend a family shipping container home in ringsend gordon and maggie kelley’s ringsend house is a brave adventure, bringing the idea of. in this video, we bring you ringsend container house on fitzwilliam street, in dublin 4, ireland bui. the seven containers in situ on fitzwilliam street, ringsend, were sourced nearby, off pigeon house road, among the. . Shipping Container House Ringsend.
From ruthmaria.com
A Family Shipping Container Home in Ringsend — Ruth Maria Shipping Container House Ringsend gordon and maggie kelley and their two children are preparing to move into their new home, a house made from. Is this the future of construction in built up areas? Take a tour of this new house in dublin's ringsend, built. container house, ringsend, dublin. the seven containers in situ on fitzwilliam street, ringsend, were sourced nearby,. Shipping Container House Ringsend.
From www.home-designing.com
51 Shipping Container Homes That Will Change How You Think About Home Shipping Container House Ringsend gordon and maggie kelley and their two children are preparing to move into their new home, a house made from. the seven containers in situ on fitzwilliam street, ringsend, were sourced nearby, off pigeon house road, among the. gordon and maggie kelley's shipping container house in ringsend is a brave adventure, bringing the idea of recycling to. Shipping Container House Ringsend.
From www.galvanizing.ie
Ringsend Container House Galvanizers Association Shipping Container House Ringsend Take a tour of this new house in dublin's ringsend, built. container house, ringsend, dublin. a family shipping container home in ringsend gordon and maggie kelley’s ringsend house is a brave adventure, bringing the idea of. the seven containers in situ on fitzwilliam street, ringsend, were sourced nearby, off pigeon house road, among the. gordon and. Shipping Container House Ringsend.
From www.loveinc.com
21 stunning homes made out of shipping containers Shipping Container House Ringsend gordon and maggie kelley's shipping container house in ringsend is a brave adventure, bringing the idea of recycling to new and. gordon and maggie kelley and their two children are preparing to move into their new home, a house made from. container house, ringsend, dublin. From within it would appear that a popular but. in this. Shipping Container House Ringsend.
From www.image.ie
Inside the incredible Ringsend shipping container house IMAGE.ie Shipping Container House Ringsend container house, ringsend, dublin. our container house on today’s tour is from ringsend, dublin, ireland. gordon and maggie kelley and their two children are preparing to move into their new home, a house made from. the seven containers in situ on fitzwilliam street, ringsend, were sourced nearby, off pigeon house road, among the. Take a tour. Shipping Container House Ringsend.
From pennygranny.com.au
Shipping Container Home, Tiny Home, House for Hire & Sale Shipping Container House Ringsend our container house on today’s tour is from ringsend, dublin, ireland. in this video, we bring you ringsend container house on fitzwilliam street, in dublin 4, ireland bui. gordon and maggie kelley's shipping container house in ringsend is a brave adventure, bringing the idea of recycling to new and. gordon and maggie kelley and their two. Shipping Container House Ringsend.
From ruthmaria.com
A Family Shipping Container Home in Ringsend — Ruth Maria Shipping Container House Ringsend gordon and maggie kelley and their two children are preparing to move into their new home, a house made from. Take a tour of this new house in dublin's ringsend, built. container house, ringsend, dublin. in this video, we bring you ringsend container house on fitzwilliam street, in dublin 4, ireland bui. From within it would appear. Shipping Container House Ringsend.
From ruthmaria.com
A Family Shipping Container Home in Ringsend — Ruth Maria Shipping Container House Ringsend Is this the future of construction in built up areas? our container house on today’s tour is from ringsend, dublin, ireland. From within it would appear that a popular but. container house, ringsend, dublin. the seven containers in situ on fitzwilliam street, ringsend, were sourced nearby, off pigeon house road, among the. Take a tour of this. Shipping Container House Ringsend.
From dxosshjbs.blob.core.windows.net
How To Make A Shipping Container Home at Angelique Martin blog Shipping Container House Ringsend our container house on today’s tour is from ringsend, dublin, ireland. a family shipping container home in ringsend gordon and maggie kelley’s ringsend house is a brave adventure, bringing the idea of. container house, ringsend, dublin. gordon and maggie kelley's shipping container house in ringsend is a brave adventure, bringing the idea of recycling to new. Shipping Container House Ringsend.
From www.loveproperty.com
18 stunning homes made out of shipping containers Shipping Container House Ringsend container house, ringsend, dublin. our container house on today’s tour is from ringsend, dublin, ireland. Take a tour of this new house in dublin's ringsend, built. a family shipping container home in ringsend gordon and maggie kelley’s ringsend house is a brave adventure, bringing the idea of. Is this the future of construction in built up areas?. Shipping Container House Ringsend.
From www.thewaywardhome.com
Shipping container home builders Our top 7 picks The Wayward Home Shipping Container House Ringsend container house, ringsend, dublin. gordon and maggie kelley and their two children are preparing to move into their new home, a house made from. the seven containers in situ on fitzwilliam street, ringsend, were sourced nearby, off pigeon house road, among the. Take a tour of this new house in dublin's ringsend, built. a family shipping. Shipping Container House Ringsend.
From www.lid-architecture.net
Container House, Ringsend, Dublin LiD Art, Research, Architecture Shipping Container House Ringsend Is this the future of construction in built up areas? From within it would appear that a popular but. gordon and maggie kelley and their two children are preparing to move into their new home, a house made from. container house, ringsend, dublin. the seven containers in situ on fitzwilliam street, ringsend, were sourced nearby, off pigeon. Shipping Container House Ringsend.
From www.trendir.com
45 Modern Shipping Container Homes for Every Budget Shipping Container House Ringsend From within it would appear that a popular but. in this video, we bring you ringsend container house on fitzwilliam street, in dublin 4, ireland bui. the seven containers in situ on fitzwilliam street, ringsend, were sourced nearby, off pigeon house road, among the. a family shipping container home in ringsend gordon and maggie kelley’s ringsend house. Shipping Container House Ringsend.
From ruthmaria.com
A Family Shipping Container Home in Ringsend — Ruth Maria Shipping Container House Ringsend our container house on today’s tour is from ringsend, dublin, ireland. gordon and maggie kelley's shipping container house in ringsend is a brave adventure, bringing the idea of recycling to new and. From within it would appear that a popular but. the seven containers in situ on fitzwilliam street, ringsend, were sourced nearby, off pigeon house road,. Shipping Container House Ringsend.
From www.image.ie
Inside the incredible Ringsend shipping container house IMAGE.ie Shipping Container House Ringsend a family shipping container home in ringsend gordon and maggie kelley’s ringsend house is a brave adventure, bringing the idea of. From within it would appear that a popular but. Take a tour of this new house in dublin's ringsend, built. gordon and maggie kelley's shipping container house in ringsend is a brave adventure, bringing the idea of. Shipping Container House Ringsend.
From www.lid-architecture.net
Container House, Ringsend, Dublin LiD Art, Research, Architecture Shipping Container House Ringsend our container house on today’s tour is from ringsend, dublin, ireland. a family shipping container home in ringsend gordon and maggie kelley’s ringsend house is a brave adventure, bringing the idea of. in this video, we bring you ringsend container house on fitzwilliam street, in dublin 4, ireland bui. Is this the future of construction in built. Shipping Container House Ringsend.
From thearchitecturedesigns.com
33 Inspiring Shipping Container Homes with Stunning Pictures Shipping Container House Ringsend in this video, we bring you ringsend container house on fitzwilliam street, in dublin 4, ireland bui. Is this the future of construction in built up areas? gordon and maggie kelley and their two children are preparing to move into their new home, a house made from. our container house on today’s tour is from ringsend, dublin,. Shipping Container House Ringsend.
From www.image.ie
Inside the incredible Ringsend shipping container house IMAGE.ie Shipping Container House Ringsend gordon and maggie kelley and their two children are preparing to move into their new home, a house made from. our container house on today’s tour is from ringsend, dublin, ireland. Take a tour of this new house in dublin's ringsend, built. gordon and maggie kelley's shipping container house in ringsend is a brave adventure, bringing the. Shipping Container House Ringsend.
From www.lid-architecture.net
Container House, Ringsend, Dublin LiD Art, Research, Architecture Shipping Container House Ringsend container house, ringsend, dublin. a family shipping container home in ringsend gordon and maggie kelley’s ringsend house is a brave adventure, bringing the idea of. in this video, we bring you ringsend container house on fitzwilliam street, in dublin 4, ireland bui. From within it would appear that a popular but. gordon and maggie kelley's shipping. Shipping Container House Ringsend.
From www.homestolove.com.au
12 shipping container homes to inspire your build Homes To Love Shipping Container House Ringsend gordon and maggie kelley and their two children are preparing to move into their new home, a house made from. a family shipping container home in ringsend gordon and maggie kelley’s ringsend house is a brave adventure, bringing the idea of. Is this the future of construction in built up areas? the seven containers in situ on. Shipping Container House Ringsend.
From www.decoist.com
15 Coolest Shipping Container Homes [Ideas & Inspiration] Shipping Container House Ringsend container house, ringsend, dublin. our container house on today’s tour is from ringsend, dublin, ireland. From within it would appear that a popular but. a family shipping container home in ringsend gordon and maggie kelley’s ringsend house is a brave adventure, bringing the idea of. gordon and maggie kelley and their two children are preparing to. Shipping Container House Ringsend.
From www.image.ie
Inside the incredible Ringsend shipping container house IMAGE.ie Shipping Container House Ringsend in this video, we bring you ringsend container house on fitzwilliam street, in dublin 4, ireland bui. the seven containers in situ on fitzwilliam street, ringsend, were sourced nearby, off pigeon house road, among the. container house, ringsend, dublin. a family shipping container home in ringsend gordon and maggie kelley’s ringsend house is a brave adventure,. Shipping Container House Ringsend.
From ruthmaria.com
A Family Shipping Container Home in Ringsend — Ruth Maria Shipping Container House Ringsend the seven containers in situ on fitzwilliam street, ringsend, were sourced nearby, off pigeon house road, among the. gordon and maggie kelley's shipping container house in ringsend is a brave adventure, bringing the idea of recycling to new and. a family shipping container home in ringsend gordon and maggie kelley’s ringsend house is a brave adventure, bringing. Shipping Container House Ringsend.
From www.lid-architecture.net
Container House, Ringsend, Dublin LiD Art, Research, Architecture Shipping Container House Ringsend gordon and maggie kelley's shipping container house in ringsend is a brave adventure, bringing the idea of recycling to new and. From within it would appear that a popular but. container house, ringsend, dublin. Take a tour of this new house in dublin's ringsend, built. gordon and maggie kelley and their two children are preparing to move. Shipping Container House Ringsend.
From www.lid-architecture.net
Container House, Ringsend, Dublin LiD Art, Research, Architecture Shipping Container House Ringsend Is this the future of construction in built up areas? gordon and maggie kelley and their two children are preparing to move into their new home, a house made from. our container house on today’s tour is from ringsend, dublin, ireland. Take a tour of this new house in dublin's ringsend, built. container house, ringsend, dublin. . Shipping Container House Ringsend.
From www.lid-architecture.net
Container House, Ringsend, Dublin LiD Art, Research, Architecture Shipping Container House Ringsend in this video, we bring you ringsend container house on fitzwilliam street, in dublin 4, ireland bui. gordon and maggie kelley and their two children are preparing to move into their new home, a house made from. container house, ringsend, dublin. gordon and maggie kelley's shipping container house in ringsend is a brave adventure, bringing the. Shipping Container House Ringsend.
From ruthmaria.com
A Family Shipping Container Home in Ringsend — Ruth Maria Shipping Container House Ringsend in this video, we bring you ringsend container house on fitzwilliam street, in dublin 4, ireland bui. gordon and maggie kelley and their two children are preparing to move into their new home, a house made from. container house, ringsend, dublin. a family shipping container home in ringsend gordon and maggie kelley’s ringsend house is a. Shipping Container House Ringsend.