How Much Paint For One Small Wall . Just enter the measurements of the surface to be painted and our. How much paint do i need for a. Medium room (12′ x 12′) 2 gallons: Large room (18′ x 18′). If you wanted two coats of paint, you’d multiply 420×2=840 and divide by 400 to get 2.1 gallons. Input the dimensions of the room to be painted. One gallon of primer will cover between 200 to 300 square feet. The paint calculator is intended to provide the user with the approximate amount of product needed for a project. If more than one room is being painted with the. Before you or your contractor buy paint, find out exactly how much you'll need. Consider subtracting the area of those from the wall square footage to. This paint coverage calculator makes calculating the amount of paint you'll need for your project nearly automatic. On average, a one gallon can of paint will cover between 350 to 400 square feet. Small room (8′ x 8′) 1 gallon:
from giobeyewk.blob.core.windows.net
Consider subtracting the area of those from the wall square footage to. One gallon of primer will cover between 200 to 300 square feet. Medium room (12′ x 12′) 2 gallons: This paint coverage calculator makes calculating the amount of paint you'll need for your project nearly automatic. The paint calculator is intended to provide the user with the approximate amount of product needed for a project. If you wanted two coats of paint, you’d multiply 420×2=840 and divide by 400 to get 2.1 gallons. Input the dimensions of the room to be painted. Large room (18′ x 18′). Just enter the measurements of the surface to be painted and our. On average, a one gallon can of paint will cover between 350 to 400 square feet.
How Much A Quart Of Paint Will Cover at Peter Goforth blog
How Much Paint For One Small Wall How much paint do i need for a. Consider subtracting the area of those from the wall square footage to. This paint coverage calculator makes calculating the amount of paint you'll need for your project nearly automatic. Large room (18′ x 18′). On average, a one gallon can of paint will cover between 350 to 400 square feet. One gallon of primer will cover between 200 to 300 square feet. Input the dimensions of the room to be painted. Just enter the measurements of the surface to be painted and our. Small room (8′ x 8′) 1 gallon: The paint calculator is intended to provide the user with the approximate amount of product needed for a project. If more than one room is being painted with the. How much paint do i need for a. If you wanted two coats of paint, you’d multiply 420×2=840 and divide by 400 to get 2.1 gallons. Before you or your contractor buy paint, find out exactly how much you'll need. Medium room (12′ x 12′) 2 gallons:
From paintacolors.com
How To Choose Wall Paint Colors For Your Living Room Paint Colors How Much Paint For One Small Wall How much paint do i need for a. Consider subtracting the area of those from the wall square footage to. Before you or your contractor buy paint, find out exactly how much you'll need. If more than one room is being painted with the. On average, a one gallon can of paint will cover between 350 to 400 square feet.. How Much Paint For One Small Wall.
From www.pinterest.com
Want to give a coat of paint to less than lovely wall tiles? Follow How Much Paint For One Small Wall Input the dimensions of the room to be painted. On average, a one gallon can of paint will cover between 350 to 400 square feet. Large room (18′ x 18′). Just enter the measurements of the surface to be painted and our. The paint calculator is intended to provide the user with the approximate amount of product needed for a. How Much Paint For One Small Wall.
From giobeyewk.blob.core.windows.net
How Much A Quart Of Paint Will Cover at Peter Goforth blog How Much Paint For One Small Wall If more than one room is being painted with the. The paint calculator is intended to provide the user with the approximate amount of product needed for a project. How much paint do i need for a. This paint coverage calculator makes calculating the amount of paint you'll need for your project nearly automatic. Large room (18′ x 18′). Small. How Much Paint For One Small Wall.
From measuringstuff.com
How Much Paint And Primer Do I Need For A 12×12 Room? Measuring Stuff How Much Paint For One Small Wall On average, a one gallon can of paint will cover between 350 to 400 square feet. This paint coverage calculator makes calculating the amount of paint you'll need for your project nearly automatic. Just enter the measurements of the surface to be painted and our. Before you or your contractor buy paint, find out exactly how much you'll need. The. How Much Paint For One Small Wall.
From life.upkeen.com
How Much Paint Does It Take To Paint The Walls? UpKeen How Much Paint For One Small Wall If you wanted two coats of paint, you’d multiply 420×2=840 and divide by 400 to get 2.1 gallons. The paint calculator is intended to provide the user with the approximate amount of product needed for a project. Medium room (12′ x 12′) 2 gallons: Just enter the measurements of the surface to be painted and our. Large room (18′ x. How Much Paint For One Small Wall.
From homefuturistic.com
How Much Paint For One Wall How Much Paint For One Small Wall Medium room (12′ x 12′) 2 gallons: The paint calculator is intended to provide the user with the approximate amount of product needed for a project. This paint coverage calculator makes calculating the amount of paint you'll need for your project nearly automatic. If more than one room is being painted with the. Large room (18′ x 18′). If you. How Much Paint For One Small Wall.
From www.numerade.com
SOLVED A decorator wishes to paint a wall and needs to estimate how How Much Paint For One Small Wall Large room (18′ x 18′). How much paint do i need for a. One gallon of primer will cover between 200 to 300 square feet. If more than one room is being painted with the. Input the dimensions of the room to be painted. This paint coverage calculator makes calculating the amount of paint you'll need for your project nearly. How Much Paint For One Small Wall.
From billingsblessingbags.org
Interior Painting Cost Per Square Foot Home Painters Toronto How Much Paint For One Small Wall One gallon of primer will cover between 200 to 300 square feet. This paint coverage calculator makes calculating the amount of paint you'll need for your project nearly automatic. Medium room (12′ x 12′) 2 gallons: Just enter the measurements of the surface to be painted and our. On average, a one gallon can of paint will cover between 350. How Much Paint For One Small Wall.
From www.stkittsvilla.com
Small Living Room Paint Ideas Top Ers 57 Off Www Ingeniovirtual Com How Much Paint For One Small Wall This paint coverage calculator makes calculating the amount of paint you'll need for your project nearly automatic. How much paint do i need for a. If you wanted two coats of paint, you’d multiply 420×2=840 and divide by 400 to get 2.1 gallons. Large room (18′ x 18′). Medium room (12′ x 12′) 2 gallons: Before you or your contractor. How Much Paint For One Small Wall.
From resin-expert.com
Paint Can Sizes Calculating Paint Volume for Surface Coverage How Much Paint For One Small Wall The paint calculator is intended to provide the user with the approximate amount of product needed for a project. On average, a one gallon can of paint will cover between 350 to 400 square feet. Just enter the measurements of the surface to be painted and our. Small room (8′ x 8′) 1 gallon: Consider subtracting the area of those. How Much Paint For One Small Wall.
From www.thisoldhouse.com
How Much Does Interior Painting Cost? How Much Paint For One Small Wall Input the dimensions of the room to be painted. Small room (8′ x 8′) 1 gallon: Just enter the measurements of the surface to be painted and our. One gallon of primer will cover between 200 to 300 square feet. How much paint do i need for a. The paint calculator is intended to provide the user with the approximate. How Much Paint For One Small Wall.
From www.pinterest.com
Decor your home wall. How to paint DIY [Video] Diy canvas art easy How Much Paint For One Small Wall Medium room (12′ x 12′) 2 gallons: Input the dimensions of the room to be painted. How much paint do i need for a. If more than one room is being painted with the. This paint coverage calculator makes calculating the amount of paint you'll need for your project nearly automatic. Large room (18′ x 18′). If you wanted two. How Much Paint For One Small Wall.
From www.stkittsvilla.com
Interior Painting Cost Per Square Foot Home Painters Toronto How Much Paint For One Small Wall Input the dimensions of the room to be painted. Before you or your contractor buy paint, find out exactly how much you'll need. On average, a one gallon can of paint will cover between 350 to 400 square feet. If more than one room is being painted with the. Consider subtracting the area of those from the wall square footage. How Much Paint For One Small Wall.
From fyodaxjon.blob.core.windows.net
How Much To Paint Outside House Trim at Helen Schell blog How Much Paint For One Small Wall Small room (8′ x 8′) 1 gallon: If you wanted two coats of paint, you’d multiply 420×2=840 and divide by 400 to get 2.1 gallons. Before you or your contractor buy paint, find out exactly how much you'll need. On average, a one gallon can of paint will cover between 350 to 400 square feet. One gallon of primer will. How Much Paint For One Small Wall.
From www.dundensonra.com
Paint Calculator How Many Gallons of Paint You Need How Much Paint For One Small Wall Just enter the measurements of the surface to be painted and our. How much paint do i need for a. Before you or your contractor buy paint, find out exactly how much you'll need. One gallon of primer will cover between 200 to 300 square feet. Input the dimensions of the room to be painted. The paint calculator is intended. How Much Paint For One Small Wall.
From giobeyewk.blob.core.windows.net
How Much A Quart Of Paint Will Cover at Peter Goforth blog How Much Paint For One Small Wall How much paint do i need for a. If you wanted two coats of paint, you’d multiply 420×2=840 and divide by 400 to get 2.1 gallons. Just enter the measurements of the surface to be painted and our. On average, a one gallon can of paint will cover between 350 to 400 square feet. Medium room (12′ x 12′) 2. How Much Paint For One Small Wall.
From alextrendpainters.ie
how much paint do you need to paint a wall How Much Paint For One Small Wall Just enter the measurements of the surface to be painted and our. Small room (8′ x 8′) 1 gallon: If more than one room is being painted with the. On average, a one gallon can of paint will cover between 350 to 400 square feet. Input the dimensions of the room to be painted. One gallon of primer will cover. How Much Paint For One Small Wall.
From kreatecube.com
Painting Ideas for Home How to Choose Right Paint Colors for Walls How Much Paint For One Small Wall Just enter the measurements of the surface to be painted and our. On average, a one gallon can of paint will cover between 350 to 400 square feet. If you wanted two coats of paint, you’d multiply 420×2=840 and divide by 400 to get 2.1 gallons. How much paint do i need for a. If more than one room is. How Much Paint For One Small Wall.
From hxekiyrga.blob.core.windows.net
How To Estimate How Much Paint You Will Need at Gomez blog How Much Paint For One Small Wall This paint coverage calculator makes calculating the amount of paint you'll need for your project nearly automatic. Medium room (12′ x 12′) 2 gallons: Just enter the measurements of the surface to be painted and our. How much paint do i need for a. If more than one room is being painted with the. Small room (8′ x 8′) 1. How Much Paint For One Small Wall.
From designertrapped.com
How Much Paint Do I Need for My Room? How Much Paint For One Small Wall If more than one room is being painted with the. Consider subtracting the area of those from the wall square footage to. One gallon of primer will cover between 200 to 300 square feet. This paint coverage calculator makes calculating the amount of paint you'll need for your project nearly automatic. Input the dimensions of the room to be painted.. How Much Paint For One Small Wall.
From exodjmpqv.blob.core.windows.net
How Much Does It Cost To Paint A House Interior Per Square Foot at How Much Paint For One Small Wall Just enter the measurements of the surface to be painted and our. Consider subtracting the area of those from the wall square footage to. Medium room (12′ x 12′) 2 gallons: This paint coverage calculator makes calculating the amount of paint you'll need for your project nearly automatic. How much paint do i need for a. Small room (8′ x. How Much Paint For One Small Wall.
From www.pinterest.com
How Much Paint Do I Need Chart Gallon of paint, Small room paint How Much Paint For One Small Wall Before you or your contractor buy paint, find out exactly how much you'll need. Small room (8′ x 8′) 1 gallon: Just enter the measurements of the surface to be painted and our. The paint calculator is intended to provide the user with the approximate amount of product needed for a project. Consider subtracting the area of those from the. How Much Paint For One Small Wall.
From www.hardwarestore.com
Benjamin Moore® Aura® Waterborne Interior Paint (All sheens & colors) How Much Paint For One Small Wall One gallon of primer will cover between 200 to 300 square feet. Before you or your contractor buy paint, find out exactly how much you'll need. How much paint do i need for a. Large room (18′ x 18′). Small room (8′ x 8′) 1 gallon: If more than one room is being painted with the. Just enter the measurements. How Much Paint For One Small Wall.
From smallroomdecor.com
9 Small Bedroom Color Ideas 35 photos + accent wall paint combinations How Much Paint For One Small Wall Consider subtracting the area of those from the wall square footage to. If more than one room is being painted with the. How much paint do i need for a. Input the dimensions of the room to be painted. If you wanted two coats of paint, you’d multiply 420×2=840 and divide by 400 to get 2.1 gallons. Small room (8′. How Much Paint For One Small Wall.
From www.kentblaxill.co.uk
How to calculate how much paint you need How Much Paint For One Small Wall Medium room (12′ x 12′) 2 gallons: Consider subtracting the area of those from the wall square footage to. Before you or your contractor buy paint, find out exactly how much you'll need. The paint calculator is intended to provide the user with the approximate amount of product needed for a project. Input the dimensions of the room to be. How Much Paint For One Small Wall.
From exokkzljg.blob.core.windows.net
How Much Does It Cost To Paint A House In Mexico at Calvin McConnell blog How Much Paint For One Small Wall How much paint do i need for a. The paint calculator is intended to provide the user with the approximate amount of product needed for a project. Consider subtracting the area of those from the wall square footage to. Medium room (12′ x 12′) 2 gallons: On average, a one gallon can of paint will cover between 350 to 400. How Much Paint For One Small Wall.
From resin-expert.com
Paint Can Sizes Calculating Paint Volume for Surface Coverage How Much Paint For One Small Wall Before you or your contractor buy paint, find out exactly how much you'll need. Input the dimensions of the room to be painted. If more than one room is being painted with the. Large room (18′ x 18′). On average, a one gallon can of paint will cover between 350 to 400 square feet. Just enter the measurements of the. How Much Paint For One Small Wall.
From www.pinterest.com
Four Clever Ways to Use Paint to Make Any Small Space Look Bigger How Much Paint For One Small Wall Just enter the measurements of the surface to be painted and our. If more than one room is being painted with the. Consider subtracting the area of those from the wall square footage to. Large room (18′ x 18′). One gallon of primer will cover between 200 to 300 square feet. Before you or your contractor buy paint, find out. How Much Paint For One Small Wall.
From hxeghhabp.blob.core.windows.net
How Many Gallons Of Paint For 10 X 12 Room at Adrienne Denton blog How Much Paint For One Small Wall If more than one room is being painted with the. Input the dimensions of the room to be painted. This paint coverage calculator makes calculating the amount of paint you'll need for your project nearly automatic. One gallon of primer will cover between 200 to 300 square feet. Before you or your contractor buy paint, find out exactly how much. How Much Paint For One Small Wall.
From www.pinterest.com
Painting the exterior and interior of your home is a good way to How Much Paint For One Small Wall Medium room (12′ x 12′) 2 gallons: Consider subtracting the area of those from the wall square footage to. How much paint do i need for a. Before you or your contractor buy paint, find out exactly how much you'll need. Small room (8′ x 8′) 1 gallon: On average, a one gallon can of paint will cover between 350. How Much Paint For One Small Wall.
From fyopyjtsa.blob.core.windows.net
How Much Do Painters Charge For Interior at Odis Maynard blog How Much Paint For One Small Wall Small room (8′ x 8′) 1 gallon: If you wanted two coats of paint, you’d multiply 420×2=840 and divide by 400 to get 2.1 gallons. One gallon of primer will cover between 200 to 300 square feet. This paint coverage calculator makes calculating the amount of paint you'll need for your project nearly automatic. Large room (18′ x 18′). Input. How Much Paint For One Small Wall.
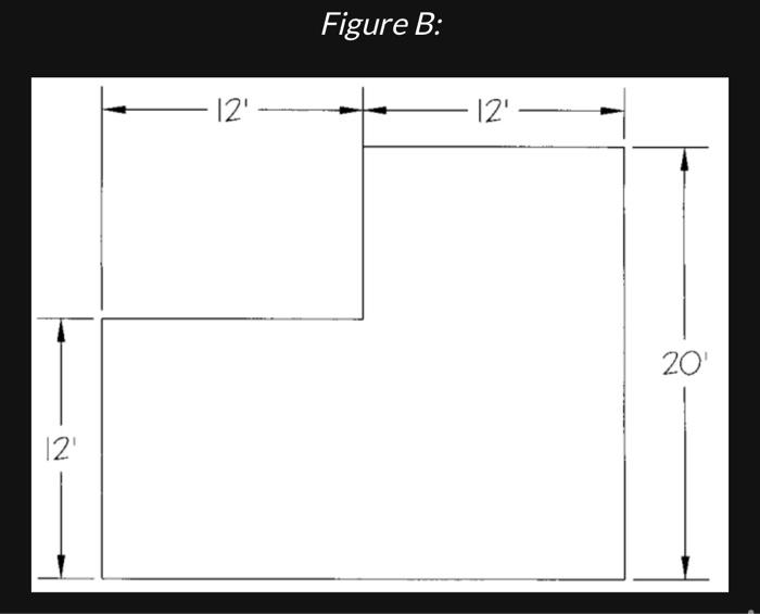
From www.chegg.com
Solved Figure B 11.26) How much paint is needed to paint How Much Paint For One Small Wall How much paint do i need for a. Consider subtracting the area of those from the wall square footage to. Large room (18′ x 18′). On average, a one gallon can of paint will cover between 350 to 400 square feet. Before you or your contractor buy paint, find out exactly how much you'll need. Medium room (12′ x 12′). How Much Paint For One Small Wall.
From test.valsparpaint.co.uk
How Do I Prepare To Paint My Home Valspar Paint How Much Paint For One Small Wall Before you or your contractor buy paint, find out exactly how much you'll need. If more than one room is being painted with the. Large room (18′ x 18′). Medium room (12′ x 12′) 2 gallons: Input the dimensions of the room to be painted. The paint calculator is intended to provide the user with the approximate amount of product. How Much Paint For One Small Wall.
From exoaxdnop.blob.core.windows.net
How Much Paint For A Wall at Dallas Jones blog How Much Paint For One Small Wall Medium room (12′ x 12′) 2 gallons: Before you or your contractor buy paint, find out exactly how much you'll need. Consider subtracting the area of those from the wall square footage to. This paint coverage calculator makes calculating the amount of paint you'll need for your project nearly automatic. The paint calculator is intended to provide the user with. How Much Paint For One Small Wall.
From hxecwznzy.blob.core.windows.net
How To Get A Paint Sample From A Wall at Ann Williams blog How Much Paint For One Small Wall Small room (8′ x 8′) 1 gallon: This paint coverage calculator makes calculating the amount of paint you'll need for your project nearly automatic. On average, a one gallon can of paint will cover between 350 to 400 square feet. Consider subtracting the area of those from the wall square footage to. Before you or your contractor buy paint, find. How Much Paint For One Small Wall.