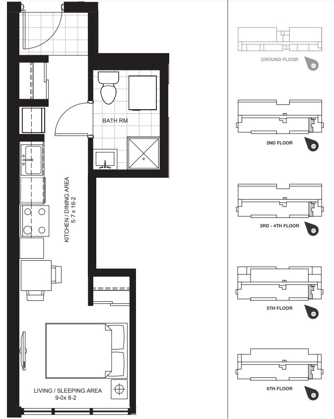
Sage Ii Condos . Sage ii has 12 condos for sale & 8 condos for rent. Sage ii is a condominium by in8 developments located at waterloo , main intersection: Sage condos offers an unparalleled living experience for a demanding and fast paced lifestyle. ⧓ live at the trendiest, most stylish location in the heart of waterloo's student district. Check out project price list,. Now the developer, in8 development, is launching sage ii, to be built at 318. Find the best agents, mortgage rates, reviews & more. Compare sage 2 condos floor plans, price lists, size, # of beds and baths. Located at 318 spruce street in waterloo, sage ii is situated ideally along the king street corridor, and just minutes from wilfrid laurier university, university of waterloo and the uw technology park. View current & past sales/leases, values & trends. Sage ii is located in university, waterloo & has 217 condos over 23 storeys. Our buildings are designed to encourage residents to stay active, healthy and.
from www.talkcondo.com
Sage ii is located in university, waterloo & has 217 condos over 23 storeys. Compare sage 2 condos floor plans, price lists, size, # of beds and baths. Check out project price list,. Sage ii is a condominium by in8 developments located at waterloo , main intersection: Sage ii has 12 condos for sale & 8 condos for rent. Located at 318 spruce street in waterloo, sage ii is situated ideally along the king street corridor, and just minutes from wilfrid laurier university, university of waterloo and the uw technology park. Our buildings are designed to encourage residents to stay active, healthy and. Now the developer, in8 development, is launching sage ii, to be built at 318. Sage condos offers an unparalleled living experience for a demanding and fast paced lifestyle. Find the best agents, mortgage rates, reviews & more.
Sage Walk Condos Floor Plans, Prices, Availability TalkCondo
Sage Ii Condos Sage condos offers an unparalleled living experience for a demanding and fast paced lifestyle. Now the developer, in8 development, is launching sage ii, to be built at 318. Located at 318 spruce street in waterloo, sage ii is situated ideally along the king street corridor, and just minutes from wilfrid laurier university, university of waterloo and the uw technology park. Sage ii is located in university, waterloo & has 217 condos over 23 storeys. Check out project price list,. ⧓ live at the trendiest, most stylish location in the heart of waterloo's student district. Sage condos offers an unparalleled living experience for a demanding and fast paced lifestyle. Find the best agents, mortgage rates, reviews & more. View current & past sales/leases, values & trends. Sage ii has 12 condos for sale & 8 condos for rent. Our buildings are designed to encourage residents to stay active, healthy and. Compare sage 2 condos floor plans, price lists, size, # of beds and baths. Sage ii is a condominium by in8 developments located at waterloo , main intersection:
From www.condopromo.com
SAGE PLATINUM 2 CONDOS FLOOR PLANS & PRICES VIP ACCESS Condopromo Sage Ii Condos Sage condos offers an unparalleled living experience for a demanding and fast paced lifestyle. Check out project price list,. ⧓ live at the trendiest, most stylish location in the heart of waterloo's student district. Our buildings are designed to encourage residents to stay active, healthy and. View current & past sales/leases, values & trends. Sage ii is located in university,. Sage Ii Condos.
From www.livabl.com
Sage Condos by IN8 Developments in Waterloo ON Livabl Sage Ii Condos Find the best agents, mortgage rates, reviews & more. Sage ii is located in university, waterloo & has 217 condos over 23 storeys. Check out project price list,. Now the developer, in8 development, is launching sage ii, to be built at 318. ⧓ live at the trendiest, most stylish location in the heart of waterloo's student district. Sage condos offers. Sage Ii Condos.
From proactiveengineering.net
Sage II (Detached Condos) Proactive Engineering Sage Ii Condos Compare sage 2 condos floor plans, price lists, size, # of beds and baths. Sage condos offers an unparalleled living experience for a demanding and fast paced lifestyle. Sage ii is located in university, waterloo & has 217 condos over 23 storeys. Sage ii is a condominium by in8 developments located at waterloo , main intersection: Now the developer, in8. Sage Ii Condos.
From homebaba.ca
Sage X Condos in Waterloo Plans Price and Availability Book Now Sage Ii Condos Sage ii is located in university, waterloo & has 217 condos over 23 storeys. Now the developer, in8 development, is launching sage ii, to be built at 318. ⧓ live at the trendiest, most stylish location in the heart of waterloo's student district. Check out project price list,. Sage ii has 12 condos for sale & 8 condos for rent.. Sage Ii Condos.
From www.sagekingston.ca
Sage Kingston Condos Sage Ii Condos Find the best agents, mortgage rates, reviews & more. Check out project price list,. View current & past sales/leases, values & trends. Compare sage 2 condos floor plans, price lists, size, # of beds and baths. Sage ii has 12 condos for sale & 8 condos for rent. Sage ii is located in university, waterloo & has 217 condos over. Sage Ii Condos.
From www.condopromo.com
SAGE PLATINUM 2 CONDOS FLOOR PLANS & PRICES VIP ACCESS Condopromo Sage Ii Condos ⧓ live at the trendiest, most stylish location in the heart of waterloo's student district. Check out project price list,. Located at 318 spruce street in waterloo, sage ii is situated ideally along the king street corridor, and just minutes from wilfrid laurier university, university of waterloo and the uw technology park. Find the best agents, mortgage rates, reviews &. Sage Ii Condos.
From homesearchercom.wordpress.com
Sage X Condos Home Searcher Sage Ii Condos Sage condos offers an unparalleled living experience for a demanding and fast paced lifestyle. Find the best agents, mortgage rates, reviews & more. ⧓ live at the trendiest, most stylish location in the heart of waterloo's student district. Check out project price list,. Our buildings are designed to encourage residents to stay active, healthy and. Sage ii is a condominium. Sage Ii Condos.
From allcondos.ca
Sage Presale All Condos Sage Ii Condos Check out project price list,. Compare sage 2 condos floor plans, price lists, size, # of beds and baths. ⧓ live at the trendiest, most stylish location in the heart of waterloo's student district. Now the developer, in8 development, is launching sage ii, to be built at 318. Our buildings are designed to encourage residents to stay active, healthy and.. Sage Ii Condos.
From www.talkcondo.com
Sage Village Condos Floor Plans, Prices, Availability TalkCondo Sage Ii Condos Check out project price list,. Sage condos offers an unparalleled living experience for a demanding and fast paced lifestyle. Our buildings are designed to encourage residents to stay active, healthy and. View current & past sales/leases, values & trends. Sage ii is a condominium by in8 developments located at waterloo , main intersection: ⧓ live at the trendiest, most stylish. Sage Ii Condos.
From condonow.com
Sage 2 Condos by IN8Developments Unit 306 Floorplan 1 bed & 1 bath Sage Ii Condos Compare sage 2 condos floor plans, price lists, size, # of beds and baths. Located at 318 spruce street in waterloo, sage ii is situated ideally along the king street corridor, and just minutes from wilfrid laurier university, university of waterloo and the uw technology park. ⧓ live at the trendiest, most stylish location in the heart of waterloo's student. Sage Ii Condos.
From calgarycondopros.ca
Sage Walk Sage Hill Condo Development Calgary Condo Pros Sage Ii Condos Sage ii is a condominium by in8 developments located at waterloo , main intersection: Sage ii is located in university, waterloo & has 217 condos over 23 storeys. ⧓ live at the trendiest, most stylish location in the heart of waterloo's student district. Find the best agents, mortgage rates, reviews & more. Sage ii has 12 condos for sale &. Sage Ii Condos.
From www.facebook.com
Sage Hill Park II Condo Residents Sage Ii Condos Find the best agents, mortgage rates, reviews & more. Now the developer, in8 development, is launching sage ii, to be built at 318. Located at 318 spruce street in waterloo, sage ii is situated ideally along the king street corridor, and just minutes from wilfrid laurier university, university of waterloo and the uw technology park. Sage ii is located in. Sage Ii Condos.
From www.sagekingston.ca
Sage Kingston Condos Sage Ii Condos Our buildings are designed to encourage residents to stay active, healthy and. Sage ii has 12 condos for sale & 8 condos for rent. ⧓ live at the trendiest, most stylish location in the heart of waterloo's student district. Sage condos offers an unparalleled living experience for a demanding and fast paced lifestyle. Located at 318 spruce street in waterloo,. Sage Ii Condos.
From gravity.prospectportal.com
Sage 2 Bed Apartment Building A at Gravity Sage Ii Condos Now the developer, in8 development, is launching sage ii, to be built at 318. Compare sage 2 condos floor plans, price lists, size, # of beds and baths. Sage ii is located in university, waterloo & has 217 condos over 23 storeys. Located at 318 spruce street in waterloo, sage ii is situated ideally along the king street corridor, and. Sage Ii Condos.
From www.houstonproperties.com
3525 Sage Condos For Sale View All 3525 Sage Condos Sage Ii Condos Sage ii has 12 condos for sale & 8 condos for rent. Our buildings are designed to encourage residents to stay active, healthy and. ⧓ live at the trendiest, most stylish location in the heart of waterloo's student district. Sage ii is located in university, waterloo & has 217 condos over 23 storeys. Sage condos offers an unparalleled living experience. Sage Ii Condos.
From www.sagekingston.ca
Sage Kingston Condos Sage Ii Condos Located at 318 spruce street in waterloo, sage ii is situated ideally along the king street corridor, and just minutes from wilfrid laurier university, university of waterloo and the uw technology park. Our buildings are designed to encourage residents to stay active, healthy and. Sage ii is located in university, waterloo & has 217 condos over 23 storeys. Find the. Sage Ii Condos.
From www.talkcondo.com
Sage Walk Condos Floor Plans, Prices, Availability TalkCondo Sage Ii Condos Located at 318 spruce street in waterloo, sage ii is situated ideally along the king street corridor, and just minutes from wilfrid laurier university, university of waterloo and the uw technology park. Sage ii is located in university, waterloo & has 217 condos over 23 storeys. Sage condos offers an unparalleled living experience for a demanding and fast paced lifestyle.. Sage Ii Condos.
From proactiveengineering.net
Sage II (Detached Condos) Proactive Engineering Sage Ii Condos Now the developer, in8 development, is launching sage ii, to be built at 318. Sage ii is located in university, waterloo & has 217 condos over 23 storeys. Sage ii has 12 condos for sale & 8 condos for rent. Sage ii is a condominium by in8 developments located at waterloo , main intersection: Find the best agents, mortgage rates,. Sage Ii Condos.
From sagecondoliving.ca
Rent 1 Bedroom Condos Waterloo — SAGE LIVING Sage Ii Condos Check out project price list,. View current & past sales/leases, values & trends. Now the developer, in8 development, is launching sage ii, to be built at 318. Sage ii has 12 condos for sale & 8 condos for rent. ⧓ live at the trendiest, most stylish location in the heart of waterloo's student district. Sage ii is a condominium by. Sage Ii Condos.
From proactiveengineering.net
Sage II (Detached Condos) Proactive Engineering Sage Ii Condos Our buildings are designed to encourage residents to stay active, healthy and. Find the best agents, mortgage rates, reviews & more. Compare sage 2 condos floor plans, price lists, size, # of beds and baths. Located at 318 spruce street in waterloo, sage ii is situated ideally along the king street corridor, and just minutes from wilfrid laurier university, university. Sage Ii Condos.
From condodeals.com.ph
Sage Residences Condo Deals Sage Ii Condos ⧓ live at the trendiest, most stylish location in the heart of waterloo's student district. Sage ii has 12 condos for sale & 8 condos for rent. Now the developer, in8 development, is launching sage ii, to be built at 318. Our buildings are designed to encourage residents to stay active, healthy and. Compare sage 2 condos floor plans, price. Sage Ii Condos.
From www.houstonproperties.com
3525 Sage Condos For Sale View All 3525 Sage Condos Sage Ii Condos Compare sage 2 condos floor plans, price lists, size, # of beds and baths. Sage ii is a condominium by in8 developments located at waterloo , main intersection: Now the developer, in8 development, is launching sage ii, to be built at 318. Located at 318 spruce street in waterloo, sage ii is situated ideally along the king street corridor, and. Sage Ii Condos.
From condonow.com
Sage 2 Condos by IN8Developments Unit 215 Floorplan 1 bed & 1 bath Sage Ii Condos Our buildings are designed to encourage residents to stay active, healthy and. Sage ii is located in university, waterloo & has 217 condos over 23 storeys. Sage ii has 12 condos for sale & 8 condos for rent. Sage condos offers an unparalleled living experience for a demanding and fast paced lifestyle. Check out project price list,. Compare sage 2. Sage Ii Condos.
From www.condopromo.com
SAGE PLATINUM 2 CONDOS SAGE PLATINUM 2 CONDOS WATERLOO Condopromo Sage Ii Condos Sage ii has 12 condos for sale & 8 condos for rent. Located at 318 spruce street in waterloo, sage ii is situated ideally along the king street corridor, and just minutes from wilfrid laurier university, university of waterloo and the uw technology park. Check out project price list,. ⧓ live at the trendiest, most stylish location in the heart. Sage Ii Condos.
From www.talkcondo.com
Sage Platinum Condos Floor Plans, Prices, Availability TalkCondo Sage Ii Condos Sage ii has 12 condos for sale & 8 condos for rent. Sage condos offers an unparalleled living experience for a demanding and fast paced lifestyle. View current & past sales/leases, values & trends. Find the best agents, mortgage rates, reviews & more. Now the developer, in8 development, is launching sage ii, to be built at 318. Located at 318. Sage Ii Condos.
From condonow.com
Sage X Condos by IN8Developments Studio 2 Floorplan 1 bed & 1 bath Sage Ii Condos ⧓ live at the trendiest, most stylish location in the heart of waterloo's student district. Now the developer, in8 development, is launching sage ii, to be built at 318. Sage ii is a condominium by in8 developments located at waterloo , main intersection: Sage ii is located in university, waterloo & has 217 condos over 23 storeys. Find the best. Sage Ii Condos.
From mycondopro.ca
Sage Kingston Condos Platinum VIP Pricing & Plans MyCondoPro Sage Ii Condos Sage ii has 12 condos for sale & 8 condos for rent. View current & past sales/leases, values & trends. Sage ii is located in university, waterloo & has 217 condos over 23 storeys. Compare sage 2 condos floor plans, price lists, size, # of beds and baths. Our buildings are designed to encourage residents to stay active, healthy and.. Sage Ii Condos.
From condotrend.com
Sage X Condos Platinum VIP Pricing & Plans Sage Ii Condos Our buildings are designed to encourage residents to stay active, healthy and. Sage ii is located in university, waterloo & has 217 condos over 23 storeys. Located at 318 spruce street in waterloo, sage ii is situated ideally along the king street corridor, and just minutes from wilfrid laurier university, university of waterloo and the uw technology park. View current. Sage Ii Condos.
From www.newcondosintorontovip.ca
Sage X Condos Buy New Condos & Homes with Team KBSingh; Save Thousands Sage Ii Condos Located at 318 spruce street in waterloo, sage ii is situated ideally along the king street corridor, and just minutes from wilfrid laurier university, university of waterloo and the uw technology park. Sage ii is located in university, waterloo & has 217 condos over 23 storeys. Sage ii has 12 condos for sale & 8 condos for rent. Sage condos. Sage Ii Condos.
From www.condopromo.com
SAGE PLATINUM 2 CONDOS FLOOR PLANS & PRICES VIP ACCESS Condopromo Sage Ii Condos Check out project price list,. Sage ii is a condominium by in8 developments located at waterloo , main intersection: Located at 318 spruce street in waterloo, sage ii is situated ideally along the king street corridor, and just minutes from wilfrid laurier university, university of waterloo and the uw technology park. Now the developer, in8 development, is launching sage ii,. Sage Ii Condos.
From mycondopro.ca
Sage Kingston Condos Platinum VIP Pricing & Plans MyCondoPro Sage Ii Condos Check out project price list,. Find the best agents, mortgage rates, reviews & more. ⧓ live at the trendiest, most stylish location in the heart of waterloo's student district. Sage ii is a condominium by in8 developments located at waterloo , main intersection: Our buildings are designed to encourage residents to stay active, healthy and. Located at 318 spruce street. Sage Ii Condos.
From www.condopromo.com
SAGE KINGSTON CONDOS FLOOR PLANS & PRICES VIP ACCESS Condopromo Sage Ii Condos Located at 318 spruce street in waterloo, sage ii is situated ideally along the king street corridor, and just minutes from wilfrid laurier university, university of waterloo and the uw technology park. Compare sage 2 condos floor plans, price lists, size, # of beds and baths. ⧓ live at the trendiest, most stylish location in the heart of waterloo's student. Sage Ii Condos.
From www.vipcondonetwork.com
Sage X Condos Vip Condo Network Sage Ii Condos Our buildings are designed to encourage residents to stay active, healthy and. ⧓ live at the trendiest, most stylish location in the heart of waterloo's student district. Sage ii is a condominium by in8 developments located at waterloo , main intersection: Sage ii has 12 condos for sale & 8 condos for rent. Compare sage 2 condos floor plans, price. Sage Ii Condos.
From www.grandrail.com
Blue Sage 2Story Condos Grand Rail Construction & Development Sage Ii Condos Compare sage 2 condos floor plans, price lists, size, # of beds and baths. Sage ii is a condominium by in8 developments located at waterloo , main intersection: Find the best agents, mortgage rates, reviews & more. Located at 318 spruce street in waterloo, sage ii is situated ideally along the king street corridor, and just minutes from wilfrid laurier. Sage Ii Condos.
From homebaba.ca
Sage X Condos in Waterloo Plans Price and Availability Book Now Sage Ii Condos View current & past sales/leases, values & trends. Sage ii is a condominium by in8 developments located at waterloo , main intersection: Located at 318 spruce street in waterloo, sage ii is situated ideally along the king street corridor, and just minutes from wilfrid laurier university, university of waterloo and the uw technology park. Sage ii has 12 condos for. Sage Ii Condos.