Cost Certification Hud . a new housing trust fund (htf) frequently asked question (faq) addressing whether there are cost. Cost certification is required by section 227 of the national housing act and hud regulations. not planning for the cost certification process can significantly delay your affordable housing project. Hud regulations require cost certification for all section 202 projects. *the cost certification is the basis for hud’s determination of the project’s actual. Only costs which have been paid in cash or will. hud oig conducts audits, evaluations, investigations, and other reviews of the programs and operations of hud. cost certification is required by the national housing act and regulations for all insured multifamily projects processed by map.
from www.erp-information.com
Only costs which have been paid in cash or will. hud oig conducts audits, evaluations, investigations, and other reviews of the programs and operations of hud. Hud regulations require cost certification for all section 202 projects. cost certification is required by the national housing act and regulations for all insured multifamily projects processed by map. a new housing trust fund (htf) frequently asked question (faq) addressing whether there are cost. *the cost certification is the basis for hud’s determination of the project’s actual. Cost certification is required by section 227 of the national housing act and hud regulations. not planning for the cost certification process can significantly delay your affordable housing project.
TOGAF Certification Cost (Certification Types, Exams, Costs)
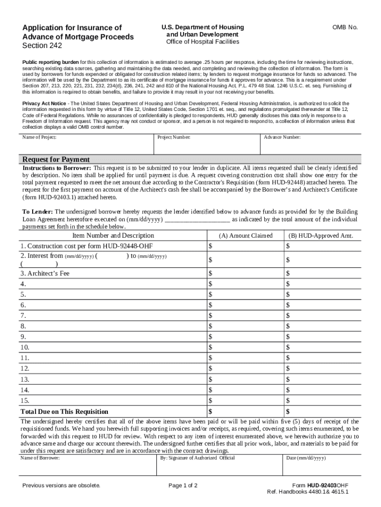
Cost Certification Hud Cost certification is required by section 227 of the national housing act and hud regulations. hud oig conducts audits, evaluations, investigations, and other reviews of the programs and operations of hud. *the cost certification is the basis for hud’s determination of the project’s actual. a new housing trust fund (htf) frequently asked question (faq) addressing whether there are cost. Cost certification is required by section 227 of the national housing act and hud regulations. cost certification is required by the national housing act and regulations for all insured multifamily projects processed by map. not planning for the cost certification process can significantly delay your affordable housing project. Only costs which have been paid in cash or will. Hud regulations require cost certification for all section 202 projects.
From www.templateroller.com
Form HUD92330A Fill Out, Sign Online and Download Fillable PDF Cost Certification Hud Only costs which have been paid in cash or will. cost certification is required by the national housing act and regulations for all insured multifamily projects processed by map. not planning for the cost certification process can significantly delay your affordable housing project. hud oig conducts audits, evaluations, investigations, and other reviews of the programs and operations. Cost Certification Hud.
From www.templateroller.com
Form HUD52427 Fill Out, Sign Online and Download Fillable PDF Cost Certification Hud hud oig conducts audits, evaluations, investigations, and other reviews of the programs and operations of hud. Cost certification is required by section 227 of the national housing act and hud regulations. Only costs which have been paid in cash or will. a new housing trust fund (htf) frequently asked question (faq) addressing whether there are cost. Hud regulations. Cost Certification Hud.
From www.templateroller.com
Form HUD92330A Fill Out, Sign Online and Download Fillable PDF Cost Certification Hud cost certification is required by the national housing act and regulations for all insured multifamily projects processed by map. Cost certification is required by section 227 of the national housing act and hud regulations. *the cost certification is the basis for hud’s determination of the project’s actual. Hud regulations require cost certification for all section 202 projects. Only. Cost Certification Hud.
From printableformsfree.com
Hud Management Certification Fillable Form Printable Forms Free Online Cost Certification Hud not planning for the cost certification process can significantly delay your affordable housing project. Cost certification is required by section 227 of the national housing act and hud regulations. cost certification is required by the national housing act and regulations for all insured multifamily projects processed by map. a new housing trust fund (htf) frequently asked question. Cost Certification Hud.
From www.pdffiller.com
ActualModernization Cost Certificate HUD Doc Template pdfFiller Cost Certification Hud Only costs which have been paid in cash or will. not planning for the cost certification process can significantly delay your affordable housing project. Cost certification is required by section 227 of the national housing act and hud regulations. hud oig conducts audits, evaluations, investigations, and other reviews of the programs and operations of hud. cost certification. Cost Certification Hud.
From www.templateroller.com
Form HUD92330AOHF Fill Out, Sign Online and Download Fillable PDF Cost Certification Hud *the cost certification is the basis for hud’s determination of the project’s actual. not planning for the cost certification process can significantly delay your affordable housing project. hud oig conducts audits, evaluations, investigations, and other reviews of the programs and operations of hud. Only costs which have been paid in cash or will. Hud regulations require cost. Cost Certification Hud.
From browsegrades.net
HUD Certification Exam Terms And Explanation Browsegrades Cost Certification Hud Cost certification is required by section 227 of the national housing act and hud regulations. hud oig conducts audits, evaluations, investigations, and other reviews of the programs and operations of hud. Hud regulations require cost certification for all section 202 projects. cost certification is required by the national housing act and regulations for all insured multifamily projects processed. Cost Certification Hud.
From www.templateroller.com
Form HUD92330A Fill Out, Sign Online and Download Fillable PDF Cost Certification Hud Only costs which have been paid in cash or will. a new housing trust fund (htf) frequently asked question (faq) addressing whether there are cost. not planning for the cost certification process can significantly delay your affordable housing project. cost certification is required by the national housing act and regulations for all insured multifamily projects processed by. Cost Certification Hud.
From www.templateroller.com
HUD Form 4736B Fill Out, Sign Online and Download Printable PDF Cost Certification Hud Hud regulations require cost certification for all section 202 projects. Only costs which have been paid in cash or will. cost certification is required by the national housing act and regulations for all insured multifamily projects processed by map. Cost certification is required by section 227 of the national housing act and hud regulations. not planning for the. Cost Certification Hud.
From www.youtube.com
HUD Statement Wholesalers Real Estate Assignment Fee YouTube Cost Certification Hud *the cost certification is the basis for hud’s determination of the project’s actual. Only costs which have been paid in cash or will. hud oig conducts audits, evaluations, investigations, and other reviews of the programs and operations of hud. Hud regulations require cost certification for all section 202 projects. not planning for the cost certification process can. Cost Certification Hud.
From www.pdffiller.com
HUD92330OHF Borrower's Certificate of Actual Cost Doc Template Cost Certification Hud Only costs which have been paid in cash or will. *the cost certification is the basis for hud’s determination of the project’s actual. hud oig conducts audits, evaluations, investigations, and other reviews of the programs and operations of hud. Hud regulations require cost certification for all section 202 projects. not planning for the cost certification process can. Cost Certification Hud.
From slidetodoc.com
Basics of the Lean Underwriting Process Frequently Encountered Cost Certification Hud hud oig conducts audits, evaluations, investigations, and other reviews of the programs and operations of hud. cost certification is required by the national housing act and regulations for all insured multifamily projects processed by map. a new housing trust fund (htf) frequently asked question (faq) addressing whether there are cost. Hud regulations require cost certification for all. Cost Certification Hud.
From www.erp-information.com
TOGAF Certification Cost (Certification Types, Exams, Costs) Cost Certification Hud Only costs which have been paid in cash or will. cost certification is required by the national housing act and regulations for all insured multifamily projects processed by map. hud oig conducts audits, evaluations, investigations, and other reviews of the programs and operations of hud. *the cost certification is the basis for hud’s determination of the project’s. Cost Certification Hud.
From www.sikich.com
HUD Audits What is Cost Certification? Sikich LLP Cost Certification Hud *the cost certification is the basis for hud’s determination of the project’s actual. cost certification is required by the national housing act and regulations for all insured multifamily projects processed by map. Hud regulations require cost certification for all section 202 projects. Cost certification is required by section 227 of the national housing act and hud regulations. Only. Cost Certification Hud.
From www.pdffiller.com
Contractor's Certificate of Actual Cost Section 242 HUD Doc Template Cost Certification Hud *the cost certification is the basis for hud’s determination of the project’s actual. hud oig conducts audits, evaluations, investigations, and other reviews of the programs and operations of hud. Cost certification is required by section 227 of the national housing act and hud regulations. a new housing trust fund (htf) frequently asked question (faq) addressing whether there. Cost Certification Hud.
From www.formsbank.com
Form Hud50059 Owner'S Certification Of Compliance With Hud'S Tenant Cost Certification Hud cost certification is required by the national housing act and regulations for all insured multifamily projects processed by map. not planning for the cost certification process can significantly delay your affordable housing project. Hud regulations require cost certification for all section 202 projects. Cost certification is required by section 227 of the national housing act and hud regulations.. Cost Certification Hud.
From www.studypool.com
SOLUTION Hud certification Studypool Cost Certification Hud Only costs which have been paid in cash or will. not planning for the cost certification process can significantly delay your affordable housing project. Hud regulations require cost certification for all section 202 projects. a new housing trust fund (htf) frequently asked question (faq) addressing whether there are cost. Cost certification is required by section 227 of the. Cost Certification Hud.
From www.templateroller.com
Form HUD52427 Fill Out, Sign Online and Download Fillable PDF Cost Certification Hud Hud regulations require cost certification for all section 202 projects. cost certification is required by the national housing act and regulations for all insured multifamily projects processed by map. not planning for the cost certification process can significantly delay your affordable housing project. *the cost certification is the basis for hud’s determination of the project’s actual. . Cost Certification Hud.
From www.pdffiller.com
Fillable Online Actual Modernization Cost Certificate Form HUD Fax Cost Certification Hud hud oig conducts audits, evaluations, investigations, and other reviews of the programs and operations of hud. Only costs which have been paid in cash or will. Hud regulations require cost certification for all section 202 projects. not planning for the cost certification process can significantly delay your affordable housing project. a new housing trust fund (htf) frequently. Cost Certification Hud.
From www.pdffiller.com
Borrower's Certificate of Known Costs (Section 242/223f) HUD Doc Cost Certification Hud hud oig conducts audits, evaluations, investigations, and other reviews of the programs and operations of hud. Only costs which have been paid in cash or will. Hud regulations require cost certification for all section 202 projects. cost certification is required by the national housing act and regulations for all insured multifamily projects processed by map. a new. Cost Certification Hud.
From www.templateroller.com
Form HUD92205OHF Fill Out, Sign Online and Download Fillable PDF Cost Certification Hud a new housing trust fund (htf) frequently asked question (faq) addressing whether there are cost. hud oig conducts audits, evaluations, investigations, and other reviews of the programs and operations of hud. Hud regulations require cost certification for all section 202 projects. *the cost certification is the basis for hud’s determination of the project’s actual. Cost certification is. Cost Certification Hud.
From www.templateroller.com
Form HUD92330A Fill Out, Sign Online and Download Fillable PDF Cost Certification Hud not planning for the cost certification process can significantly delay your affordable housing project. Only costs which have been paid in cash or will. Hud regulations require cost certification for all section 202 projects. cost certification is required by the national housing act and regulations for all insured multifamily projects processed by map. hud oig conducts audits,. Cost Certification Hud.
From www.pdffiller.com
HUD53001 Actual Modernization Cost Certificate Doc Template pdfFiller Cost Certification Hud Only costs which have been paid in cash or will. not planning for the cost certification process can significantly delay your affordable housing project. cost certification is required by the national housing act and regulations for all insured multifamily projects processed by map. hud oig conducts audits, evaluations, investigations, and other reviews of the programs and operations. Cost Certification Hud.
From www.formsbank.com
Fillable Form Hud52427 Actual Development Cost Certificate printable Cost Certification Hud not planning for the cost certification process can significantly delay your affordable housing project. Cost certification is required by section 227 of the national housing act and hud regulations. a new housing trust fund (htf) frequently asked question (faq) addressing whether there are cost. hud oig conducts audits, evaluations, investigations, and other reviews of the programs and. Cost Certification Hud.
From www.formsbank.com
Fillable Form Hud52484 Development Cost Budget/cost Statement Cost Certification Hud a new housing trust fund (htf) frequently asked question (faq) addressing whether there are cost. Hud regulations require cost certification for all section 202 projects. not planning for the cost certification process can significantly delay your affordable housing project. hud oig conducts audits, evaluations, investigations, and other reviews of the programs and operations of hud. *the. Cost Certification Hud.
From www.templateroller.com
Form HUD92331A Fill Out, Sign Online and Download Fillable PDF Cost Certification Hud *the cost certification is the basis for hud’s determination of the project’s actual. Cost certification is required by section 227 of the national housing act and hud regulations. cost certification is required by the national housing act and regulations for all insured multifamily projects processed by map. a new housing trust fund (htf) frequently asked question (faq). Cost Certification Hud.
From www.templateroller.com
Form HUD92330OHF Fill Out, Sign Online and Download Fillable PDF Cost Certification Hud not planning for the cost certification process can significantly delay your affordable housing project. Hud regulations require cost certification for all section 202 projects. Only costs which have been paid in cash or will. Cost certification is required by section 227 of the national housing act and hud regulations. *the cost certification is the basis for hud’s determination. Cost Certification Hud.
From www.erp-information.com
TOGAF Certification Cost (Certification Types, Exams, Costs) Cost Certification Hud Hud regulations require cost certification for all section 202 projects. cost certification is required by the national housing act and regulations for all insured multifamily projects processed by map. *the cost certification is the basis for hud’s determination of the project’s actual. Cost certification is required by section 227 of the national housing act and hud regulations. . Cost Certification Hud.
From www.slideserve.com
PPT HUD Business Agreements & Sophisticated Legal, Tax and Accounting Cost Certification Hud a new housing trust fund (htf) frequently asked question (faq) addressing whether there are cost. Cost certification is required by section 227 of the national housing act and hud regulations. not planning for the cost certification process can significantly delay your affordable housing project. Only costs which have been paid in cash or will. *the cost certification. Cost Certification Hud.
From www.templateroller.com
Form HUD309 Fill Out, Sign Online and Download Printable PDF Cost Certification Hud a new housing trust fund (htf) frequently asked question (faq) addressing whether there are cost. Cost certification is required by section 227 of the national housing act and hud regulations. Only costs which have been paid in cash or will. not planning for the cost certification process can significantly delay your affordable housing project. cost certification is. Cost Certification Hud.
From slideplayer.com
The Nuts & Bolts of Servicing a 221(d)(4) Construction Loan ppt download Cost Certification Hud *the cost certification is the basis for hud’s determination of the project’s actual. Only costs which have been paid in cash or will. not planning for the cost certification process can significantly delay your affordable housing project. a new housing trust fund (htf) frequently asked question (faq) addressing whether there are cost. Hud regulations require cost certification. Cost Certification Hud.
From www.stuvia.com
HUD Certification Exam with complete solution 2023 HUD Stuvia US Cost Certification Hud a new housing trust fund (htf) frequently asked question (faq) addressing whether there are cost. Hud regulations require cost certification for all section 202 projects. Only costs which have been paid in cash or will. cost certification is required by the national housing act and regulations for all insured multifamily projects processed by map. hud oig conducts. Cost Certification Hud.
From www.templateroller.com
Form HUD92330AOHF Fill Out, Sign Online and Download Fillable PDF Cost Certification Hud Only costs which have been paid in cash or will. hud oig conducts audits, evaluations, investigations, and other reviews of the programs and operations of hud. *the cost certification is the basis for hud’s determination of the project’s actual. cost certification is required by the national housing act and regulations for all insured multifamily projects processed by. Cost Certification Hud.
From www.templateroller.com
Form HUD92331A Fill Out, Sign Online and Download Fillable PDF Cost Certification Hud Cost certification is required by section 227 of the national housing act and hud regulations. a new housing trust fund (htf) frequently asked question (faq) addressing whether there are cost. *the cost certification is the basis for hud’s determination of the project’s actual. not planning for the cost certification process can significantly delay your affordable housing project.. Cost Certification Hud.
From www.formsbank.com
Fillable Form Hud2205A Mortgagor'S Certificate Of Actual Cost Cost Certification Hud Cost certification is required by section 227 of the national housing act and hud regulations. *the cost certification is the basis for hud’s determination of the project’s actual. a new housing trust fund (htf) frequently asked question (faq) addressing whether there are cost. cost certification is required by the national housing act and regulations for all insured. Cost Certification Hud.