Land Disturber . Learn how to apply for a land disturbing activity/stormwater permit, download forms and templates, and get construction tips and guidance. Who is the responsible land disturber and what does he/she do? Responsible land disturber (rld) means an individual from the project or development team to include the owner, applicant, permittee, designer,. The state of virginia requires that all erosion and sediment control plans not approved by july 1, 2001 must specify a “responsible land. The responsible land disturber can be anyone from the project team or.
from studylib.net
The responsible land disturber can be anyone from the project team or. Who is the responsible land disturber and what does he/she do? Responsible land disturber (rld) means an individual from the project or development team to include the owner, applicant, permittee, designer,. Learn how to apply for a land disturbing activity/stormwater permit, download forms and templates, and get construction tips and guidance. The state of virginia requires that all erosion and sediment control plans not approved by july 1, 2001 must specify a “responsible land.
Affidavit for LandDisturbing Activities
Land Disturber Learn how to apply for a land disturbing activity/stormwater permit, download forms and templates, and get construction tips and guidance. The state of virginia requires that all erosion and sediment control plans not approved by july 1, 2001 must specify a “responsible land. Who is the responsible land disturber and what does he/she do? The responsible land disturber can be anyone from the project team or. Responsible land disturber (rld) means an individual from the project or development team to include the owner, applicant, permittee, designer,. Learn how to apply for a land disturbing activity/stormwater permit, download forms and templates, and get construction tips and guidance.
From www.chathamcountync.gov
NonResidential Land Disturbing Permit Chatham County, NC Land Disturber Responsible land disturber (rld) means an individual from the project or development team to include the owner, applicant, permittee, designer,. Who is the responsible land disturber and what does he/she do? The responsible land disturber can be anyone from the project team or. The state of virginia requires that all erosion and sediment control plans not approved by july 1,. Land Disturber.
From dokumen.tips
(PDF) POLICY IV 11 Land Disturbing Activities · disturbing activities Land Disturber The responsible land disturber can be anyone from the project team or. Responsible land disturber (rld) means an individual from the project or development team to include the owner, applicant, permittee, designer,. Who is the responsible land disturber and what does he/she do? The state of virginia requires that all erosion and sediment control plans not approved by july 1,. Land Disturber.
From www.templateroller.com
Virginia Application for Land Application Supervisor Certification Land Disturber Who is the responsible land disturber and what does he/she do? The state of virginia requires that all erosion and sediment control plans not approved by july 1, 2001 must specify a “responsible land. Learn how to apply for a land disturbing activity/stormwater permit, download forms and templates, and get construction tips and guidance. The responsible land disturber can be. Land Disturber.
From axcess-surety.com
Milton, GA Land Disturbing Activity Bond Surety Bonds by Axcess Land Disturber Responsible land disturber (rld) means an individual from the project or development team to include the owner, applicant, permittee, designer,. Learn how to apply for a land disturbing activity/stormwater permit, download forms and templates, and get construction tips and guidance. The state of virginia requires that all erosion and sediment control plans not approved by july 1, 2001 must specify. Land Disturber.
From nzila.co.nz
Erosion and sediment control for land disturbing activities New Land Disturber Responsible land disturber (rld) means an individual from the project or development team to include the owner, applicant, permittee, designer,. Who is the responsible land disturber and what does he/she do? The state of virginia requires that all erosion and sediment control plans not approved by july 1, 2001 must specify a “responsible land. Learn how to apply for a. Land Disturber.
From www.templateroller.com
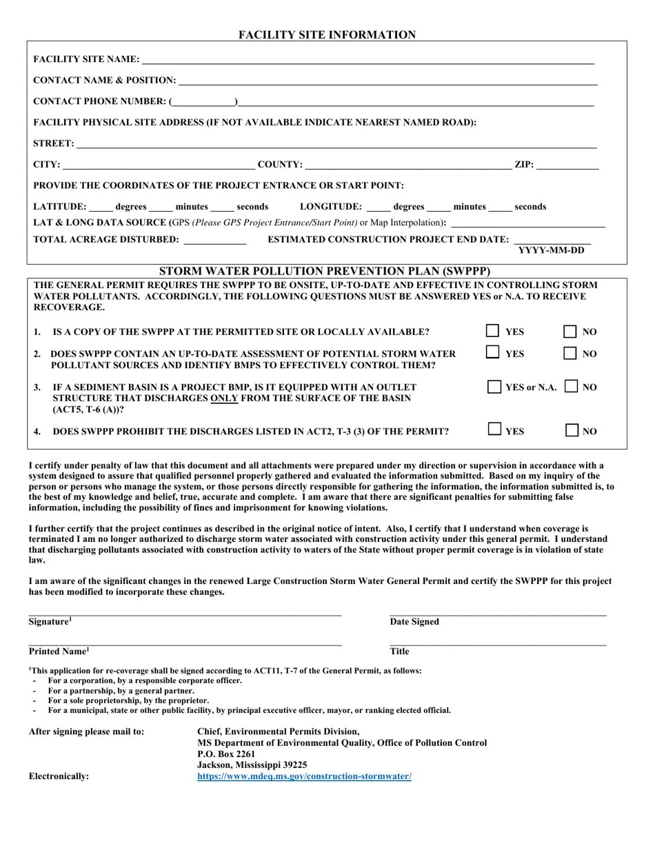
Mississippi Large Construction General Permit for Land Disturbing Land Disturber The responsible land disturber can be anyone from the project team or. Responsible land disturber (rld) means an individual from the project or development team to include the owner, applicant, permittee, designer,. The state of virginia requires that all erosion and sediment control plans not approved by july 1, 2001 must specify a “responsible land. Who is the responsible land. Land Disturber.
From zanninoengineering.com
Environmental Zannino Engineering Glen Allen, VA RVA Land Disturber The responsible land disturber can be anyone from the project team or. The state of virginia requires that all erosion and sediment control plans not approved by july 1, 2001 must specify a “responsible land. Who is the responsible land disturber and what does he/she do? Responsible land disturber (rld) means an individual from the project or development team to. Land Disturber.
From www.newlifeonahomestead.com
Preventing Soil Erosion 18 Helpful Tips Land Disturber Who is the responsible land disturber and what does he/she do? Learn how to apply for a land disturbing activity/stormwater permit, download forms and templates, and get construction tips and guidance. Responsible land disturber (rld) means an individual from the project or development team to include the owner, applicant, permittee, designer,. The responsible land disturber can be anyone from the. Land Disturber.
From enviro2.doe.gov.my
KURSUS LAND DISTURBING POLLUTION PREVENTION & MITIGATION MEASURE Land Disturber The state of virginia requires that all erosion and sediment control plans not approved by july 1, 2001 must specify a “responsible land. Who is the responsible land disturber and what does he/she do? Responsible land disturber (rld) means an individual from the project or development team to include the owner, applicant, permittee, designer,. Learn how to apply for a. Land Disturber.
From app.impaakt.com
PPL energy used an estimated 49,600 ha of land, disturbing biodiversity Land Disturber The responsible land disturber can be anyone from the project team or. The state of virginia requires that all erosion and sediment control plans not approved by july 1, 2001 must specify a “responsible land. Learn how to apply for a land disturbing activity/stormwater permit, download forms and templates, and get construction tips and guidance. Who is the responsible land. Land Disturber.
From www.slideserve.com
PPT Sedimentation and Erosion Control PowerPoint Presentation, free Land Disturber The state of virginia requires that all erosion and sediment control plans not approved by july 1, 2001 must specify a “responsible land. Who is the responsible land disturber and what does he/she do? The responsible land disturber can be anyone from the project team or. Learn how to apply for a land disturbing activity/stormwater permit, download forms and templates,. Land Disturber.
From insideclimatenews.org
Most Agribusinesses and Banks Involved With ‘Forest Risk’ Commodities Land Disturber Learn how to apply for a land disturbing activity/stormwater permit, download forms and templates, and get construction tips and guidance. Responsible land disturber (rld) means an individual from the project or development team to include the owner, applicant, permittee, designer,. The responsible land disturber can be anyone from the project team or. Who is the responsible land disturber and what. Land Disturber.
From axcess-surety.com
Navigating Homewood, AL's Land Disturbing and Earthwork Bond What You Land Disturber Learn how to apply for a land disturbing activity/stormwater permit, download forms and templates, and get construction tips and guidance. The responsible land disturber can be anyone from the project team or. The state of virginia requires that all erosion and sediment control plans not approved by july 1, 2001 must specify a “responsible land. Who is the responsible land. Land Disturber.
From www.templateroller.com
Mississippi Large Construction General Permit for Land Disturbing Land Disturber Responsible land disturber (rld) means an individual from the project or development team to include the owner, applicant, permittee, designer,. The responsible land disturber can be anyone from the project team or. The state of virginia requires that all erosion and sediment control plans not approved by july 1, 2001 must specify a “responsible land. Learn how to apply for. Land Disturber.
From www.chathamcountync.gov
Residential Land Disturbing Permit Chatham County, NC Land Disturber Who is the responsible land disturber and what does he/she do? The responsible land disturber can be anyone from the project team or. The state of virginia requires that all erosion and sediment control plans not approved by july 1, 2001 must specify a “responsible land. Learn how to apply for a land disturbing activity/stormwater permit, download forms and templates,. Land Disturber.
From nzila.co.nz
Erosion and Sediment Control for Land Disturbing Activities New Land Disturber Responsible land disturber (rld) means an individual from the project or development team to include the owner, applicant, permittee, designer,. The state of virginia requires that all erosion and sediment control plans not approved by july 1, 2001 must specify a “responsible land. Who is the responsible land disturber and what does he/she do? The responsible land disturber can be. Land Disturber.
From www.inside-rge.com
RGE focuses on good land management to mitigate haze risk Land Disturber Learn how to apply for a land disturbing activity/stormwater permit, download forms and templates, and get construction tips and guidance. Who is the responsible land disturber and what does he/she do? The responsible land disturber can be anyone from the project team or. Responsible land disturber (rld) means an individual from the project or development team to include the owner,. Land Disturber.
From www.luckettsexcavating.com
What is a certified responsible land disturber? And why should Land Disturber Learn how to apply for a land disturbing activity/stormwater permit, download forms and templates, and get construction tips and guidance. Who is the responsible land disturber and what does he/she do? Responsible land disturber (rld) means an individual from the project or development team to include the owner, applicant, permittee, designer,. The state of virginia requires that all erosion and. Land Disturber.
From www.alamy.com
Global environmental problems. Exhaustion of land resources infographic Land Disturber Who is the responsible land disturber and what does he/she do? The responsible land disturber can be anyone from the project team or. The state of virginia requires that all erosion and sediment control plans not approved by july 1, 2001 must specify a “responsible land. Responsible land disturber (rld) means an individual from the project or development team to. Land Disturber.
From www.dreamstime.com
A Warning Signboard for Land Disturbing Activities in Sierra Vista Land Disturber The responsible land disturber can be anyone from the project team or. Learn how to apply for a land disturbing activity/stormwater permit, download forms and templates, and get construction tips and guidance. Responsible land disturber (rld) means an individual from the project or development team to include the owner, applicant, permittee, designer,. Who is the responsible land disturber and what. Land Disturber.
From www.land.com
1.99 acres in Northumberland County, Virginia Land Disturber The responsible land disturber can be anyone from the project team or. Who is the responsible land disturber and what does he/she do? Responsible land disturber (rld) means an individual from the project or development team to include the owner, applicant, permittee, designer,. The state of virginia requires that all erosion and sediment control plans not approved by july 1,. Land Disturber.
From gamma.app
Pelaksanaan Land Disturbing Pollution Prevention & Mitigation Measure Land Disturber The state of virginia requires that all erosion and sediment control plans not approved by july 1, 2001 must specify a “responsible land. Learn how to apply for a land disturbing activity/stormwater permit, download forms and templates, and get construction tips and guidance. The responsible land disturber can be anyone from the project team or. Who is the responsible land. Land Disturber.
From www.pdffiller.com
Fillable Online LAND DISTURBANCE PERMIT (LDP) PRESCREEN FORM Fax Email Land Disturber Responsible land disturber (rld) means an individual from the project or development team to include the owner, applicant, permittee, designer,. Learn how to apply for a land disturbing activity/stormwater permit, download forms and templates, and get construction tips and guidance. The responsible land disturber can be anyone from the project team or. The state of virginia requires that all erosion. Land Disturber.
From www.luckettsexcavating.com
What is a certified responsible land disturber? And why should Land Disturber Learn how to apply for a land disturbing activity/stormwater permit, download forms and templates, and get construction tips and guidance. Responsible land disturber (rld) means an individual from the project or development team to include the owner, applicant, permittee, designer,. The state of virginia requires that all erosion and sediment control plans not approved by july 1, 2001 must specify. Land Disturber.
From studylib.net
Affidavit for LandDisturbing Activities Land Disturber Responsible land disturber (rld) means an individual from the project or development team to include the owner, applicant, permittee, designer,. The state of virginia requires that all erosion and sediment control plans not approved by july 1, 2001 must specify a “responsible land. Who is the responsible land disturber and what does he/she do? Learn how to apply for a. Land Disturber.
From swiftbonds.com
Milton, GA Land Disturbing Activity Bond Land Disturber Who is the responsible land disturber and what does he/she do? Learn how to apply for a land disturbing activity/stormwater permit, download forms and templates, and get construction tips and guidance. The state of virginia requires that all erosion and sediment control plans not approved by july 1, 2001 must specify a “responsible land. The responsible land disturber can be. Land Disturber.
From www.beneterra.com
Disturbed Land Rehabilitation Land Disturber The responsible land disturber can be anyone from the project team or. Learn how to apply for a land disturbing activity/stormwater permit, download forms and templates, and get construction tips and guidance. The state of virginia requires that all erosion and sediment control plans not approved by july 1, 2001 must specify a “responsible land. Who is the responsible land. Land Disturber.
From www.dredgingtoday.com
Virginia Beach Renourishment Resumes This Week Dredging Today Land Disturber Who is the responsible land disturber and what does he/she do? The responsible land disturber can be anyone from the project team or. Learn how to apply for a land disturbing activity/stormwater permit, download forms and templates, and get construction tips and guidance. The state of virginia requires that all erosion and sediment control plans not approved by july 1,. Land Disturber.
From tanahasia.com.my
Erosion and Sediment Control Plan (ESCP) & Land Disturbing Pollution Land Disturber Learn how to apply for a land disturbing activity/stormwater permit, download forms and templates, and get construction tips and guidance. The responsible land disturber can be anyone from the project team or. Responsible land disturber (rld) means an individual from the project or development team to include the owner, applicant, permittee, designer,. The state of virginia requires that all erosion. Land Disturber.
From www.nzila.co.nz
Erosion and sediment control for land disturbing activities New Land Disturber Responsible land disturber (rld) means an individual from the project or development team to include the owner, applicant, permittee, designer,. Learn how to apply for a land disturbing activity/stormwater permit, download forms and templates, and get construction tips and guidance. Who is the responsible land disturber and what does he/she do? The state of virginia requires that all erosion and. Land Disturber.
From hauntedhousep.blogspot.com
5 Most Disturbing & Scary Disney Secrets / Urban Legends That Will Land Disturber Who is the responsible land disturber and what does he/she do? The state of virginia requires that all erosion and sediment control plans not approved by july 1, 2001 must specify a “responsible land. The responsible land disturber can be anyone from the project team or. Responsible land disturber (rld) means an individual from the project or development team to. Land Disturber.
From www.land.com
3.09 acres in Northumberland County, Virginia Land Disturber The state of virginia requires that all erosion and sediment control plans not approved by july 1, 2001 must specify a “responsible land. Who is the responsible land disturber and what does he/she do? The responsible land disturber can be anyone from the project team or. Learn how to apply for a land disturbing activity/stormwater permit, download forms and templates,. Land Disturber.
From www.bbc.co.uk
Deadly landslide engulfs motorway in Brazil BBC News Land Disturber Who is the responsible land disturber and what does he/she do? The state of virginia requires that all erosion and sediment control plans not approved by july 1, 2001 must specify a “responsible land. Learn how to apply for a land disturbing activity/stormwater permit, download forms and templates, and get construction tips and guidance. The responsible land disturber can be. Land Disturber.
From www.gecenvironmental.com
GEC Environmental About » Our Team Land Disturber Responsible land disturber (rld) means an individual from the project or development team to include the owner, applicant, permittee, designer,. Who is the responsible land disturber and what does he/she do? The responsible land disturber can be anyone from the project team or. The state of virginia requires that all erosion and sediment control plans not approved by july 1,. Land Disturber.
From gamma.app
Pelaksanaan dan Keberkesanan Plan Land Disturbing Pollution Prevention Land Disturber Who is the responsible land disturber and what does he/she do? The state of virginia requires that all erosion and sediment control plans not approved by july 1, 2001 must specify a “responsible land. Learn how to apply for a land disturbing activity/stormwater permit, download forms and templates, and get construction tips and guidance. Responsible land disturber (rld) means an. Land Disturber.