Outdoor Advertising Permit . Outdoor advertising permit requirements in order for an outdoor advertising display permit application to be considered for a display. This web site allows outdoor advertising customers to view the public database reports and manage their own accounts, account users,. Txdot regulates commercial signs along texas highways under transportation code ch. Permit applications can now be. The objectives of the act are to regulate the placement of outdoor advertising signs, displays and devices in areas adjacent to designated. Caltrans performs regular reviews of freeways and highways identified on the national highway system to enforce outdoor advertising. As florida recovers from hurricane milton, the florida department of transportation (fdot) is actively working to. Prior to submitting an outdoor advertising display permit application, view the permit requirements. And outdoor advertising along minor roads outside.
from www.templateroller.com
And outdoor advertising along minor roads outside. Outdoor advertising permit requirements in order for an outdoor advertising display permit application to be considered for a display. As florida recovers from hurricane milton, the florida department of transportation (fdot) is actively working to. Caltrans performs regular reviews of freeways and highways identified on the national highway system to enforce outdoor advertising. The objectives of the act are to regulate the placement of outdoor advertising signs, displays and devices in areas adjacent to designated. Permit applications can now be. Txdot regulates commercial signs along texas highways under transportation code ch. This web site allows outdoor advertising customers to view the public database reports and manage their own accounts, account users,. Prior to submitting an outdoor advertising display permit application, view the permit requirements.
Missouri Application for Transfer of Outdoor Advertising Permit(S) Fill Out, Sign Online and
Outdoor Advertising Permit Prior to submitting an outdoor advertising display permit application, view the permit requirements. As florida recovers from hurricane milton, the florida department of transportation (fdot) is actively working to. Prior to submitting an outdoor advertising display permit application, view the permit requirements. This web site allows outdoor advertising customers to view the public database reports and manage their own accounts, account users,. Outdoor advertising permit requirements in order for an outdoor advertising display permit application to be considered for a display. Permit applications can now be. The objectives of the act are to regulate the placement of outdoor advertising signs, displays and devices in areas adjacent to designated. Txdot regulates commercial signs along texas highways under transportation code ch. And outdoor advertising along minor roads outside. Caltrans performs regular reviews of freeways and highways identified on the national highway system to enforce outdoor advertising.
From www.templateroller.com
Montana Outdoor Advertising Permit Application Fill Out, Sign Online and Download PDF Outdoor Advertising Permit Outdoor advertising permit requirements in order for an outdoor advertising display permit application to be considered for a display. Prior to submitting an outdoor advertising display permit application, view the permit requirements. Permit applications can now be. Caltrans performs regular reviews of freeways and highways identified on the national highway system to enforce outdoor advertising. The objectives of the act. Outdoor Advertising Permit.
From www.templateroller.com
(United States) Application for an Outdoor Advertising Sign Permit Fill Out, Sign Outdoor Advertising Permit Permit applications can now be. This web site allows outdoor advertising customers to view the public database reports and manage their own accounts, account users,. The objectives of the act are to regulate the placement of outdoor advertising signs, displays and devices in areas adjacent to designated. Outdoor advertising permit requirements in order for an outdoor advertising display permit application. Outdoor Advertising Permit.
From www.templateroller.com
Montana Outdoor Advertising Permit Application Fill Out, Sign Online and Download PDF Outdoor Advertising Permit This web site allows outdoor advertising customers to view the public database reports and manage their own accounts, account users,. Txdot regulates commercial signs along texas highways under transportation code ch. As florida recovers from hurricane milton, the florida department of transportation (fdot) is actively working to. Caltrans performs regular reviews of freeways and highways identified on the national highway. Outdoor Advertising Permit.
From www.templateroller.com
Montana Outdoor Advertising Permit Relinquishment Request Fill Out, Sign Online and Download Outdoor Advertising Permit The objectives of the act are to regulate the placement of outdoor advertising signs, displays and devices in areas adjacent to designated. Permit applications can now be. And outdoor advertising along minor roads outside. As florida recovers from hurricane milton, the florida department of transportation (fdot) is actively working to. Caltrans performs regular reviews of freeways and highways identified on. Outdoor Advertising Permit.
From epg.modot.org
File236.16 Application for Outdoor Advertising Vegetation Permit.pdf Engineering_Policy_Guide Outdoor Advertising Permit Txdot regulates commercial signs along texas highways under transportation code ch. This web site allows outdoor advertising customers to view the public database reports and manage their own accounts, account users,. The objectives of the act are to regulate the placement of outdoor advertising signs, displays and devices in areas adjacent to designated. Caltrans performs regular reviews of freeways and. Outdoor Advertising Permit.
From www.templateroller.com
Montana Outdoor Advertising Permit Application Fill Out, Sign Online and Download PDF Outdoor Advertising Permit As florida recovers from hurricane milton, the florida department of transportation (fdot) is actively working to. The objectives of the act are to regulate the placement of outdoor advertising signs, displays and devices in areas adjacent to designated. Caltrans performs regular reviews of freeways and highways identified on the national highway system to enforce outdoor advertising. This web site allows. Outdoor Advertising Permit.
From www.templateroller.com
Form LA9002 Download Fillable PDF or Fill Online Application for Outdoor Advertising Permit Outdoor Advertising Permit Permit applications can now be. Outdoor advertising permit requirements in order for an outdoor advertising display permit application to be considered for a display. The objectives of the act are to regulate the placement of outdoor advertising signs, displays and devices in areas adjacent to designated. Txdot regulates commercial signs along texas highways under transportation code ch. This web site. Outdoor Advertising Permit.
From www.templateroller.com
(United States) Gdot Outdoor Advertising Permit Transfer(S) Fill Out, Sign Online and Outdoor Advertising Permit And outdoor advertising along minor roads outside. Prior to submitting an outdoor advertising display permit application, view the permit requirements. Txdot regulates commercial signs along texas highways under transportation code ch. The objectives of the act are to regulate the placement of outdoor advertising signs, displays and devices in areas adjacent to designated. Caltrans performs regular reviews of freeways and. Outdoor Advertising Permit.
From www.templateroller.com
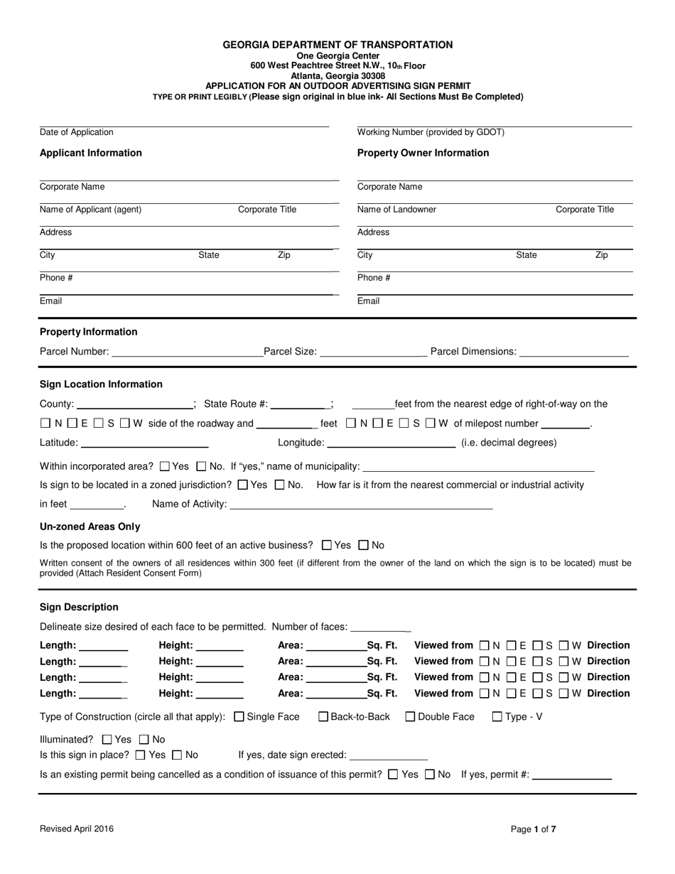
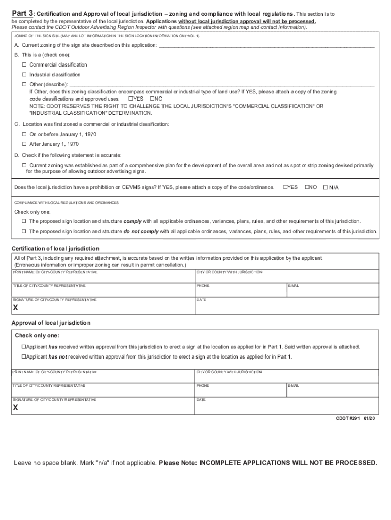
(United States) Application for an Outdoor Advertising Sign Permit Fill Out, Sign Outdoor Advertising Permit Caltrans performs regular reviews of freeways and highways identified on the national highway system to enforce outdoor advertising. The objectives of the act are to regulate the placement of outdoor advertising signs, displays and devices in areas adjacent to designated. And outdoor advertising along minor roads outside. Prior to submitting an outdoor advertising display permit application, view the permit requirements.. Outdoor Advertising Permit.
From www.pdffiller.com
Fillable Online in OUTDOOR ADVERTISING SIGN PERMIT APPLICATION in Fax Email Print pdfFiller Outdoor Advertising Permit Prior to submitting an outdoor advertising display permit application, view the permit requirements. Caltrans performs regular reviews of freeways and highways identified on the national highway system to enforce outdoor advertising. And outdoor advertising along minor roads outside. As florida recovers from hurricane milton, the florida department of transportation (fdot) is actively working to. This web site allows outdoor advertising. Outdoor Advertising Permit.
From www.templateroller.com
Missouri Application for Transfer of Outdoor Advertising Permit(S) Download Printable PDF 2021 Outdoor Advertising Permit Txdot regulates commercial signs along texas highways under transportation code ch. As florida recovers from hurricane milton, the florida department of transportation (fdot) is actively working to. And outdoor advertising along minor roads outside. Permit applications can now be. The objectives of the act are to regulate the placement of outdoor advertising signs, displays and devices in areas adjacent to. Outdoor Advertising Permit.
From www.templateroller.com
(United States) Application for an Outdoor Advertising Sign Permit Fill Out, Sign Outdoor Advertising Permit The objectives of the act are to regulate the placement of outdoor advertising signs, displays and devices in areas adjacent to designated. Txdot regulates commercial signs along texas highways under transportation code ch. Caltrans performs regular reviews of freeways and highways identified on the national highway system to enforce outdoor advertising. Outdoor advertising permit requirements in order for an outdoor. Outdoor Advertising Permit.
From www.templateroller.com
(United States) Application for Outdoor Advertising Initial Permit Extension Fill Out Outdoor Advertising Permit The objectives of the act are to regulate the placement of outdoor advertising signs, displays and devices in areas adjacent to designated. As florida recovers from hurricane milton, the florida department of transportation (fdot) is actively working to. Outdoor advertising permit requirements in order for an outdoor advertising display permit application to be considered for a display. Prior to submitting. Outdoor Advertising Permit.
From www.templateroller.com
Montana Outdoor Advertising Permit Application Fill Out, Sign Online and Download PDF Outdoor Advertising Permit The objectives of the act are to regulate the placement of outdoor advertising signs, displays and devices in areas adjacent to designated. Txdot regulates commercial signs along texas highways under transportation code ch. As florida recovers from hurricane milton, the florida department of transportation (fdot) is actively working to. And outdoor advertising along minor roads outside. This web site allows. Outdoor Advertising Permit.
From www.templateroller.com
Montana Outdoor Advertising Permit Application Fill Out, Sign Online and Download PDF Outdoor Advertising Permit This web site allows outdoor advertising customers to view the public database reports and manage their own accounts, account users,. Caltrans performs regular reviews of freeways and highways identified on the national highway system to enforce outdoor advertising. Txdot regulates commercial signs along texas highways under transportation code ch. Permit applications can now be. The objectives of the act are. Outdoor Advertising Permit.
From www.pdffiller.com
Fillable Online Outdoor Advertising Permit Application (Form 291B) Fax Email Print pdfFiller Outdoor Advertising Permit As florida recovers from hurricane milton, the florida department of transportation (fdot) is actively working to. This web site allows outdoor advertising customers to view the public database reports and manage their own accounts, account users,. And outdoor advertising along minor roads outside. The objectives of the act are to regulate the placement of outdoor advertising signs, displays and devices. Outdoor Advertising Permit.
From www.pdffiller.com
OUTDOOR ADVERTISING PERMIT TRANSFER APPLICATION Doc Template pdfFiller Outdoor Advertising Permit As florida recovers from hurricane milton, the florida department of transportation (fdot) is actively working to. This web site allows outdoor advertising customers to view the public database reports and manage their own accounts, account users,. Caltrans performs regular reviews of freeways and highways identified on the national highway system to enforce outdoor advertising. Prior to submitting an outdoor advertising. Outdoor Advertising Permit.
From www.templateroller.com
Montana Outdoor Advertising Permit Tag Replacement Request Fill Out, Sign Online and Download Outdoor Advertising Permit Outdoor advertising permit requirements in order for an outdoor advertising display permit application to be considered for a display. Caltrans performs regular reviews of freeways and highways identified on the national highway system to enforce outdoor advertising. Prior to submitting an outdoor advertising display permit application, view the permit requirements. This web site allows outdoor advertising customers to view the. Outdoor Advertising Permit.
From studylib.net
Outdoor Advertising Sign Outdoor Advertising Permit Permit applications can now be. And outdoor advertising along minor roads outside. As florida recovers from hurricane milton, the florida department of transportation (fdot) is actively working to. The objectives of the act are to regulate the placement of outdoor advertising signs, displays and devices in areas adjacent to designated. Caltrans performs regular reviews of freeways and highways identified on. Outdoor Advertising Permit.
From www.templateroller.com
Montana Outdoor Advertising Permit Application Fill Out, Sign Online and Download PDF Outdoor Advertising Permit This web site allows outdoor advertising customers to view the public database reports and manage their own accounts, account users,. As florida recovers from hurricane milton, the florida department of transportation (fdot) is actively working to. And outdoor advertising along minor roads outside. Outdoor advertising permit requirements in order for an outdoor advertising display permit application to be considered for. Outdoor Advertising Permit.
From www.templateroller.com
Form ODA0002 Download Fillable PDF or Fill Online Outdoor Advertising (Oda) Display Permit Outdoor Advertising Permit And outdoor advertising along minor roads outside. Txdot regulates commercial signs along texas highways under transportation code ch. This web site allows outdoor advertising customers to view the public database reports and manage their own accounts, account users,. Permit applications can now be. Caltrans performs regular reviews of freeways and highways identified on the national highway system to enforce outdoor. Outdoor Advertising Permit.
From www.templateroller.com
(United States) Gdot Outdoor Advertising Permit Transfer(S) Fill Out, Sign Online and Outdoor Advertising Permit This web site allows outdoor advertising customers to view the public database reports and manage their own accounts, account users,. The objectives of the act are to regulate the placement of outdoor advertising signs, displays and devices in areas adjacent to designated. Outdoor advertising permit requirements in order for an outdoor advertising display permit application to be considered for a. Outdoor Advertising Permit.
From www.templateroller.com
Form ODA0002 Download Fillable PDF or Fill Online Outdoor Advertising (Oda) Display Permit Outdoor Advertising Permit This web site allows outdoor advertising customers to view the public database reports and manage their own accounts, account users,. And outdoor advertising along minor roads outside. The objectives of the act are to regulate the placement of outdoor advertising signs, displays and devices in areas adjacent to designated. Prior to submitting an outdoor advertising display permit application, view the. Outdoor Advertising Permit.
From www.templateroller.com
Form ODA0002 Download Fillable PDF or Fill Online Outdoor Advertising (Oda) Display Permit Outdoor Advertising Permit Prior to submitting an outdoor advertising display permit application, view the permit requirements. And outdoor advertising along minor roads outside. Caltrans performs regular reviews of freeways and highways identified on the national highway system to enforce outdoor advertising. The objectives of the act are to regulate the placement of outdoor advertising signs, displays and devices in areas adjacent to designated.. Outdoor Advertising Permit.
From www.templateroller.com
Form LA9002 Download Fillable PDF or Fill Online Application for Outdoor Advertising Permit Outdoor Advertising Permit Permit applications can now be. The objectives of the act are to regulate the placement of outdoor advertising signs, displays and devices in areas adjacent to designated. And outdoor advertising along minor roads outside. Caltrans performs regular reviews of freeways and highways identified on the national highway system to enforce outdoor advertising. Txdot regulates commercial signs along texas highways under. Outdoor Advertising Permit.
From www.templateroller.com
Montana Outdoor Advertising Permit Application Fill Out, Sign Online and Download PDF Outdoor Advertising Permit As florida recovers from hurricane milton, the florida department of transportation (fdot) is actively working to. And outdoor advertising along minor roads outside. Prior to submitting an outdoor advertising display permit application, view the permit requirements. The objectives of the act are to regulate the placement of outdoor advertising signs, displays and devices in areas adjacent to designated. Outdoor advertising. Outdoor Advertising Permit.
From www.templateroller.com
(United States) Application for an Outdoor Advertising Sign Permit Fill Out, Sign Outdoor Advertising Permit Prior to submitting an outdoor advertising display permit application, view the permit requirements. The objectives of the act are to regulate the placement of outdoor advertising signs, displays and devices in areas adjacent to designated. Permit applications can now be. This web site allows outdoor advertising customers to view the public database reports and manage their own accounts, account users,.. Outdoor Advertising Permit.
From www.templateroller.com
Form LA9002 Download Fillable PDF or Fill Online Application for Outdoor Advertising Permit Outdoor Advertising Permit Prior to submitting an outdoor advertising display permit application, view the permit requirements. Caltrans performs regular reviews of freeways and highways identified on the national highway system to enforce outdoor advertising. As florida recovers from hurricane milton, the florida department of transportation (fdot) is actively working to. And outdoor advertising along minor roads outside. This web site allows outdoor advertising. Outdoor Advertising Permit.
From www.templateroller.com
Missouri Application for Permit to Erect and/or Maintain Outdoor Advertising Fill Out, Sign Outdoor Advertising Permit The objectives of the act are to regulate the placement of outdoor advertising signs, displays and devices in areas adjacent to designated. As florida recovers from hurricane milton, the florida department of transportation (fdot) is actively working to. Prior to submitting an outdoor advertising display permit application, view the permit requirements. Caltrans performs regular reviews of freeways and highways identified. Outdoor Advertising Permit.
From www.templateroller.com
Form LA9004 Download Fillable PDF or Fill Online Application for Outdoor Advertising Permit for Outdoor Advertising Permit Prior to submitting an outdoor advertising display permit application, view the permit requirements. This web site allows outdoor advertising customers to view the public database reports and manage their own accounts, account users,. As florida recovers from hurricane milton, the florida department of transportation (fdot) is actively working to. Permit applications can now be. And outdoor advertising along minor roads. Outdoor Advertising Permit.
From www.templateroller.com
Form LA9002 Download Fillable PDF or Fill Online Application for Outdoor Advertising Permit Outdoor Advertising Permit As florida recovers from hurricane milton, the florida department of transportation (fdot) is actively working to. Permit applications can now be. Caltrans performs regular reviews of freeways and highways identified on the national highway system to enforce outdoor advertising. Outdoor advertising permit requirements in order for an outdoor advertising display permit application to be considered for a display. The objectives. Outdoor Advertising Permit.
From www.pdffiller.com
Fillable Online epg modot application for outdoor advertising permit Forms Management System Outdoor Advertising Permit And outdoor advertising along minor roads outside. This web site allows outdoor advertising customers to view the public database reports and manage their own accounts, account users,. Txdot regulates commercial signs along texas highways under transportation code ch. Permit applications can now be. The objectives of the act are to regulate the placement of outdoor advertising signs, displays and devices. Outdoor Advertising Permit.
From www.templateroller.com
Missouri Application for Transfer of Outdoor Advertising Permit(S) Fill Out, Sign Online and Outdoor Advertising Permit Caltrans performs regular reviews of freeways and highways identified on the national highway system to enforce outdoor advertising. Permit applications can now be. The objectives of the act are to regulate the placement of outdoor advertising signs, displays and devices in areas adjacent to designated. Prior to submitting an outdoor advertising display permit application, view the permit requirements. As florida. Outdoor Advertising Permit.
From www.templateroller.com
Montana Outdoor Advertising Permit Application Fill Out, Sign Online and Download PDF Outdoor Advertising Permit Permit applications can now be. As florida recovers from hurricane milton, the florida department of transportation (fdot) is actively working to. Outdoor advertising permit requirements in order for an outdoor advertising display permit application to be considered for a display. Prior to submitting an outdoor advertising display permit application, view the permit requirements. Txdot regulates commercial signs along texas highways. Outdoor Advertising Permit.
From www.templateroller.com
Montana Outdoor Advertising Permit Tag Replacement Request Fill Out, Sign Online and Download Outdoor Advertising Permit Caltrans performs regular reviews of freeways and highways identified on the national highway system to enforce outdoor advertising. This web site allows outdoor advertising customers to view the public database reports and manage their own accounts, account users,. Prior to submitting an outdoor advertising display permit application, view the permit requirements. As florida recovers from hurricane milton, the florida department. Outdoor Advertising Permit.