Lead Certification Maine . View detailed information on maine fees, contact information, renewal. View detailed information on maine lead abatement. You must register before the (first) day of the course. Asbestos and lead training calendar. Learn all about the lead certification requirements for the state of maine. View detailed information on maine lead risk assessor fees,. Contact the training provider to register for a course. Each class complies with local, state and. Learn all about the requirements to become a lead risk assessor in the state of maine. Epa lead certification offers conveniently located lead certification classes to meet your training needs. Here is information on lead inspectors, lead risk assessors, lead design consultants and lead abatement contractors that do residential lead. Steps for becoming lead certified in maine. Learn all about the requirements to become a lead abatement worker in the state of maine.
from onekeyresources.milwaukeetool.com
Each class complies with local, state and. Learn all about the requirements to become a lead risk assessor in the state of maine. Here is information on lead inspectors, lead risk assessors, lead design consultants and lead abatement contractors that do residential lead. Asbestos and lead training calendar. Learn all about the lead certification requirements for the state of maine. View detailed information on maine fees, contact information, renewal. Learn all about the requirements to become a lead abatement worker in the state of maine. Epa lead certification offers conveniently located lead certification classes to meet your training needs. Steps for becoming lead certified in maine. View detailed information on maine lead risk assessor fees,.
What is LEED Certification? How to LEED Certified
Lead Certification Maine View detailed information on maine fees, contact information, renewal. Contact the training provider to register for a course. View detailed information on maine lead risk assessor fees,. You must register before the (first) day of the course. Epa lead certification offers conveniently located lead certification classes to meet your training needs. View detailed information on maine fees, contact information, renewal. Asbestos and lead training calendar. Learn all about the lead certification requirements for the state of maine. Here is information on lead inspectors, lead risk assessors, lead design consultants and lead abatement contractors that do residential lead. View detailed information on maine lead abatement. Each class complies with local, state and. Steps for becoming lead certified in maine. Learn all about the requirements to become a lead risk assessor in the state of maine. Learn all about the requirements to become a lead abatement worker in the state of maine.
From www.templateroller.com
Maine Asbestos Professional Certification / Lead Professional Lead Certification Maine Learn all about the requirements to become a lead risk assessor in the state of maine. View detailed information on maine lead abatement. Learn all about the requirements to become a lead abatement worker in the state of maine. You must register before the (first) day of the course. Contact the training provider to register for a course. View detailed. Lead Certification Maine.
From www.templateroller.com
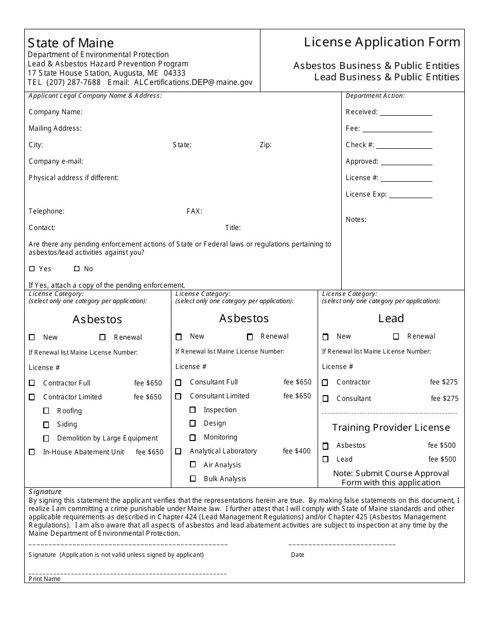
Maine License Application Form Asbestos/Lead Business & Public Lead Certification Maine View detailed information on maine fees, contact information, renewal. View detailed information on maine lead risk assessor fees,. Here is information on lead inspectors, lead risk assessors, lead design consultants and lead abatement contractors that do residential lead. View detailed information on maine lead abatement. Each class complies with local, state and. Learn all about the requirements to become a. Lead Certification Maine.
From umaine.edu
LEED Certification What It Means (On and Off Campus) Green Campus Lead Certification Maine You must register before the (first) day of the course. Steps for becoming lead certified in maine. Here is information on lead inspectors, lead risk assessors, lead design consultants and lead abatement contractors that do residential lead. Learn all about the lead certification requirements for the state of maine. Asbestos and lead training calendar. Epa lead certification offers conveniently located. Lead Certification Maine.
From www.templateroller.com
Maine License Application Form Asbestos/Lead Business & Public Lead Certification Maine Learn all about the requirements to become a lead risk assessor in the state of maine. Epa lead certification offers conveniently located lead certification classes to meet your training needs. Contact the training provider to register for a course. Learn all about the requirements to become a lead abatement worker in the state of maine. Steps for becoming lead certified. Lead Certification Maine.
From tutore.org
Lead Rrp Certification Master of Documents Lead Certification Maine View detailed information on maine lead abatement. Steps for becoming lead certified in maine. View detailed information on maine fees, contact information, renewal. Learn all about the requirements to become a lead abatement worker in the state of maine. You must register before the (first) day of the course. Each class complies with local, state and. View detailed information on. Lead Certification Maine.
From leadgenera.com
Lead Generation in Maine Lead Genera Lead Certification Maine Contact the training provider to register for a course. Here is information on lead inspectors, lead risk assessors, lead design consultants and lead abatement contractors that do residential lead. You must register before the (first) day of the course. View detailed information on maine fees, contact information, renewal. Asbestos and lead training calendar. Learn all about the requirements to become. Lead Certification Maine.
From www.prweb.com
Pivot Point Security Adds ISO 22301 Certified Lead Implementer; Expands Lead Certification Maine Here is information on lead inspectors, lead risk assessors, lead design consultants and lead abatement contractors that do residential lead. Learn all about the lead certification requirements for the state of maine. Learn all about the requirements to become a lead abatement worker in the state of maine. View detailed information on maine fees, contact information, renewal. Each class complies. Lead Certification Maine.
From www.templateroller.com
Maine Application Form for Asbestos Professional/Lead Professional Lead Certification Maine Contact the training provider to register for a course. Learn all about the requirements to become a lead risk assessor in the state of maine. View detailed information on maine lead abatement. You must register before the (first) day of the course. Steps for becoming lead certified in maine. Learn all about the lead certification requirements for the state of. Lead Certification Maine.
From www.templateroller.com
Maine License Application Form Asbestos/Lead Business & Public Lead Certification Maine Each class complies with local, state and. Asbestos and lead training calendar. Steps for becoming lead certified in maine. Learn all about the requirements to become a lead risk assessor in the state of maine. View detailed information on maine lead risk assessor fees,. Contact the training provider to register for a course. Epa lead certification offers conveniently located lead. Lead Certification Maine.
From www.penbaypilot.com
Is your painter lead certified? Better make sure. PenBay Pilot Lead Certification Maine Epa lead certification offers conveniently located lead certification classes to meet your training needs. You must register before the (first) day of the course. View detailed information on maine lead abatement. Learn all about the lead certification requirements for the state of maine. View detailed information on maine fees, contact information, renewal. Asbestos and lead training calendar. Each class complies. Lead Certification Maine.
From www.templateroller.com
Maine License Application Form Asbestos/Lead Business & Public Lead Certification Maine Learn all about the lead certification requirements for the state of maine. Epa lead certification offers conveniently located lead certification classes to meet your training needs. Learn all about the requirements to become a lead abatement worker in the state of maine. You must register before the (first) day of the course. Contact the training provider to register for a. Lead Certification Maine.
From www.pinterest.com
Lead Safety is Important! Painting activities, Get rid of mold, Mold Lead Certification Maine Here is information on lead inspectors, lead risk assessors, lead design consultants and lead abatement contractors that do residential lead. Each class complies with local, state and. Learn all about the requirements to become a lead risk assessor in the state of maine. Learn all about the lead certification requirements for the state of maine. Asbestos and lead training calendar.. Lead Certification Maine.
From tutore.org
Lead Rrp Certification Master of Documents Lead Certification Maine Learn all about the requirements to become a lead risk assessor in the state of maine. Learn all about the lead certification requirements for the state of maine. Learn all about the requirements to become a lead abatement worker in the state of maine. You must register before the (first) day of the course. Contact the training provider to register. Lead Certification Maine.
From www.templateroller.com
Maine License Application Form Asbestos/Lead Business & Public Lead Certification Maine View detailed information on maine fees, contact information, renewal. View detailed information on maine lead risk assessor fees,. Here is information on lead inspectors, lead risk assessors, lead design consultants and lead abatement contractors that do residential lead. Learn all about the requirements to become a lead risk assessor in the state of maine. Each class complies with local, state. Lead Certification Maine.
From www.templateroller.com
Maine Asbestos or Lead Business License Application Packet Fill Out Lead Certification Maine Contact the training provider to register for a course. Learn all about the requirements to become a lead abatement worker in the state of maine. Learn all about the requirements to become a lead risk assessor in the state of maine. You must register before the (first) day of the course. Epa lead certification offers conveniently located lead certification classes. Lead Certification Maine.
From www.templateroller.com
Maine Asbestos Professional Certification / Lead Professional Lead Certification Maine Each class complies with local, state and. View detailed information on maine lead risk assessor fees,. Learn all about the lead certification requirements for the state of maine. Steps for becoming lead certified in maine. You must register before the (first) day of the course. Asbestos and lead training calendar. Contact the training provider to register for a course. Here. Lead Certification Maine.
From onekeyresources.milwaukeetool.com
What is LEED Certification? How to LEED Certified Lead Certification Maine Learn all about the lead certification requirements for the state of maine. Each class complies with local, state and. View detailed information on maine fees, contact information, renewal. Asbestos and lead training calendar. Here is information on lead inspectors, lead risk assessors, lead design consultants and lead abatement contractors that do residential lead. View detailed information on maine lead abatement.. Lead Certification Maine.
From certapro.com
EPA Lead Certificate CertaPro Painters of San Mateo Lead Certification Maine Epa lead certification offers conveniently located lead certification classes to meet your training needs. View detailed information on maine fees, contact information, renewal. You must register before the (first) day of the course. Here is information on lead inspectors, lead risk assessors, lead design consultants and lead abatement contractors that do residential lead. View detailed information on maine lead abatement.. Lead Certification Maine.
From www.templateroller.com
Maine Asbestos Professional Certification / Lead Professional Lead Certification Maine You must register before the (first) day of the course. Here is information on lead inspectors, lead risk assessors, lead design consultants and lead abatement contractors that do residential lead. Contact the training provider to register for a course. Learn all about the requirements to become a lead risk assessor in the state of maine. View detailed information on maine. Lead Certification Maine.
From tutore.org
Lead Rrp Certification Master of Documents Lead Certification Maine Asbestos and lead training calendar. View detailed information on maine fees, contact information, renewal. View detailed information on maine lead risk assessor fees,. Learn all about the requirements to become a lead abatement worker in the state of maine. Here is information on lead inspectors, lead risk assessors, lead design consultants and lead abatement contractors that do residential lead. Epa. Lead Certification Maine.
From bayhillenvironmental.com
LEAD SAFE CERT SAMPLE Bay Hill Environmental Lead Certification Maine Each class complies with local, state and. Learn all about the requirements to become a lead risk assessor in the state of maine. You must register before the (first) day of the course. Steps for becoming lead certified in maine. Asbestos and lead training calendar. View detailed information on maine lead risk assessor fees,. View detailed information on maine lead. Lead Certification Maine.
From tutore.org
Lead Rrp Certification Master of Documents Lead Certification Maine You must register before the (first) day of the course. View detailed information on maine fees, contact information, renewal. View detailed information on maine lead abatement. View detailed information on maine lead risk assessor fees,. Learn all about the requirements to become a lead risk assessor in the state of maine. Steps for becoming lead certified in maine. Each class. Lead Certification Maine.
From www.templateroller.com
Maine Asbestos Professional Certification / Lead Professional Lead Certification Maine View detailed information on maine lead risk assessor fees,. Asbestos and lead training calendar. Learn all about the lead certification requirements for the state of maine. Steps for becoming lead certified in maine. Epa lead certification offers conveniently located lead certification classes to meet your training needs. You must register before the (first) day of the course. Here is information. Lead Certification Maine.
From asoa.org
LEAD Certification Program Lead Certification Maine Asbestos and lead training calendar. Epa lead certification offers conveniently located lead certification classes to meet your training needs. View detailed information on maine lead abatement. Learn all about the requirements to become a lead risk assessor in the state of maine. You must register before the (first) day of the course. Each class complies with local, state and. Contact. Lead Certification Maine.
From www.templateroller.com
Maine Asbestos or Lead Business License Application Packet Fill Out Lead Certification Maine View detailed information on maine lead abatement. Epa lead certification offers conveniently located lead certification classes to meet your training needs. Asbestos and lead training calendar. You must register before the (first) day of the course. Here is information on lead inspectors, lead risk assessors, lead design consultants and lead abatement contractors that do residential lead. Each class complies with. Lead Certification Maine.
From thelead.io
How to Display My LEAD Certificates on LinkedIn LEAD Lead Certification Maine Asbestos and lead training calendar. Learn all about the requirements to become a lead abatement worker in the state of maine. You must register before the (first) day of the course. Steps for becoming lead certified in maine. Epa lead certification offers conveniently located lead certification classes to meet your training needs. View detailed information on maine lead abatement. Learn. Lead Certification Maine.
From www.cplusa.com
Project Spotlight Achieving LEED Silver… Colliers Project Leaders Lead Certification Maine Each class complies with local, state and. Contact the training provider to register for a course. Asbestos and lead training calendar. Epa lead certification offers conveniently located lead certification classes to meet your training needs. You must register before the (first) day of the course. View detailed information on maine lead abatement. Learn all about the lead certification requirements for. Lead Certification Maine.
From umaine.edu
LEED Certified Buildings Office of Sustainability University of Maine Lead Certification Maine Here is information on lead inspectors, lead risk assessors, lead design consultants and lead abatement contractors that do residential lead. View detailed information on maine fees, contact information, renewal. View detailed information on maine lead risk assessor fees,. You must register before the (first) day of the course. Learn all about the lead certification requirements for the state of maine.. Lead Certification Maine.
From www.urbansurfaces.com
A Simple Introduction to LEED Certification Urban Surfaces Lead Certification Maine You must register before the (first) day of the course. View detailed information on maine lead risk assessor fees,. Asbestos and lead training calendar. Learn all about the requirements to become a lead abatement worker in the state of maine. Here is information on lead inspectors, lead risk assessors, lead design consultants and lead abatement contractors that do residential lead.. Lead Certification Maine.
From www.slideshare.net
EPA Lead Safety Training Lead Certification Course Lead Certification Maine Here is information on lead inspectors, lead risk assessors, lead design consultants and lead abatement contractors that do residential lead. View detailed information on maine lead abatement. Learn all about the lead certification requirements for the state of maine. You must register before the (first) day of the course. Epa lead certification offers conveniently located lead certification classes to meet. Lead Certification Maine.
From umaine.edu
Offshore Wind Lab awarded LEED Gold UMaine News University of Maine Lead Certification Maine View detailed information on maine fees, contact information, renewal. You must register before the (first) day of the course. Learn all about the requirements to become a lead abatement worker in the state of maine. Each class complies with local, state and. View detailed information on maine lead abatement. Asbestos and lead training calendar. View detailed information on maine lead. Lead Certification Maine.
From www.templateroller.com
Maine Asbestos or Lead Business License Application Packet Fill Out Lead Certification Maine Learn all about the requirements to become a lead risk assessor in the state of maine. Asbestos and lead training calendar. Each class complies with local, state and. Learn all about the requirements to become a lead abatement worker in the state of maine. View detailed information on maine lead risk assessor fees,. Steps for becoming lead certified in maine.. Lead Certification Maine.
From www.karunya.edu
QS I GAUGE ELEAD CERTIFICATION Karunya Institute of Technology and Lead Certification Maine Learn all about the requirements to become a lead abatement worker in the state of maine. Steps for becoming lead certified in maine. Learn all about the lead certification requirements for the state of maine. Each class complies with local, state and. View detailed information on maine lead risk assessor fees,. Here is information on lead inspectors, lead risk assessors,. Lead Certification Maine.
From www.templateroller.com
Maine Asbestos Professional Certification / Lead Professional Lead Certification Maine View detailed information on maine fees, contact information, renewal. Learn all about the requirements to become a lead risk assessor in the state of maine. Epa lead certification offers conveniently located lead certification classes to meet your training needs. View detailed information on maine lead abatement. View detailed information on maine lead risk assessor fees,. Each class complies with local,. Lead Certification Maine.
From www.signnow.com
Lead Based Paint Disclosure for Rental Transaction Maine Form Fill Lead Certification Maine Asbestos and lead training calendar. View detailed information on maine lead abatement. Learn all about the requirements to become a lead risk assessor in the state of maine. Epa lead certification offers conveniently located lead certification classes to meet your training needs. Steps for becoming lead certified in maine. Each class complies with local, state and. View detailed information on. Lead Certification Maine.