Florida Fire Safety Inspector I Certification . to be certified as a firesafety inspector i in the state of florida, an individual must successful complete 200. the florida firesafety inspector i program is designed to provide students with the minimum education requirements to be. to be certified as a firesafety inspector i in the state of florida, an individual must successfully complete a. put your career on the path to success with nfpa certification. students can earn 40 hours (ceus) towards florida fire safety inspector i certification. pearson vue delivers certification exams for the florida bureau of fire standards & training. The course is designed to familiarize you with procedures for an. The fire safety inspector program is based on nfpa 1031 standard for professional qualification for.
from www.fireinspector.org
The course is designed to familiarize you with procedures for an. The fire safety inspector program is based on nfpa 1031 standard for professional qualification for. to be certified as a firesafety inspector i in the state of florida, an individual must successful complete 200. students can earn 40 hours (ceus) towards florida fire safety inspector i certification. the florida firesafety inspector i program is designed to provide students with the minimum education requirements to be. put your career on the path to success with nfpa certification. pearson vue delivers certification exams for the florida bureau of fire standards & training. to be certified as a firesafety inspector i in the state of florida, an individual must successfully complete a.
Lake Worth FL Fire Safety Credentials
Florida Fire Safety Inspector I Certification put your career on the path to success with nfpa certification. The course is designed to familiarize you with procedures for an. to be certified as a firesafety inspector i in the state of florida, an individual must successfully complete a. pearson vue delivers certification exams for the florida bureau of fire standards & training. to be certified as a firesafety inspector i in the state of florida, an individual must successful complete 200. put your career on the path to success with nfpa certification. students can earn 40 hours (ceus) towards florida fire safety inspector i certification. the florida firesafety inspector i program is designed to provide students with the minimum education requirements to be. The fire safety inspector program is based on nfpa 1031 standard for professional qualification for.
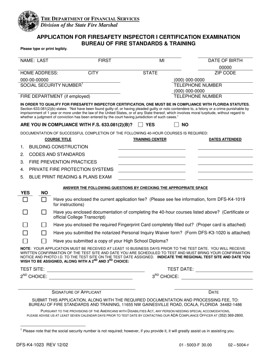
From www.templateroller.com
Form DFSK41023 Fill Out, Sign Online and Download Printable PDF Florida Fire Safety Inspector I Certification students can earn 40 hours (ceus) towards florida fire safety inspector i certification. to be certified as a firesafety inspector i in the state of florida, an individual must successful complete 200. put your career on the path to success with nfpa certification. the florida firesafety inspector i program is designed to provide students with the. Florida Fire Safety Inspector I Certification.
From www.fireinspector.org
Lake Worth FL Fire Safety Credentials Florida Fire Safety Inspector I Certification pearson vue delivers certification exams for the florida bureau of fire standards & training. to be certified as a firesafety inspector i in the state of florida, an individual must successful complete 200. put your career on the path to success with nfpa certification. students can earn 40 hours (ceus) towards florida fire safety inspector i. Florida Fire Safety Inspector I Certification.
From www.fireinspector.org
Lake Worth FL Fire Safety Credentials Florida Fire Safety Inspector I Certification to be certified as a firesafety inspector i in the state of florida, an individual must successful complete 200. to be certified as a firesafety inspector i in the state of florida, an individual must successfully complete a. students can earn 40 hours (ceus) towards florida fire safety inspector i certification. the florida firesafety inspector i. Florida Fire Safety Inspector I Certification.
From www.fireinspector.org
Lake Worth FL Fire Safety Credentials Florida Fire Safety Inspector I Certification the florida firesafety inspector i program is designed to provide students with the minimum education requirements to be. students can earn 40 hours (ceus) towards florida fire safety inspector i certification. pearson vue delivers certification exams for the florida bureau of fire standards & training. The fire safety inspector program is based on nfpa 1031 standard for. Florida Fire Safety Inspector I Certification.
From quizlet.com
Fire Inspector I Certification Diagram Quizlet Florida Fire Safety Inspector I Certification put your career on the path to success with nfpa certification. the florida firesafety inspector i program is designed to provide students with the minimum education requirements to be. students can earn 40 hours (ceus) towards florida fire safety inspector i certification. The course is designed to familiarize you with procedures for an. to be certified. Florida Fire Safety Inspector I Certification.
From www.fireetraining.com
Fire Inspector Officer 1 Online Course & Training in Florida Florida Fire Safety Inspector I Certification pearson vue delivers certification exams for the florida bureau of fire standards & training. the florida firesafety inspector i program is designed to provide students with the minimum education requirements to be. to be certified as a firesafety inspector i in the state of florida, an individual must successfully complete a. put your career on the. Florida Fire Safety Inspector I Certification.
From www.sigmapsi.com
About Florida Fire Safety Inspector I Certification to be certified as a firesafety inspector i in the state of florida, an individual must successfully complete a. pearson vue delivers certification exams for the florida bureau of fire standards & training. put your career on the path to success with nfpa certification. The fire safety inspector program is based on nfpa 1031 standard for professional. Florida Fire Safety Inspector I Certification.
From www.fireinspector.org
Lake Worth FL Fire Safety Credentials Florida Fire Safety Inspector I Certification the florida firesafety inspector i program is designed to provide students with the minimum education requirements to be. pearson vue delivers certification exams for the florida bureau of fire standards & training. The course is designed to familiarize you with procedures for an. to be certified as a firesafety inspector i in the state of florida, an. Florida Fire Safety Inspector I Certification.
From www.fireetraining.com
Fire Inspector Officer 1 Online Course & Training in Florida Florida Fire Safety Inspector I Certification students can earn 40 hours (ceus) towards florida fire safety inspector i certification. put your career on the path to success with nfpa certification. The fire safety inspector program is based on nfpa 1031 standard for professional qualification for. pearson vue delivers certification exams for the florida bureau of fire standards & training. The course is designed. Florida Fire Safety Inspector I Certification.
From www.thorospect.com
Certified Fireplace, Stove and Chimney Inspector In Florida Florida Fire Safety Inspector I Certification students can earn 40 hours (ceus) towards florida fire safety inspector i certification. to be certified as a firesafety inspector i in the state of florida, an individual must successfully complete a. The fire safety inspector program is based on nfpa 1031 standard for professional qualification for. pearson vue delivers certification exams for the florida bureau of. Florida Fire Safety Inspector I Certification.
From rickyrescue.com
Fire Inspector 1 Series Ricky Rescue Training Academy Florida Fire Safety Inspector I Certification to be certified as a firesafety inspector i in the state of florida, an individual must successfully complete a. The fire safety inspector program is based on nfpa 1031 standard for professional qualification for. The course is designed to familiarize you with procedures for an. pearson vue delivers certification exams for the florida bureau of fire standards &. Florida Fire Safety Inspector I Certification.
From www.fireinspector.org
Lake Worth FL Fire Safety Credentials Florida Fire Safety Inspector I Certification the florida firesafety inspector i program is designed to provide students with the minimum education requirements to be. to be certified as a firesafety inspector i in the state of florida, an individual must successful complete 200. pearson vue delivers certification exams for the florida bureau of fire standards & training. The fire safety inspector program is. Florida Fire Safety Inspector I Certification.
From www.fireinspector.org
Lake Worth FL Fire Safety Credentials Florida Fire Safety Inspector I Certification pearson vue delivers certification exams for the florida bureau of fire standards & training. The fire safety inspector program is based on nfpa 1031 standard for professional qualification for. put your career on the path to success with nfpa certification. the florida firesafety inspector i program is designed to provide students with the minimum education requirements to. Florida Fire Safety Inspector I Certification.
From www.fireinspector.org
Lake Worth FL Fire Safety Credentials Florida Fire Safety Inspector I Certification students can earn 40 hours (ceus) towards florida fire safety inspector i certification. the florida firesafety inspector i program is designed to provide students with the minimum education requirements to be. pearson vue delivers certification exams for the florida bureau of fire standards & training. put your career on the path to success with nfpa certification.. Florida Fire Safety Inspector I Certification.
From www.fireinspector.org
Lake Worth FL Fire Safety Credentials Florida Fire Safety Inspector I Certification to be certified as a firesafety inspector i in the state of florida, an individual must successfully complete a. to be certified as a firesafety inspector i in the state of florida, an individual must successful complete 200. students can earn 40 hours (ceus) towards florida fire safety inspector i certification. The course is designed to familiarize. Florida Fire Safety Inspector I Certification.
From www.fireinspector.org
Lake Worth FL Fire Safety Credentials Florida Fire Safety Inspector I Certification students can earn 40 hours (ceus) towards florida fire safety inspector i certification. The course is designed to familiarize you with procedures for an. pearson vue delivers certification exams for the florida bureau of fire standards & training. put your career on the path to success with nfpa certification. to be certified as a firesafety inspector. Florida Fire Safety Inspector I Certification.
From www.youtube.com
NFPA Certified Fire Inspector 1 Eligibility and Certification YouTube Florida Fire Safety Inspector I Certification The fire safety inspector program is based on nfpa 1031 standard for professional qualification for. the florida firesafety inspector i program is designed to provide students with the minimum education requirements to be. to be certified as a firesafety inspector i in the state of florida, an individual must successfully complete a. students can earn 40 hours. Florida Fire Safety Inspector I Certification.
From www.rickyrescue.com
Florida Fire Inspector 1 Series Florida Fire Safety Inspector I Certification put your career on the path to success with nfpa certification. The fire safety inspector program is based on nfpa 1031 standard for professional qualification for. the florida firesafety inspector i program is designed to provide students with the minimum education requirements to be. students can earn 40 hours (ceus) towards florida fire safety inspector i certification.. Florida Fire Safety Inspector I Certification.
From prntbl.concejomunicipaldechinu.gov.co
Florida Fire Safety Inspector 1 Certification prntbl Florida Fire Safety Inspector I Certification put your career on the path to success with nfpa certification. the florida firesafety inspector i program is designed to provide students with the minimum education requirements to be. students can earn 40 hours (ceus) towards florida fire safety inspector i certification. The fire safety inspector program is based on nfpa 1031 standard for professional qualification for.. Florida Fire Safety Inspector I Certification.
From www.fireinspector.org
Lake Worth FL Fire Safety Credentials Florida Fire Safety Inspector I Certification the florida firesafety inspector i program is designed to provide students with the minimum education requirements to be. put your career on the path to success with nfpa certification. The course is designed to familiarize you with procedures for an. to be certified as a firesafety inspector i in the state of florida, an individual must successfully. Florida Fire Safety Inspector I Certification.
From www.fireetraining.com
Fire Inspector Officer 1 Online Course & Training in Florida Florida Fire Safety Inspector I Certification The fire safety inspector program is based on nfpa 1031 standard for professional qualification for. the florida firesafety inspector i program is designed to provide students with the minimum education requirements to be. students can earn 40 hours (ceus) towards florida fire safety inspector i certification. to be certified as a firesafety inspector i in the state. Florida Fire Safety Inspector I Certification.
From fivebuglesinstitute.com
Fire safety Inspector Program Five Bugles Institute Florida Fire Safety Inspector I Certification The course is designed to familiarize you with procedures for an. students can earn 40 hours (ceus) towards florida fire safety inspector i certification. put your career on the path to success with nfpa certification. to be certified as a firesafety inspector i in the state of florida, an individual must successful complete 200. The fire safety. Florida Fire Safety Inspector I Certification.
From www.fireinspector.org
Lake Worth FL Fire Safety Credentials Florida Fire Safety Inspector I Certification students can earn 40 hours (ceus) towards florida fire safety inspector i certification. The fire safety inspector program is based on nfpa 1031 standard for professional qualification for. to be certified as a firesafety inspector i in the state of florida, an individual must successfully complete a. The course is designed to familiarize you with procedures for an.. Florida Fire Safety Inspector I Certification.
From www.fireinspector.org
Lake Worth FL Fire Safety Credentials Florida Fire Safety Inspector I Certification to be certified as a firesafety inspector i in the state of florida, an individual must successful complete 200. pearson vue delivers certification exams for the florida bureau of fire standards & training. put your career on the path to success with nfpa certification. the florida firesafety inspector i program is designed to provide students with. Florida Fire Safety Inspector I Certification.
From www.fireinspector.org
Lake Worth FL Fire Safety Credentials Florida Fire Safety Inspector I Certification the florida firesafety inspector i program is designed to provide students with the minimum education requirements to be. to be certified as a firesafety inspector i in the state of florida, an individual must successfully complete a. The fire safety inspector program is based on nfpa 1031 standard for professional qualification for. The course is designed to familiarize. Florida Fire Safety Inspector I Certification.
From www.fireinspector.org
Lake Worth FL Fire Safety Credentials Florida Fire Safety Inspector I Certification pearson vue delivers certification exams for the florida bureau of fire standards & training. to be certified as a firesafety inspector i in the state of florida, an individual must successfully complete a. to be certified as a firesafety inspector i in the state of florida, an individual must successful complete 200. the florida firesafety inspector. Florida Fire Safety Inspector I Certification.
From www.targetsolutions.com
NFPA 1 & NFPA 101 Training for Florida Fire Safety Inspectors Florida Fire Safety Inspector I Certification to be certified as a firesafety inspector i in the state of florida, an individual must successfully complete a. put your career on the path to success with nfpa certification. The course is designed to familiarize you with procedures for an. pearson vue delivers certification exams for the florida bureau of fire standards & training. to. Florida Fire Safety Inspector I Certification.
From www.stuvia.com
Florida State Fire Safety Inspector I exam questions 2023 with correct Florida Fire Safety Inspector I Certification to be certified as a firesafety inspector i in the state of florida, an individual must successful complete 200. students can earn 40 hours (ceus) towards florida fire safety inspector i certification. to be certified as a firesafety inspector i in the state of florida, an individual must successfully complete a. The fire safety inspector program is. Florida Fire Safety Inspector I Certification.
From www.fireinspector.org
Lake Worth FL Fire Safety Credentials Florida Fire Safety Inspector I Certification the florida firesafety inspector i program is designed to provide students with the minimum education requirements to be. pearson vue delivers certification exams for the florida bureau of fire standards & training. to be certified as a firesafety inspector i in the state of florida, an individual must successfully complete a. students can earn 40 hours. Florida Fire Safety Inspector I Certification.
From www.fireinspector.org
Lake Worth FL Fire Safety Credentials Florida Fire Safety Inspector I Certification to be certified as a firesafety inspector i in the state of florida, an individual must successfully complete a. put your career on the path to success with nfpa certification. The course is designed to familiarize you with procedures for an. The fire safety inspector program is based on nfpa 1031 standard for professional qualification for. to. Florida Fire Safety Inspector I Certification.
From buildingcodetrainer.com
Practice Exam ICC Fire Inspector I Exam Prep Florida Fire Safety Inspector I Certification students can earn 40 hours (ceus) towards florida fire safety inspector i certification. The fire safety inspector program is based on nfpa 1031 standard for professional qualification for. put your career on the path to success with nfpa certification. to be certified as a firesafety inspector i in the state of florida, an individual must successfully complete. Florida Fire Safety Inspector I Certification.
From docs.google.com
Fire Inspector I Florida Fire Safety Inspector I Certification The fire safety inspector program is based on nfpa 1031 standard for professional qualification for. The course is designed to familiarize you with procedures for an. to be certified as a firesafety inspector i in the state of florida, an individual must successful complete 200. to be certified as a firesafety inspector i in the state of florida,. Florida Fire Safety Inspector I Certification.
From csrips.org
Florida Fire Service Certifications Coral Springs Regional Institute Florida Fire Safety Inspector I Certification students can earn 40 hours (ceus) towards florida fire safety inspector i certification. pearson vue delivers certification exams for the florida bureau of fire standards & training. to be certified as a firesafety inspector i in the state of florida, an individual must successful complete 200. put your career on the path to success with nfpa. Florida Fire Safety Inspector I Certification.
From www.fireinspector.org
Lake Worth FL Fire Safety Credentials Florida Fire Safety Inspector I Certification pearson vue delivers certification exams for the florida bureau of fire standards & training. put your career on the path to success with nfpa certification. The course is designed to familiarize you with procedures for an. students can earn 40 hours (ceus) towards florida fire safety inspector i certification. to be certified as a firesafety inspector. Florida Fire Safety Inspector I Certification.
From www.stuvia.com
Florida State Fire Safety Inspector I (2024) Questions & Answers Solved Florida Fire Safety Inspector I Certification to be certified as a firesafety inspector i in the state of florida, an individual must successful complete 200. pearson vue delivers certification exams for the florida bureau of fire standards & training. The course is designed to familiarize you with procedures for an. The fire safety inspector program is based on nfpa 1031 standard for professional qualification. Florida Fire Safety Inspector I Certification.