Kennedy House Orpington . Ceiling height of 2.852m / width of entrance 1.740m;. 07976 928 789 joel.gray@greatplans.co.uk notes:. Murray road is located off of leesons hill close to the junction with sevenoaks way within an established. Kennedy house murray road orpington br5 3qy client: Kennedy house, murray road, orpington, kent, is a residential property located in st paul's cray ward of bromley district, england. Storage / workshop in orpington available to let. The property is situated within an established. The unit available is situated on the ground. Total floor area of 13.57m / 156sq ft.
from harstonandco.co.uk
Murray road is located off of leesons hill close to the junction with sevenoaks way within an established. Storage / workshop in orpington available to let. Total floor area of 13.57m / 156sq ft. Kennedy house, murray road, orpington, kent, is a residential property located in st paul's cray ward of bromley district, england. The unit available is situated on the ground. 07976 928 789 joel.gray@greatplans.co.uk notes:. The property is situated within an established. Kennedy house murray road orpington br5 3qy client: Ceiling height of 2.852m / width of entrance 1.740m;.
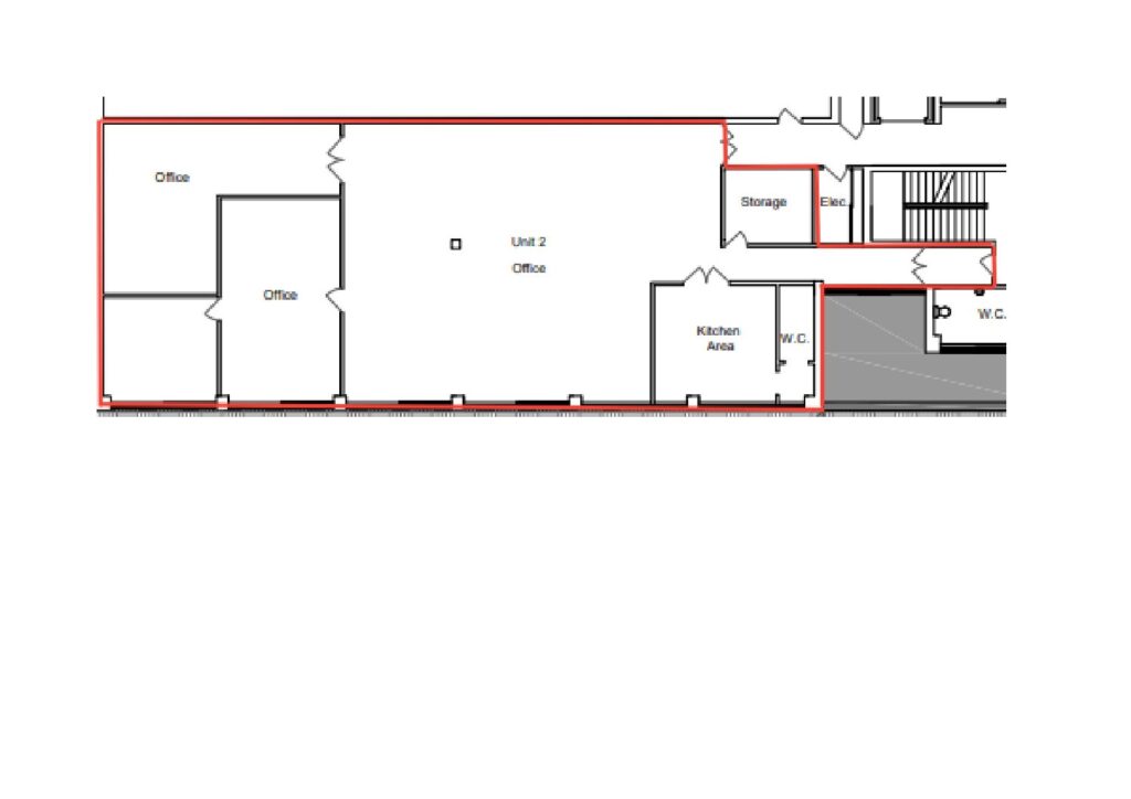
Unit 2, Kennedy House, Murray Road, Orpington Kent BR5 3QY Harstonandco
Kennedy House Orpington The unit available is situated on the ground. 07976 928 789 joel.gray@greatplans.co.uk notes:. Storage / workshop in orpington available to let. The property is situated within an established. Murray road is located off of leesons hill close to the junction with sevenoaks way within an established. Kennedy house, murray road, orpington, kent, is a residential property located in st paul's cray ward of bromley district, england. The unit available is situated on the ground. Total floor area of 13.57m / 156sq ft. Kennedy house murray road orpington br5 3qy client: Ceiling height of 2.852m / width of entrance 1.740m;.
From stclaircemetery.com
The Kennedy Family St. Clair Cemetery Kennedy House Orpington Murray road is located off of leesons hill close to the junction with sevenoaks way within an established. Kennedy house murray road orpington br5 3qy client: The property is situated within an established. Ceiling height of 2.852m / width of entrance 1.740m;. 07976 928 789 joel.gray@greatplans.co.uk notes:. Storage / workshop in orpington available to let. Total floor area of 13.57m. Kennedy House Orpington.
From observer.com
John F. Kennedy’s Former Washington D.C. Home for Sale Kennedy House Orpington Kennedy house, murray road, orpington, kent, is a residential property located in st paul's cray ward of bromley district, england. Murray road is located off of leesons hill close to the junction with sevenoaks way within an established. The unit available is situated on the ground. Ceiling height of 2.852m / width of entrance 1.740m;. 07976 928 789 joel.gray@greatplans.co.uk notes:.. Kennedy House Orpington.
From www.wbur.org
From The Kennedy Compound To The National Seashore, JFK's Legacy On The Kennedy House Orpington Kennedy house, murray road, orpington, kent, is a residential property located in st paul's cray ward of bromley district, england. Ceiling height of 2.852m / width of entrance 1.740m;. Total floor area of 13.57m / 156sq ft. Murray road is located off of leesons hill close to the junction with sevenoaks way within an established. The unit available is situated. Kennedy House Orpington.
From www.architecturaldigest.com
Tour the Kennedy Family’s Houses in Virginia and Hyannis Port Kennedy House Orpington Kennedy house, murray road, orpington, kent, is a residential property located in st paul's cray ward of bromley district, england. The property is situated within an established. Kennedy house murray road orpington br5 3qy client: Storage / workshop in orpington available to let. Murray road is located off of leesons hill close to the junction with sevenoaks way within an. Kennedy House Orpington.
From harstonandco.co.uk
Unit 2, Kennedy House, Murray Road, Orpington Kent BR5 3QY Harstonandco Kennedy House Orpington The property is situated within an established. 07976 928 789 joel.gray@greatplans.co.uk notes:. Total floor area of 13.57m / 156sq ft. Ceiling height of 2.852m / width of entrance 1.740m;. The unit available is situated on the ground. Storage / workshop in orpington available to let. Kennedy house murray road orpington br5 3qy client: Kennedy house, murray road, orpington, kent, is. Kennedy House Orpington.
From www.mansionglobal.com
The Kennedys’ Virginia Retreat is For Sale Again (At a Major Discount Kennedy House Orpington Kennedy house murray road orpington br5 3qy client: 07976 928 789 joel.gray@greatplans.co.uk notes:. Kennedy house, murray road, orpington, kent, is a residential property located in st paul's cray ward of bromley district, england. The property is situated within an established. Murray road is located off of leesons hill close to the junction with sevenoaks way within an established. The unit. Kennedy House Orpington.
From wtop.com
PHOTOS Jacqueline Kennedy’s former mansion on sale for 26 Kennedy House Orpington The unit available is situated on the ground. Kennedy house, murray road, orpington, kent, is a residential property located in st paul's cray ward of bromley district, england. Kennedy house murray road orpington br5 3qy client: Murray road is located off of leesons hill close to the junction with sevenoaks way within an established. Storage / workshop in orpington available. Kennedy House Orpington.
From harstonandco.co.uk
Unit 2, Kennedy House, Murray Road, Orpington Kent BR5 3QY Harstonandco Kennedy House Orpington Kennedy house murray road orpington br5 3qy client: Storage / workshop in orpington available to let. Total floor area of 13.57m / 156sq ft. The unit available is situated on the ground. Kennedy house, murray road, orpington, kent, is a residential property located in st paul's cray ward of bromley district, england. The property is situated within an established. Ceiling. Kennedy House Orpington.
From harstonandco.co.uk
Unit 2, Kennedy House, Murray Road, Orpington Kent BR5 3QY Harstonandco Kennedy House Orpington Kennedy house murray road orpington br5 3qy client: Total floor area of 13.57m / 156sq ft. The property is situated within an established. Kennedy house, murray road, orpington, kent, is a residential property located in st paul's cray ward of bromley district, england. Storage / workshop in orpington available to let. The unit available is situated on the ground. Ceiling. Kennedy House Orpington.
From www.pinterest.ca
Kennedy Home, John Fitzgerald Kennedy National Historic Site, Brookline Kennedy House Orpington 07976 928 789 joel.gray@greatplans.co.uk notes:. Storage / workshop in orpington available to let. Kennedy house, murray road, orpington, kent, is a residential property located in st paul's cray ward of bromley district, england. Kennedy house murray road orpington br5 3qy client: The property is situated within an established. Ceiling height of 2.852m / width of entrance 1.740m;. Murray road is. Kennedy House Orpington.
From newengland.com
Visiting the JFK Birthplace A National Historic Site New England Today Kennedy House Orpington Total floor area of 13.57m / 156sq ft. Murray road is located off of leesons hill close to the junction with sevenoaks way within an established. Ceiling height of 2.852m / width of entrance 1.740m;. The unit available is situated on the ground. 07976 928 789 joel.gray@greatplans.co.uk notes:. Kennedy house, murray road, orpington, kent, is a residential property located in. Kennedy House Orpington.
From www.batimag.ch
La demeure de Jackie Kennedy à vendue pour une fortune Batimag Kennedy House Orpington Ceiling height of 2.852m / width of entrance 1.740m;. The property is situated within an established. Storage / workshop in orpington available to let. Total floor area of 13.57m / 156sq ft. 07976 928 789 joel.gray@greatplans.co.uk notes:. Murray road is located off of leesons hill close to the junction with sevenoaks way within an established. The unit available is situated. Kennedy House Orpington.
From www.huffingtonpost.com
The Kennedys' New York Residence Completes An EcoFriendly Remodel Kennedy House Orpington Kennedy house murray road orpington br5 3qy client: Ceiling height of 2.852m / width of entrance 1.740m;. Storage / workshop in orpington available to let. The property is situated within an established. Murray road is located off of leesons hill close to the junction with sevenoaks way within an established. The unit available is situated on the ground. Total floor. Kennedy House Orpington.
From www.youtube.com
The Kennedy Family Home Went For 31 Million And Photos Of The Kennedy House Orpington Ceiling height of 2.852m / width of entrance 1.740m;. Total floor area of 13.57m / 156sq ft. The property is situated within an established. Murray road is located off of leesons hill close to the junction with sevenoaks way within an established. Kennedy house, murray road, orpington, kent, is a residential property located in st paul's cray ward of bromley. Kennedy House Orpington.
From domustoria.com
John F. Kennedy's Birthplace, Brookline, Massachusetts Homes, History Kennedy House Orpington The unit available is situated on the ground. 07976 928 789 joel.gray@greatplans.co.uk notes:. Ceiling height of 2.852m / width of entrance 1.740m;. Storage / workshop in orpington available to let. Murray road is located off of leesons hill close to the junction with sevenoaks way within an established. The property is situated within an established. Kennedy house murray road orpington. Kennedy House Orpington.
From www.alamy.com
Charles Kennedy visits Orpington Police Station Kent Great Britain 20 Kennedy House Orpington The unit available is situated on the ground. Murray road is located off of leesons hill close to the junction with sevenoaks way within an established. Kennedy house murray road orpington br5 3qy client: Storage / workshop in orpington available to let. The property is situated within an established. Kennedy house, murray road, orpington, kent, is a residential property located. Kennedy House Orpington.
From harstonandco.co.uk
Unit 2, Kennedy House, Murray Road, Orpington Kent BR5 3QY Harstonandco Kennedy House Orpington Ceiling height of 2.852m / width of entrance 1.740m;. The unit available is situated on the ground. Murray road is located off of leesons hill close to the junction with sevenoaks way within an established. 07976 928 789 joel.gray@greatplans.co.uk notes:. Kennedy house murray road orpington br5 3qy client: Storage / workshop in orpington available to let. Kennedy house, murray road,. Kennedy House Orpington.
From www.architecturaldigest.com
Inside Senator Edward M. Kennedy's House in Washington, D.C Kennedy House Orpington Ceiling height of 2.852m / width of entrance 1.740m;. The property is situated within an established. Storage / workshop in orpington available to let. Kennedy house, murray road, orpington, kent, is a residential property located in st paul's cray ward of bromley district, england. Kennedy house murray road orpington br5 3qy client: Murray road is located off of leesons hill. Kennedy House Orpington.
From harstonandco.co.uk
Unit 2, Kennedy House, Murray Road, Orpington Kent BR5 3QY Harstonandco Kennedy House Orpington 07976 928 789 joel.gray@greatplans.co.uk notes:. Total floor area of 13.57m / 156sq ft. The property is situated within an established. Murray road is located off of leesons hill close to the junction with sevenoaks way within an established. Kennedy house murray road orpington br5 3qy client: Ceiling height of 2.852m / width of entrance 1.740m;. Kennedy house, murray road, orpington,. Kennedy House Orpington.
From www.nps.gov
Birthplace of John F. Kennedy Home of the Boy Who Would Be President Kennedy House Orpington The unit available is situated on the ground. The property is situated within an established. Ceiling height of 2.852m / width of entrance 1.740m;. Murray road is located off of leesons hill close to the junction with sevenoaks way within an established. Storage / workshop in orpington available to let. Kennedy house, murray road, orpington, kent, is a residential property. Kennedy House Orpington.
From www.architecturaldigest.com
The Kennedy Family Homes Here’s Your Guide Architectural Digest Kennedy House Orpington Total floor area of 13.57m / 156sq ft. Storage / workshop in orpington available to let. The unit available is situated on the ground. Kennedy house, murray road, orpington, kent, is a residential property located in st paul's cray ward of bromley district, england. 07976 928 789 joel.gray@greatplans.co.uk notes:. Kennedy house murray road orpington br5 3qy client: Murray road is. Kennedy House Orpington.
From www.kennedy-house.ca
Gallery Maison KENNEDY House Kennedy House Orpington The unit available is situated on the ground. Kennedy house murray road orpington br5 3qy client: Total floor area of 13.57m / 156sq ft. Storage / workshop in orpington available to let. Murray road is located off of leesons hill close to the junction with sevenoaks way within an established. The property is situated within an established. Kennedy house, murray. Kennedy House Orpington.
From www.kennedy-house.ca
Gallery Maison KENNEDY House Kennedy House Orpington 07976 928 789 joel.gray@greatplans.co.uk notes:. The property is situated within an established. Ceiling height of 2.852m / width of entrance 1.740m;. The unit available is situated on the ground. Kennedy house murray road orpington br5 3qy client: Total floor area of 13.57m / 156sq ft. Kennedy house, murray road, orpington, kent, is a residential property located in st paul's cray. Kennedy House Orpington.
From www.nbcwashington.com
Watch a Tour of Jackie Kennedy’s Former Mansion, Now Listed Kennedy House Orpington Ceiling height of 2.852m / width of entrance 1.740m;. Kennedy house, murray road, orpington, kent, is a residential property located in st paul's cray ward of bromley district, england. Storage / workshop in orpington available to let. Total floor area of 13.57m / 156sq ft. Murray road is located off of leesons hill close to the junction with sevenoaks way. Kennedy House Orpington.
From harstonandco.co.uk
Unit 2, Kennedy House, Murray Road, Orpington Kent BR5 3QY Harstonandco Kennedy House Orpington Ceiling height of 2.852m / width of entrance 1.740m;. Total floor area of 13.57m / 156sq ft. Storage / workshop in orpington available to let. 07976 928 789 joel.gray@greatplans.co.uk notes:. Murray road is located off of leesons hill close to the junction with sevenoaks way within an established. Kennedy house, murray road, orpington, kent, is a residential property located in. Kennedy House Orpington.
From www.primelocation.com
Kennedy Close, Petts Wood, Orpington, Kent BR5, 5 bedroom end terrace Kennedy House Orpington Ceiling height of 2.852m / width of entrance 1.740m;. 07976 928 789 joel.gray@greatplans.co.uk notes:. The property is situated within an established. Kennedy house, murray road, orpington, kent, is a residential property located in st paul's cray ward of bromley district, england. Storage / workshop in orpington available to let. Kennedy house murray road orpington br5 3qy client: The unit available. Kennedy House Orpington.
From www.homestratosphere.com
Jackie Kennedy's Home After JFK's Death (Listed for 26.5 Kennedy House Orpington Kennedy house murray road orpington br5 3qy client: 07976 928 789 joel.gray@greatplans.co.uk notes:. The unit available is situated on the ground. The property is situated within an established. Total floor area of 13.57m / 156sq ft. Murray road is located off of leesons hill close to the junction with sevenoaks way within an established. Storage / workshop in orpington available. Kennedy House Orpington.
From www.rightmove.co.uk
6 bedroom detached house for sale in Kennedy Close, Petts Wood Kennedy House Orpington Storage / workshop in orpington available to let. Ceiling height of 2.852m / width of entrance 1.740m;. The property is situated within an established. Kennedy house murray road orpington br5 3qy client: Kennedy house, murray road, orpington, kent, is a residential property located in st paul's cray ward of bromley district, england. 07976 928 789 joel.gray@greatplans.co.uk notes:. Murray road is. Kennedy House Orpington.
From www.alamy.com
The crowd at the Orpington Armistice memorial service at the War Kennedy House Orpington The unit available is situated on the ground. 07976 928 789 joel.gray@greatplans.co.uk notes:. Kennedy house, murray road, orpington, kent, is a residential property located in st paul's cray ward of bromley district, england. The property is situated within an established. Kennedy house murray road orpington br5 3qy client: Ceiling height of 2.852m / width of entrance 1.740m;. Total floor area. Kennedy House Orpington.
From www.primelocation.com
Unit 2, Kennedy House, Murray Road, Orpington Kent BR5, retail premises Kennedy House Orpington Total floor area of 13.57m / 156sq ft. The property is situated within an established. Kennedy house, murray road, orpington, kent, is a residential property located in st paul's cray ward of bromley district, england. Murray road is located off of leesons hill close to the junction with sevenoaks way within an established. Ceiling height of 2.852m / width of. Kennedy House Orpington.
From www.kennedy-house.ca
Gallery Maison KENNEDY House Kennedy House Orpington 07976 928 789 joel.gray@greatplans.co.uk notes:. Storage / workshop in orpington available to let. Total floor area of 13.57m / 156sq ft. Ceiling height of 2.852m / width of entrance 1.740m;. Kennedy house, murray road, orpington, kent, is a residential property located in st paul's cray ward of bromley district, england. The unit available is situated on the ground. Murray road. Kennedy House Orpington.
From www.wbur.org
At His Birthplace In Brookline, Historians Preserve Stories Of JFK's Kennedy House Orpington The unit available is situated on the ground. 07976 928 789 joel.gray@greatplans.co.uk notes:. Kennedy house, murray road, orpington, kent, is a residential property located in st paul's cray ward of bromley district, england. Ceiling height of 2.852m / width of entrance 1.740m;. Murray road is located off of leesons hill close to the junction with sevenoaks way within an established.. Kennedy House Orpington.
From harstonandco.co.uk
Unit 2, Kennedy House, Murray Road, Orpington Kent BR5 3QY Harstonandco Kennedy House Orpington Kennedy house murray road orpington br5 3qy client: Storage / workshop in orpington available to let. 07976 928 789 joel.gray@greatplans.co.uk notes:. Ceiling height of 2.852m / width of entrance 1.740m;. The unit available is situated on the ground. Murray road is located off of leesons hill close to the junction with sevenoaks way within an established. Kennedy house, murray road,. Kennedy House Orpington.
From people.com
Kennedy Family Homes Throughout the Years Photos Kennedy House Orpington Murray road is located off of leesons hill close to the junction with sevenoaks way within an established. Ceiling height of 2.852m / width of entrance 1.740m;. The property is situated within an established. 07976 928 789 joel.gray@greatplans.co.uk notes:. The unit available is situated on the ground. Total floor area of 13.57m / 156sq ft. Kennedy house murray road orpington. Kennedy House Orpington.
From harstonandco.co.uk
Unit 2, Kennedy House, Murray Road, Orpington Kent BR5 3QY Harstonandco Kennedy House Orpington The unit available is situated on the ground. The property is situated within an established. Kennedy house, murray road, orpington, kent, is a residential property located in st paul's cray ward of bromley district, england. Ceiling height of 2.852m / width of entrance 1.740m;. 07976 928 789 joel.gray@greatplans.co.uk notes:. Murray road is located off of leesons hill close to the. Kennedy House Orpington.