Cornerstone Bank In Spencer Ma . Our spencer branch is getting a makeover. Cornerstone bank has 2 offices in spencer, massachusetts. Get addresses, maps, routing numbers, phone numbers and business hours for. Find opening & closing hours for cornerstone bank. Is there a cornerstone bank near me? Cornerstone bank spencer branch is located at 176 main street, spencer, ma 01562 and has been serving worcester county,. Find cornerstone bank spencer branch locations, hours of operation, phone. Find routing number, map location, swift codes, contact numbers. Our corporate offices are located at our spencer, southbridge, and worcester (park avenue) branches. Serving worcester county, massachusetts, cornerstone bank’s local presence and community based banking model enables a unique ability to. Fair plaza branch of cornerstone bank in spencer, ma. Cornerstone bank operates with 10 branches located in massachusetts.
from www.fwmadigan.com
Cornerstone bank has 2 offices in spencer, massachusetts. Fair plaza branch of cornerstone bank in spencer, ma. Is there a cornerstone bank near me? Cornerstone bank operates with 10 branches located in massachusetts. Find cornerstone bank spencer branch locations, hours of operation, phone. Find routing number, map location, swift codes, contact numbers. Our corporate offices are located at our spencer, southbridge, and worcester (park avenue) branches. Serving worcester county, massachusetts, cornerstone bank’s local presence and community based banking model enables a unique ability to. Get addresses, maps, routing numbers, phone numbers and business hours for. Find opening & closing hours for cornerstone bank.
Cornerstone Bank F.W. Madigan Company, Inc.
Cornerstone Bank In Spencer Ma Fair plaza branch of cornerstone bank in spencer, ma. Our spencer branch is getting a makeover. Cornerstone bank spencer branch is located at 176 main street, spencer, ma 01562 and has been serving worcester county,. Get addresses, maps, routing numbers, phone numbers and business hours for. Cornerstone bank has 2 offices in spencer, massachusetts. Find routing number, map location, swift codes, contact numbers. Cornerstone bank operates with 10 branches located in massachusetts. Is there a cornerstone bank near me? Serving worcester county, massachusetts, cornerstone bank’s local presence and community based banking model enables a unique ability to. Find opening & closing hours for cornerstone bank. Our corporate offices are located at our spencer, southbridge, and worcester (park avenue) branches. Fair plaza branch of cornerstone bank in spencer, ma. Find cornerstone bank spencer branch locations, hours of operation, phone.
From cornerstonebank.com
Home Cornerstone Bank Mass. Cornerstone Bank In Spencer Ma Cornerstone bank spencer branch is located at 176 main street, spencer, ma 01562 and has been serving worcester county,. Our corporate offices are located at our spencer, southbridge, and worcester (park avenue) branches. Cornerstone bank operates with 10 branches located in massachusetts. Get addresses, maps, routing numbers, phone numbers and business hours for. Our spencer branch is getting a makeover.. Cornerstone Bank In Spencer Ma.
From www.fwmadigan.com
Cornerstone Bank F.W. Madigan Company, Inc. Cornerstone Bank In Spencer Ma Our spencer branch is getting a makeover. Cornerstone bank operates with 10 branches located in massachusetts. Is there a cornerstone bank near me? Cornerstone bank spencer branch is located at 176 main street, spencer, ma 01562 and has been serving worcester county,. Find routing number, map location, swift codes, contact numbers. Serving worcester county, massachusetts, cornerstone bank’s local presence and. Cornerstone Bank In Spencer Ma.
From cornerstonebank.com
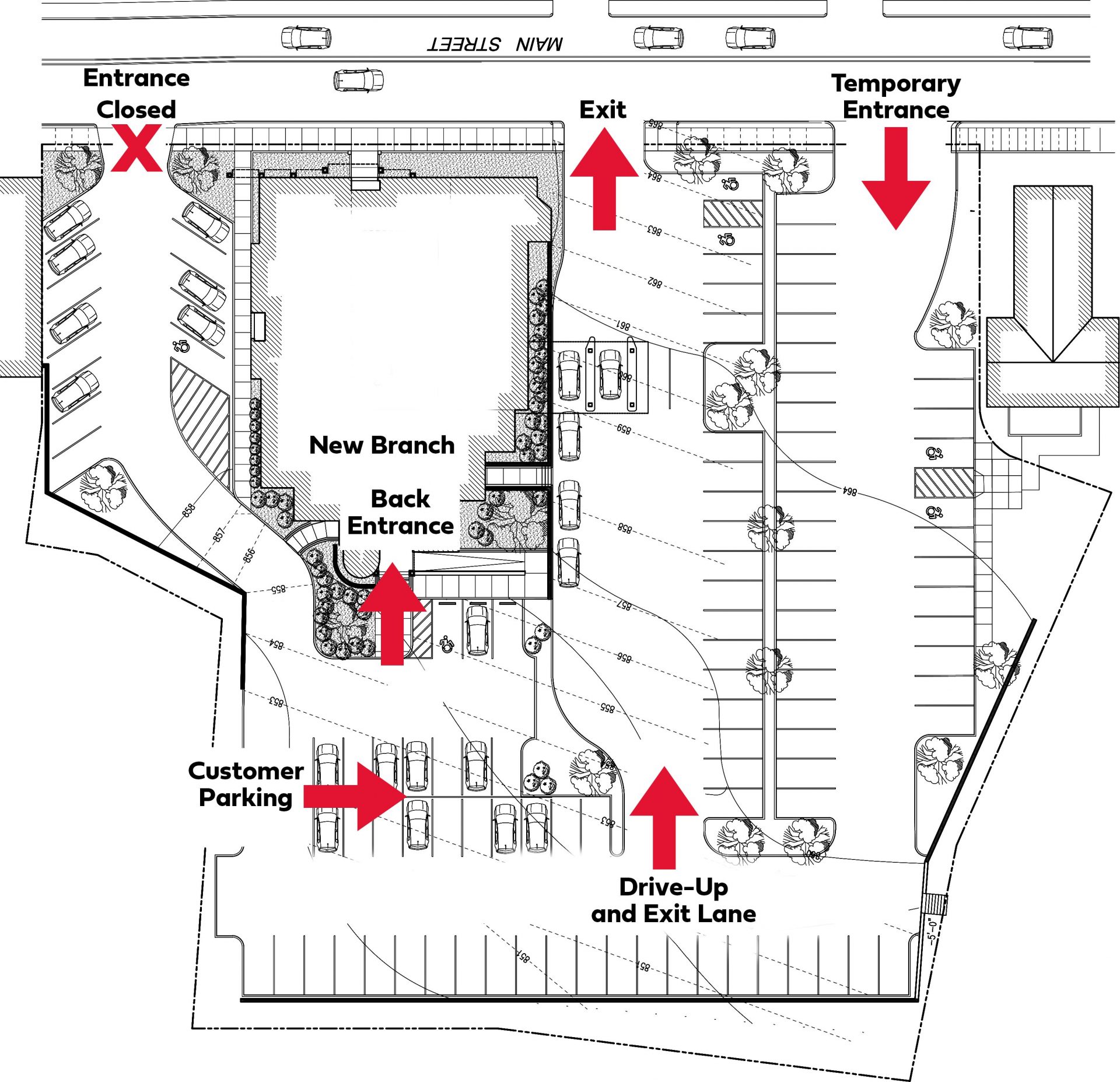
Spencer Branch Renovations Cornerstone Bank Cornerstone Bank In Spencer Ma Find opening & closing hours for cornerstone bank. Is there a cornerstone bank near me? Get addresses, maps, routing numbers, phone numbers and business hours for. Find routing number, map location, swift codes, contact numbers. Fair plaza branch of cornerstone bank in spencer, ma. Cornerstone bank spencer branch is located at 176 main street, spencer, ma 01562 and has been. Cornerstone Bank In Spencer Ma.
From cornerstonebank.com
Commercial Property Loans Cornerstone Bank Massachusetts Cornerstone Bank In Spencer Ma Our spencer branch is getting a makeover. Fair plaza branch of cornerstone bank in spencer, ma. Find cornerstone bank spencer branch locations, hours of operation, phone. Find opening & closing hours for cornerstone bank. Our corporate offices are located at our spencer, southbridge, and worcester (park avenue) branches. Serving worcester county, massachusetts, cornerstone bank’s local presence and community based banking. Cornerstone Bank In Spencer Ma.
From modernglazing.com
Cornerstone Bank Modern Architectural Glazing Cornerstone Bank In Spencer Ma Our spencer branch is getting a makeover. Is there a cornerstone bank near me? Cornerstone bank has 2 offices in spencer, massachusetts. Find opening & closing hours for cornerstone bank. Serving worcester county, massachusetts, cornerstone bank’s local presence and community based banking model enables a unique ability to. Cornerstone bank spencer branch is located at 176 main street, spencer, ma. Cornerstone Bank In Spencer Ma.
From www.fwmadigan.com
Cornerstone Bank and Community Room F.W. Madigan Company, Inc. Cornerstone Bank In Spencer Ma Cornerstone bank has 2 offices in spencer, massachusetts. Find cornerstone bank spencer branch locations, hours of operation, phone. Serving worcester county, massachusetts, cornerstone bank’s local presence and community based banking model enables a unique ability to. Our corporate offices are located at our spencer, southbridge, and worcester (park avenue) branches. Find routing number, map location, swift codes, contact numbers. Cornerstone. Cornerstone Bank In Spencer Ma.
From www.fwmadigan.com
Cornerstone Bank F.W. Madigan Company, Inc. Cornerstone Bank In Spencer Ma Find opening & closing hours for cornerstone bank. Get addresses, maps, routing numbers, phone numbers and business hours for. Fair plaza branch of cornerstone bank in spencer, ma. Find cornerstone bank spencer branch locations, hours of operation, phone. Is there a cornerstone bank near me? Our spencer branch is getting a makeover. Cornerstone bank spencer branch is located at 176. Cornerstone Bank In Spencer Ma.
From cornerstonebank.com
Cornerstone Bank donates 15,000 to the Exchange Club of Spencer Cornerstone Bank In Spencer Ma Find opening & closing hours for cornerstone bank. Cornerstone bank spencer branch is located at 176 main street, spencer, ma 01562 and has been serving worcester county,. Our corporate offices are located at our spencer, southbridge, and worcester (park avenue) branches. Get addresses, maps, routing numbers, phone numbers and business hours for. Cornerstone bank operates with 10 branches located in. Cornerstone Bank In Spencer Ma.
From www.facebook.com
Winter Blues Week fun at our Spencer... Cornerstone Bank Cornerstone Bank In Spencer Ma Find opening & closing hours for cornerstone bank. Find cornerstone bank spencer branch locations, hours of operation, phone. Get addresses, maps, routing numbers, phone numbers and business hours for. Serving worcester county, massachusetts, cornerstone bank’s local presence and community based banking model enables a unique ability to. Fair plaza branch of cornerstone bank in spencer, ma. Cornerstone bank spencer branch. Cornerstone Bank In Spencer Ma.
From www.cornerstonebank.com
Cornerstone Bank Supports Spencer Exchange Club Cornerstone Bank Cornerstone Bank In Spencer Ma Cornerstone bank has 2 offices in spencer, massachusetts. Is there a cornerstone bank near me? Fair plaza branch of cornerstone bank in spencer, ma. Cornerstone bank spencer branch is located at 176 main street, spencer, ma 01562 and has been serving worcester county,. Find opening & closing hours for cornerstone bank. Find cornerstone bank spencer branch locations, hours of operation,. Cornerstone Bank In Spencer Ma.
From www.gosolidus.com
Custom Lighting, Fresh Color Palette Create New Look for Cornerstone Cornerstone Bank In Spencer Ma Fair plaza branch of cornerstone bank in spencer, ma. Is there a cornerstone bank near me? Cornerstone bank has 2 offices in spencer, massachusetts. Our corporate offices are located at our spencer, southbridge, and worcester (park avenue) branches. Find cornerstone bank spencer branch locations, hours of operation, phone. Find opening & closing hours for cornerstone bank. Our spencer branch is. Cornerstone Bank In Spencer Ma.
From cornerstonebank.com
Spencer Branch Renovations Cornerstone Bank Cornerstone Bank In Spencer Ma Cornerstone bank spencer branch is located at 176 main street, spencer, ma 01562 and has been serving worcester county,. Find routing number, map location, swift codes, contact numbers. Cornerstone bank operates with 10 branches located in massachusetts. Serving worcester county, massachusetts, cornerstone bank’s local presence and community based banking model enables a unique ability to. Find opening & closing hours. Cornerstone Bank In Spencer Ma.
From cornerstonebank.com
Banking Services Cornerstone Bank Massachusetts Cornerstone Bank In Spencer Ma Fair plaza branch of cornerstone bank in spencer, ma. Cornerstone bank has 2 offices in spencer, massachusetts. Our corporate offices are located at our spencer, southbridge, and worcester (park avenue) branches. Find cornerstone bank spencer branch locations, hours of operation, phone. Get addresses, maps, routing numbers, phone numbers and business hours for. Serving worcester county, massachusetts, cornerstone bank’s local presence. Cornerstone Bank In Spencer Ma.
From cornerstonebank.com
Contact Cornerstone Bank Cornerstone Bank Massachusetts Cornerstone Bank In Spencer Ma Cornerstone bank has 2 offices in spencer, massachusetts. Our spencer branch is getting a makeover. Serving worcester county, massachusetts, cornerstone bank’s local presence and community based banking model enables a unique ability to. Find cornerstone bank spencer branch locations, hours of operation, phone. Our corporate offices are located at our spencer, southbridge, and worcester (park avenue) branches. Cornerstone bank spencer. Cornerstone Bank In Spencer Ma.
From www.cornerstonebankia.com
About Us Cornerstone Bank Cornerstone Bank In Spencer Ma Fair plaza branch of cornerstone bank in spencer, ma. Our corporate offices are located at our spencer, southbridge, and worcester (park avenue) branches. Get addresses, maps, routing numbers, phone numbers and business hours for. Find opening & closing hours for cornerstone bank. Our spencer branch is getting a makeover. Cornerstone bank operates with 10 branches located in massachusetts. Is there. Cornerstone Bank In Spencer Ma.
From cornerstonebank.com
Home Cornerstone Bank Mass. Cornerstone Bank In Spencer Ma Cornerstone bank operates with 10 branches located in massachusetts. Cornerstone bank has 2 offices in spencer, massachusetts. Our spencer branch is getting a makeover. Serving worcester county, massachusetts, cornerstone bank’s local presence and community based banking model enables a unique ability to. Is there a cornerstone bank near me? Get addresses, maps, routing numbers, phone numbers and business hours for.. Cornerstone Bank In Spencer Ma.
From www.fwmadigan.com
Cornerstone Bank F.W. Madigan Company, Inc. Cornerstone Bank In Spencer Ma Find cornerstone bank spencer branch locations, hours of operation, phone. Serving worcester county, massachusetts, cornerstone bank’s local presence and community based banking model enables a unique ability to. Our corporate offices are located at our spencer, southbridge, and worcester (park avenue) branches. Cornerstone bank spencer branch is located at 176 main street, spencer, ma 01562 and has been serving worcester. Cornerstone Bank In Spencer Ma.
From cornerstonebank.com
Banking Services Cornerstone Bank Massachusetts Cornerstone Bank In Spencer Ma Is there a cornerstone bank near me? Find opening & closing hours for cornerstone bank. Get addresses, maps, routing numbers, phone numbers and business hours for. Serving worcester county, massachusetts, cornerstone bank’s local presence and community based banking model enables a unique ability to. Cornerstone bank spencer branch is located at 176 main street, spencer, ma 01562 and has been. Cornerstone Bank In Spencer Ma.
From www.gosolidus.com
Custom Lighting, Fresh Color Palette Create New Look for Cornerstone Cornerstone Bank In Spencer Ma Cornerstone bank spencer branch is located at 176 main street, spencer, ma 01562 and has been serving worcester county,. Cornerstone bank operates with 10 branches located in massachusetts. Find opening & closing hours for cornerstone bank. Our spencer branch is getting a makeover. Fair plaza branch of cornerstone bank in spencer, ma. Our corporate offices are located at our spencer,. Cornerstone Bank In Spencer Ma.
From cornerstonebank.com
Spencer Branch Renovations Cornerstone Bank Cornerstone Bank In Spencer Ma Cornerstone bank spencer branch is located at 176 main street, spencer, ma 01562 and has been serving worcester county,. Is there a cornerstone bank near me? Cornerstone bank has 2 offices in spencer, massachusetts. Serving worcester county, massachusetts, cornerstone bank’s local presence and community based banking model enables a unique ability to. Cornerstone bank operates with 10 branches located in. Cornerstone Bank In Spencer Ma.
From cornerstonebank.com
Spencer Branch Renovations Cornerstone Bank Cornerstone Bank In Spencer Ma Serving worcester county, massachusetts, cornerstone bank’s local presence and community based banking model enables a unique ability to. Cornerstone bank has 2 offices in spencer, massachusetts. Get addresses, maps, routing numbers, phone numbers and business hours for. Find opening & closing hours for cornerstone bank. Cornerstone bank spencer branch is located at 176 main street, spencer, ma 01562 and has. Cornerstone Bank In Spencer Ma.
From cornerstonebank.com
Spencer Branch Renovations Cornerstone Bank Cornerstone Bank In Spencer Ma Find opening & closing hours for cornerstone bank. Our corporate offices are located at our spencer, southbridge, and worcester (park avenue) branches. Our spencer branch is getting a makeover. Find cornerstone bank spencer branch locations, hours of operation, phone. Get addresses, maps, routing numbers, phone numbers and business hours for. Cornerstone bank operates with 10 branches located in massachusetts. Cornerstone. Cornerstone Bank In Spencer Ma.
From patch.com
Cornerstone Bank Opens New Shrewsbury Branch Shrewsbury, MA Patch Cornerstone Bank In Spencer Ma Our corporate offices are located at our spencer, southbridge, and worcester (park avenue) branches. Find cornerstone bank spencer branch locations, hours of operation, phone. Our spencer branch is getting a makeover. Serving worcester county, massachusetts, cornerstone bank’s local presence and community based banking model enables a unique ability to. Cornerstone bank has 2 offices in spencer, massachusetts. Fair plaza branch. Cornerstone Bank In Spencer Ma.
From www.fwmadigan.com
Cornerstone Bank and Community Room F.W. Madigan Company, Inc. Cornerstone Bank In Spencer Ma Find cornerstone bank spencer branch locations, hours of operation, phone. Serving worcester county, massachusetts, cornerstone bank’s local presence and community based banking model enables a unique ability to. Cornerstone bank operates with 10 branches located in massachusetts. Find opening & closing hours for cornerstone bank. Find routing number, map location, swift codes, contact numbers. Get addresses, maps, routing numbers, phone. Cornerstone Bank In Spencer Ma.
From www.communityadvocate.com
Cornerstone Bank receives first place for overall quality in banking awards Cornerstone Bank In Spencer Ma Find opening & closing hours for cornerstone bank. Is there a cornerstone bank near me? Cornerstone bank has 2 offices in spencer, massachusetts. Our spencer branch is getting a makeover. Get addresses, maps, routing numbers, phone numbers and business hours for. Our corporate offices are located at our spencer, southbridge, and worcester (park avenue) branches. Serving worcester county, massachusetts, cornerstone. Cornerstone Bank In Spencer Ma.
From app.convertkit.com
ConvertKit Cornerstone Bank In Spencer Ma Find routing number, map location, swift codes, contact numbers. Fair plaza branch of cornerstone bank in spencer, ma. Cornerstone bank operates with 10 branches located in massachusetts. Find cornerstone bank spencer branch locations, hours of operation, phone. Find opening & closing hours for cornerstone bank. Cornerstone bank has 2 offices in spencer, massachusetts. Our spencer branch is getting a makeover.. Cornerstone Bank In Spencer Ma.
From financialit.net
Jack Henry Supports Cornerstone Bank in Strong Loan Growth Financial IT Cornerstone Bank In Spencer Ma Serving worcester county, massachusetts, cornerstone bank’s local presence and community based banking model enables a unique ability to. Our corporate offices are located at our spencer, southbridge, and worcester (park avenue) branches. Fair plaza branch of cornerstone bank in spencer, ma. Find opening & closing hours for cornerstone bank. Get addresses, maps, routing numbers, phone numbers and business hours for.. Cornerstone Bank In Spencer Ma.
From www.fwmadigan.com
Cornerstone Bank F.W. Madigan Company, Inc. Cornerstone Bank In Spencer Ma Our corporate offices are located at our spencer, southbridge, and worcester (park avenue) branches. Serving worcester county, massachusetts, cornerstone bank’s local presence and community based banking model enables a unique ability to. Cornerstone bank operates with 10 branches located in massachusetts. Get addresses, maps, routing numbers, phone numbers and business hours for. Find routing number, map location, swift codes, contact. Cornerstone Bank In Spencer Ma.
From www.facebook.com
Our Spencer Main Office is collecting... Cornerstone Bank Cornerstone Bank In Spencer Ma Is there a cornerstone bank near me? Our corporate offices are located at our spencer, southbridge, and worcester (park avenue) branches. Fair plaza branch of cornerstone bank in spencer, ma. Cornerstone bank spencer branch is located at 176 main street, spencer, ma 01562 and has been serving worcester county,. Find routing number, map location, swift codes, contact numbers. Find opening. Cornerstone Bank In Spencer Ma.
From www.fwmadigan.com
Cornerstone Bank F.W. Madigan Company, Inc. Cornerstone Bank In Spencer Ma Find cornerstone bank spencer branch locations, hours of operation, phone. Find opening & closing hours for cornerstone bank. Serving worcester county, massachusetts, cornerstone bank’s local presence and community based banking model enables a unique ability to. Cornerstone bank has 2 offices in spencer, massachusetts. Our corporate offices are located at our spencer, southbridge, and worcester (park avenue) branches. Fair plaza. Cornerstone Bank In Spencer Ma.
From cornerstonebank.com
Cornerstone Bank promotes Christopher Mallon to senior vice president Cornerstone Bank In Spencer Ma Get addresses, maps, routing numbers, phone numbers and business hours for. Find opening & closing hours for cornerstone bank. Our spencer branch is getting a makeover. Cornerstone bank has 2 offices in spencer, massachusetts. Is there a cornerstone bank near me? Our corporate offices are located at our spencer, southbridge, and worcester (park avenue) branches. Serving worcester county, massachusetts, cornerstone. Cornerstone Bank In Spencer Ma.
From cornerstonebank.com
Customer Service Cornerstone Bank Massachusetts Cornerstone Bank In Spencer Ma Is there a cornerstone bank near me? Fair plaza branch of cornerstone bank in spencer, ma. Serving worcester county, massachusetts, cornerstone bank’s local presence and community based banking model enables a unique ability to. Cornerstone bank operates with 10 branches located in massachusetts. Get addresses, maps, routing numbers, phone numbers and business hours for. Find opening & closing hours for. Cornerstone Bank In Spencer Ma.
From www.yorkdevco.com
Cornerstone Bank Cornerstone Bank In Spencer Ma Fair plaza branch of cornerstone bank in spencer, ma. Cornerstone bank operates with 10 branches located in massachusetts. Cornerstone bank has 2 offices in spencer, massachusetts. Find cornerstone bank spencer branch locations, hours of operation, phone. Cornerstone bank spencer branch is located at 176 main street, spencer, ma 01562 and has been serving worcester county,. Find routing number, map location,. Cornerstone Bank In Spencer Ma.
From www.fwmadigan.com
Cornerstone Bank F.W. Madigan Company, Inc. Cornerstone Bank In Spencer Ma Get addresses, maps, routing numbers, phone numbers and business hours for. Find cornerstone bank spencer branch locations, hours of operation, phone. Find routing number, map location, swift codes, contact numbers. Fair plaza branch of cornerstone bank in spencer, ma. Serving worcester county, massachusetts, cornerstone bank’s local presence and community based banking model enables a unique ability to. Is there a. Cornerstone Bank In Spencer Ma.
From cornerstonebank.com
Commercial Banking Services Cornerstone Bank Mass. Cornerstone Bank In Spencer Ma Cornerstone bank has 2 offices in spencer, massachusetts. Find opening & closing hours for cornerstone bank. Cornerstone bank operates with 10 branches located in massachusetts. Our corporate offices are located at our spencer, southbridge, and worcester (park avenue) branches. Find cornerstone bank spencer branch locations, hours of operation, phone. Serving worcester county, massachusetts, cornerstone bank’s local presence and community based. Cornerstone Bank In Spencer Ma.