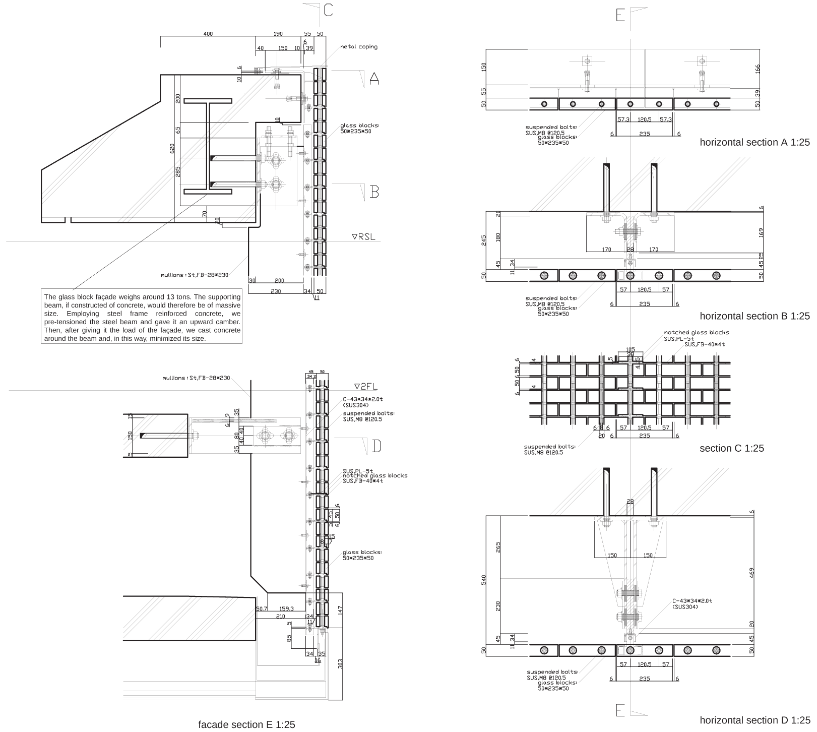
Optical Glass House Plan . — a unique glass masonry wall blocks out the external noise of traffic while protecting a tranquil garden oasis on the. This document appears to be a floor plan for an. a downtown hiroshima house with a garden and a glass façade that admits city scenery and light patterns. this house is sited among tall buildings in downtown hiroshima, overlooking a street with many passing cars and trams. — to obtain privacy and tranquility in these surroundings, we placed a garden and optical glass façade on the street side of the house. To obtain privacy and tranquility in.
from inhabitat.com
To obtain privacy and tranquility in. — to obtain privacy and tranquility in these surroundings, we placed a garden and optical glass façade on the street side of the house. this house is sited among tall buildings in downtown hiroshima, overlooking a street with many passing cars and trams. a downtown hiroshima house with a garden and a glass façade that admits city scenery and light patterns. This document appears to be a floor plan for an. — a unique glass masonry wall blocks out the external noise of traffic while protecting a tranquil garden oasis on the.
Optical Glass House in Hirochima Is Made From 6000 Glass
Optical Glass House Plan — a unique glass masonry wall blocks out the external noise of traffic while protecting a tranquil garden oasis on the. This document appears to be a floor plan for an. — a unique glass masonry wall blocks out the external noise of traffic while protecting a tranquil garden oasis on the. a downtown hiroshima house with a garden and a glass façade that admits city scenery and light patterns. — to obtain privacy and tranquility in these surroundings, we placed a garden and optical glass façade on the street side of the house. To obtain privacy and tranquility in. this house is sited among tall buildings in downtown hiroshima, overlooking a street with many passing cars and trams.
From divisare.com
1 Optical Glass House Plan — a unique glass masonry wall blocks out the external noise of traffic while protecting a tranquil garden oasis on the. this house is sited among tall buildings in downtown hiroshima, overlooking a street with many passing cars and trams. a downtown hiroshima house with a garden and a glass façade that admits city scenery and light. Optical Glass House Plan.
From www.metalocus.es
[II] Optical Glass House by Hiroshi Nakamura & NAP METALOCUS Optical Glass House Plan a downtown hiroshima house with a garden and a glass façade that admits city scenery and light patterns. — to obtain privacy and tranquility in these surroundings, we placed a garden and optical glass façade on the street side of the house. — a unique glass masonry wall blocks out the external noise of traffic while protecting. Optical Glass House Plan.
From mavink.com
Simple Glass House Plans Optical Glass House Plan This document appears to be a floor plan for an. To obtain privacy and tranquility in. a downtown hiroshima house with a garden and a glass façade that admits city scenery and light patterns. — a unique glass masonry wall blocks out the external noise of traffic while protecting a tranquil garden oasis on the. — to. Optical Glass House Plan.
From www.archdaily.com
Gallery of Optical Glass House / Hiroshi Nakamura & NAP 18 Optical Glass House Plan this house is sited among tall buildings in downtown hiroshima, overlooking a street with many passing cars and trams. — a unique glass masonry wall blocks out the external noise of traffic while protecting a tranquil garden oasis on the. This document appears to be a floor plan for an. a downtown hiroshima house with a garden. Optical Glass House Plan.
From za.pinterest.com
Modern Glass House Plan 1670 sq.ft (35'8'' x 47'6'') 155 sq.mt (10m x Optical Glass House Plan — to obtain privacy and tranquility in these surroundings, we placed a garden and optical glass façade on the street side of the house. To obtain privacy and tranquility in. this house is sited among tall buildings in downtown hiroshima, overlooking a street with many passing cars and trams. This document appears to be a floor plan for. Optical Glass House Plan.
From www.pinterest.com
hiroshi nakamura & NAP optical glass house. Optical Glass House Plan this house is sited among tall buildings in downtown hiroshima, overlooking a street with many passing cars and trams. This document appears to be a floor plan for an. — to obtain privacy and tranquility in these surroundings, we placed a garden and optical glass façade on the street side of the house. — a unique glass. Optical Glass House Plan.
From in.pinterest.com
tv new designs ideas colorful plans en 2024 Diseño de sala comedor Optical Glass House Plan a downtown hiroshima house with a garden and a glass façade that admits city scenery and light patterns. — to obtain privacy and tranquility in these surroundings, we placed a garden and optical glass façade on the street side of the house. To obtain privacy and tranquility in. — a unique glass masonry wall blocks out the. Optical Glass House Plan.
From www.arch2o.com
Optical Glass House Hiroshi Nakamura & NAP Optical Glass House Plan this house is sited among tall buildings in downtown hiroshima, overlooking a street with many passing cars and trams. — to obtain privacy and tranquility in these surroundings, we placed a garden and optical glass façade on the street side of the house. This document appears to be a floor plan for an. a downtown hiroshima house. Optical Glass House Plan.
From in.pinterest.com
Glass and Hammer ⚒️ Glass art techniques, Fused glass, Manual hammers Optical Glass House Plan To obtain privacy and tranquility in. — a unique glass masonry wall blocks out the external noise of traffic while protecting a tranquil garden oasis on the. a downtown hiroshima house with a garden and a glass façade that admits city scenery and light patterns. This document appears to be a floor plan for an. this house. Optical Glass House Plan.
From www.archdaily.com
Optical Glass House / Hiroshi Nakamura & NAP ArchDaily Optical Glass House Plan — a unique glass masonry wall blocks out the external noise of traffic while protecting a tranquil garden oasis on the. — to obtain privacy and tranquility in these surroundings, we placed a garden and optical glass façade on the street side of the house. a downtown hiroshima house with a garden and a glass façade that. Optical Glass House Plan.
From aasarchitecture.com
OPTICAL GLASS HOUSE BY HIROSHI NAKAMURA & NAP ARCHITECTS aasarchitecture Optical Glass House Plan This document appears to be a floor plan for an. a downtown hiroshima house with a garden and a glass façade that admits city scenery and light patterns. — to obtain privacy and tranquility in these surroundings, we placed a garden and optical glass façade on the street side of the house. — a unique glass masonry. Optical Glass House Plan.
From monroe.com.au
Carl Zeiss Jena Lens Rehousing Whitepoint Optics Optical Glass House Plan a downtown hiroshima house with a garden and a glass façade that admits city scenery and light patterns. — a unique glass masonry wall blocks out the external noise of traffic while protecting a tranquil garden oasis on the. — to obtain privacy and tranquility in these surroundings, we placed a garden and optical glass façade on. Optical Glass House Plan.
From www.metalocus.es
[II] Optical Glass House by Hiroshi Nakamura & NAP The Strength of Optical Glass House Plan — a unique glass masonry wall blocks out the external noise of traffic while protecting a tranquil garden oasis on the. a downtown hiroshima house with a garden and a glass façade that admits city scenery and light patterns. — to obtain privacy and tranquility in these surroundings, we placed a garden and optical glass façade on. Optical Glass House Plan.
From uk.pinterest.com
Pin by Aleisha WetereHepi on house inspo Diy crafts for home decor Optical Glass House Plan To obtain privacy and tranquility in. — to obtain privacy and tranquility in these surroundings, we placed a garden and optical glass façade on the street side of the house. — a unique glass masonry wall blocks out the external noise of traffic while protecting a tranquil garden oasis on the. This document appears to be a floor. Optical Glass House Plan.
From www.facebook.com
I Love Lucy Season 3 Episode 20 Home Movies video recording, film Optical Glass House Plan this house is sited among tall buildings in downtown hiroshima, overlooking a street with many passing cars and trams. a downtown hiroshima house with a garden and a glass façade that admits city scenery and light patterns. To obtain privacy and tranquility in. — a unique glass masonry wall blocks out the external noise of traffic while. Optical Glass House Plan.
From www.archdaily.com
Gallery of Optical Glass House / Hiroshi Nakamura & NAP 19 Optical Glass House Plan This document appears to be a floor plan for an. a downtown hiroshima house with a garden and a glass façade that admits city scenery and light patterns. — a unique glass masonry wall blocks out the external noise of traffic while protecting a tranquil garden oasis on the. this house is sited among tall buildings in. Optical Glass House Plan.
From www.designboom.com
hiroshi nakamura & NAP optical glass house Optical Glass House Plan this house is sited among tall buildings in downtown hiroshima, overlooking a street with many passing cars and trams. — a unique glass masonry wall blocks out the external noise of traffic while protecting a tranquil garden oasis on the. This document appears to be a floor plan for an. To obtain privacy and tranquility in. —. Optical Glass House Plan.
From www.nait.ca
LO Optical Alumni Optical Glass House Plan To obtain privacy and tranquility in. a downtown hiroshima house with a garden and a glass façade that admits city scenery and light patterns. — a unique glass masonry wall blocks out the external noise of traffic while protecting a tranquil garden oasis on the. This document appears to be a floor plan for an. this house. Optical Glass House Plan.
From www.dwglab.com
Glass House DWG CAD Project Free Download Optical Glass House Plan — to obtain privacy and tranquility in these surroundings, we placed a garden and optical glass façade on the street side of the house. This document appears to be a floor plan for an. this house is sited among tall buildings in downtown hiroshima, overlooking a street with many passing cars and trams. To obtain privacy and tranquility. Optical Glass House Plan.
From dresden.vision
VOLUME 29 How Do You Use Insurance To Buy Prescription Glasses Online Optical Glass House Plan — to obtain privacy and tranquility in these surroundings, we placed a garden and optical glass façade on the street side of the house. To obtain privacy and tranquility in. — a unique glass masonry wall blocks out the external noise of traffic while protecting a tranquil garden oasis on the. a downtown hiroshima house with a. Optical Glass House Plan.
From www.milimet.com
Optical Glass House design by Hiroshi Nakamura & NAP Optical Glass House Plan a downtown hiroshima house with a garden and a glass façade that admits city scenery and light patterns. — to obtain privacy and tranquility in these surroundings, we placed a garden and optical glass façade on the street side of the house. this house is sited among tall buildings in downtown hiroshima, overlooking a street with many. Optical Glass House Plan.
From viewfloor.co
Glass Wall Floor Plan Viewfloor.co Optical Glass House Plan a downtown hiroshima house with a garden and a glass façade that admits city scenery and light patterns. this house is sited among tall buildings in downtown hiroshima, overlooking a street with many passing cars and trams. — a unique glass masonry wall blocks out the external noise of traffic while protecting a tranquil garden oasis on. Optical Glass House Plan.
From www.archdaily.com
Optical Glass House / Hiroshi Nakamura & NAP ArchDaily Optical Glass House Plan To obtain privacy and tranquility in. a downtown hiroshima house with a garden and a glass façade that admits city scenery and light patterns. — a unique glass masonry wall blocks out the external noise of traffic while protecting a tranquil garden oasis on the. this house is sited among tall buildings in downtown hiroshima, overlooking a. Optical Glass House Plan.
From www.home-designing.com
An Incredible Interior Courtyard Shielded By Optical Glass Bricks Optical Glass House Plan To obtain privacy and tranquility in. this house is sited among tall buildings in downtown hiroshima, overlooking a street with many passing cars and trams. This document appears to be a floor plan for an. — to obtain privacy and tranquility in these surroundings, we placed a garden and optical glass façade on the street side of the. Optical Glass House Plan.
From www.nakam.info
Optical Glass House Hiroshi Nakamura & NAP|中村拓志&NAP建築設計事務所 Optical Glass House Plan a downtown hiroshima house with a garden and a glass façade that admits city scenery and light patterns. This document appears to be a floor plan for an. this house is sited among tall buildings in downtown hiroshima, overlooking a street with many passing cars and trams. To obtain privacy and tranquility in. — a unique glass. Optical Glass House Plan.
From se.pinterest.com
white new caledoniagraygranitecountertop glass backsplash Optical Glass House Plan This document appears to be a floor plan for an. To obtain privacy and tranquility in. — a unique glass masonry wall blocks out the external noise of traffic while protecting a tranquil garden oasis on the. a downtown hiroshima house with a garden and a glass façade that admits city scenery and light patterns. — to. Optical Glass House Plan.
From dreamhomehouseplans.blogspot.com
Glass House Plan Optical Glass House Plan — to obtain privacy and tranquility in these surroundings, we placed a garden and optical glass façade on the street side of the house. — a unique glass masonry wall blocks out the external noise of traffic while protecting a tranquil garden oasis on the. This document appears to be a floor plan for an. this house. Optical Glass House Plan.
From www.pinterest.com.mx
DOMESTIC CURRENT Pam Jinapa 's case study Optical glass house Optical Glass House Plan — a unique glass masonry wall blocks out the external noise of traffic while protecting a tranquil garden oasis on the. — to obtain privacy and tranquility in these surroundings, we placed a garden and optical glass façade on the street side of the house. This document appears to be a floor plan for an. this house. Optical Glass House Plan.
From inhabitat.com
Optical Glass House in Hirochima Is Made From 6000 Glass Optical Glass House Plan a downtown hiroshima house with a garden and a glass façade that admits city scenery and light patterns. this house is sited among tall buildings in downtown hiroshima, overlooking a street with many passing cars and trams. This document appears to be a floor plan for an. — to obtain privacy and tranquility in these surroundings, we. Optical Glass House Plan.
From www.pinterest.es
Optical Glass House Architect Nap Architects + Hiroshi Nakamura Optical Glass House Plan a downtown hiroshima house with a garden and a glass façade that admits city scenery and light patterns. — to obtain privacy and tranquility in these surroundings, we placed a garden and optical glass façade on the street side of the house. — a unique glass masonry wall blocks out the external noise of traffic while protecting. Optical Glass House Plan.
From mavink.com
Glass House Floor Plan Optical Glass House Plan — to obtain privacy and tranquility in these surroundings, we placed a garden and optical glass façade on the street side of the house. To obtain privacy and tranquility in. a downtown hiroshima house with a garden and a glass façade that admits city scenery and light patterns. this house is sited among tall buildings in downtown. Optical Glass House Plan.
From www.pinterest.com
Optical Shop Board Design Wholesale Sunglasses Displays, Retail Optical Glass House Plan this house is sited among tall buildings in downtown hiroshima, overlooking a street with many passing cars and trams. To obtain privacy and tranquility in. — a unique glass masonry wall blocks out the external noise of traffic while protecting a tranquil garden oasis on the. This document appears to be a floor plan for an. a. Optical Glass House Plan.
From www.pinterest.jp
Optical Glass House Hiroshi Nakamura & NAP Glass house, Glass Optical Glass House Plan this house is sited among tall buildings in downtown hiroshima, overlooking a street with many passing cars and trams. To obtain privacy and tranquility in. This document appears to be a floor plan for an. — a unique glass masonry wall blocks out the external noise of traffic while protecting a tranquil garden oasis on the. —. Optical Glass House Plan.
From repairfixweisz77.z1.web.core.windows.net
Fiber Optic Connection To The House Optical Glass House Plan This document appears to be a floor plan for an. — to obtain privacy and tranquility in these surroundings, we placed a garden and optical glass façade on the street side of the house. a downtown hiroshima house with a garden and a glass façade that admits city scenery and light patterns. this house is sited among. Optical Glass House Plan.
From www.arkitektuel.com
Optical Glass House Arkitektuel Optical Glass House Plan — a unique glass masonry wall blocks out the external noise of traffic while protecting a tranquil garden oasis on the. To obtain privacy and tranquility in. a downtown hiroshima house with a garden and a glass façade that admits city scenery and light patterns. This document appears to be a floor plan for an. this house. Optical Glass House Plan.