Mobile Crane Checklist . crane inspection checklist to mitigate crane accidents and fatalities. Conduct seamless checks and monthly crane inspections with iauditor for free. mobile crane inspection checklist. mobile crane daily/monthly inspection checklist. This checklist is provided as a reference tool for employers. The template covers seven sections of vital components and systems. For the purpose of this procedure, all of the following are considered “mobile cranes” and require the use of this. This sample checklist, from the north carolina. learn everything you need to know about mobile crane inspections, such as when and how to inspect your mobile cranes. download a free pdf template for daily mobile crane inspections. Trust total equipment training as your comprehensive resource for comprehensive mobile crane inspection guidance. It is used primarily by prevention officers to inspect mobile.
from www.nationwidecranetraining.com
Trust total equipment training as your comprehensive resource for comprehensive mobile crane inspection guidance. This checklist is provided as a reference tool for employers. crane inspection checklist to mitigate crane accidents and fatalities. learn everything you need to know about mobile crane inspections, such as when and how to inspect your mobile cranes. Conduct seamless checks and monthly crane inspections with iauditor for free. download a free pdf template for daily mobile crane inspections. This sample checklist, from the north carolina. It is used primarily by prevention officers to inspect mobile. mobile crane inspection checklist. mobile crane daily/monthly inspection checklist.
Free Downloadable Daily and Monthly Mobile Crane Inspection Checklists
Mobile Crane Checklist This checklist is provided as a reference tool for employers. The template covers seven sections of vital components and systems. This sample checklist, from the north carolina. mobile crane inspection checklist. Trust total equipment training as your comprehensive resource for comprehensive mobile crane inspection guidance. crane inspection checklist to mitigate crane accidents and fatalities. download a free pdf template for daily mobile crane inspections. learn everything you need to know about mobile crane inspections, such as when and how to inspect your mobile cranes. mobile crane daily/monthly inspection checklist. It is used primarily by prevention officers to inspect mobile. For the purpose of this procedure, all of the following are considered “mobile cranes” and require the use of this. This checklist is provided as a reference tool for employers. Conduct seamless checks and monthly crane inspections with iauditor for free.
From www.pdffiller.com
Crane Inspection Checklist Fill Online, Printable, Fillable, Blank pdfFiller Mobile Crane Checklist This sample checklist, from the north carolina. For the purpose of this procedure, all of the following are considered “mobile cranes” and require the use of this. learn everything you need to know about mobile crane inspections, such as when and how to inspect your mobile cranes. Conduct seamless checks and monthly crane inspections with iauditor for free. This. Mobile Crane Checklist.
From www.amazon.com
Mobile Crane Daily Inspection Checklist Log Book Mobile Crane Checklist Record Book, Crane Mobile Crane Checklist For the purpose of this procedure, all of the following are considered “mobile cranes” and require the use of this. This sample checklist, from the north carolina. It is used primarily by prevention officers to inspect mobile. mobile crane inspection checklist. The template covers seven sections of vital components and systems. learn everything you need to know about. Mobile Crane Checklist.
From 1streporting.com
A Mobile Crane Inspection Checklist (For Fast & Easy Daily Inspections) 1st Reporting Mobile Crane Checklist The template covers seven sections of vital components and systems. Conduct seamless checks and monthly crane inspections with iauditor for free. learn everything you need to know about mobile crane inspections, such as when and how to inspect your mobile cranes. This checklist is provided as a reference tool for employers. For the purpose of this procedure, all of. Mobile Crane Checklist.
From www.slideshare.net
Daily mobile crane inspection checklist Mobile Crane Checklist For the purpose of this procedure, all of the following are considered “mobile cranes” and require the use of this. This checklist is provided as a reference tool for employers. The template covers seven sections of vital components and systems. It is used primarily by prevention officers to inspect mobile. mobile crane daily/monthly inspection checklist. mobile crane inspection. Mobile Crane Checklist.
From www.scribd.com
3 Mobile Crane Checklist PDF Crane (Machine) Equipment Mobile Crane Checklist It is used primarily by prevention officers to inspect mobile. mobile crane inspection checklist. For the purpose of this procedure, all of the following are considered “mobile cranes” and require the use of this. This checklist is provided as a reference tool for employers. Conduct seamless checks and monthly crane inspections with iauditor for free. This sample checklist, from. Mobile Crane Checklist.
From www.scribd.com
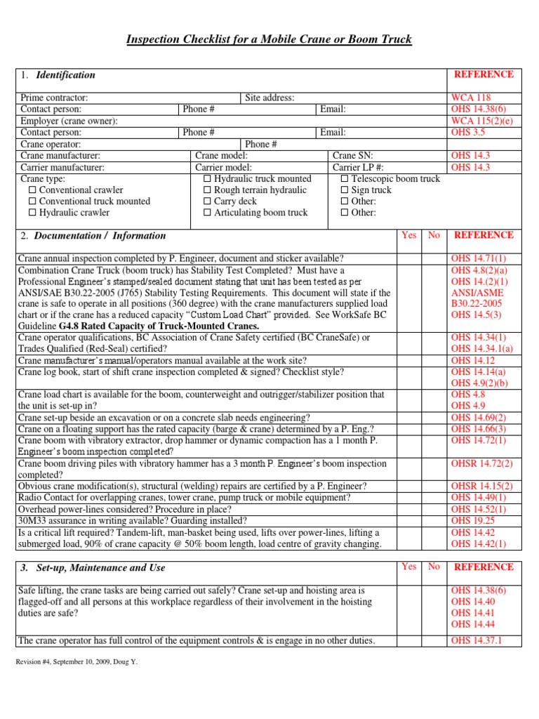
Mobile Crane or Boom Truck Checklist Rev4 Crane (Machine) Industries Mobile Crane Checklist This checklist is provided as a reference tool for employers. Trust total equipment training as your comprehensive resource for comprehensive mobile crane inspection guidance. For the purpose of this procedure, all of the following are considered “mobile cranes” and require the use of this. mobile crane inspection checklist. Conduct seamless checks and monthly crane inspections with iauditor for free.. Mobile Crane Checklist.
From sitemate.com
Free Crane Inspection Checklist template (Better than PDF and word doc) Mobile Crane Checklist Trust total equipment training as your comprehensive resource for comprehensive mobile crane inspection guidance. The template covers seven sections of vital components and systems. This checklist is provided as a reference tool for employers. Conduct seamless checks and monthly crane inspections with iauditor for free. mobile crane inspection checklist. This sample checklist, from the north carolina. crane inspection. Mobile Crane Checklist.
From www.easyguides.com.au
Daily Inspection Checklist for Mobile and Vehicle Loading Cranes Mobile Crane Checklist For the purpose of this procedure, all of the following are considered “mobile cranes” and require the use of this. mobile crane daily/monthly inspection checklist. crane inspection checklist to mitigate crane accidents and fatalities. mobile crane inspection checklist. download a free pdf template for daily mobile crane inspections. The template covers seven sections of vital components. Mobile Crane Checklist.
From wshsingapore.blogspot.com
Workplace Safety And Health ResourcesWorkplace Safety And Health Blog Mobile Crawler Crane Mobile Crane Checklist It is used primarily by prevention officers to inspect mobile. mobile crane daily/monthly inspection checklist. This checklist is provided as a reference tool for employers. Trust total equipment training as your comprehensive resource for comprehensive mobile crane inspection guidance. download a free pdf template for daily mobile crane inspections. The template covers seven sections of vital components and. Mobile Crane Checklist.
From www.etsy.com
Mobile Crane Daily Inspection Checklist, Health Safety, Machine Inspection, Construction Machine Mobile Crane Checklist crane inspection checklist to mitigate crane accidents and fatalities. download a free pdf template for daily mobile crane inspections. Trust total equipment training as your comprehensive resource for comprehensive mobile crane inspection guidance. The template covers seven sections of vital components and systems. This checklist is provided as a reference tool for employers. This sample checklist, from the. Mobile Crane Checklist.
From www.vrogue.co
Mobile Crane Daily Inspection Checklist Log Book Mobi vrogue.co Mobile Crane Checklist It is used primarily by prevention officers to inspect mobile. This sample checklist, from the north carolina. For the purpose of this procedure, all of the following are considered “mobile cranes” and require the use of this. learn everything you need to know about mobile crane inspections, such as when and how to inspect your mobile cranes. crane. Mobile Crane Checklist.
From www.scribd.com
Mobile Crane Checklist Crane (Machine) Mechanical Engineering Mobile Crane Checklist crane inspection checklist to mitigate crane accidents and fatalities. For the purpose of this procedure, all of the following are considered “mobile cranes” and require the use of this. The template covers seven sections of vital components and systems. download a free pdf template for daily mobile crane inspections. Trust total equipment training as your comprehensive resource for. Mobile Crane Checklist.
From ccoschool.us
What to Expect at a Crane & Rigging Inspection Crane Operator School Mobile Crane Checklist The template covers seven sections of vital components and systems. It is used primarily by prevention officers to inspect mobile. This checklist is provided as a reference tool for employers. mobile crane inspection checklist. mobile crane daily/monthly inspection checklist. Trust total equipment training as your comprehensive resource for comprehensive mobile crane inspection guidance. For the purpose of this. Mobile Crane Checklist.
From thesafetyposter.com
Mobile crane checklist Daily checklist Equipment checklist Mobile crane checklist Mobile Crane Checklist mobile crane daily/monthly inspection checklist. learn everything you need to know about mobile crane inspections, such as when and how to inspect your mobile cranes. The template covers seven sections of vital components and systems. For the purpose of this procedure, all of the following are considered “mobile cranes” and require the use of this. This checklist is. Mobile Crane Checklist.
From www.nationwidecranetraining.com
Free Downloadable Daily and Monthly Mobile Crane Inspection Checklists Mobile Crane Checklist For the purpose of this procedure, all of the following are considered “mobile cranes” and require the use of this. This sample checklist, from the north carolina. The template covers seven sections of vital components and systems. crane inspection checklist to mitigate crane accidents and fatalities. mobile crane inspection checklist. Conduct seamless checks and monthly crane inspections with. Mobile Crane Checklist.
From www.desertcart.ie
Buy Mobile Crane Daily Inspection Checklist Logbook Mobile Crane Checklist Record Book, Crane Mobile Crane Checklist mobile crane inspection checklist. mobile crane daily/monthly inspection checklist. The template covers seven sections of vital components and systems. download a free pdf template for daily mobile crane inspections. For the purpose of this procedure, all of the following are considered “mobile cranes” and require the use of this. This checklist is provided as a reference tool. Mobile Crane Checklist.
From www.scribd.com
007 Mobile Crane Checklist PDF Crane (Machine) Manufactured Goods Mobile Crane Checklist download a free pdf template for daily mobile crane inspections. Trust total equipment training as your comprehensive resource for comprehensive mobile crane inspection guidance. This checklist is provided as a reference tool for employers. mobile crane daily/monthly inspection checklist. This sample checklist, from the north carolina. It is used primarily by prevention officers to inspect mobile. For the. Mobile Crane Checklist.
From www.studypool.com
SOLUTION Checklist for equipment inspection mobile crane Studypool Mobile Crane Checklist mobile crane inspection checklist. The template covers seven sections of vital components and systems. crane inspection checklist to mitigate crane accidents and fatalities. This checklist is provided as a reference tool for employers. download a free pdf template for daily mobile crane inspections. This sample checklist, from the north carolina. Conduct seamless checks and monthly crane inspections. Mobile Crane Checklist.
From antigua.desertcart.com
Buy Mobile Crane Daily Inspection Checklist Log Book Mobile Crane Checklist Record Book, Crane Mobile Crane Checklist It is used primarily by prevention officers to inspect mobile. learn everything you need to know about mobile crane inspections, such as when and how to inspect your mobile cranes. Trust total equipment training as your comprehensive resource for comprehensive mobile crane inspection guidance. This sample checklist, from the north carolina. mobile crane inspection checklist. crane inspection. Mobile Crane Checklist.
From www.desertcart.jp
Buy Mobile Crane Daily Inspection Checklist Log Book Crane Inspection Checklist Record Book and Mobile Crane Checklist download a free pdf template for daily mobile crane inspections. Trust total equipment training as your comprehensive resource for comprehensive mobile crane inspection guidance. This checklist is provided as a reference tool for employers. Conduct seamless checks and monthly crane inspections with iauditor for free. It is used primarily by prevention officers to inspect mobile. The template covers seven. Mobile Crane Checklist.
From tuffaproducts.com.au
Mobile Crane Prestart Checklist Books TUFFA Products Mobile Crane Checklist download a free pdf template for daily mobile crane inspections. For the purpose of this procedure, all of the following are considered “mobile cranes” and require the use of this. This checklist is provided as a reference tool for employers. Trust total equipment training as your comprehensive resource for comprehensive mobile crane inspection guidance. mobile crane daily/monthly inspection. Mobile Crane Checklist.
From design.udlvirtual.edu.pe
Checklist For Overhead Crane Inspection Design Talk Mobile Crane Checklist crane inspection checklist to mitigate crane accidents and fatalities. This checklist is provided as a reference tool for employers. learn everything you need to know about mobile crane inspections, such as when and how to inspect your mobile cranes. It is used primarily by prevention officers to inspect mobile. download a free pdf template for daily mobile. Mobile Crane Checklist.
From totalequipmenttraining.com
Mobile Cranes Inspections & Checklist Total Equipment Training Mobile Crane Checklist mobile crane inspection checklist. The template covers seven sections of vital components and systems. mobile crane daily/monthly inspection checklist. This checklist is provided as a reference tool for employers. It is used primarily by prevention officers to inspect mobile. download a free pdf template for daily mobile crane inspections. For the purpose of this procedure, all of. Mobile Crane Checklist.
From www.scribd.com
Mobile Crawler Crane Checklist PDF Crane (Machine) Mechanical Engineering Mobile Crane Checklist This sample checklist, from the north carolina. crane inspection checklist to mitigate crane accidents and fatalities. It is used primarily by prevention officers to inspect mobile. mobile crane daily/monthly inspection checklist. learn everything you need to know about mobile crane inspections, such as when and how to inspect your mobile cranes. Trust total equipment training as your. Mobile Crane Checklist.
From telferprint.com.au
Mobile Crane Prestart Checklist A4 (Preprinted) Mobile Crane Checklist This checklist is provided as a reference tool for employers. This sample checklist, from the north carolina. It is used primarily by prevention officers to inspect mobile. mobile crane daily/monthly inspection checklist. mobile crane inspection checklist. Conduct seamless checks and monthly crane inspections with iauditor for free. learn everything you need to know about mobile crane inspections,. Mobile Crane Checklist.
From easyguides.com.au
Daily Inspection Checklist for Mobile and Vehicle Loading Cranes Mobile Crane Checklist learn everything you need to know about mobile crane inspections, such as when and how to inspect your mobile cranes. For the purpose of this procedure, all of the following are considered “mobile cranes” and require the use of this. This checklist is provided as a reference tool for employers. Trust total equipment training as your comprehensive resource for. Mobile Crane Checklist.
From www.youtube.com
How to Inspect Mobile Crane? Inspection Checklist of Mobile Crane YouTube Mobile Crane Checklist mobile crane inspection checklist. crane inspection checklist to mitigate crane accidents and fatalities. This checklist is provided as a reference tool for employers. learn everything you need to know about mobile crane inspections, such as when and how to inspect your mobile cranes. Trust total equipment training as your comprehensive resource for comprehensive mobile crane inspection guidance.. Mobile Crane Checklist.
From www.scribd.com
Mobile & Lorry Crane Checklist Form Ryobi Kiso (S) Pte LTD PDF Mobile Crane Checklist Conduct seamless checks and monthly crane inspections with iauditor for free. mobile crane inspection checklist. For the purpose of this procedure, all of the following are considered “mobile cranes” and require the use of this. This sample checklist, from the north carolina. learn everything you need to know about mobile crane inspections, such as when and how to. Mobile Crane Checklist.
From elsalvador.desertcart.com
Buy Mobile Crane Inspection Checklist Daily Mobile Crane Inspection Checklist Mobile Crane Mobile Crane Checklist This sample checklist, from the north carolina. mobile crane inspection checklist. crane inspection checklist to mitigate crane accidents and fatalities. It is used primarily by prevention officers to inspect mobile. The template covers seven sections of vital components and systems. Conduct seamless checks and monthly crane inspections with iauditor for free. download a free pdf template for. Mobile Crane Checklist.
From www.desertcart.ae
Buy Mobile Crane Daily Inspection Checklist Log Book Mobile Crane Checklist Logbook, Crane Mobile Crane Checklist crane inspection checklist to mitigate crane accidents and fatalities. It is used primarily by prevention officers to inspect mobile. mobile crane daily/monthly inspection checklist. mobile crane inspection checklist. Trust total equipment training as your comprehensive resource for comprehensive mobile crane inspection guidance. For the purpose of this procedure, all of the following are considered “mobile cranes” and. Mobile Crane Checklist.
From www.scribd.com
Mobile Crane Checklist PDF Mobile Crane Checklist It is used primarily by prevention officers to inspect mobile. mobile crane inspection checklist. crane inspection checklist to mitigate crane accidents and fatalities. This sample checklist, from the north carolina. The template covers seven sections of vital components and systems. download a free pdf template for daily mobile crane inspections. For the purpose of this procedure, all. Mobile Crane Checklist.
From www.scribd.com
Mobile Crane Monthly Checklist Crane (Machine) Rope Mobile Crane Checklist This checklist is provided as a reference tool for employers. Conduct seamless checks and monthly crane inspections with iauditor for free. download a free pdf template for daily mobile crane inspections. Trust total equipment training as your comprehensive resource for comprehensive mobile crane inspection guidance. For the purpose of this procedure, all of the following are considered “mobile cranes”. Mobile Crane Checklist.
From www.files.construction
Mobile Crane Construction Checklist Construction Documents And Templates Mobile Crane Checklist It is used primarily by prevention officers to inspect mobile. This sample checklist, from the north carolina. This checklist is provided as a reference tool for employers. The template covers seven sections of vital components and systems. learn everything you need to know about mobile crane inspections, such as when and how to inspect your mobile cranes. download. Mobile Crane Checklist.
From www.mysafetysign.com
Crane Inspection Checklist MySafetySign Blog Mobile Crane Checklist It is used primarily by prevention officers to inspect mobile. The template covers seven sections of vital components and systems. crane inspection checklist to mitigate crane accidents and fatalities. Trust total equipment training as your comprehensive resource for comprehensive mobile crane inspection guidance. learn everything you need to know about mobile crane inspections, such as when and how. Mobile Crane Checklist.
From www.constatech.co.za
Checklist Mobile Crane Mobile Crane Checklist This checklist is provided as a reference tool for employers. This sample checklist, from the north carolina. crane inspection checklist to mitigate crane accidents and fatalities. mobile crane inspection checklist. Trust total equipment training as your comprehensive resource for comprehensive mobile crane inspection guidance. download a free pdf template for daily mobile crane inspections. It is used. Mobile Crane Checklist.