Ceramic Tile Quality Control Checklist . It features over 10 different items to check both before and after. Shares some of the good practices adopted by practitioners and contractors on how good workmanship quality for ceramic tiling can be. The quality manager identifies each task that is a phase of construction that requires separate quality controls to assure and control quality. Check for any warping by placing the tiles on a flat. Check tile pattern sample laid out and grouted on sample board and signed by customer check material at delivery for make, style, color, size,. This quality control checklist is for ceramic floor tile installation. This task is crucial in ensuring that the ceramic tiles received meet the required specifications and quality standards. Ceramic tiles, glazed ceramic wall tiles, ceramic mosaic tiles, quarry tiles, or paver tiles have several quality control tests that are used to meet product specifications.
from topbathroomtiles.blogspot.com
Ceramic tiles, glazed ceramic wall tiles, ceramic mosaic tiles, quarry tiles, or paver tiles have several quality control tests that are used to meet product specifications. Check tile pattern sample laid out and grouted on sample board and signed by customer check material at delivery for make, style, color, size,. This task is crucial in ensuring that the ceramic tiles received meet the required specifications and quality standards. This quality control checklist is for ceramic floor tile installation. Check for any warping by placing the tiles on a flat. The quality manager identifies each task that is a phase of construction that requires separate quality controls to assure and control quality. Shares some of the good practices adopted by practitioners and contractors on how good workmanship quality for ceramic tiling can be. It features over 10 different items to check both before and after.
Best Ceramic Tiles for Bathroom images Bathroom Maintenance Checklist
Ceramic Tile Quality Control Checklist Shares some of the good practices adopted by practitioners and contractors on how good workmanship quality for ceramic tiling can be. Ceramic tiles, glazed ceramic wall tiles, ceramic mosaic tiles, quarry tiles, or paver tiles have several quality control tests that are used to meet product specifications. Check tile pattern sample laid out and grouted on sample board and signed by customer check material at delivery for make, style, color, size,. Check for any warping by placing the tiles on a flat. Shares some of the good practices adopted by practitioners and contractors on how good workmanship quality for ceramic tiling can be. The quality manager identifies each task that is a phase of construction that requires separate quality controls to assure and control quality. It features over 10 different items to check both before and after. This quality control checklist is for ceramic floor tile installation. This task is crucial in ensuring that the ceramic tiles received meet the required specifications and quality standards.
From www.civil-engineers-2020.com
Checklist Template for Marble Installation Work. Ceramic Tile Quality Control Checklist This quality control checklist is for ceramic floor tile installation. Shares some of the good practices adopted by practitioners and contractors on how good workmanship quality for ceramic tiling can be. Check tile pattern sample laid out and grouted on sample board and signed by customer check material at delivery for make, style, color, size,. Ceramic tiles, glazed ceramic wall. Ceramic Tile Quality Control Checklist.
From www.hanseceramictile.com
Hanse Tile Certifications Ceramic Tile Test Reporting & Production Ceramic Tile Quality Control Checklist Ceramic tiles, glazed ceramic wall tiles, ceramic mosaic tiles, quarry tiles, or paver tiles have several quality control tests that are used to meet product specifications. This quality control checklist is for ceramic floor tile installation. Shares some of the good practices adopted by practitioners and contractors on how good workmanship quality for ceramic tiling can be. This task is. Ceramic Tile Quality Control Checklist.
From www.scribd.com
C4M Dado Wall Tiling Work Checklist PDF Tile Adhesive Ceramic Tile Quality Control Checklist Shares some of the good practices adopted by practitioners and contractors on how good workmanship quality for ceramic tiling can be. Check for any warping by placing the tiles on a flat. Check tile pattern sample laid out and grouted on sample board and signed by customer check material at delivery for make, style, color, size,. The quality manager identifies. Ceramic Tile Quality Control Checklist.
From worldstonemarket.com
Planar Ceramic Tiles Quality Control Machine System Ceramics World Ceramic Tile Quality Control Checklist It features over 10 different items to check both before and after. This quality control checklist is for ceramic floor tile installation. The quality manager identifies each task that is a phase of construction that requires separate quality controls to assure and control quality. Shares some of the good practices adopted by practitioners and contractors on how good workmanship quality. Ceramic Tile Quality Control Checklist.
From floortilesmaster.blogspot.com
Ceramic Tile Quality Control Checklist Ceramic Tile Quality Control Checklist This task is crucial in ensuring that the ceramic tiles received meet the required specifications and quality standards. This quality control checklist is for ceramic floor tile installation. Shares some of the good practices adopted by practitioners and contractors on how good workmanship quality for ceramic tiling can be. Check tile pattern sample laid out and grouted on sample board. Ceramic Tile Quality Control Checklist.
From www.scribd.com
Wall Tiling Inspection Checklist Engineering Building Engineering Ceramic Tile Quality Control Checklist This task is crucial in ensuring that the ceramic tiles received meet the required specifications and quality standards. It features over 10 different items to check both before and after. The quality manager identifies each task that is a phase of construction that requires separate quality controls to assure and control quality. This quality control checklist is for ceramic floor. Ceramic Tile Quality Control Checklist.
From sitemate.com
Roof Inspection Checklist Template Smarter than PDF and Excel Ceramic Tile Quality Control Checklist This quality control checklist is for ceramic floor tile installation. This task is crucial in ensuring that the ceramic tiles received meet the required specifications and quality standards. Ceramic tiles, glazed ceramic wall tiles, ceramic mosaic tiles, quarry tiles, or paver tiles have several quality control tests that are used to meet product specifications. Check tile pattern sample laid out. Ceramic Tile Quality Control Checklist.
From www.timexceramic.com
Checklist for Choosing Tiles for Your Home Timex Ceramic Ceramic Tile Quality Control Checklist It features over 10 different items to check both before and after. Shares some of the good practices adopted by practitioners and contractors on how good workmanship quality for ceramic tiling can be. This task is crucial in ensuring that the ceramic tiles received meet the required specifications and quality standards. This quality control checklist is for ceramic floor tile. Ceramic Tile Quality Control Checklist.
From aradbranding.com
Quality Ceramic Tiles price list in 2023 Arad Branding Ceramic Tile Quality Control Checklist It features over 10 different items to check both before and after. Ceramic tiles, glazed ceramic wall tiles, ceramic mosaic tiles, quarry tiles, or paver tiles have several quality control tests that are used to meet product specifications. This quality control checklist is for ceramic floor tile installation. This task is crucial in ensuring that the ceramic tiles received meet. Ceramic Tile Quality Control Checklist.
From floortilesmaster.blogspot.com
Ceramic Tile Quality Control Checklist Ceramic Tile Quality Control Checklist It features over 10 different items to check both before and after. Check for any warping by placing the tiles on a flat. Check tile pattern sample laid out and grouted on sample board and signed by customer check material at delivery for make, style, color, size,. Ceramic tiles, glazed ceramic wall tiles, ceramic mosaic tiles, quarry tiles, or paver. Ceramic Tile Quality Control Checklist.
From biblus.accasoftware.com
Construction Quality Control Checklist 5 essential elements BibLus Ceramic Tile Quality Control Checklist Shares some of the good practices adopted by practitioners and contractors on how good workmanship quality for ceramic tiling can be. This task is crucial in ensuring that the ceramic tiles received meet the required specifications and quality standards. Check for any warping by placing the tiles on a flat. This quality control checklist is for ceramic floor tile installation.. Ceramic Tile Quality Control Checklist.
From wallpops-floor-tiles.blogspot.com
Ceramic Tile Quality Control wallpops floor tiles Ceramic Tile Quality Control Checklist Ceramic tiles, glazed ceramic wall tiles, ceramic mosaic tiles, quarry tiles, or paver tiles have several quality control tests that are used to meet product specifications. The quality manager identifies each task that is a phase of construction that requires separate quality controls to assure and control quality. It features over 10 different items to check both before and after.. Ceramic Tile Quality Control Checklist.
From www.files.construction
QAQC Checklist Acoustic Ceiling Tile (ACT) Construction Documents Ceramic Tile Quality Control Checklist Check for any warping by placing the tiles on a flat. The quality manager identifies each task that is a phase of construction that requires separate quality controls to assure and control quality. Shares some of the good practices adopted by practitioners and contractors on how good workmanship quality for ceramic tiling can be. Check tile pattern sample laid out. Ceramic Tile Quality Control Checklist.
From www.vrogue.co
Ceramic Goods Inspection Checklists Potential Defects vrogue.co Ceramic Tile Quality Control Checklist Check for any warping by placing the tiles on a flat. It features over 10 different items to check both before and after. The quality manager identifies each task that is a phase of construction that requires separate quality controls to assure and control quality. Shares some of the good practices adopted by practitioners and contractors on how good workmanship. Ceramic Tile Quality Control Checklist.
From www.tileoutlets.com
Tile Project Checklist Dream Sheet Ceramic Tile Quality Control Checklist Check for any warping by placing the tiles on a flat. This quality control checklist is for ceramic floor tile installation. Check tile pattern sample laid out and grouted on sample board and signed by customer check material at delivery for make, style, color, size,. The quality manager identifies each task that is a phase of construction that requires separate. Ceramic Tile Quality Control Checklist.
From ceramictiledesigninc.com
DIY Home Remodeling Checklist • Ceramic Tile Design Inc. Ceramic Tile Quality Control Checklist Check for any warping by placing the tiles on a flat. This quality control checklist is for ceramic floor tile installation. Shares some of the good practices adopted by practitioners and contractors on how good workmanship quality for ceramic tiling can be. Check tile pattern sample laid out and grouted on sample board and signed by customer check material at. Ceramic Tile Quality Control Checklist.
From sitemate.com
Tiling Safe Work Method Statement Wall and floor tiling SWMS Ceramic Tile Quality Control Checklist Check tile pattern sample laid out and grouted on sample board and signed by customer check material at delivery for make, style, color, size,. The quality manager identifies each task that is a phase of construction that requires separate quality controls to assure and control quality. Shares some of the good practices adopted by practitioners and contractors on how good. Ceramic Tile Quality Control Checklist.
From floortilesmaster.blogspot.com
Ceramic Tile Quality Control Checklist Ceramic Tile Quality Control Checklist Shares some of the good practices adopted by practitioners and contractors on how good workmanship quality for ceramic tiling can be. It features over 10 different items to check both before and after. Check for any warping by placing the tiles on a flat. This task is crucial in ensuring that the ceramic tiles received meet the required specifications and. Ceramic Tile Quality Control Checklist.
From topbathroomtiles.blogspot.com
Best Ceramic Tiles for Bathroom images Bathroom Maintenance Checklist Ceramic Tile Quality Control Checklist Check tile pattern sample laid out and grouted on sample board and signed by customer check material at delivery for make, style, color, size,. The quality manager identifies each task that is a phase of construction that requires separate quality controls to assure and control quality. It features over 10 different items to check both before and after. Check for. Ceramic Tile Quality Control Checklist.
From www.pinterest.com
Masonry Wall Construction Checklist Format Brick Wall Construction Ceramic Tile Quality Control Checklist Check tile pattern sample laid out and grouted on sample board and signed by customer check material at delivery for make, style, color, size,. Ceramic tiles, glazed ceramic wall tiles, ceramic mosaic tiles, quarry tiles, or paver tiles have several quality control tests that are used to meet product specifications. Shares some of the good practices adopted by practitioners and. Ceramic Tile Quality Control Checklist.
From www.youtube.com
How to Inspect Ceramic tilesWarehouse Internal Ceramic Tile Quality Ceramic Tile Quality Control Checklist Check for any warping by placing the tiles on a flat. This task is crucial in ensuring that the ceramic tiles received meet the required specifications and quality standards. The quality manager identifies each task that is a phase of construction that requires separate quality controls to assure and control quality. Ceramic tiles, glazed ceramic wall tiles, ceramic mosaic tiles,. Ceramic Tile Quality Control Checklist.
From floortilesmaster.blogspot.com
Ceramic Tile Quality Control Checklist Ceramic Tile Quality Control Checklist It features over 10 different items to check both before and after. The quality manager identifies each task that is a phase of construction that requires separate quality controls to assure and control quality. This task is crucial in ensuring that the ceramic tiles received meet the required specifications and quality standards. Check for any warping by placing the tiles. Ceramic Tile Quality Control Checklist.
From www.pinterest.ph
Quality inspection checklist for Gypsum frameworks and partition Ceramic Tile Quality Control Checklist Ceramic tiles, glazed ceramic wall tiles, ceramic mosaic tiles, quarry tiles, or paver tiles have several quality control tests that are used to meet product specifications. The quality manager identifies each task that is a phase of construction that requires separate quality controls to assure and control quality. This task is crucial in ensuring that the ceramic tiles received meet. Ceramic Tile Quality Control Checklist.
From www.scribd.com
Best Practices for Evaluating Ceramic Tile Quality OnSite PDF Ceramic Tile Quality Control Checklist Check for any warping by placing the tiles on a flat. Check tile pattern sample laid out and grouted on sample board and signed by customer check material at delivery for make, style, color, size,. The quality manager identifies each task that is a phase of construction that requires separate quality controls to assure and control quality. This quality control. Ceramic Tile Quality Control Checklist.
From ceramicfo.blogspot.com
Ceramic Tile Quality Control Ceramics Info Ceramic Tile Quality Control Checklist The quality manager identifies each task that is a phase of construction that requires separate quality controls to assure and control quality. Shares some of the good practices adopted by practitioners and contractors on how good workmanship quality for ceramic tiling can be. Check for any warping by placing the tiles on a flat. This task is crucial in ensuring. Ceramic Tile Quality Control Checklist.
From kewentmic.en.made-in-china.com
Best Quality Control Polished Porcelain Tiles 750X1500 Marble Polished Ceramic Tile Quality Control Checklist It features over 10 different items to check both before and after. Ceramic tiles, glazed ceramic wall tiles, ceramic mosaic tiles, quarry tiles, or paver tiles have several quality control tests that are used to meet product specifications. This task is crucial in ensuring that the ceramic tiles received meet the required specifications and quality standards. This quality control checklist. Ceramic Tile Quality Control Checklist.
From www.files.construction
QAQC Checklist Ceramic Tile (Flooring) Construction Documents And Ceramic Tile Quality Control Checklist This task is crucial in ensuring that the ceramic tiles received meet the required specifications and quality standards. This quality control checklist is for ceramic floor tile installation. The quality manager identifies each task that is a phase of construction that requires separate quality controls to assure and control quality. Ceramic tiles, glazed ceramic wall tiles, ceramic mosaic tiles, quarry. Ceramic Tile Quality Control Checklist.
From forresterhome.com
Tile Supply Checklist Forrester Home Ceramic Tile Quality Control Checklist It features over 10 different items to check both before and after. Check tile pattern sample laid out and grouted on sample board and signed by customer check material at delivery for make, style, color, size,. The quality manager identifies each task that is a phase of construction that requires separate quality controls to assure and control quality. This quality. Ceramic Tile Quality Control Checklist.
From cartoondealer.com
Checking The Tiles In The Bathroom. Quality Control When Laying Ceramic Ceramic Tile Quality Control Checklist Ceramic tiles, glazed ceramic wall tiles, ceramic mosaic tiles, quarry tiles, or paver tiles have several quality control tests that are used to meet product specifications. Check tile pattern sample laid out and grouted on sample board and signed by customer check material at delivery for make, style, color, size,. Check for any warping by placing the tiles on a. Ceramic Tile Quality Control Checklist.
From www.scribd.com
Tiling Inspection.bl Ceramic Tile Quality Control Checklist This task is crucial in ensuring that the ceramic tiles received meet the required specifications and quality standards. Ceramic tiles, glazed ceramic wall tiles, ceramic mosaic tiles, quarry tiles, or paver tiles have several quality control tests that are used to meet product specifications. It features over 10 different items to check both before and after. The quality manager identifies. Ceramic Tile Quality Control Checklist.
From aradbranding.com
Buy quality ceramic tile + Best Price Arad Branding Ceramic Tile Quality Control Checklist Shares some of the good practices adopted by practitioners and contractors on how good workmanship quality for ceramic tiling can be. Check for any warping by placing the tiles on a flat. This quality control checklist is for ceramic floor tile installation. This task is crucial in ensuring that the ceramic tiles received meet the required specifications and quality standards.. Ceramic Tile Quality Control Checklist.
From www.files.construction
Quality Assurance Checklist Stone And Tile Installation Ceramic Tile Quality Control Checklist Shares some of the good practices adopted by practitioners and contractors on how good workmanship quality for ceramic tiling can be. The quality manager identifies each task that is a phase of construction that requires separate quality controls to assure and control quality. Ceramic tiles, glazed ceramic wall tiles, ceramic mosaic tiles, quarry tiles, or paver tiles have several quality. Ceramic Tile Quality Control Checklist.
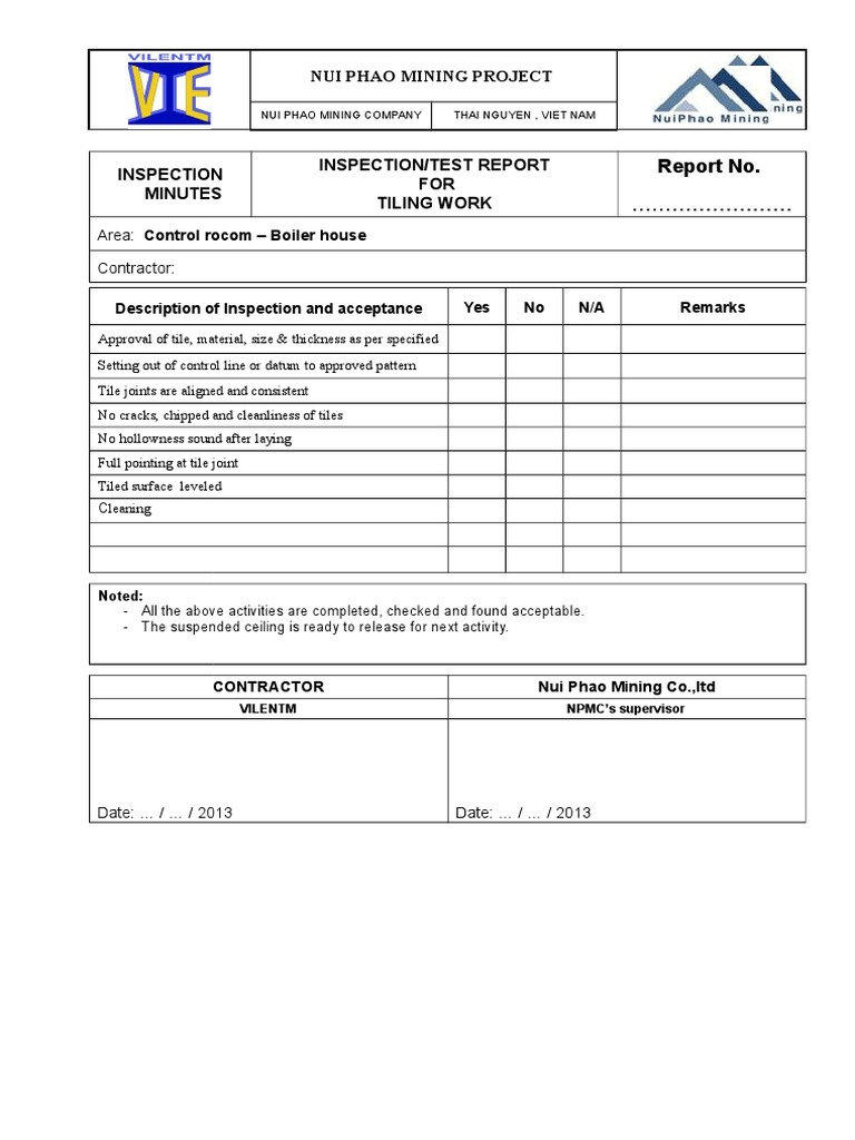
From www.civil-engineers-2020.com
Checklist Template for Tiling Work. Ceramic Tile Quality Control Checklist This quality control checklist is for ceramic floor tile installation. Ceramic tiles, glazed ceramic wall tiles, ceramic mosaic tiles, quarry tiles, or paver tiles have several quality control tests that are used to meet product specifications. Check for any warping by placing the tiles on a flat. The quality manager identifies each task that is a phase of construction that. Ceramic Tile Quality Control Checklist.
From www.scribd.com
Checklist Floor Finishing Architectural Design Architecture Ceramic Tile Quality Control Checklist This quality control checklist is for ceramic floor tile installation. It features over 10 different items to check both before and after. This task is crucial in ensuring that the ceramic tiles received meet the required specifications and quality standards. Check tile pattern sample laid out and grouted on sample board and signed by customer check material at delivery for. Ceramic Tile Quality Control Checklist.
From dl-uk.apowersoft.com
Building Inspection Checklist Template Excel Ceramic Tile Quality Control Checklist The quality manager identifies each task that is a phase of construction that requires separate quality controls to assure and control quality. Check tile pattern sample laid out and grouted on sample board and signed by customer check material at delivery for make, style, color, size,. This task is crucial in ensuring that the ceramic tiles received meet the required. Ceramic Tile Quality Control Checklist.