What Is A Scaffolding Permit . competent persons installing, altering or dismantling a scaffold must use a fall protection system that meets the. “scaffold” means a temporary elevated or hanging platform and its structural members that are used to support persons and materials, or both. install, inspect, maintain and repair scaffolding in accordance with standards, regulations, and manufacturer's instructions. this checklist is meant to help employers assess compliance with the occupational health and safety regulation and the. Request a review of a decision. Check if my contractor is insured. report a workplace injury or disease. Search the ohs regulation & related materials. subject to sections 324 and 325, an employer must ensure that scaffolds erected to provide working platforms during the. Use this checklist to help ensure scaffolding has been erected properly, safety requirements are all in place, and workers are. this guide provides practical information and minimum safety requirements for employers and workers to assemble, use and keep.
from digitalconstructive.com
Search the ohs regulation & related materials. this guide provides practical information and minimum safety requirements for employers and workers to assemble, use and keep. install, inspect, maintain and repair scaffolding in accordance with standards, regulations, and manufacturer's instructions. this checklist is meant to help employers assess compliance with the occupational health and safety regulation and the. Use this checklist to help ensure scaffolding has been erected properly, safety requirements are all in place, and workers are. report a workplace injury or disease. Request a review of a decision. competent persons installing, altering or dismantling a scaffold must use a fall protection system that meets the. “scaffold” means a temporary elevated or hanging platform and its structural members that are used to support persons and materials, or both. subject to sections 324 and 325, an employer must ensure that scaffolds erected to provide working platforms during the.
Scaffold License C61/D39 Contractors Digital Constructive
What Is A Scaffolding Permit report a workplace injury or disease. subject to sections 324 and 325, an employer must ensure that scaffolds erected to provide working platforms during the. “scaffold” means a temporary elevated or hanging platform and its structural members that are used to support persons and materials, or both. install, inspect, maintain and repair scaffolding in accordance with standards, regulations, and manufacturer's instructions. competent persons installing, altering or dismantling a scaffold must use a fall protection system that meets the. this guide provides practical information and minimum safety requirements for employers and workers to assemble, use and keep. report a workplace injury or disease. this checklist is meant to help employers assess compliance with the occupational health and safety regulation and the. Request a review of a decision. Use this checklist to help ensure scaffolding has been erected properly, safety requirements are all in place, and workers are. Check if my contractor is insured. Search the ohs regulation & related materials.
From www.scribd.com
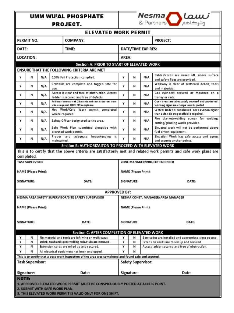
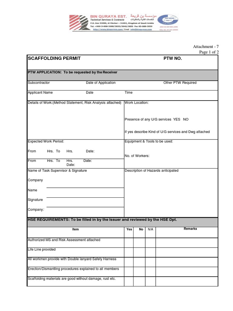
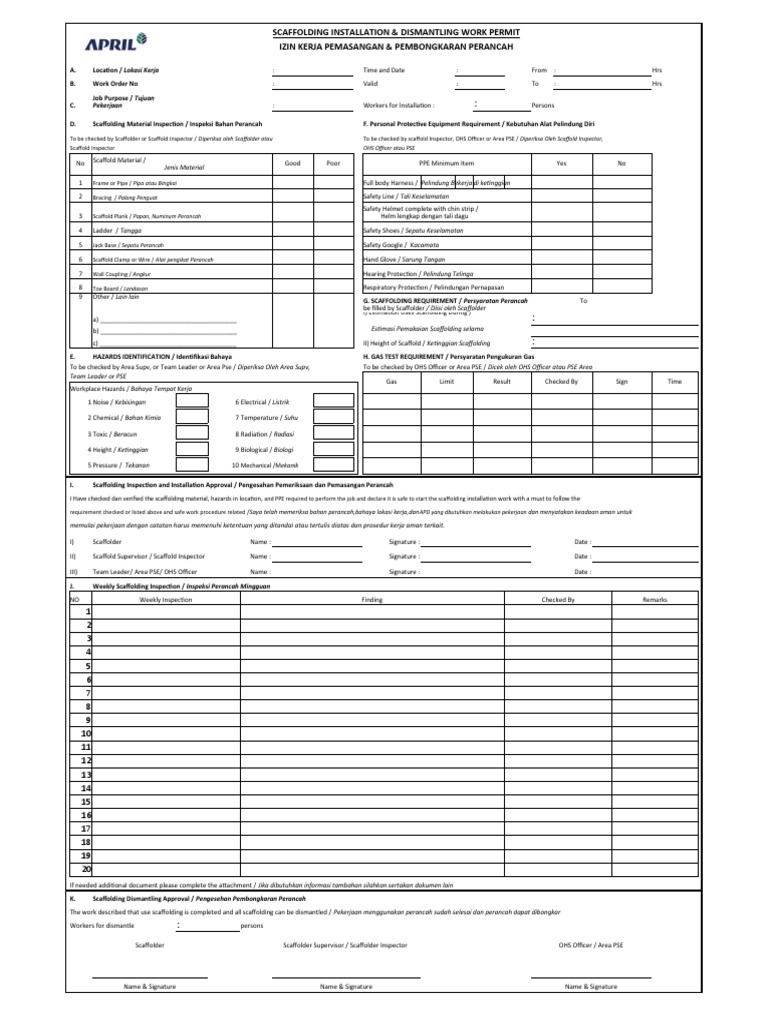
Attachment 7 Scaffolding Permit PDF Prevention Safety What Is A Scaffolding Permit subject to sections 324 and 325, an employer must ensure that scaffolds erected to provide working platforms during the. Check if my contractor is insured. competent persons installing, altering or dismantling a scaffold must use a fall protection system that meets the. Request a review of a decision. this checklist is meant to help employers assess compliance. What Is A Scaffolding Permit.
From www.files.construction
Work Permit Scaffolding (Critical Work) Construction Documents And Templates What Is A Scaffolding Permit this checklist is meant to help employers assess compliance with the occupational health and safety regulation and the. “scaffold” means a temporary elevated or hanging platform and its structural members that are used to support persons and materials, or both. this guide provides practical information and minimum safety requirements for employers and workers to assemble, use and. What Is A Scaffolding Permit.
From www.carltonusa.com
Scaffold Permit Complete Tag Vinyl 3 1/8 x 5 5/8 Carlton Industries What Is A Scaffolding Permit Request a review of a decision. competent persons installing, altering or dismantling a scaffold must use a fall protection system that meets the. Use this checklist to help ensure scaffolding has been erected properly, safety requirements are all in place, and workers are. Check if my contractor is insured. this guide provides practical information and minimum safety requirements. What Is A Scaffolding Permit.
From www.amazon.com
Accuform Signs TRS326CTP Scaffold Status Tag, Legend "SCAFFOLD PERMIT COMPLETE What Is A Scaffolding Permit Request a review of a decision. “scaffold” means a temporary elevated or hanging platform and its structural members that are used to support persons and materials, or both. install, inspect, maintain and repair scaffolding in accordance with standards, regulations, and manufacturer's instructions. report a workplace injury or disease. subject to sections 324 and 325, an employer. What Is A Scaffolding Permit.
From www.files.construction
Work Permit Scaffolding (Critical Work) Construction Documents And Templates What Is A Scaffolding Permit “scaffold” means a temporary elevated or hanging platform and its structural members that are used to support persons and materials, or both. subject to sections 324 and 325, an employer must ensure that scaffolds erected to provide working platforms during the. Use this checklist to help ensure scaffolding has been erected properly, safety requirements are all in place,. What Is A Scaffolding Permit.
From www.scribd.com
Scaffolding Work Permit PDF What Is A Scaffolding Permit competent persons installing, altering or dismantling a scaffold must use a fall protection system that meets the. Request a review of a decision. Check if my contractor is insured. “scaffold” means a temporary elevated or hanging platform and its structural members that are used to support persons and materials, or both. subject to sections 324 and 325,. What Is A Scaffolding Permit.
From www.compliancesigns.com
Green Scaffold Permit Complete Inspection Safety Tags What Is A Scaffolding Permit competent persons installing, altering or dismantling a scaffold must use a fall protection system that meets the. report a workplace injury or disease. this guide provides practical information and minimum safety requirements for employers and workers to assemble, use and keep. subject to sections 324 and 325, an employer must ensure that scaffolds erected to provide. What Is A Scaffolding Permit.
From www.visualworkplaceinc.com
PolyTag Scaffold Permit Inspection, 50pk Visual Workplace, Inc. What Is A Scaffolding Permit this guide provides practical information and minimum safety requirements for employers and workers to assemble, use and keep. Use this checklist to help ensure scaffolding has been erected properly, safety requirements are all in place, and workers are. install, inspect, maintain and repair scaffolding in accordance with standards, regulations, and manufacturer's instructions. Check if my contractor is insured.. What Is A Scaffolding Permit.
From exobeliif.blob.core.windows.net
Ladder On Scaffolding Regulations at Derrick Soucy blog What Is A Scaffolding Permit “scaffold” means a temporary elevated or hanging platform and its structural members that are used to support persons and materials, or both. subject to sections 324 and 325, an employer must ensure that scaffolds erected to provide working platforms during the. competent persons installing, altering or dismantling a scaffold must use a fall protection system that meets. What Is A Scaffolding Permit.
From www.scribd.com
Permit Scafolding PDF Scaffolding Personal Protective Equipment What Is A Scaffolding Permit this guide provides practical information and minimum safety requirements for employers and workers to assemble, use and keep. Request a review of a decision. report a workplace injury or disease. Search the ohs regulation & related materials. install, inspect, maintain and repair scaffolding in accordance with standards, regulations, and manufacturer's instructions. Use this checklist to help ensure. What Is A Scaffolding Permit.
From www.scribd.com
Work Permit Scaffolding Safety What Is A Scaffolding Permit install, inspect, maintain and repair scaffolding in accordance with standards, regulations, and manufacturer's instructions. Check if my contractor is insured. Request a review of a decision. report a workplace injury or disease. subject to sections 324 and 325, an employer must ensure that scaffolds erected to provide working platforms during the. Use this checklist to help ensure. What Is A Scaffolding Permit.
From www.scribd.com
Scaffold Permit PDF What Is A Scaffolding Permit “scaffold” means a temporary elevated or hanging platform and its structural members that are used to support persons and materials, or both. competent persons installing, altering or dismantling a scaffold must use a fall protection system that meets the. Use this checklist to help ensure scaffolding has been erected properly, safety requirements are all in place, and workers. What Is A Scaffolding Permit.
From checklistinspectors.com
Form Scaffolding Work Permit Free Template Checklist And Inspection Template What Is A Scaffolding Permit Request a review of a decision. Search the ohs regulation & related materials. “scaffold” means a temporary elevated or hanging platform and its structural members that are used to support persons and materials, or both. Check if my contractor is insured. subject to sections 324 and 325, an employer must ensure that scaffolds erected to provide working platforms. What Is A Scaffolding Permit.
From www.dexform.com
Permit for scaffolding work in Word and Pdf formats What Is A Scaffolding Permit subject to sections 324 and 325, an employer must ensure that scaffolds erected to provide working platforms during the. this checklist is meant to help employers assess compliance with the occupational health and safety regulation and the. “scaffold” means a temporary elevated or hanging platform and its structural members that are used to support persons and materials,. What Is A Scaffolding Permit.
From dokumen.tips
(PDF) SMBC Construction Method Statement Contentful · Yes / No . If yes, has a scaffolding What Is A Scaffolding Permit competent persons installing, altering or dismantling a scaffold must use a fall protection system that meets the. Request a review of a decision. report a workplace injury or disease. Search the ohs regulation & related materials. Check if my contractor is insured. “scaffold” means a temporary elevated or hanging platform and its structural members that are used. What Is A Scaffolding Permit.
From www.highspeedtraining.co.uk
Scaffolding Safety Guidance on the Types & Requirements What Is A Scaffolding Permit competent persons installing, altering or dismantling a scaffold must use a fall protection system that meets the. this checklist is meant to help employers assess compliance with the occupational health and safety regulation and the. Request a review of a decision. Use this checklist to help ensure scaffolding has been erected properly, safety requirements are all in place,. What Is A Scaffolding Permit.
From www.pdffiller.com
Scaffolding permit application Doc Template pdfFiller What Is A Scaffolding Permit “scaffold” means a temporary elevated or hanging platform and its structural members that are used to support persons and materials, or both. Search the ohs regulation & related materials. competent persons installing, altering or dismantling a scaffold must use a fall protection system that meets the. Use this checklist to help ensure scaffolding has been erected properly, safety. What Is A Scaffolding Permit.
From www.scribd.com
27j Scaffold Permit PDF Scaffolding What Is A Scaffolding Permit competent persons installing, altering or dismantling a scaffold must use a fall protection system that meets the. Use this checklist to help ensure scaffolding has been erected properly, safety requirements are all in place, and workers are. install, inspect, maintain and repair scaffolding in accordance with standards, regulations, and manufacturer's instructions. this checklist is meant to help. What Is A Scaffolding Permit.
From www.accuform.com
Tags ByTheRoll Scaffold Permit Complete Scaffold (TAR733) What Is A Scaffolding Permit install, inspect, maintain and repair scaffolding in accordance with standards, regulations, and manufacturer's instructions. Request a review of a decision. Check if my contractor is insured. this checklist is meant to help employers assess compliance with the occupational health and safety regulation and the. “scaffold” means a temporary elevated or hanging platform and its structural members that. What Is A Scaffolding Permit.
From www.safetyemporium.com
Scaffold Permit Tags, Green, Complete Scaffold What Is A Scaffolding Permit install, inspect, maintain and repair scaffolding in accordance with standards, regulations, and manufacturer's instructions. “scaffold” means a temporary elevated or hanging platform and its structural members that are used to support persons and materials, or both. this guide provides practical information and minimum safety requirements for employers and workers to assemble, use and keep. this checklist. What Is A Scaffolding Permit.
From elitescaffolds.com
Scaffolding Permit Lancaster Elite Scaffolds Recent Work What Is A Scaffolding Permit subject to sections 324 and 325, an employer must ensure that scaffolds erected to provide working platforms during the. this guide provides practical information and minimum safety requirements for employers and workers to assemble, use and keep. Request a review of a decision. Check if my contractor is insured. report a workplace injury or disease. competent. What Is A Scaffolding Permit.
From www.dexform.com
Permit for scaffolding work in Word and Pdf formats page 2 of 2 What Is A Scaffolding Permit report a workplace injury or disease. Check if my contractor is insured. this checklist is meant to help employers assess compliance with the occupational health and safety regulation and the. competent persons installing, altering or dismantling a scaffold must use a fall protection system that meets the. “scaffold” means a temporary elevated or hanging platform and. What Is A Scaffolding Permit.
From www.scribd.com
Permit PDF Scaffolding Welding What Is A Scaffolding Permit Use this checklist to help ensure scaffolding has been erected properly, safety requirements are all in place, and workers are. Search the ohs regulation & related materials. install, inspect, maintain and repair scaffolding in accordance with standards, regulations, and manufacturer's instructions. report a workplace injury or disease. competent persons installing, altering or dismantling a scaffold must use. What Is A Scaffolding Permit.
From www.scribd.com
Application Form Scaffolding Permit PDF Government Information Government What Is A Scaffolding Permit Search the ohs regulation & related materials. report a workplace injury or disease. Request a review of a decision. this checklist is meant to help employers assess compliance with the occupational health and safety regulation and the. install, inspect, maintain and repair scaffolding in accordance with standards, regulations, and manufacturer's instructions. “scaffold” means a temporary elevated. What Is A Scaffolding Permit.
From www.scribd.com
Scaffolding Work Permit New FORM PDF Scaffolding Safety What Is A Scaffolding Permit this checklist is meant to help employers assess compliance with the occupational health and safety regulation and the. this guide provides practical information and minimum safety requirements for employers and workers to assemble, use and keep. Check if my contractor is insured. Use this checklist to help ensure scaffolding has been erected properly, safety requirements are all in. What Is A Scaffolding Permit.
From digitalconstructive.com
Scaffold License C61/D39 Contractors Digital Constructive What Is A Scaffolding Permit Search the ohs regulation & related materials. Request a review of a decision. Use this checklist to help ensure scaffolding has been erected properly, safety requirements are all in place, and workers are. subject to sections 324 and 325, an employer must ensure that scaffolds erected to provide working platforms during the. report a workplace injury or disease.. What Is A Scaffolding Permit.
From www.scribd.com
Att. 7 Scaffolding Permit PDF Scaffolding Mechanical Engineering What Is A Scaffolding Permit “scaffold” means a temporary elevated or hanging platform and its structural members that are used to support persons and materials, or both. this checklist is meant to help employers assess compliance with the occupational health and safety regulation and the. competent persons installing, altering or dismantling a scaffold must use a fall protection system that meets the.. What Is A Scaffolding Permit.
From www.scribd.com
Permit Working at Height PDF Scaffolding Safety What Is A Scaffolding Permit “scaffold” means a temporary elevated or hanging platform and its structural members that are used to support persons and materials, or both. Check if my contractor is insured. this checklist is meant to help employers assess compliance with the occupational health and safety regulation and the. Search the ohs regulation & related materials. install, inspect, maintain and. What Is A Scaffolding Permit.
From www.safetyemporium.com
Scaffold Permit Tags, Red, Warning, This Scaffold Is Not Complete, Do Not Use What Is A Scaffolding Permit “scaffold” means a temporary elevated or hanging platform and its structural members that are used to support persons and materials, or both. Use this checklist to help ensure scaffolding has been erected properly, safety requirements are all in place, and workers are. competent persons installing, altering or dismantling a scaffold must use a fall protection system that meets. What Is A Scaffolding Permit.
From www.scribd.com
WORK PERMITS PDF Scaffolding Personal Protective Equipment What Is A Scaffolding Permit report a workplace injury or disease. Check if my contractor is insured. this guide provides practical information and minimum safety requirements for employers and workers to assemble, use and keep. “scaffold” means a temporary elevated or hanging platform and its structural members that are used to support persons and materials, or both. Search the ohs regulation &. What Is A Scaffolding Permit.
From tuffaproducts.com.au
Scaffold Contract Permit Book TUFFA Products What Is A Scaffolding Permit install, inspect, maintain and repair scaffolding in accordance with standards, regulations, and manufacturer's instructions. subject to sections 324 and 325, an employer must ensure that scaffolds erected to provide working platforms during the. “scaffold” means a temporary elevated or hanging platform and its structural members that are used to support persons and materials, or both. this. What Is A Scaffolding Permit.
From scaffoldtype.com
Essential Scaffolding PermittoWork Systems Guide 1st What Is A Scaffolding Permit this guide provides practical information and minimum safety requirements for employers and workers to assemble, use and keep. Check if my contractor is insured. Request a review of a decision. Search the ohs regulation & related materials. report a workplace injury or disease. competent persons installing, altering or dismantling a scaffold must use a fall protection system. What Is A Scaffolding Permit.
From www.scribd.com
Training On Working On Scaffold Permit PDF What Is A Scaffolding Permit report a workplace injury or disease. Use this checklist to help ensure scaffolding has been erected properly, safety requirements are all in place, and workers are. subject to sections 324 and 325, an employer must ensure that scaffolds erected to provide working platforms during the. install, inspect, maintain and repair scaffolding in accordance with standards, regulations, and. What Is A Scaffolding Permit.
From www.accuformnmc.com
Scaffold Permit Scaffold Scaffold Status Safety Tag TRS320 What Is A Scaffolding Permit competent persons installing, altering or dismantling a scaffold must use a fall protection system that meets the. subject to sections 324 and 325, an employer must ensure that scaffolds erected to provide working platforms during the. Check if my contractor is insured. report a workplace injury or disease. this guide provides practical information and minimum safety. What Is A Scaffolding Permit.
From www.scribd.com
Scaffold Permit1 PDF Scaffolding Equipment What Is A Scaffolding Permit report a workplace injury or disease. this guide provides practical information and minimum safety requirements for employers and workers to assemble, use and keep. Check if my contractor is insured. Search the ohs regulation & related materials. “scaffold” means a temporary elevated or hanging platform and its structural members that are used to support persons and materials,. What Is A Scaffolding Permit.