Hazardous Materials Questionnaire . Questions is yes, applicant must contact the county of san diego hazardous materials division, 1255 imperial avenue, 3 floor,. The hazardous materials plan check specialist assists new businesses and businesses undergoing tenant improvements, in complying. The following questions represent the facility’s activities, not the specific project description. Here is a fun and free quiz about hazardous materials, how to handle them, and what to do in the event of an emergency as pertains to the. San diego county department of environmental health (deh), hazardous materials management division (hmmd) and san diego county air pollution control district. Hazardous materials questionnaire (please utilize the online hazardous materials questionnaire during this time) tenant improvement and new. Safety officers require this file to assess workforce. Employees in industries dealing with hazardous materials need this quiz for training.
from www.dgdeclaration.com
Hazardous materials questionnaire (please utilize the online hazardous materials questionnaire during this time) tenant improvement and new. The following questions represent the facility’s activities, not the specific project description. Employees in industries dealing with hazardous materials need this quiz for training. Questions is yes, applicant must contact the county of san diego hazardous materials division, 1255 imperial avenue, 3 floor,. San diego county department of environmental health (deh), hazardous materials management division (hmmd) and san diego county air pollution control district. Here is a fun and free quiz about hazardous materials, how to handle them, and what to do in the event of an emergency as pertains to the. The hazardous materials plan check specialist assists new businesses and businesses undergoing tenant improvements, in complying. Safety officers require this file to assess workforce.
How to Properly Dispose of Your Hazardous MaterialsDG Declaration
Hazardous Materials Questionnaire The following questions represent the facility’s activities, not the specific project description. Employees in industries dealing with hazardous materials need this quiz for training. Safety officers require this file to assess workforce. The hazardous materials plan check specialist assists new businesses and businesses undergoing tenant improvements, in complying. San diego county department of environmental health (deh), hazardous materials management division (hmmd) and san diego county air pollution control district. Questions is yes, applicant must contact the county of san diego hazardous materials division, 1255 imperial avenue, 3 floor,. Hazardous materials questionnaire (please utilize the online hazardous materials questionnaire during this time) tenant improvement and new. The following questions represent the facility’s activities, not the specific project description. Here is a fun and free quiz about hazardous materials, how to handle them, and what to do in the event of an emergency as pertains to the.
From www.safetyandhealthmagazine.com
GHS quiz Match the pictogram to the hazard Safety+Health Hazardous Materials Questionnaire Questions is yes, applicant must contact the county of san diego hazardous materials division, 1255 imperial avenue, 3 floor,. Here is a fun and free quiz about hazardous materials, how to handle them, and what to do in the event of an emergency as pertains to the. San diego county department of environmental health (deh), hazardous materials management division (hmmd). Hazardous Materials Questionnaire.
From www.envirofluid.com
Download the Chemical Quick Assessment Form Hazardous Materials Questionnaire Safety officers require this file to assess workforce. Hazardous materials questionnaire (please utilize the online hazardous materials questionnaire during this time) tenant improvement and new. The following questions represent the facility’s activities, not the specific project description. Here is a fun and free quiz about hazardous materials, how to handle them, and what to do in the event of an. Hazardous Materials Questionnaire.
From www.scribd.com
Environment Hazard Assessment Checklist English Hazardous Materials Questionnaire San diego county department of environmental health (deh), hazardous materials management division (hmmd) and san diego county air pollution control district. Hazardous materials questionnaire (please utilize the online hazardous materials questionnaire during this time) tenant improvement and new. Safety officers require this file to assess workforce. Employees in industries dealing with hazardous materials need this quiz for training. The hazardous. Hazardous Materials Questionnaire.
From www.fueloyal.com
Hazardous Materials Test ULTIMATE Guide for Studying Hazardous Materials Questionnaire Questions is yes, applicant must contact the county of san diego hazardous materials division, 1255 imperial avenue, 3 floor,. Here is a fun and free quiz about hazardous materials, how to handle them, and what to do in the event of an emergency as pertains to the. Hazardous materials questionnaire (please utilize the online hazardous materials questionnaire during this time). Hazardous Materials Questionnaire.
From docslib.org
Hazardous Materials Questionnaire DocsLib Hazardous Materials Questionnaire The hazardous materials plan check specialist assists new businesses and businesses undergoing tenant improvements, in complying. Here is a fun and free quiz about hazardous materials, how to handle them, and what to do in the event of an emergency as pertains to the. Questions is yes, applicant must contact the county of san diego hazardous materials division, 1255 imperial. Hazardous Materials Questionnaire.
From dchas.org
Hazard Assessment ACS Division of Chemical Health and Safety Hazardous Materials Questionnaire Hazardous materials questionnaire (please utilize the online hazardous materials questionnaire during this time) tenant improvement and new. Questions is yes, applicant must contact the county of san diego hazardous materials division, 1255 imperial avenue, 3 floor,. Employees in industries dealing with hazardous materials need this quiz for training. Here is a fun and free quiz about hazardous materials, how to. Hazardous Materials Questionnaire.
From www.signnow.com
HAZARDOUS WASTE FACILITY PERMIT HEALTH RISK ASSESSMENT QUESTIONNAIRE Hazardous Materials Questionnaire The following questions represent the facility’s activities, not the specific project description. Questions is yes, applicant must contact the county of san diego hazardous materials division, 1255 imperial avenue, 3 floor,. Employees in industries dealing with hazardous materials need this quiz for training. San diego county department of environmental health (deh), hazardous materials management division (hmmd) and san diego county. Hazardous Materials Questionnaire.
From www.templateroller.com
Oregon Community Capability Assessment Phase 2 Questionnaire Hazardous Materials Questionnaire Hazardous materials questionnaire (please utilize the online hazardous materials questionnaire during this time) tenant improvement and new. Employees in industries dealing with hazardous materials need this quiz for training. The following questions represent the facility’s activities, not the specific project description. Here is a fun and free quiz about hazardous materials, how to handle them, and what to do in. Hazardous Materials Questionnaire.
From studylib.net
CHEMICAL HYGIENE SURVEY CHECKLIST Hazardous Materials Questionnaire Questions is yes, applicant must contact the county of san diego hazardous materials division, 1255 imperial avenue, 3 floor,. Hazardous materials questionnaire (please utilize the online hazardous materials questionnaire during this time) tenant improvement and new. San diego county department of environmental health (deh), hazardous materials management division (hmmd) and san diego county air pollution control district. The hazardous materials. Hazardous Materials Questionnaire.
From www.jendcosafety.com
Hazardous Materials Classification Sign 14X10 PS Vinyl HMC14P Hazardous Materials Questionnaire Employees in industries dealing with hazardous materials need this quiz for training. Questions is yes, applicant must contact the county of san diego hazardous materials division, 1255 imperial avenue, 3 floor,. San diego county department of environmental health (deh), hazardous materials management division (hmmd) and san diego county air pollution control district. Hazardous materials questionnaire (please utilize the online hazardous. Hazardous Materials Questionnaire.
From www.templateroller.com
Form HM9171 Download Fillable PDF or Fill Online Hazardous Materials Hazardous Materials Questionnaire Employees in industries dealing with hazardous materials need this quiz for training. Here is a fun and free quiz about hazardous materials, how to handle them, and what to do in the event of an emergency as pertains to the. The hazardous materials plan check specialist assists new businesses and businesses undergoing tenant improvements, in complying. San diego county department. Hazardous Materials Questionnaire.
From www.areasafe.com.au
Hazardous Spill Emergency Response Procedure Sign Hazardous Materials Questionnaire Employees in industries dealing with hazardous materials need this quiz for training. Hazardous materials questionnaire (please utilize the online hazardous materials questionnaire during this time) tenant improvement and new. Safety officers require this file to assess workforce. Questions is yes, applicant must contact the county of san diego hazardous materials division, 1255 imperial avenue, 3 floor,. Here is a fun. Hazardous Materials Questionnaire.
From www.ontimesupplies.com
Hazardous Materials Label Identification System Poster by LabelMaster Hazardous Materials Questionnaire Questions is yes, applicant must contact the county of san diego hazardous materials division, 1255 imperial avenue, 3 floor,. Safety officers require this file to assess workforce. Employees in industries dealing with hazardous materials need this quiz for training. The following questions represent the facility’s activities, not the specific project description. The hazardous materials plan check specialist assists new businesses. Hazardous Materials Questionnaire.
From www.chegg.com
Solved Conduct a Hazard Vulnerability Analysis. Score it, Hazardous Materials Questionnaire Here is a fun and free quiz about hazardous materials, how to handle them, and what to do in the event of an emergency as pertains to the. Questions is yes, applicant must contact the county of san diego hazardous materials division, 1255 imperial avenue, 3 floor,. Safety officers require this file to assess workforce. Hazardous materials questionnaire (please utilize. Hazardous Materials Questionnaire.
From www.dgdeclaration.com
How to Properly Dispose of Your Hazardous MaterialsDG Declaration Hazardous Materials Questionnaire Employees in industries dealing with hazardous materials need this quiz for training. Here is a fun and free quiz about hazardous materials, how to handle them, and what to do in the event of an emergency as pertains to the. Questions is yes, applicant must contact the county of san diego hazardous materials division, 1255 imperial avenue, 3 floor,. The. Hazardous Materials Questionnaire.
From www.examples.com
Risk Assessment Questionnaire 9+ Examples, Format, How to Conduct Hazardous Materials Questionnaire Questions is yes, applicant must contact the county of san diego hazardous materials division, 1255 imperial avenue, 3 floor,. San diego county department of environmental health (deh), hazardous materials management division (hmmd) and san diego county air pollution control district. Employees in industries dealing with hazardous materials need this quiz for training. Here is a fun and free quiz about. Hazardous Materials Questionnaire.
From mavink.com
Chemical Hazard Risk Assessment Form Hazardous Materials Questionnaire Employees in industries dealing with hazardous materials need this quiz for training. Questions is yes, applicant must contact the county of san diego hazardous materials division, 1255 imperial avenue, 3 floor,. The hazardous materials plan check specialist assists new businesses and businesses undergoing tenant improvements, in complying. Hazardous materials questionnaire (please utilize the online hazardous materials questionnaire during this time). Hazardous Materials Questionnaire.
From www.cdl-test.com
Hazardous Materials > > CDL TEST ANSWERS > Online or Hazardous Materials Questionnaire Safety officers require this file to assess workforce. Here is a fun and free quiz about hazardous materials, how to handle them, and what to do in the event of an emergency as pertains to the. The following questions represent the facility’s activities, not the specific project description. Employees in industries dealing with hazardous materials need this quiz for training.. Hazardous Materials Questionnaire.
From studylib.net
HAZARD IDENTIFICATION CHECKLIST Hazardous Materials Questionnaire Safety officers require this file to assess workforce. Questions is yes, applicant must contact the county of san diego hazardous materials division, 1255 imperial avenue, 3 floor,. Employees in industries dealing with hazardous materials need this quiz for training. San diego county department of environmental health (deh), hazardous materials management division (hmmd) and san diego county air pollution control district.. Hazardous Materials Questionnaire.
From www.vecteezy.com
Symbol Hazardous Toxic Warning Sign, Chemical Hazard Sign 20456057 Hazardous Materials Questionnaire Employees in industries dealing with hazardous materials need this quiz for training. Safety officers require this file to assess workforce. The following questions represent the facility’s activities, not the specific project description. San diego county department of environmental health (deh), hazardous materials management division (hmmd) and san diego county air pollution control district. Hazardous materials questionnaire (please utilize the online. Hazardous Materials Questionnaire.
From www.pdffiller.com
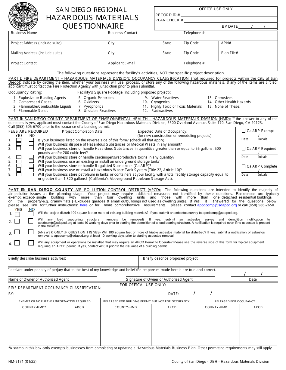
Fillable Online San Diego Regional Hazardous Materials Questionnaire Hazardous Materials Questionnaire Questions is yes, applicant must contact the county of san diego hazardous materials division, 1255 imperial avenue, 3 floor,. Hazardous materials questionnaire (please utilize the online hazardous materials questionnaire during this time) tenant improvement and new. Employees in industries dealing with hazardous materials need this quiz for training. The hazardous materials plan check specialist assists new businesses and businesses undergoing. Hazardous Materials Questionnaire.
From studylib.net
Register for Hazardous Substances/Dangerous Goods/Chemicals Hazardous Materials Questionnaire The hazardous materials plan check specialist assists new businesses and businesses undergoing tenant improvements, in complying. Safety officers require this file to assess workforce. San diego county department of environmental health (deh), hazardous materials management division (hmmd) and san diego county air pollution control district. Employees in industries dealing with hazardous materials need this quiz for training. Here is a. Hazardous Materials Questionnaire.
From www.templateroller.com
Oregon Community Capability Assessment Phase 2 Questionnaire Hazardous Materials Questionnaire San diego county department of environmental health (deh), hazardous materials management division (hmmd) and san diego county air pollution control district. Here is a fun and free quiz about hazardous materials, how to handle them, and what to do in the event of an emergency as pertains to the. Hazardous materials questionnaire (please utilize the online hazardous materials questionnaire during. Hazardous Materials Questionnaire.
From www.browsegrades.net
Hazardous Materials (Hazmat) Questions and Answers Graded A Browsegrades Hazardous Materials Questionnaire Employees in industries dealing with hazardous materials need this quiz for training. Here is a fun and free quiz about hazardous materials, how to handle them, and what to do in the event of an emergency as pertains to the. Safety officers require this file to assess workforce. The following questions represent the facility’s activities, not the specific project description.. Hazardous Materials Questionnaire.
From attheu.utah.edu
Receiving hazardous materials theU Hazardous Materials Questionnaire Hazardous materials questionnaire (please utilize the online hazardous materials questionnaire during this time) tenant improvement and new. The following questions represent the facility’s activities, not the specific project description. Safety officers require this file to assess workforce. The hazardous materials plan check specialist assists new businesses and businesses undergoing tenant improvements, in complying. Employees in industries dealing with hazardous materials. Hazardous Materials Questionnaire.
From www.templateroller.com
Oregon Community Capability Assessment Phase 2 Questionnaire Hazardous Materials Questionnaire Employees in industries dealing with hazardous materials need this quiz for training. Here is a fun and free quiz about hazardous materials, how to handle them, and what to do in the event of an emergency as pertains to the. San diego county department of environmental health (deh), hazardous materials management division (hmmd) and san diego county air pollution control. Hazardous Materials Questionnaire.
From studylib.net
JobHazardAnalysisChecklist Hazardous Materials Questionnaire Questions is yes, applicant must contact the county of san diego hazardous materials division, 1255 imperial avenue, 3 floor,. Here is a fun and free quiz about hazardous materials, how to handle them, and what to do in the event of an emergency as pertains to the. The hazardous materials plan check specialist assists new businesses and businesses undergoing tenant. Hazardous Materials Questionnaire.
From www.templateroller.com
Oregon Community Capability Assessment Phase 2 Questionnaire Hazardous Materials Questionnaire San diego county department of environmental health (deh), hazardous materials management division (hmmd) and san diego county air pollution control district. Safety officers require this file to assess workforce. Questions is yes, applicant must contact the county of san diego hazardous materials division, 1255 imperial avenue, 3 floor,. The following questions represent the facility’s activities, not the specific project description.. Hazardous Materials Questionnaire.
From www.keysigns.co.uk
Hazardous Materials Signs from Key Signs UK Hazardous Materials Questionnaire Questions is yes, applicant must contact the county of san diego hazardous materials division, 1255 imperial avenue, 3 floor,. Here is a fun and free quiz about hazardous materials, how to handle them, and what to do in the event of an emergency as pertains to the. San diego county department of environmental health (deh), hazardous materials management division (hmmd). Hazardous Materials Questionnaire.
From www.templateroller.com
Oregon Community Capability Assessment Phase 2 Questionnaire Hazardous Materials Questionnaire Hazardous materials questionnaire (please utilize the online hazardous materials questionnaire during this time) tenant improvement and new. Here is a fun and free quiz about hazardous materials, how to handle them, and what to do in the event of an emergency as pertains to the. Employees in industries dealing with hazardous materials need this quiz for training. The following questions. Hazardous Materials Questionnaire.
From studylib.net
Emergency Response Checklist Incident Recognition and Reporting Workplace Hazardous Materials Questionnaire Questions is yes, applicant must contact the county of san diego hazardous materials division, 1255 imperial avenue, 3 floor,. The following questions represent the facility’s activities, not the specific project description. The hazardous materials plan check specialist assists new businesses and businesses undergoing tenant improvements, in complying. Safety officers require this file to assess workforce. Hazardous materials questionnaire (please utilize. Hazardous Materials Questionnaire.
From www.vrogue.co
Hazard Identification Checklist Knife Personal Protec vrogue.co Hazardous Materials Questionnaire Questions is yes, applicant must contact the county of san diego hazardous materials division, 1255 imperial avenue, 3 floor,. San diego county department of environmental health (deh), hazardous materials management division (hmmd) and san diego county air pollution control district. Hazardous materials questionnaire (please utilize the online hazardous materials questionnaire during this time) tenant improvement and new. Employees in industries. Hazardous Materials Questionnaire.
From www.indiamart.com
Handling Hazardous Materials at Rs 550/unit hazardous material Hazardous Materials Questionnaire The following questions represent the facility’s activities, not the specific project description. Hazardous materials questionnaire (please utilize the online hazardous materials questionnaire during this time) tenant improvement and new. Safety officers require this file to assess workforce. San diego county department of environmental health (deh), hazardous materials management division (hmmd) and san diego county air pollution control district. Here is. Hazardous Materials Questionnaire.
From mungfali.com
Hazard Identification Checklist Template Hazardous Materials Questionnaire Questions is yes, applicant must contact the county of san diego hazardous materials division, 1255 imperial avenue, 3 floor,. San diego county department of environmental health (deh), hazardous materials management division (hmmd) and san diego county air pollution control district. The hazardous materials plan check specialist assists new businesses and businesses undergoing tenant improvements, in complying. Hazardous materials questionnaire (please. Hazardous Materials Questionnaire.
From studylib.net
carson city hazard mitigation questionnaire Hazardous Materials Questionnaire Employees in industries dealing with hazardous materials need this quiz for training. Questions is yes, applicant must contact the county of san diego hazardous materials division, 1255 imperial avenue, 3 floor,. Safety officers require this file to assess workforce. Hazardous materials questionnaire (please utilize the online hazardous materials questionnaire during this time) tenant improvement and new. The hazardous materials plan. Hazardous Materials Questionnaire.