Keystone Raptor Replacement Windows . Never replaced one but did the youtube thing and it was a piece of cake. If you're looking at a replacement window, then the dealer or keystone is your best bet. Some easy fixes that you may be able to complete yourself include repairs to blinds & shades, trim, cabinet doors, 12v lights, 12v light switches, door locks, door catches, graphics, gas struts,. Rv window 16″ wide x 14″ tall with trim. We have the things that make rv experience more enjoyable. I would like to order a. Replacement window for my raptor was a little over $200. Our keystone rv parts and accessories are not just for repairs; We have a 2010 keystone laredo 302lt. Keystone buys windows in lots of several. Some one broke out one of the bedroom windows and broke in. Rv window 15″ wide x 24″ tall with trim.
from mromavolley.com
Our keystone rv parts and accessories are not just for repairs; If you're looking at a replacement window, then the dealer or keystone is your best bet. We have the things that make rv experience more enjoyable. We have a 2010 keystone laredo 302lt. Some easy fixes that you may be able to complete yourself include repairs to blinds & shades, trim, cabinet doors, 12v lights, 12v light switches, door locks, door catches, graphics, gas struts,. Keystone buys windows in lots of several. I would like to order a. Some one broke out one of the bedroom windows and broke in. Rv window 15″ wide x 24″ tall with trim. Replacement window for my raptor was a little over $200.
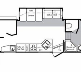
2007 Keystone Raptor 3712 Floor Plan Floor Roma
Keystone Raptor Replacement Windows Replacement window for my raptor was a little over $200. Rv window 16″ wide x 14″ tall with trim. I would like to order a. Replacement window for my raptor was a little over $200. Keystone buys windows in lots of several. Never replaced one but did the youtube thing and it was a piece of cake. Our keystone rv parts and accessories are not just for repairs; Rv window 15″ wide x 24″ tall with trim. We have a 2010 keystone laredo 302lt. Some one broke out one of the bedroom windows and broke in. We have the things that make rv experience more enjoyable. Some easy fixes that you may be able to complete yourself include repairs to blinds & shades, trim, cabinet doors, 12v lights, 12v light switches, door locks, door catches, graphics, gas struts,. If you're looking at a replacement window, then the dealer or keystone is your best bet.
From www.youtube.com
RV Overview Keystone Raptor YouTube Keystone Raptor Replacement Windows Rv window 15″ wide x 24″ tall with trim. I would like to order a. We have the things that make rv experience more enjoyable. Some easy fixes that you may be able to complete yourself include repairs to blinds & shades, trim, cabinet doors, 12v lights, 12v light switches, door locks, door catches, graphics, gas struts,. Replacement window for. Keystone Raptor Replacement Windows.
From www.rvguide.com
2008 Keystone Raptor 3600RL RV Guide Keystone Raptor Replacement Windows Some easy fixes that you may be able to complete yourself include repairs to blinds & shades, trim, cabinet doors, 12v lights, 12v light switches, door locks, door catches, graphics, gas struts,. Rv window 16″ wide x 14″ tall with trim. If you're looking at a replacement window, then the dealer or keystone is your best bet. We have the. Keystone Raptor Replacement Windows.
From viewfloor.co
2018 Keystone Raptor 425ts Floor Plan Viewfloor.co Keystone Raptor Replacement Windows We have a 2010 keystone laredo 302lt. We have the things that make rv experience more enjoyable. Rv window 15″ wide x 24″ tall with trim. Replacement window for my raptor was a little over $200. I would like to order a. Rv window 16″ wide x 14″ tall with trim. Keystone buys windows in lots of several. Never replaced. Keystone Raptor Replacement Windows.
From www.youtube.com
2023 Keystone Raptor 352 Modesto Sacramento San Jose Stockton Turlock Keystone Raptor Replacement Windows Replacement window for my raptor was a little over $200. Some one broke out one of the bedroom windows and broke in. Keystone buys windows in lots of several. Our keystone rv parts and accessories are not just for repairs; We have the things that make rv experience more enjoyable. I would like to order a. If you're looking at. Keystone Raptor Replacement Windows.
From www.rvusa.com
2020 Keystone Raptor 413 RV for Sale in Punta Gorda, FL 33955 335360 Keystone Raptor Replacement Windows Rv window 16″ wide x 14″ tall with trim. Replacement window for my raptor was a little over $200. If you're looking at a replacement window, then the dealer or keystone is your best bet. Never replaced one but did the youtube thing and it was a piece of cake. Some easy fixes that you may be able to complete. Keystone Raptor Replacement Windows.
From www.moundviewrv.com
SOLD 2010 Keystone Raptor 300MP FW Stk 3074 Keystone Raptor Replacement Windows Some one broke out one of the bedroom windows and broke in. Rv window 16″ wide x 14″ tall with trim. Some easy fixes that you may be able to complete yourself include repairs to blinds & shades, trim, cabinet doors, 12v lights, 12v light switches, door locks, door catches, graphics, gas struts,. Our keystone rv parts and accessories are. Keystone Raptor Replacement Windows.
From www.keystonewindow.com
Andersen Replacement Windows Keystone Window of Pennsylvania Keystone Raptor Replacement Windows We have the things that make rv experience more enjoyable. We have a 2010 keystone laredo 302lt. If you're looking at a replacement window, then the dealer or keystone is your best bet. I would like to order a. Some one broke out one of the bedroom windows and broke in. Keystone buys windows in lots of several. Our keystone. Keystone Raptor Replacement Windows.
From rvs.smartcarguide.com
Keystone Raptor 3602rl RVs for sale Keystone Raptor Replacement Windows Some one broke out one of the bedroom windows and broke in. Replacement window for my raptor was a little over $200. Keystone buys windows in lots of several. We have the things that make rv experience more enjoyable. I would like to order a. Some easy fixes that you may be able to complete yourself include repairs to blinds. Keystone Raptor Replacement Windows.
From www.ourlivelytribe.com
7 2010 Keystone Raptor Keystone Raptor Replacement Windows Our keystone rv parts and accessories are not just for repairs; Replacement window for my raptor was a little over $200. We have a 2010 keystone laredo 302lt. I would like to order a. Some one broke out one of the bedroom windows and broke in. Rv window 16″ wide x 14″ tall with trim. We have the things that. Keystone Raptor Replacement Windows.
From www.lodiparkandsell.com
RV for sale 2021 Keystone Raptor 356 Toy Hauler RP39621 39' in Lodi Keystone Raptor Replacement Windows Rv window 15″ wide x 24″ tall with trim. Never replaced one but did the youtube thing and it was a piece of cake. We have the things that make rv experience more enjoyable. Some one broke out one of the bedroom windows and broke in. Keystone buys windows in lots of several. Our keystone rv parts and accessories are. Keystone Raptor Replacement Windows.
From www.smartrvguide.com
Keystone Raptor 352 rvs for sale in California Keystone Raptor Replacement Windows If you're looking at a replacement window, then the dealer or keystone is your best bet. I would like to order a. Rv window 16″ wide x 14″ tall with trim. Rv window 15″ wide x 24″ tall with trim. We have a 2010 keystone laredo 302lt. Keystone buys windows in lots of several. Our keystone rv parts and accessories. Keystone Raptor Replacement Windows.
From www.rvguide.com
2011 Keystone Raptor 26FS RV Guide Keystone Raptor Replacement Windows Some one broke out one of the bedroom windows and broke in. Keystone buys windows in lots of several. Never replaced one but did the youtube thing and it was a piece of cake. Rv window 15″ wide x 24″ tall with trim. Our keystone rv parts and accessories are not just for repairs; I would like to order a.. Keystone Raptor Replacement Windows.
From www.rvtrader.com
Used 2021 Keystone Raptor in Lehighton, PA RV Trader Keystone Raptor Replacement Windows We have the things that make rv experience more enjoyable. If you're looking at a replacement window, then the dealer or keystone is your best bet. Some easy fixes that you may be able to complete yourself include repairs to blinds & shades, trim, cabinet doors, 12v lights, 12v light switches, door locks, door catches, graphics, gas struts,. I would. Keystone Raptor Replacement Windows.
From www.northtrailrv.com
2007 Keystone Raptor RP3712 101621 Keystone Raptor Replacement Windows I would like to order a. Never replaced one but did the youtube thing and it was a piece of cake. Replacement window for my raptor was a little over $200. Some one broke out one of the bedroom windows and broke in. Some easy fixes that you may be able to complete yourself include repairs to blinds & shades,. Keystone Raptor Replacement Windows.
From www.smartrvguide.com
Keystone Raptor 299mp RVs for sale Keystone Raptor Replacement Windows Never replaced one but did the youtube thing and it was a piece of cake. Our keystone rv parts and accessories are not just for repairs; Some one broke out one of the bedroom windows and broke in. Some easy fixes that you may be able to complete yourself include repairs to blinds & shades, trim, cabinet doors, 12v lights,. Keystone Raptor Replacement Windows.
From wowtutorial.org
2008 Keystone Raptor Toy Hauler Floor Plans Wow Blog Keystone Raptor Replacement Windows Rv window 16″ wide x 14″ tall with trim. Keystone buys windows in lots of several. Rv window 15″ wide x 24″ tall with trim. Replacement window for my raptor was a little over $200. Our keystone rv parts and accessories are not just for repairs; We have a 2010 keystone laredo 302lt. If you're looking at a replacement window,. Keystone Raptor Replacement Windows.
From www.scribd.com
2022 Keystone Raptor PDF Keystone Raptor Replacement Windows If you're looking at a replacement window, then the dealer or keystone is your best bet. I would like to order a. Rv window 16″ wide x 14″ tall with trim. Never replaced one but did the youtube thing and it was a piece of cake. Our keystone rv parts and accessories are not just for repairs; Rv window 15″. Keystone Raptor Replacement Windows.
From www.youtube.com
2010 Keystone Raptor 361LEV / Referral Auto Group YouTube Keystone Raptor Replacement Windows Rv window 16″ wide x 14″ tall with trim. Never replaced one but did the youtube thing and it was a piece of cake. If you're looking at a replacement window, then the dealer or keystone is your best bet. We have the things that make rv experience more enjoyable. I would like to order a. Replacement window for my. Keystone Raptor Replacement Windows.
From exoffjmgy.blob.core.windows.net
Keystone Raptor Replacement Decals at Janice Marcus blog Keystone Raptor Replacement Windows Never replaced one but did the youtube thing and it was a piece of cake. We have the things that make rv experience more enjoyable. Our keystone rv parts and accessories are not just for repairs; Some one broke out one of the bedroom windows and broke in. We have a 2010 keystone laredo 302lt. Rv window 15″ wide x. Keystone Raptor Replacement Windows.
From www.bigadventurerv.com
2012 Keystone Raptor 381LEV KR12006 Big Adventure RV in Hermitage Keystone Raptor Replacement Windows Rv window 15″ wide x 24″ tall with trim. We have a 2010 keystone laredo 302lt. Replacement window for my raptor was a little over $200. Never replaced one but did the youtube thing and it was a piece of cake. If you're looking at a replacement window, then the dealer or keystone is your best bet. Rv window 16″. Keystone Raptor Replacement Windows.
From www.smartrvguide.com
Keystone Raptor 365lev RVs for sale Keystone Raptor Replacement Windows Some one broke out one of the bedroom windows and broke in. We have a 2010 keystone laredo 302lt. I would like to order a. Replacement window for my raptor was a little over $200. Some easy fixes that you may be able to complete yourself include repairs to blinds & shades, trim, cabinet doors, 12v lights, 12v light switches,. Keystone Raptor Replacement Windows.
From rvglassrepairservices.com
Keystone Raptor 2011 RV Glass Repair Services Keystone Raptor Replacement Windows Rv window 16″ wide x 14″ tall with trim. I would like to order a. Replacement window for my raptor was a little over $200. If you're looking at a replacement window, then the dealer or keystone is your best bet. Some one broke out one of the bedroom windows and broke in. Rv window 15″ wide x 24″ tall. Keystone Raptor Replacement Windows.
From www.rvguide.com
2008 Keystone Raptor 3110TT RV Guide Keystone Raptor Replacement Windows Rv window 15″ wide x 24″ tall with trim. Some one broke out one of the bedroom windows and broke in. Replacement window for my raptor was a little over $200. Rv window 16″ wide x 14″ tall with trim. We have a 2010 keystone laredo 302lt. Keystone buys windows in lots of several. We have the things that make. Keystone Raptor Replacement Windows.
From rumble.com
2023 Keystone Raptor 431 2 Full bath fifth wheel toy hauler with Keystone Raptor Replacement Windows Rv window 16″ wide x 14″ tall with trim. We have the things that make rv experience more enjoyable. Keystone buys windows in lots of several. Rv window 15″ wide x 24″ tall with trim. Replacement window for my raptor was a little over $200. If you're looking at a replacement window, then the dealer or keystone is your best. Keystone Raptor Replacement Windows.
From arrkannrv.com
2022 KEYSTONE RAPTOR 352 Edmonton, AB Keystone Raptor Replacement Windows I would like to order a. Our keystone rv parts and accessories are not just for repairs; Some one broke out one of the bedroom windows and broke in. Never replaced one but did the youtube thing and it was a piece of cake. Replacement window for my raptor was a little over $200. We have the things that make. Keystone Raptor Replacement Windows.
From www.smartrvguide.com
2006 Keystone Raptor 3612ds RVs for sale Keystone Raptor Replacement Windows Rv window 15″ wide x 24″ tall with trim. We have a 2010 keystone laredo 302lt. Rv window 16″ wide x 14″ tall with trim. Replacement window for my raptor was a little over $200. Our keystone rv parts and accessories are not just for repairs; I would like to order a. Some one broke out one of the bedroom. Keystone Raptor Replacement Windows.
From www.smartrvguide.com
Keystone Raptor 425ts RVs for sale Keystone Raptor Replacement Windows If you're looking at a replacement window, then the dealer or keystone is your best bet. We have the things that make rv experience more enjoyable. Our keystone rv parts and accessories are not just for repairs; Never replaced one but did the youtube thing and it was a piece of cake. Keystone buys windows in lots of several. Replacement. Keystone Raptor Replacement Windows.
From www.youtube.com
Trading up to a 2015 Keystone Raptor 424TS... YouTube Keystone Raptor Replacement Windows Replacement window for my raptor was a little over $200. Rv window 15″ wide x 24″ tall with trim. We have a 2010 keystone laredo 302lt. We have the things that make rv experience more enjoyable. Some easy fixes that you may be able to complete yourself include repairs to blinds & shades, trim, cabinet doors, 12v lights, 12v light. Keystone Raptor Replacement Windows.
From mromavolley.com
2007 Keystone Raptor 3712 Floor Plan Floor Roma Keystone Raptor Replacement Windows Replacement window for my raptor was a little over $200. Keystone buys windows in lots of several. Never replaced one but did the youtube thing and it was a piece of cake. We have a 2010 keystone laredo 302lt. Rv window 15″ wide x 24″ tall with trim. Our keystone rv parts and accessories are not just for repairs; Some. Keystone Raptor Replacement Windows.
From www.smartrvguide.com
2008 Keystone Raptor RVs for sale Keystone Raptor Replacement Windows Replacement window for my raptor was a little over $200. Never replaced one but did the youtube thing and it was a piece of cake. We have the things that make rv experience more enjoyable. Keystone buys windows in lots of several. I would like to order a. We have a 2010 keystone laredo 302lt. Rv window 15″ wide x. Keystone Raptor Replacement Windows.
From www.rvguide.com
2014 Keystone Raptor 19FB RV Guide Keystone Raptor Replacement Windows Our keystone rv parts and accessories are not just for repairs; If you're looking at a replacement window, then the dealer or keystone is your best bet. I would like to order a. We have the things that make rv experience more enjoyable. Replacement window for my raptor was a little over $200. We have a 2010 keystone laredo 302lt.. Keystone Raptor Replacement Windows.
From europeanraptors.org
HighQuality Replacement Windows Enhancing Home Efficiency and Keystone Raptor Replacement Windows Keystone buys windows in lots of several. Our keystone rv parts and accessories are not just for repairs; I would like to order a. Some one broke out one of the bedroom windows and broke in. Some easy fixes that you may be able to complete yourself include repairs to blinds & shades, trim, cabinet doors, 12v lights, 12v light. Keystone Raptor Replacement Windows.
From www.smartrvguide.com
2010 Keystone Raptor 300mp RVs for sale Keystone Raptor Replacement Windows Never replaced one but did the youtube thing and it was a piece of cake. We have a 2010 keystone laredo 302lt. If you're looking at a replacement window, then the dealer or keystone is your best bet. Some one broke out one of the bedroom windows and broke in. Our keystone rv parts and accessories are not just for. Keystone Raptor Replacement Windows.
From recreationalvehicles.info
2016 Keystone RV Raptor Brochure Keystone Raptor Replacement Windows Keystone buys windows in lots of several. Replacement window for my raptor was a little over $200. Rv window 15″ wide x 24″ tall with trim. Never replaced one but did the youtube thing and it was a piece of cake. I would like to order a. Our keystone rv parts and accessories are not just for repairs; Rv window. Keystone Raptor Replacement Windows.
From www.smartrvguide.com
Keystone Raptor 398ts RVs for sale Keystone Raptor Replacement Windows Rv window 15″ wide x 24″ tall with trim. I would like to order a. Rv window 16″ wide x 14″ tall with trim. Never replaced one but did the youtube thing and it was a piece of cake. We have the things that make rv experience more enjoyable. If you're looking at a replacement window, then the dealer or. Keystone Raptor Replacement Windows.