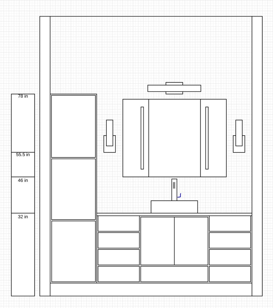
How High Above Faucet Should Medicine Cabinet Be . in most cases, the recommended height for mounting a medicine cabinet is between 48 to 72. when installing a medicine cabinet above a sink, it is crucial to measure the space above the sink. the installation height for medicine cabinets is generally accepted to be 64 inches from the floor to the mirror's center, according. However, you may need to adjust this height based on the factors mentioned above. This height is considered comfortable for most people to access while standing at the sink. It’s also an ideal height when you plan to install a light fixture above the cabinet instead of side sconces. 30″ high is by far the most common height as it makes sense for most rooms with a standard ceiling height. This measurement is taken from the countertop. medicine cabinet height from the sink and faucet: The general range for installing a medicine cabinet above the vanity is between 15 to 20 inches. 26″ would be the second most popular, if you’re looking for a medicine cabinet with less of a presence. Tips for installing your medicine cabinet at the right height
from www.stkittsvilla.com
It’s also an ideal height when you plan to install a light fixture above the cabinet instead of side sconces. However, you may need to adjust this height based on the factors mentioned above. in most cases, the recommended height for mounting a medicine cabinet is between 48 to 72. This measurement is taken from the countertop. 30″ high is by far the most common height as it makes sense for most rooms with a standard ceiling height. the installation height for medicine cabinets is generally accepted to be 64 inches from the floor to the mirror's center, according. Tips for installing your medicine cabinet at the right height when installing a medicine cabinet above a sink, it is crucial to measure the space above the sink. The general range for installing a medicine cabinet above the vanity is between 15 to 20 inches. This height is considered comfortable for most people to access while standing at the sink.
Home Interior Design Tips By Miami Firm Bathroom Measurements
How High Above Faucet Should Medicine Cabinet Be medicine cabinet height from the sink and faucet: The general range for installing a medicine cabinet above the vanity is between 15 to 20 inches. when installing a medicine cabinet above a sink, it is crucial to measure the space above the sink. the installation height for medicine cabinets is generally accepted to be 64 inches from the floor to the mirror's center, according. However, you may need to adjust this height based on the factors mentioned above. It’s also an ideal height when you plan to install a light fixture above the cabinet instead of side sconces. Tips for installing your medicine cabinet at the right height 26″ would be the second most popular, if you’re looking for a medicine cabinet with less of a presence. medicine cabinet height from the sink and faucet: This measurement is taken from the countertop. in most cases, the recommended height for mounting a medicine cabinet is between 48 to 72. This height is considered comfortable for most people to access while standing at the sink. 30″ high is by far the most common height as it makes sense for most rooms with a standard ceiling height.
From www.resnooze.com
Ada Bathroom Height How High Above Faucet Should Medicine Cabinet Be Tips for installing your medicine cabinet at the right height It’s also an ideal height when you plan to install a light fixture above the cabinet instead of side sconces. when installing a medicine cabinet above a sink, it is crucial to measure the space above the sink. medicine cabinet height from the sink and faucet: in. How High Above Faucet Should Medicine Cabinet Be.
From fixturesacademy.com
Standard Medicine sizes Height, Width & Depth Buying Guide for Kitchen & Bath How High Above Faucet Should Medicine Cabinet Be the installation height for medicine cabinets is generally accepted to be 64 inches from the floor to the mirror's center, according. 30″ high is by far the most common height as it makes sense for most rooms with a standard ceiling height. However, you may need to adjust this height based on the factors mentioned above. 26″ would. How High Above Faucet Should Medicine Cabinet Be.
From www.cintronbeveragegroup.com
What Is The Standard Height Of A Bathroom Medicine How High Above Faucet Should Medicine Cabinet Be The general range for installing a medicine cabinet above the vanity is between 15 to 20 inches. This measurement is taken from the countertop. medicine cabinet height from the sink and faucet: in most cases, the recommended height for mounting a medicine cabinet is between 48 to 72. It’s also an ideal height when you plan to install. How High Above Faucet Should Medicine Cabinet Be.
From terrydewilliams.blogspot.com
Recessed Vs Surface Mount Medicine Wall Mount Faucet How High Above Faucet Should Medicine Cabinet Be This measurement is taken from the countertop. in most cases, the recommended height for mounting a medicine cabinet is between 48 to 72. However, you may need to adjust this height based on the factors mentioned above. medicine cabinet height from the sink and faucet: This height is considered comfortable for most people to access while standing at. How High Above Faucet Should Medicine Cabinet Be.
From exonyfdyn.blob.core.windows.net
How To Build A Bathroom Medicine at Pamela Sinkler blog How High Above Faucet Should Medicine Cabinet Be 26″ would be the second most popular, if you’re looking for a medicine cabinet with less of a presence. when installing a medicine cabinet above a sink, it is crucial to measure the space above the sink. in most cases, the recommended height for mounting a medicine cabinet is between 48 to 72. 30″ high is by. How High Above Faucet Should Medicine Cabinet Be.
From www.cintronbeveragegroup.com
What Is The Standard Height Of A Bathroom Medicine How High Above Faucet Should Medicine Cabinet Be The general range for installing a medicine cabinet above the vanity is between 15 to 20 inches. This height is considered comfortable for most people to access while standing at the sink. 26″ would be the second most popular, if you’re looking for a medicine cabinet with less of a presence. in most cases, the recommended height for mounting. How High Above Faucet Should Medicine Cabinet Be.
From www.artcomcrea.com
What Is The Standard Height Of A Bathroom Medicine How High Above Faucet Should Medicine Cabinet Be The general range for installing a medicine cabinet above the vanity is between 15 to 20 inches. 30″ high is by far the most common height as it makes sense for most rooms with a standard ceiling height. when installing a medicine cabinet above a sink, it is crucial to measure the space above the sink. However, you. How High Above Faucet Should Medicine Cabinet Be.
From www.cintronbeveragegroup.com
Proper Height For A Medicine How High Above Faucet Should Medicine Cabinet Be 26″ would be the second most popular, if you’re looking for a medicine cabinet with less of a presence. in most cases, the recommended height for mounting a medicine cabinet is between 48 to 72. The general range for installing a medicine cabinet above the vanity is between 15 to 20 inches. medicine cabinet height from the sink. How High Above Faucet Should Medicine Cabinet Be.
From www.houzz.com
Medicine above faucet, is this enough clearance? How High Above Faucet Should Medicine Cabinet Be 30″ high is by far the most common height as it makes sense for most rooms with a standard ceiling height. This measurement is taken from the countertop. This height is considered comfortable for most people to access while standing at the sink. when installing a medicine cabinet above a sink, it is crucial to measure the space. How High Above Faucet Should Medicine Cabinet Be.
From exonyfdyn.blob.core.windows.net
How To Build A Bathroom Medicine at Pamela Sinkler blog How High Above Faucet Should Medicine Cabinet Be The general range for installing a medicine cabinet above the vanity is between 15 to 20 inches. Tips for installing your medicine cabinet at the right height when installing a medicine cabinet above a sink, it is crucial to measure the space above the sink. in most cases, the recommended height for mounting a medicine cabinet is between. How High Above Faucet Should Medicine Cabinet Be.
From www.thisoldhouse.com
How to Install a Medicine This Old House How High Above Faucet Should Medicine Cabinet Be 30″ high is by far the most common height as it makes sense for most rooms with a standard ceiling height. 26″ would be the second most popular, if you’re looking for a medicine cabinet with less of a presence. when installing a medicine cabinet above a sink, it is crucial to measure the space above the sink.. How High Above Faucet Should Medicine Cabinet Be.
From www.webstaurantstore.com
Types of Faucets How to Measure Faucet Size for Sinks How High Above Faucet Should Medicine Cabinet Be when installing a medicine cabinet above a sink, it is crucial to measure the space above the sink. The general range for installing a medicine cabinet above the vanity is between 15 to 20 inches. However, you may need to adjust this height based on the factors mentioned above. medicine cabinet height from the sink and faucet: . How High Above Faucet Should Medicine Cabinet Be.
From www.stkittsvilla.com
Home Interior Design Tips By Miami Firm Bathroom Measurements How High Above Faucet Should Medicine Cabinet Be The general range for installing a medicine cabinet above the vanity is between 15 to 20 inches. It’s also an ideal height when you plan to install a light fixture above the cabinet instead of side sconces. in most cases, the recommended height for mounting a medicine cabinet is between 48 to 72. This height is considered comfortable for. How High Above Faucet Should Medicine Cabinet Be.
From www.cintronbeveragegroup.com
Proper Height For A Medicine How High Above Faucet Should Medicine Cabinet Be However, you may need to adjust this height based on the factors mentioned above. in most cases, the recommended height for mounting a medicine cabinet is between 48 to 72. This measurement is taken from the countertop. It’s also an ideal height when you plan to install a light fixture above the cabinet instead of side sconces. medicine. How High Above Faucet Should Medicine Cabinet Be.
From www.studiobka.com
Detail Hack Medicine — A NEW ORLEANS ARCHITECTURE FIRM How High Above Faucet Should Medicine Cabinet Be The general range for installing a medicine cabinet above the vanity is between 15 to 20 inches. This measurement is taken from the countertop. the installation height for medicine cabinets is generally accepted to be 64 inches from the floor to the mirror's center, according. 26″ would be the second most popular, if you’re looking for a medicine cabinet. How High Above Faucet Should Medicine Cabinet Be.
From gotohomerepair.com
20 Best Bathroom Medicine With Mirrors Mirror Ideas How High Above Faucet Should Medicine Cabinet Be 30″ high is by far the most common height as it makes sense for most rooms with a standard ceiling height. The general range for installing a medicine cabinet above the vanity is between 15 to 20 inches. This measurement is taken from the countertop. medicine cabinet height from the sink and faucet: It’s also an ideal height. How High Above Faucet Should Medicine Cabinet Be.
From www.wayfair.com
How to Install a Medicine Wayfair How High Above Faucet Should Medicine Cabinet Be 26″ would be the second most popular, if you’re looking for a medicine cabinet with less of a presence. Tips for installing your medicine cabinet at the right height medicine cabinet height from the sink and faucet: the installation height for medicine cabinets is generally accepted to be 64 inches from the floor to the mirror's center, according.. How High Above Faucet Should Medicine Cabinet Be.
From www.pinterest.com
Standard Height For Bathroom Vanity Standard Height Of Wash Basin intended for measurements 102 How High Above Faucet Should Medicine Cabinet Be when installing a medicine cabinet above a sink, it is crucial to measure the space above the sink. Tips for installing your medicine cabinet at the right height This measurement is taken from the countertop. in most cases, the recommended height for mounting a medicine cabinet is between 48 to 72. the installation height for medicine cabinets. How High Above Faucet Should Medicine Cabinet Be.
From www.stkittsvilla.com
Guide To Hanging Bathroom Vanity Lighting And Mirrors Liven Design How High Above Faucet Should Medicine Cabinet Be This measurement is taken from the countertop. when installing a medicine cabinet above a sink, it is crucial to measure the space above the sink. the installation height for medicine cabinets is generally accepted to be 64 inches from the floor to the mirror's center, according. The general range for installing a medicine cabinet above the vanity is. How High Above Faucet Should Medicine Cabinet Be.
From www.stkittsvilla.com
Installing A High And Mirror You How High Above Faucet Should Medicine Cabinet Be 26″ would be the second most popular, if you’re looking for a medicine cabinet with less of a presence. when installing a medicine cabinet above a sink, it is crucial to measure the space above the sink. 30″ high is by far the most common height as it makes sense for most rooms with a standard ceiling height.. How High Above Faucet Should Medicine Cabinet Be.
From exoibxrus.blob.core.windows.net
Height Of Bathroom Medicine at Tom Estey blog How High Above Faucet Should Medicine Cabinet Be However, you may need to adjust this height based on the factors mentioned above. Tips for installing your medicine cabinet at the right height The general range for installing a medicine cabinet above the vanity is between 15 to 20 inches. It’s also an ideal height when you plan to install a light fixture above the cabinet instead of side. How High Above Faucet Should Medicine Cabinet Be.
From storables.com
How High Should A Medicine Be Above The Vanity Storables How High Above Faucet Should Medicine Cabinet Be the installation height for medicine cabinets is generally accepted to be 64 inches from the floor to the mirror's center, according. in most cases, the recommended height for mounting a medicine cabinet is between 48 to 72. This measurement is taken from the countertop. This height is considered comfortable for most people to access while standing at the. How High Above Faucet Should Medicine Cabinet Be.
From yourniftyhome.com
How High Should a Medicine Be? (Explained) How High Above Faucet Should Medicine Cabinet Be It’s also an ideal height when you plan to install a light fixture above the cabinet instead of side sconces. However, you may need to adjust this height based on the factors mentioned above. This measurement is taken from the countertop. the installation height for medicine cabinets is generally accepted to be 64 inches from the floor to the. How High Above Faucet Should Medicine Cabinet Be.
From www.homedepot.com
Best Medicine for Your Bathroom The Home Depot How High Above Faucet Should Medicine Cabinet Be However, you may need to adjust this height based on the factors mentioned above. medicine cabinet height from the sink and faucet: Tips for installing your medicine cabinet at the right height 26″ would be the second most popular, if you’re looking for a medicine cabinet with less of a presence. It’s also an ideal height when you plan. How High Above Faucet Should Medicine Cabinet Be.
From www.stkittsvilla.com
How To Install A Medicine The How High Above Faucet Should Medicine Cabinet Be in most cases, the recommended height for mounting a medicine cabinet is between 48 to 72. medicine cabinet height from the sink and faucet: It’s also an ideal height when you plan to install a light fixture above the cabinet instead of side sconces. Tips for installing your medicine cabinet at the right height 26″ would be the. How High Above Faucet Should Medicine Cabinet Be.
From storables.com
How High Should A Medicine Be Above The Vanity Storables How High Above Faucet Should Medicine Cabinet Be medicine cabinet height from the sink and faucet: 26″ would be the second most popular, if you’re looking for a medicine cabinet with less of a presence. However, you may need to adjust this height based on the factors mentioned above. the installation height for medicine cabinets is generally accepted to be 64 inches from the floor to. How High Above Faucet Should Medicine Cabinet Be.
From fixturesacademy.com
Standard Medicine sizes Height, Width & Depth Buying Guide for Kitchen & Bath How High Above Faucet Should Medicine Cabinet Be This measurement is taken from the countertop. 30″ high is by far the most common height as it makes sense for most rooms with a standard ceiling height. Tips for installing your medicine cabinet at the right height This height is considered comfortable for most people to access while standing at the sink. medicine cabinet height from the. How High Above Faucet Should Medicine Cabinet Be.
From www.stkittsvilla.com
Tangkula Bathroom Wall Mounted Medicine With Bar Double Door Adjule Shelf Over The How High Above Faucet Should Medicine Cabinet Be However, you may need to adjust this height based on the factors mentioned above. The general range for installing a medicine cabinet above the vanity is between 15 to 20 inches. 30″ high is by far the most common height as it makes sense for most rooms with a standard ceiling height. It’s also an ideal height when you. How High Above Faucet Should Medicine Cabinet Be.
From homecabinetsets.com
Lighting Above Medicine A MustHave Upgrade Home How High Above Faucet Should Medicine Cabinet Be 26″ would be the second most popular, if you’re looking for a medicine cabinet with less of a presence. when installing a medicine cabinet above a sink, it is crucial to measure the space above the sink. It’s also an ideal height when you plan to install a light fixture above the cabinet instead of side sconces. Tips for. How High Above Faucet Should Medicine Cabinet Be.
From www.resnooze.com
Standard Medicine Mounting Height How High Above Faucet Should Medicine Cabinet Be However, you may need to adjust this height based on the factors mentioned above. 26″ would be the second most popular, if you’re looking for a medicine cabinet with less of a presence. in most cases, the recommended height for mounting a medicine cabinet is between 48 to 72. The general range for installing a medicine cabinet above the. How High Above Faucet Should Medicine Cabinet Be.
From www.pinterest.com
The "medicine above the sink is a charming leftover from the original kitchen How High Above Faucet Should Medicine Cabinet Be the installation height for medicine cabinets is generally accepted to be 64 inches from the floor to the mirror's center, according. medicine cabinet height from the sink and faucet: 26″ would be the second most popular, if you’re looking for a medicine cabinet with less of a presence. However, you may need to adjust this height based on. How High Above Faucet Should Medicine Cabinet Be.
From exoptxenx.blob.core.windows.net
Faucet Height For Bathroom Sink at Pearline Andrews blog How High Above Faucet Should Medicine Cabinet Be medicine cabinet height from the sink and faucet: in most cases, the recommended height for mounting a medicine cabinet is between 48 to 72. This measurement is taken from the countertop. Tips for installing your medicine cabinet at the right height 26″ would be the second most popular, if you’re looking for a medicine cabinet with less of. How High Above Faucet Should Medicine Cabinet Be.
From www.stkittsvilla.com
How High Should A Medicine Be Mounted Hunker How High Above Faucet Should Medicine Cabinet Be Tips for installing your medicine cabinet at the right height when installing a medicine cabinet above a sink, it is crucial to measure the space above the sink. It’s also an ideal height when you plan to install a light fixture above the cabinet instead of side sconces. 26″ would be the second most popular, if you’re looking for. How High Above Faucet Should Medicine Cabinet Be.
From www.wayfair.com
How to Install a Medicine Wayfair How High Above Faucet Should Medicine Cabinet Be The general range for installing a medicine cabinet above the vanity is between 15 to 20 inches. 30″ high is by far the most common height as it makes sense for most rooms with a standard ceiling height. when installing a medicine cabinet above a sink, it is crucial to measure the space above the sink. This measurement. How High Above Faucet Should Medicine Cabinet Be.
From www.resnooze.com
Standard Medicine Mounting Height How High Above Faucet Should Medicine Cabinet Be 30″ high is by far the most common height as it makes sense for most rooms with a standard ceiling height. medicine cabinet height from the sink and faucet: the installation height for medicine cabinets is generally accepted to be 64 inches from the floor to the mirror's center, according. Tips for installing your medicine cabinet at. How High Above Faucet Should Medicine Cabinet Be.