Rose Realty Rental . Properties to rent in greater london. Properties to rent | jack rose estates. Also english country properties (and a selection outside the u.k.). 1 bedroom flat for rent in rose and crown yard, london, sw1y for £3,683 pcm. 17 properties found in your search. 1st floor one bedroom flat to rent in modern development on loudoun road near the junction of alexandra road with easy access to. Flats, apartments and houses in to rent in london. This property for rent at beautiful duplex apartment in chelsea, london, england sw3, united kingdomis a apartments with 3. Anderson rose, residential property estate agents specialising in sales, lettings, property management, new homes & land acquisition
from www.youtube.com
This property for rent at beautiful duplex apartment in chelsea, london, england sw3, united kingdomis a apartments with 3. 17 properties found in your search. Properties to rent | jack rose estates. Anderson rose, residential property estate agents specialising in sales, lettings, property management, new homes & land acquisition Flats, apartments and houses in to rent in london. Also english country properties (and a selection outside the u.k.). Properties to rent in greater london. 1 bedroom flat for rent in rose and crown yard, london, sw1y for £3,683 pcm. 1st floor one bedroom flat to rent in modern development on loudoun road near the junction of alexandra road with easy access to.
Rose Realty Home For Sale 701 Rand Road, Owensboro, KY YouTube
Rose Realty Rental Anderson rose, residential property estate agents specialising in sales, lettings, property management, new homes & land acquisition Flats, apartments and houses in to rent in london. Properties to rent in greater london. Anderson rose, residential property estate agents specialising in sales, lettings, property management, new homes & land acquisition Properties to rent | jack rose estates. This property for rent at beautiful duplex apartment in chelsea, london, england sw3, united kingdomis a apartments with 3. 1 bedroom flat for rent in rose and crown yard, london, sw1y for £3,683 pcm. 17 properties found in your search. 1st floor one bedroom flat to rent in modern development on loudoun road near the junction of alexandra road with easy access to. Also english country properties (and a selection outside the u.k.).
From www.gracerosehomes.com
Real Estate Agency Grace Rose Realty New York Rose Realty Rental 17 properties found in your search. This property for rent at beautiful duplex apartment in chelsea, london, england sw3, united kingdomis a apartments with 3. Anderson rose, residential property estate agents specialising in sales, lettings, property management, new homes & land acquisition Properties to rent | jack rose estates. Also english country properties (and a selection outside the u.k.). 1st. Rose Realty Rental.
From www.linkedin.com
Betsy Garant Realtor Rose Realty LinkedIn Rose Realty Rental Anderson rose, residential property estate agents specialising in sales, lettings, property management, new homes & land acquisition Flats, apartments and houses in to rent in london. This property for rent at beautiful duplex apartment in chelsea, london, england sw3, united kingdomis a apartments with 3. Properties to rent in greater london. 1 bedroom flat for rent in rose and crown. Rose Realty Rental.
From rosedevelopment.gr
Home Rose Development Rose Realty Rental 1st floor one bedroom flat to rent in modern development on loudoun road near the junction of alexandra road with easy access to. Anderson rose, residential property estate agents specialising in sales, lettings, property management, new homes & land acquisition Properties to rent in greater london. 1 bedroom flat for rent in rose and crown yard, london, sw1y for £3,683. Rose Realty Rental.
From www.roserentaldept.com
Villa 209 Murrells Inlet, SC Rose Real Estate Rental Department Rose Realty Rental This property for rent at beautiful duplex apartment in chelsea, london, england sw3, united kingdomis a apartments with 3. 1st floor one bedroom flat to rent in modern development on loudoun road near the junction of alexandra road with easy access to. Anderson rose, residential property estate agents specialising in sales, lettings, property management, new homes & land acquisition 1. Rose Realty Rental.
From www.businessyab.com
La Rosa Realty Hunters Creek 3032 Dyer Blvd, FL, Kissimmee, FL 34741 Rose Realty Rental 1st floor one bedroom flat to rent in modern development on loudoun road near the junction of alexandra road with easy access to. 17 properties found in your search. Flats, apartments and houses in to rent in london. Anderson rose, residential property estate agents specialising in sales, lettings, property management, new homes & land acquisition 1 bedroom flat for rent. Rose Realty Rental.
From www.redrockrealty.net
Desert Rose Bedroom 2 Sedona Vacation Rental Red Rock Realty Rose Realty Rental Anderson rose, residential property estate agents specialising in sales, lettings, property management, new homes & land acquisition 1 bedroom flat for rent in rose and crown yard, london, sw1y for £3,683 pcm. Flats, apartments and houses in to rent in london. Also english country properties (and a selection outside the u.k.). This property for rent at beautiful duplex apartment in. Rose Realty Rental.
From www.facebook.com
The Rose Team at Keller Williams Select Realty Apple Valley MN Rose Realty Rental Properties to rent in greater london. 1st floor one bedroom flat to rent in modern development on loudoun road near the junction of alexandra road with easy access to. Properties to rent | jack rose estates. 17 properties found in your search. This property for rent at beautiful duplex apartment in chelsea, london, england sw3, united kingdomis a apartments with. Rose Realty Rental.
From www.facebook.com
Rose Group Realty Home Rose Realty Rental 1 bedroom flat for rent in rose and crown yard, london, sw1y for £3,683 pcm. Flats, apartments and houses in to rent in london. 17 properties found in your search. Also english country properties (and a selection outside the u.k.). This property for rent at beautiful duplex apartment in chelsea, london, england sw3, united kingdomis a apartments with 3. Properties. Rose Realty Rental.
From bethroseauction.com
About Beth Rose Real Estate and Auctions Rose Realty Rental 17 properties found in your search. Also english country properties (and a selection outside the u.k.). Anderson rose, residential property estate agents specialising in sales, lettings, property management, new homes & land acquisition Properties to rent | jack rose estates. 1st floor one bedroom flat to rent in modern development on loudoun road near the junction of alexandra road with. Rose Realty Rental.
From compassroserealestate.com
Nantucket Rentals & Real Estate Compass Rose Real Estate, Inc. Rose Realty Rental 1 bedroom flat for rent in rose and crown yard, london, sw1y for £3,683 pcm. Properties to rent in greater london. Flats, apartments and houses in to rent in london. 17 properties found in your search. Properties to rent | jack rose estates. Also english country properties (and a selection outside the u.k.). This property for rent at beautiful duplex. Rose Realty Rental.
From www.pinterest.com
Yellow Rose Realty Bryson City Cabin Rental Bryson city cabin Rose Realty Rental Properties to rent | jack rose estates. This property for rent at beautiful duplex apartment in chelsea, london, england sw3, united kingdomis a apartments with 3. 1 bedroom flat for rent in rose and crown yard, london, sw1y for £3,683 pcm. Also english country properties (and a selection outside the u.k.). Flats, apartments and houses in to rent in london.. Rose Realty Rental.
From rosarealty.net
Rosa Realty (RR) The Most Complete Rental Experience Rose Realty Rental 17 properties found in your search. 1st floor one bedroom flat to rent in modern development on loudoun road near the junction of alexandra road with easy access to. Properties to rent | jack rose estates. Flats, apartments and houses in to rent in london. This property for rent at beautiful duplex apartment in chelsea, london, england sw3, united kingdomis. Rose Realty Rental.
From www.arkansashousesforsale.com
April 2024 Market Report Amber Ahrent REALTOR® Compass Rose Realty Rose Realty Rental 1st floor one bedroom flat to rent in modern development on loudoun road near the junction of alexandra road with easy access to. Properties to rent in greater london. This property for rent at beautiful duplex apartment in chelsea, london, england sw3, united kingdomis a apartments with 3. 17 properties found in your search. Flats, apartments and houses in to. Rose Realty Rental.
From rentals.dolphinrealtyhatteras.com
DUNE ROSE Dolphin Realty, Inc. Rose Realty Rental 17 properties found in your search. 1 bedroom flat for rent in rose and crown yard, london, sw1y for £3,683 pcm. Anderson rose, residential property estate agents specialising in sales, lettings, property management, new homes & land acquisition Flats, apartments and houses in to rent in london. 1st floor one bedroom flat to rent in modern development on loudoun road. Rose Realty Rental.
From www.edistorealty.com
Beach Rose Cottage Edisto Realty Rose Realty Rental 1st floor one bedroom flat to rent in modern development on loudoun road near the junction of alexandra road with easy access to. Flats, apartments and houses in to rent in london. Properties to rent in greater london. Also english country properties (and a selection outside the u.k.). 1 bedroom flat for rent in rose and crown yard, london, sw1y. Rose Realty Rental.
From kenrose.com
Recently Leased Rose Realty Rose Realty Rental Properties to rent | jack rose estates. Flats, apartments and houses in to rent in london. Anderson rose, residential property estate agents specialising in sales, lettings, property management, new homes & land acquisition 1 bedroom flat for rent in rose and crown yard, london, sw1y for £3,683 pcm. This property for rent at beautiful duplex apartment in chelsea, london, england. Rose Realty Rental.
From www.facebook.com
Rose Real Estate Vacation Rentals, Surfside Beach SC Surfside Beach SC Rose Realty Rental This property for rent at beautiful duplex apartment in chelsea, london, england sw3, united kingdomis a apartments with 3. Anderson rose, residential property estate agents specialising in sales, lettings, property management, new homes & land acquisition Properties to rent in greater london. Flats, apartments and houses in to rent in london. Also english country properties (and a selection outside the. Rose Realty Rental.
From www.flickr.com
Rose RealtySecurities Building, Omaha, NE (2) **Rose Real… Flickr Rose Realty Rental Flats, apartments and houses in to rent in london. Anderson rose, residential property estate agents specialising in sales, lettings, property management, new homes & land acquisition Properties to rent | jack rose estates. Also english country properties (and a selection outside the u.k.). 17 properties found in your search. 1st floor one bedroom flat to rent in modern development on. Rose Realty Rental.
From www.youtube.com
The Rose Realty Team Christmas Message YouTube Rose Realty Rental Also english country properties (and a selection outside the u.k.). 17 properties found in your search. Flats, apartments and houses in to rent in london. Anderson rose, residential property estate agents specialising in sales, lettings, property management, new homes & land acquisition Properties to rent | jack rose estates. Properties to rent in greater london. 1 bedroom flat for rent. Rose Realty Rental.
From www.mountainroserealty.co
Today’s Housing Market Has Only Half the Usual Inventory A blog by Rose Realty Rental Properties to rent | jack rose estates. Properties to rent in greater london. Anderson rose, residential property estate agents specialising in sales, lettings, property management, new homes & land acquisition 17 properties found in your search. Flats, apartments and houses in to rent in london. 1st floor one bedroom flat to rent in modern development on loudoun road near the. Rose Realty Rental.
From rentals.dolphinrealtyhatteras.com
DUNE ROSE Dolphin Realty, Inc. Rose Realty Rental Flats, apartments and houses in to rent in london. Anderson rose, residential property estate agents specialising in sales, lettings, property management, new homes & land acquisition This property for rent at beautiful duplex apartment in chelsea, london, england sw3, united kingdomis a apartments with 3. 1st floor one bedroom flat to rent in modern development on loudoun road near the. Rose Realty Rental.
From www.redrosewealth.com
Home Red Rose Realty Rose Realty Rental 1 bedroom flat for rent in rose and crown yard, london, sw1y for £3,683 pcm. Also english country properties (and a selection outside the u.k.). 1st floor one bedroom flat to rent in modern development on loudoun road near the junction of alexandra road with easy access to. This property for rent at beautiful duplex apartment in chelsea, london, england. Rose Realty Rental.
From www.laerrealty.com
Rose Homes LAER Realty Partners LAER Realty Partners Rose Realty Rental This property for rent at beautiful duplex apartment in chelsea, london, england sw3, united kingdomis a apartments with 3. Anderson rose, residential property estate agents specialising in sales, lettings, property management, new homes & land acquisition Properties to rent in greater london. Properties to rent | jack rose estates. 1 bedroom flat for rent in rose and crown yard, london,. Rose Realty Rental.
From rentals.dolphinrealtyhatteras.com
DUNE ROSE Dolphin Realty, Inc. Rose Realty Rental 1 bedroom flat for rent in rose and crown yard, london, sw1y for £3,683 pcm. 1st floor one bedroom flat to rent in modern development on loudoun road near the junction of alexandra road with easy access to. 17 properties found in your search. Also english country properties (and a selection outside the u.k.). This property for rent at beautiful. Rose Realty Rental.
From www.flickr.com
Rose RealtySecurities Building, Omaha, NE **Rose RealtyS… Flickr Rose Realty Rental Properties to rent | jack rose estates. This property for rent at beautiful duplex apartment in chelsea, london, england sw3, united kingdomis a apartments with 3. Also english country properties (and a selection outside the u.k.). Properties to rent in greater london. Flats, apartments and houses in to rent in london. 1st floor one bedroom flat to rent in modern. Rose Realty Rental.
From activerain.com
The Rose Realty Team Named D Magazine Top Team Rose Realty Rental 1st floor one bedroom flat to rent in modern development on loudoun road near the junction of alexandra road with easy access to. Properties to rent in greater london. Properties to rent | jack rose estates. 1 bedroom flat for rent in rose and crown yard, london, sw1y for £3,683 pcm. Flats, apartments and houses in to rent in london.. Rose Realty Rental.
From www.youtube.com
Rose Realty Home For Sale 701 Rand Road, Owensboro, KY YouTube Rose Realty Rental Properties to rent | jack rose estates. 1 bedroom flat for rent in rose and crown yard, london, sw1y for £3,683 pcm. 17 properties found in your search. Anderson rose, residential property estate agents specialising in sales, lettings, property management, new homes & land acquisition This property for rent at beautiful duplex apartment in chelsea, london, england sw3, united kingdomis. Rose Realty Rental.
From b-m.facebook.com
Rose Realty Inc Facebook Rose Realty Rental Flats, apartments and houses in to rent in london. Properties to rent in greater london. Anderson rose, residential property estate agents specialising in sales, lettings, property management, new homes & land acquisition Properties to rent | jack rose estates. 1 bedroom flat for rent in rose and crown yard, london, sw1y for £3,683 pcm. 17 properties found in your search.. Rose Realty Rental.
From www.facebook.com
Rose Realty Home Rose Realty Rental 17 properties found in your search. 1 bedroom flat for rent in rose and crown yard, london, sw1y for £3,683 pcm. Also english country properties (and a selection outside the u.k.). Properties to rent in greater london. This property for rent at beautiful duplex apartment in chelsea, london, england sw3, united kingdomis a apartments with 3. Flats, apartments and houses. Rose Realty Rental.
From www.facebook.com
Rose Realty Home Rose Realty Rental 1st floor one bedroom flat to rent in modern development on loudoun road near the junction of alexandra road with easy access to. Also english country properties (and a selection outside the u.k.). Properties to rent | jack rose estates. 17 properties found in your search. Properties to rent in greater london. 1 bedroom flat for rent in rose and. Rose Realty Rental.
From www.linkedin.com
Compass Rose Realty, LLC on LinkedIn compassroserealty Rose Realty Rental Properties to rent in greater london. This property for rent at beautiful duplex apartment in chelsea, london, england sw3, united kingdomis a apartments with 3. Also english country properties (and a selection outside the u.k.). 1st floor one bedroom flat to rent in modern development on loudoun road near the junction of alexandra road with easy access to. Anderson rose,. Rose Realty Rental.
From www.facebook.com
Rose Real Estate Group Westfield IN Rose Realty Rental 1st floor one bedroom flat to rent in modern development on loudoun road near the junction of alexandra road with easy access to. This property for rent at beautiful duplex apartment in chelsea, london, england sw3, united kingdomis a apartments with 3. Properties to rent in greater london. Properties to rent | jack rose estates. Anderson rose, residential property estate. Rose Realty Rental.
From rentals.dolphinrealtyhatteras.com
DUNE ROSE Dolphin Realty, Inc. Rose Realty Rental 1 bedroom flat for rent in rose and crown yard, london, sw1y for £3,683 pcm. This property for rent at beautiful duplex apartment in chelsea, london, england sw3, united kingdomis a apartments with 3. Properties to rent in greater london. Flats, apartments and houses in to rent in london. Properties to rent | jack rose estates. 1st floor one bedroom. Rose Realty Rental.
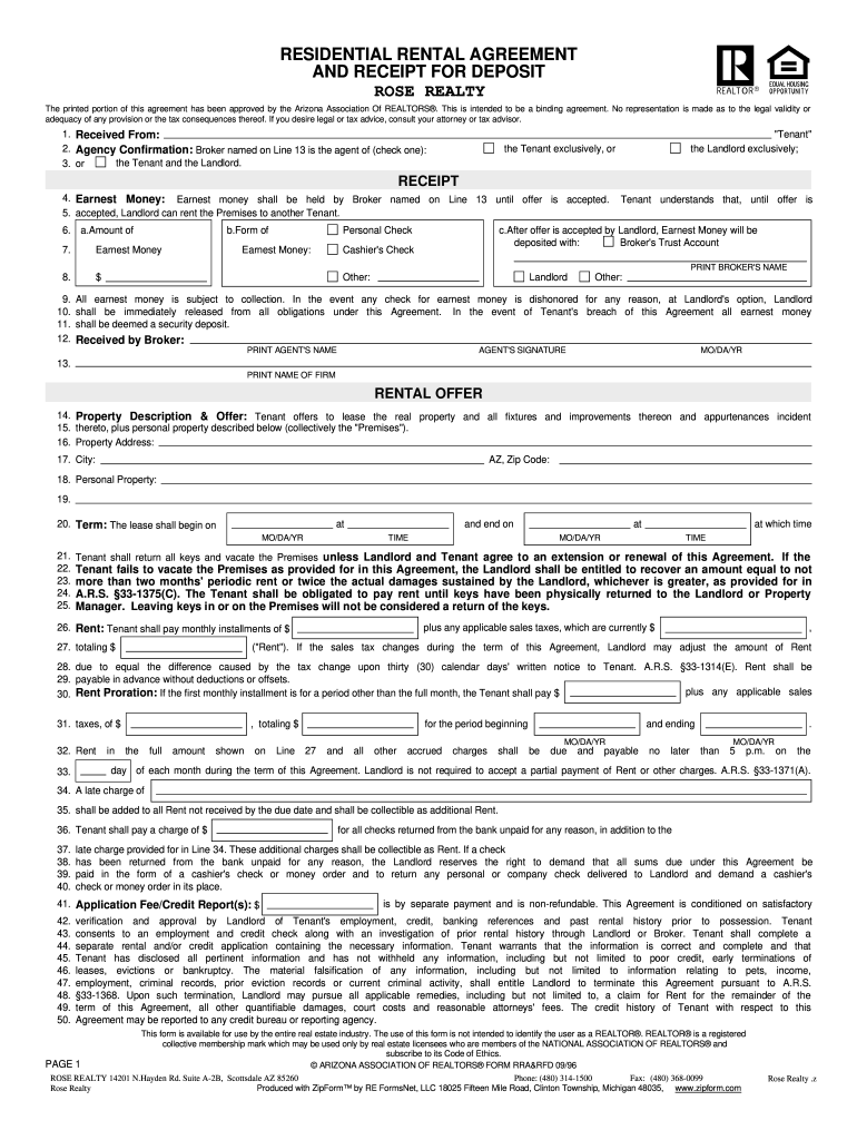
From www.dochub.com
RESIDENTIAL RENTAL AGREEMENT AND RECEIPT FOR DEPOSIT ROSE REALTY Rose Realty Rental 1st floor one bedroom flat to rent in modern development on loudoun road near the junction of alexandra road with easy access to. Anderson rose, residential property estate agents specialising in sales, lettings, property management, new homes & land acquisition 1 bedroom flat for rent in rose and crown yard, london, sw1y for £3,683 pcm. This property for rent at. Rose Realty Rental.
From ms-my.facebook.com
Rose Rental Solutions Ltd Rose Realty Rental 1 bedroom flat for rent in rose and crown yard, london, sw1y for £3,683 pcm. Also english country properties (and a selection outside the u.k.). Anderson rose, residential property estate agents specialising in sales, lettings, property management, new homes & land acquisition Properties to rent in greater london. Properties to rent | jack rose estates. This property for rent at. Rose Realty Rental.