Crane Lifting Work Permit . Passport number is not allowed. Notification for use of tower crane in workplace. register and manage lifting equipment. for example, a lifting plan would ensure that the crane is safely deployed and operated, and the lifting crew are clear about their. 2 factors afecting safe lifting operations. —(1) it shall be the duty of the responsible person to appoint a signalman before any lifting operation involving the use of any. (1) these regulations may be cited as the workplace safety and health (operation of. every lifting permit should include a number of basic information items: Location of lift (provide sketch if. workplace safety and health act. Project and lift details the work. all certificates for crane erectors must bear their nric, fin, work permit or s pass number.
from www.files.construction
Project and lift details the work. workplace safety and health act. (1) these regulations may be cited as the workplace safety and health (operation of. every lifting permit should include a number of basic information items: all certificates for crane erectors must bear their nric, fin, work permit or s pass number. —(1) it shall be the duty of the responsible person to appoint a signalman before any lifting operation involving the use of any. Location of lift (provide sketch if. Notification for use of tower crane in workplace. 2 factors afecting safe lifting operations. for example, a lifting plan would ensure that the crane is safely deployed and operated, and the lifting crew are clear about their.
Work Permit Tower Cranes Construction Documents And Templates
Crane Lifting Work Permit all certificates for crane erectors must bear their nric, fin, work permit or s pass number. Passport number is not allowed. workplace safety and health act. every lifting permit should include a number of basic information items: (1) these regulations may be cited as the workplace safety and health (operation of. Location of lift (provide sketch if. Notification for use of tower crane in workplace. —(1) it shall be the duty of the responsible person to appoint a signalman before any lifting operation involving the use of any. all certificates for crane erectors must bear their nric, fin, work permit or s pass number. register and manage lifting equipment. Project and lift details the work. for example, a lifting plan would ensure that the crane is safely deployed and operated, and the lifting crew are clear about their. 2 factors afecting safe lifting operations.
From hsseworld.com
Crane Suspended Personnel Platform (MANBASKET) Permit Crane Lifting Work Permit —(1) it shall be the duty of the responsible person to appoint a signalman before any lifting operation involving the use of any. 2 factors afecting safe lifting operations. workplace safety and health act. Project and lift details the work. Location of lift (provide sketch if. all certificates for crane erectors must bear their nric, fin, work. Crane Lifting Work Permit.
From sitemate.com
Critical lift plan for cranes example Here's what you need to include Crane Lifting Work Permit Notification for use of tower crane in workplace. workplace safety and health act. —(1) it shall be the duty of the responsible person to appoint a signalman before any lifting operation involving the use of any. for example, a lifting plan would ensure that the crane is safely deployed and operated, and the lifting crew are clear. Crane Lifting Work Permit.
From sitemate.com
Daily Lift Plan for Cranes template Use this template free Crane Lifting Work Permit (1) these regulations may be cited as the workplace safety and health (operation of. 2 factors afecting safe lifting operations. Passport number is not allowed. every lifting permit should include a number of basic information items: —(1) it shall be the duty of the responsible person to appoint a signalman before any lifting operation involving the use of. Crane Lifting Work Permit.
From lanathemes.weebly.com
Crane lift plan form lanathemes Crane Lifting Work Permit Notification for use of tower crane in workplace. every lifting permit should include a number of basic information items: Project and lift details the work. Passport number is not allowed. workplace safety and health act. for example, a lifting plan would ensure that the crane is safely deployed and operated, and the lifting crew are clear about. Crane Lifting Work Permit.
From www.scribd.com
Planned Critical Lift Crane Permit Crane (Machine) Crane Lifting Work Permit 2 factors afecting safe lifting operations. Passport number is not allowed. workplace safety and health act. for example, a lifting plan would ensure that the crane is safely deployed and operated, and the lifting crew are clear about their. (1) these regulations may be cited as the workplace safety and health (operation of. Notification for use of tower. Crane Lifting Work Permit.
From dl-uk.apowersoft.com
Crane Lifting Plan Template Crane Lifting Work Permit Notification for use of tower crane in workplace. workplace safety and health act. (1) these regulations may be cited as the workplace safety and health (operation of. for example, a lifting plan would ensure that the crane is safely deployed and operated, and the lifting crew are clear about their. every lifting permit should include a number. Crane Lifting Work Permit.
From studylib.net
Cranes/Lifting Devices Fact Sheet DOCX Crane Lifting Work Permit register and manage lifting equipment. (1) these regulations may be cited as the workplace safety and health (operation of. workplace safety and health act. Location of lift (provide sketch if. every lifting permit should include a number of basic information items: all certificates for crane erectors must bear their nric, fin, work permit or s pass. Crane Lifting Work Permit.
From www.scribd.com
10 Lifting Operation Permit PDF Elevator Crane (Machine) Crane Lifting Work Permit all certificates for crane erectors must bear their nric, fin, work permit or s pass number. register and manage lifting equipment. Location of lift (provide sketch if. Notification for use of tower crane in workplace. (1) these regulations may be cited as the workplace safety and health (operation of. every lifting permit should include a number of. Crane Lifting Work Permit.
From studylib.net
Planned Critical Lift Mobile Crane Permit Crane Lifting Work Permit all certificates for crane erectors must bear their nric, fin, work permit or s pass number. 2 factors afecting safe lifting operations. —(1) it shall be the duty of the responsible person to appoint a signalman before any lifting operation involving the use of any. for example, a lifting plan would ensure that the crane is safely. Crane Lifting Work Permit.
From www.scribd.com
27k Crane Lifting Permit Crane (Machine) Industries Crane Lifting Work Permit (1) these regulations may be cited as the workplace safety and health (operation of. Location of lift (provide sketch if. for example, a lifting plan would ensure that the crane is safely deployed and operated, and the lifting crew are clear about their. every lifting permit should include a number of basic information items: Notification for use of. Crane Lifting Work Permit.
From mavink.com
Sample Crane Lifting Plan Crane Lifting Work Permit 2 factors afecting safe lifting operations. Location of lift (provide sketch if. for example, a lifting plan would ensure that the crane is safely deployed and operated, and the lifting crew are clear about their. every lifting permit should include a number of basic information items: Notification for use of tower crane in workplace. (1) these regulations may. Crane Lifting Work Permit.
From edata.sg
permit for lifting operation CTMS CTMS Crane Lifting Work Permit Passport number is not allowed. (1) these regulations may be cited as the workplace safety and health (operation of. —(1) it shall be the duty of the responsible person to appoint a signalman before any lifting operation involving the use of any. register and manage lifting equipment. workplace safety and health act. 2 factors afecting safe lifting. Crane Lifting Work Permit.
From www.scribd.com
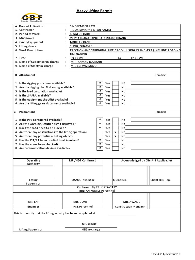
Heavy Lifting Permit VERY PERMIT Contoh PDF Crane (Machine Crane Lifting Work Permit Notification for use of tower crane in workplace. for example, a lifting plan would ensure that the crane is safely deployed and operated, and the lifting crew are clear about their. —(1) it shall be the duty of the responsible person to appoint a signalman before any lifting operation involving the use of any. all certificates for. Crane Lifting Work Permit.
From studylib.net
Planned Critical Lift Mobile Crane Permit Crane Lifting Work Permit workplace safety and health act. Notification for use of tower crane in workplace. every lifting permit should include a number of basic information items: (1) these regulations may be cited as the workplace safety and health (operation of. all certificates for crane erectors must bear their nric, fin, work permit or s pass number. Passport number is. Crane Lifting Work Permit.
From www.files.construction
Work Permit Permit To Lift Construction Documents And Templates Crane Lifting Work Permit Location of lift (provide sketch if. all certificates for crane erectors must bear their nric, fin, work permit or s pass number. Project and lift details the work. 2 factors afecting safe lifting operations. for example, a lifting plan would ensure that the crane is safely deployed and operated, and the lifting crew are clear about their. . Crane Lifting Work Permit.
From hsepost.blogspot.com
Important Parameter of Crane Lift Permit Health Safety and Crane Lifting Work Permit for example, a lifting plan would ensure that the crane is safely deployed and operated, and the lifting crew are clear about their. —(1) it shall be the duty of the responsible person to appoint a signalman before any lifting operation involving the use of any. register and manage lifting equipment. 2 factors afecting safe lifting operations.. Crane Lifting Work Permit.
From mahaextra.weebly.com
Crane lift plan forms mahaextra Crane Lifting Work Permit 2 factors afecting safe lifting operations. (1) these regulations may be cited as the workplace safety and health (operation of. every lifting permit should include a number of basic information items: Passport number is not allowed. workplace safety and health act. —(1) it shall be the duty of the responsible person to appoint a signalman before any. Crane Lifting Work Permit.
From www.scribd.com
Lifting Work Permit Crane Lifting Work Permit for example, a lifting plan would ensure that the crane is safely deployed and operated, and the lifting crew are clear about their. Notification for use of tower crane in workplace. register and manage lifting equipment. Passport number is not allowed. every lifting permit should include a number of basic information items: (1) these regulations may be. Crane Lifting Work Permit.
From mavink.com
Crane Lifting Safety Poster Crane Lifting Work Permit (1) these regulations may be cited as the workplace safety and health (operation of. register and manage lifting equipment. —(1) it shall be the duty of the responsible person to appoint a signalman before any lifting operation involving the use of any. Project and lift details the work. all certificates for crane erectors must bear their nric,. Crane Lifting Work Permit.
From sitemate.com
Lifting permit to work Here's what you need to include Crane Lifting Work Permit Passport number is not allowed. register and manage lifting equipment. all certificates for crane erectors must bear their nric, fin, work permit or s pass number. for example, a lifting plan would ensure that the crane is safely deployed and operated, and the lifting crew are clear about their. Location of lift (provide sketch if. 2 factors. Crane Lifting Work Permit.
From www.files.construction
Critical Lift Permit Construction Documents And Templates Crane Lifting Work Permit (1) these regulations may be cited as the workplace safety and health (operation of. Passport number is not allowed. every lifting permit should include a number of basic information items: Project and lift details the work. Location of lift (provide sketch if. 2 factors afecting safe lifting operations. for example, a lifting plan would ensure that the crane. Crane Lifting Work Permit.
From www.files.construction
Work Permit Tower Cranes Construction Documents And Templates Crane Lifting Work Permit Notification for use of tower crane in workplace. 2 factors afecting safe lifting operations. all certificates for crane erectors must bear their nric, fin, work permit or s pass number. (1) these regulations may be cited as the workplace safety and health (operation of. Location of lift (provide sketch if. register and manage lifting equipment. Passport number is. Crane Lifting Work Permit.
From public-library.safetyculture.io
Permit to Work Cranes And Lifting Equipment SafetyCulture Crane Lifting Work Permit Location of lift (provide sketch if. register and manage lifting equipment. all certificates for crane erectors must bear their nric, fin, work permit or s pass number. Notification for use of tower crane in workplace. 2 factors afecting safe lifting operations. (1) these regulations may be cited as the workplace safety and health (operation of. every lifting. Crane Lifting Work Permit.
From www.signnow.com
Critical Lift Plan Template 20112024 Form Fill Out and Sign Crane Lifting Work Permit for example, a lifting plan would ensure that the crane is safely deployed and operated, and the lifting crew are clear about their. —(1) it shall be the duty of the responsible person to appoint a signalman before any lifting operation involving the use of any. Project and lift details the work. register and manage lifting equipment.. Crane Lifting Work Permit.
From resseal.weebly.com
Crane lift plan requirements resseal Crane Lifting Work Permit every lifting permit should include a number of basic information items: Project and lift details the work. workplace safety and health act. (1) these regulations may be cited as the workplace safety and health (operation of. all certificates for crane erectors must bear their nric, fin, work permit or s pass number. 2 factors afecting safe lifting. Crane Lifting Work Permit.
From www.scribd.com
Lifting Operation Permit PDF Crane (Machine) Manufactured Goods Crane Lifting Work Permit Notification for use of tower crane in workplace. Project and lift details the work. —(1) it shall be the duty of the responsible person to appoint a signalman before any lifting operation involving the use of any. every lifting permit should include a number of basic information items: for example, a lifting plan would ensure that the. Crane Lifting Work Permit.
From www.files.construction
Lifting Permit Construction Documents And Templates Crane Lifting Work Permit Notification for use of tower crane in workplace. (1) these regulations may be cited as the workplace safety and health (operation of. every lifting permit should include a number of basic information items: Project and lift details the work. workplace safety and health act. Passport number is not allowed. —(1) it shall be the duty of the. Crane Lifting Work Permit.
From www.files.construction
Work Permit Tower Cranes Construction Documents And Templates Crane Lifting Work Permit (1) these regulations may be cited as the workplace safety and health (operation of. Passport number is not allowed. Notification for use of tower crane in workplace. every lifting permit should include a number of basic information items: for example, a lifting plan would ensure that the crane is safely deployed and operated, and the lifting crew are. Crane Lifting Work Permit.
From www.scribd.com
Lifting Permit No. Personal Protective Equipment Safety Crane Lifting Work Permit workplace safety and health act. (1) these regulations may be cited as the workplace safety and health (operation of. for example, a lifting plan would ensure that the crane is safely deployed and operated, and the lifting crew are clear about their. Location of lift (provide sketch if. 2 factors afecting safe lifting operations. register and manage. Crane Lifting Work Permit.
From gunnaranceshaw.blogspot.com
Crane Lift Plan Free Download GunnaranceShaw Crane Lifting Work Permit workplace safety and health act. Location of lift (provide sketch if. all certificates for crane erectors must bear their nric, fin, work permit or s pass number. Notification for use of tower crane in workplace. —(1) it shall be the duty of the responsible person to appoint a signalman before any lifting operation involving the use of. Crane Lifting Work Permit.
From skyhb.weebly.com
Crane lift safety checklist skyhb Crane Lifting Work Permit Passport number is not allowed. Location of lift (provide sketch if. Notification for use of tower crane in workplace. every lifting permit should include a number of basic information items: for example, a lifting plan would ensure that the crane is safely deployed and operated, and the lifting crew are clear about their. —(1) it shall be. Crane Lifting Work Permit.
From www.pdffiller.com
Critical Lift Plan Fill Online, Printable, Fillable, Blank pdfFiller Crane Lifting Work Permit register and manage lifting equipment. for example, a lifting plan would ensure that the crane is safely deployed and operated, and the lifting crew are clear about their. Location of lift (provide sketch if. Passport number is not allowed. workplace safety and health act. (1) these regulations may be cited as the workplace safety and health (operation. Crane Lifting Work Permit.
From www.scribd.com
Crane Lifting Permit REVISION 01 Crane (Machine) Industries Crane Lifting Work Permit (1) these regulations may be cited as the workplace safety and health (operation of. register and manage lifting equipment. 2 factors afecting safe lifting operations. —(1) it shall be the duty of the responsible person to appoint a signalman before any lifting operation involving the use of any. workplace safety and health act. Notification for use of. Crane Lifting Work Permit.
From www.files.construction
Work Permit Man Basket With Crane Construction Documents And Templates Crane Lifting Work Permit for example, a lifting plan would ensure that the crane is safely deployed and operated, and the lifting crew are clear about their. (1) these regulations may be cited as the workplace safety and health (operation of. —(1) it shall be the duty of the responsible person to appoint a signalman before any lifting operation involving the use. Crane Lifting Work Permit.
From www.dochub.com
Crane lift plan template Fill out & sign online DocHub Crane Lifting Work Permit Notification for use of tower crane in workplace. —(1) it shall be the duty of the responsible person to appoint a signalman before any lifting operation involving the use of any. every lifting permit should include a number of basic information items: for example, a lifting plan would ensure that the crane is safely deployed and operated,. Crane Lifting Work Permit.