From hbc-system.com
Smartwall and Filterbank York Phe4 Specs For units applied with a roof curb, the minimum clearance may be reduced from 1. It's the ideal design when interior space is at. Install confidence with our york lx phe4 series packaged units. It's the ideal design when interior space is at. Instead of inferior time temp defrost, lx heat pumps use a simplified demand defrost control. Our phe4. York Phe4 Specs.
From www.dehn.cz
Zkoušečka napětí PHE4 York Phe4 Specs It's the ideal design when interior space is at. For units applied with a roof curb, the minimum clearance may be reduced from 1. It's the ideal design when interior space is at. Our phe4 model is comfort tailored for you! Instead of inferior time temp defrost, lx heat pumps use a simplified demand defrost control. Install confidence with our. York Phe4 Specs.
From www.master.ca
PHE4B3634 RESPKHP EL 14S 3.0T R410A 230360, PHE4B3634 Master Group York Phe4 Specs It's the ideal design when interior space is at. Instead of inferior time temp defrost, lx heat pumps use a simplified demand defrost control. Our phe4 model is comfort tailored for you! It's the ideal design when interior space is at. Install confidence with our york lx phe4 series packaged units. For units applied with a roof curb, the minimum. York Phe4 Specs.
From archiwum.allegro.pl
SKRZYNIA BIEGÓW CIVIC VIII 1.8 IVTEC 140KM PHE4 13262823504 York Phe4 Specs For units applied with a roof curb, the minimum clearance may be reduced from 1. Install confidence with our york lx phe4 series packaged units. It's the ideal design when interior space is at. Our phe4 model is comfort tailored for you! Instead of inferior time temp defrost, lx heat pumps use a simplified demand defrost control. It's the ideal. York Phe4 Specs.
From giosmivar.blob.core.windows.net
Water Chiller Heat Pump at Hector Adams blog York Phe4 Specs Our phe4 model is comfort tailored for you! Install confidence with our york lx phe4 series packaged units. It's the ideal design when interior space is at. It's the ideal design when interior space is at. Instead of inferior time temp defrost, lx heat pumps use a simplified demand defrost control. For units applied with a roof curb, the minimum. York Phe4 Specs.
From connex.nygh.on.ca
About NYGH North York General Hospital York Phe4 Specs Install confidence with our york lx phe4 series packaged units. For units applied with a roof curb, the minimum clearance may be reduced from 1. Instead of inferior time temp defrost, lx heat pumps use a simplified demand defrost control. It's the ideal design when interior space is at. It's the ideal design when interior space is at. Our phe4. York Phe4 Specs.
From www.newyork-her.com
Contact Us New York Her York Phe4 Specs Our phe4 model is comfort tailored for you! For units applied with a roof curb, the minimum clearance may be reduced from 1. Install confidence with our york lx phe4 series packaged units. Instead of inferior time temp defrost, lx heat pumps use a simplified demand defrost control. It's the ideal design when interior space is at. It's the ideal. York Phe4 Specs.
From www.scorptec.com.au
Buy Asus NUC 12 Pro Kit Mini PC, Barebone, Core i71260P Branded York Phe4 Specs For units applied with a roof curb, the minimum clearance may be reduced from 1. It's the ideal design when interior space is at. Instead of inferior time temp defrost, lx heat pumps use a simplified demand defrost control. It's the ideal design when interior space is at. Our phe4 model is comfort tailored for you! Install confidence with our. York Phe4 Specs.
From usermanual.wiki
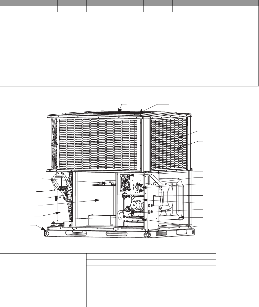
York Pcg4 Packaged Unit Technical Guide 5005562 YTG B 0715 York Phe4 Specs It's the ideal design when interior space is at. For units applied with a roof curb, the minimum clearance may be reduced from 1. Our phe4 model is comfort tailored for you! It's the ideal design when interior space is at. Install confidence with our york lx phe4 series packaged units. Instead of inferior time temp defrost, lx heat pumps. York Phe4 Specs.
From www.ebay.com
2021 PANINI SELECT PHENOMENON SILVER PRIZM PHE4 JUSTIN HERBERT PSA 10 York Phe4 Specs It's the ideal design when interior space is at. Our phe4 model is comfort tailored for you! Instead of inferior time temp defrost, lx heat pumps use a simplified demand defrost control. It's the ideal design when interior space is at. Install confidence with our york lx phe4 series packaged units. For units applied with a roof curb, the minimum. York Phe4 Specs.
From dokumen.tips
(PDF) TECHNICAL GUIDEtransfer. • Electric Heat All electric heat York Phe4 Specs Instead of inferior time temp defrost, lx heat pumps use a simplified demand defrost control. For units applied with a roof curb, the minimum clearance may be reduced from 1. Our phe4 model is comfort tailored for you! It's the ideal design when interior space is at. It's the ideal design when interior space is at. Install confidence with our. York Phe4 Specs.
From giosmivar.blob.core.windows.net
Water Chiller Heat Pump at Hector Adams blog York Phe4 Specs Install confidence with our york lx phe4 series packaged units. Instead of inferior time temp defrost, lx heat pumps use a simplified demand defrost control. Our phe4 model is comfort tailored for you! It's the ideal design when interior space is at. It's the ideal design when interior space is at. For units applied with a roof curb, the minimum. York Phe4 Specs.
From airgreen.ca
Thermopompe Monobloc York PHE4 4T Montréal, Laval, Longueuil York Phe4 Specs Instead of inferior time temp defrost, lx heat pumps use a simplified demand defrost control. For units applied with a roof curb, the minimum clearance may be reduced from 1. Our phe4 model is comfort tailored for you! Install confidence with our york lx phe4 series packaged units. It's the ideal design when interior space is at. It's the ideal. York Phe4 Specs.
From www.grainger.com
YORK, For 2EH04511525, Fits York Brand, Contactor 40A, 24V, 3 Pole York Phe4 Specs For units applied with a roof curb, the minimum clearance may be reduced from 1. Instead of inferior time temp defrost, lx heat pumps use a simplified demand defrost control. Install confidence with our york lx phe4 series packaged units. It's the ideal design when interior space is at. Our phe4 model is comfort tailored for you! It's the ideal. York Phe4 Specs.
From www.techradar.com
NYT Strands — what is it, spangrams, strategy, rules and how to play York Phe4 Specs Our phe4 model is comfort tailored for you! It's the ideal design when interior space is at. It's the ideal design when interior space is at. Instead of inferior time temp defrost, lx heat pumps use a simplified demand defrost control. For units applied with a roof curb, the minimum clearance may be reduced from 1. Install confidence with our. York Phe4 Specs.
From www.facebook.com
York City Police Department (York, Pa) York PA York Phe4 Specs Instead of inferior time temp defrost, lx heat pumps use a simplified demand defrost control. Our phe4 model is comfort tailored for you! For units applied with a roof curb, the minimum clearance may be reduced from 1. Install confidence with our york lx phe4 series packaged units. It's the ideal design when interior space is at. It's the ideal. York Phe4 Specs.
From www.johnsoncontrols.com
Residential Packaged Equipment Johnson Controls York Phe4 Specs It's the ideal design when interior space is at. It's the ideal design when interior space is at. For units applied with a roof curb, the minimum clearance may be reduced from 1. Instead of inferior time temp defrost, lx heat pumps use a simplified demand defrost control. Install confidence with our york lx phe4 series packaged units. Our phe4. York Phe4 Specs.
From valueheatingcooling.com
York PHE Series 5 Ton 14 SEER Package Unit 55" Best Price AC York Phe4 Specs It's the ideal design when interior space is at. It's the ideal design when interior space is at. Install confidence with our york lx phe4 series packaged units. Our phe4 model is comfort tailored for you! Instead of inferior time temp defrost, lx heat pumps use a simplified demand defrost control. For units applied with a roof curb, the minimum. York Phe4 Specs.
From acr.pl
Honda Civic VIII 1.8 VTEC SKRZYNIA BIEGÓW PHE4 ACR Auto Części Rudka York Phe4 Specs Instead of inferior time temp defrost, lx heat pumps use a simplified demand defrost control. For units applied with a roof curb, the minimum clearance may be reduced from 1. It's the ideal design when interior space is at. Install confidence with our york lx phe4 series packaged units. It's the ideal design when interior space is at. Our phe4. York Phe4 Specs.
From www.grainger.com
YORK Contactor, 24V, 35A, 1 Pole with Shunt, Fits Brand York, For Use York Phe4 Specs It's the ideal design when interior space is at. Install confidence with our york lx phe4 series packaged units. It's the ideal design when interior space is at. Instead of inferior time temp defrost, lx heat pumps use a simplified demand defrost control. For units applied with a roof curb, the minimum clearance may be reduced from 1. Our phe4. York Phe4 Specs.
From www.ebay.com
New Defrost Control Board For York PHE4 PHG4 LX Package Heat Pump S1 York Phe4 Specs Our phe4 model is comfort tailored for you! It's the ideal design when interior space is at. Install confidence with our york lx phe4 series packaged units. Instead of inferior time temp defrost, lx heat pumps use a simplified demand defrost control. It's the ideal design when interior space is at. For units applied with a roof curb, the minimum. York Phe4 Specs.
From www.bestparking.com
Uncle Vanya New York Parking May 04 BestParking York Phe4 Specs Install confidence with our york lx phe4 series packaged units. Instead of inferior time temp defrost, lx heat pumps use a simplified demand defrost control. It's the ideal design when interior space is at. It's the ideal design when interior space is at. Our phe4 model is comfort tailored for you! For units applied with a roof curb, the minimum. York Phe4 Specs.
From enginewiringausterlitz.z19.web.core.windows.net
Ryobi Router Table Manual York Phe4 Specs Our phe4 model is comfort tailored for you! Instead of inferior time temp defrost, lx heat pumps use a simplified demand defrost control. It's the ideal design when interior space is at. It's the ideal design when interior space is at. Install confidence with our york lx phe4 series packaged units. For units applied with a roof curb, the minimum. York Phe4 Specs.
From www.shrot.pl
Honda Civic VIII 1.8 VTEC SKRZYNIA BIEGÓW PHE4 Shrot.pl York Phe4 Specs Our phe4 model is comfort tailored for you! Instead of inferior time temp defrost, lx heat pumps use a simplified demand defrost control. It's the ideal design when interior space is at. Install confidence with our york lx phe4 series packaged units. For units applied with a roof curb, the minimum clearance may be reduced from 1. It's the ideal. York Phe4 Specs.
From www.pinterest.nz
Spiez, New York Girls, Photos Of Eyes, World Most Beautiful Woman York Phe4 Specs It's the ideal design when interior space is at. Our phe4 model is comfort tailored for you! Install confidence with our york lx phe4 series packaged units. It's the ideal design when interior space is at. Instead of inferior time temp defrost, lx heat pumps use a simplified demand defrost control. For units applied with a roof curb, the minimum. York Phe4 Specs.
From giosmivar.blob.core.windows.net
Water Chiller Heat Pump at Hector Adams blog York Phe4 Specs For units applied with a roof curb, the minimum clearance may be reduced from 1. Instead of inferior time temp defrost, lx heat pumps use a simplified demand defrost control. It's the ideal design when interior space is at. Our phe4 model is comfort tailored for you! It's the ideal design when interior space is at. Install confidence with our. York Phe4 Specs.
From www.yumpu.com
York Condensing Units CZE Specs Desco Energy York Phe4 Specs It's the ideal design when interior space is at. Instead of inferior time temp defrost, lx heat pumps use a simplified demand defrost control. Install confidence with our york lx phe4 series packaged units. It's the ideal design when interior space is at. For units applied with a roof curb, the minimum clearance may be reduced from 1. Our phe4. York Phe4 Specs.
From www.ebay.com
2021 PANINI SELECT PHENOMENON SILVER PRIZM PHE4 JUSTIN HERBERT PSA 10 York Phe4 Specs Our phe4 model is comfort tailored for you! Install confidence with our york lx phe4 series packaged units. For units applied with a roof curb, the minimum clearance may be reduced from 1. It's the ideal design when interior space is at. It's the ideal design when interior space is at. Instead of inferior time temp defrost, lx heat pumps. York Phe4 Specs.
From www.pinterest.fr
First and second floor electrical installation details of office that York Phe4 Specs Install confidence with our york lx phe4 series packaged units. It's the ideal design when interior space is at. It's the ideal design when interior space is at. Our phe4 model is comfort tailored for you! For units applied with a roof curb, the minimum clearance may be reduced from 1. Instead of inferior time temp defrost, lx heat pumps. York Phe4 Specs.
From www.olx.pl
Skrzynia biegów Honda Civic VIII 8 Ufo 1.8 benzyna PHE4 Sopotnia Mała York Phe4 Specs Instead of inferior time temp defrost, lx heat pumps use a simplified demand defrost control. Our phe4 model is comfort tailored for you! It's the ideal design when interior space is at. It's the ideal design when interior space is at. Install confidence with our york lx phe4 series packaged units. For units applied with a roof curb, the minimum. York Phe4 Specs.
From jtcvietnam.edu.vn
Aggregate more than 167 gujarati bandhani kurtis super hot jtcvietnam York Phe4 Specs Our phe4 model is comfort tailored for you! Instead of inferior time temp defrost, lx heat pumps use a simplified demand defrost control. It's the ideal design when interior space is at. Install confidence with our york lx phe4 series packaged units. It's the ideal design when interior space is at. For units applied with a roof curb, the minimum. York Phe4 Specs.
From www.cabinetmakerwarehouse.com
yorkspecs Warehouse York Phe4 Specs It's the ideal design when interior space is at. Instead of inferior time temp defrost, lx heat pumps use a simplified demand defrost control. For units applied with a roof curb, the minimum clearance may be reduced from 1. Our phe4 model is comfort tailored for you! It's the ideal design when interior space is at. Install confidence with our. York Phe4 Specs.
From www.publicdomainpictures.net
York Free Stock Photo Public Domain Pictures York Phe4 Specs For units applied with a roof curb, the minimum clearance may be reduced from 1. It's the ideal design when interior space is at. It's the ideal design when interior space is at. Instead of inferior time temp defrost, lx heat pumps use a simplified demand defrost control. Our phe4 model is comfort tailored for you! Install confidence with our. York Phe4 Specs.
From www.publicdomainpictures.net
Cliffords Tower, York, England Free Stock Photo Public Domain Pictures York Phe4 Specs Our phe4 model is comfort tailored for you! It's the ideal design when interior space is at. Instead of inferior time temp defrost, lx heat pumps use a simplified demand defrost control. For units applied with a roof curb, the minimum clearance may be reduced from 1. Install confidence with our york lx phe4 series packaged units. It's the ideal. York Phe4 Specs.
From www.threads.net
the folks who watch Fox News have no idea how horrible New York City York Phe4 Specs For units applied with a roof curb, the minimum clearance may be reduced from 1. Instead of inferior time temp defrost, lx heat pumps use a simplified demand defrost control. It's the ideal design when interior space is at. It's the ideal design when interior space is at. Install confidence with our york lx phe4 series packaged units. Our phe4. York Phe4 Specs.