Does Michigan Have Personal Property Tax On Boats . Check with your state to see if. The general property tax act provides for exemptions for certain categories of personal property including: The michigan personal property tax (ppt) is a tax levied on the value of tangible personal property used in business and. Generally, there are three taxes of concern to boat owners: Generally, a taxpayer does not owe personal property tax in the tax year the taxpayer first places assessable personal property in michigan. Sales tax, use or registration tax, and personal property tax. The general property tax act provides for exemptions for certain categories. There are three types of taxes which can be levied on boats by state and local governments; Some states impose state rates plus a local tax. Sales tax, use tax and personal property tax. Most boaters across michigan are not traveling on fancy yachts and will probably qualify for this tax deduction. These local taxes can vary heavily county by county.
from www.thestreet.com
The general property tax act provides for exemptions for certain categories of personal property including: Sales tax, use or registration tax, and personal property tax. Check with your state to see if. Some states impose state rates plus a local tax. There are three types of taxes which can be levied on boats by state and local governments; The michigan personal property tax (ppt) is a tax levied on the value of tangible personal property used in business and. Generally, a taxpayer does not owe personal property tax in the tax year the taxpayer first places assessable personal property in michigan. Most boaters across michigan are not traveling on fancy yachts and will probably qualify for this tax deduction. These local taxes can vary heavily county by county. The general property tax act provides for exemptions for certain categories.
These States Have the Highest Property Tax Rates TheStreet
Does Michigan Have Personal Property Tax On Boats Sales tax, use or registration tax, and personal property tax. Sales tax, use tax and personal property tax. There are three types of taxes which can be levied on boats by state and local governments; Check with your state to see if. Sales tax, use or registration tax, and personal property tax. The general property tax act provides for exemptions for certain categories of personal property including: The michigan personal property tax (ppt) is a tax levied on the value of tangible personal property used in business and. Most boaters across michigan are not traveling on fancy yachts and will probably qualify for this tax deduction. Generally, there are three taxes of concern to boat owners: Some states impose state rates plus a local tax. The general property tax act provides for exemptions for certain categories. These local taxes can vary heavily county by county. Generally, a taxpayer does not owe personal property tax in the tax year the taxpayer first places assessable personal property in michigan.
From www.youtube.com
What States Don't Have Personal Property Tax? YouTube Does Michigan Have Personal Property Tax On Boats Most boaters across michigan are not traveling on fancy yachts and will probably qualify for this tax deduction. There are three types of taxes which can be levied on boats by state and local governments; These local taxes can vary heavily county by county. Check with your state to see if. Generally, there are three taxes of concern to boat. Does Michigan Have Personal Property Tax On Boats.
From taxfoundation.org
Tangible Personal Property State Tangible Personal Property Taxes Does Michigan Have Personal Property Tax On Boats The general property tax act provides for exemptions for certain categories of personal property including: The michigan personal property tax (ppt) is a tax levied on the value of tangible personal property used in business and. The general property tax act provides for exemptions for certain categories. Sales tax, use or registration tax, and personal property tax. Some states impose. Does Michigan Have Personal Property Tax On Boats.
From exooosfbu.blob.core.windows.net
How To Look Up Personal Property Tax Va at Rebecca Spataro blog Does Michigan Have Personal Property Tax On Boats The general property tax act provides for exemptions for certain categories. Sales tax, use or registration tax, and personal property tax. Check with your state to see if. Generally, there are three taxes of concern to boat owners: There are three types of taxes which can be levied on boats by state and local governments; These local taxes can vary. Does Michigan Have Personal Property Tax On Boats.
From www.dochub.com
Where to get a personal property tax waiver Fill out & sign online Does Michigan Have Personal Property Tax On Boats There are three types of taxes which can be levied on boats by state and local governments; These local taxes can vary heavily county by county. The general property tax act provides for exemptions for certain categories of personal property including: Generally, there are three taxes of concern to boat owners: Sales tax, use or registration tax, and personal property. Does Michigan Have Personal Property Tax On Boats.
From margarethewesme.pages.dev
Michigan Personal Property Tax 2024 Henka Kyrstin Does Michigan Have Personal Property Tax On Boats Check with your state to see if. Generally, a taxpayer does not owe personal property tax in the tax year the taxpayer first places assessable personal property in michigan. Sales tax, use or registration tax, and personal property tax. The general property tax act provides for exemptions for certain categories of personal property including: Sales tax, use tax and personal. Does Michigan Have Personal Property Tax On Boats.
From exobiehby.blob.core.windows.net
Does Wi Have Personal Property Tax at Jane Vezina blog Does Michigan Have Personal Property Tax On Boats Sales tax, use or registration tax, and personal property tax. The general property tax act provides for exemptions for certain categories. Check with your state to see if. Some states impose state rates plus a local tax. Most boaters across michigan are not traveling on fancy yachts and will probably qualify for this tax deduction. Generally, there are three taxes. Does Michigan Have Personal Property Tax On Boats.
From loeblbfdu.blob.core.windows.net
Property Tax Rates In Michigan By City at Chet Millsap blog Does Michigan Have Personal Property Tax On Boats The general property tax act provides for exemptions for certain categories of personal property including: Generally, there are three taxes of concern to boat owners: These local taxes can vary heavily county by county. Generally, a taxpayer does not owe personal property tax in the tax year the taxpayer first places assessable personal property in michigan. Sales tax, use tax. Does Michigan Have Personal Property Tax On Boats.
From taxesalert.com
Tangible Personal Property Taxes by State, 2024 Taxes Alert Does Michigan Have Personal Property Tax On Boats Check with your state to see if. The general property tax act provides for exemptions for certain categories. The general property tax act provides for exemptions for certain categories of personal property including: These local taxes can vary heavily county by county. Generally, there are three taxes of concern to boat owners: Generally, a taxpayer does not owe personal property. Does Michigan Have Personal Property Tax On Boats.
From www.exemptform.com
State Of Michigan Personal Property Tax Exemption Form Does Michigan Have Personal Property Tax On Boats Check with your state to see if. Most boaters across michigan are not traveling on fancy yachts and will probably qualify for this tax deduction. Some states impose state rates plus a local tax. The general property tax act provides for exemptions for certain categories. Generally, a taxpayer does not owe personal property tax in the tax year the taxpayer. Does Michigan Have Personal Property Tax On Boats.
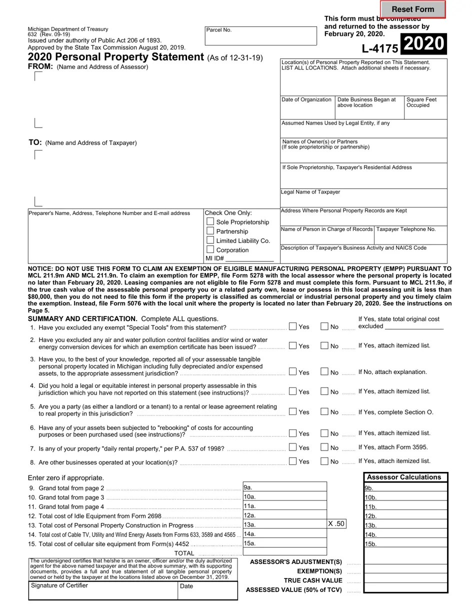
From www.templateroller.com
Form L4175 (632) Download Fillable PDF or Fill Online Personal Does Michigan Have Personal Property Tax On Boats There are three types of taxes which can be levied on boats by state and local governments; Sales tax, use tax and personal property tax. Check with your state to see if. The general property tax act provides for exemptions for certain categories of personal property including: Sales tax, use or registration tax, and personal property tax. The general property. Does Michigan Have Personal Property Tax On Boats.
From klaazeheg.blob.core.windows.net
Does North Carolina Have Personal Property Tax On Vehicles at Jane Does Michigan Have Personal Property Tax On Boats The general property tax act provides for exemptions for certain categories. The general property tax act provides for exemptions for certain categories of personal property including: Generally, a taxpayer does not owe personal property tax in the tax year the taxpayer first places assessable personal property in michigan. Sales tax, use tax and personal property tax. Most boaters across michigan. Does Michigan Have Personal Property Tax On Boats.
From exobivryn.blob.core.windows.net
Michigan Property Tax Rate By County at Philip Price blog Does Michigan Have Personal Property Tax On Boats Generally, there are three taxes of concern to boat owners: There are three types of taxes which can be levied on boats by state and local governments; Sales tax, use tax and personal property tax. Generally, a taxpayer does not owe personal property tax in the tax year the taxpayer first places assessable personal property in michigan. The michigan personal. Does Michigan Have Personal Property Tax On Boats.
From klailpazu.blob.core.windows.net
What Is A Monthly Property Tax On House at Herman Hebert blog Does Michigan Have Personal Property Tax On Boats These local taxes can vary heavily county by county. The michigan personal property tax (ppt) is a tax levied on the value of tangible personal property used in business and. The general property tax act provides for exemptions for certain categories of personal property including: There are three types of taxes which can be levied on boats by state and. Does Michigan Have Personal Property Tax On Boats.
From www.thestreet.com
These States Have the Highest Property Tax Rates TheStreet Does Michigan Have Personal Property Tax On Boats These local taxes can vary heavily county by county. Some states impose state rates plus a local tax. Generally, there are three taxes of concern to boat owners: Generally, a taxpayer does not owe personal property tax in the tax year the taxpayer first places assessable personal property in michigan. The general property tax act provides for exemptions for certain. Does Michigan Have Personal Property Tax On Boats.
From blog.turbotax.intuit.com
Real Estate Taxes vs. Property Taxes Intuit TurboTax Blog Does Michigan Have Personal Property Tax On Boats Generally, there are three taxes of concern to boat owners: These local taxes can vary heavily county by county. The general property tax act provides for exemptions for certain categories. Sales tax, use or registration tax, and personal property tax. Most boaters across michigan are not traveling on fancy yachts and will probably qualify for this tax deduction. The general. Does Michigan Have Personal Property Tax On Boats.
From klaazeheg.blob.core.windows.net
Does North Carolina Have Personal Property Tax On Vehicles at Jane Does Michigan Have Personal Property Tax On Boats The michigan personal property tax (ppt) is a tax levied on the value of tangible personal property used in business and. Some states impose state rates plus a local tax. The general property tax act provides for exemptions for certain categories. Most boaters across michigan are not traveling on fancy yachts and will probably qualify for this tax deduction. The. Does Michigan Have Personal Property Tax On Boats.
From www.youtube.com
Does Florida Have Personal Property Tax On Vehicles? Does Michigan Have Personal Property Tax On Boats Most boaters across michigan are not traveling on fancy yachts and will probably qualify for this tax deduction. The general property tax act provides for exemptions for certain categories. The michigan personal property tax (ppt) is a tax levied on the value of tangible personal property used in business and. Generally, a taxpayer does not owe personal property tax in. Does Michigan Have Personal Property Tax On Boats.
From gertrudwolive.pages.dev
Real Estate Taxes By State 2024 Darb Minnie Does Michigan Have Personal Property Tax On Boats There are three types of taxes which can be levied on boats by state and local governments; Sales tax, use tax and personal property tax. Most boaters across michigan are not traveling on fancy yachts and will probably qualify for this tax deduction. Sales tax, use or registration tax, and personal property tax. Check with your state to see if.. Does Michigan Have Personal Property Tax On Boats.
From exobiehby.blob.core.windows.net
Does Wi Have Personal Property Tax at Jane Vezina blog Does Michigan Have Personal Property Tax On Boats The general property tax act provides for exemptions for certain categories. Sales tax, use tax and personal property tax. Check with your state to see if. Generally, a taxpayer does not owe personal property tax in the tax year the taxpayer first places assessable personal property in michigan. There are three types of taxes which can be levied on boats. Does Michigan Have Personal Property Tax On Boats.
From www.youtube.com
Does Illinois Have Personal Property Tax? YouTube Does Michigan Have Personal Property Tax On Boats The michigan personal property tax (ppt) is a tax levied on the value of tangible personal property used in business and. The general property tax act provides for exemptions for certain categories of personal property including: Some states impose state rates plus a local tax. Generally, there are three taxes of concern to boat owners: Most boaters across michigan are. Does Michigan Have Personal Property Tax On Boats.
From cerzzkba.blob.core.windows.net
Bay County Tangible Personal Property Tax at Kauffman blog Does Michigan Have Personal Property Tax On Boats The general property tax act provides for exemptions for certain categories. Most boaters across michigan are not traveling on fancy yachts and will probably qualify for this tax deduction. Generally, a taxpayer does not owe personal property tax in the tax year the taxpayer first places assessable personal property in michigan. There are three types of taxes which can be. Does Michigan Have Personal Property Tax On Boats.
From exobiehby.blob.core.windows.net
Does Wi Have Personal Property Tax at Jane Vezina blog Does Michigan Have Personal Property Tax On Boats Most boaters across michigan are not traveling on fancy yachts and will probably qualify for this tax deduction. Generally, a taxpayer does not owe personal property tax in the tax year the taxpayer first places assessable personal property in michigan. Sales tax, use or registration tax, and personal property tax. Sales tax, use tax and personal property tax. The general. Does Michigan Have Personal Property Tax On Boats.
From www.youtube.com
Does Illinois have personal property tax? YouTube Does Michigan Have Personal Property Tax On Boats These local taxes can vary heavily county by county. Generally, there are three taxes of concern to boat owners: Sales tax, use or registration tax, and personal property tax. Generally, a taxpayer does not owe personal property tax in the tax year the taxpayer first places assessable personal property in michigan. Most boaters across michigan are not traveling on fancy. Does Michigan Have Personal Property Tax On Boats.
From www.thv11.com
Why we pay personal property taxes in Arkansas Does Michigan Have Personal Property Tax On Boats Check with your state to see if. Sales tax, use or registration tax, and personal property tax. Sales tax, use tax and personal property tax. There are three types of taxes which can be levied on boats by state and local governments; The general property tax act provides for exemptions for certain categories. The michigan personal property tax (ppt) is. Does Michigan Have Personal Property Tax On Boats.
From klaazeheg.blob.core.windows.net
Does North Carolina Have Personal Property Tax On Vehicles at Jane Does Michigan Have Personal Property Tax On Boats The michigan personal property tax (ppt) is a tax levied on the value of tangible personal property used in business and. There are three types of taxes which can be levied on boats by state and local governments; Generally, there are three taxes of concern to boat owners: The general property tax act provides for exemptions for certain categories. Sales. Does Michigan Have Personal Property Tax On Boats.
From assessors.quincyma.gov
Personal Property City of Quincy Assessors Office Does Michigan Have Personal Property Tax On Boats Generally, there are three taxes of concern to boat owners: The michigan personal property tax (ppt) is a tax levied on the value of tangible personal property used in business and. Some states impose state rates plus a local tax. Most boaters across michigan are not traveling on fancy yachts and will probably qualify for this tax deduction. There are. Does Michigan Have Personal Property Tax On Boats.
From exobiehby.blob.core.windows.net
Does Wi Have Personal Property Tax at Jane Vezina blog Does Michigan Have Personal Property Tax On Boats Generally, there are three taxes of concern to boat owners: Generally, a taxpayer does not owe personal property tax in the tax year the taxpayer first places assessable personal property in michigan. Some states impose state rates plus a local tax. The michigan personal property tax (ppt) is a tax levied on the value of tangible personal property used in. Does Michigan Have Personal Property Tax On Boats.
From slideplayer.com
Taxes and Financial Planning ppt download Does Michigan Have Personal Property Tax On Boats Sales tax, use or registration tax, and personal property tax. Generally, there are three taxes of concern to boat owners: Most boaters across michigan are not traveling on fancy yachts and will probably qualify for this tax deduction. Generally, a taxpayer does not owe personal property tax in the tax year the taxpayer first places assessable personal property in michigan.. Does Michigan Have Personal Property Tax On Boats.
From flyfin.tax
How the Property Tax Deduction Works for Homeowners Does Michigan Have Personal Property Tax On Boats The general property tax act provides for exemptions for certain categories. These local taxes can vary heavily county by county. Sales tax, use tax and personal property tax. The general property tax act provides for exemptions for certain categories of personal property including: Most boaters across michigan are not traveling on fancy yachts and will probably qualify for this tax. Does Michigan Have Personal Property Tax On Boats.
From www.templateroller.com
Form L4175 (632) Download Fillable PDF or Fill Online Personal Does Michigan Have Personal Property Tax On Boats Some states impose state rates plus a local tax. Sales tax, use or registration tax, and personal property tax. Generally, a taxpayer does not owe personal property tax in the tax year the taxpayer first places assessable personal property in michigan. These local taxes can vary heavily county by county. Generally, there are three taxes of concern to boat owners:. Does Michigan Have Personal Property Tax On Boats.
From www.signnow.com
Michigan 3966 20232024 Form Fill Out and Sign Printable PDF Template Does Michigan Have Personal Property Tax On Boats Some states impose state rates plus a local tax. Check with your state to see if. These local taxes can vary heavily county by county. The general property tax act provides for exemptions for certain categories of personal property including: The michigan personal property tax (ppt) is a tax levied on the value of tangible personal property used in business. Does Michigan Have Personal Property Tax On Boats.
From www.templateroller.com
Michigan Proof of Service for Property Tax Petition Fill Out, Sign Does Michigan Have Personal Property Tax On Boats Most boaters across michigan are not traveling on fancy yachts and will probably qualify for this tax deduction. The general property tax act provides for exemptions for certain categories. The general property tax act provides for exemptions for certain categories of personal property including: Some states impose state rates plus a local tax. There are three types of taxes which. Does Michigan Have Personal Property Tax On Boats.
From klawogzox.blob.core.windows.net
Lafourche Parish Property Tax Bill Search at Joseph Arellano blog Does Michigan Have Personal Property Tax On Boats Generally, a taxpayer does not owe personal property tax in the tax year the taxpayer first places assessable personal property in michigan. The general property tax act provides for exemptions for certain categories. The michigan personal property tax (ppt) is a tax levied on the value of tangible personal property used in business and. Generally, there are three taxes of. Does Michigan Have Personal Property Tax On Boats.
From sdgaccountant.com
Personal Property Tax SDG Accountants Does Michigan Have Personal Property Tax On Boats There are three types of taxes which can be levied on boats by state and local governments; The general property tax act provides for exemptions for certain categories of personal property including: Generally, there are three taxes of concern to boat owners: The general property tax act provides for exemptions for certain categories. These local taxes can vary heavily county. Does Michigan Have Personal Property Tax On Boats.
From www.lakeexpo.com
Who Should Get Your Boat's Personal Property Tax? Missouri Bill Tries Does Michigan Have Personal Property Tax On Boats The general property tax act provides for exemptions for certain categories. Some states impose state rates plus a local tax. Most boaters across michigan are not traveling on fancy yachts and will probably qualify for this tax deduction. Sales tax, use tax and personal property tax. The general property tax act provides for exemptions for certain categories of personal property. Does Michigan Have Personal Property Tax On Boats.