Dressing Room And Bathroom Combined . Discover pinterest’s best ideas and inspiration for dressing and bathroom combined. Amazing gallery of interior design and decorating ideas of bathroom dressing room combo in bathrooms by elite interior designers. Emily griffin turns two small rooms into a combined bathroom and dressing room design, complete with steam shower and double vanity. However, you do need to take certain considerations and factors into account when correctly integrating this space with your bedroom: A bathroom dressing room could become your new favourite place in the house. Amazing gallery of interior design and decorating ideas of bathroom dressing room combo in closets, nurseries, bathrooms,. What does a bedroom with a dressing room and bathroom need? Being able to integrate a bathroom dressing room into a bedroom will depend on several factors, not just the size of the space. A bathroom dressing room offers a multitude of benefits. One such versatile concept is creating a bathroom dressing room—a space that combines the functionality of a bathroom with the convenience of a dressing area. It provides a dedicated space for getting ready, whether it’s for work, a night out, or a special occasion. Get inspired and try out new things. If you already have a bathroom in your bedroom, why not add a closet area or dressing room to help create a sense of organization and serenity?
from www.pinterest.com
A bathroom dressing room offers a multitude of benefits. Get inspired and try out new things. What does a bedroom with a dressing room and bathroom need? Amazing gallery of interior design and decorating ideas of bathroom dressing room combo in closets, nurseries, bathrooms,. Being able to integrate a bathroom dressing room into a bedroom will depend on several factors, not just the size of the space. One such versatile concept is creating a bathroom dressing room—a space that combines the functionality of a bathroom with the convenience of a dressing area. Amazing gallery of interior design and decorating ideas of bathroom dressing room combo in bathrooms by elite interior designers. It provides a dedicated space for getting ready, whether it’s for work, a night out, or a special occasion. If you already have a bathroom in your bedroom, why not add a closet area or dressing room to help create a sense of organization and serenity? However, you do need to take certain considerations and factors into account when correctly integrating this space with your bedroom:
Wow, this is a nice master bathroom/dressing room Great bathrooms
Dressing Room And Bathroom Combined Amazing gallery of interior design and decorating ideas of bathroom dressing room combo in closets, nurseries, bathrooms,. Emily griffin turns two small rooms into a combined bathroom and dressing room design, complete with steam shower and double vanity. Discover pinterest’s best ideas and inspiration for dressing and bathroom combined. A bathroom dressing room offers a multitude of benefits. Get inspired and try out new things. One such versatile concept is creating a bathroom dressing room—a space that combines the functionality of a bathroom with the convenience of a dressing area. Being able to integrate a bathroom dressing room into a bedroom will depend on several factors, not just the size of the space. Amazing gallery of interior design and decorating ideas of bathroom dressing room combo in bathrooms by elite interior designers. A bathroom dressing room could become your new favourite place in the house. Amazing gallery of interior design and decorating ideas of bathroom dressing room combo in closets, nurseries, bathrooms,. If you already have a bathroom in your bedroom, why not add a closet area or dressing room to help create a sense of organization and serenity? However, you do need to take certain considerations and factors into account when correctly integrating this space with your bedroom: It provides a dedicated space for getting ready, whether it’s for work, a night out, or a special occasion. What does a bedroom with a dressing room and bathroom need?
From www.pinterest.com
New doors for my dressing room! Bathroom And Dressing Room Combined Dressing Room And Bathroom Combined Discover pinterest’s best ideas and inspiration for dressing and bathroom combined. Amazing gallery of interior design and decorating ideas of bathroom dressing room combo in bathrooms by elite interior designers. Amazing gallery of interior design and decorating ideas of bathroom dressing room combo in closets, nurseries, bathrooms,. Emily griffin turns two small rooms into a combined bathroom and dressing room. Dressing Room And Bathroom Combined.
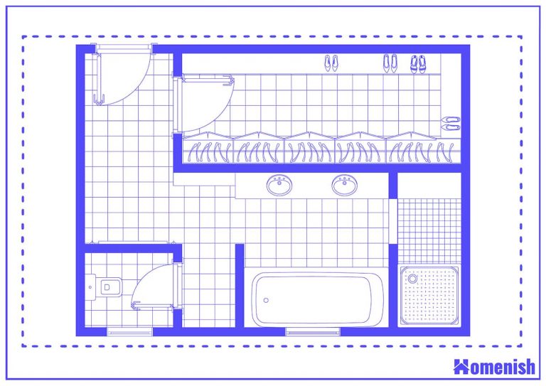
From www.homenish.com
15 Master Bathroom Layouts & Floor Plans Homenish Dressing Room And Bathroom Combined Discover pinterest’s best ideas and inspiration for dressing and bathroom combined. However, you do need to take certain considerations and factors into account when correctly integrating this space with your bedroom: A bathroom dressing room offers a multitude of benefits. If you already have a bathroom in your bedroom, why not add a closet area or dressing room to help. Dressing Room And Bathroom Combined.
From www.pinterest.com
Find the most effective dressing space ideas, designs & motivation to Dressing Room And Bathroom Combined However, you do need to take certain considerations and factors into account when correctly integrating this space with your bedroom: Emily griffin turns two small rooms into a combined bathroom and dressing room design, complete with steam shower and double vanity. A bathroom dressing room could become your new favourite place in the house. Amazing gallery of interior design and. Dressing Room And Bathroom Combined.
From www.pinterest.com
Wow, this is a nice master bathroom/dressing room Great bathrooms Dressing Room And Bathroom Combined If you already have a bathroom in your bedroom, why not add a closet area or dressing room to help create a sense of organization and serenity? Get inspired and try out new things. A bathroom dressing room could become your new favourite place in the house. Amazing gallery of interior design and decorating ideas of bathroom dressing room combo. Dressing Room And Bathroom Combined.
From www.pinterest.ca
Combined bathroom and dressing room design Chatelaine Dressing room Dressing Room And Bathroom Combined What does a bedroom with a dressing room and bathroom need? It provides a dedicated space for getting ready, whether it’s for work, a night out, or a special occasion. Emily griffin turns two small rooms into a combined bathroom and dressing room design, complete with steam shower and double vanity. If you already have a bathroom in your bedroom,. Dressing Room And Bathroom Combined.
From ar.inspiredpencil.com
Dressing Room With Bathroom Design Dressing Room And Bathroom Combined What does a bedroom with a dressing room and bathroom need? Get inspired and try out new things. Discover pinterest’s best ideas and inspiration for dressing and bathroom combined. If you already have a bathroom in your bedroom, why not add a closet area or dressing room to help create a sense of organization and serenity? Emily griffin turns two. Dressing Room And Bathroom Combined.
From thesethreerooms.com
Amazing dressing room ideas to inspire you Dressing Room And Bathroom Combined One such versatile concept is creating a bathroom dressing room—a space that combines the functionality of a bathroom with the convenience of a dressing area. However, you do need to take certain considerations and factors into account when correctly integrating this space with your bedroom: Amazing gallery of interior design and decorating ideas of bathroom dressing room combo in closets,. Dressing Room And Bathroom Combined.
From www.houzz.com
Her Dressing Room & Bathroom Bathroom Toronto by Toronto Interior Dressing Room And Bathroom Combined It provides a dedicated space for getting ready, whether it’s for work, a night out, or a special occasion. Emily griffin turns two small rooms into a combined bathroom and dressing room design, complete with steam shower and double vanity. If you already have a bathroom in your bedroom, why not add a closet area or dressing room to help. Dressing Room And Bathroom Combined.
From homeworlddesign.com
New York Apartment Gains a Spacious Luxury Bathroom and Dressing Room Dressing Room And Bathroom Combined Amazing gallery of interior design and decorating ideas of bathroom dressing room combo in bathrooms by elite interior designers. Amazing gallery of interior design and decorating ideas of bathroom dressing room combo in closets, nurseries, bathrooms,. If you already have a bathroom in your bedroom, why not add a closet area or dressing room to help create a sense of. Dressing Room And Bathroom Combined.
From www.pinterest.com
Make a combined bathroom, makeup room and dressing room with a stylish Dressing Room And Bathroom Combined However, you do need to take certain considerations and factors into account when correctly integrating this space with your bedroom: Discover pinterest’s best ideas and inspiration for dressing and bathroom combined. Amazing gallery of interior design and decorating ideas of bathroom dressing room combo in closets, nurseries, bathrooms,. What does a bedroom with a dressing room and bathroom need? A. Dressing Room And Bathroom Combined.
From www.home-designing.com
Ensuite dressing room Interior Design Ideas Dressing Room And Bathroom Combined A bathroom dressing room offers a multitude of benefits. Amazing gallery of interior design and decorating ideas of bathroom dressing room combo in closets, nurseries, bathrooms,. One such versatile concept is creating a bathroom dressing room—a space that combines the functionality of a bathroom with the convenience of a dressing area. What does a bedroom with a dressing room and. Dressing Room And Bathroom Combined.
From jtcvietnam.edu.vn
Top 145+ bathroom and dressing room combined jtcvietnam.edu.vn Dressing Room And Bathroom Combined A bathroom dressing room could become your new favourite place in the house. A bathroom dressing room offers a multitude of benefits. What does a bedroom with a dressing room and bathroom need? Being able to integrate a bathroom dressing room into a bedroom will depend on several factors, not just the size of the space. However, you do need. Dressing Room And Bathroom Combined.
From www.pinterest.co.kr
Open Plan Bedroom, Ensuite, and Dressing Room Dressing Room And Bathroom Combined Being able to integrate a bathroom dressing room into a bedroom will depend on several factors, not just the size of the space. However, you do need to take certain considerations and factors into account when correctly integrating this space with your bedroom: Amazing gallery of interior design and decorating ideas of bathroom dressing room combo in closets, nurseries, bathrooms,.. Dressing Room And Bathroom Combined.
From www.pinterest.co.uk
Light Grey WalkIn Wardrobe or Dressing Room Small dressing rooms Dressing Room And Bathroom Combined Amazing gallery of interior design and decorating ideas of bathroom dressing room combo in bathrooms by elite interior designers. Emily griffin turns two small rooms into a combined bathroom and dressing room design, complete with steam shower and double vanity. Discover pinterest’s best ideas and inspiration for dressing and bathroom combined. It provides a dedicated space for getting ready, whether. Dressing Room And Bathroom Combined.
From inhouseoxford.co.uk
Ensuite Bathroom and Dressing Room Kitchen and Bathroom Designer in Dressing Room And Bathroom Combined Get inspired and try out new things. Amazing gallery of interior design and decorating ideas of bathroom dressing room combo in closets, nurseries, bathrooms,. A bathroom dressing room offers a multitude of benefits. Being able to integrate a bathroom dressing room into a bedroom will depend on several factors, not just the size of the space. However, you do need. Dressing Room And Bathroom Combined.
From www.pinterest.com
Bedroom & bathroom (bathroom, dressing room space) on Behance Dressing Room And Bathroom Combined Get inspired and try out new things. What does a bedroom with a dressing room and bathroom need? One such versatile concept is creating a bathroom dressing room—a space that combines the functionality of a bathroom with the convenience of a dressing area. Being able to integrate a bathroom dressing room into a bedroom will depend on several factors, not. Dressing Room And Bathroom Combined.
From www.artofit.org
Closet bathroom combo layout Artofit Dressing Room And Bathroom Combined However, you do need to take certain considerations and factors into account when correctly integrating this space with your bedroom: Being able to integrate a bathroom dressing room into a bedroom will depend on several factors, not just the size of the space. A bathroom dressing room could become your new favourite place in the house. If you already have. Dressing Room And Bathroom Combined.
From www.home-designing.com
Dressing Room Bathroom Interior Design Ideas Dressing Room And Bathroom Combined Amazing gallery of interior design and decorating ideas of bathroom dressing room combo in bathrooms by elite interior designers. However, you do need to take certain considerations and factors into account when correctly integrating this space with your bedroom: A bathroom dressing room offers a multitude of benefits. Amazing gallery of interior design and decorating ideas of bathroom dressing room. Dressing Room And Bathroom Combined.
From www.houzz.com.au
Intimate (170sf) Accessible MasterBathroom/Dressing Area for an Artist Dressing Room And Bathroom Combined Discover pinterest’s best ideas and inspiration for dressing and bathroom combined. Emily griffin turns two small rooms into a combined bathroom and dressing room design, complete with steam shower and double vanity. Amazing gallery of interior design and decorating ideas of bathroom dressing room combo in bathrooms by elite interior designers. What does a bedroom with a dressing room and. Dressing Room And Bathroom Combined.
From www.pinterest.com
1000+ images about Master bath closet combo on Pinterest Walk in Dressing Room And Bathroom Combined Amazing gallery of interior design and decorating ideas of bathroom dressing room combo in bathrooms by elite interior designers. One such versatile concept is creating a bathroom dressing room—a space that combines the functionality of a bathroom with the convenience of a dressing area. However, you do need to take certain considerations and factors into account when correctly integrating this. Dressing Room And Bathroom Combined.
From www.behance.net
Master Bedroom "Bedroom + Dressing room + Bathroom" on Behance Dressing Room And Bathroom Combined Get inspired and try out new things. Amazing gallery of interior design and decorating ideas of bathroom dressing room combo in bathrooms by elite interior designers. It provides a dedicated space for getting ready, whether it’s for work, a night out, or a special occasion. A bathroom dressing room could become your new favourite place in the house. If you. Dressing Room And Bathroom Combined.
From www.inkl.com
Bathroom dressing rooms 10 elegant ideas for getting… Dressing Room And Bathroom Combined One such versatile concept is creating a bathroom dressing room—a space that combines the functionality of a bathroom with the convenience of a dressing area. Emily griffin turns two small rooms into a combined bathroom and dressing room design, complete with steam shower and double vanity. However, you do need to take certain considerations and factors into account when correctly. Dressing Room And Bathroom Combined.
From www.pinterest.co.uk
A Master Dressing Room & En Suite Transformation Bathroom design Dressing Room And Bathroom Combined Amazing gallery of interior design and decorating ideas of bathroom dressing room combo in closets, nurseries, bathrooms,. A bathroom dressing room could become your new favourite place in the house. It provides a dedicated space for getting ready, whether it’s for work, a night out, or a special occasion. However, you do need to take certain considerations and factors into. Dressing Room And Bathroom Combined.
From www.chatelaine.com
Combined bathroom and dressing room design Chatelaine Dressing Room And Bathroom Combined What does a bedroom with a dressing room and bathroom need? Amazing gallery of interior design and decorating ideas of bathroom dressing room combo in bathrooms by elite interior designers. However, you do need to take certain considerations and factors into account when correctly integrating this space with your bedroom: Get inspired and try out new things. If you already. Dressing Room And Bathroom Combined.
From www.cliqstudios.com
Easy to Avoid Designer Don'ts With Bathroom Remodels Dressing Room And Bathroom Combined What does a bedroom with a dressing room and bathroom need? One such versatile concept is creating a bathroom dressing room—a space that combines the functionality of a bathroom with the convenience of a dressing area. A bathroom dressing room offers a multitude of benefits. Amazing gallery of interior design and decorating ideas of bathroom dressing room combo in bathrooms. Dressing Room And Bathroom Combined.
From clubhousebarberini.com
Bathroom Walk In Closet Designs Image of Bathroom and Closet Dressing Room And Bathroom Combined Amazing gallery of interior design and decorating ideas of bathroom dressing room combo in bathrooms by elite interior designers. Amazing gallery of interior design and decorating ideas of bathroom dressing room combo in closets, nurseries, bathrooms,. Emily griffin turns two small rooms into a combined bathroom and dressing room design, complete with steam shower and double vanity. One such versatile. Dressing Room And Bathroom Combined.
From www.pinterest.com
25+ Best Modern Dressing Rooms For Women Style Walk in closet design Dressing Room And Bathroom Combined A bathroom dressing room offers a multitude of benefits. A bathroom dressing room could become your new favourite place in the house. However, you do need to take certain considerations and factors into account when correctly integrating this space with your bedroom: Amazing gallery of interior design and decorating ideas of bathroom dressing room combo in closets, nurseries, bathrooms,. Emily. Dressing Room And Bathroom Combined.
From interiordesigners.net
Master suite dressing room, ensuite and bespoke joinery unit / 3000 Dressing Room And Bathroom Combined Amazing gallery of interior design and decorating ideas of bathroom dressing room combo in bathrooms by elite interior designers. However, you do need to take certain considerations and factors into account when correctly integrating this space with your bedroom: Being able to integrate a bathroom dressing room into a bedroom will depend on several factors, not just the size of. Dressing Room And Bathroom Combined.
From crystalkitchen.com
Luxury Dressing Room Bathroom Remodel Minneapolis, MN Dressing Room And Bathroom Combined A bathroom dressing room offers a multitude of benefits. Being able to integrate a bathroom dressing room into a bedroom will depend on several factors, not just the size of the space. It provides a dedicated space for getting ready, whether it’s for work, a night out, or a special occasion. Amazing gallery of interior design and decorating ideas of. Dressing Room And Bathroom Combined.
From www.homestratosphere.com
How to Create the Dressing Room of Your Dreams 40 Tips Dressing Room And Bathroom Combined Emily griffin turns two small rooms into a combined bathroom and dressing room design, complete with steam shower and double vanity. Amazing gallery of interior design and decorating ideas of bathroom dressing room combo in closets, nurseries, bathrooms,. Get inspired and try out new things. What does a bedroom with a dressing room and bathroom need? A bathroom dressing room. Dressing Room And Bathroom Combined.
From ar.inspiredpencil.com
Dressing Room With Bathroom Design Dressing Room And Bathroom Combined Get inspired and try out new things. Amazing gallery of interior design and decorating ideas of bathroom dressing room combo in bathrooms by elite interior designers. Discover pinterest’s best ideas and inspiration for dressing and bathroom combined. A bathroom dressing room could become your new favourite place in the house. It provides a dedicated space for getting ready, whether it’s. Dressing Room And Bathroom Combined.
From vegarch.com
MASTER BATH & DRESSING ROOM REMODEL VEGA, inc Dressing Room And Bathroom Combined One such versatile concept is creating a bathroom dressing room—a space that combines the functionality of a bathroom with the convenience of a dressing area. Emily griffin turns two small rooms into a combined bathroom and dressing room design, complete with steam shower and double vanity. A bathroom dressing room offers a multitude of benefits. Being able to integrate a. Dressing Room And Bathroom Combined.
From www.pinterest.com
Bedroom bathroom (bathroom, dressing room space) on Behance Dressing Dressing Room And Bathroom Combined However, you do need to take certain considerations and factors into account when correctly integrating this space with your bedroom: A bathroom dressing room could become your new favourite place in the house. Emily griffin turns two small rooms into a combined bathroom and dressing room design, complete with steam shower and double vanity. Get inspired and try out new. Dressing Room And Bathroom Combined.
From pinklavatory.blogspot.com
Small Master Bathroom And Closet Combo Dressing Room And Bathroom Combined One such versatile concept is creating a bathroom dressing room—a space that combines the functionality of a bathroom with the convenience of a dressing area. Emily griffin turns two small rooms into a combined bathroom and dressing room design, complete with steam shower and double vanity. Being able to integrate a bathroom dressing room into a bedroom will depend on. Dressing Room And Bathroom Combined.
From www.pinterest.ph
44 The Best Wardrobe Design Ideas that you Can Try Dressing Room And Bathroom Combined One such versatile concept is creating a bathroom dressing room—a space that combines the functionality of a bathroom with the convenience of a dressing area. A bathroom dressing room offers a multitude of benefits. Amazing gallery of interior design and decorating ideas of bathroom dressing room combo in bathrooms by elite interior designers. Amazing gallery of interior design and decorating. Dressing Room And Bathroom Combined.