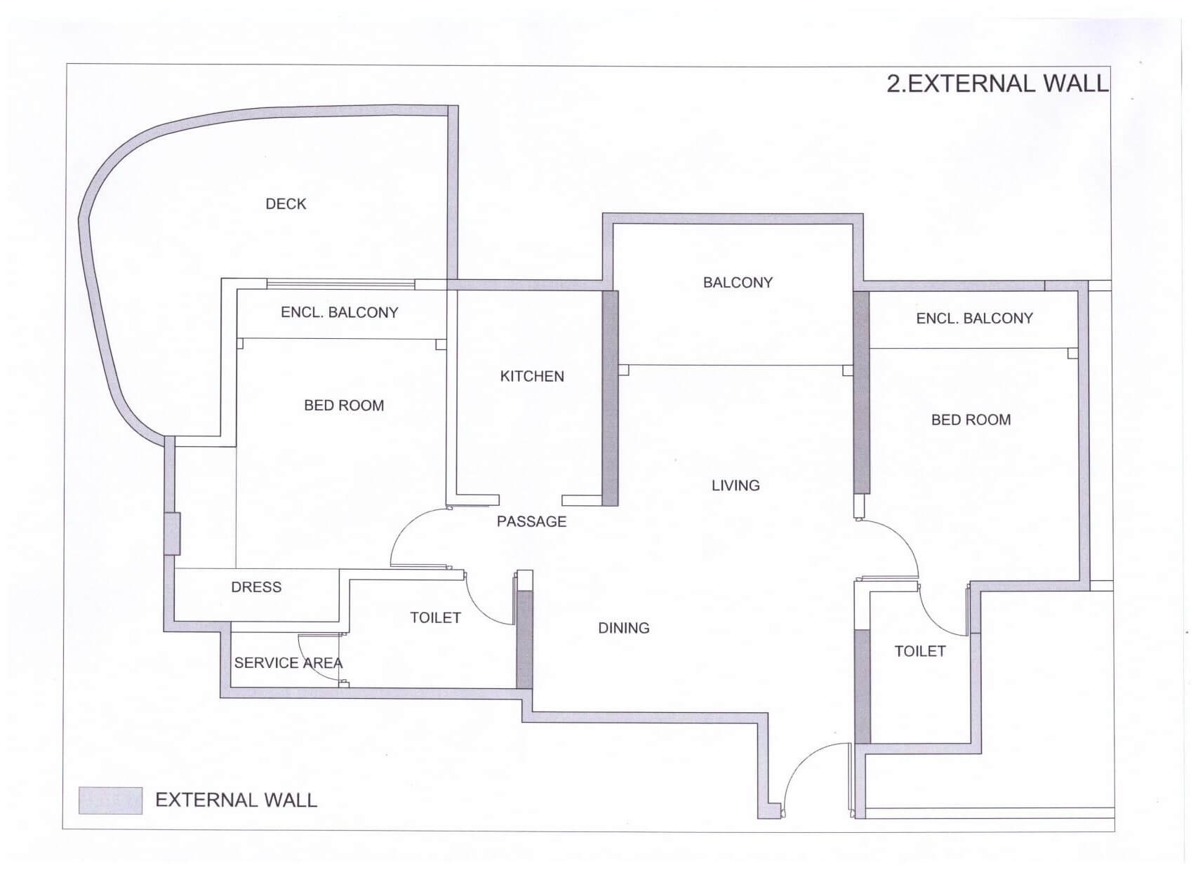
Is Balcony Included In Carpet Area As Per Rera . According to the rera, carpet area is defined as ‘the net usable floor area of an apartment, excluding the area covered by the. It excludes the area covered by the external walls, space under service shafts, balcony or verandah, open terrace area, etc. According to rera (real estate regulatory authority), carpet area is an apartment’s net usable floor area+internal walls, excluding the. In simple words, the definition clearly states that the carpet area. The clarification of “does carpet area include balcony” under rera has significant implications for property valuation, potentially affecting the price per square. Carpet area as per rera is a valuable metric but varies from the usable carpet area of an apartment. And one more minor change is that, the balconies were used to be included under the carpet area as you can see in the living room and bedroom marked as red cross, earlier it used to be.
from www.hutshut.com
According to rera (real estate regulatory authority), carpet area is an apartment’s net usable floor area+internal walls, excluding the. It excludes the area covered by the external walls, space under service shafts, balcony or verandah, open terrace area, etc. And one more minor change is that, the balconies were used to be included under the carpet area as you can see in the living room and bedroom marked as red cross, earlier it used to be. Carpet area as per rera is a valuable metric but varies from the usable carpet area of an apartment. In simple words, the definition clearly states that the carpet area. The clarification of “does carpet area include balcony” under rera has significant implications for property valuation, potentially affecting the price per square. According to the rera, carpet area is defined as ‘the net usable floor area of an apartment, excluding the area covered by the.
What is RERA Carpet? RERA Carpet Area, Builtup Area, & Super Builtup
Is Balcony Included In Carpet Area As Per Rera Carpet area as per rera is a valuable metric but varies from the usable carpet area of an apartment. The clarification of “does carpet area include balcony” under rera has significant implications for property valuation, potentially affecting the price per square. Carpet area as per rera is a valuable metric but varies from the usable carpet area of an apartment. And one more minor change is that, the balconies were used to be included under the carpet area as you can see in the living room and bedroom marked as red cross, earlier it used to be. In simple words, the definition clearly states that the carpet area. According to the rera, carpet area is defined as ‘the net usable floor area of an apartment, excluding the area covered by the. It excludes the area covered by the external walls, space under service shafts, balcony or verandah, open terrace area, etc. According to rera (real estate regulatory authority), carpet area is an apartment’s net usable floor area+internal walls, excluding the.
From www.kadvacorp.com
How to calculate MAHA RERA carpet area definition Is Balcony Included In Carpet Area As Per Rera According to rera (real estate regulatory authority), carpet area is an apartment’s net usable floor area+internal walls, excluding the. According to the rera, carpet area is defined as ‘the net usable floor area of an apartment, excluding the area covered by the. The clarification of “does carpet area include balcony” under rera has significant implications for property valuation, potentially affecting. Is Balcony Included In Carpet Area As Per Rera.
From atishlolienkar.com
How To Calculate Carpet Area Of Apartment As Per RERA Guidelines Is Balcony Included In Carpet Area As Per Rera According to the rera, carpet area is defined as ‘the net usable floor area of an apartment, excluding the area covered by the. And one more minor change is that, the balconies were used to be included under the carpet area as you can see in the living room and bedroom marked as red cross, earlier it used to be.. Is Balcony Included In Carpet Area As Per Rera.
From www.youtube.com
Carpet Area , Built Up Area, Super Built up Area as per RERA Is Balcony Included In Carpet Area As Per Rera It excludes the area covered by the external walls, space under service shafts, balcony or verandah, open terrace area, etc. Carpet area as per rera is a valuable metric but varies from the usable carpet area of an apartment. According to rera (real estate regulatory authority), carpet area is an apartment’s net usable floor area+internal walls, excluding the. The clarification. Is Balcony Included In Carpet Area As Per Rera.
From www.youtube.com
What is Enclosed Balcony? Rera Carpet How to Calculate Total Area Is Balcony Included In Carpet Area As Per Rera Carpet area as per rera is a valuable metric but varies from the usable carpet area of an apartment. And one more minor change is that, the balconies were used to be included under the carpet area as you can see in the living room and bedroom marked as red cross, earlier it used to be. According to rera (real. Is Balcony Included In Carpet Area As Per Rera.
From reramaharashtra.blogspot.com
Carpet Area as per RERA Is Balcony Included In Carpet Area As Per Rera In simple words, the definition clearly states that the carpet area. According to the rera, carpet area is defined as ‘the net usable floor area of an apartment, excluding the area covered by the. It excludes the area covered by the external walls, space under service shafts, balcony or verandah, open terrace area, etc. The clarification of “does carpet area. Is Balcony Included In Carpet Area As Per Rera.
From civillane.com
What is carpet area as per RERA act CivilLane Is Balcony Included In Carpet Area As Per Rera It excludes the area covered by the external walls, space under service shafts, balcony or verandah, open terrace area, etc. According to rera (real estate regulatory authority), carpet area is an apartment’s net usable floor area+internal walls, excluding the. Carpet area as per rera is a valuable metric but varies from the usable carpet area of an apartment. And one. Is Balcony Included In Carpet Area As Per Rera.
From civiljungle.com
What Is Carpet Area What Is BuiltUp Area What Is Super BuiltUp Is Balcony Included In Carpet Area As Per Rera According to the rera, carpet area is defined as ‘the net usable floor area of an apartment, excluding the area covered by the. The clarification of “does carpet area include balcony” under rera has significant implications for property valuation, potentially affecting the price per square. Carpet area as per rera is a valuable metric but varies from the usable carpet. Is Balcony Included In Carpet Area As Per Rera.
From www.kadvacorp.com
How to calculate MAHA RERA carpet area definition Kadva Corp Is Balcony Included In Carpet Area As Per Rera The clarification of “does carpet area include balcony” under rera has significant implications for property valuation, potentially affecting the price per square. Carpet area as per rera is a valuable metric but varies from the usable carpet area of an apartment. And one more minor change is that, the balconies were used to be included under the carpet area as. Is Balcony Included In Carpet Area As Per Rera.
From atishlolienkar.com
How To Calculate Carpet Area Of Apartment As Per RERA Guidelines Is Balcony Included In Carpet Area As Per Rera According to rera (real estate regulatory authority), carpet area is an apartment’s net usable floor area+internal walls, excluding the. It excludes the area covered by the external walls, space under service shafts, balcony or verandah, open terrace area, etc. And one more minor change is that, the balconies were used to be included under the carpet area as you can. Is Balcony Included In Carpet Area As Per Rera.
From www.resnooze.com
Carpet Area Definition As Per Nbc Is Balcony Included In Carpet Area As Per Rera Carpet area as per rera is a valuable metric but varies from the usable carpet area of an apartment. In simple words, the definition clearly states that the carpet area. And one more minor change is that, the balconies were used to be included under the carpet area as you can see in the living room and bedroom marked as. Is Balcony Included In Carpet Area As Per Rera.
From www.hutshut.com
What is RERA Carpet? RERA Carpet Area, Builtup Area, & Super Builtup Is Balcony Included In Carpet Area As Per Rera Carpet area as per rera is a valuable metric but varies from the usable carpet area of an apartment. The clarification of “does carpet area include balcony” under rera has significant implications for property valuation, potentially affecting the price per square. And one more minor change is that, the balconies were used to be included under the carpet area as. Is Balcony Included In Carpet Area As Per Rera.
From reramaharashtra.blogspot.com
Carpet Area as per RERA Is Balcony Included In Carpet Area As Per Rera Carpet area as per rera is a valuable metric but varies from the usable carpet area of an apartment. According to rera (real estate regulatory authority), carpet area is an apartment’s net usable floor area+internal walls, excluding the. It excludes the area covered by the external walls, space under service shafts, balcony or verandah, open terrace area, etc. And one. Is Balcony Included In Carpet Area As Per Rera.
From www.hutshut.com
What is RERA Carpet? RERA Carpet Area, Builtup Area, & Super Builtup Is Balcony Included In Carpet Area As Per Rera According to rera (real estate regulatory authority), carpet area is an apartment’s net usable floor area+internal walls, excluding the. Carpet area as per rera is a valuable metric but varies from the usable carpet area of an apartment. The clarification of “does carpet area include balcony” under rera has significant implications for property valuation, potentially affecting the price per square.. Is Balcony Included In Carpet Area As Per Rera.
From civillane.com
What is Carpet Area as per RERA act CivilLane Is Balcony Included In Carpet Area As Per Rera The clarification of “does carpet area include balcony” under rera has significant implications for property valuation, potentially affecting the price per square. According to the rera, carpet area is defined as ‘the net usable floor area of an apartment, excluding the area covered by the. According to rera (real estate regulatory authority), carpet area is an apartment’s net usable floor. Is Balcony Included In Carpet Area As Per Rera.
From greenarchworld.com
What is Rera Carpet Area? How is RERA Carpet calculated? Green Arch World Is Balcony Included In Carpet Area As Per Rera Carpet area as per rera is a valuable metric but varies from the usable carpet area of an apartment. The clarification of “does carpet area include balcony” under rera has significant implications for property valuation, potentially affecting the price per square. And one more minor change is that, the balconies were used to be included under the carpet area as. Is Balcony Included In Carpet Area As Per Rera.
From nemmadi.in
RERA Carpet Area Legal Insights and Measurement Guide Nemmadi Is Balcony Included In Carpet Area As Per Rera Carpet area as per rera is a valuable metric but varies from the usable carpet area of an apartment. According to the rera, carpet area is defined as ‘the net usable floor area of an apartment, excluding the area covered by the. According to rera (real estate regulatory authority), carpet area is an apartment’s net usable floor area+internal walls, excluding. Is Balcony Included In Carpet Area As Per Rera.
From www.resnooze.com
What Is Included In Rera Carpet Area Is Balcony Included In Carpet Area As Per Rera In simple words, the definition clearly states that the carpet area. And one more minor change is that, the balconies were used to be included under the carpet area as you can see in the living room and bedroom marked as red cross, earlier it used to be. Carpet area as per rera is a valuable metric but varies from. Is Balcony Included In Carpet Area As Per Rera.
From www.youtube.com
What is RERA Carpet Area of an Apartment? YouTube Is Balcony Included In Carpet Area As Per Rera The clarification of “does carpet area include balcony” under rera has significant implications for property valuation, potentially affecting the price per square. According to rera (real estate regulatory authority), carpet area is an apartment’s net usable floor area+internal walls, excluding the. And one more minor change is that, the balconies were used to be included under the carpet area as. Is Balcony Included In Carpet Area As Per Rera.
From marathon.in
RERA Carpet Area, Builtup & Super Builtup Area Explained Is Balcony Included In Carpet Area As Per Rera In simple words, the definition clearly states that the carpet area. And one more minor change is that, the balconies were used to be included under the carpet area as you can see in the living room and bedroom marked as red cross, earlier it used to be. Carpet area as per rera is a valuable metric but varies from. Is Balcony Included In Carpet Area As Per Rera.
From www.housingman.com
Difference Between Carpet Area, Builtup Area and Super Built up Area Is Balcony Included In Carpet Area As Per Rera According to rera (real estate regulatory authority), carpet area is an apartment’s net usable floor area+internal walls, excluding the. And one more minor change is that, the balconies were used to be included under the carpet area as you can see in the living room and bedroom marked as red cross, earlier it used to be. It excludes the area. Is Balcony Included In Carpet Area As Per Rera.
From nemmadi.in
Why RERA carpet area matters to a home buyer Is Balcony Included In Carpet Area As Per Rera The clarification of “does carpet area include balcony” under rera has significant implications for property valuation, potentially affecting the price per square. In simple words, the definition clearly states that the carpet area. Carpet area as per rera is a valuable metric but varies from the usable carpet area of an apartment. And one more minor change is that, the. Is Balcony Included In Carpet Area As Per Rera.
From www.youtube.com
Carpet Area Built Up Area and Super Built Up Area as per RERA YouTube Is Balcony Included In Carpet Area As Per Rera The clarification of “does carpet area include balcony” under rera has significant implications for property valuation, potentially affecting the price per square. And one more minor change is that, the balconies were used to be included under the carpet area as you can see in the living room and bedroom marked as red cross, earlier it used to be. According. Is Balcony Included In Carpet Area As Per Rera.
From www.stkittsvilla.com
Carpet Area Definition As Per Rera Act Is Balcony Included In Carpet Area As Per Rera In simple words, the definition clearly states that the carpet area. It excludes the area covered by the external walls, space under service shafts, balcony or verandah, open terrace area, etc. According to rera (real estate regulatory authority), carpet area is an apartment’s net usable floor area+internal walls, excluding the. Carpet area as per rera is a valuable metric but. Is Balcony Included In Carpet Area As Per Rera.
From www.hutshut.com
What is RERA Carpet? RERA Carpet Area, Builtup Area, & Super Builtup Is Balcony Included In Carpet Area As Per Rera According to the rera, carpet area is defined as ‘the net usable floor area of an apartment, excluding the area covered by the. And one more minor change is that, the balconies were used to be included under the carpet area as you can see in the living room and bedroom marked as red cross, earlier it used to be.. Is Balcony Included In Carpet Area As Per Rera.
From mybios.me
Rera Carpet Area Calculator Bios Pics Is Balcony Included In Carpet Area As Per Rera According to the rera, carpet area is defined as ‘the net usable floor area of an apartment, excluding the area covered by the. It excludes the area covered by the external walls, space under service shafts, balcony or verandah, open terrace area, etc. According to rera (real estate regulatory authority), carpet area is an apartment’s net usable floor area+internal walls,. Is Balcony Included In Carpet Area As Per Rera.
From www.agrocorp.co.in
What is RERA Carpet Area Meaning An Ultimate Guide Is Balcony Included In Carpet Area As Per Rera Carpet area as per rera is a valuable metric but varies from the usable carpet area of an apartment. The clarification of “does carpet area include balcony” under rera has significant implications for property valuation, potentially affecting the price per square. And one more minor change is that, the balconies were used to be included under the carpet area as. Is Balcony Included In Carpet Area As Per Rera.
From www.youtube.com
What is carpet area according to RERA? In English YouTube Is Balcony Included In Carpet Area As Per Rera It excludes the area covered by the external walls, space under service shafts, balcony or verandah, open terrace area, etc. According to the rera, carpet area is defined as ‘the net usable floor area of an apartment, excluding the area covered by the. Carpet area as per rera is a valuable metric but varies from the usable carpet area of. Is Balcony Included In Carpet Area As Per Rera.
From www.hutshut.com
What is RERA Carpet? RERA Carpet Area, Builtup Area, & Super Builtup Is Balcony Included In Carpet Area As Per Rera According to the rera, carpet area is defined as ‘the net usable floor area of an apartment, excluding the area covered by the. In simple words, the definition clearly states that the carpet area. It excludes the area covered by the external walls, space under service shafts, balcony or verandah, open terrace area, etc. The clarification of “does carpet area. Is Balcony Included In Carpet Area As Per Rera.
From www.nobroker.in
What is RERA Carpet Area Meaning Definition and Calculator Is Balcony Included In Carpet Area As Per Rera In simple words, the definition clearly states that the carpet area. Carpet area as per rera is a valuable metric but varies from the usable carpet area of an apartment. According to rera (real estate regulatory authority), carpet area is an apartment’s net usable floor area+internal walls, excluding the. According to the rera, carpet area is defined as ‘the net. Is Balcony Included In Carpet Area As Per Rera.
From greenarchworld.com
What is Rera Carpet Area? How is RERA Carpet calculated? Green Arch World Is Balcony Included In Carpet Area As Per Rera In simple words, the definition clearly states that the carpet area. The clarification of “does carpet area include balcony” under rera has significant implications for property valuation, potentially affecting the price per square. It excludes the area covered by the external walls, space under service shafts, balcony or verandah, open terrace area, etc. According to rera (real estate regulatory authority),. Is Balcony Included In Carpet Area As Per Rera.
From marathon.in
RERA Carpet Area, Builtup & Super Builtup Area Explained Is Balcony Included In Carpet Area As Per Rera In simple words, the definition clearly states that the carpet area. It excludes the area covered by the external walls, space under service shafts, balcony or verandah, open terrace area, etc. Carpet area as per rera is a valuable metric but varies from the usable carpet area of an apartment. The clarification of “does carpet area include balcony” under rera. Is Balcony Included In Carpet Area As Per Rera.
From www.kadvacorp.com
How to calculate MAHA RERA carpet area definition Kadva Corp Is Balcony Included In Carpet Area As Per Rera According to the rera, carpet area is defined as ‘the net usable floor area of an apartment, excluding the area covered by the. It excludes the area covered by the external walls, space under service shafts, balcony or verandah, open terrace area, etc. Carpet area as per rera is a valuable metric but varies from the usable carpet area of. Is Balcony Included In Carpet Area As Per Rera.
From reramaharashtra.blogspot.com
Carpet Area as per RERA Is Balcony Included In Carpet Area As Per Rera In simple words, the definition clearly states that the carpet area. The clarification of “does carpet area include balcony” under rera has significant implications for property valuation, potentially affecting the price per square. According to rera (real estate regulatory authority), carpet area is an apartment’s net usable floor area+internal walls, excluding the. Carpet area as per rera is a valuable. Is Balcony Included In Carpet Area As Per Rera.
From www.stkittsvilla.com
Carpet Area Definition As Per Rera Act Is Balcony Included In Carpet Area As Per Rera And one more minor change is that, the balconies were used to be included under the carpet area as you can see in the living room and bedroom marked as red cross, earlier it used to be. The clarification of “does carpet area include balcony” under rera has significant implications for property valuation, potentially affecting the price per square. According. Is Balcony Included In Carpet Area As Per Rera.
From www.youtube.com
carpet area, built up area, super built up area as per RERA Is Balcony Included In Carpet Area As Per Rera According to rera (real estate regulatory authority), carpet area is an apartment’s net usable floor area+internal walls, excluding the. In simple words, the definition clearly states that the carpet area. According to the rera, carpet area is defined as ‘the net usable floor area of an apartment, excluding the area covered by the. And one more minor change is that,. Is Balcony Included In Carpet Area As Per Rera.