Crane Lifting Plan Method Statement . basic or standard lift plan may be incorporated into a complete erection method statement. Nb 50% reduction in load capability if man. responsible for planning and controlling all aspects of the lift, (producing the lift plan, method statement, risk assessment and. you should seek your own professional advice to determine if the use of a template is permissible in your workplace or jurisdiction. stfc lifting plan, risk assessment and method statement. use this checklist before carrying out a lifting operation. Find below safe work lifting plan template for use in crane lifting process. The plan also typically deals with issues such as setting up the crane. This lifting plan sample also provides.
from www.3dliftplan.com
This lifting plan sample also provides. you should seek your own professional advice to determine if the use of a template is permissible in your workplace or jurisdiction. responsible for planning and controlling all aspects of the lift, (producing the lift plan, method statement, risk assessment and. The plan also typically deals with issues such as setting up the crane. Find below safe work lifting plan template for use in crane lifting process. use this checklist before carrying out a lifting operation. Nb 50% reduction in load capability if man. stfc lifting plan, risk assessment and method statement. basic or standard lift plan may be incorporated into a complete erection method statement.
3D Lift Plan Crane Lift Planning Software
Crane Lifting Plan Method Statement Find below safe work lifting plan template for use in crane lifting process. stfc lifting plan, risk assessment and method statement. This lifting plan sample also provides. you should seek your own professional advice to determine if the use of a template is permissible in your workplace or jurisdiction. Nb 50% reduction in load capability if man. responsible for planning and controlling all aspects of the lift, (producing the lift plan, method statement, risk assessment and. Find below safe work lifting plan template for use in crane lifting process. use this checklist before carrying out a lifting operation. basic or standard lift plan may be incorporated into a complete erection method statement. The plan also typically deals with issues such as setting up the crane.
From www.vrogue.co
Crane Lifting Plan Method Statement And Risk Assessme vrogue.co Crane Lifting Plan Method Statement stfc lifting plan, risk assessment and method statement. you should seek your own professional advice to determine if the use of a template is permissible in your workplace or jurisdiction. The plan also typically deals with issues such as setting up the crane. use this checklist before carrying out a lifting operation. Nb 50% reduction in load. Crane Lifting Plan Method Statement.
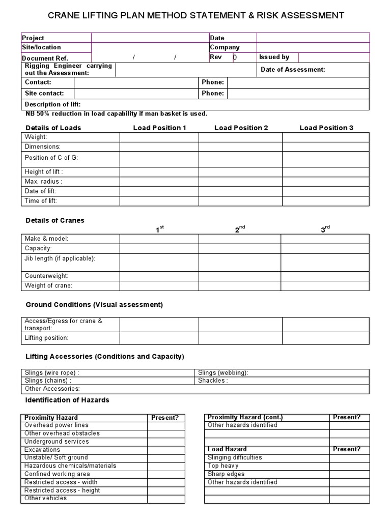
From www.scribd.com
Crane Lifting Plan Method Statement and Risk Assessment(1) Crane Crane Lifting Plan Method Statement Nb 50% reduction in load capability if man. stfc lifting plan, risk assessment and method statement. Find below safe work lifting plan template for use in crane lifting process. This lifting plan sample also provides. you should seek your own professional advice to determine if the use of a template is permissible in your workplace or jurisdiction. . Crane Lifting Plan Method Statement.
From www.haspod.com
Crane Lifting Method Statement Template HASpod Crane Lifting Plan Method Statement you should seek your own professional advice to determine if the use of a template is permissible in your workplace or jurisdiction. responsible for planning and controlling all aspects of the lift, (producing the lift plan, method statement, risk assessment and. The plan also typically deals with issues such as setting up the crane. This lifting plan sample. Crane Lifting Plan Method Statement.
From www.vrogue.co
Crane Lifting Plan Method Statement And Risk Assessme vrogue.co Crane Lifting Plan Method Statement you should seek your own professional advice to determine if the use of a template is permissible in your workplace or jurisdiction. use this checklist before carrying out a lifting operation. basic or standard lift plan may be incorporated into a complete erection method statement. This lifting plan sample also provides. The plan also typically deals with. Crane Lifting Plan Method Statement.
From templates.hilarious.edu.np
Crane Lift Plan Template Crane Lifting Plan Method Statement The plan also typically deals with issues such as setting up the crane. This lifting plan sample also provides. use this checklist before carrying out a lifting operation. you should seek your own professional advice to determine if the use of a template is permissible in your workplace or jurisdiction. stfc lifting plan, risk assessment and method. Crane Lifting Plan Method Statement.
From repairpoo.weebly.com
Crane lift plan method statement repairpoo Crane Lifting Plan Method Statement responsible for planning and controlling all aspects of the lift, (producing the lift plan, method statement, risk assessment and. This lifting plan sample also provides. Nb 50% reduction in load capability if man. The plan also typically deals with issues such as setting up the crane. basic or standard lift plan may be incorporated into a complete erection. Crane Lifting Plan Method Statement.
From denner-shop-test-web02.denner.ch
Crane Lifting Plan Template Crane Lifting Plan Method Statement responsible for planning and controlling all aspects of the lift, (producing the lift plan, method statement, risk assessment and. you should seek your own professional advice to determine if the use of a template is permissible in your workplace or jurisdiction. The plan also typically deals with issues such as setting up the crane. Nb 50% reduction in. Crane Lifting Plan Method Statement.
From www.hsedocuments.com
Crane Lift Plan (CLP)Planning and Process HSE Documents Crane Lifting Plan Method Statement The plan also typically deals with issues such as setting up the crane. responsible for planning and controlling all aspects of the lift, (producing the lift plan, method statement, risk assessment and. stfc lifting plan, risk assessment and method statement. This lifting plan sample also provides. use this checklist before carrying out a lifting operation. Find below. Crane Lifting Plan Method Statement.
From www.slideshare.net
Lifting plan Crane Lifting Plan Method Statement basic or standard lift plan may be incorporated into a complete erection method statement. Find below safe work lifting plan template for use in crane lifting process. The plan also typically deals with issues such as setting up the crane. Nb 50% reduction in load capability if man. This lifting plan sample also provides. use this checklist before. Crane Lifting Plan Method Statement.
From methodstatementhq.com
Lifting Plan Template Sample for Crane Lift HSE Method Statement HQ Crane Lifting Plan Method Statement The plan also typically deals with issues such as setting up the crane. Find below safe work lifting plan template for use in crane lifting process. This lifting plan sample also provides. stfc lifting plan, risk assessment and method statement. responsible for planning and controlling all aspects of the lift, (producing the lift plan, method statement, risk assessment. Crane Lifting Plan Method Statement.
From www.vrogue.co
Doc Crane Lifting Plan Method Statement And Risk Asse vrogue.co Crane Lifting Plan Method Statement use this checklist before carrying out a lifting operation. basic or standard lift plan may be incorporated into a complete erection method statement. stfc lifting plan, risk assessment and method statement. you should seek your own professional advice to determine if the use of a template is permissible in your workplace or jurisdiction. Nb 50% reduction. Crane Lifting Plan Method Statement.
From es.scribd.com
Lifting Plan Blank [PDF Library] Crane (Machine) Technology Crane Lifting Plan Method Statement Nb 50% reduction in load capability if man. Find below safe work lifting plan template for use in crane lifting process. you should seek your own professional advice to determine if the use of a template is permissible in your workplace or jurisdiction. use this checklist before carrying out a lifting operation. basic or standard lift plan. Crane Lifting Plan Method Statement.
From www.vrogue.co
Crane Lifting Plan Method Statement And Risk Assessme vrogue.co Crane Lifting Plan Method Statement The plan also typically deals with issues such as setting up the crane. stfc lifting plan, risk assessment and method statement. Find below safe work lifting plan template for use in crane lifting process. Nb 50% reduction in load capability if man. responsible for planning and controlling all aspects of the lift, (producing the lift plan, method statement,. Crane Lifting Plan Method Statement.
From cranenetworknews.com
Stick To The Plan How Lift Planning Software is Used ⋆ Crane Network News Crane Lifting Plan Method Statement you should seek your own professional advice to determine if the use of a template is permissible in your workplace or jurisdiction. basic or standard lift plan may be incorporated into a complete erection method statement. responsible for planning and controlling all aspects of the lift, (producing the lift plan, method statement, risk assessment and. Find below. Crane Lifting Plan Method Statement.
From www.scribd.com
Lifting Plan Crane (Machine) Mechanical Engineering Crane Lifting Plan Method Statement The plan also typically deals with issues such as setting up the crane. basic or standard lift plan may be incorporated into a complete erection method statement. you should seek your own professional advice to determine if the use of a template is permissible in your workplace or jurisdiction. This lifting plan sample also provides. stfc lifting. Crane Lifting Plan Method Statement.
From www.scribd.com
Crane Lifting Plan Method Statement and Risk Assessment (1) Crane Crane Lifting Plan Method Statement use this checklist before carrying out a lifting operation. stfc lifting plan, risk assessment and method statement. The plan also typically deals with issues such as setting up the crane. responsible for planning and controlling all aspects of the lift, (producing the lift plan, method statement, risk assessment and. you should seek your own professional advice. Crane Lifting Plan Method Statement.
From www.vrogue.co
Crane Lifting Plan Method Statement And Risk Assessme vrogue.co Crane Lifting Plan Method Statement stfc lifting plan, risk assessment and method statement. use this checklist before carrying out a lifting operation. Find below safe work lifting plan template for use in crane lifting process. basic or standard lift plan may be incorporated into a complete erection method statement. you should seek your own professional advice to determine if the use. Crane Lifting Plan Method Statement.
From lulascale.weebly.com
Crane lift plan method statement lulascale Crane Lifting Plan Method Statement basic or standard lift plan may be incorporated into a complete erection method statement. Nb 50% reduction in load capability if man. Find below safe work lifting plan template for use in crane lifting process. stfc lifting plan, risk assessment and method statement. responsible for planning and controlling all aspects of the lift, (producing the lift plan,. Crane Lifting Plan Method Statement.
From www.scribd.com
Special Lifting work method statement Crane (Machine) Elevator Crane Lifting Plan Method Statement Nb 50% reduction in load capability if man. basic or standard lift plan may be incorporated into a complete erection method statement. The plan also typically deals with issues such as setting up the crane. This lifting plan sample also provides. you should seek your own professional advice to determine if the use of a template is permissible. Crane Lifting Plan Method Statement.
From mavink.com
Sample Crane Lifting Plan Crane Lifting Plan Method Statement Nb 50% reduction in load capability if man. responsible for planning and controlling all aspects of the lift, (producing the lift plan, method statement, risk assessment and. Find below safe work lifting plan template for use in crane lifting process. you should seek your own professional advice to determine if the use of a template is permissible in. Crane Lifting Plan Method Statement.
From templates.rjuuc.edu.np
Crane Lift Plan Template Crane Lifting Plan Method Statement basic or standard lift plan may be incorporated into a complete erection method statement. Nb 50% reduction in load capability if man. use this checklist before carrying out a lifting operation. responsible for planning and controlling all aspects of the lift, (producing the lift plan, method statement, risk assessment and. This lifting plan sample also provides. Find. Crane Lifting Plan Method Statement.
From aptbda.weebly.com
Free crane lift plan template aptbda Crane Lifting Plan Method Statement stfc lifting plan, risk assessment and method statement. Find below safe work lifting plan template for use in crane lifting process. use this checklist before carrying out a lifting operation. This lifting plan sample also provides. Nb 50% reduction in load capability if man. The plan also typically deals with issues such as setting up the crane. . Crane Lifting Plan Method Statement.
From www.scribd.com
Crane Lifting Plan and Method Statement PDF Crane (Machine) Risk Crane Lifting Plan Method Statement Find below safe work lifting plan template for use in crane lifting process. The plan also typically deals with issues such as setting up the crane. use this checklist before carrying out a lifting operation. basic or standard lift plan may be incorporated into a complete erection method statement. Nb 50% reduction in load capability if man. . Crane Lifting Plan Method Statement.
From sitemate.com
Cranes Safe Work Method Statement (Mobile cranes, truck, operations) Crane Lifting Plan Method Statement use this checklist before carrying out a lifting operation. stfc lifting plan, risk assessment and method statement. Nb 50% reduction in load capability if man. This lifting plan sample also provides. Find below safe work lifting plan template for use in crane lifting process. The plan also typically deals with issues such as setting up the crane. . Crane Lifting Plan Method Statement.
From www.vrogue.co
Crane Lifting Plan Method Statement And Risk Assessme vrogue.co Crane Lifting Plan Method Statement Nb 50% reduction in load capability if man. The plan also typically deals with issues such as setting up the crane. responsible for planning and controlling all aspects of the lift, (producing the lift plan, method statement, risk assessment and. use this checklist before carrying out a lifting operation. This lifting plan sample also provides. stfc lifting. Crane Lifting Plan Method Statement.
From www.academia.edu
(DOC) Crane Lifting Plan Method Statement and Risk Assessment Johor Crane Lifting Plan Method Statement use this checklist before carrying out a lifting operation. stfc lifting plan, risk assessment and method statement. basic or standard lift plan may be incorporated into a complete erection method statement. Nb 50% reduction in load capability if man. The plan also typically deals with issues such as setting up the crane. you should seek your. Crane Lifting Plan Method Statement.
From www.3dliftplan.com
3D Lift Plan Crane Lift Planning Software Crane Lifting Plan Method Statement basic or standard lift plan may be incorporated into a complete erection method statement. use this checklist before carrying out a lifting operation. This lifting plan sample also provides. Find below safe work lifting plan template for use in crane lifting process. stfc lifting plan, risk assessment and method statement. Nb 50% reduction in load capability if. Crane Lifting Plan Method Statement.
From vicatraining.weebly.com
Crane lift plan method statement vicatraining Crane Lifting Plan Method Statement you should seek your own professional advice to determine if the use of a template is permissible in your workplace or jurisdiction. use this checklist before carrying out a lifting operation. basic or standard lift plan may be incorporated into a complete erection method statement. The plan also typically deals with issues such as setting up the. Crane Lifting Plan Method Statement.
From www.scribd.com
Routine Lift Plan For All CraneGrove GMK 50 Ton PDF Crane (Machine Crane Lifting Plan Method Statement stfc lifting plan, risk assessment and method statement. responsible for planning and controlling all aspects of the lift, (producing the lift plan, method statement, risk assessment and. This lifting plan sample also provides. Nb 50% reduction in load capability if man. basic or standard lift plan may be incorporated into a complete erection method statement. The plan. Crane Lifting Plan Method Statement.
From www.scribd.com
Level 2 Crane Lifting Plan Method Statement & Risk Assessment PDF Crane Lifting Plan Method Statement responsible for planning and controlling all aspects of the lift, (producing the lift plan, method statement, risk assessment and. This lifting plan sample also provides. basic or standard lift plan may be incorporated into a complete erection method statement. Nb 50% reduction in load capability if man. you should seek your own professional advice to determine if. Crane Lifting Plan Method Statement.
From www.vrogue.co
Mobile Crane Lift Plan All About Crane Lifting Plan M vrogue.co Crane Lifting Plan Method Statement you should seek your own professional advice to determine if the use of a template is permissible in your workplace or jurisdiction. stfc lifting plan, risk assessment and method statement. basic or standard lift plan may be incorporated into a complete erection method statement. Nb 50% reduction in load capability if man. responsible for planning and. Crane Lifting Plan Method Statement.
From www.vrogue.co
Crane Lifting Plan Method Statement And Risk Assessme vrogue.co Crane Lifting Plan Method Statement The plan also typically deals with issues such as setting up the crane. you should seek your own professional advice to determine if the use of a template is permissible in your workplace or jurisdiction. basic or standard lift plan may be incorporated into a complete erection method statement. stfc lifting plan, risk assessment and method statement.. Crane Lifting Plan Method Statement.
From gunnaranceshaw.blogspot.com
Crane Lift Plan Free Download GunnaranceShaw Crane Lifting Plan Method Statement you should seek your own professional advice to determine if the use of a template is permissible in your workplace or jurisdiction. This lifting plan sample also provides. basic or standard lift plan may be incorporated into a complete erection method statement. The plan also typically deals with issues such as setting up the crane. Find below safe. Crane Lifting Plan Method Statement.
From www.scribd.com
Lifting_Plan_Template_2.pdf Crane (Machine) Industries Crane Lifting Plan Method Statement stfc lifting plan, risk assessment and method statement. you should seek your own professional advice to determine if the use of a template is permissible in your workplace or jurisdiction. This lifting plan sample also provides. The plan also typically deals with issues such as setting up the crane. basic or standard lift plan may be incorporated. Crane Lifting Plan Method Statement.
From www.hsedocuments.com
Method Statement for Lifting Operations hsedocuments Crane Lifting Plan Method Statement The plan also typically deals with issues such as setting up the crane. responsible for planning and controlling all aspects of the lift, (producing the lift plan, method statement, risk assessment and. Nb 50% reduction in load capability if man. basic or standard lift plan may be incorporated into a complete erection method statement. This lifting plan sample. Crane Lifting Plan Method Statement.