Stilt Floor Plan Meaning . Stilt floor plans, also known as elevated homes, are architectural designs that elevate the living spaces of a building above. In this comprehensive guide, we'll explore the various aspects of building a house on stilts, from understanding why you might choose this distinctive style to. In such a construction we get open. In construction stilt floor meaning is a raised floor supported on columns or pillars in a way that all the other sides are kept open for parking area, generator room, or other features. A stilt floor plan refers to an architectural design where the ground floor of a building is elevated on raised columns or stilts. In the field of construction, stilt floor means a raised floor supported by pillars on all sides. A special type of parking structure where the ground floor of a building is raised on stilt pillars or columns is called stilt parking, often referred to as stilt floor parking.
from reviewhomedecor.co
Stilt floor plans, also known as elevated homes, are architectural designs that elevate the living spaces of a building above. In the field of construction, stilt floor means a raised floor supported by pillars on all sides. In construction stilt floor meaning is a raised floor supported on columns or pillars in a way that all the other sides are kept open for parking area, generator room, or other features. A stilt floor plan refers to an architectural design where the ground floor of a building is elevated on raised columns or stilts. In such a construction we get open. A special type of parking structure where the ground floor of a building is raised on stilt pillars or columns is called stilt parking, often referred to as stilt floor parking. In this comprehensive guide, we'll explore the various aspects of building a house on stilts, from understanding why you might choose this distinctive style to.
Stilt Floor Meaning In Telugu Review Home Decor
Stilt Floor Plan Meaning In this comprehensive guide, we'll explore the various aspects of building a house on stilts, from understanding why you might choose this distinctive style to. In the field of construction, stilt floor means a raised floor supported by pillars on all sides. A special type of parking structure where the ground floor of a building is raised on stilt pillars or columns is called stilt parking, often referred to as stilt floor parking. In such a construction we get open. A stilt floor plan refers to an architectural design where the ground floor of a building is elevated on raised columns or stilts. In this comprehensive guide, we'll explore the various aspects of building a house on stilts, from understanding why you might choose this distinctive style to. In construction stilt floor meaning is a raised floor supported on columns or pillars in a way that all the other sides are kept open for parking area, generator room, or other features. Stilt floor plans, also known as elevated homes, are architectural designs that elevate the living spaces of a building above.
From www.thisoldhouse.com
How To Build a Set of Stilts This Old House Stilt Floor Plan Meaning Stilt floor plans, also known as elevated homes, are architectural designs that elevate the living spaces of a building above. A special type of parking structure where the ground floor of a building is raised on stilt pillars or columns is called stilt parking, often referred to as stilt floor parking. In the field of construction, stilt floor means a. Stilt Floor Plan Meaning.
From www.vrogue.co
Stilt Floor Plan Floorplans Click vrogue.co Stilt Floor Plan Meaning In construction stilt floor meaning is a raised floor supported on columns or pillars in a way that all the other sides are kept open for parking area, generator room, or other features. In the field of construction, stilt floor means a raised floor supported by pillars on all sides. Stilt floor plans, also known as elevated homes, are architectural. Stilt Floor Plan Meaning.
From floorplans.click
Stilt Floor Plan Meaning floorplans.click Stilt Floor Plan Meaning A special type of parking structure where the ground floor of a building is raised on stilt pillars or columns is called stilt parking, often referred to as stilt floor parking. A stilt floor plan refers to an architectural design where the ground floor of a building is elevated on raised columns or stilts. Stilt floor plans, also known as. Stilt Floor Plan Meaning.
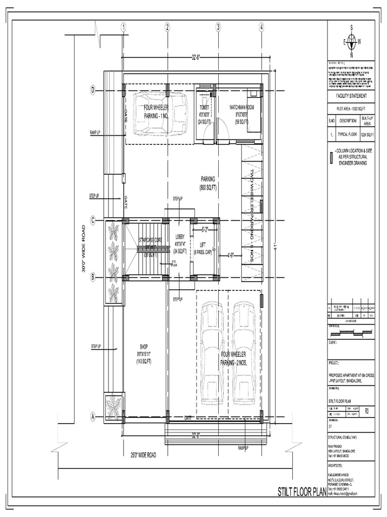
From www.ksquarearchitects.com
Stilt floor plan KSquare Architects architects in chennai, interior Stilt Floor Plan Meaning Stilt floor plans, also known as elevated homes, are architectural designs that elevate the living spaces of a building above. In this comprehensive guide, we'll explore the various aspects of building a house on stilts, from understanding why you might choose this distinctive style to. In such a construction we get open. A stilt floor plan refers to an architectural. Stilt Floor Plan Meaning.
From floorplans.click
Stilt Floor Plan Meaning floorplans.click Stilt Floor Plan Meaning A stilt floor plan refers to an architectural design where the ground floor of a building is elevated on raised columns or stilts. In this comprehensive guide, we'll explore the various aspects of building a house on stilts, from understanding why you might choose this distinctive style to. In such a construction we get open. Stilt floor plans, also known. Stilt Floor Plan Meaning.
From houseanplan.com
House On Stilts Plans Everything You Need To Know House Plans Stilt Floor Plan Meaning A special type of parking structure where the ground floor of a building is raised on stilt pillars or columns is called stilt parking, often referred to as stilt floor parking. In such a construction we get open. A stilt floor plan refers to an architectural design where the ground floor of a building is elevated on raised columns or. Stilt Floor Plan Meaning.
From www.iamcivilengineer.com
Stilt Floor Meaning Stilt Floor Level Definition Stilt Floor Plan Meaning Stilt floor plans, also known as elevated homes, are architectural designs that elevate the living spaces of a building above. In construction stilt floor meaning is a raised floor supported on columns or pillars in a way that all the other sides are kept open for parking area, generator room, or other features. In such a construction we get open.. Stilt Floor Plan Meaning.
From viewfloor.co
Stilt Floor Vs Ground Viewfloor.co Stilt Floor Plan Meaning In such a construction we get open. In the field of construction, stilt floor means a raised floor supported by pillars on all sides. A stilt floor plan refers to an architectural design where the ground floor of a building is elevated on raised columns or stilts. In this comprehensive guide, we'll explore the various aspects of building a house. Stilt Floor Plan Meaning.
From houseanplan.com
Beach Stilt House Plans A Guide To Designing A Unique Living Space Stilt Floor Plan Meaning In construction stilt floor meaning is a raised floor supported on columns or pillars in a way that all the other sides are kept open for parking area, generator room, or other features. In the field of construction, stilt floor means a raised floor supported by pillars on all sides. In this comprehensive guide, we'll explore the various aspects of. Stilt Floor Plan Meaning.
From www.iamcivilengineer.com
Stilt Floor Level Meaning [a COMPLETE GUIDE] Stilt Floor Plan Meaning A special type of parking structure where the ground floor of a building is raised on stilt pillars or columns is called stilt parking, often referred to as stilt floor parking. In such a construction we get open. In construction stilt floor meaning is a raised floor supported on columns or pillars in a way that all the other sides. Stilt Floor Plan Meaning.
From www.youtube.com
How to read Stilt + Ground floor plan with different levels Stilt Floor Plan Meaning In such a construction we get open. Stilt floor plans, also known as elevated homes, are architectural designs that elevate the living spaces of a building above. In the field of construction, stilt floor means a raised floor supported by pillars on all sides. A stilt floor plan refers to an architectural design where the ground floor of a building. Stilt Floor Plan Meaning.
From floorplans.click
Stilt Floor Plan Meaning floorplans.click Stilt Floor Plan Meaning In this comprehensive guide, we'll explore the various aspects of building a house on stilts, from understanding why you might choose this distinctive style to. In the field of construction, stilt floor means a raised floor supported by pillars on all sides. In construction stilt floor meaning is a raised floor supported on columns or pillars in a way that. Stilt Floor Plan Meaning.
From mromavolley.com
Floor Plans House On Stilts Floor Roma Stilt Floor Plan Meaning Stilt floor plans, also known as elevated homes, are architectural designs that elevate the living spaces of a building above. A special type of parking structure where the ground floor of a building is raised on stilt pillars or columns is called stilt parking, often referred to as stilt floor parking. In the field of construction, stilt floor means a. Stilt Floor Plan Meaning.
From reviewhomedecor.co
Stilt Floor Meaning In Telugu Review Home Decor Stilt Floor Plan Meaning In the field of construction, stilt floor means a raised floor supported by pillars on all sides. Stilt floor plans, also known as elevated homes, are architectural designs that elevate the living spaces of a building above. In this comprehensive guide, we'll explore the various aspects of building a house on stilts, from understanding why you might choose this distinctive. Stilt Floor Plan Meaning.
From www.archdaily.com
Gallery of Triple Stilt House / Archidance 20 Stilt Floor Plan Meaning In this comprehensive guide, we'll explore the various aspects of building a house on stilts, from understanding why you might choose this distinctive style to. In construction stilt floor meaning is a raised floor supported on columns or pillars in a way that all the other sides are kept open for parking area, generator room, or other features. In such. Stilt Floor Plan Meaning.
From www.vrogue.co
Stilt Floor Plan Floorplans Click vrogue.co Stilt Floor Plan Meaning In this comprehensive guide, we'll explore the various aspects of building a house on stilts, from understanding why you might choose this distinctive style to. In the field of construction, stilt floor means a raised floor supported by pillars on all sides. A special type of parking structure where the ground floor of a building is raised on stilt pillars. Stilt Floor Plan Meaning.
From floorplans.click
Stilt Floor Plan Meaning floorplans.click Stilt Floor Plan Meaning A stilt floor plan refers to an architectural design where the ground floor of a building is elevated on raised columns or stilts. Stilt floor plans, also known as elevated homes, are architectural designs that elevate the living spaces of a building above. In this comprehensive guide, we'll explore the various aspects of building a house on stilts, from understanding. Stilt Floor Plan Meaning.
From thetinylife.com
Lofty Design Ideas For Tiny Homes On Stilts The Tiny Life Stilt Floor Plan Meaning In such a construction we get open. In construction stilt floor meaning is a raised floor supported on columns or pillars in a way that all the other sides are kept open for parking area, generator room, or other features. A stilt floor plan refers to an architectural design where the ground floor of a building is elevated on raised. Stilt Floor Plan Meaning.
From floorplans.click
Stilt Floor Plan Meaning floorplans.click Stilt Floor Plan Meaning In construction stilt floor meaning is a raised floor supported on columns or pillars in a way that all the other sides are kept open for parking area, generator room, or other features. In such a construction we get open. Stilt floor plans, also known as elevated homes, are architectural designs that elevate the living spaces of a building above.. Stilt Floor Plan Meaning.
From www.vrogue.co
Stilt Floor Meaning What Is Stilt Floor vrogue.co Stilt Floor Plan Meaning In the field of construction, stilt floor means a raised floor supported by pillars on all sides. In this comprehensive guide, we'll explore the various aspects of building a house on stilts, from understanding why you might choose this distinctive style to. Stilt floor plans, also known as elevated homes, are architectural designs that elevate the living spaces of a. Stilt Floor Plan Meaning.
From www.vrogue.co
Stilt Floor Plan Floorplans Click vrogue.co Stilt Floor Plan Meaning A stilt floor plan refers to an architectural design where the ground floor of a building is elevated on raised columns or stilts. In such a construction we get open. In construction stilt floor meaning is a raised floor supported on columns or pillars in a way that all the other sides are kept open for parking area, generator room,. Stilt Floor Plan Meaning.
From floorplans.click
Stilt Floor Plan Meaning floorplans.click Stilt Floor Plan Meaning A stilt floor plan refers to an architectural design where the ground floor of a building is elevated on raised columns or stilts. Stilt floor plans, also known as elevated homes, are architectural designs that elevate the living spaces of a building above. In construction stilt floor meaning is a raised floor supported on columns or pillars in a way. Stilt Floor Plan Meaning.
From www.vrogue.co
Stilt Floor Plan Floorplans Click vrogue.co Stilt Floor Plan Meaning In such a construction we get open. In the field of construction, stilt floor means a raised floor supported by pillars on all sides. Stilt floor plans, also known as elevated homes, are architectural designs that elevate the living spaces of a building above. In this comprehensive guide, we'll explore the various aspects of building a house on stilts, from. Stilt Floor Plan Meaning.
From floorplans.click
Stilt Floor Plan Meaning floorplans.click Stilt Floor Plan Meaning A stilt floor plan refers to an architectural design where the ground floor of a building is elevated on raised columns or stilts. In such a construction we get open. In construction stilt floor meaning is a raised floor supported on columns or pillars in a way that all the other sides are kept open for parking area, generator room,. Stilt Floor Plan Meaning.
From specs.page
StiltFloorPlan Specifications info Stilt Floor Plan Meaning In such a construction we get open. In construction stilt floor meaning is a raised floor supported on columns or pillars in a way that all the other sides are kept open for parking area, generator room, or other features. A stilt floor plan refers to an architectural design where the ground floor of a building is elevated on raised. Stilt Floor Plan Meaning.
From floorplans.click
Stilt Floor Plan Meaning floorplans.click Stilt Floor Plan Meaning In construction stilt floor meaning is a raised floor supported on columns or pillars in a way that all the other sides are kept open for parking area, generator room, or other features. In this comprehensive guide, we'll explore the various aspects of building a house on stilts, from understanding why you might choose this distinctive style to. In such. Stilt Floor Plan Meaning.
From www.vrogue.co
Stilt Floor Plan Floorplans Click vrogue.co Stilt Floor Plan Meaning Stilt floor plans, also known as elevated homes, are architectural designs that elevate the living spaces of a building above. A special type of parking structure where the ground floor of a building is raised on stilt pillars or columns is called stilt parking, often referred to as stilt floor parking. In this comprehensive guide, we'll explore the various aspects. Stilt Floor Plan Meaning.
From louisfeedsdc.com
The Most Impressive Stilt House Floor Plans Ideas Ever Seen 12 Photos Stilt Floor Plan Meaning In construction stilt floor meaning is a raised floor supported on columns or pillars in a way that all the other sides are kept open for parking area, generator room, or other features. In the field of construction, stilt floor means a raised floor supported by pillars on all sides. A stilt floor plan refers to an architectural design where. Stilt Floor Plan Meaning.
From floorplans.click
Stilt Floor Plan floorplans.click Stilt Floor Plan Meaning In such a construction we get open. In the field of construction, stilt floor means a raised floor supported by pillars on all sides. A stilt floor plan refers to an architectural design where the ground floor of a building is elevated on raised columns or stilts. A special type of parking structure where the ground floor of a building. Stilt Floor Plan Meaning.
From in.pinterest.com
Stilt Floor Plan designed by Apnaghar team. For more details visit Stilt Floor Plan Meaning Stilt floor plans, also known as elevated homes, are architectural designs that elevate the living spaces of a building above. In such a construction we get open. In construction stilt floor meaning is a raised floor supported on columns or pillars in a way that all the other sides are kept open for parking area, generator room, or other features.. Stilt Floor Plan Meaning.
From floorplans.click
Stilt Floor Plan Meaning floorplans.click Stilt Floor Plan Meaning In the field of construction, stilt floor means a raised floor supported by pillars on all sides. A special type of parking structure where the ground floor of a building is raised on stilt pillars or columns is called stilt parking, often referred to as stilt floor parking. In this comprehensive guide, we'll explore the various aspects of building a. Stilt Floor Plan Meaning.
From timothyplivingston.com
The Best Modular Stilt House You've Ever Seen! Stilt Floor Plan Meaning Stilt floor plans, also known as elevated homes, are architectural designs that elevate the living spaces of a building above. In the field of construction, stilt floor means a raised floor supported by pillars on all sides. In construction stilt floor meaning is a raised floor supported on columns or pillars in a way that all the other sides are. Stilt Floor Plan Meaning.
From www.scribd.com
Stilt Floor Plan 28.06.22 PDF Stilt Floor Plan Meaning In this comprehensive guide, we'll explore the various aspects of building a house on stilts, from understanding why you might choose this distinctive style to. Stilt floor plans, also known as elevated homes, are architectural designs that elevate the living spaces of a building above. In the field of construction, stilt floor means a raised floor supported by pillars on. Stilt Floor Plan Meaning.
From jhmrad.com
Awesome House On Stilts Floor Plans 6 Pictures JHMRad Stilt Floor Plan Meaning Stilt floor plans, also known as elevated homes, are architectural designs that elevate the living spaces of a building above. In such a construction we get open. A stilt floor plan refers to an architectural design where the ground floor of a building is elevated on raised columns or stilts. In the field of construction, stilt floor means a raised. Stilt Floor Plan Meaning.
From floorplans.click
Floor Plans For Homes On Stilts floorplans.click Stilt Floor Plan Meaning In this comprehensive guide, we'll explore the various aspects of building a house on stilts, from understanding why you might choose this distinctive style to. A stilt floor plan refers to an architectural design where the ground floor of a building is elevated on raised columns or stilts. A special type of parking structure where the ground floor of a. Stilt Floor Plan Meaning.