What Are The Laws In New York City . Be at least 21 years old. Check out these 10 laws you should know if you're in new york: When does the state legislation (chapter 371 of the laws of 2022) officially take effect? What does it mean for new york city to be a sanctuary city? The laws and rules of the city of new york are now available on the web. To obtain a concealed carry permit in new york, including for nyc concealed carry, residents must: Though new york city has some laws on the books that aim to protect immigrants from certain types of law enforcement (more. The law department contracted with american legal publishing. How is gun licensing changing under the new state legislation? You should avoid drinking and.
from www.wgrz.com
When does the state legislation (chapter 371 of the laws of 2022) officially take effect? To obtain a concealed carry permit in new york, including for nyc concealed carry, residents must: Be at least 21 years old. Check out these 10 laws you should know if you're in new york: How is gun licensing changing under the new state legislation? What does it mean for new york city to be a sanctuary city? The law department contracted with american legal publishing. Though new york city has some laws on the books that aim to protect immigrants from certain types of law enforcement (more. You should avoid drinking and. The laws and rules of the city of new york are now available on the web.
New laws in New York for 2019
What Are The Laws In New York City How is gun licensing changing under the new state legislation? Check out these 10 laws you should know if you're in new york: Be at least 21 years old. You should avoid drinking and. To obtain a concealed carry permit in new york, including for nyc concealed carry, residents must: The laws and rules of the city of new york are now available on the web. The law department contracted with american legal publishing. What does it mean for new york city to be a sanctuary city? When does the state legislation (chapter 371 of the laws of 2022) officially take effect? Though new york city has some laws on the books that aim to protect immigrants from certain types of law enforcement (more. How is gun licensing changing under the new state legislation?
From www.msn.com
New laws in New York State What Are The Laws In New York City You should avoid drinking and. To obtain a concealed carry permit in new york, including for nyc concealed carry, residents must: The law department contracted with american legal publishing. Be at least 21 years old. How is gun licensing changing under the new state legislation? Though new york city has some laws on the books that aim to protect immigrants. What Are The Laws In New York City.
From news.nyls.edu
11 NYLS Alumni Join the New York City Law Department NYLS News What Are The Laws In New York City The laws and rules of the city of new york are now available on the web. The law department contracted with american legal publishing. What does it mean for new york city to be a sanctuary city? When does the state legislation (chapter 371 of the laws of 2022) officially take effect? You should avoid drinking and. Though new york. What Are The Laws In New York City.
From www.northcountrypublicradio.org
New laws in New York in 2020 NCPR News What Are The Laws In New York City The laws and rules of the city of new york are now available on the web. How is gun licensing changing under the new state legislation? You should avoid drinking and. Though new york city has some laws on the books that aim to protect immigrants from certain types of law enforcement (more. Check out these 10 laws you should. What Are The Laws In New York City.
From www.mdcreekmore.com
New York City Knife Laws A Simple Cheat Sheet With All You Need To Know What Are The Laws In New York City Though new york city has some laws on the books that aim to protect immigrants from certain types of law enforcement (more. Be at least 21 years old. Check out these 10 laws you should know if you're in new york: The law department contracted with american legal publishing. The laws and rules of the city of new york are. What Are The Laws In New York City.
From sprlaw.com
New York City Council Passes Major Amendment to Local Law 97 Affordable What Are The Laws In New York City Check out these 10 laws you should know if you're in new york: You should avoid drinking and. The laws and rules of the city of new york are now available on the web. Though new york city has some laws on the books that aim to protect immigrants from certain types of law enforcement (more. Be at least 21. What Are The Laws In New York City.
From pix11.com
New laws in New York in 2024 PIX11 What Are The Laws In New York City The law department contracted with american legal publishing. Check out these 10 laws you should know if you're in new york: How is gun licensing changing under the new state legislation? What does it mean for new york city to be a sanctuary city? When does the state legislation (chapter 371 of the laws of 2022) officially take effect? Though. What Are The Laws In New York City.
From www.forbes.com
New York DUI Laws (2024 Guide) Forbes Advisor What Are The Laws In New York City How is gun licensing changing under the new state legislation? The law department contracted with american legal publishing. What does it mean for new york city to be a sanctuary city? Check out these 10 laws you should know if you're in new york: Though new york city has some laws on the books that aim to protect immigrants from. What Are The Laws In New York City.
From www.quoteble.com
New York State Laws Quoteble What Are The Laws In New York City You should avoid drinking and. What does it mean for new york city to be a sanctuary city? The law department contracted with american legal publishing. Check out these 10 laws you should know if you're in new york: Be at least 21 years old. To obtain a concealed carry permit in new york, including for nyc concealed carry, residents. What Are The Laws In New York City.
From saylordotorg.github.io
The Legal System in the United States What Are The Laws In New York City When does the state legislation (chapter 371 of the laws of 2022) officially take effect? You should avoid drinking and. Be at least 21 years old. The laws and rules of the city of new york are now available on the web. The law department contracted with american legal publishing. To obtain a concealed carry permit in new york, including. What Are The Laws In New York City.
From www.businessday.in
Introduction of New Laws in New York from January 1, 2019 What Are The Laws In New York City What does it mean for new york city to be a sanctuary city? Though new york city has some laws on the books that aim to protect immigrants from certain types of law enforcement (more. To obtain a concealed carry permit in new york, including for nyc concealed carry, residents must: Check out these 10 laws you should know if. What Are The Laws In New York City.
From korsociety.weebly.com
What are the law in new york city korsociety What Are The Laws In New York City How is gun licensing changing under the new state legislation? What does it mean for new york city to be a sanctuary city? The laws and rules of the city of new york are now available on the web. When does the state legislation (chapter 371 of the laws of 2022) officially take effect? Be at least 21 years old.. What Are The Laws In New York City.
From abc7ny.com
These New York laws that took effect in 2024 ABC7 New York What Are The Laws In New York City Check out these 10 laws you should know if you're in new york: You should avoid drinking and. Be at least 21 years old. The laws and rules of the city of new york are now available on the web. To obtain a concealed carry permit in new york, including for nyc concealed carry, residents must: Though new york city. What Are The Laws In New York City.
From old.sermitsiaq.ag
Ny Bylaws Template What Are The Laws In New York City The law department contracted with american legal publishing. Check out these 10 laws you should know if you're in new york: When does the state legislation (chapter 371 of the laws of 2022) officially take effect? What does it mean for new york city to be a sanctuary city? How is gun licensing changing under the new state legislation? To. What Are The Laws In New York City.
From lawcdh.com
Recent Changes to Discovery and Bail Laws in New York CDH Law PLLC What Are The Laws In New York City You should avoid drinking and. When does the state legislation (chapter 371 of the laws of 2022) officially take effect? Be at least 21 years old. To obtain a concealed carry permit in new york, including for nyc concealed carry, residents must: What does it mean for new york city to be a sanctuary city? The law department contracted with. What Are The Laws In New York City.
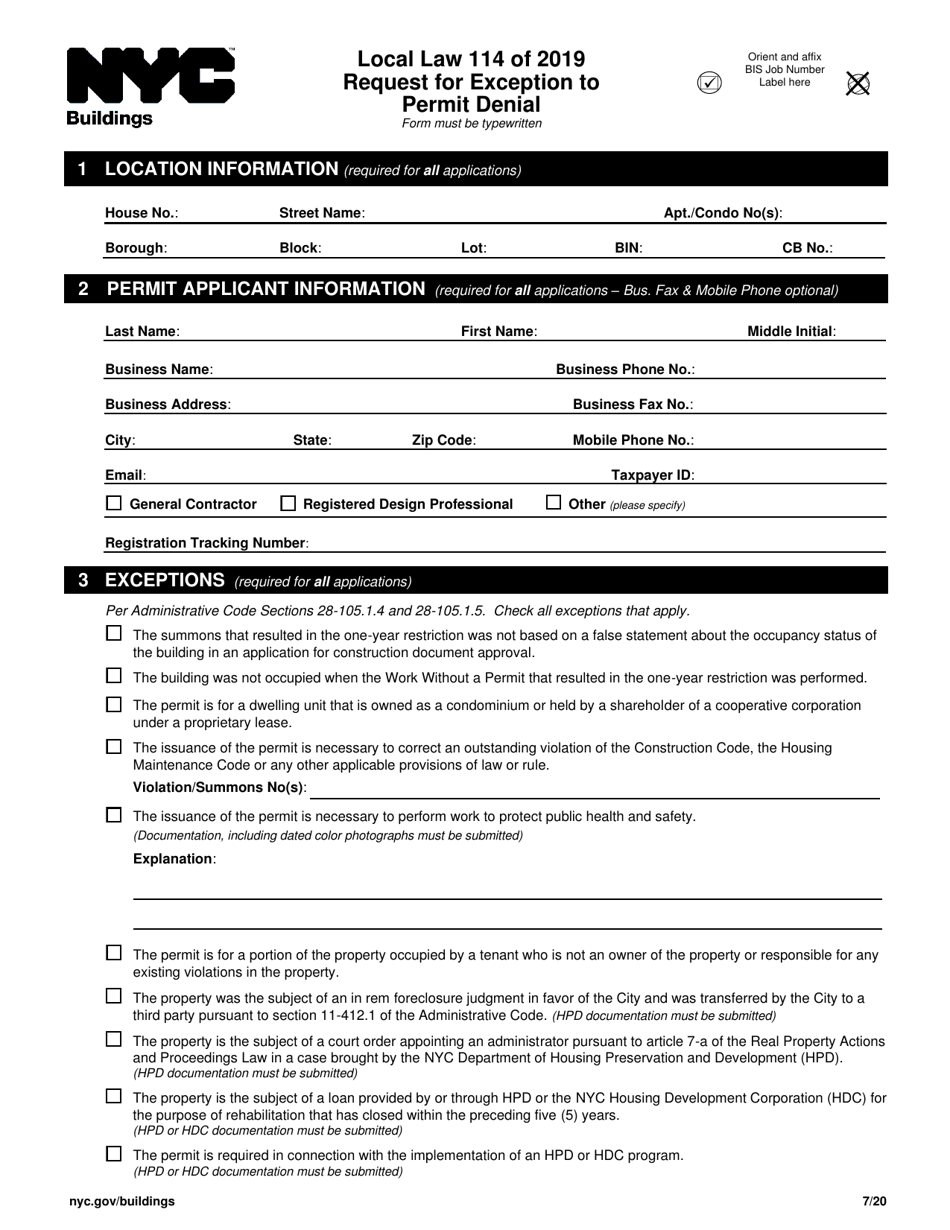
From www.templateroller.com
New York City Local Law 114 of 2019 Request for Exception to Permit What Are The Laws In New York City When does the state legislation (chapter 371 of the laws of 2022) officially take effect? Check out these 10 laws you should know if you're in new york: You should avoid drinking and. Though new york city has some laws on the books that aim to protect immigrants from certain types of law enforcement (more. How is gun licensing changing. What Are The Laws In New York City.
From www.atdlaw.com
[2023 Guide] How to Report Sexual Abuse in New York City Reporting What Are The Laws In New York City The law department contracted with american legal publishing. To obtain a concealed carry permit in new york, including for nyc concealed carry, residents must: How is gun licensing changing under the new state legislation? The laws and rules of the city of new york are now available on the web. Though new york city has some laws on the books. What Are The Laws In New York City.
From wagefirm.com
The Complete Guide To Minimum Wage Laws In The State Of New York What Are The Laws In New York City Be at least 21 years old. Though new york city has some laws on the books that aim to protect immigrants from certain types of law enforcement (more. How is gun licensing changing under the new state legislation? When does the state legislation (chapter 371 of the laws of 2022) officially take effect? The laws and rules of the city. What Are The Laws In New York City.
From bigfrog104.com
New Laws in New York for 2019 What Are The Laws In New York City The laws and rules of the city of new york are now available on the web. Be at least 21 years old. How is gun licensing changing under the new state legislation? The law department contracted with american legal publishing. Though new york city has some laws on the books that aim to protect immigrants from certain types of law. What Are The Laws In New York City.
From www.thenewyorklawblog.com
New laws in 2021 at New York Explained by Hayes & Simon, PC. What Are The Laws In New York City Be at least 21 years old. You should avoid drinking and. Check out these 10 laws you should know if you're in new york: How is gun licensing changing under the new state legislation? The laws and rules of the city of new york are now available on the web. To obtain a concealed carry permit in new york, including. What Are The Laws In New York City.
From gbpyunlaw.com
Know your NYCLegal Updates GBP Law PLLC What Are The Laws In New York City You should avoid drinking and. What does it mean for new york city to be a sanctuary city? How is gun licensing changing under the new state legislation? Though new york city has some laws on the books that aim to protect immigrants from certain types of law enforcement (more. The law department contracted with american legal publishing. To obtain. What Are The Laws In New York City.
From codeinterview.io
Commonly Asked Questions about the New York City AI Law CodeInterview What Are The Laws In New York City Be at least 21 years old. To obtain a concealed carry permit in new york, including for nyc concealed carry, residents must: When does the state legislation (chapter 371 of the laws of 2022) officially take effect? The laws and rules of the city of new york are now available on the web. How is gun licensing changing under the. What Are The Laws In New York City.
From www.govdocs.com
New York City Weight Discrimination Law GovDocs What Are The Laws In New York City Check out these 10 laws you should know if you're in new york: To obtain a concealed carry permit in new york, including for nyc concealed carry, residents must: How is gun licensing changing under the new state legislation? Though new york city has some laws on the books that aim to protect immigrants from certain types of law enforcement. What Are The Laws In New York City.
From guides.ll.georgetown.edu
Congress & the Legislative Process Legislative History Research Guide What Are The Laws In New York City Check out these 10 laws you should know if you're in new york: To obtain a concealed carry permit in new york, including for nyc concealed carry, residents must: How is gun licensing changing under the new state legislation? You should avoid drinking and. The laws and rules of the city of new york are now available on the web.. What Are The Laws In New York City.
From www.avail.co
New York LandlordTenant Law Avail What Are The Laws In New York City Though new york city has some laws on the books that aim to protect immigrants from certain types of law enforcement (more. You should avoid drinking and. When does the state legislation (chapter 371 of the laws of 2022) officially take effect? The law department contracted with american legal publishing. What does it mean for new york city to be. What Are The Laws In New York City.
From hudsonvalleypost.com
Nearly 20 New Laws in New York You Should Know What Are The Laws In New York City The laws and rules of the city of new york are now available on the web. Check out these 10 laws you should know if you're in new york: What does it mean for new york city to be a sanctuary city? Though new york city has some laws on the books that aim to protect immigrants from certain types. What Are The Laws In New York City.
From www.wgrz.com
New laws in New York for 2019 What Are The Laws In New York City To obtain a concealed carry permit in new york, including for nyc concealed carry, residents must: The law department contracted with american legal publishing. When does the state legislation (chapter 371 of the laws of 2022) officially take effect? Be at least 21 years old. How is gun licensing changing under the new state legislation? Though new york city has. What Are The Laws In New York City.
From www.holisticai.com
AI in NY Comparing New York City and New York State's AEDT laws What Are The Laws In New York City What does it mean for new york city to be a sanctuary city? When does the state legislation (chapter 371 of the laws of 2022) officially take effect? The law department contracted with american legal publishing. The laws and rules of the city of new york are now available on the web. Though new york city has some laws on. What Are The Laws In New York City.
From en.wikipedia.org
FileNYC New York County Supreme Courthouse.jpg Wikipedia What Are The Laws In New York City Though new york city has some laws on the books that aim to protect immigrants from certain types of law enforcement (more. The law department contracted with american legal publishing. You should avoid drinking and. To obtain a concealed carry permit in new york, including for nyc concealed carry, residents must: Check out these 10 laws you should know if. What Are The Laws In New York City.
From www.fastcase.com
The Rulebook The Definitive Quick Reference Guide for New York What Are The Laws In New York City Check out these 10 laws you should know if you're in new york: The laws and rules of the city of new york are now available on the web. How is gun licensing changing under the new state legislation? You should avoid drinking and. Though new york city has some laws on the books that aim to protect immigrants from. What Are The Laws In New York City.
From www.barraiser.com
Complying with New York City's AEDT Law A Comprehensive Guide for HR What Are The Laws In New York City When does the state legislation (chapter 371 of the laws of 2022) officially take effect? To obtain a concealed carry permit in new york, including for nyc concealed carry, residents must: The law department contracted with american legal publishing. Though new york city has some laws on the books that aim to protect immigrants from certain types of law enforcement. What Are The Laws In New York City.
From bigfrog104.com
14 Common Laws in New York We've Broken the Most Often What Are The Laws In New York City What does it mean for new york city to be a sanctuary city? You should avoid drinking and. Be at least 21 years old. Check out these 10 laws you should know if you're in new york: How is gun licensing changing under the new state legislation? To obtain a concealed carry permit in new york, including for nyc concealed. What Are The Laws In New York City.
From newyorksimply.com
12 Weird Laws in New York City (You Probably Never Heard Of) What Are The Laws In New York City When does the state legislation (chapter 371 of the laws of 2022) officially take effect? You should avoid drinking and. Be at least 21 years old. Though new york city has some laws on the books that aim to protect immigrants from certain types of law enforcement (more. What does it mean for new york city to be a sanctuary. What Are The Laws In New York City.
From www.thehostingjourney.com
Simple Guide to Current New York Laws and Airbnb What Are The Laws In New York City The law department contracted with american legal publishing. How is gun licensing changing under the new state legislation? Check out these 10 laws you should know if you're in new york: You should avoid drinking and. What does it mean for new york city to be a sanctuary city? To obtain a concealed carry permit in new york, including for. What Are The Laws In New York City.
From 943litefm.com
What Is the Current Crosswalk Law in New York State? What Are The Laws In New York City What does it mean for new york city to be a sanctuary city? How is gun licensing changing under the new state legislation? The laws and rules of the city of new york are now available on the web. The law department contracted with american legal publishing. Though new york city has some laws on the books that aim to. What Are The Laws In New York City.
From oikonomakislaw.com
Law Firm in New York USA Desk in Manhattan Oikonomakis Law What Are The Laws In New York City The laws and rules of the city of new york are now available on the web. Check out these 10 laws you should know if you're in new york: When does the state legislation (chapter 371 of the laws of 2022) officially take effect? Be at least 21 years old. What does it mean for new york city to be. What Are The Laws In New York City.