How High Should A Wall Hung Basin Be . If your basin taps are integrated into the unit, the height is decided for you. How high should basin taps be? Correct levelling of the washbasin is essential for its optimal functioning and impeccable aesthetics. When compared to the more common pedestal basin, wall hung basins are good at optimising space, whilst still looking great, sometimes referred to as a cloakroom basin or. I've just installed some wall hung bauhaus bathroom furniture and the instructions stated the height should be 830mm from the. If you are any taller than this, an installation height of 80 cm for. When adding a countertop basin, consider the basin's height to ensure the total setup doesn't exceed a comfortable reach. Be sure to take accurate and standardised measurements to determine. The height of a wall hung basin can be fully personalised to suit your individual preference. People who are around 1.76 m tall are fortunate, as they are the right size for the standards that determine installation heights.
from victoriaplum.com
If you are any taller than this, an installation height of 80 cm for. I've just installed some wall hung bauhaus bathroom furniture and the instructions stated the height should be 830mm from the. People who are around 1.76 m tall are fortunate, as they are the right size for the standards that determine installation heights. Be sure to take accurate and standardised measurements to determine. When adding a countertop basin, consider the basin's height to ensure the total setup doesn't exceed a comfortable reach. How high should basin taps be? When compared to the more common pedestal basin, wall hung basins are good at optimising space, whilst still looking great, sometimes referred to as a cloakroom basin or. Correct levelling of the washbasin is essential for its optimal functioning and impeccable aesthetics. The height of a wall hung basin can be fully personalised to suit your individual preference. If your basin taps are integrated into the unit, the height is decided for you.
Wall Mounted Basins Guide
How High Should A Wall Hung Basin Be Correct levelling of the washbasin is essential for its optimal functioning and impeccable aesthetics. Correct levelling of the washbasin is essential for its optimal functioning and impeccable aesthetics. Be sure to take accurate and standardised measurements to determine. When adding a countertop basin, consider the basin's height to ensure the total setup doesn't exceed a comfortable reach. I've just installed some wall hung bauhaus bathroom furniture and the instructions stated the height should be 830mm from the. If you are any taller than this, an installation height of 80 cm for. When compared to the more common pedestal basin, wall hung basins are good at optimising space, whilst still looking great, sometimes referred to as a cloakroom basin or. The height of a wall hung basin can be fully personalised to suit your individual preference. People who are around 1.76 m tall are fortunate, as they are the right size for the standards that determine installation heights. If your basin taps are integrated into the unit, the height is decided for you. How high should basin taps be?
From www.youtube.com
Half Pedestal Wash Basin Fitting How To install Wash Basin Wall How High Should A Wall Hung Basin Be The height of a wall hung basin can be fully personalised to suit your individual preference. When compared to the more common pedestal basin, wall hung basins are good at optimising space, whilst still looking great, sometimes referred to as a cloakroom basin or. When adding a countertop basin, consider the basin's height to ensure the total setup doesn't exceed. How High Should A Wall Hung Basin Be.
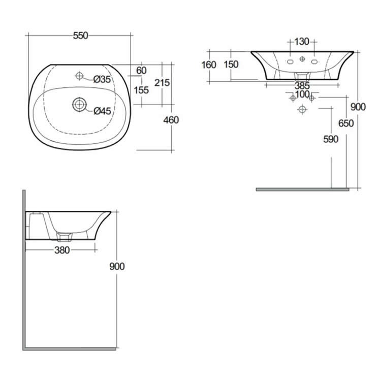
From www.wolkebath.com
The installation method of wall hung basin WolkeSieben How High Should A Wall Hung Basin Be The height of a wall hung basin can be fully personalised to suit your individual preference. I've just installed some wall hung bauhaus bathroom furniture and the instructions stated the height should be 830mm from the. How high should basin taps be? When compared to the more common pedestal basin, wall hung basins are good at optimising space, whilst still. How High Should A Wall Hung Basin Be.
From victoriaplum.com
Wall mounted basins what you need to know How High Should A Wall Hung Basin Be I've just installed some wall hung bauhaus bathroom furniture and the instructions stated the height should be 830mm from the. If you are any taller than this, an installation height of 80 cm for. Be sure to take accurate and standardised measurements to determine. Correct levelling of the washbasin is essential for its optimal functioning and impeccable aesthetics. How high. How High Should A Wall Hung Basin Be.
From www.dkorinteriors.com
Home Interior Design Tips by Miami Interior Design Firm Bathroom How High Should A Wall Hung Basin Be Be sure to take accurate and standardised measurements to determine. The height of a wall hung basin can be fully personalised to suit your individual preference. When adding a countertop basin, consider the basin's height to ensure the total setup doesn't exceed a comfortable reach. I've just installed some wall hung bauhaus bathroom furniture and the instructions stated the height. How High Should A Wall Hung Basin Be.
From www.bathstore.com
How to Install a Wall Hung Basin Howto Guide Bathstore How High Should A Wall Hung Basin Be How high should basin taps be? When compared to the more common pedestal basin, wall hung basins are good at optimising space, whilst still looking great, sometimes referred to as a cloakroom basin or. If your basin taps are integrated into the unit, the height is decided for you. Correct levelling of the washbasin is essential for its optimal functioning. How High Should A Wall Hung Basin Be.
From tilesshop.in
Wall hung Basin/Integrated Basin KUBIX (19x17) SONCERA How High Should A Wall Hung Basin Be If your basin taps are integrated into the unit, the height is decided for you. Be sure to take accurate and standardised measurements to determine. When compared to the more common pedestal basin, wall hung basins are good at optimising space, whilst still looking great, sometimes referred to as a cloakroom basin or. I've just installed some wall hung bauhaus. How High Should A Wall Hung Basin Be.
From www.architonic.com
Classic WallHung Basin Architonic How High Should A Wall Hung Basin Be If you are any taller than this, an installation height of 80 cm for. I've just installed some wall hung bauhaus bathroom furniture and the instructions stated the height should be 830mm from the. If your basin taps are integrated into the unit, the height is decided for you. When adding a countertop basin, consider the basin's height to ensure. How High Should A Wall Hung Basin Be.
From www.architonic.com
Classic WallHung Basin Architonic How High Should A Wall Hung Basin Be I've just installed some wall hung bauhaus bathroom furniture and the instructions stated the height should be 830mm from the. Correct levelling of the washbasin is essential for its optimal functioning and impeccable aesthetics. If you are any taller than this, an installation height of 80 cm for. If your basin taps are integrated into the unit, the height is. How High Should A Wall Hung Basin Be.
From www.johnfordgroup.co.uk
Adapting A Bathroom? Here's Why You Should Opt For A Wall Hung Basin How High Should A Wall Hung Basin Be When compared to the more common pedestal basin, wall hung basins are good at optimising space, whilst still looking great, sometimes referred to as a cloakroom basin or. How high should basin taps be? Correct levelling of the washbasin is essential for its optimal functioning and impeccable aesthetics. Be sure to take accurate and standardised measurements to determine. When adding. How High Should A Wall Hung Basin Be.
From studiobagno.com.au
Studio Bagno Redefining bathware How High Should A Wall Hung Basin Be If your basin taps are integrated into the unit, the height is decided for you. I've just installed some wall hung bauhaus bathroom furniture and the instructions stated the height should be 830mm from the. The height of a wall hung basin can be fully personalised to suit your individual preference. When adding a countertop basin, consider the basin's height. How High Should A Wall Hung Basin Be.
From www.bigbathroomshop.co.uk
Milano Farington White Modern Rectangular Wall Hung Basin 800mm x How High Should A Wall Hung Basin Be When adding a countertop basin, consider the basin's height to ensure the total setup doesn't exceed a comfortable reach. How high should basin taps be? People who are around 1.76 m tall are fortunate, as they are the right size for the standards that determine installation heights. Be sure to take accurate and standardised measurements to determine. When compared to. How High Should A Wall Hung Basin Be.
From victoriaplum.com
Wall mounted basins what you need to know How High Should A Wall Hung Basin Be Correct levelling of the washbasin is essential for its optimal functioning and impeccable aesthetics. When adding a countertop basin, consider the basin's height to ensure the total setup doesn't exceed a comfortable reach. I've just installed some wall hung bauhaus bathroom furniture and the instructions stated the height should be 830mm from the. How high should basin taps be? If. How High Should A Wall Hung Basin Be.
From smillhomedesign.blogspot.com
Master Bathroom Layout Measurements Smill Home Design How High Should A Wall Hung Basin Be When compared to the more common pedestal basin, wall hung basins are good at optimising space, whilst still looking great, sometimes referred to as a cloakroom basin or. How high should basin taps be? Correct levelling of the washbasin is essential for its optimal functioning and impeccable aesthetics. If your basin taps are integrated into the unit, the height is. How High Should A Wall Hung Basin Be.
From www.betterbathrooms.com
How To Install A Wall Hung Basin Better Bathrooms How High Should A Wall Hung Basin Be People who are around 1.76 m tall are fortunate, as they are the right size for the standards that determine installation heights. If your basin taps are integrated into the unit, the height is decided for you. Correct levelling of the washbasin is essential for its optimal functioning and impeccable aesthetics. When compared to the more common pedestal basin, wall. How High Should A Wall Hung Basin Be.
From www.sanctuary-bathrooms.co.uk
RAK Sensation 550mm Wall Hung Basin Sanctuary Bathrooms How High Should A Wall Hung Basin Be Be sure to take accurate and standardised measurements to determine. I've just installed some wall hung bauhaus bathroom furniture and the instructions stated the height should be 830mm from the. The height of a wall hung basin can be fully personalised to suit your individual preference. If your basin taps are integrated into the unit, the height is decided for. How High Should A Wall Hung Basin Be.
From mytopsview.blogspot.com
The Benefits of a Wall Hung Basin How High Should A Wall Hung Basin Be The height of a wall hung basin can be fully personalised to suit your individual preference. If your basin taps are integrated into the unit, the height is decided for you. If you are any taller than this, an installation height of 80 cm for. When compared to the more common pedestal basin, wall hung basins are good at optimising. How High Should A Wall Hung Basin Be.
From www.victorianplumbing.co.uk
How to Fit a Bathroom Sink DIY Guides Victorian Plumbing How High Should A Wall Hung Basin Be Be sure to take accurate and standardised measurements to determine. How high should basin taps be? If your basin taps are integrated into the unit, the height is decided for you. I've just installed some wall hung bauhaus bathroom furniture and the instructions stated the height should be 830mm from the. If you are any taller than this, an installation. How High Should A Wall Hung Basin Be.
From victoriaplum.com
Wall Mounted Basins Guide How High Should A Wall Hung Basin Be I've just installed some wall hung bauhaus bathroom furniture and the instructions stated the height should be 830mm from the. People who are around 1.76 m tall are fortunate, as they are the right size for the standards that determine installation heights. How high should basin taps be? If you are any taller than this, an installation height of 80. How High Should A Wall Hung Basin Be.
From www.tapnshower.com
Brisbane Corner Wall Hung Basin How High Should A Wall Hung Basin Be How high should basin taps be? When adding a countertop basin, consider the basin's height to ensure the total setup doesn't exceed a comfortable reach. If you are any taller than this, an installation height of 80 cm for. Be sure to take accurate and standardised measurements to determine. I've just installed some wall hung bauhaus bathroom furniture and the. How High Should A Wall Hung Basin Be.
From asia.jaquar.com
Jaquar Complete Bathroom Solutions,Wall Hung Integrated Basin ONSWHT How High Should A Wall Hung Basin Be Correct levelling of the washbasin is essential for its optimal functioning and impeccable aesthetics. The height of a wall hung basin can be fully personalised to suit your individual preference. If you are any taller than this, an installation height of 80 cm for. I've just installed some wall hung bauhaus bathroom furniture and the instructions stated the height should. How High Should A Wall Hung Basin Be.
From www.betterbathrooms.com
Cloakroom Wall Hung Basin 330mm Houston Better Bathrooms How High Should A Wall Hung Basin Be The height of a wall hung basin can be fully personalised to suit your individual preference. When compared to the more common pedestal basin, wall hung basins are good at optimising space, whilst still looking great, sometimes referred to as a cloakroom basin or. Be sure to take accurate and standardised measurements to determine. People who are around 1.76 m. How High Should A Wall Hung Basin Be.
From www.jaquar.com
Solo Sanitaryware Full Pedestal Wall Hung Wash Basin How High Should A Wall Hung Basin Be How high should basin taps be? When adding a countertop basin, consider the basin's height to ensure the total setup doesn't exceed a comfortable reach. I've just installed some wall hung bauhaus bathroom furniture and the instructions stated the height should be 830mm from the. People who are around 1.76 m tall are fortunate, as they are the right size. How High Should A Wall Hung Basin Be.
From www.pinterest.ph
Narrow Bathroom Vanities, Bathroom Vanity Base, Bathroom Units, Wall How High Should A Wall Hung Basin Be The height of a wall hung basin can be fully personalised to suit your individual preference. I've just installed some wall hung bauhaus bathroom furniture and the instructions stated the height should be 830mm from the. If your basin taps are integrated into the unit, the height is decided for you. Be sure to take accurate and standardised measurements to. How High Should A Wall Hung Basin Be.
From www.bathstore.com
How to Install a Wall Hung Basin Howto Guide Bathstore How High Should A Wall Hung Basin Be The height of a wall hung basin can be fully personalised to suit your individual preference. When compared to the more common pedestal basin, wall hung basins are good at optimising space, whilst still looking great, sometimes referred to as a cloakroom basin or. Correct levelling of the washbasin is essential for its optimal functioning and impeccable aesthetics. How high. How High Should A Wall Hung Basin Be.
From victoriaplum.com
Wall Mounted Basins Guide How High Should A Wall Hung Basin Be If you are any taller than this, an installation height of 80 cm for. When adding a countertop basin, consider the basin's height to ensure the total setup doesn't exceed a comfortable reach. I've just installed some wall hung bauhaus bathroom furniture and the instructions stated the height should be 830mm from the. When compared to the more common pedestal. How High Should A Wall Hung Basin Be.
From motionspot.co.uk
Consilio Wall Hung Basin Motionspot How High Should A Wall Hung Basin Be Be sure to take accurate and standardised measurements to determine. If your basin taps are integrated into the unit, the height is decided for you. If you are any taller than this, an installation height of 80 cm for. Correct levelling of the washbasin is essential for its optimal functioning and impeccable aesthetics. When compared to the more common pedestal. How High Should A Wall Hung Basin Be.
From studiobagno.com.au
Studio Bagno Redefining bathware How High Should A Wall Hung Basin Be Correct levelling of the washbasin is essential for its optimal functioning and impeccable aesthetics. The height of a wall hung basin can be fully personalised to suit your individual preference. When compared to the more common pedestal basin, wall hung basins are good at optimising space, whilst still looking great, sometimes referred to as a cloakroom basin or. How high. How High Should A Wall Hung Basin Be.
From www.orin.my
4 Reasons to Install a WallHung Basin in Your Bathroom Orin How High Should A Wall Hung Basin Be The height of a wall hung basin can be fully personalised to suit your individual preference. When adding a countertop basin, consider the basin's height to ensure the total setup doesn't exceed a comfortable reach. If you are any taller than this, an installation height of 80 cm for. When compared to the more common pedestal basin, wall hung basins. How High Should A Wall Hung Basin Be.
From simsiangchoon.com
6 Different Types of Wash Basin to Consider for Your Toilet Sim Siang How High Should A Wall Hung Basin Be If your basin taps are integrated into the unit, the height is decided for you. How high should basin taps be? When compared to the more common pedestal basin, wall hung basins are good at optimising space, whilst still looking great, sometimes referred to as a cloakroom basin or. When adding a countertop basin, consider the basin's height to ensure. How High Should A Wall Hung Basin Be.
From www.architonic.com
Classic WallHung Basin Architonic How High Should A Wall Hung Basin Be If your basin taps are integrated into the unit, the height is decided for you. Correct levelling of the washbasin is essential for its optimal functioning and impeccable aesthetics. If you are any taller than this, an installation height of 80 cm for. I've just installed some wall hung bauhaus bathroom furniture and the instructions stated the height should be. How High Should A Wall Hung Basin Be.
From www.acolia.com.my
ACL 550WH Wall Hung Basin ACOLIA How High Should A Wall Hung Basin Be Be sure to take accurate and standardised measurements to determine. If your basin taps are integrated into the unit, the height is decided for you. Correct levelling of the washbasin is essential for its optimal functioning and impeccable aesthetics. I've just installed some wall hung bauhaus bathroom furniture and the instructions stated the height should be 830mm from the. The. How High Should A Wall Hung Basin Be.
From www.betterbathrooms.com
Cloakroom Wall Hung Basin 400mm Houston Better Bathrooms How High Should A Wall Hung Basin Be I've just installed some wall hung bauhaus bathroom furniture and the instructions stated the height should be 830mm from the. If your basin taps are integrated into the unit, the height is decided for you. When compared to the more common pedestal basin, wall hung basins are good at optimising space, whilst still looking great, sometimes referred to as a. How High Should A Wall Hung Basin Be.
From www.declinko.com
How to Install a Wall Hung Basin? 7 Easy Steps to Do It. How High Should A Wall Hung Basin Be When adding a countertop basin, consider the basin's height to ensure the total setup doesn't exceed a comfortable reach. How high should basin taps be? People who are around 1.76 m tall are fortunate, as they are the right size for the standards that determine installation heights. If your basin taps are integrated into the unit, the height is decided. How High Should A Wall Hung Basin Be.
From www.firstchoicewarehouse.com.au
The Many Benefits of Wall Hung Basins for Your Bathroom How High Should A Wall Hung Basin Be The height of a wall hung basin can be fully personalised to suit your individual preference. Correct levelling of the washbasin is essential for its optimal functioning and impeccable aesthetics. When compared to the more common pedestal basin, wall hung basins are good at optimising space, whilst still looking great, sometimes referred to as a cloakroom basin or. Be sure. How High Should A Wall Hung Basin Be.
From www.acolia.com.my
ACL 550WH Wall Hung Basin ACOLIA How High Should A Wall Hung Basin Be If your basin taps are integrated into the unit, the height is decided for you. When adding a countertop basin, consider the basin's height to ensure the total setup doesn't exceed a comfortable reach. How high should basin taps be? I've just installed some wall hung bauhaus bathroom furniture and the instructions stated the height should be 830mm from the.. How High Should A Wall Hung Basin Be.