Millwork Drawings . See examples of different types of drawings and how to use them for your project. Shop drawings are more detailed than architectural drawings and focus on the technical. learn what millwork cad drawings are, what components they include, what standards they follow, and what tools they use. learn what millwork shop drawings are, what they include, and why they are important for architectural woodworking projects. Find out the types of drawings, views, and annotations that communicate design, dimensions, materials, and joinery details for millwork components. learn what millwork shop drawings are and how they are used to manufacture architectural millwork and casework. Our guide covers essential steps, best. learn to create precise millwork shop drawings in autocad. This guide covers the basics of millwork design, fabrication, and installation, with examples and tips. in this guide, we unveil the essential steps and strategies for creating flawless millwork shop drawings, empowering designers,.
from www.apcaddesigns.com
in this guide, we unveil the essential steps and strategies for creating flawless millwork shop drawings, empowering designers,. learn what millwork shop drawings are and how they are used to manufacture architectural millwork and casework. learn to create precise millwork shop drawings in autocad. Find out the types of drawings, views, and annotations that communicate design, dimensions, materials, and joinery details for millwork components. learn what millwork shop drawings are, what they include, and why they are important for architectural woodworking projects. Shop drawings are more detailed than architectural drawings and focus on the technical. This guide covers the basics of millwork design, fabrication, and installation, with examples and tips. See examples of different types of drawings and how to use them for your project. learn what millwork cad drawings are, what components they include, what standards they follow, and what tools they use. Our guide covers essential steps, best.
MILLWORK SHOP DRAWINGS AP CAD Designs LLC
Millwork Drawings Find out the types of drawings, views, and annotations that communicate design, dimensions, materials, and joinery details for millwork components. learn what millwork cad drawings are, what components they include, what standards they follow, and what tools they use. Our guide covers essential steps, best. learn to create precise millwork shop drawings in autocad. This guide covers the basics of millwork design, fabrication, and installation, with examples and tips. Find out the types of drawings, views, and annotations that communicate design, dimensions, materials, and joinery details for millwork components. Shop drawings are more detailed than architectural drawings and focus on the technical. learn what millwork shop drawings are and how they are used to manufacture architectural millwork and casework. learn what millwork shop drawings are, what they include, and why they are important for architectural woodworking projects. in this guide, we unveil the essential steps and strategies for creating flawless millwork shop drawings, empowering designers,. See examples of different types of drawings and how to use them for your project.
From dxooouyxo.blob.core.windows.net
Millwork Drawings Definition at Grace McGinty blog Millwork Drawings learn what millwork shop drawings are, what they include, and why they are important for architectural woodworking projects. This guide covers the basics of millwork design, fabrication, and installation, with examples and tips. learn to create precise millwork shop drawings in autocad. in this guide, we unveil the essential steps and strategies for creating flawless millwork shop. Millwork Drawings.
From readwatchdo.com
& Millwork Drawings Millwork Drawings learn what millwork cad drawings are, what components they include, what standards they follow, and what tools they use. learn to create precise millwork shop drawings in autocad. See examples of different types of drawings and how to use them for your project. This guide covers the basics of millwork design, fabrication, and installation, with examples and tips.. Millwork Drawings.
From www.hitechcaddservices.com
Millwork Detailing Outsource Millwork Shop Drawings & Joinery Drafting Millwork Drawings learn what millwork shop drawings are and how they are used to manufacture architectural millwork and casework. Find out the types of drawings, views, and annotations that communicate design, dimensions, materials, and joinery details for millwork components. See examples of different types of drawings and how to use them for your project. learn what millwork cad drawings are,. Millwork Drawings.
From dxooouyxo.blob.core.windows.net
Millwork Drawings Definition at Grace McGinty blog Millwork Drawings Find out the types of drawings, views, and annotations that communicate design, dimensions, materials, and joinery details for millwork components. learn what millwork shop drawings are and how they are used to manufacture architectural millwork and casework. learn what millwork shop drawings are, what they include, and why they are important for architectural woodworking projects. learn what. Millwork Drawings.
From www.apcaddesigns.com
MILLWORK SHOP DRAWINGS AP CAD Designs LLC Millwork Drawings This guide covers the basics of millwork design, fabrication, and installation, with examples and tips. Find out the types of drawings, views, and annotations that communicate design, dimensions, materials, and joinery details for millwork components. See examples of different types of drawings and how to use them for your project. in this guide, we unveil the essential steps and. Millwork Drawings.
From superiorshopdrawings.com
What are Millwork Shop Drawings? Superior Shop Drawings Millwork Drawings learn to create precise millwork shop drawings in autocad. Shop drawings are more detailed than architectural drawings and focus on the technical. in this guide, we unveil the essential steps and strategies for creating flawless millwork shop drawings, empowering designers,. learn what millwork cad drawings are, what components they include, what standards they follow, and what tools. Millwork Drawings.
From www.upwork.com
Your furniture woodworking, millwork and joinery shop drawing by Millwork Drawings Shop drawings are more detailed than architectural drawings and focus on the technical. Find out the types of drawings, views, and annotations that communicate design, dimensions, materials, and joinery details for millwork components. This guide covers the basics of millwork design, fabrication, and installation, with examples and tips. learn to create precise millwork shop drawings in autocad. See examples. Millwork Drawings.
From www.agcaddesigns.com
Millwork CAD Shop Drawing, Casework drawing service USA (310) 431 Millwork Drawings learn to create precise millwork shop drawings in autocad. learn what millwork shop drawings are, what they include, and why they are important for architectural woodworking projects. in this guide, we unveil the essential steps and strategies for creating flawless millwork shop drawings, empowering designers,. learn what millwork cad drawings are, what components they include, what. Millwork Drawings.
From www.hitechdigital.com
Millwork Drawings Essential Details of Millwork Shop Drawings Millwork Drawings See examples of different types of drawings and how to use them for your project. learn what millwork shop drawings are and how they are used to manufacture architectural millwork and casework. learn what millwork cad drawings are, what components they include, what standards they follow, and what tools they use. Shop drawings are more detailed than architectural. Millwork Drawings.
From www.cadcondesign.com
Millwork Shop drawings for Manufactures Architects, Engineers, designers Millwork Drawings learn what millwork cad drawings are, what components they include, what standards they follow, and what tools they use. See examples of different types of drawings and how to use them for your project. learn to create precise millwork shop drawings in autocad. Find out the types of drawings, views, and annotations that communicate design, dimensions, materials, and. Millwork Drawings.
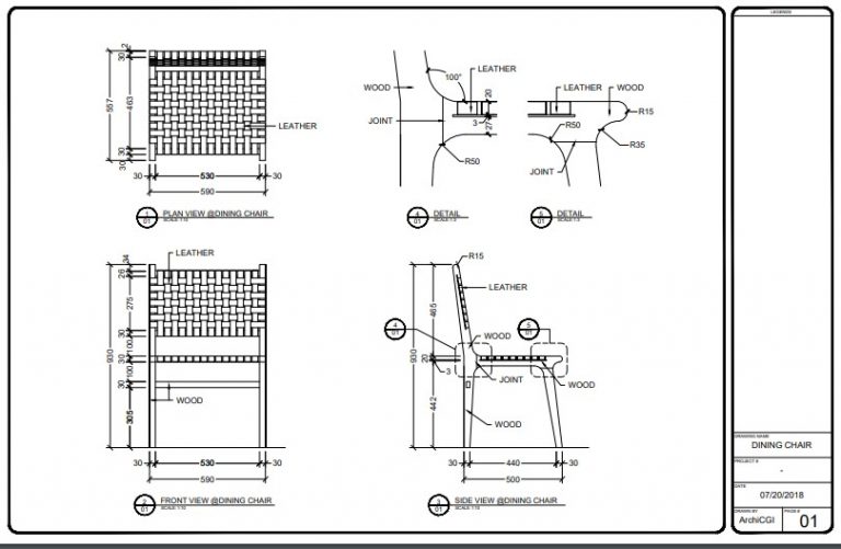
From drawings.archicgi.com
Millwork Shop Drawings How To Use Them For Furniture Design Millwork Drawings learn what millwork shop drawings are and how they are used to manufacture architectural millwork and casework. Our guide covers essential steps, best. in this guide, we unveil the essential steps and strategies for creating flawless millwork shop drawings, empowering designers,. learn to create precise millwork shop drawings in autocad. Shop drawings are more detailed than architectural. Millwork Drawings.
From www.woodweb.com
Custom Millwork Shop Drawings of BuiltIn Units Millwork Drawings in this guide, we unveil the essential steps and strategies for creating flawless millwork shop drawings, empowering designers,. learn what millwork shop drawings are, what they include, and why they are important for architectural woodworking projects. See examples of different types of drawings and how to use them for your project. This guide covers the basics of millwork. Millwork Drawings.
From www.hitechcaddservices.com
Millwork Detailing Outsource Millwork Shop Drawings & Joinery Drafting Millwork Drawings See examples of different types of drawings and how to use them for your project. Our guide covers essential steps, best. learn what millwork shop drawings are, what they include, and why they are important for architectural woodworking projects. learn what millwork shop drawings are and how they are used to manufacture architectural millwork and casework. learn. Millwork Drawings.
From superiorshopdrawings.com
What are Millwork Shop Drawings? Superior Shop Drawings Millwork Drawings learn what millwork shop drawings are and how they are used to manufacture architectural millwork and casework. Find out the types of drawings, views, and annotations that communicate design, dimensions, materials, and joinery details for millwork components. Our guide covers essential steps, best. learn what millwork shop drawings are, what they include, and why they are important for. Millwork Drawings.
From drawings.archicgi.com
Millwork CAD Drawings 5 Ways To Make Furniture Producing Faster Millwork Drawings This guide covers the basics of millwork design, fabrication, and installation, with examples and tips. learn what millwork cad drawings are, what components they include, what standards they follow, and what tools they use. learn what millwork shop drawings are, what they include, and why they are important for architectural woodworking projects. learn what millwork shop drawings. Millwork Drawings.
From umidabdullaev.weebly.com
Assignment 1 Kitchen (Millwork) Drawings Umid Abdullaev Millwork Drawings This guide covers the basics of millwork design, fabrication, and installation, with examples and tips. Our guide covers essential steps, best. See examples of different types of drawings and how to use them for your project. learn what millwork shop drawings are and how they are used to manufacture architectural millwork and casework. learn what millwork cad drawings. Millwork Drawings.
From www.chudasamaoutsourcing.com
Millwork Shop Drawings Services Architectural Millwork Drafting Millwork Drawings Shop drawings are more detailed than architectural drawings and focus on the technical. Our guide covers essential steps, best. learn to create precise millwork shop drawings in autocad. This guide covers the basics of millwork design, fabrication, and installation, with examples and tips. See examples of different types of drawings and how to use them for your project. Find. Millwork Drawings.
From drawings.archicgi.com
Millwork Drafting 5 Methods To Upgrade Millwork Drawings Millwork Drawings learn to create precise millwork shop drawings in autocad. Shop drawings are more detailed than architectural drawings and focus on the technical. learn what millwork cad drawings are, what components they include, what standards they follow, and what tools they use. Our guide covers essential steps, best. Find out the types of drawings, views, and annotations that communicate. Millwork Drawings.
From www.woodweb.com
Custom Millwork Shop Drawings of BuiltIn Units Millwork Drawings in this guide, we unveil the essential steps and strategies for creating flawless millwork shop drawings, empowering designers,. Shop drawings are more detailed than architectural drawings and focus on the technical. See examples of different types of drawings and how to use them for your project. This guide covers the basics of millwork design, fabrication, and installation, with examples. Millwork Drawings.
From www.artisaninteriordesigns.com
Drawings Millwork Drawings in this guide, we unveil the essential steps and strategies for creating flawless millwork shop drawings, empowering designers,. Our guide covers essential steps, best. This guide covers the basics of millwork design, fabrication, and installation, with examples and tips. learn what millwork shop drawings are, what they include, and why they are important for architectural woodworking projects. . Millwork Drawings.
From umidabdullaev.weebly.com
Assignment 1 Kitchen (Millwork) Drawings Umid Abdullaev Millwork Drawings See examples of different types of drawings and how to use them for your project. Shop drawings are more detailed than architectural drawings and focus on the technical. This guide covers the basics of millwork design, fabrication, and installation, with examples and tips. learn to create precise millwork shop drawings in autocad. Find out the types of drawings, views,. Millwork Drawings.
From thescoutguide.com
Millwork 101 An Inside Look at Its Artistry The Scout Guide Millwork Drawings See examples of different types of drawings and how to use them for your project. Shop drawings are more detailed than architectural drawings and focus on the technical. learn what millwork shop drawings are and how they are used to manufacture architectural millwork and casework. learn what millwork cad drawings are, what components they include, what standards they. Millwork Drawings.
From www.agcaddesigns.com
Millwork CAD Shop Drawing, Casework, Furniture design drawing service USA Millwork Drawings learn what millwork shop drawings are, what they include, and why they are important for architectural woodworking projects. This guide covers the basics of millwork design, fabrication, and installation, with examples and tips. See examples of different types of drawings and how to use them for your project. learn what millwork cad drawings are, what components they include,. Millwork Drawings.
From www.agcaddesigns.com
Millwork CAD Shop Drawing, Casework, Furniture design drawing service USA Millwork Drawings learn what millwork shop drawings are and how they are used to manufacture architectural millwork and casework. learn what millwork cad drawings are, what components they include, what standards they follow, and what tools they use. learn what millwork shop drawings are, what they include, and why they are important for architectural woodworking projects. Find out the. Millwork Drawings.
From drawings.archicgi.com
Millwork Shop Drawings How To Use Them For Furniture Design Millwork Drawings learn what millwork cad drawings are, what components they include, what standards they follow, and what tools they use. learn what millwork shop drawings are and how they are used to manufacture architectural millwork and casework. Find out the types of drawings, views, and annotations that communicate design, dimensions, materials, and joinery details for millwork components. Shop drawings. Millwork Drawings.
From www.pinterest.com
Custom Commercial Casework Millwork Shop Drawing service Arizona Millwork Drawings See examples of different types of drawings and how to use them for your project. learn what millwork shop drawings are and how they are used to manufacture architectural millwork and casework. Shop drawings are more detailed than architectural drawings and focus on the technical. Find out the types of drawings, views, and annotations that communicate design, dimensions, materials,. Millwork Drawings.
From peerlesscabinetsinc.com
Millwork Shop drawings By CadCon Design Commercial Casework and Millwork Drawings Shop drawings are more detailed than architectural drawings and focus on the technical. This guide covers the basics of millwork design, fabrication, and installation, with examples and tips. learn to create precise millwork shop drawings in autocad. in this guide, we unveil the essential steps and strategies for creating flawless millwork shop drawings, empowering designers,. learn what. Millwork Drawings.
From www.upwork.com
A highly detailed shop drawings Upwork Millwork Drawings learn what millwork cad drawings are, what components they include, what standards they follow, and what tools they use. learn what millwork shop drawings are and how they are used to manufacture architectural millwork and casework. Our guide covers essential steps, best. This guide covers the basics of millwork design, fabrication, and installation, with examples and tips. . Millwork Drawings.
From www.agcaddesigns.com
Millwork CAD Shop Drawing, Casework drawing service USA (310) 431 Millwork Drawings learn to create precise millwork shop drawings in autocad. Find out the types of drawings, views, and annotations that communicate design, dimensions, materials, and joinery details for millwork components. learn what millwork shop drawings are and how they are used to manufacture architectural millwork and casework. Our guide covers essential steps, best. learn what millwork cad drawings. Millwork Drawings.
From www.artstation.com
ArtStation Millwork Drawings for Retail Shop Interior Design Millwork Drawings Our guide covers essential steps, best. learn what millwork shop drawings are and how they are used to manufacture architectural millwork and casework. learn to create precise millwork shop drawings in autocad. learn what millwork cad drawings are, what components they include, what standards they follow, and what tools they use. in this guide, we unveil. Millwork Drawings.
From dxowtwgyr.blob.core.windows.net
Millwork Guide at Camille Mahoney blog Millwork Drawings learn what millwork shop drawings are and how they are used to manufacture architectural millwork and casework. learn to create precise millwork shop drawings in autocad. See examples of different types of drawings and how to use them for your project. Find out the types of drawings, views, and annotations that communicate design, dimensions, materials, and joinery details. Millwork Drawings.
From www.hitechcaddservices.com
Millwork Detailing Outsource Millwork Shop Drawings & Joinery Drafting Millwork Drawings See examples of different types of drawings and how to use them for your project. learn to create precise millwork shop drawings in autocad. learn what millwork cad drawings are, what components they include, what standards they follow, and what tools they use. learn what millwork shop drawings are and how they are used to manufacture architectural. Millwork Drawings.
From readwatchdo.com
& Millwork Millwork Drawings See examples of different types of drawings and how to use them for your project. This guide covers the basics of millwork design, fabrication, and installation, with examples and tips. Our guide covers essential steps, best. learn what millwork cad drawings are, what components they include, what standards they follow, and what tools they use. learn what millwork. Millwork Drawings.
From shalindesigns.com
The Role of Millwork Drawings in Design Millwork Drawings See examples of different types of drawings and how to use them for your project. Our guide covers essential steps, best. learn to create precise millwork shop drawings in autocad. in this guide, we unveil the essential steps and strategies for creating flawless millwork shop drawings, empowering designers,. Find out the types of drawings, views, and annotations that. Millwork Drawings.
From draftcadeng.com
Millwork DraftCad Services LLC Millwork Drawings Shop drawings are more detailed than architectural drawings and focus on the technical. See examples of different types of drawings and how to use them for your project. learn to create precise millwork shop drawings in autocad. learn what millwork cad drawings are, what components they include, what standards they follow, and what tools they use. Our guide. Millwork Drawings.