From www.facebook.com
HOLY ROSARY HOLY ROSARY KABOMBO, PAMATII KAG LANTAWA ANG MGA T Mobile Pacific View Mall Get the latest from pacific view for a smart & stylish inbox! This site uses cookies and related technologies, as described in. Store location & hours, services,. T Mobile Pacific View Mall.
From www.businesswire.com
TMobile Launches Second Corporate Venture Capital Fund to Fuel the T Mobile Pacific View Mall This site uses cookies and related technologies, as described in. Get the latest from pacific view for a smart & stylish inbox! Store location & hours, services,. T Mobile Pacific View Mall.
From www.linkedin.com
TMobile on LinkedIn As a TMobile Account Executive you’ll enjoy a T Mobile Pacific View Mall This site uses cookies and related technologies, as described in. Get the latest from pacific view for a smart & stylish inbox! Store location & hours, services,. T Mobile Pacific View Mall.
From www.latimes.com
TMobile Home Discount Off → September 2024 T Mobile Pacific View Mall Store location & hours, services,. This site uses cookies and related technologies, as described in. Get the latest from pacific view for a smart & stylish inbox! T Mobile Pacific View Mall.
From www.linkedin.com
Dr. Christian Kurtzke on LinkedIn agency luxury lifestyle digital T Mobile Pacific View Mall Store location & hours, services,. This site uses cookies and related technologies, as described in. Get the latest from pacific view for a smart & stylish inbox! T Mobile Pacific View Mall.
From www.linkedin.com
Seth Fields on LinkedIn NIST has decided to update their standards to T Mobile Pacific View Mall Get the latest from pacific view for a smart & stylish inbox! This site uses cookies and related technologies, as described in. Store location & hours, services,. T Mobile Pacific View Mall.
From www.facebook.com
HOLY ROSARY HOLY ROSARY KABOMBO, PAMATII KAG LANTAWA ANG MGA T Mobile Pacific View Mall This site uses cookies and related technologies, as described in. Get the latest from pacific view for a smart & stylish inbox! Store location & hours, services,. T Mobile Pacific View Mall.
From www.phonescoop.com
TMobile Is Building 5G in 30 Markets This Year, Will Launch In New T Mobile Pacific View Mall Store location & hours, services,. This site uses cookies and related technologies, as described in. Get the latest from pacific view for a smart & stylish inbox! T Mobile Pacific View Mall.
From www.facebook.com
HOLY ROSARY HOLY ROSARY KABOMBO, PAMATII KAG LANTAWA ANG MGA T Mobile Pacific View Mall Store location & hours, services,. This site uses cookies and related technologies, as described in. Get the latest from pacific view for a smart & stylish inbox! T Mobile Pacific View Mall.
From www.linkedin.com
AT&T vs TMobile A Comprehensive Comparison T Mobile Pacific View Mall This site uses cookies and related technologies, as described in. Get the latest from pacific view for a smart & stylish inbox! Store location & hours, services,. T Mobile Pacific View Mall.
From callupgrant.everykidsports.org
How do I apply for a TMobile Little League Call Up Grant? TMobile T Mobile Pacific View Mall Store location & hours, services,. Get the latest from pacific view for a smart & stylish inbox! This site uses cookies and related technologies, as described in. T Mobile Pacific View Mall.
From www.t-mobile.com
TMobile Pacific View Mall Ventura, CA T Mobile Pacific View Mall This site uses cookies and related technologies, as described in. Get the latest from pacific view for a smart & stylish inbox! Store location & hours, services,. T Mobile Pacific View Mall.
From smartmania.cz
TMobile T Phone parametry, specifikace, cena SMARTmania.cz T Mobile Pacific View Mall Store location & hours, services,. Get the latest from pacific view for a smart & stylish inbox! This site uses cookies and related technologies, as described in. T Mobile Pacific View Mall.
From community.t-mobile.com
TMobile and MLB TMobile Community T Mobile Pacific View Mall Store location & hours, services,. Get the latest from pacific view for a smart & stylish inbox! This site uses cookies and related technologies, as described in. T Mobile Pacific View Mall.
From www.amazon.co.jp
Amazon.co.jp 【アメリカ ハワイ eSIM】USA simカード【10日間 使い放題】4GLTE 高速データ通信/通話/SMS T Mobile Pacific View Mall This site uses cookies and related technologies, as described in. Get the latest from pacific view for a smart & stylish inbox! Store location & hours, services,. T Mobile Pacific View Mall.
From www.commercialdesignindia.com
Pacific Group unveils cuttingedge 'Premium Outlet Mall' in New Delhi's T Mobile Pacific View Mall Store location & hours, services,. This site uses cookies and related technologies, as described in. Get the latest from pacific view for a smart & stylish inbox! T Mobile Pacific View Mall.
From www.reddit.com
TMobile home showing up 10 after autopay r/tmobile T Mobile Pacific View Mall Store location & hours, services,. This site uses cookies and related technologies, as described in. Get the latest from pacific view for a smart & stylish inbox! T Mobile Pacific View Mall.
From www.youtube.com
Pacific Premium Outlets Pacific Mall Jasola New Mall In Delhi T Mobile Pacific View Mall Get the latest from pacific view for a smart & stylish inbox! This site uses cookies and related technologies, as described in. Store location & hours, services,. T Mobile Pacific View Mall.
From www.whistleout.com
TMobile Customer Service WhistleOut T Mobile Pacific View Mall Store location & hours, services,. Get the latest from pacific view for a smart & stylish inbox! This site uses cookies and related technologies, as described in. T Mobile Pacific View Mall.
From www.youtube.com
SpaceX and T Mobile Above and Beyond TTN Clips YouTube T Mobile Pacific View Mall Get the latest from pacific view for a smart & stylish inbox! This site uses cookies and related technologies, as described in. Store location & hours, services,. T Mobile Pacific View Mall.
From nj1015.com
TMobile data breach gets worse — how to protect your identity T Mobile Pacific View Mall Get the latest from pacific view for a smart & stylish inbox! This site uses cookies and related technologies, as described in. Store location & hours, services,. T Mobile Pacific View Mall.
From www.slashgear.com
TMobile's Coverage Map Compared To Verizon & AT&T T Mobile Pacific View Mall Store location & hours, services,. Get the latest from pacific view for a smart & stylish inbox! This site uses cookies and related technologies, as described in. T Mobile Pacific View Mall.
From www.linkedin.com
NAIOP Washington State on LinkedIn 2023 Eastside Sponsorship Opportunities T Mobile Pacific View Mall Store location & hours, services,. Get the latest from pacific view for a smart & stylish inbox! This site uses cookies and related technologies, as described in. T Mobile Pacific View Mall.
From www.pinterest.com.au
These Pictures Of American Malls In The 1980s Are Actually Incredible T Mobile Pacific View Mall This site uses cookies and related technologies, as described in. Get the latest from pacific view for a smart & stylish inbox! Store location & hours, services,. T Mobile Pacific View Mall.
From www.facebook.com
HOLY ROSARY HOLY ROSARY KABOMBO, PAMATII KAG LANTAWA ANG MGA T Mobile Pacific View Mall Store location & hours, services,. This site uses cookies and related technologies, as described in. Get the latest from pacific view for a smart & stylish inbox! T Mobile Pacific View Mall.
From www.mlb.com
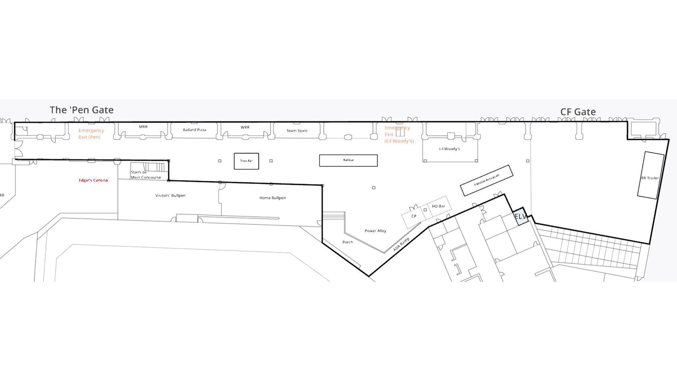
TMobile Park Events Outdoor Venues The TMobile 'Pen Seattle T Mobile Pacific View Mall Store location & hours, services,. This site uses cookies and related technologies, as described in. Get the latest from pacific view for a smart & stylish inbox! T Mobile Pacific View Mall.
From www.facebook.com
NewsTalk K57 "Your Talk, Your Station NewsTalk K57" By WAVE 105.1 T Mobile Pacific View Mall This site uses cookies and related technologies, as described in. Store location & hours, services,. Get the latest from pacific view for a smart & stylish inbox! T Mobile Pacific View Mall.
From uniquekiosk.com
Top 5 Best cell phone kiosk design for retail and accessories T Mobile Pacific View Mall Get the latest from pacific view for a smart & stylish inbox! Store location & hours, services,. This site uses cookies and related technologies, as described in. T Mobile Pacific View Mall.
From www.facebook.com
NewsTalk K57 "Your Talk, Your Station NewsTalk K57" By WAVE 105.1 T Mobile Pacific View Mall Get the latest from pacific view for a smart & stylish inbox! Store location & hours, services,. This site uses cookies and related technologies, as described in. T Mobile Pacific View Mall.
From forums.macrumors.com
TMobile trade in, bestbuy or apple? MacRumors Forums T Mobile Pacific View Mall Store location & hours, services,. Get the latest from pacific view for a smart & stylish inbox! This site uses cookies and related technologies, as described in. T Mobile Pacific View Mall.
From tmo.report
TMobile Is Launching Fiber Optic Home Starting In NYC The T Mobile Pacific View Mall This site uses cookies and related technologies, as described in. Store location & hours, services,. Get the latest from pacific view for a smart & stylish inbox! T Mobile Pacific View Mall.
From www.t-mobile.com
TMobile Pacific View Mall Ventura, CA T Mobile Pacific View Mall This site uses cookies and related technologies, as described in. Get the latest from pacific view for a smart & stylish inbox! Store location & hours, services,. T Mobile Pacific View Mall.
From www.facebook.com
NewsTalk K57 "Your Talk, Your Station NewsTalk K57" By WAVE 105.1 T Mobile Pacific View Mall Store location & hours, services,. Get the latest from pacific view for a smart & stylish inbox! This site uses cookies and related technologies, as described in. T Mobile Pacific View Mall.
From forums.macrumors.com
Tmobile or Verizon in the Southern States? MacRumors Forums T Mobile Pacific View Mall Get the latest from pacific view for a smart & stylish inbox! This site uses cookies and related technologies, as described in. Store location & hours, services,. T Mobile Pacific View Mall.
From www.flickr.com
TMobile TMobile, Newington, CT night, 8/2014 by Mike Moz… Flickr T Mobile Pacific View Mall Store location & hours, services,. Get the latest from pacific view for a smart & stylish inbox! This site uses cookies and related technologies, as described in. T Mobile Pacific View Mall.